Информационная система
«Ёшкин Кот»

Скачать базу одним архивом
Скачать обновления
История создания базы
Карта сайта

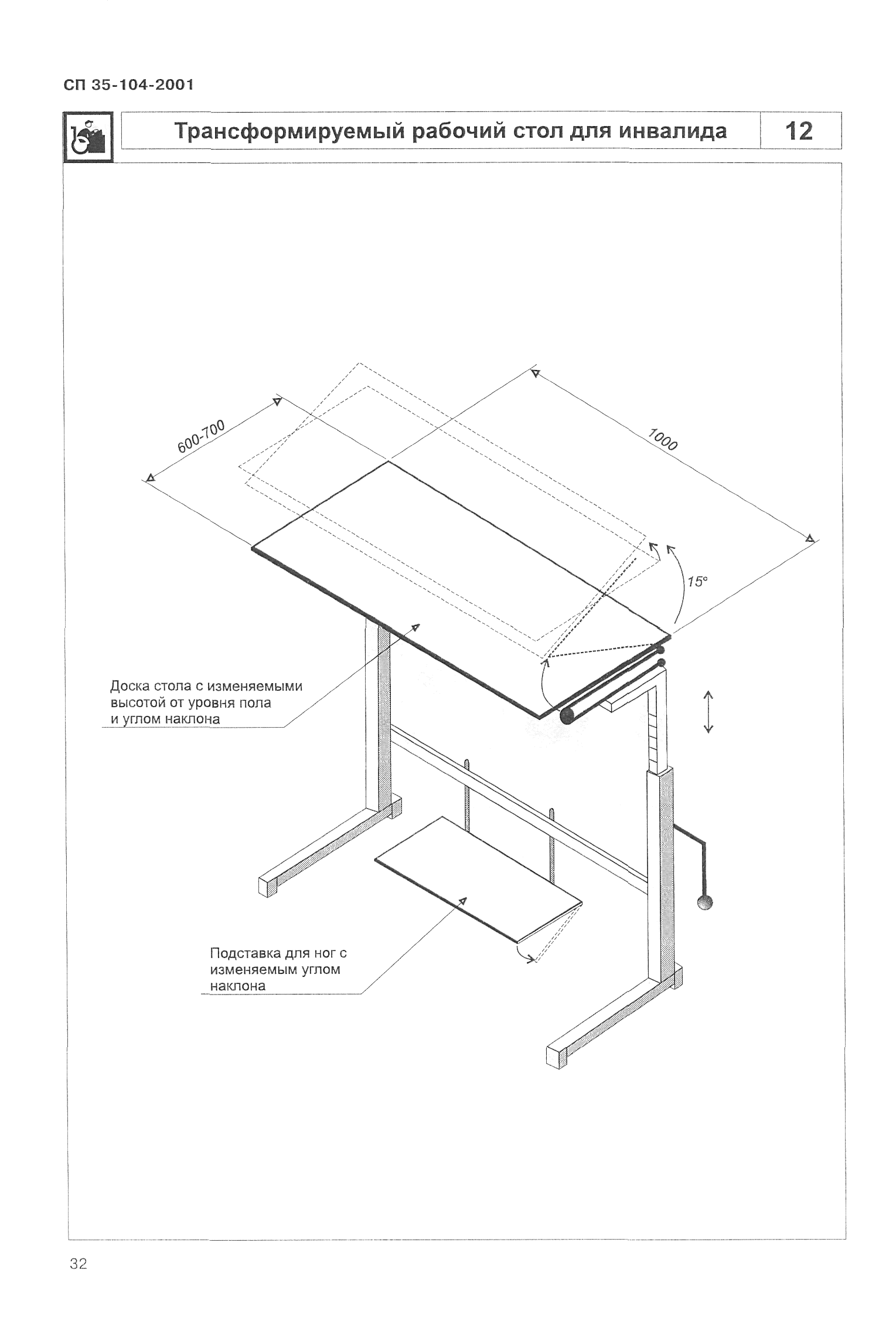
Скачать СП 35-104-2001 Здания и помещения с местами труда для инвалидов

Дата актуализации: 10.08.2017

СП 35-104-2001

Здания и помещения с местами труда для инвалидов

Обозначение: СП 35-104-2001
Обозначение англ: SP 35-104-2001
Статус:действует
Название рус.:Здания и помещения с местами труда для инвалидов
Название англ.:Buildings and premises with working places for disebled
Дата добавления в базу:01.09.2013
Дата актуализации:05.05.2017
Дата введения:16.07.2001
Область применения:Данный Свод правил распространяется на проектирование предприятий различных отраслей промышленности, в том числе: машиностроения, приборостроения, электроники, радиотехнической, электротехнической; легкой, пищевой, местной промышленности, предприятий бытового обслуживания населения, ремонтных предприятий и других, где имеются профессии и специальности, медицински показанные для инвалидов; а также на проектирование административно-управленческих зданий, зданий проектных и научно-исследовательских институтов и других общественных зданий, где могут быть организованы отдельные рабочие места для инвалидов.
Оглавление:Введение
1 Область применения
2 Общие положения
3 Обеспечение доступности мест приложения труда инвалидов при проектировании территории
   Оборудование территории
4 Требования к зданиям и помещениям
   Здания и помещения социально-бытового назначения, административные здания
5 Рабочие места (рабочая зона) для инвалидов
Приложение А Порядок организации доступности рабочих мест для инвалидов (при проектировании предприятия общего типа или учреждения)
Приложение Б Нормативные документы
Приложение В Требования к условиям и организации труда на рабочих местах инвалидов с различными заболеваниями
Разработан: АПИО-Центр
ГУП Институт общественных зданий
Утверждён:16.07.2001 Госстрой России (Russian Federation Gosstroy 69)
20.06.2001 ГУП Институт общественных зданий (Institute of Public Buildings GUP 5 г)
Принят:16.07.2001 Госстрой России (Russian Federation Gosstroy 69)
Издан: ГУП ЦПП (CPP GUP 2001 г. )
Расположен в:Техническая документация Экология СТРОИТЕЛЬНЫЕ МАТЕРИАЛЫ И СТРОИТЕЛЬСТВО Строительство Строительство в целом Автомобильные дороги Экологические разделы проектной документации Реконструкция и строительство Расчет коэффициента освещенности и инсоляции (КЕО) Строительство Нормативные документы Документы Системы нормативных документов в строительстве Нормативные документы по градостроительству, зданиям и сооружениям к.35 Обеспечение доступной среды жизнедеятельности для инвалидов и других маломобильных групп населения
Нормативные ссылки:
СП 35-104-2001СП 35-104-2001СП 35-104-2001СП 35-104-2001СП 35-104-2001СП 35-104-2001СП 35-104-2001СП 35-104-2001СП 35-104-2001СП 35-104-2001СП 35-104-2001СП 35-104-2001СП 35-104-2001СП 35-104-2001СП 35-104-2001СП 35-104-2001СП 35-104-2001СП 35-104-2001СП 35-104-2001СП 35-104-2001СП 35-104-2001СП 35-104-2001СП 35-104-2001СП 35-104-2001СП 35-104-2001СП 35-104-2001СП 35-104-2001СП 35-104-2001СП 35-104-2001СП 35-104-2001СП 35-104-2001СП 35-104-2001СП 35-104-2001СП 35-104-2001СП 35-104-2001СП 35-104-2001СП 35-104-2001СП 35-104-2001СП 35-104-2001СП 35-104-2001СП 35-104-2001СП 35-104-2001

© 2013 Ёшкин Кот :-) Карта сайта