| ||||||||||||||||||||||||||||||||||
Скачать Пособие к МГСН 4.05-95 Пособие к МГСН 4.05-95 Школы-интернаты для детей-инвалидовДата актуализации: 10.08.2017
|
| Обозначение: | Пособие к МГСН 4.05-95 |
| Обозначение англ: | MGSN Handbook 4.05-95 |
| Статус: | действует |
| Название рус.: | Пособие к МГСН 4.05-95 "Школы-интернаты для детей-инвалидов" |
| Название англ.: | MGSN 4.05-95 Handbook, "Boarding Schools for Children With Disabilities and Mobility Impairments" |
| Дата добавления в базу: | 01.09.2013 |
| Дата актуализации: | 05.05.2017 |
| Дата введения: | 22.11.1996 |
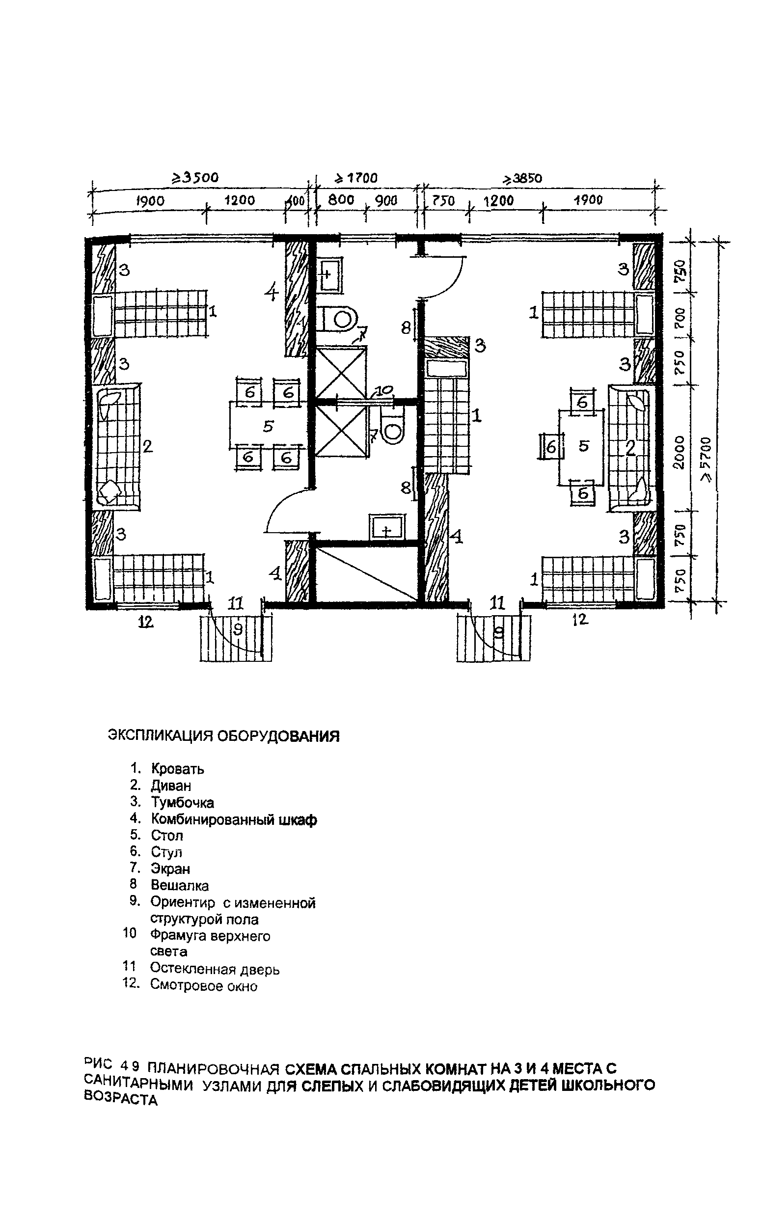
| Оглавление: | 1 Общие положения 2 Концептуальные положения проектирования школ-интернатов для детей-инвалидов 3 Общие требования 3.1 Функциональные требования 3.2 Эргонометрические требования 3.3 Требования к устройствам и приспособлениям 4 Требования к помещениям проживания 5 Требования к помещениям учебно-проофессиональной подготовки 6 Требования к помещениям медицинского обслуживания 7 Требования к помещениям культурно-массового обслуживания 8 Требования к помещениям питания Приложение Лечебно-игровые площадки |
| Разработан: | МНИИП объектов культуры, отдыха, спорта и здравоохранения Москомархитектуры |
| Утверждён: | 22.11.1996 Москомархитектура (Moskomarkhitektura 17) |
| Принят: | Мосгосэкспертиза (Mosgorekspertiza ) Комитет социальной защиты населения г. Москвы (City of Moscow Committee on Social Security ) Комитет образования г. Москвы (City of Moscow Committee on Education ) Управление архитектурного совета и согласования проектов Москомархитектуры (Administration of the Architectural Council and Project Review, Moskomarkhitektura ) |
| Издан: | ГУП НИАЦ (1996 г. ) |
| Расположен в: | |
| Нормативные ссылки: |























































































































