Информационная система
«Ёшкин Кот»

Скачать базу одним архивом
Скачать обновления
История создания базы
Карта сайта

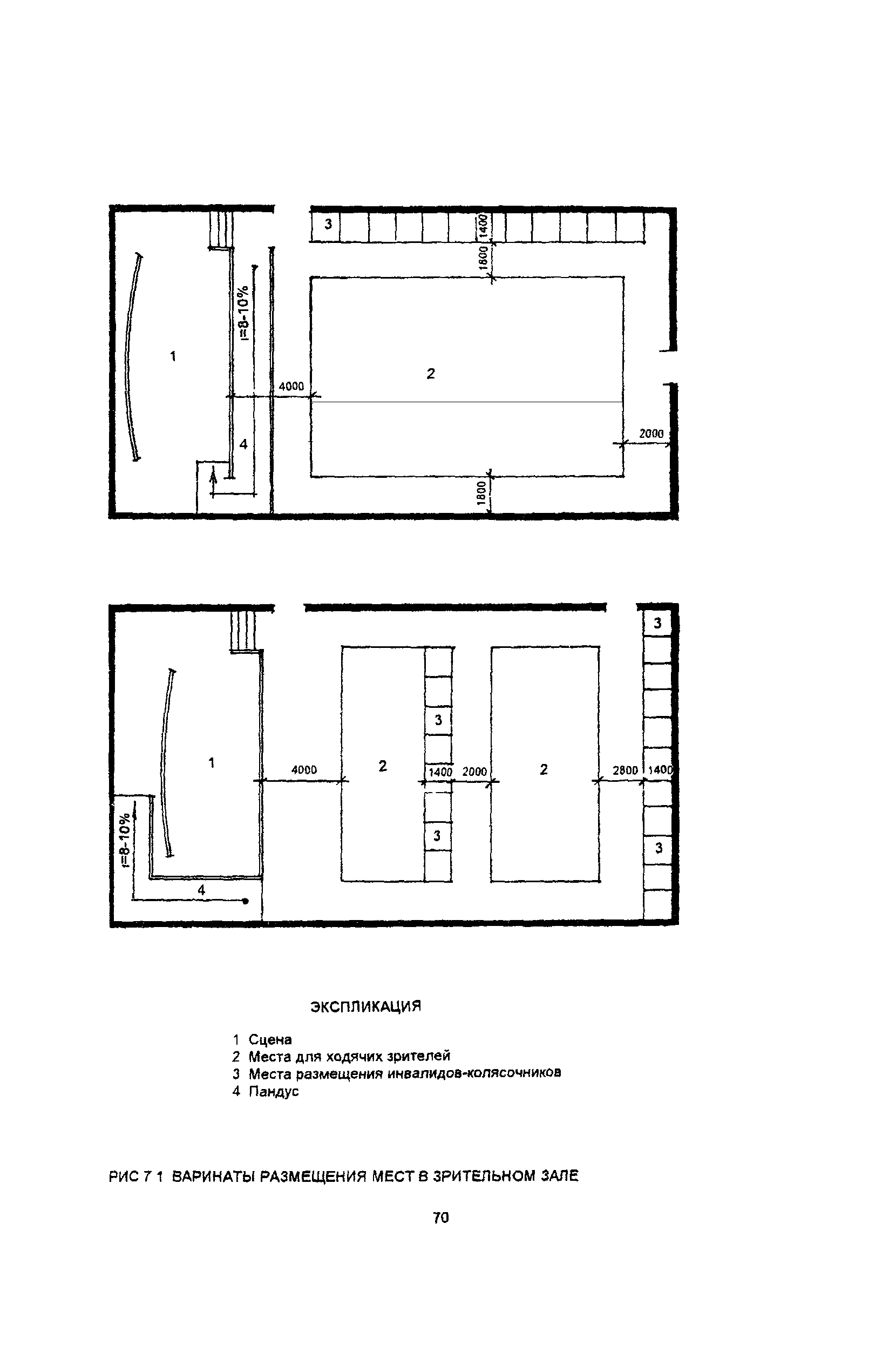
Скачать Пособие к МГСН 4.03-94 Пособие к МГСН 4.03-94 Дома интернаты для инвалидов и престарелых

Дата актуализации: 10.08.2017

Пособие к МГСН 4.03-94

Пособие к МГСН 4.03-94 "Дома интернаты для инвалидов и престарелых"

Обозначение: Пособие к МГСН 4.03-94
Обозначение англ: MGSN Handbook 4.03-94
Статус:действует
Название рус.:Пособие к МГСН 4.03-94 "Дома интернаты для инвалидов и престарелых"
Название англ.:MGSN 4.03-94 Handbook, "Residential Facilities for Individuals With Disabilities and Mobility Impairments and Senior Citizens"
Дата добавления в базу:01.09.2013
Дата актуализации:05.05.2017
Дата введения:04.03.1996
Оглавление:1 Общие положения
2 Концептуальные положения проектирования домов-интернатов для инвалидов и престарелых
3 Общие требования
3.1 Функциональные требования
3.2 Эргонометрические требования
3.3 Требования к устройствам и приспособлениям
4 Требования к помещениям проживания
5 Требования к помещениям профессиональной подготовки
6 Требования к помещениям медицинского обслуживания
7 Требования к помещениям культурно-массового обслуживания
8 Требования к помещениям питания
Приложение Типы оборудования, применяемого для развития двигательных функций
Разработан: МНИИП объектов культуры, отдыха, спорта и здравоохранения Москомархитектуры
Утверждён:04.03.1996 Москомархитектура (Moskomarkhitektura 6)
Принят: Комитет социальной защиты населения г. Москвы (City of Moscow Committee on Social Security )
Управление архитектурного совета и согласования проектов Москомархитектуры (Administration of the Architectural Council and Project Review, Moskomarkhitektura )
Издан: ГУП НИАЦ (1996 г. )
Расположен в:Техническая документация Экология СТРОИТЕЛЬНЫЕ МАТЕРИАЛЫ И СТРОИТЕЛЬСТВО Строительство Общественные здания Строительство Нормативные документы Нормативные документы субъектов Российской Федерации Нормативные документы г. Москвы
Нормативные ссылки:
Пособие к МГСН 4.03-94Пособие к МГСН 4.03-94Пособие к МГСН 4.03-94Пособие к МГСН 4.03-94Пособие к МГСН 4.03-94Пособие к МГСН 4.03-94Пособие к МГСН 4.03-94Пособие к МГСН 4.03-94Пособие к МГСН 4.03-94Пособие к МГСН 4.03-94Пособие к МГСН 4.03-94Пособие к МГСН 4.03-94Пособие к МГСН 4.03-94Пособие к МГСН 4.03-94Пособие к МГСН 4.03-94Пособие к МГСН 4.03-94Пособие к МГСН 4.03-94Пособие к МГСН 4.03-94Пособие к МГСН 4.03-94Пособие к МГСН 4.03-94Пособие к МГСН 4.03-94Пособие к МГСН 4.03-94Пособие к МГСН 4.03-94Пособие к МГСН 4.03-94Пособие к МГСН 4.03-94Пособие к МГСН 4.03-94Пособие к МГСН 4.03-94Пособие к МГСН 4.03-94Пособие к МГСН 4.03-94Пособие к МГСН 4.03-94Пособие к МГСН 4.03-94Пособие к МГСН 4.03-94Пособие к МГСН 4.03-94Пособие к МГСН 4.03-94Пособие к МГСН 4.03-94Пособие к МГСН 4.03-94Пособие к МГСН 4.03-94Пособие к МГСН 4.03-94Пособие к МГСН 4.03-94Пособие к МГСН 4.03-94Пособие к МГСН 4.03-94Пособие к МГСН 4.03-94Пособие к МГСН 4.03-94Пособие к МГСН 4.03-94Пособие к МГСН 4.03-94Пособие к МГСН 4.03-94Пособие к МГСН 4.03-94Пособие к МГСН 4.03-94Пособие к МГСН 4.03-94Пособие к МГСН 4.03-94Пособие к МГСН 4.03-94Пособие к МГСН 4.03-94Пособие к МГСН 4.03-94Пособие к МГСН 4.03-94Пособие к МГСН 4.03-94Пособие к МГСН 4.03-94Пособие к МГСН 4.03-94Пособие к МГСН 4.03-94Пособие к МГСН 4.03-94Пособие к МГСН 4.03-94Пособие к МГСН 4.03-94Пособие к МГСН 4.03-94Пособие к МГСН 4.03-94Пособие к МГСН 4.03-94Пособие к МГСН 4.03-94Пособие к МГСН 4.03-94Пособие к МГСН 4.03-94Пособие к МГСН 4.03-94Пособие к МГСН 4.03-94Пособие к МГСН 4.03-94Пособие к МГСН 4.03-94Пособие к МГСН 4.03-94Пособие к МГСН 4.03-94Пособие к МГСН 4.03-94Пособие к МГСН 4.03-94Пособие к МГСН 4.03-94Пособие к МГСН 4.03-94Пособие к МГСН 4.03-94Пособие к МГСН 4.03-94Пособие к МГСН 4.03-94Пособие к МГСН 4.03-94Пособие к МГСН 4.03-94Пособие к МГСН 4.03-94

© 2013 Ёшкин Кот :-) Карта сайта