| ||||||||||||||||||||||||||||||||||
Скачать РДС 30-201-98 Инструкция о порядке проектирования и установления красных линий в городах и других поселениях Российской ФедерацииДата актуализации: 10.08.2017
|
| Обозначение: | РДС 30-201-98 |
| Обозначение англ: | RDS 30-201-98 |
| Статус: | действует |
| Название рус.: | Инструкция о порядке проектирования и установления красных линий в городах и других поселениях Российской Федерации |
| Название англ.: | Code practice of the projecting and placing of red lines in the cities and other settlements of the Russion Federation |
| Дата добавления в базу: | 01.09.2013 |
| Дата актуализации: | 05.05.2017 |
| Дата введения: | 01.07.1998 |
| Область применения: | Инструкция обязательна для соблюдения всеми субъектами градостроительной деятельности при проектировании и застройке территорий городов и других поселений, а также при межевании и инвентаризации застроенных или подлежащих застройке земель, при оформлении документов на право собственности, владения, пользования и распоряжения земельными участками и другими объектами недвижимости, их государственной регистрации. |
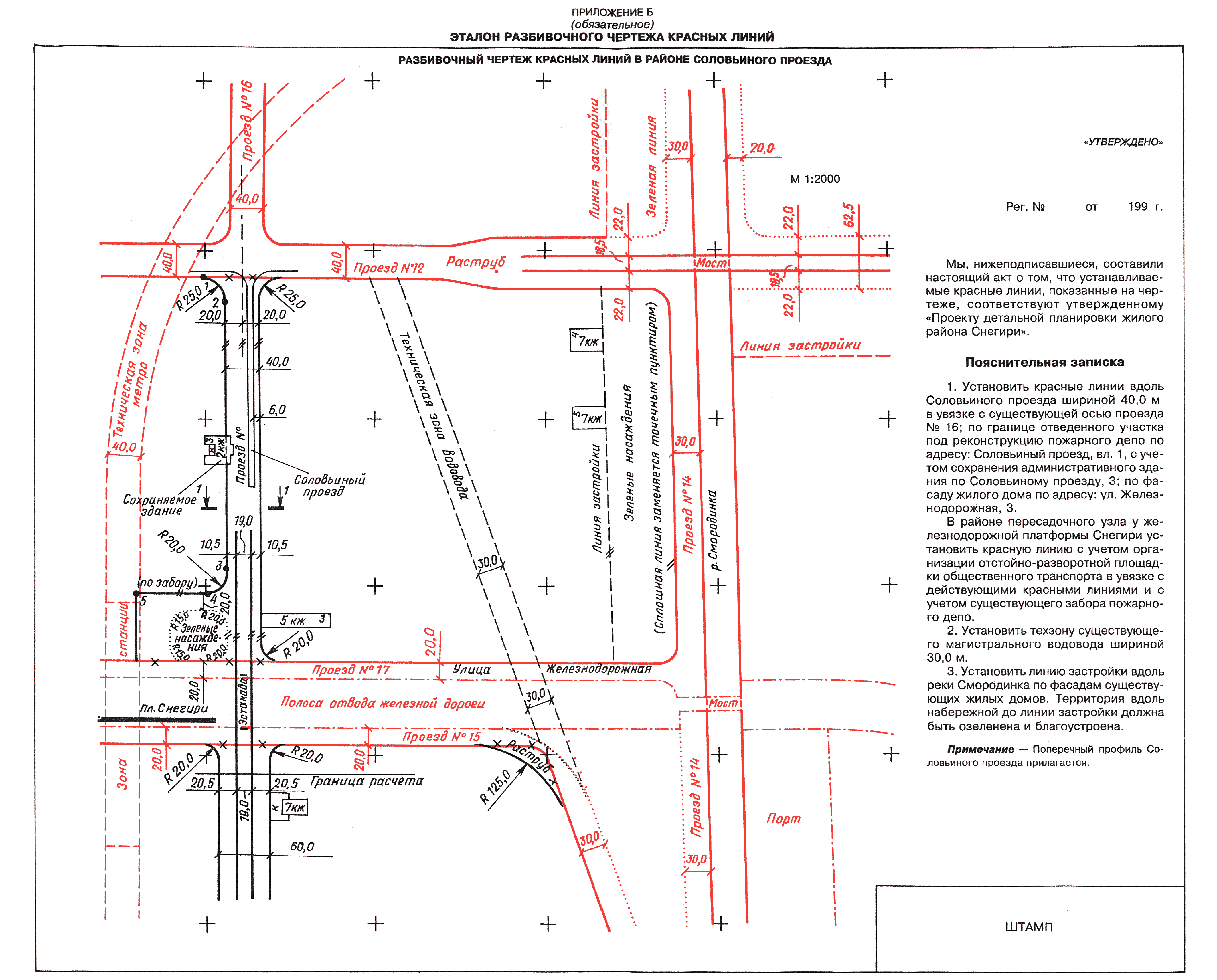
| Оглавление: | 1 Область применения 2 Нормативные ссылки 3 Общие положения 4 Порядок разработки, согласования и утверждения проекта красных линий 5 Требования к содержанию и оформлению плана красных линий и разбивочного чертежа красных линий 6 Контроль за соблюдением красных линий Приложение А. Условные картографические знаки красных и других линий градостроительного регулирования Приложение Б. Эталон разбивочного чертежа красных линий. Масштаб 1:2000 Приложение В. Образец ведомости расчета координат точек красных линий Приложение Г. Эталон поперечного профиля улицы. Масштаб 1:200 |
| Разработан: | НПЦ Региональное развитие |
| Утверждён: | 06.04.1998 Госстрой России (Russian Federation Gosstroy 18-30) |
| Издан: | ГУП ЦПП (CPP GUP 1999 г. ) |
| Расположен в: | |
| Нормативные ссылки: |
|











