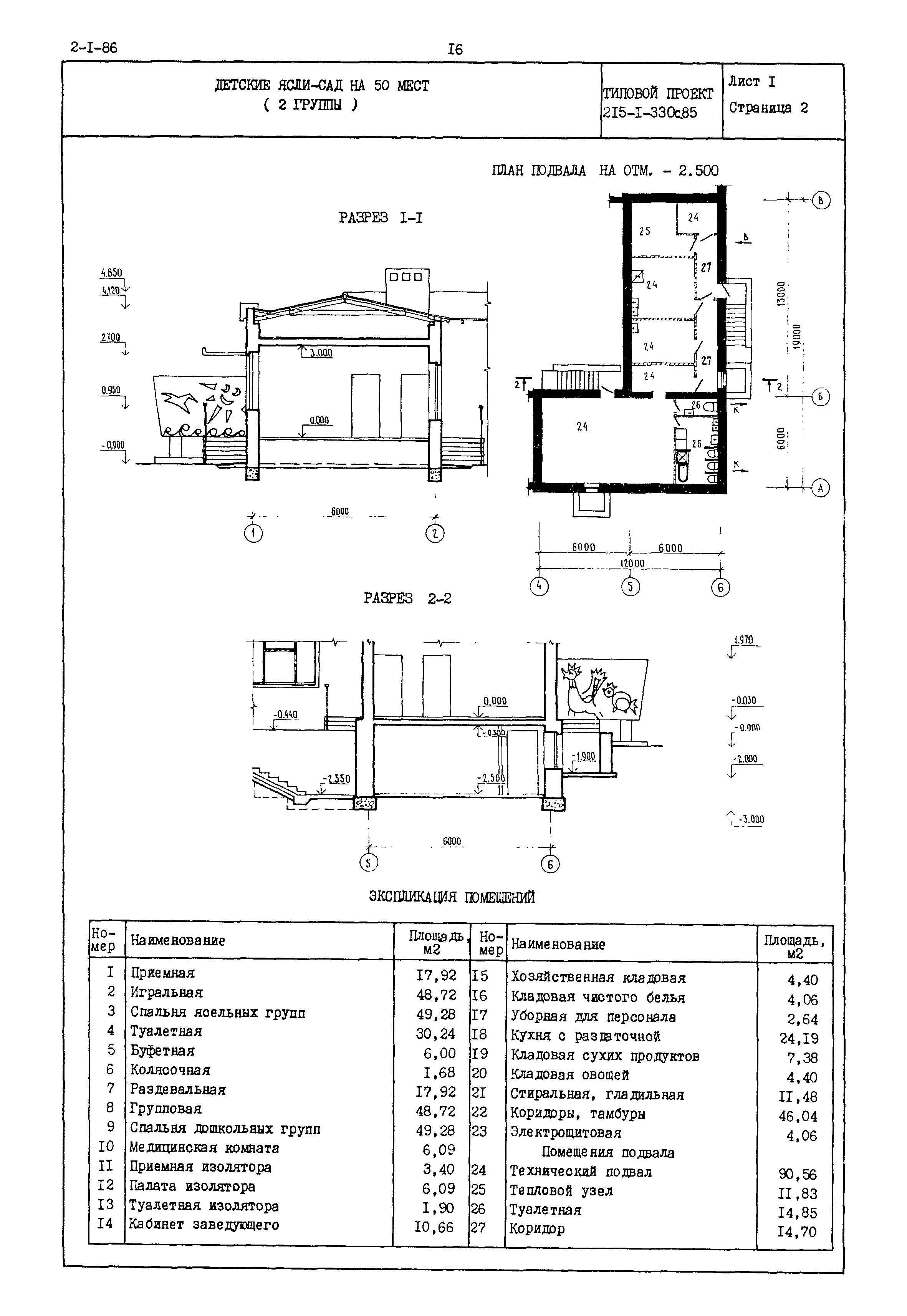
Скачать Типовой проект 215-1-330с.85 Детские ясли-сад на 50 мест (2 группы)Дата актуализации: 10.08.2017 Типовой проект 215-1-330с.85
Детские ясли-сад на 50 мест (2 группы)Обозначение: | Типовой проект 215-1-330с.85 | Обозначение англ: | 215-1-330с.85 | Статус: | действует | Название рус.: | Детские ясли-сад на 50 мест (2 группы) | Дата добавления в базу: | 01.10.2014 | Дата актуализации: | 05.05.2017 | Расположен в: |
|
   
|