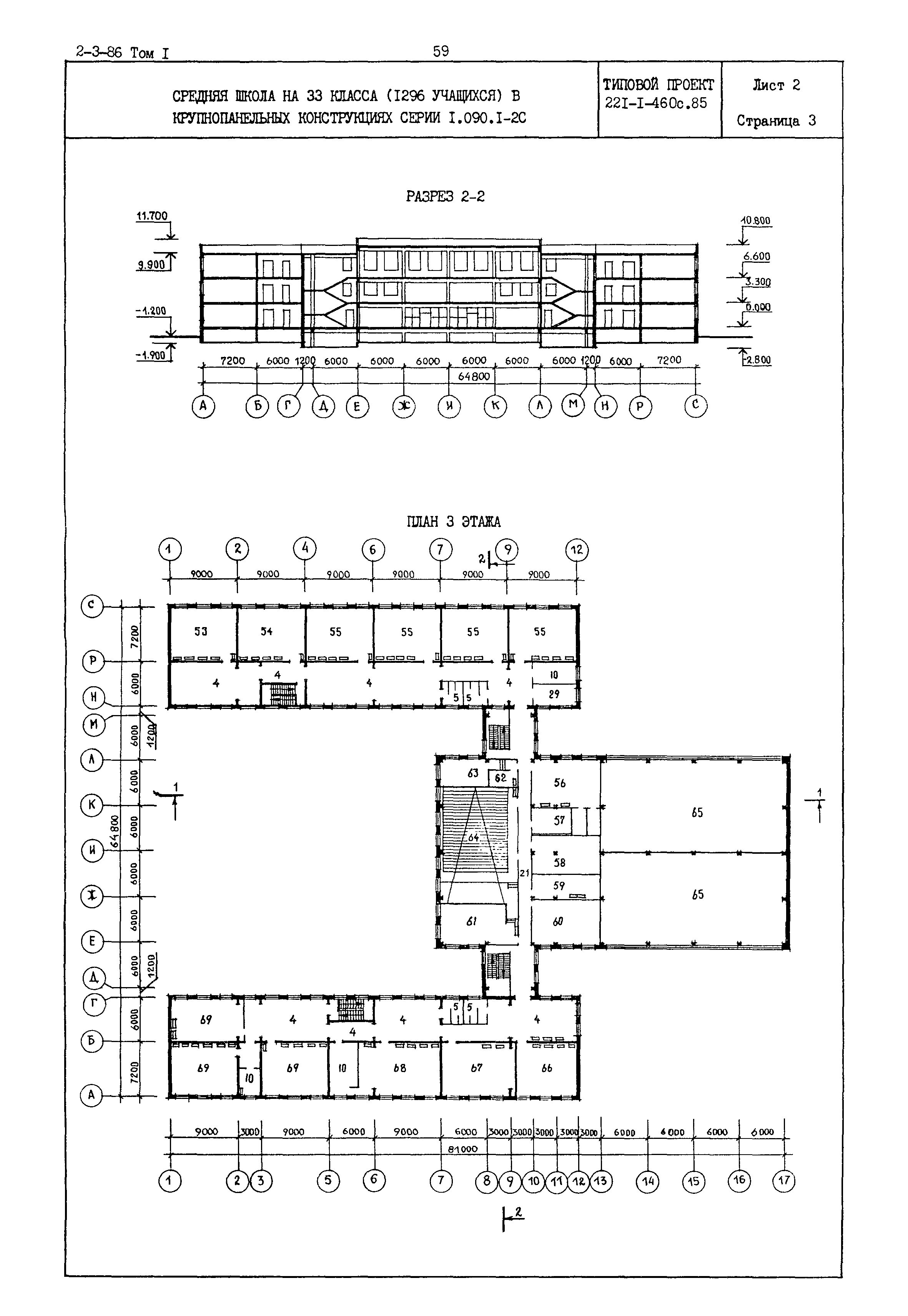
Скачать Типовой проект 221-1-460с.85 Средняя школа на 33 класса (1296 учащихся) в крупнопанельных конструкциях серии 1.090.1-2сДата актуализации: 10.08.2017 Типовой проект 221-1-460с.85
Средняя школа на 33 класса (1296 учащихся) в крупнопанельных конструкциях серии 1.090.1-2сОбозначение: | Типовой проект 221-1-460с.85 | Обозначение англ: | 221-1-460с.85 | Статус: | действует | Название рус.: | Средняя школа на 33 класса (1296 учащихся) в крупнопанельных конструкциях серии 1.090.1-2с | Дата добавления в базу: | 01.10.2014 | Дата актуализации: | 05.05.2017 | Расположен в: |
|
      
|