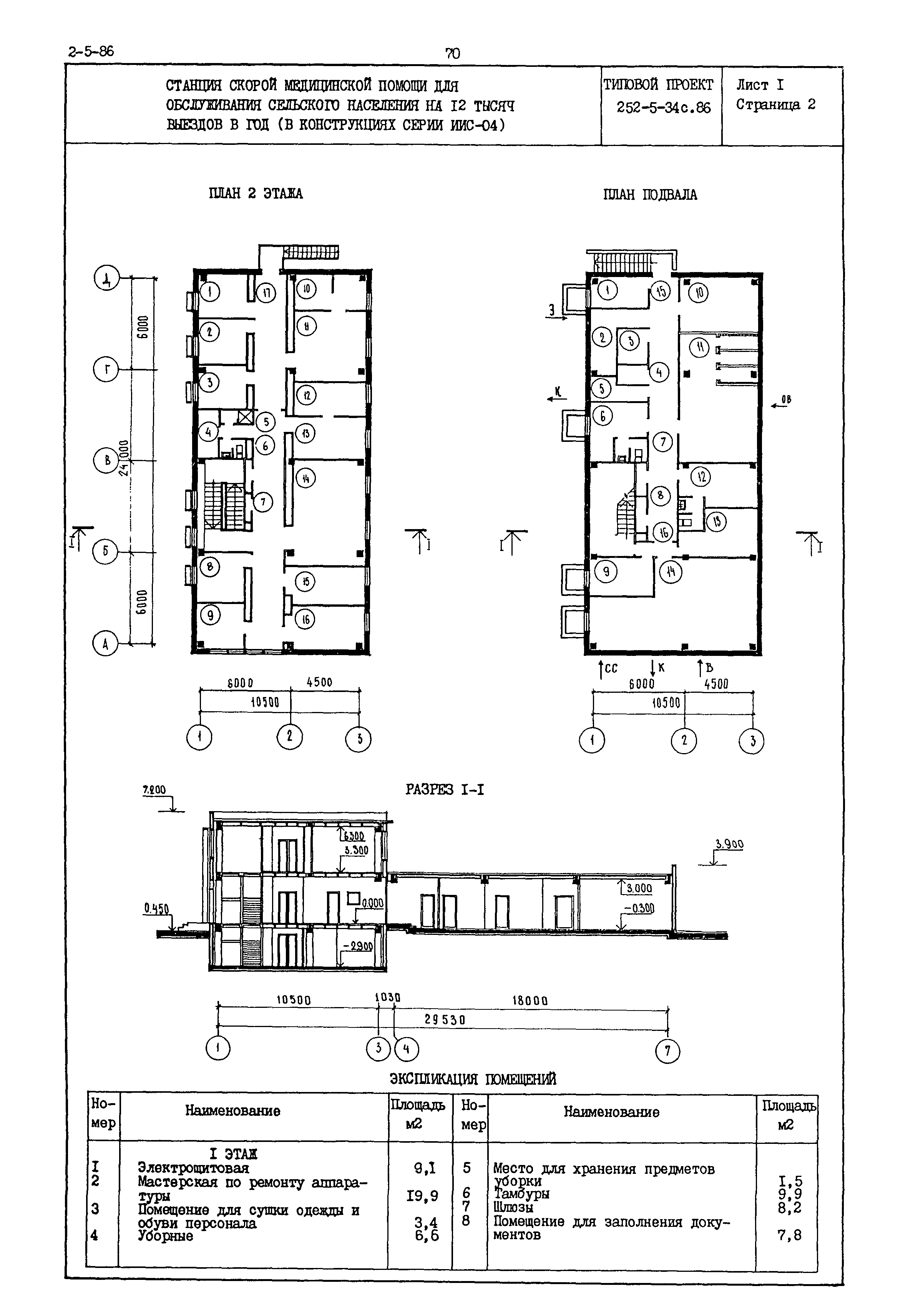
Скачать Типовой проект 252-5-34с.86 Станция скорой медицинской помощи для обслуживания сельского населения на 12 тыс. выездов в год (в конструкциях серии ИИС-04)Дата актуализации: 10.08.2017 Типовой проект 252-5-34с.86
Станция скорой медицинской помощи для обслуживания сельского населения на 12 тыс. выездов в год (в конструкциях серии ИИС-04)Обозначение: | Типовой проект 252-5-34с.86 | Обозначение англ: | 252-5-34с.86 | Статус: | не определен законодательством | Название рус.: | Станция скорой медицинской помощи для обслуживания сельского населения на 12 тыс. выездов в год (в конструкциях серии ИИС-04) | Дата добавления в базу: | 01.10.2014 | Дата актуализации: | 05.05.2017 | Дата введения: | 12.09.1985 | Расположен в: |
|
   
|