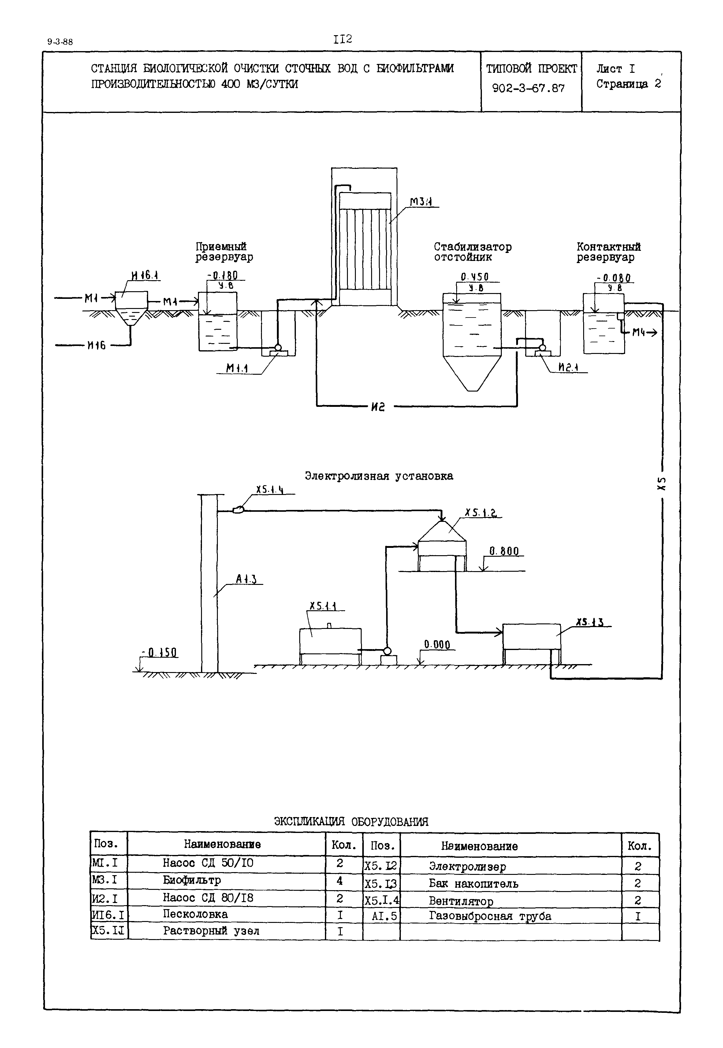
Скачать Типовой проект 902-3-67.87 Станция биологической очистки сточных вод с биофильтрами производительностью 400 куб. м/сутДата актуализации: 10.08.2017 Типовой проект 902-3-67.87
Станция биологической очистки сточных вод с биофильтрами производительностью 400 куб. м/сутОбозначение: | Типовой проект 902-3-67.87 | Обозначение англ: | 902-3-67.87 | Статус: | не определен законодательством | Название рус.: | Станция биологической очистки сточных вод с биофильтрами производительностью 400 куб. м/сут | Дата добавления в базу: | 01.09.2013 | Дата актуализации: | 05.05.2017 | Дата введения: | 23.04.1986 | Расположен в: |
|
   
|