Скачать Типовой проект 161-135-0174с/1 9 этажное общежитие для рабочих и служащих с 14 вариантами блокировок вместимостью от 176 до 768 местДата актуализации: 10.08.2017 Типовой проект 161-135-0174с/1
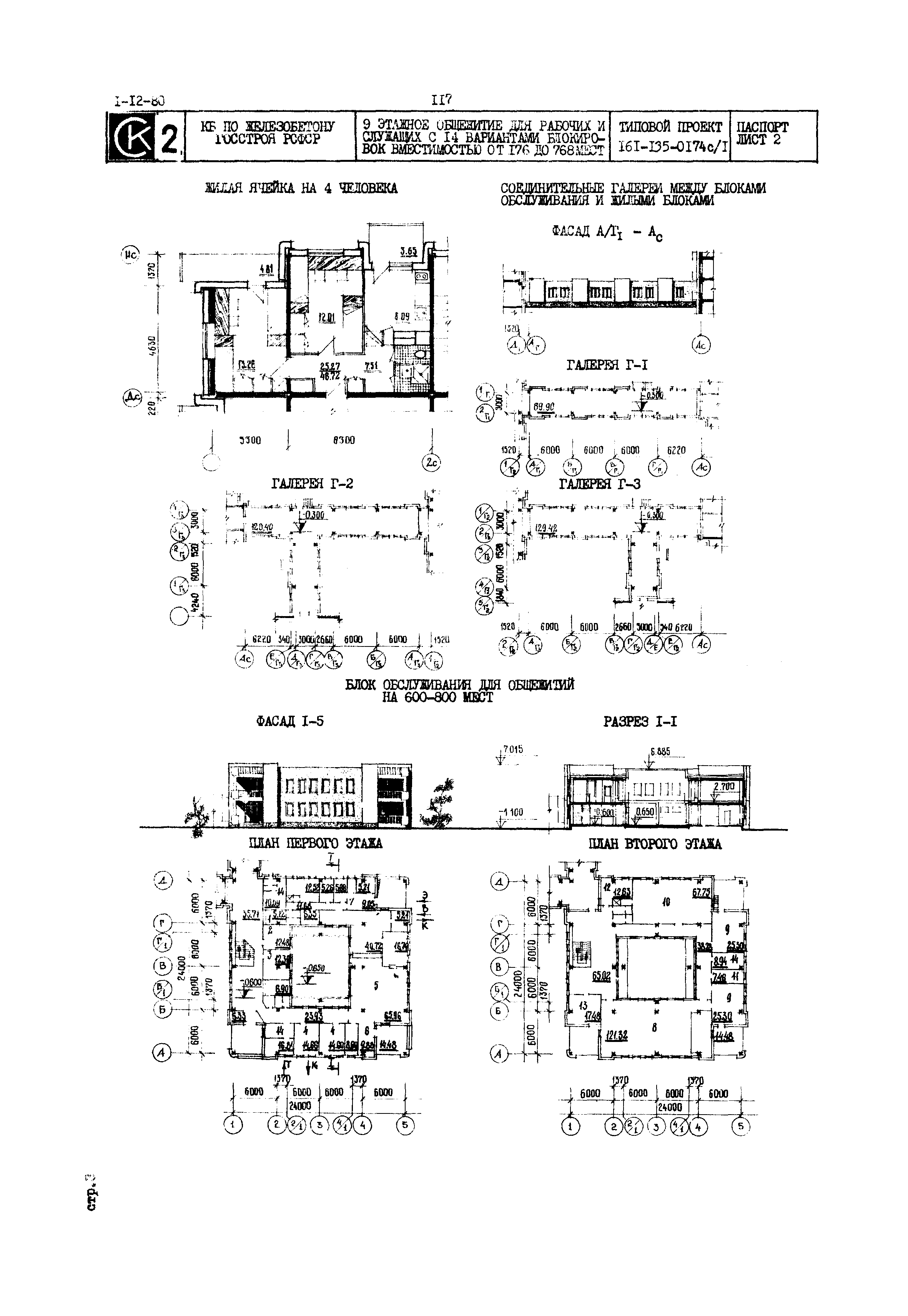
9 этажное общежитие для рабочих и служащих с 14 вариантами блокировок вместимостью от 176 до 768 местОбозначение: | Типовой проект 161-135-0174с/1 | Обозначение англ: | 161-135-0174с/1 | Статус: | не действует | Название рус.: | 9 этажное общежитие для рабочих и служащих с 14 вариантами блокировок вместимостью от 176 до 768 мест | Дата добавления в базу: | 01.09.2013 | Дата актуализации: | 05.05.2017 | Расположен в: |
|
           
|