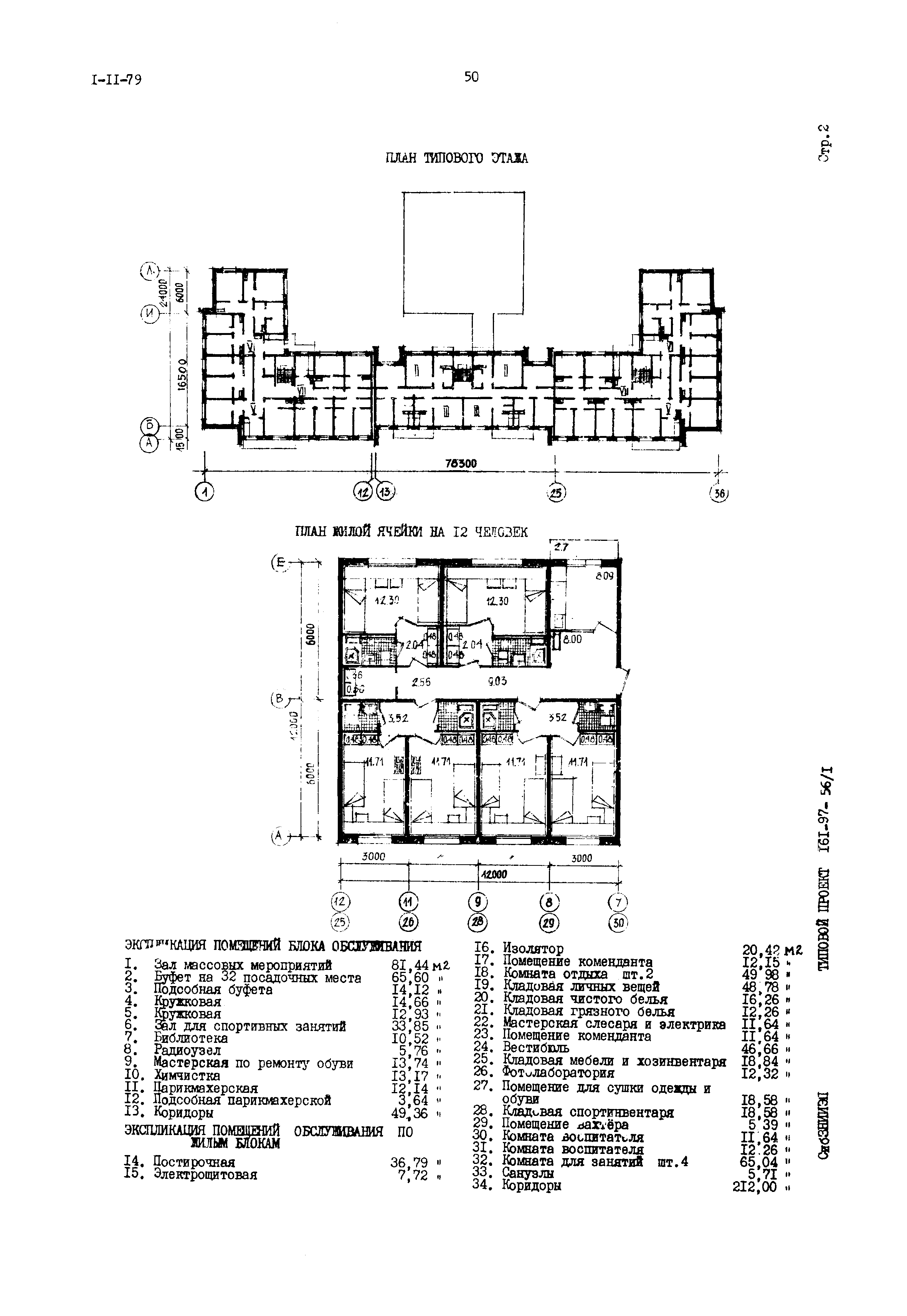
Скачать Типовой проект 161-97-56/1 5-этажное общежитие на 390 мест для рабочих и служащихДата актуализации: 10.08.2017 Типовой проект 161-97-56/1
5-этажное общежитие на 390 мест для рабочих и служащихОбозначение: | Типовой проект 161-97-56/1 | Обозначение англ: | 161-97-56/1 | Статус: | не действует | Название рус.: | 5-этажное общежитие на 390 мест для рабочих и служащих | Дата добавления в базу: | 01.09.2013 | Дата актуализации: | 05.05.2017 | Дата введения: | 30.08.1979 | Расположен в: |
|
    
|