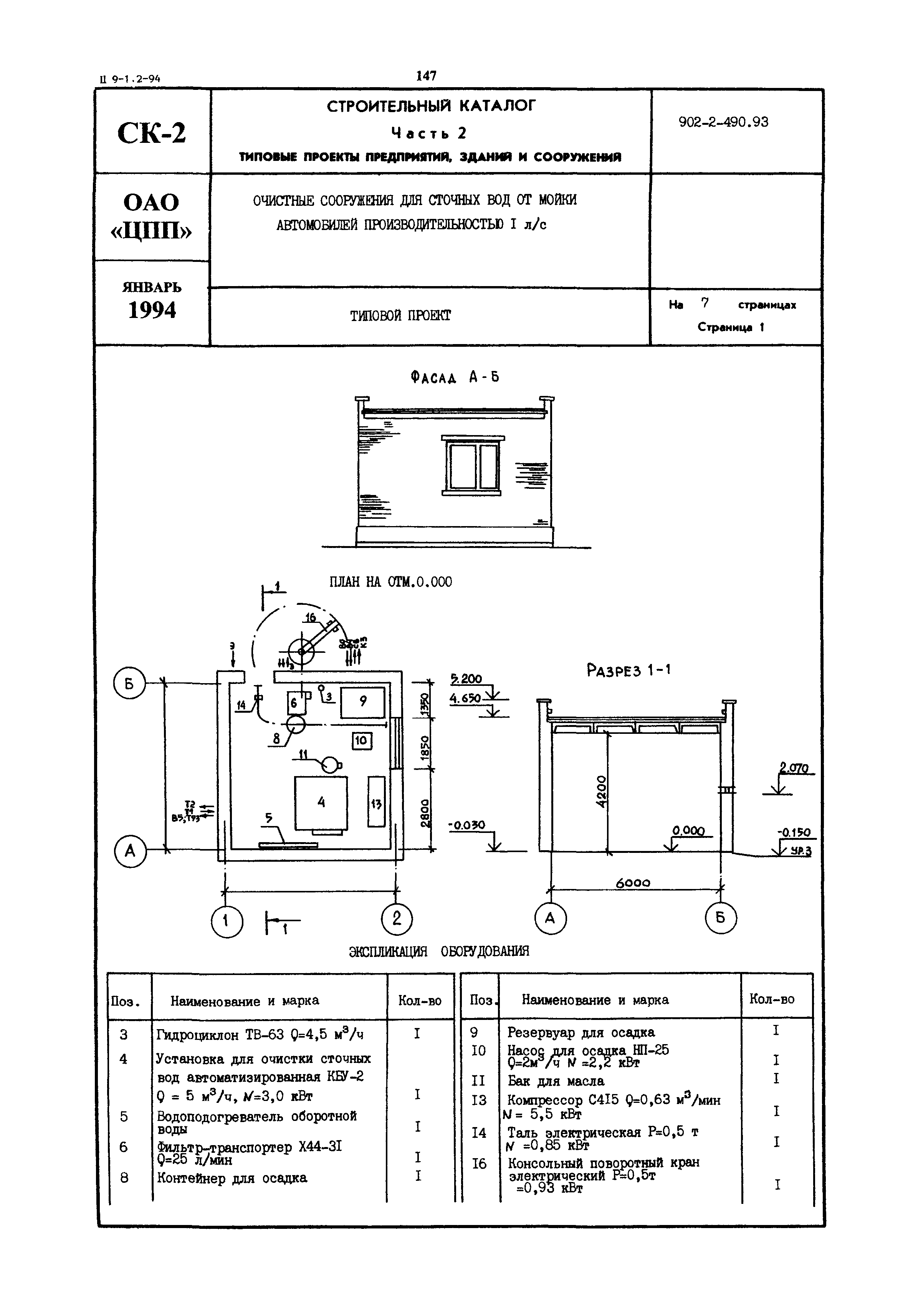
Скачать Типовой проект 902-2-490.93 Очистные сооружения для сточных вод от мойки автомобилей производительностью 1 л/сДата актуализации: 10.08.2017 Типовой проект 902-2-490.93
Очистные сооружения для сточных вод от мойки автомобилей производительностью 1 л/сОбозначение: | Типовой проект 902-2-490.93 | Обозначение англ: | 902-2-490.93 | Статус: | не определен законодательством | Название рус.: | Очистные сооружения для сточных вод от мойки автомобилей производительностью 1 л/с | Дата добавления в базу: | 01.09.2013 | Дата актуализации: | 05.05.2017 | Дата введения: | 30.09.1993 | Расположен в: |
|
     
|