ГОСУДАРСТВЕННЫЙ СТАНДАРТ СОЮЗА ССР
СТОЙКИ ЦИЛИНДРИЧЕСКИЕ
ЖЕЛЕЗОБЕТОННЫЕ ЦЕНТРИФУГИРОВАННЫЕ
ДЛЯ ОПОР ВЫСОКОВОЛЬТНЫХ ЛИНИЙ
ЭЛЕКТРОПЕРЕДАЧИ
Конструкция и размеры
ГОСТ 22687.2-85
ГОСУДАРСТВЕННЫЙ СТАНДАРТ СОЮЗА ССР
СТОЙКИ ЦИЛИНДРИЧЕСКИЕ
ЖЕЛЕЗОБЕТОННЫЕ Конструкция и размеры Centrifugal cylinder reinforced concrete posts for high-voltage transmission lines. Structure and dimensions |
ГОСТ |
Постановлением Государственного комитета СССР по делам строительства от 25 октября 1984 г. № 180 срок введения установлен
с 01.01.86
1. Настоящий стандарт распространяется на железобетонные предварительно напряженные цилиндрические стойки кольцевого сечения, изготовляемые методом центрифугирования из тяжелого бетона и предназначенные для опор линий электропередачи напряжением 35-750 кВ, и устанавливает конструкцию указанных стоек.
Стойки предназначены для применения:
при расчетной температуре наружного воздуха (температуре наружного воздуха наиболее холодной пятидневки района строительства согласно СНиП 2.01.01-82) до минус 55°С включительно;
в I-VII районах по давлению ветра и в I-V районах по толщине стенки гололеда согласно СНиП 2.01.07-85;
при сейсмичности площадки строительства до 9 баллов включительно.
Стойки, предназначенные для эксплуатации в среде с агрессивной степенью воздействия на железобетонные конструкции, должны удовлетворять дополнительным требованиям, установленным проектной документацией согласно СНиП 2.03.11-85 и указанным в заказе на изготовление стоек.
2. Форма и основные параметры стоек - по ГОСТ 22687.0-85.
3. Технические показатели стоек приведены в табл. 1.
4. Стойки должны удовлетворять всем требованиям ГОСТ 22687.0-85 и настоящего стандарта.
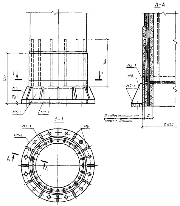
5. Конструкция и размеры стоек должны соответствовать указанным на черт. 1.
6. Показатели расхода стали на стойку приведены в табл. 2.
7. Арматурные каркасы стоек и расположение закладных изделий в стойках должны соответствовать указанным на черт. 2-20.
Расположение напрягаемой арматуры должно соответствовать приведенному на черт. 21-22.
Примечание. На чертежах арматурных каркасов напрягаемая арматура обозначена цифрой 1 и выделена жирными линиями.
8. Стыковые соединения стержневой напрягаемой арматуры следует выполнять контактной стыковой сваркой по ГОСТ 14098-85.
9. Усилия натяжения напрягаемой арматуры, контролируемые по окончании натяжения на упоры, должны соответствовать приведенным в табл. 2.
10. Поперечное армирование стоек выполняют из спирали с переменным шагом по длине стойки.
Значения шага спирали по длине стойки должны соответствовать указанным в табл. 4.
11. Спираль следует привязывать вязальной проволокой к продольной арматуре в каждом третьем пересечении.
При механической намотке спирали с натяжением не менее 1 кН (0,1 тс) привязку спирали к продольной арматуре осуществляют только на концевых участках длиной 0,5 м.
12. Монтажные кольца устанавливают с шагом 1,0 м по длине стойки, а также в местах окончания стержней ненапрягаемой арматуры и в местах установки закладных изделий с обязательной приваркой колец к концам стержней ненапрягаемой арматуры, к закладным изделиям и смежным с ними стержням продольной арматуры.
Таблица 1
Объем бетона, м3 |
Класс бетона |
Предельный момент кН×м (тс×м) |
Масса изделия, кг |
||
по прочности |
по трещинообразованию |
||||
СЦ26.1-1.0 СЦ26.1-1.1 |
2,4 |
В40 |
443,3 (45,2) 437,7 (44,63) |
85,7 (8,74) 109,2 (11,14) |
6790 6688 |
СЦ20.1-1.1 |
3,06 |
B45 |
1032,7 (105,23) |
283,3 (28,89) |
8538 |
СЦ20.2-1.0 |
3,65 |
1246,1 (127,07) |
263,6 (26,88) |
10276 |
|
СЦ20.2-1.1 |
1236,4 (126,08) |
296,5 (30,23) |
10156 |
||
СЦ20.2-1.2 |
1199,9 (122,36) |
284,5 (29,01) |
10076 |
||
СЦ20.2-2.1 |
1236,4 (126,08) |
296,5 (30,23) |
10318 |
||
СЦ20.3-1.0н |
3,47 |
1174,4 (119,76) |
272,1 (27,75) |
9997 |
|
СЦ20.3-1.1н |
1190,4 (121,39) |
284,8 (29,04) |
9878 |
||
СЦ20.3-1.0в |
901,0 (91,88) |
245,9 (25,07) |
9813 |
||
СЦ20.3-1.1в |
901,3 (91,89) |
275,1 (28,05) |
9620 |
||
СЦ22.1-1.0 |
2,09 |
В40 |
454,8 (46,38) |
78,1 (7,96) |
5869 |
СЦ22.1-1.1 |
473,3 (48,26) |
79,2 (8,08) |
5817 |
||
СЦ26.2-1.0 |
2,2 |
327,9 (33,44) |
125,4 (12,79) |
6192 |
|
СЦ26.3-1.0 |
367,9 (37,52) |
89,4 (9,12) |
6244 |
||
СЦ26.3-1.1 |
330,9 (33,74) |
113,1 (11,53) |
6142 |
||
СЦ26.3-1.2 |
336,0 (34,26) |
140,0 (14,28) |
6132 |
||
СЦ26.3-2.0 |
367,9 (37,52) |
89,4 (9,12) |
6177 |
||
СЦ26.3-2.1 |
330,9 (33,74) |
113,1 (11,53) |
6096 |
При вычислении массы изделия средняя плотность бетона принята 2500 кг/м3.
Два монтажных кольца по концам стойки следует приварить ко всем стержням ненапрягаемой продольной арматуры.
Примечание. На развертках арматурных каркасов монтажные кольца показаны поперечными линиями.
13. Спецификация арматурных элементов на стойку приведена в табл. 3.
14. Расстояния между закладными изделиями по длине стойки приведены в табл. 5.
15. Фланцевые соединения секций стоек СЦ20.3-1.1н и СЦ20.3-1.1в, СЦ20.3-1.0н и СЦ20.3-1.0в должны соответствовать указанным на черт. 23 и 24.
16. Конструкция закладных изделий, а также подпятников стоек приведена в ГОСТ 22687.3-85.
17. Схемы опирания и загружения стоек при испытании нагружением по прочности, жесткости и трещиностойкости приведены в обязательном приложении 1.
18. Значения контрольной нагрузки по проверке прочности, жесткости и трещиностойкости при испытании по схеме нормального режима, а также значения контрольного прогиба и контрольной ширины раскрытия трещин указаны в обязательном приложении 2.
19. Значения контрольной нагрузки при испытании по схеме аварийного режима приведены в обязательном приложении 1.
1 - продольная арматура; 2 - монтажные кольца; 3 - закладные изделия; 4 - спираль: а - расстояние от наружной поверхности стойки до оси продольной арматуры; с0-с3, с10-с11 - привязка закладных изделий; ц. т. - центр тяжести; L - длина стойки; lц - расстояние до центра тяжести; lн, lв - расстояния до мест установки диафрагм; D1 - внутренний диаметр стойки; D2 - наружный диаметр стойки
Черт. 1
Таблица 2
Расстояние от наружной поверхности стойки до оси продольной арматуры, мм |
Расход материалов |
Закладные изделия, масса, кг |
Общий расход стали, кг |
Контролируемое натяжение, кН (тс) |
Код |
||||||||||
Арматура продольная |
Спираль |
Монтажные кольца |
Стержни заземления |
||||||||||||
напрягаемая |
ненапрягаемая |
||||||||||||||
Сортамент |
Масса, кг |
Сортамент |
Масса, кг |
Сортамент |
Масса, кг |
Сортамент |
Масса, кг |
Сортамент |
Масса, кг |
||||||
СЦ26.1-1.0 |
24 |
Æ12AIV |
328,2 |
Æ12AIV |
304,4 |
Æ4BI |
61,9 |
Æ8AI |
23,5 |
Æ12AIV |
46,9 |
25,2 |
790,1 |
838(85,45) |
586311 0090 |
СЦ26.1-1.1 |
Æ12AV |
328,2 |
Æ12AV |
201,8 |
61,9 |
23,5 |
Æ12AV |
46,9 |
25,2 |
687,5 |
1118(114,0) |
586311 0091 |
|||
СЦ20.1-1.1 |
30 |
Æ12AV |
390,7 |
Æ12AV |
256,0 |
Æ5BI |
118,6 |
Æ12AI |
4,2 |
Æ12AV |
35,5 |
54,4 |
888,0 |
1757(179,16) |
586311 0092 |
Æ8AI |
28,6 |
||||||||||||||
СЦ20.2-1.0 |
31 |
Æ14AIV |
531,5 |
Æ14AIV |
370,1 |
118,6 |
Æ8AI |
30,8 |
Æ14AIV |
48,3 |
51,6 |
1150,9 |
1755(178,96) |
586311 0093 |
|
СЦ20.2-1.1 |
Æ14AV |
531,5 |
Æ14AV |
249,7 |
118,6 |
30,8 |
Æ14AV |
48,3 |
51,6 |
1030,5 |
1939(197,72) |
586311 0094 |
|||
СЦ20.2-1.2 |
Æ14AVI |
386,6 |
Æ14AVI |
314,8 |
118,6 |
30,8 |
Æ14AVI |
48,3 |
51,6 |
950,7 |
1763(179,78) |
586311 0095 |
|||
СЦ20.2-2.1 |
Æ14AV |
531,5 |
Æ14AV |
325,3 |
198,7 |
30,3 |
Æ14AV |
48,3 |
58,8 |
1192,9 |
1939(197,72) |
586311 0096 |
|||
СЦ20.3 1.0н |
32 |
Æ16AIV |
694,3 |
Æ16AIV |
214,1 |
111,2 |
20,3 |
Æ16AIV |
126,1 |
155,8 150,8 |
1321,8 1316,8 |
1822(185,79) |
586311 0097 |
||
СЦ20.3 1.1н |
Æ16AV |
694,3 |
Æ14AV |
125,1 |
111,2 |
20,3 |
Æ14AV |
96,5 |
155,8 150,8 |
1203,2 1198,2 |
2010(204,96) |
586311 0098 |
|||
СЦ20.3-1.0в |
Æ14AIV |
531,5 |
Æ14AIV |
211,4 |
110,7 |
21,2 |
Æ14AIV |
96,5 |
166,6 161,6 |
1137,9 1132,9 |
1395(142,25) |
586311 0097 |
|||
СЦ20.3-1.1в |
Æ14AV |
531,5 |
Æ14AV |
18,1 |
110,7 |
22,1 |
Æ14AV |
96,5 |
166,6 161,6 |
945,5 940,5 |
1538(156,83) |
586311 0098 |
|||
СЦ22.1-1.0 |
24 |
Æ12AIV |
236,6 |
Æ12AIV |
243,6 |
Æ5BI |
81,3 |
Æ8AI |
22,0 |
Æ12AIV |
39,4 |
21,0 |
643,9 |
719(73,32) |
586311 |
СЦ22.1-1.1 |
Æ12AV |
236,6 |
Æ12AV |
191,6 |
81,3 |
22,0 |
Æ12AV |
39,4 |
21,0 |
591,9 |
715(72,91) |
586311 |
|||
СЦ26.2-1.0 |
25 |
Æ12AIV |
468,9 |
Æ12AIV |
46,9 |
Æ4BI |
56,7 |
18,8 |
Æ12AIV |
93,8 |
7,2 |
692,3 |
1198(122,16) |
586311 0302 |
|
СЦ26.3-1.0 |
Æ12AIV |
328,2 |
Æ12AIV |
218,8 |
56,7 |
20,8 |
Æ12AIV |
93,8 |
25,2 |
743,5 |
838(85,45) |
586311 0303 |
|||
СЦ26.3-1.1 |
Æ12AV |
328,2 |
Æ12AV |
117,1 |
56,7 |
20,8 |
Æ12AV |
93,8 |
25,2 |
641,8 |
1118(114,0) |
586311 0304 |
|||
СЦ26.3-1.2 |
Æ12AVI |
328,2 |
Æ12AVI |
165,3 |
45,9 |
20,8 |
Æ12AVI |
46,9 |
25,2 |
632,3 |
1398(142,56) |
586311 0305 |
|||
СЦ26.3-2.0 |
Æ12AIV |
328,2 |
Æ12AIV |
164,8 |
Æ5BI |
88,8 |
23,3 |
Æ12AIV |
46,9 |
25,2 |
677,2 |
838(85,45) |
586311 0306 |
||
СЦ26.3-2.1 |
Æ12AV |
328,2 |
Æ12AV |
82,4 |
88,8 |
23,3 |
Æ12AV |
46,9 |
25,2 |
594,8 |
1118(114,0) |
586311 0307 |
Примечание. В стойках СЦ20.3-1.0н, СЦ20.3-1.1н, СЦ20.3-1.0в, СЦ20.3-1.1в указана масса закладных изделий: в числителе с торцом стоек - по черт. 23, в знаменателе - по черт. 24.
СЦ26.1-1.0
Армирование стойки (в развертке)
Черт. 2
СЦ26.1-1.1
Армирование стойки (в развертке)
Черт. 3
СЦ20.1.-1.1
Армирование стойки (в развертке)
Черт. 4
СЦ20.2-1.0
Армирование стойки (в развертке)
Черт. 5
СЦ20.2-1.1
Армирование стойки (в развертке)
Черт. 6
СЦ20.2-1.2
Армирование стойки (в развертке)
Черт. 7
СЦ20.2-2.1
Армирование стойки (в развертке)
Черт. 8
СЦ20.3-1.0н
Армирование стойки (в развертке)
Черт. 9
СЦ20.3-1.1н
Армирование стойки (в развертке)
Черт. 10
СЦ20.3-1.0в
Армирование стойки (в развертке)
Черт. 11
СЦ20.3-1.1в
Армирование стойки (в развертке)
Черт. 12
СЦ22.1-1.0
Армирование стойки (в развертке)
Черт. 13
СЦ22.1-1.1
Армирование стойки (в развертке)
Черт. 14
СЦ26.2-1.0
Армирование стойки (в развертке)
Черт. 15
СЦ26.3-1.0
Армирование стойки (в развертке)
Черт. 16
СЦ26.3-1.1
Армирование стойки (в развертке)
Черт. 17
СЦ26.3-1.2
Армирование стойки (в развертке)
Черт. 18
СЦ26.3-2.0
Армирование стойки (в развертке)
Черт. 19
СЦ26.3-2.1
Армирование стойки (в развертке)
Черт. 20
Расположение напрягаемых стержней в стойках марок СЦ26.1-1.0, СЦ26.1-1.1, СЦ22.1-1.0, СЦ26.3-1.0, СЦ26.3-1.1, СЦ26.3-1.2, СЦ26.3-2.1, СЦ26.3-2.0 (закладные изделия траверс ориентированы по вертикальной оси)
СЦ22.1-1.0, СЦ22.1-1.1
СЦ26.1-1.0, СЦ26.1-1.1,
СЦ26.3-1.0, СЦ26.3-1.1,
СЦ26.3-1.2, СЦ26.3-2.0,
СЦ26.3-2.1
Черт. 21
Расположение напрягаемых
стержней в стойках марок СЦ20.1-1.1, СЦ20.2-1.0,
СЦ20.2-1.1, СЦ20.2-1.2, СЦ20.2-2.1, СЦ20.3-1.0н, СЦ20.3-1.1н,
СЦ20.3-1.0в, СЦ20.3-1.1в, СЦ26.2-1.0 (закладные изделия
траверс ориентированы по вертикальной оси)
СЦ20.1-1.1, СЦ20.2-1.0,
СЦ20.3-1.0н, СЦ20.3-1.1,
СЦ20.3-1.0в, СЦ20.3-1.1в,
СЦ20.2-1.1, СЦ20.2-2.1
СЦ20.2-1.2
СЦ26.2-1.0
Черт. 22
Таблица 3
Спецификация арматуры на один элемент
Эскиз |
Номер позиции |
Диаметр, мм |
Длина, мм |
Количество позиций, шт. |
Общая длина, м |
||
СЦ26.1-1.0 |
|
1 |
Æ12AIV |
26400 |
14 |
369,6 |
|
2 |
Æ12AIV |
26380 |
9 |
237,4 |
|||
3 |
Æ12AIV |
14300 |
3 |
42,9 |
|||
4 |
Æ12AIV |
11900 |
3 |
35,7 |
|||
5 |
Æ12AIV |
9500 |
3 |
28,5 |
|||
6 |
Æ12AIV |
7100 |
3 |
21,3 |
|||
7 |
Æ12AIV |
5200 |
3 |
15,6 |
|||
8 |
Æ12AIV |
4400 |
3 |
13,2 |
|||
9 |
Æ12AIV |
150 |
6 |
0,9 |
|||
|
|
Æ8AI |
1650 |
36 |
59,4 |
||
|
|
Æ4BI |
- |
- |
625,0 |
||
СЦ26.1-1.1 |
|
1 |
Æ12AV |
26400 |
14 |
369,6 |
|
2 |
Æ12AV |
26380 |
6 |
158,3 |
|||
3 |
Æ12AV |
11500 |
3 |
34,5 |
|||
4 |
Æ12AV |
9700 |
3 |
29,1 |
|||
5 |
Æ12AV |
8000 |
3 |
24,0 |
|||
6 |
Æ12AV |
6400 |
3 |
19,2 |
|||
7 |
Æ12AV |
4700 |
3 |
14,1 |
|||
8 |
Æ12AV |
150 |
6 |
0,9 |
|||
|
|
Æ8AI |
1650 |
36 |
59,4 |
||
|
|
Æ4BI |
- |
- |
625,0 |
||
СЦ20.1-1.1 |
|
1 |
Æ12AV |
20000 |
22 |
440,0 |
|
2 |
Æ12AV |
19980 |
5 |
160,0 |
|||
3 |
Æ12AV |
11300 |
6 |
67,8 |
|||
4 |
Æ12AV |
10400 |
3 |
31,2 |
|||
5 |
Æ12AV |
9400 |
3 |
28,2 |
|||
6 |
Æ12AV |
7500 |
6 |
22,5 |
|||
7 |
Æ12AV |
5600 |
3 |
16,8 |
|||
8 |
Æ12AV |
150 |
12 |
1,8 |
|||
|
|
Æ12AI |
2350 |
2 |
4,7 |
||
|
|
Æ8AI |
2360 |
32 |
72,5 |
||
|
|
Æ5BI |
- |
- |
770,0 |
||
СЦ20.2 1.0 |
|
1 |
Æ14AIV |
20000 |
22 |
440,0 |
|
2 |
Æ14AIV |
19980 |
2 |
40,0 |
|||
3 |
Æ14AIV |
14800 |
4 |
59,2 |
|||
4 |
Æ14AIV |
13100 |
3 |
39,3 |
|||
5 |
Æ14AIV |
12100 |
3 |
36,3 |
|||
6 |
Æ14AIV |
11100 |
3 |
33,3 |
|||
7 |
Æ14AIV |
10100 |
3 |
30,3 |
|||
8 |
Æ14AIV |
9100 |
3 |
27,3 |
|||
9 |
Æ14AIV |
8100 |
3 |
24,3 |
|||
10 |
Æ14AIV |
7100 |
3 |
21,3 |
|||
11 |
Æ14AIV |
6100 |
3 |
18,3 |
|||
12 |
Æ14AIV |
5100 |
3 |
15,3 |
|||
13 |
Æ14AIV |
150 |
10 |
1,5 |
|||
|
|
Æ8AI |
2360 |
33 |
77,9 |
||
|
|
Æ5BI |
|
|
770 |
||
СЦ20.2-1.1 |
|
1 |
Æ14AV |
20000 |
22 |
440,0 |
|
2 |
Æ14AV |
19980 |
2 |
40,0 |
|||
3 |
Æ14AV |
13800 |
1 |
13,8 |
|||
4 |
Æ14AV |
12800 |
3 |
38,4 |
|||
5 |
Æ14AV |
11900 |
3 |
35,7 |
|||
6 |
Æ14AV |
11000 |
3 |
33,0 |
|||
7 |
Æ14AV |
8500 |
6 |
51,0 |
|||
8 |
Æ14AV |
7200 |
3 |
21,6 |
|||
9 |
Æ14AV |
3900 |
3 |
11,7 |
|||
10 |
Æ14AV |
150 |
10 |
1,5 |
|||
|
|
Æ8AI |
2360 |
33 |
77,9 |
||
|
|
Æ5BI |
- |
- |
770,0 |
||
СЦ20.2-1.2 |
|
1 |
Æ14AVI |
20000 |
16 |
320,0 |
|
2 |
Æ14AVI |
19980 |
6 |
120,0 |
|||
3 |
Æ14AVI |
14800 |
3 |
44,4 |
|||
4 |
Æ14AVI |
11500 |
6 |
69,0 |
|||
5 |
Æ14AVI |
8300 |
6 |
49,8 |
|||
6 |
Æ14AVI |
5300 |
3 |
15,9 |
|||
7 |
Æ14AVI |
150 |
10 |
1,5 |
|||
|
|
Æ8AI |
2350 |
33 |
78,0 |
||
|
|
Æ5BI |
- |
- |
770,0 |
||
СЦ20.2-2.1 |
|
/ |
Æ14AV |
20000 |
22 |
440,0 |
|
2 |
Æ14AV |
19980 |
3 |
60,0 |
|||
3 |
Æ14AV |
17300 |
3 |
51,9 |
|||
4 |
Æ14AV |
14000 |
3 |
42,0 |
|||
5 |
Æ14AV |
13300 |
3 |
39,9 |
|||
б |
Æ14AV |
11700 |
3 |
35,1 |
|||
7 |
Æ14AV |
10700 |
3 |
32,1 |
|||
8 |
Æ14AV |
8700 |
3 |
26,1 |
|||
9 |
Æ14AV |
6700 |
3 |
20,1 |
|||
10 |
Æ14AV |
150 |
14 |
2,1 |
|||
|
|
Æ8AI |
2260 |
34 |
76,8 |
||
|
|
Æ5BI |
- |
- |
1290,0 |
||
СЦ20.3-1.0н |
|
1 |
Æ16AIV |
20000 |
22 |
440,0 |
|
2 |
Æ16AIV |
19980 |
4 |
79,9 |
|||
6 |
Æ16AIV |
15500 |
2 |
31,0 |
|||
4 |
Æ16AIV |
11500 |
6 |
69,0 |
|||
5 |
Æ16AIV |
7100 |
3 |
21,3 |
|||
6 |
Æ16AIV |
4800 |
3 |
14,4 |
|||
|
|
Æ8AI |
2335 |
22 |
51,4 |
||
|
|
Æ5BI |
- |
- |
722,0 |
||
СЦ20.3-1.1н |
|
1 |
Æ16AV |
20000 |
22 |
440,0 |
|
2 |
Æ14AV |
19980 |
4 |
79,9 |
|||
3 |
Æ14AV |
12100 |
4 |
48,4 |
|||
4 |
Æ14AV |
9000 |
4 |
36,0 |
|||
5 |
Æ14AV |
4800 |
4 |
19,2 |
|||
|
|
Æ8AI |
2335 |
22 |
51,4 |
||
|
|
Æ5BI |
|
|
722,0 |
||
CЦ20.3-1.0в |
|
1 |
Æ14AIV |
20000 |
22 |
440,0 |
|
2 |
Æ14AIV |
19980 |
11 |
219,8 |
|||
3 |
Æ14AIV |
11700 |
3 |
35,1 |
|||
|
|
Æ8AI |
2335 |
23 |
53,7 |
||
СЦ20.3-1.0в |
|
|
Æ5BI |
- |
- |
718,7 |
|
СЦ20.3-1.1в |
|
1 |
Æ14AV |
20000 |
22 |
440,0 |
|
2 |
Æ14AV |
19980 |
4 |
79,9 |
|||
3 |
Æ14AV |
5000 |
3 |
15,0 |
|||
|
|
Æ8AI |
2335 |
24 |
56,0 |
||
|
|
Æ5BI |
|
|
718,7 |
||
СЦ22.1-1.0 |
|
1 |
Æ12AIV |
22200 |
12 |
266,4 |
|
2 |
Æ12AIV |
22180 |
2 |
44,4 |
|||
3 |
Æ12AIV |
14900 |
4 |
59,6 |
|||
4 |
Æ12AIV |
13700 |
3 |
41,1 |
|||
5 |
Æ12AIV |
12350 |
4 |
49,4 |
|||
6 |
Æ12AIV |
11300 |
3 |
33,9 |
|||
7 |
Æ12AIV |
8700 |
4 |
34,8 |
|||
8 |
Æ12AIV |
5900 |
3 |
17,7 |
|||
9 |
Æ12AIV |
6300 |
4 |
25,2 |
|||
10 |
Æ12AIV |
3900 |
3 |
11,7 |
|||
11 |
Æ12AIV |
150 |
6 |
0,9 |
|||
|
12 |
Æ8AI |
1640 |
34 |
55,8 |
||
|
13 |
Æ5BI |
- |
- |
528,0 |
||
СЦ22.1-1.1 |
|
1 |
Æ12AV |
22200 |
12 |
266,4 |
|
2 |
Æ12AV |
22180 |
2 |
44,4 |
|||
3 |
Æ12AV |
13900 |
2 |
27,8 |
|||
4 |
Æ12AV |
12700 |
2 |
25,4 |
|||
5 |
Æ12AV |
11350 |
4 |
45,4 |
|||
6 |
Æ12AV |
10300 |
3 |
30,9 |
|||
7 |
Æ12AV |
7700 |
4 |
30,8 |
|||
8 |
Æ12AV |
5900 |
3 |
17,7 |
|||
9 |
Æ12AV |
6300 |
4 |
25,2 |
|||
10 |
Æ12AV |
3900 |
3 |
11,7 |
|||
11 |
Æ12AV |
150 |
6 |
0,9 |
|||
|
12 |
Æ8AI |
1640 |
34 |
55,8 |
||
|
13 |
Æ5BI |
- |
- |
528,0 |
||
СЦ26.2-1.0 |
|
1 |
Æ12AIV |
26400 |
20 |
528,0 |
|
2 |
Æ12AIV |
26380 |
6 |
158,3 |
|||
|
|
Æ8AI |
1645 |
21 |
47,7 |
||
|
|
Æ4BI |
- |
- |
572,4 |
||
СЦ26.3-1.0 |
|
1 |
Æ12AIV |
26400 |
14 |
369,6 |
|
2 |
Æ12AIV |
26380 |
12 |
316,6 |
|||
3 |
Æ12AIV |
6900 |
3 |
20,7 |
|||
4 |
Æ12AIV |
4900 |
3 |
14,7 |
|||
|
|
Æ8AI |
1645 |
32 |
52,6 |
||
|
|
Æ4BI |
- |
- |
572,4 |
||
СЦ26.3-1.1 |
|
1 |
Æ12AV |
26400 |
14 |
369,6 |
|
2 |
Æ12AV |
26380 |
9 |
237,4 |
|||
|
|
Æ8AI |
1645 |
32 |
52,6 |
||
|
|
Æ4BI |
- |
- |
572,4 |
||
СЦ26.3-1.2 |
|
1 |
Æ12AVI |
26400 |
14 |
369,6 |
|
2 |
Æ12AVI |
26380 |
9 |
237,5 |
|||
3 |
Æ12AVI |
150 |
10 |
1,5 |
|||
|
|
Æ8AI |
1645 |
32 |
52,6 |
||
|
|
Æ4BI |
- |
- |
464,0 |
||
СЦ26.3-2.0 |
|
1 |
Æ12AIV |
26400 |
14 |
369,6 |
|
2 |
Æ12AIV |
26380 |
2 |
52,8 |
|||
3 |
Æ12AIV |
16700 |
1 |
16,7 |
|||
4 |
Æ12AIV |
14900 |
3 |
44,7 |
|||
5 |
Æ12AIV |
13000 |
3 |
39,0 |
|||
6 |
Æ12AIV |
11100 |
3 |
33,3 |
|||
7 |
Æ12AIV |
9400 |
3 |
28,2 |
|||
8 |
Æ12AIV |
7600 |
3 |
22,8 |
|||
9 |
Æ12AIV |
150 |
6 |
0,9 |
|||
СЦ26.3-2.0 |
|
|
Æ8AI |
1640 |
36 |
59,0 |
|
|
|
Æ5BI |
- |
- |
576,4 |
||
СЦ26.3-2.1 |
|
1 |
Æ12AV |
26400 |
14 |
369,6 |
|
2 |
Æ12AV |
26380 |
2 |
52,8 |
|||
3 |
Æ12AV |
15700 |
4 |
62,8 |
|||
4 |
Æ12AV |
9400 |
3 |
28,2 |
|||
5 |
Æ12AV |
150 |
12 |
1,8 |
|||
|
|
Æ8AI |
1640 |
36 |
59,0 |
||
|
|
Æ5BI |
- |
- |
576,4 |
||
Примечание. При изготовлении монтажных колец допускается применять контактную сварку. При этом длина нахлестки соединяемых концов должна быть не менее 10 мм.
Таблица 4
мм
Диаметр спирали |
Шаг спирали (числитель) на длине участка (знаменатель) |
|||||
l1 |
l2 |
l3 |
l4 |
l5 |
||
1 |
2 |
3 |
4 |
5 |
6 |
7 |
СЦ26.1-1.0 |
4BI |
50/3500 |
80/22400 |
0 |
0 |
50/500 |
СЦ26.1-1.1 |
||||||
СЦ20.1-1.1 |
5BI |
50/500 |
30/4500 |
100/14500 |
||
СЦ20.2-1.0 |
||||||
СЦ20.2-1.1 |
||||||
СЦ20.2-1.2 |
||||||
СЦ20.2-2.1 |
30/4000 |
100/15000 |
||||
СЦ20.3-1.0н |
50/9500 |
0 |
0 |
100/10500 |
||
СЦ20.3-1.1н |
50/9600 |
100/10400 |
||||
СЦ20.3-1.0в |
100/10500 |
50/9500 |
||||
СЦ20.3-1.1в |
100/10400 |
50/9600 |
||||
СЦ22.1-1.0 |
50/3200 |
80/18500 |
50/500 |
|||
СЦ22.1-1.1 |
||||||
СЦ26.2-1.0 |
4BI |
80/26400 |
0 |
0 |
||
СЦ26.3-1.0 |
4BI |
80/26400 |
0 |
0 |
0 |
0 |
СЦ26.3-1.1 |
||||||
СЦ26.3-1.2 |
100/26400 |
|||||
СЦ26.3-2.0 |
5BI |
50/500 |
80/25400 |
50/500 |
||
СЦ26.3-2.1 |
Размещение закладных изделий
Обозначение стоек |
Расстояние, мм (обозначения соответствуют черт. 1) |
|||||||||||
cо |
c1 |
c2 |
c3 |
c4 |
c5 |
c6 |
c7 |
c8 |
c9 |
c10 |
c11 |
|
СЦ26.1-1 |
200 |
1000 |
1500 |
16200 |
- |
- |
- |
- |
- |
- |
3200 |
300 |
СЦ20.1-1 |
200 |
800 |
1500 |
1500 |
1500 |
1000 |
- |
- |
- |
- |
4145 |
55 |
СЦ20.2-1 |
300 |
1500 |
1500 |
1500 |
1500 |
- |
- |
- |
- |
- |
4145 |
55 |
СЦ20.2-2 |
300 |
2200 |
500 |
1500 |
500´2 |
1000 |
- |
- |
- |
- |
4145 |
55 |
СЦ20.3-1н |
10970 |
- |
- |
- |
- |
- |
- |
- |
- |
- |
4645 |
55 |
СЦ20.3-1в |
200 |
3300 |
5500 |
- |
- |
- |
- |
- |
- |
- |
- |
- |
СЦ22.1-1 |
150 |
2550 |
1500 |
- |
- |
- |
- |
- |
- |
- |
3145 |
55 |
СЦ26.3-1 |
390 |
750 |
14000 |
- |
- |
- |
- |
- |
- |
- |
3300 |
300 |
СЦ26.3-2 |
200 |
1300 |
3200 |
15200 |
- |
- |
- |
- |
-- |
- |
3200 |
300 |
Примечания:
1. Размещение закладных изделий для одинаковых стоек с разным армированием одинаково, поэтому в марках стоек опущена последняя цифра.
2. Стойка СЦ26.2-1 не имеет закладных изделий для сквозных болтов.
Торец стоек СЦ20.3-1в и СЦ20.3-1н с фланцем из труб по ГОСТ 10704-76
Количество марок на одну стойку:
М5-1 ... 1 шт.
М6 ... 12 шт.
М7-1 ... 1 шт.
Черт. 23
Торец стоек СЦ20.3-1в и СЦ20.3-1н с фланцем из вальцованной трубы
Количество марок на одну стойку:
М5 . . . 1 шт.
Мб ... 12 шт.
М7 . . . 1 шт.
Черт. 24
1. Схемы опирания и загружения стоек при испытании на прочность, жесткость и трещиностойкость указаны на чертеже.
2. Основные параметры схем опирания и загружения стоек при испытании указаны в таблице.
СХЕМА ОПИРАНИЯ И ЗАГРУЖЕНИЯ СТОЕК
3. Значения контрольных нагрузок Р приведены в приложении 2.
4. Нагрузку P1 прикладывают ступенями, составляющими 25 % от расчетной, указанной в таблице данного приложения.
Обозначение стоек |
Размеры, м |
P1, кН (тс) |
||||
Н |
h |
а |
Н1 |
1 |
||
СЦ26.1-1 |
15 |
2,4 |
0,2 |
23,4 |
5,25 |
28,34 (2,89) |
СЦ20.1-1 |
3,3 |
10,5 |
3,5 |
63,74 (6,5) |
||
СЦ20.2-1 |
14,7 |
3,5 |
63,7 (6,5) |
|||
СЦ20.2-2 |
||||||
СЦ20.3-1н |
||||||
СЦ20.3-1в |
||||||
СЦ22.1-1 |
19,2 |
2,4 |
15,0 |
4,8 |
12,75 (1,3) |
|
СЦ26.2-1 |
15 |
2,4 |
- |
- |
- |
|
СЦ26.3-1 |
23,07 |
4,2 |
18,34 (1,87) |
|||
СЦ26.3-2 |
21,4 |
8,0 |
13,83 (1,41) |
1. Значения контрольных нагрузок Р при проверке прочности, жесткости и трещиностойкости стоек, а также значения контрольного прогиба и контрольной ширины раскрытия трещин, соответствующие этим нагрузкам, указаны в таблице.
2. Нагружение стоек производят ступенчато-возрастающими нагрузками. На каждой ступени обеспечивают выдержку не менее 10 мин, а при контрольных нагрузках - не менее 30 мин.
Контрольные значения прогибов стойки приведены для точки приложения силы. Стрела прогиба, замеренная при испытании, должна быть уменьшена на значение, определяемое деформацией стенда.
Трещины измеряют на приопорном участке, а ширину раскрытия трещин определяют как среднее значение на длине стойки 1 м.
Mapка стойки |
Отпускная прочность
бетона (% от |
Параметр |
Ступень нагрузки, % |
|||||
83,3 |
100 |
110 |
120 |
130 |
140 |
|||
СЦ26.1-1.0 |
75 |
Нагрузки, кН (тс) |
22,85 (2,33) |
27,43 (2,80) |
30,18 (3,08) |
32,42 (3,36) |
35,66 (3,64) |
38,41 (3,92) |
Прогиб, см |
49,97 |
66,13 |
- |
- |
- |
- |
||
Ширина трещин, мм |
0,063 |
- |
- |
- |
- |
- |
||
85 |
Нагрузки, кН (тс) |
23,56 (2,40) |
28,28 (2,88) |
31,07 (3,17) |
33,89 (3,46) |
36,72 (3,74) |
39,54 (4,03) |
|
Прогиб, см |
49,68 |
66,22 |
- |
- |
- |
- |
||
Ширина трещин, мм |
0,064 |
- |
- |
- |
- |
- |
||
100 |
Нагрузки, кН (тс) |
24,59 (2,51) |
29,55 (3,01) |
32,50 (3,31) |
35,46 (3,62) |
38,41 (3,92) |
41,36 (4,22) |
|
Прогиб, см |
51,41 |
72,80 |
- |
- |
- |
- |
||
Ширина трещин, мм |
0,061 |
- |
- |
- |
- |
- |
||
СЦ26.1-1.1 |
75 |
Нагрузки, кН (тс) |
21,40 (2,18) |
25,69 (2,62) |
28,26 (2,88) |
30,82 (3,14) |
33,39 (3,41) |
35,96 (3,67) |
Прогиб, см |
41,64 |
60,52 |
- |
- |
- |
- |
||
Ширина трещин, мм |
0,071 |
- |
- |
- |
- |
- |
||
85 |
Нагрузки, кН (тс) |
22,63 (2,31) |
27,16 (2,77) |
29,88 (3,05) |
32,60 (3,32) |
35,31 (3,60) |
38,03 (3,88) |
|
Прогиб, см |
43,42 |
62,57 |
- |
- |
- |
- |
||
Ширина трещин, мм |
0,076 |
- |
- |
- |
- |
- |
||
100 |
Нагрузки, кН (тс) |
24,22 (2,47) |
29,13 (2,97) |
32,07 (3,27) |
34,91 (3,56) |
37,85 (3,86) |
40,80 (4,16) |
|
Прогиб, см |
47,14 |
68,63 |
- |
- |
- |
- |
||
Ширина трещин, мм |
0,082 |
- |
- |
- |
- |
- |
||
СЦ20.1-1.1 |
75 |
Нагрузки, кН (тс) |
52,68 (5,37) |
63,24 (6,45) |
69,56 (7,09) |
75,89 (7,74) |
82,21 (8,38) |
88,54 (9,03) |
Прогиб, см |
32,03 |
48,32 |
- |
- |
- |
- |
||
Ширина трещин, мм |
0,116 |
- |
- |
- |
- |
- |
||
85 |
Нагрузки, кН (тс) |
55,03 (5,61) |
66,06 (6,74) |
72,71 (7,41) |
79,32 (8,09) |
85,93 (8,76) |
92,54 (9,44) |
|
Прогиб, см |
34,19 |
51,81 |
- |
- |
- |
- |
||
Ширина трещин, мм |
0,124 |
- |
- |
- |
- |
- |
||
100 |
Нагрузки, кН (тс) |
57,34 (5,84) |
68,84 (7,02) |
75,73 (7,72) |
82,61 (8,42) |
89,5 (9,13) |
96,38 (9,83) |
|
Прогиб, см |
36,31 |
54,46 |
- |
- |
- |
- |
||
Ширина трещин, мм |
0,123 |
- |
- |
- |
- |
- |
||
СЦ20.2-1.0 |
75 |
Нагрузки, кН (тс) |
64,96 (6,62) |
77,98 (7,95) |
85,78 (8,75) |
93,57 (9,54) |
101,37 (10,34) |
109,17 (11,13) |
Прогиб, см |
33,88 |
47,16 |
- |
- |
- |
- |
||
Ширина трещин, мм |
0,084 |
- |
- |
- |
- |
- |
||
85 |
Нагрузки, кН (тс) |
66,89 (6,82) |
80,30 (8,19) |
88,35 (9,01) |
96,38 (9,83) |
104,41 (10,65) |
112,44 (11,47) |
|
Прогиб, см |
34,86 |
49,46 |
- |
- |
- |
- |
||
Ширина трещин, мм |
0,087 |
- |
- |
- |
- |
- |
||
100 |
Нагрузки, кН (тс) |
69,17 (7,05) |
83,08 (8,47) |
91,37 (9,32) |
99,67 (10,16) |
107,98 (11,01) |
116,29 (11,89) |
|
Прогиб, см |
36,15 |
52,59 |
- |
- |
- |
|
||
Ширина трещин, мм |
0,083 |
- |
- |
- |
- |
|
||
СЦ20.2-1.1 |
75 |
Нагрузки, кН (тс) |
63,47 (6,47) |
76,19 (7,77) |
83,81 (8,55) |
91,43 (9,32) |
99,05 (10,10) |
106,67 (10,88) |
Прогиб, см |
33,66 |
48,43 |
- |
- |
- |
- |
||
Ширина трещин, мм |
0,113 |
- |
- |
- |
- |
- |
||
85 |
Нагрузки, кН (тс) |
65,80 (6,71) |
78,99 (8,05) |
86,84 (8,86) |
94,73 (9,66) |
102,63 (10,47) |
110,52 (11,27) |
|
Прогиб, см |
35,19 |
51,18 |
- |
- |
- |
- |
||
Ширина трещин, мм |
0,118 |
- |
- |
- |
- |
- |
||
СЦ20.2-1.1 |
100 |
Нагрузки, кН (тс) |
68,66 (7,00) |
82,43 (8,41) |
90,72 (9,25) |
98,97 (10,09) |
107,21 (10,93) |
115,46 (11,77) |
Прогиб, см |
37,12 |
53,99 |
- |
- |
- |
- |
||
Ширина трещин, мм |
0,117 |
- |
- |
- |
- |
- |
||
СЦ20.2-1.2 |
75 |
Нагрузки, кН (тс) |
61,09 (6,23) |
73,34 (7,48) |
80,67 (8,23) |
88,00 (8,97) |
95,34 (9,72) |
102,67 (10,47) |
Прогиб, см |
34,58 |
48,90 |
- |
- |
- |
- |
||
Ширина трещин, мм |
0,141 |
- |
- |
- |
- |
- |
||
85 |
Нагрузки, кН (тс) |
63,54 (6,48) |
76,28 (7,78) |
83,93 (8,56) |
91,55 (9,34) |
99,18 (10,11) |
106,81 (10,89) |
|
Прогиб, см |
36,14 |
51,37 |
- |
- |
- |
- |
||
Ширина трещин, мм |
0,147 |
- |
- |
- |
- |
- |
||
100 |
Нагрузки, кН (тс) |
66,63 (6,79) |
80,02 (8,16) |
88,02 (8,98) |
96,03 (9,79) |
104,03 (10,61) |
112,03 (11,42) |
|
Прогиб, см |
38,04 |
54,51 |
- |
- |
- |
- |
||
Ширина трещин, мм |
0,154 |
- |
- |
- |
- |
- |
||
СЦ20.2-2.1 |
75 |
Нагрузки, кН (тс) |
63,47 (6,47) |
76,19 (7,77) |
83,81 (8,55) |
91,43 (9,32) |
99,05 (10,10) |
106,67 (10,88) |
Прогиб, см |
33,66 |
48,43 |
- |
- |
- |
- |
||
Ширина трещин, мм |
0,113 |
- |
- |
- |
- |
- |
||
85 |
Нагрузки, кН (тс) |
65,80 (6,71) |
78,99 (8,05) |
86,84 (8,86) |
94,73 (9,66) |
102,63 (10,47) |
110,52 (11,27) |
|
Прогиб, см |
35,19 |
51,18 |
- |
- |
- |
- |
||
Ширина трещин, мм |
0,118 |
- |
- |
- |
- |
- |
||
100 |
Нагрузки, кН (тс) |
68,66 (7,00) |
82,47 (8,41) |
90,71 (9,25) |
98,95 (10,09) |
107,19 (10,93) |
115,41 (11,77) |
|
Прогиб, см |
37,12 |
53,99 |
- |
- |
- |
- |
||
Ширина трещин, мм |
0,117 |
- |
- |
- |
- |
- |
||
СЦ20.3-1.0н |
75 |
Нагрузки, кН (тс) |
61,26 (6,25) |
73,54 (7,50) |
80,89 (8,25) |
88,24 (9,00) |
95,60 (9,75) |
102,95 (10,50) |
Прогиб, см |
31,76 |
45,10 |
- |
- |
- |
- |
||
Ширина трещин, мм |
0,088 |
- |
- |
- |
- |
- |
||
85 |
Нагрузки, кН (тс) |
63,06 (6,43) |
75,70 (7,72) |
83,28 (8,49) |
90,85 (9,26) |
98,42 (10,04) |
105,99 (10,82) |
|
Прогиб, см |
32,67 |
47,12 |
- |
- |
- |
- |
||
Ширина трещин, мм |
0,090 |
- |
- |
- |
- |
- |
||
100 |
Нагрузки, кН (тс) |
65,21 (6,65) |
78,26 (7,98) |
86,10 (8,78) |
93,91 (9,58) |
101,73 (10,37) |
109,56 (11,17) |
|
Прогиб, см |
33,50 |
49,27 |
- |
- |
- |
- |
||
Ширина трещин, мм |
0,091 |
- |
- |
- |
- |
- |
||
СЦ20.3-1.1н |
75 |
Нагрузки, кН (тс) |
60,96 (6,22) |
73,18 (7,46) |
80,49 (8,21) |
87,81 (8,95) |
95,13 (9,70) |
102,45 (10,45) |
Прогиб, см |
31,59 |
45,77 |
- |
- |
- |
- |
||
Ширина трещин, мм |
0,108 |
- |
- |
- |
- |
- |
||
85 |
Нагрузки, кН (тс) |
63,46 (6,47) |
76,17 (7,77) |
83,82 (8,55) |
91,44 (9,32) |
99,06 (10,10) |
106,68 (10,88) |
|
Прогиб, см |
33,29 |
48,77 |
- |
- |
- |
- |
||
Ширина трещин, мм |
0,115 |
- |
- |
- |
- |
- |
||
100 |
Нагрузки, кН (тс) |
66,10 (6,74) |
79,36 (8,09) |
87,27 (8,9) |
95,20 (9,71) |
103,14 (10,52) |
111,07 (11,34) |
|
Прогиб, см |
35,77 |
52,66 |
- |
- |
- |
- |
||
Ширина трещин, мм |
0,113 |
- |
- |
- |
- |
- |
||
СЦ20.3-1.0в |
75 |
Нагрузки, кН (тс) |
44,41 (4,53) |
53,31 (5,44) |
58,64 (5,98) |
63,97 (6,52) |
69,31 (7,07) |
74,64 (7,61) |
Прогиб, см |
29,57 |
45,94 |
|
- |
- |
- |
||
Ширина трещин, мм |
0,124 |
- |
- |
- |
- |
- |
||
85 |
Нагрузки, кН (тс) |
45,60 (4,65) |
54,74 (5,58) |
60,19 (6,14) |
65,67 (6,70) |
71,14 (7,25) |
76,61 (7,81) |
|
Прогиб, см |
30,44 |
47,53 |
- |
- |
- |
- |
||
Ширина трещин, мм |
0,127 |
- |
- |
- |
- |
- |
||
100 |
Нагрузки, кН (тс) |
50,04 (5,10) |
60,67 (5,13) |
66,13 (6,74) |
72,14 (7,36) |
78,16 (7,97) |
84,16 (8,58) |
|
Прогиб, см |
36,05 |
57,39 |
- |
- |
- |
- |
||
Ширина трещин, мм |
0,142 |
- |
- |
- |
- |
- |
||
СЦ20.3-1.1в |
75 |
Нагрузки, кН (тс) |
45,53 (4,44) |
52,26 (5,33) |
57,48 (5,86) |
62,71 (6,39) |
67,91 (6,93) |
73,16 (7,46) |
Прогиб, см |
30,18 |
48,42 |
- |
- |
- |
- |
||
Ширина трещин, мм |
0,178 |
|
- |
- |
- |
- |
||
85 |
Нагрузки, кН (тс) |
44,94 (4,58) |
53,95 (5,50) |
59,33 (6,05) |
64,72 (6,6) |
70,12 (7,15) |
75,5 (7,70) |
|
Прогиб, см |
31,74 |
50,99 |
- |
- |
- |
- |
||
Ширина трещин, мм |
0,187 |
- |
- |
- |
- |
- |
||
100 |
Нагрузки, кН (тс) |
50,05 (5,10) |
60,11 (6,13) |
66,13 (6,74) |
72,14 (7,36) |
78,15 (7,97) |
84,16 (8,58) |
|
Прогиб, см |
39,91 |
65,07 |
- |
- |
- |
- |
||
Ширина трещин, мм |
0,222 |
- |
- |
- |
- |
- |
||
СЦ22.1-1.0 |
75 |
Нагрузки, кН (тс) |
18,33 (1,87) |
22,01 (2,24) |
24,21 (2,47) |
26,41 (2,69) |
28,61 (2,92) |
30,81 (3,14) |
Прогиб, см |
85,37 |
111,53 |
- |
- |
- |
- |
||
Ширина трещин, мм |
0,065 |
- |
- |
- |
- |
- |
||
85 |
Нагрузки, кН (тс) |
24,18 (2,47) |
22,68 (2,31) |
24,92 (2,54) |
27,18 (2,77) |
29,45 (3,00) |
31,71 (3,23) |
|
Прогиб, см |
85,77 |
111,85 |
- |
- |
- |
- |
||
Ширина трещин, мм |
0,067 |
- |
- |
- |
- |
- |
||
100 |
Нагрузки, кН (тс) |
19,73 (2,01) |
23,69 (2,42) |
26,11 (2,66) |
28,48 (2,90) |
30,85 (3,15) |
33,22 (3,39) |
|
Прогиб, см |
88,97 |
124,32 |
- |
- |
- |
- |
||
Ширина трещин, мм |
0,065 |
- |
- |
- |
- |
- |
||
СЦ22.1-1.1 |
75 |
Нагрузки, кН (тс) |
18,81 (1,92) |
22,58 (2,30) |
24,84 (2,53) |
27,10 (2,76) |
29,36 (2,99) |
31,61 (3,22) |
Прогиб, см |
89,67 |
114,95 |
- |
- |
- |
- |
||
Ширина трещин, мм |
0,081 |
- |
- |
- |
- |
- |
||
85 |
Нагрузки, кН (тс) |
19,52 (1,99) |
23,43 (2,39) |
25,78 (2,63) |
28,13 (2,87) |
30,47 (3,11) |
32,81 (3,35) |
|
Прогиб, см |
90,69 |
116,11 |
- |
- |
- |
- |
||
Ширина трещин, мм |
0,084 |
- |
- |
- |
- |
- |
||
100 |
Нагрузки, кН (тс) |
20,53 (2,09) |
24,65 (2,51) |
27,08 (2,76) |
29,54 (3,01) |
32,00 (3,26) |
34,46 (3,51) |
|
Прогиб, см |
95,04 |
124,59 |
- |
- |
- |
- |
||
Ширина трещин, мм |
0,088 |
- |
- |
- |
- |
- |
||
СЦ26.2-1.0 |
75 |
Нагрузки, кН (тс) |
16,44 (1,68) |
19,74 (2,01) |
21,71 (2,21) |
23,68 (2,41) |
25,66 (2,62) |
27,63 (2,82) |
Прогиб, см |
29,13 |
47,86 |
- |
- |
- |
- |
||
Ширина трещин, мм |
0,058 |
- |
- |
- |
- |
- |
||
85 |
Нагрузки, кН (тс) |
17,21 (1,75) |
20,66 (2,11) |
22,76 (2,32) |
24,83 (2,53) |
26,90 (2,74) |
28,97 (2,95) |
|
Прогиб, см |
30,14 |
49,31 |
- |
- |
- |
- |
||
Ширина трещин, мм |
0,061 |
- |
- |
- |
- |
- |
||
100 |
Нагрузки, кН (тс) |
18,21 (1,86) |
21,86 (2,23) |
24,06 (2,45) |
26,24 (2,68) |
28,43 (2,90) |
30,62 (3,12) |
|
Прогиб, см |
32,78 |
53,07 |
- |
- |
- |
- |
||
Ширина трещин, мм |
0,062 |
- |
- |
- |
- |
- |
||
СЦ26.3-1.0 |
75 |
Нагрузки, кН (тс) |
18,77 (1,91) |
22,53 (2,30) |
24,78 (2,53) |
27,04 (2,76) |
29,29 (2,99) |
31,54 (3,22) |
Прогиб, см |
44,67 |
64,89 |
- |
- |
- |
- |
||
Ширина трещин, мм |
0,072 |
- |
- |
- |
- |
- |
||
85 |
Нагрузки, кН (тс) |
19,53 (1,99) |
23,44 (2,39) |
25,79 (2,63) |
28,13 (2,87) |
30,48 (3,11) |
32,82 (3,35) |
|
Прогиб, см |
45,46 |
65,51 |
- |
- |
- |
- |
||
Ширина трещин, мм |
0,074 |
- |
- |
- |
- |
- |
||
100 |
Нагрузки, кН (тс) |
20,43 (2,08) |
24,53 (2,50) |
26,97 (2,75) |
29,42 (3,00) |
31,87 (3,25) |
34,32 (3,50) |
|
Прогиб, см |
47,42 |
69,69 |
- |
- |
- |
- |
||
Ширина трещин, мм |
0,072 |
- |
- |
- |
- |
- |
||
СЦ26.3-1.1 |
75 |
Нагрузки, кН(тс) |
16,04 (1,64) |
19,25 (1,96) |
21,18 (2,16) |
23,10 (2,36) |
25,03 (2,55) |
26,96 (2,75) |
Прогиб, см |
30,95 |
49,79 |
- |
- |
- |
- |
||
Ширина трещин, мм |
0,072 |
- |
- |
- |
- |
- |
||
85 |
Нагрузки, кН(тс) |
17,04 (1,74) |
20,45 (2,09) |
22,50 (2,29) |
24,54 (2,50) |
26,59 (2,71) |
28,63 (2,92) |
|
Прогиб, см |
33,16 |
53,07 |
- |
- |
- |
- |
||
Ширина трещин, мм |
0,081 |
- |
- |
- |
- |
- |
||
100 |
Нагрузки, кН(тс) |
18,38 (1,87) |
22,06 (2,25) |
24,27 (2,48) |
26,48 (2,70) |
28,68 (2,93) |
30,89 (3,15) |
|
Прогиб, см |
37,76 |
58,89 |
- |
- |
- |
- |
||
Ширина трещин, мм |
0,089 |
- |
- |
- |
- |
- |
||
СЦ26.3-1.2 |
75 |
Нагрузки, кН (тс) |
15,64 (1,60) |
18,78 (1,92) |
20,66 (2,11) |
22,54 (2,30) |
24,41 (2,49) |
26,29 (2,68) |
Прогиб, см |
22,80 |
33,76 |
- |
- |
- |
- |
||
Ширина трещин, мм |
0,049 |
- |
- |
- |
- |
- |
||
85 |
Нагрузки, кН (тс) |
16,92 (1,73) |
20,31 (2,07) |
22,35 (2,28) |
24,38 (2,49) |
26,41 (2,69) |
28,44 (2,90) |
|
Прогиб, см |
24,31 |
37,37 |
- |
- |
- |
- |
||
Ширина трещин, мм |
0,053 |
- |
- |
- |
- |
- |
||
100 |
Нагрузки, кН (тс) |
18,66 (1,90) |
22,40 (2,28) |
24,60 (2,51) |
26,83 (2,74) |
29,07 (2,96) |
31,30 (3,19) |
|
Прогиб, см |
27,75 |
42,96 |
- |
- |
- |
- |
||
Ширина трещин, мм |
0,059 |
- |
- |
- |
- |
- |
||
СЦ26.3-2.0 |
75 |
Нагрузки, кН (тс) |
18,77 (1,91) |
22,53 (2,30) |
24,78 (2,53) |
27,04 (2,76) |
29,29 (2,89) |
31,54 (3,22) |
Прогиб, см |
44,67 |
64,89 |
- |
- |
- |
- |
||
Ширина трещин, мм |
0,072 |
- |
- |
- |
- |
- |
||
85 |
Нагрузки, кН (тс) |
19,53 (1,99) |
23,44 (2,39) |
25,79 (2,63) |
28,13 (2,87) |
30,48 (3,11) |
32,82 (3,35) |
|
Прогиб, см |
45,46 |
65,51 |
- |
- |
- |
- |
||
Ширина трещин, мм |
0,074 |
- |
- |
- |
- |
- |
||
100 |
Нагрузки, кН (тс) |
20,43 (2,08) |
24,53 (2,50) |
26,97 (2,75) |
29,42 (3,00) |
31,87 (3,25) |
34,32 (3,50) |
|
Прогиб, см |
47,42 |
69,69 |
- |
- |
- |
- |
||
Ширина трещин, мм |
0,072 |
- |
- |
- |
- |
- |
||
СЦ26.3-2.1 |
75 |
Нагрузки, кН (тс) |
16,04 (1,64) |
19,25 (1,96) |
21,18 (2,16) |
23,10 (2,36) |
25,03 (2,55) |
26,96 (2,75) |
Прогиб, см |
30,95 |
49,79 |
- |
- |
- |
- |
||
Ширина трещин, мм |
0,072 |
- |
- |
- |
- |
- |
||
85 |
Нагрузки, кН (тс) |
17,04 (1,74) |
20,45 (2,09) |
22,50 (2,29) |
24,54 (2,50) |
26,59 (2,71) |
28,63 (2,93) |
|
Прогиб, см |
33,16 |
53,07 |
- |
- |
- |
- |
||
Ширина трещин, мм |
0,081 |
- |
- |
- |
- |
- |
||
100 |
Нагрузки, кН (тс) |
18,38 (1,87) |
22,06 (2,25) |
24,27 (2,48) |
26,48 (2,70) |
28,68 (2,93) |
30,89 (3,15) |
|
Прогиб, см |
37,72 |
58,80 |
- |
- |
- |
- |
||
Ширина трещин, мм |
0,089 |
- |
- |
- |
- |
- |
Обозначение по ГОСТ 22687-77, ГОСТ 24762-81 |
Марка стойки по ГОСТ 22687.2-85 |
СЦ5 |
СЦ26.1-1.0 |
СЦ5-1 |
СЦ26.1-1.1 |
СЦ8-1 |
СЦ20.1-1.1 |
СЦ10 |
СЦ20.2-1.0 |
СЦ10-1 |
СЦ20.2-1.1 |
СЦ10-2 |
СЦ20.2-1.2 |
СЦ11-1 |
СЦ20.2-2.1 |
СЦ12н |
СЦ20.3-1.0н |
СЦ12н-1 |
СЦ20.3-1.1н |
СЦ12в |
СЦ20.3-1.0в |
СЦ12в-1 |
СЦ20.3-1.1в |
СЦ20 |
СЦ22.1-1.0 |
СЦ20-1 |
СЦ22.1-1.1 |
СЦ33 |
СЦ26.2-1.0 |
СЦ36 |
СЦ26.3-1.0 |
СЦ36-1 |
СЦ26.3-1.1 |
СЦ36-2 |
СЦ26.3-1.2 |
СЦ37 |
СЦ26.3-2.0 |
СЦ37-1 |
СЦ26.3-2.1 |