Publiс buildings and structures accessible for physically handicapped visitors. Rules of architectural design 

Информационная система
«Ёшкин Кот»

XXXecatmenu

ФЕДЕРАЛЬНОЕ АГЕНТСТВО ПО СТРОИТЕЛЬСТВУ
И ЖИЛИЩНО-КОММУНАЛЬНОМУ ХОЗЯЙСТВУ
(ГОССТРОЙ)

СВОД ПРАВИЛ

СП 138.13330.2012

ОБЩЕСТВЕННЫЕ ЗДАНИЯ
И СООРУЖЕНИЯ, ДОСТУПНЫЕ
МАЛОМОБИЛЬНЫМ ГРУППАМ НАСЕЛЕНИЯ

ПРАВИЛА ПРОЕКТИРОВАНИЯ

(С изменением № 1)

Москва 2013

Предисловие

Цели и принципы стандартизации в Российской Федерации установлены Федеральным законом от 27 декабря 2002 г. № 184-ФЗ Федеральный закон РФ «О техническом регулировании», а правила разработки сводов правил - постановлением Правительства Российской Федерации от 19 ноября 2008 г. № 858 «О порядке разработки и утверждения сводов правил».

Сведения о своде правил

1 ИСПОЛНИТЕЛИ - ООО «Институт общественных зданий» и ОАО «ЦНИИЭП жилища»

2 ВНЕСЕН Техническим комитетом по стандартизации ТК 465 «Строительство»

3 ПОДГОТОВЛЕН к утверждению Управлением градостроительной политики

4 УТВЕРЖДЕН приказом Федерального агентства по строительству и жилищно-коммунальному хозяйству (Госстрой) от 27 декабря 2012 г. № 124/ГС и введен в действие с 1 июля 2013 г.

5 ЗАРЕГИСТРИРОВАН Федеральным агентством по техническому регулированию и метрологии (Росстандарт)

6 ВВЕДЕН ВПЕРВЫЕ

Информация об изменениях к настоящему своду правил публикуется в ежегодно издаваемом информационном указателе Национальные стандарты, а текст изменений и поправок в ежемесячно издаваемых информационных указателях Национальные стандарты. В случае пересмотра (замены) или отмены настоящего свода правил соответствующее уведомление будет опубликовано в ежемесячно издаваемом информационном указателе Национальные стандарты. Соответствующая информация, уведомление и тексты размещаются также в информационной системе общего пользования - на официальном сайте Федерального агентства по строительству и жилищно-коммунальному хозяйству в сети Интернет

СОДЕРЖАНИЕ

1 Область применения. 3

2 Нормативные ссылки. 5

3 Термины и определения. 5

4 Здания и помещения учебно-воспитательного назначения. 6

Учебные помещения. 6

Прочие помещения. 7

5 Здания и помещения здравоохранения и социального обслуживания населения. 9

6 Здания и помещения сервисного обслуживания населения. 11

Общие положения. 11

Предприятия розничной торговли. 11

Предприятия питания. 12

Предприятия бытового обслуживания. 13

Здания и сооружения вокзалов пассажирского транспорта. 13

7 Объекты физкультурного, спортивного и физкультурно-досугового назначения. 16

Участок и функциональное зонирование. 17

Учебно-тренировочные физкультурно-спортивные сооружения. 17

Демонстрационные спортивные сооружения. 19

8 Здания и помещения зрелищного и культурно-просветительного назначения. 19

Библиотеки. 19

Музеи и выставки. 21

Культурно-просветительские учреждения. 22

Театры, театры-студии, цирки. 25

Кинотеатры и киноконцертные залы.. 25

9 Культовые, ритуальные и мемориальные здания и сооружения. 26

Участки. 26

Культовые здания и сооружения. 27

Мемориальные здания и сооружения. 28

10 Здания объектов по обслуживанию общества и государства. 28

Здания учреждений управления. 30

Здания и помещения судебно-правовых учреждений. 31

Здания и помещения коммунальных служб. 31

11 Здания и помещения временного пребывания. 32

Приложение А (рекомендуемое). Рекомендации по проектированию.. 33

Приложение Б (справочное). Иллюстрации. 49

Приложение В (справочное). Планировочные параметры фотолюминесцентной эвакуационной системы.. 83

Приложение Г (справочное). Общий перечень первоочередных мероприятий по обеспечению доступности МГН к образовательному учреждению.. 85

Библиография. 91

 

(Измененная редакция. Изм. № 1)

Введение

Настоящий свод правил разработан в соответствии с требованиями Федерального закона от 30 декабря 2009 г. № 384-ФЗ «Технический регламент о безопасности зданий и сооружений».

Настоящий свод правил детализирует требования СП 59.13330 и должен применяться совместно с СП 138.13330.

Научный руководитель работы и отв. исполнитель - канд. архитектуры A.M. Гарнец, компьютерная графика - канд. техн. наук А.И. Цыганов, при участии арх. Н.П. Малиночки (ООО «Институт общественных зданий»), инж. В.Б. Осиновской (ГКУ «Дирекция по ремонту и техническому обслуживанию учреждений ДСЗН г. Москвы»), канд. архитектуры А.А. Магая, канд. архитектуры Н.В. Дубинина (ОАО «ЦНИИЭП жилища»).

Изменение № 1 к своду правил подготовлено ООО «Институт общественных зданий» (научный руководитель работы и ответственный исполнитель - канд. архитектуры A.M. Гарнец, канд. техн. наук А.И. Цыганов) при участии Всероссийского общества слепых (Л.П. Абрамова), Межрегиональной межотраслевой строительной ассоциации саморегулируемых и профессиональных отраслевых организаций «Безопасность» (д-р техн. наук М.М. Мирфатулаев, д-р техн. наук Ю.М. Глуховенко), НП «Доступная городская среда» (инж. В.В. Коновалова), Санкт-Петербургского государственного архитектурно-строительного университета (канд. архитектуры Б.Л. Крундышев), Негосударственного учреждения «Институт профессиональной реабилитации и подготовки персонала общероссийской организации инвалидов - Всероссийского ордена Трудового Красного Знамени общества слепых «Реакомп» (С.Н. Ваньшин).

(Измененная редакция. Изм. № 1)

СВОД ПРАВИЛ

ОБЩЕСТВЕННЫЕ ЗДАНИЯ И СООРУЖЕНИЯ, ДОСТУПНЫЕ
МАЛОМОБИЛЬНЫМ ГРУППАМ НАСЕЛЕНИЯ

ПРАВИЛА ПРОЕКТИРОВАНИЯ

Public buildings and structures accessible
for physically handicapped visitors
Rules of architectural design

Дата введения 2013-07-01

1 Область применения

1.1 Настоящий свод правил распространяется на проектирование общественных зданий и сооружений, выполняющих функции общественного обслуживания и доступных для маломобильных групп населения (далее - МГН).

1.2 Настоящий свод правил распространяется на проектирование и реконструкцию зданий учреждений различных форм собственности и различных организационно-правовых форм.

1.3 Настоящий свод правил не распространяется на части общественных зданий, сооружений и участки, куда не предусмотрен допуск посетителей. Если в этих зонах предусматриваются рабочие места для инвалидов, то их следует проектировать в соответствии с СП 139.13330, а при их отсутствии - по заданию на проектирование.

1.4 Настоящий свод правил предназначен для создания полноценной архитектурной среды, обеспечивающей необходимый уровень доступности общественных зданий, в развитие СП 59.13330, составляющих систему учреждений обслуживания для всех категорий населения, беспрепятственно пользующегося предоставляемыми услугами. Настоящий свод правил распространяется на все элементы общественных зданий и сооружений или их части (в дальнейшем - здания), а также участки общественных зданий, доступные для посетителей.

Архитектурные решения общественных зданий и сооружений следует ориентировать одновременно на компенсацию нарушений здоровья в области опорно-двигательного аппарата, слуха, зрения, сердечно-сосудистой системы, психики.

Основные решения в части инженерного и информационного обустройства общественных зданий и сооружений, установки и размещения специализированного оборудования, следует ориентировать на компенсацию конкретных нарушений здоровья, различных маломобильных групп населения.

1.5 В настоящем своде правил приведены правила и проектные мероприятия, которые рекомендуется предусматривать в проекте в дополнение к СП 118.13330 и СП 136.13330. Выбор применяемого состава мероприятий, конкретизация требований и определение этапов их реализации устанавливается заданием на проектирование, а также в процессе проектирования.

(Измененная редакция. Изм. № 1)

1.6 К объектам нормирования архитектурной среды для маломобильных лиц в общественных зданиях и сооружениях следует относить:

благоустройство и озеленение участка здания;

объемные элементы входов и выступающих частей;

планировочное решение коммуникационных путей, в том числе горизонтальных и вертикальных;

планировку групп помещений и отдельных помещений;

устройство мест обслуживания и мест отдыха;

устройство и планировку мест сопутствующего обслуживания;

пути эвакуации.

1.7 Основным принципом формирования архитектурной среды, является создание беспрепятственного доступа к месту получения услуги (обслуживания), всех категорий маломобильных групп населения (МГН).

При этом препятствие может иметь не только физическую или пространственную форму, но и информационную или психологическую, что может вызвать у МГН недопустимую потерю времени или стресс.

В случае, когда функциональное назначение зданий выходит за рамки настоящего свода правил и нуждается в их уточнении, развитии и расширении, следует дополнительно пользоваться сводами правил СП 137.13330 и СП 139.13330.

1.8 Настоящий свод правил допускает возможность выбора вариантов проектных решений исходя из требований, предъявляемых к объекту с целью обеспечения доступа к нему и использования его маломобильными посетителями.

В зависимости от расчетной доли маломобильных посетителей, от финансовых возможностей заказчика и функциональной структуры учреждения обслуживания рекомендуется применять один из двух вариантов форм обслуживания (не учитывая обслуживания на дому).

При новом строительстве применим только вариант «А» - доступность любого места обслуживания для инвалидов; при котором следует предусматривать устройство общих универсальных путей движения, предназначенных для использования всеми категориями населения (здоровыми, инвалидами и маломобильными лицами) и приспособление для нужд лиц с нарушением здоровья, специальных мест обслуживания из состава общего числа таких мест;

При конструктивной и технической невозможности приспособления здания для полной доступности, применим вариант «Б» - выделение в уровне входной площадки специальных помещений, зон или блоков, приспособленных для обслуживания инвалидов; при котором следует предусматривать устройство специальных входов, специально обустроенных параллельных путей движения и мест обслуживания для лиц с нарушениями здоровья.

Если к объекту проектирования могут быть применены, в зависимости от принятого варианта формы обслуживания различные требования, то после указания номера и перед текстом нормативного положения указывается индекс варианта проектного решения «А» или «Б».

1.9 Вертикальные коммуникации в зданиях следует предусматривать в соответствии с требованиями СП 59.13330, наружные и внутренние платформы применять в соответствии с ГОСТ Р 55555, ГОСТ Р 55556, ГОСТ Р 55642.

(Введен дополнительно. Изм. № 1)

2 Нормативные ссылки

В настоящем своде правил даны ссылки на следующие документы:

ГОСТ Р 52875-2007 Указатели тактильные наземные для инвалидов по зрению. Технические требования

ГОСТ Р 12.4.026-2001 Система стандартов безопасности труда. Цвета сигнальные, знаки безопасности и разметка сигнальная. Назначение и правила применения. Общие технические требования и характеристики. Методы испытаний

СП 59.13330.2012 «СНиП 35-01-2001 Доступность зданий и сооружений для маломобильных групп населения» (с изменением № 1)

СП 136.13330.2012 «Здания и сооружения. Общие положения проектирования с учетом доступности для маломобильных групп населения»

СП 137.13330.2012 «Жилая среда с планировочными элементами, доступными инвалидам. Правила проектирования»

СП 139.13330.2012 «Здания и помещения с местами труда для инвалидов. Правила проектирования»

СП 148.13330.2012 «Помещения в учреждениях социального и медицинского обслуживания. Правила проектирования»

ГОСТ 12.1.004-91 Система стандартов безопасности труда. Пожарная безопасность. Общие требования

ГОСТ Р 12.2.143-2009 Система стандартов безопасности труда. Системы фотолюминесцентные эвакуационные. Требования и методы контроля

ГОСТ Р 52880-2007 Социальное обслуживание населения. Типы учреждений социального обслуживания граждан пожилого возраста и инвалидов

ГОСТ Р 55555-2013 (ИСО 9386-1:2000) Платформы подъемные для инвалидов и других маломобильных групп населения. Требования безопасности и доступности. Часть 1. Платформы подъемные с вертикальным перемещением

ГОСТ Р 55556-2013 (ИСО 9386-2:2000) Платформы подъемные для инвалидов и других маломобильных групп населения. Требования безопасности и доступности. Часть 2. Платформы подъемные с наклонным перемещением

ГОСТ Р 55642-2013 Платформы подъемные для инвалидов и других маломобильных групп населения. Правила и методы исследований (испытаний) и измерений. Правила отбора образцов

СП 1.13130.2009 Системы противопожарной защиты. Эвакуационные пути и выходы (с изменением № 1)

СП 112.13330.2011 «СНиП 21-01-97* Пожарная безопасность зданий и сооружений»

СП 158.13330.2014 Здания и помещения медицинских организаций. Правила проектирования».

Примечание - При пользовании настоящим сводом правил целесообразно проверить действие ссылочных стандартов и классификаторов в информационной системе общего пользования - на официальном сайте национальных органов Российской Федерации по стандартизации в сети Интернет или по ежегодно издаваемому информационному указателю «Национальные стандарты», который опубликован по состоянию на 1 января текущего года, и по соответствующим ежемесячно издаваемым информационным указателям, опубликованным в текущем году. Если ссылочный документ заменен (изменен), то при пользовании настоящим сводом правил следует руководствоваться замененным (измененным) документом. Если ссылочный документ отменен без замены, то положение, в котором дана ссылка на него, применяется в части, не затрагивающий эту ссылку.

(Измененная редакция. Изм. № 1)

3 Термины и определения

Термины, определения и сокращения приняты по СП 59.13330 и СП 136.13330.

4 Здания и помещения учебно-воспитательного назначения

4.1 Здания учреждений общего и профессионального образования, доступные для учащихся-инвалидов, должны обеспечивать:

полноценную среду, позволяющую наравне с общим контингентом учащихся получить образование в соответствии с объемом и качеством, определяемыми программами обучения;

возможность максимально полной социальной адаптации без ущемления прав и свобод учащихся-инвалидов в общей среде со здоровыми учащимися;

меры, не нарушающие общие нормативные требования и уровень комфорта здоровых учащихся, а также архитектурное качество здания образовательного учреждения.

4.2 Учащиеся-инвалиды могут обучаться в учреждениях общего образования (школы, гимназии, лицеи) и учреждениях профессионального образования (колледжи, техникумы, высшие учебные заведения, а также учебные центры повышения квалификации), за исключением образовательных учреждений или их отделений, факультетов, имеющих ограничения по приему на обучение по ряду специальностей со стороны органов образования, здравоохранения или соответствующих отраслевых ведомств.

Требования доступности для инвалидов распространяются также на Центры профессиональной ориентации и переподготовки.

(Измененная редакция. Изм. № 1)

4.3 Общие требования к зданиям учебных заведений приведены в таблице А.1.

4.4 Здания образовательных учреждений рекомендуется делать доступными для всех категорий обучаемых с нарушениями здоровья. Исключение составляют специальные реабилитационно-образовательные учреждения, сочетающие обучение с коррекцией и компенсацией недостатков развития по определенному виду заболевания.

Учебные помещения

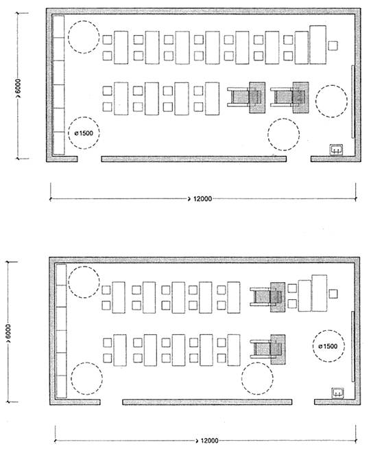
4.5 Если в задании на проектирование не установлены ограничения, следует обеспечить возможность учащемуся-инвалиду учиться в составе любой учебной группы (ученического класса). Поэтому требованиям доступности должны отвечать все учебные помещения (рисунки Б.1 - Б.5). Категории учащихся-инвалидов (по видам заболеваний) и количество мест следует устанавливать заданием на проектирование в соответствии со спецификой учебного заведения. При отсутствии этих требований в каждом учебном помещении на один ученический класс или группу учащихся следует в среднем предусматривать возможность оборудовать по 1 - 2 места для учащихся-инвалидов по каждому виду нарушений здоровья - опорно-двигательного аппарата (ОДА), слуха и зрения.

По отдельным предметам, в случае несовместимости педагогических программ с ограниченными возможностями учащихся-инвалидов (занятия физкультурой, военная подготовка, занятия по труду и т.п.) места для инвалидов в учебных кабинетах не предусматриваются.

4.6 Требования доступности при проектировании относятся к:

размерам дверных проемов входов в помещения, к организации безбарьерного маршрута (с учетом проезда, разъезда и разворота кресла-коляски), соединяющего вход в учебное помещение, безбарьерную зону специальных ученических мест (рисунок Б.6), место у доски или кафедры, зону у демонстрационных стендов, стеллажей с наглядными пособиями и методическими материалами;

специальному (компенсирующему) оборудованию специальных ученических мест;

системам индивидуального вспоможения при передвижении и фиксировании тела при сидении;

дополнительному инженерному оборудованию и возможности управления им (естественное и искусственное освещение, системы информации и связи и системы радиоинформирования).

4.7 Минимальный размер зоны на одно место с учетом подъезда и разворота коляски равен 1,8×1,8 м.

Ширина прохода между рядами столов для учащихся, передвигающихся в креслах-колясках и на опорах - не менее 0,9 м от спинки стула до следующего стола, а у места учащегося на кресле-коляске вдоль прохода не менее 1,4 м.

Другие размеры, где не проезжают на кресле-коляске - между рядом столов и стеной с оконными проемами - не менее 0,5 м; между рядами столов и стенами без оконных проемов - не менее 1,0 м. Расстояние между столами в ряду - не менее 0,85 м.

В учебных мастерских, используемых инвалидами на креслах-колясках, ширина основного прохода, а также расстояние между станками должны быть не менее 1,6 м (рисунок Б.7).

4.8 При планировке ученических мест для учащихся с недостатками зрения и нарушением слуха, а также с нарушением психического развития в специализированных учебных заведениях расстояние между рядами столов - не менее 0,6 м; между столами в ряду - не менее 0,5 м; между рядами столов и стенами без оконных проемов - не менее 0,7 м; между рядом столов и стеной с оконными проемами - не менее 0,5 м.

Площадь ученического стола для инвалида по зрению в специализированных школах или классах должна быть не менее 1 м ширины и 0,6 м глубины для размещения брайлевской литературы и тифлосредств.

4.9 В общем случае, в классном помещении достаточно первые столы в ряду у окна и в среднем ряду предусмотреть для учащихся с недостатками зрения и нарушением слуха, а для учащихся, передвигающихся в кресле-коляске - выделить 1 - 2 первых стола в ряду у дверного проема. При замене двухместных столов на одноместные уже будут соблюдены требуемые параметры проходов между столами для инвалидов в креслах-колясках, между столами и стеной, проходы к входной двери и доске.

4.10 Площадь зоны на 1 учащегося с недостатками слуха и нарушением интеллекта в учебных кабинетах следует принимать не менее 2,5 м2; для детей с нарушением зрения и поражением опорно-двигательного аппарата - более 3 м2. При кабинетах должны предусматриваться лаборантские площадью не менее 16 м2.

4.11 Площади учебных кабинетов информатики, электроники и радиотехники следует принимать из расчета не менее 4,5 м2 на одного учащегося с нарушениями слуха и нарушением интеллекта и не менее 5 м2 на одного учащегося с поражением опорно-двигательного аппарата. При кабинетах должны предусматриваться лаборантские площадью не менее 18 м2.

(Измененная редакция. Изм. № 1)

4.12 Для учащихся с легким нарушением психического развития, с сердечнососудистой недостаточностью в учебных помещениях, читальных залах библиотек, в зоне приготовления уроков в группе продленного дня рекомендуется предусматривать полузамкнутые рабочие места-кабины (с боковыми бортиками и экранами у стола, высокими спинками сидений, с бортиками-ограждениями по бокам и сзади и т.п.). Это создает для этих учащихся более спокойную обстановку, помогает регулировать психологическую дистанцию с окружающими.

Прочие помещения

4.13 В актовых залах образовательных учреждений следует предусматривать места для инвалидов на креслах-колясках в соответствии с СП 59.13330.

Места для учащихся-инвалидов с поражением ОДА следует предусматривать на горизонтальных участках пола, в рядах, непосредственно примыкающих к проходам и в одном уровне с входом в актовый зал. Для учащихся начальных классов, передвигающихся в инвалидных креслах-колясках, места в актовых залах следует предусматривать в первом ряду перед сценой (подиумом и т.п.), если имеется допустимый вертикальный угол зрения с этих мест.

4.14 Часть обычных кресел в зале рекомендуется предусмотреть возможность установки при необходимости фиксирующих и опорных приспособлений.

4.15 В зрительных залах и лекционных аудиториях учебных заведений следует оборудовать зоны дополнительного озвучивания - индукционные системы, а учебные помещения - оборудовать полностью.

4.16 Для подъема на сцену, кроме лестниц, должен быть предусмотрен стационарный или приставной пандус шириной не менее 0,9 м с уклоном 8 % и бортиками по бокам. Лестницы и пандусы должны иметь ограждения с двойными поручнями на высоте 0,7 м и 0,9 м от уровня пола наиболее целесообразно применение лестницы-подъемника.

4.17 На путях эвакуации зрителей из зала необходимо устраивать вдоль стены опорные поручни-перила на высоте 0,7 м и 0,9 м от уровня пола. За 1,5 м до дверного проема фактура поверхности поручня должна меняться. На поверхность поручня рекомендуется нанесение фотолюминесцентной ленты.

(Измененная редакция. Изм. № 1)

4.18 В фойе перед актовым залом следует предусматривать непроходную зону отдыха и ожидания для учащихся-инвалидов. Дополнительная площадь зоны отдыха -в учреждениях общего образования не менее чем на 3 учащихся (зона на 1 учащегося - 1,2×1,8 м); в профессиональных учебных заведениях- на 50 % специализированных мест для учащихся-инвалидов в актовом зале.

4.19 В читальном зале библиотеки следует предусматривать обособленные, но рядом с проходом зоны для размещения специальных мест: для учащихся-инвалидов, передвигающихся в креслах-колясках и использующих иные индивидуальные средства реабилитации при ходьбе и отдельно - для учащихся с нарушением зрения. Рабочее место для инвалидов по зрению должно иметь дополнительное периметральное освещение, а также дополнительное место для чтеца и предусматривать возможность размещения тифлотехнических средств.

В читальном зале библиотеки образовательного учреждения не менее 5 % читальных мест следует оборудовать с учетом доступа учащихся на кресле-коляске и отдельно - для учащихся с недостатками зрения. Рабочее место для инвалидов по зрению должно иметь дополнительное освещение по периметру.

(Измененная редакция. Изм. № 1)

4.20 Места в читальном зале для учащихся-инвалидов рекомендуется предусматривать в виде индивидуальных полукабин, изолированных барьерами.

Размеры зоны рабочего места на одного ребенка-инвалида на кресле-коляске составляют не менее 1,8×0,9 м. Проход между рабочими столами для свободного проезда и подъезда к столу должен быть не менее 0,9 м, т.е. размеры рабочей зоны вместе с проходом - 1,8×1,8 м.

4.21 Часть стойки-барьера выдачи книг в абонементе в общеобразовательных учреждениях рекомендуется устраивать высотой не более 0,7 м.

4.22 Книги, находящиеся в открытом доступе, и картотеку желательно, по возможности, располагать в пределах зоны досягаемости (вытянутой руки) учащегося-инвалида на кресле-коляске, т.е. не выше 1,2 м при ширине прохода у стеллажей или у картотеки не менее 1,2 м.

4.23 В обеденных залах общеобразовательных учреждений в зонах для учащихся-инвалидов стулья рекомендуется крепить стационарно.

4.24 В столовой должна быть предусмотрена непроходная зона, оборудование и планировочные габариты которой должны учитывать возможность пользования детьми и на креслах-колясках.

4.25 В общеобразовательных учреждениях и учреждениях профессионального образования, осуществляющих обучение детей-инвалидов, в составе медицинских помещений кроме медицинского и процедурного кабинетов рекомендуется предусматривать: кабинет психоневролога, кабинеты окулиста и отоларинголога, залы или комнаты лечебной физкультуры, а также физиотерапевтический кабинет, кабинет массажа (гидромассажа), кабинет механотерапии. Набор перечисленных дополнительных помещений устанавливается заказчиком в задании на проектирование.

4.26 Лифт для учащихся-инвалидов, передвигающихся на кресле-коляске, в общеобразовательных организациях, а также в организациях профессионального образования должен предусматриваться в выделенном лифтовом холле, который допускается использовать в качестве безопасной зоны.

(Введен дополнительно. Изм. № 1)

4.27 В образовательных учреждениях в раздевальных физкультурного зала и бассейна для учащихся-инвалидов следует предусматривать закрытую раздевальную с душем и унитазом.

(Введен дополнительно. Изм. № 1)

5 Здания и помещения здравоохранения и социального обслуживания населения

5.1 Доступными для маломобильных групп населения должны быть здания лечебно-профилактических учреждений, в которых непосредственно оказывается медицинская помощь (СП 158.13330). К ним относятся учреждения, которые посещаются населением, в том числе инвалидами: амбулаторно-поликлинические учреждения (поликлиники, диспансеры и центры) различного уровня обслуживания, различного профиля (многопрофильные, стоматологические, физиотерапевтические, семейные и др.) и различного назначения - далее ЛПУ.

Входы в медицинские учреждения для пациентов и посетителей должны иметь визуальную, тактильную и акустическую (речевую и звуковую) информацию с указанием групп помещений (отделений), в которые можно попасть через данный вход.

Входы в кабинеты врачей и процедурные должны быть оборудованы световыми сигнализаторами вызова пациентов.

(Измененная редакция. Изм. № 1)

5.2 Требования к медицинским подразделениям санаториев и домов отдыха аналогичны требованиям к амбулаторно-поликлиническим учреждениям, а также к лечебно-диагностическим и восстановительным подразделениям стационаров по СП 148.13330. При проектировании учреждений социального обслуживания граждан пожилого возраста и инвалидов следует соблюдать также ГОСТ Р 52880.

(Измененная редакция. Изм. № 1)

5.3 На участках лечебно-профилактических учреждений вдоль пешеходных путей следует устраивать через каждые 50 м площадки отдыха с местами для сидения, в том числе для инвалидов на креслах-колясках.

5.4 Для удобства самообслуживания инвалидов в вестибюле, в том числе переодевания, следует предусматривать свободную от напольного оборудования и мебели зону, при этом на высоте 0,8 - 1,2 м от уровня пола рекомендуется разместить настенные полки-столы, крючки и опорные поручни.

Травмпункт, инфекционный кабинет и приемное отделение должны иметь автономные наружные входы, доступные для инвалидов. Травмпункт должен размещаться на первом этаже при минимальном перепаде высоты.

(Измененная редакция. Изм. № 1)

5.5 При наличии в ЛПУ только подразделений 1-го типа специально оборудованные для инвалидов на креслах-колясках санитарные помещения (уборные, раздевальные и др.) должны входить в общее расчетное число помещений данного назначения и размещаться при центральном вестибюле, а также в составе помещений оздоровительных и лечебных бассейнов, отделений водолечения и т.п., откуда пациент не может выйти в вестибюль не переодеваясь в сухую одежду.

Для подразделений 2-го типа специализированные уборные и раздевальные следует размещать в структуре этих отделений или в непосредственной близости.

Помещения, специально оборудованные для инвалидов на креслах-колясках: санузлы, раздевальные, ванные и др. должны входить в общее расчетное число помещений данного назначения.

5.6 Габариты врачебных и лечебных кабинетов не должны препятствовать их посещению пациентами на креслах-колясках. Расстановка в них оборудования должны обеспечить возможность свободного подъезда к столу врача шириной 1,2 м и разворота кресла-коляски диаметром не менее 1,4 м в соответствии с СП 148.13330.

(Измененная редакция. Изм. № 1)

5.7 Глубина ванны в кабинете подводного массажа должна быть не менее 0,4 - 0,6 м. По периметру ванна снабжается опорными поручнями. Вокруг ванны предусматривается пространство не менее 1,5 - 1,6 м для проезда инвалидной коляски. Пол вокруг ванны покрывается резиновым или другим нескользким покрытием.

5.8 В помещении подводного массажа и в кабинах душевого зала поликлиники рекомендуется устройство специального оборудования для перемещения инвалида с поражением ОДА из коляски в ванную или кабину, а также специальные поручни и упоры для коленей с целью опоры инвалида во время приема процедуры.

5.9 При проектировании ЛПУ следует учитывать требования приспособления архитектурной среды для инвалидов, продиктованные функциональными особенностями этих учреждений (таблица А.2 , рисунки Б.8 - Б.10, Б.13).

Набор и насыщенность специальным оборудованием для инвалидов различных категорий помещений принимается в зависимости от того, к какой группе относится это помещение (рисунки Б.11, Б.12).

5.10 При помещениях лечебной физкультуры, а также при душевом зале должны быть предусмотрены раздевальные с учетом возможности их использования инвалидами, в том числе на креслах-колясках (иметь: минимальные размеры помещения - 3,0×6,0 м; свободные от напольного оборудования зоны диаметром не менее 1,5 м; пристенные поручни у скамей для раздевания). Нумерация на шкафах в гардеробных/раздевальных и душевых должна быть рельефной и на контрастном фоне.

Не менее, чем один из отсеков зала лечебных и грязевых ванн, включая раздевальную при нем, должен быть приспособлен для инвалида на кресле-коляске. В залах лечебной физкультуры в ограждениях, направляющих и ограничивающих движение, следует применять материалы, смягчающие контакт инвалида с ограждением.

(Измененная редакция. Изм. № 1)

5.11 Для торговых залов аптек и раздаточных пунктов молочных кухонь действительны те же требования, что и для торговых залов учреждений торговли.

5.12 Аптечные прилавки должны быть доступными для инвалидов, передвигающихся на креслах-колясках. Товар на прилавках следует располагать в поле зрения людей, сидящих в инвалидных колясках.

Пример устройства аптечного прилавка, состоящего из трех частей, приведен на рисунке Б.14. Стеклянная витрина позволяет расположить товар на полках в несколько ярусов. Низкий прилавок, состоящий из откидной доски, служит местом обслуживания инвалида, а в нерабочем положении является проходом для продавца. Место для продавца с кассовым аппаратом - стандартное решение торгового оборудования.

5.13 Места ожидания и приема пациентов оборудуются специализированными техническими и информационными средствами (индукционными и другими системами дополнительного озвучивания, тактильными указателями, радиоинформаторами и пр.).

5.14 Травмпункт, инфекционный кабинет и приемное отделение должны иметь автономные наружные входы, доступные для инвалидов. Травмпункт должен размещаться на первом этаже.

(Введен дополнительно. Изм. № 1)

5.15 В зданиях психиатрических стационаров доступное пространство, куда инвалиды на креслах-колясках могут передвигаться самостоятельно, должно устанавливаться заданием на проектирование.

(Введен дополнительно. Изм. № 1)

6 Здания и помещения сервисного обслуживания населения

Общие положения

6.1 Предприятия розничной торговли, открытой сети общественного питания и бытового обслуживания населения (в дальнейшем - предприятия сервиса) являются наиболее массовой группой общественных зданий, где необходимо создание условий доступности для маломобильных групп населения.

Предприятие сервиса должно обеспечить маломобильным категориям пользователей полноценные условия получения (реализации) услуги наравне с другими категориями населения.

6.2 В предприятиях сервиса рекомендуется предусматривать для обеспечения обслуживания маломобильных групп населения на дому дополнительные помещения для обслуживающего его персонала, специализированный блок для оформления и получения заказа, помещения для комплектации заказов, хранения заказов и сдаваемых в ремонт, стирку или химчистку вещей.

6.3 При проектировании предприятий, доступных для маломобильных категорий пользователей (посетителей, потребителей) следует учитывать общие требования к формированию архитектурной среды, изложенные в сводах правил СП 59.13330 и СП 136.13330. Дополнительно следует учитывать специфические требования к отдельным типам учреждений, приведенные ниже.

Столы, прилавки, расчетные плоскости кассовых кабин следует располагать на высоте, не превышающей 0,8 м от уровня пола. Максимальная глубина полок (при подъезде вплотную) не должна быть более 0,5 м.

(Измененная редакция. Изм. № 1)

Предприятия розничной торговли

6.4 Для личного транспорта инвалидов на автостоянках посетителей при предприятиях розничной торговли следует выделять места для транспортных средств инвалидов. Они должны размещаться не далее 50 м от входов, доступных для маломобильных покупателей. При многоуровневой автостоянке, встроенной или пристроенной к основному зданию, места для автомашин инвалидов на кресле-коляске следует предусматривать на уровне основного входа в здание.

6.5 В зависимости от принятого в задании на проектирование приема организации обслуживания маломобильных покупателей возможны два варианта проектирования внутренней архитектурной среды.

Вариант «А» - по пункту 1.8.

Вариант «Б». Создание условий для покупки товаров полного ассортимента в специально выделенном помещении для маломобильных покупателей. Дополнительные помещения или специальные зоны для обслуживания данного контингента должны размещаться в удобной связи с наружными входами.

6.6 Торговое оборудование должно обеспечивать доступность всем контингентам покупателей, в том числе лицам на креслах-колясках для выбора товара (рисунки Б.15 и Б.16).

6.7 Комплектация и расстановка оборудования в торговых залах, должна быть рассчитана на обслуживание лиц, передвигающихся на креслах-колясках самостоятельно и с сопровождающими, инвалидов на костылях, а также инвалидов по зрению. Столы, прилавки, расчетные плоскости кассовых кабин следует располагать на высоте, не превышающей 0,8 - 0,85 м от уровня пола. Максимальная глубина полок (при подъезде вплотную) не должна быть более 0,5 м.

В тех торговых залах, где для покупателей предусмотрены полки высотой более 0,9 м, следует обеспечить дополнительные полки или часть основного прилавка пониженной высоты от 0,7 до 0,8 - 0,85 м от уровня пола.

(Измененная редакция. Изм. № 1)

6.8 Все размеры проходов (кроме одностороннего) должны обеспечивать возможность полного разворота на 360°, а также фронтального обслуживания инвалидов на кресле-коляске вместе с сопровождающими.

Ширина прохода для универсамов, супермаркетов и оптовых рынков (торговая площадь свыше 650 м2) должна быть не менее 2 м.

6.9 В блоке касс как минимум один из контрольных кассовых постов в зале должен быть оборудован в соответствии с требованиями доступности для инвалидов. Ширина прохода около такого кассового поста должна быть не менее 1,1 м.

Информационный знак доступности кассы должен располагаться на высоте, видной для покупателя на кресле-коляске.

6.10 Для акцентирования внимания покупателей с нарушением зрения на необходимой информации следует активно использовать тактильные (рекомендуемая высота размещения горизонтально или под наклоном на витринах и полках на высоте от 0,7 до 1,4 м от уровня пола), световые указатели, табло и пиктограммы, а также контрастное цветовое решение элементов интерьера в соответствии с требованиями СП 136.13330. Пиктограммам и указателям для выделения отдельных товарных групп в торговом зале рекомендуется присваивать различные лидирующие цвета. Не следует одновременно использовать красный, зеленый, синий и фиолетовый цвета.

Рекомендуемые сочетания цветов следует принимать по СП 136.13330.

В удобном для посетителя-инвалида по зрению месте и в доступной для него форме должна располагаться информация (тактильная мнемосхема) о расположении торговых залов и секций, об ассортименте товаров, а также средства связи с администрацией.

Предприятия питания

6.11 В предприятиях питания и их зонах, предназначенных для специализированного обслуживания маломобильных посетителей, рекомендуется предусматривать обслуживание официантами.

При отсутствии в здании пассажирских лифтов обеденные залы рекомендуется размещать на первом этаже. Оборудование мест, приспособленных для маломобильных посетителей, размещенных на основном этаже (преимущественно первом), должно соответствовать аналогичному оборудованию мест, размещенных на недоступных для инвалидов этажах (уровнях).

6.12 В помещениях общественного питания расстановка мебели и оборудования должна обеспечивать беспрепятственное движение инвалидов. Ширина прохода около прилавков для сервирования блюд должна быть не менее 0,9 м. Для обеспечения свободного огибания при проходе кресла-коляски ширину прохода рекомендуется увеличивать до 1,1 м.

В буфетах и закусочных должно быть не менее одного стола высотой 0,75 - 0,85 м.

Ширина прохода между столами в ресторане должна быть не менее 1,2 м.

Секция стойки бара для инвалидов на кресле-коляске должна иметь ширину столешницы 1,6 м, высоту от пола не более 0,85 м и свободное пространство для ног 0,75 м.

(Измененная редакция. Изм. № 1)

6.13 В предприятиях питания рекомендуется отводить до 5 % мест, но не менее одного, для лиц, передвигающихся на креслах-колясках и с нарушением зрения, с площадью не менее 3 м2 на каждое место. Размещение и габариты мест приведены на рисунках Б.17 - Б.20.

6.14 В помещениях общественного питания должно быть 5 % столов, но не менее одного обеденного стола высотой 0,65 - 0,8 м. Такие столы должны иметь необходимую ширину между ножками и необходимую глубину столешницы в соответствии с требованиями СП 136.13330. Стойки баров и кафетериев должны иметь пониженную часть - высотой от пола не более 0,8 м и шириной 0,8 - 1,0 м для обслуживания инвалида на кресле-коляске.

(Измененная редакция. Изм. № 1)

6.15 В предприятиях питания, связанных с длительным пребыванием посетителей (рестораны, столовые), гардеробные стойки в местах обслуживания маломобильных посетителей следует устраивать в соответствии с рекомендациями СП 136.13330.

6.16 Вестибюли, холлы, аванзалы, уборные, умывальные и другие вспомогательные помещения, доступные для маломобильных посетителей, следует проектировать с учетом требований СП 59.13330 и рекомендациями СП 136.13330.

6.17 Информация о предприятии (тип, класс, форма обслуживания, доступность для маломобильных посетителей), а также меню должны быть легко определяемы и доступны для инвалидов на креслах-колясках и лиц с нарушением зрения. Меню должно иметь контрастные надписи простым шрифтом и шрифтом Брайля. В качестве альтернативы может использоваться меню предприятия в версии для слабовидящих, доступной в сети Интернет.

6.18 Специализированные средства информации для МГН должны решаться в соподчинении с основной дизайнерской концепцией интерьера.

Предприятия бытового обслуживания

6.19 Если предприятия бытового обслуживания (приемные пункты, дома мод, ателье, мастерские, парикмахерские, предприятия стирки, химчистки и т.д.) не включены в систему целевого оказания услуги на дому, то для нужд маломобильных групп населения следует проектировать (приспосабливать для использования) помещения для посетителей в зданиях предприятий приближенного бытового обслуживания и комплексы бытового обслуживания, включающие широкий перечень услуг, а также пункты проката предметов домашнего быта.

Планировка кабины для переодевания, примерочной и т.п. зон и помещений, должны иметь свободное пространство размерами не менее 1,5×1,5 м.

(Измененная редакция. Изм. № 1)

6.20 Ввиду небольших мощностей эти предприятия могут размещаться во встроенных и встроенно-пристроенных помещениях первых этажей жилых зданий.

Здания и сооружения вокзалов пассажирского транспорта

6.21 В зданиях вокзалов расположение помещений не должно создавать у МГН растерянности и беспомощности при движении от входа к кассам, зонам ожидания, туалетам, выходам на перрон. Расположение залов в подземном уровне или на втором (антресольном) этаже должно быть оправдано расчетными объемами движения, рельефом или функционально-композиционными соображениями. Такое решение требует устройства специальных тоннелей для пассажиров или конкорсов, галерей, балконов и мостиков для доступности платформ. Для маломобильных пассажиров требуется дополнительное устройство лифтов или вертикальных и наклонных пристенных подъемников.

Помещения зданий вокзалов различных видов пассажирского транспорта (железнодорожного, автомобильного, воздушного, речного и морского), переходы, платформы и другие сооружения, предназначенные для обслуживания пассажиров, должны быть доступными для МГН.

(Измененная редакция. Изм. № 1)

6.22 В зонах интенсивного пешеходного движения может предусматриваться специальная тактильная разметка для пассажиров-инвалидов по зрению. Рекомендуется, по возможности, предусматривать изолированную полосу параллельного движения (при входах в здание, выходах на перроны или посадочные платформы, в сложных транспортных узлах - выходах из метро, входах со стороны остановок наземного городского транспорта и т.п.).

В опорах конкорсов следует устраивать как грузовые подъемники, так и лифты для маломобильных пассажиров грузоподъемностью 600 кг и более для размещения инвалида с сопровождающим и его багажом. Размеры кабины должны вмещать больного на носилках скорой медицинской помощи с санитарами.

6.23 К зонам для маломобильных пассажиров в залах ожидания доступные пути движения должны сопровождаться четкой и доступной информацией для всех групп МГН.

Не менее одного киоска, телефона, торгового автомата и др. должны быть доступны для инвалидов. Все эти устройства должны иметь знак доступности, который должен быть идентичен по всему зданию.

Регистрация билетов и оформление багажа для МГН без сопровождения должна осуществляться при необходимости за специальной стойкой высотой от уровня пола не более 0,85 м. Стойки для заполнения деклараций в аэропортах международных авиалиний должны быть доступны для инвалидов на кресле-коляске.

(Измененная редакция. Изм. № 1)

6.24 Зону ожидания и отдыха в залах ожидания следует предусматривать в стороне от основных потоков пассажиров (магистральных проходов), изолировать от наиболее шумных помещений и, по возможности, соединять с перронами специальными выходами.

Залы ожидания должны иметь удобную связь с вестибюлем, рестораном (кафе-буфетом) и выходами на перрон, располагаясь, как правило, в одном с ними уровне.

Специальную зону ожидания и отдыха рекомендуется размещать на основном этаже, в одном уровне с входом в здание вокзала и выходами к платформам (перронам, причалам) при обеспечении освещенных, безопасных и коротких переходов между ними.

Места в специальной зоне ожидания и отдыха следует оборудовать индивидуальными средствами информации и связи: наушниками, подключаемыми к системам информационного обеспечения вокзалов; дисплеями с дублированием изображения информационных табло и звуковых объявлений; техническими средствами экстренной связи с администрацией, доступными тактильному восприятию; прочими специальными системами сигнально-информационного обеспечения (компьютеры, справки но телефону и т.п.).

(Измененная редакция. Изм. № 1)

6.25 В непосредственной близости от зоны ожидания и отдыха следует предусматривать специальные туалеты для инвалидов - в отдельной кабине или в составе туалетов для пассажиров, но не менее чем по одной кабине для мужчин и женщин, комнату матери и ребенка.

6.26 Зону ожидания и отдыха, если отсутствуют ведомственные нормы проектирования, следует предусматривать из расчета 5 % общего числа мест для сидения в залах ожидания.

Вблизи зоны ожидания и отдыха следует предусматривать также площадь для хранения штатных кресел-колясок и место дежурного по залу или устройство связи с ним.

6.27 В зонах входа-выхода, ожидания и отдыха для пассажиров-инвалидов следует обеспечивать условия оптимального визуального и акустического восприятия общих систем информационного обеспечения пассажиров (табло с расписанием движения транспорта, общая система оповещения и индукционные системы, системы радиоинформирования).

6.28 Для оборудования зоны отдыха и ожидания рекомендуется предусматривать трансформируемое оборудование (кресла с откидными спинками для сна, откидные столики для чтения и приема пищи, оборудованные местной подсветкой).

6.29 В непосредственной близости от зоны отдыха и ожидания рекомендуется разместить несколько блоков индивидуальной камеры хранения и телефон местной и междугородней связи, а также специальное текстовое устройство и/или факсимильный аппарат для получения и передачи информации лицами с нарушениями слуха. Все оборудование должно быть установлено в зоне досягаемости инвалидами.

6.30 Следует предусмотреть сигнальные визуальные и тактильные указатели, радиоинформаторы для входов и выходов, туалетов, вестибюля, кассового и операционного залов, камеры хранения, ресторана, пункта медицинской помощи, милиции, справочного бюро.

6.31 На открытых автостоянках у вокзалов следует выделять места для личного автотранспорта инвалидов. Количество таких мест следует принимать из расчета: 4 % - при общем количестве мест на стоянке до 100; 3 % - при количестве мест от 100 до 200; 2 % - при количестве мест от 200.

6.32 В автоматических камерах хранения не менее 3 % мест, расположенных в нижнем ряду, должны резервироваться и приспосабливаться для пассажиров-инвалидов.

6.33 Не менее 5 % окон и прилавков (но не менее одного) операционных помещений (касс, камер хранения, справочных служб, автоматов продаж и т.д.) рекомендуется размещать на высоте не более 0,85 м. Перед зоной обслуживания должно быть предусмотрено достаточное пространство для маневрирования кресел-колясок с учетом возможного их сопровождения (рисунок Б.21).

(Измененная редакция. Изм. № 1)

6.34 При расчете ширины перронов следует учитывать возможность параллельного движения инвалидов на креслах-колясках и багажных тележек по объездам выходов из тоннелей, опор навесов и осветительных мачт.

6.35 На перронах вдоль краев платформы следует применять тактильные предупредительные полосы контрастного цвета с поверхностью платформы в соответствии с ГОСТ 12.4.026, а также тактильные предупредительные полосы в соответствии с ГОСТ Р 52875 - для пассажиров с нарушением зрения.

На перронах необходимо предусматривать возможность дублирования визуальной и звуковой информации, в том числе о расположении вагонов.

Низкие железнодорожные платформы должны быть приспособлены для использования стационарных или передвижных подъемников для посадки/высадки инвалидов.

При реконструкции или модернизации существующие станции со среднегодовым суточным пассажиропотоком 1000 пассажиров и менее допускается не устанавливать подъемники или рампы, если на станции в пределах 50 км на той же линии есть станция, полностью обеспечивающая доступность для инвалидов.

При этом проект станции должен предусматривать возможность установки подъемников и/или рамп в будущем, чтобы обеспечить доступность станции для инвалидов.

(Измененная редакция. Изм. № 1)

6.36 В аэровокзалах доступность перронов вылета/прибытия следует обеспечивать: размещением специального выхода шириной не менее 1,2 м для маломобильных пассажиров.

При посадке в самолет с уровня земли (высадке) для подъема или спуска маломобильных пассажиров следует предусматривать специальное устройство - приставной механизированный трап-эскалатор или автолифт.

В аэровокзалах в посадочных галереях с уровня второго этажа через каждые 10 м следует предусматривать горизонтальные площадки для отдыха размером не менее 1,5×1,5 м.

При посадке в самолет с уровня земли для подъема или спуска (высадки) МГН следует предусматривать специальное подъемное устройство: амбулаторный автолифт (амбулифт) и т.п. устройства.

(Измененная редакция. Изм. № 1)

6.37 На вокзалах и аэровокзалах рекомендуется предусматривать помещение для специальной службы сопровождения и помощи инвалидам и другим маломобильным пассажирам, а также зону хранения малогабаритных колясок, используемых для обслуживания инвалидов при прохождении регистрации, контроля, досмотра и перемещения по проходу салона самолета.

6.38 В автовокзалах для обслуживания маломобильных пассажиров не рекомендуется использование островных перронов. Перроны с береговым, полуостровным или пирсовым расположением в автовокзалах междугородних перевозок должны оборудоваться стационарными или передвижными подъемниками для посадки/высадки инвалидов из автобусов, не оборудованных подобными средствами.

6.39 Для пересадочных узлов вокзальных комплексов целесообразно использоваться подъемные платформы с вертикальным и наклонным перемещением инвалидов, которые могут быть с платформой или кабиной, пандусы, в том числе переносные (съемные), траволаторы, эскалаторы.

7 Объекты физкультурного, спортивного и физкультурно-досугового назначения

7.1 Физкультурно-спортивные сооружения, доступные для инвалидов, следует рассматривать как составную часть единой сети физкультурно-спортивных сооружений. Эти сооружения должны быть рассчитаны на совместное использование инвалидами и остальным населением.

На физкультурно-спортивных сооружениях общегородского уровня при числе инвалидов среди населения более 2,5 тыс. чел. допускается строительство специальных спортивных залов для инвалидов, если иное не определено генпланом развития города.

Специализированные спортивные сооружения только для спортсменов паралимпийцев и сурдлимпийцев - центры «инваспорта», где могут проводиться как учебно-тренировочные занятия, так и соревнования, в данном документе не рассматриваются.

7.2 Открытые и крытые физкультурно-спортивные сооружения могут быть учебно-тренировочные (без мест для зрителей) или демонстрационные (стадионы и универсальные спортивно-зрелищные залы).

Открытые и крытые физкультурно-спортивные сооружения с учетом доступности для инвалидов можно разделить на 2 группы:

сооружения, которые не требуют специального приспособления (сооружения для фехтования, стрельбы из лука и пневматического оружия) и могут использоваться инвалидами;

сооружения общего пользования, которые следует приспособить для занятий инвалидами на основании выполнения целого ряда требований и дополнительного оборудования (залы, бассейны, площадки для физкультурно-спортивных занятий). Полный набор сооружений и зон для занятий инвалидов должен соответствовать Всероссийскому реестру видов спорта.

В данном разделе рассматривается только вторая группа сооружений.

Основная часть требований данного раздела относится к учету специфики таких категорий занимающихся, как инвалиды с поражением опорно-двигательного аппарата, так и ограничением зрения.

(Измененная редакция. Изм. № 1)

7.3 Для физкультурно-спортивных сооружений в основном предпочтительны решения с устройством общих путей движения и мест обслуживания и проведения занятий для здоровых и маломобильных посетителей. При наличии специализированных залов в составе сооружений общего пользования возможны решения с устройством параллельных путей движения и мест обслуживания инвалидов.

Полный набор специализированного спортивного оборудования, параметры помещений и зон для соревнований, и дополнительные требования для удобства занятий МГН следует включать в утверждаемое техническое (или технологическое) задание.

На спортивных, спортивно-зрелищных и физкультурно-оздоровительных объектах необходимо обеспечить наличие зон для выгула собак-поводырей и других служебных собак. В зоне выгула собак-поводырей рекомендуется применять легко очищаемое твердое покрытие.

(Измененная редакция. Изм. № 1)

Участок и функциональное зонирование

7.4 Спортивно-зрелищные залы, доступные маломобильным группам населения, следует располагать в центральных зонах городов на участках со спокойным рельефом, обеспеченных удобными транспортными связями. Участок стадиона следует удалять от источников шума и загрязнения воздуха. С точки зрения освоения рельефа и доступности для всех групп населения, включая маломобильных, предпочтительна территория, позволяющая размещать трибуны на естественных откосах, а спортивные площадки и поля, пешеходные пути - на ровных участках.

7.5 Обслуживающие помещения для занимающихся, включая инвалидов, следует располагать в специальных павильонах или под трибунами, при этом их удаление от мест проведения физкультурно-спортивных занятий не должно превышать 150 м.

Учебно-тренировочные физкультурно-спортивные сооружения

Открытые плоскостные сооружения

7.6 При проектировании открытых плоскостных сооружений следует предусматривать зону безопасности шириной 3,0 м во всех направлениях от его границ, свободную от всякого рода препятствий. Покрытие зон безопасности должно быть однородно с покрытием спортивной площадки.

7.7 Отдельные площадки и открытые плавательные бассейны рекомендуется окружать полосами кустарниковых насаждений (за исключением колючих и ядовитых кустарников). Размещение, окраска и габариты зеленых насаждений должны способствовать получению дополнительной информации инвалидами с дефектами зрения.

7.8 По периметру полей и групп площадок рекомендуется предусматривать также ветро- и пылезащитные полосы, озеленение, обваловку площадок, акустические экраны.

Минимальную ширину шумозащитной полосы с 2 - 3 рядами деревьев и плотным кустарником рекомендуется принимать не менее 10 м, при снижении интенсивности шума на 1,2 - 1,8 дБ каждым рядом. При этом высота деревьев должна быть не менее 5 - 7 м.

Размеры зоны безопасности регламентированы в таблице А.3.

Крытые сооружения

7.9 Для занятий инвалидов в режиме попеременного и совместного использования с другими категориями населения рекомендуется предусматривать следующие основные помещения:

в составе сооружений физкультурно-оздоровительного клуба микрорайона - зал или помещение для физкультурно-оздоровительных занятий;

в составе физкультурно-оздоровительного центра муниципального района: универсальный зал, один из специализированных залов, одна из физкультурно-оздоровительных ванн бассейна;

в составе комплекса физкультурно-рекреационных сооружений: 1 - 2 помещения для физкультурно-оздоровительных занятий;

специализированные залы для игр, используемые инвалидами, в составе районных сооружений.

7.10 При расстановке оборудования в тренажерных залах необходимо предусматривать место для проезда людей на кресле-коляске. Размеры и варианты использования инвалидами крытых физкультурно-спортивных сооружений массового типа приведены в [1].

(Измененная редакция. Изм. № 1)

7.11 Рекомендуется обеспечивать доступность для МГН во все вспомогательные помещения в учебно-тренировочных физкультурно-спортивных сооружениях: входные и рекреационные помещения (вестибюли, гардеробы, зоны отдыха, буфеты), блоки раздевальных, душевых и санузлов, тренерские и учебно-методические помещения, медико-реабилитационные помещения (медицинские комнаты, сауны, массажные и др.).

Доступность для МГН во все вспомогательные помещения (кроме, как правило, административно-служебных и технических) в учебно-тренировочных физкультурно-спортивных сооружениях рекомендуется обеспечивать в соответствии с требованиями 7.5.7 СП 59.13330 (рисунки Б.22 - Б.25).

(Измененная редакция. Изм. № 1)

7.12 В физкультурно-спортивных сооружениях с учетом потребностей инвалидов рекомендуется сочетание плавательного бассейна и зала для общей физической подготовки, оснащенного различным оборудованием для игр и физкультурных занятий. Размеры ванн и залов определяются в соответствии с заданием на проектирование.

Рекомендованная глубина специализированных ванн бассейнов, в том числе используемых универсально, составляет:

0,6 - 0,85 м - оздоровительно-тренировочная;

0,7 - 1,0 м - плескательная свободной формы для детей 6 - 12 лет;

0,6 - 1,35 м - учебная для обучения плаванию детей;

0,8 - 1,35 м - учебная для обучения плаванию взрослых;

1,2 - 1,45 м - для физкультурно-оздоровительного плавания всех категорий пользователей.

7.13 Вдоль стен зала у ванн бассейна, доступного для МГН, и на входах в зал из помещений для переодевания и душевых следует устанавливать горизонтальные поручни на высоте от пола в пределах от 0,9 до 1,2 м, а в залах с бассейном для детей -на уровне 0,5 м от пола.

Для ориентирования лиц с полной потерей зрения (незрячих) и слабовидящих рекомендуется также размещение резиновых рифленых полос с рисунком в соответствии с требованиями ГОСТ Р 52875 на основных путях движения по залам бассейна.

(Измененная редакция. Изм. № 1)

7.14 Необходимо наличие доступных раздевальных в следующих помещениях: медпункты/помещения для оказания первой медицинской помощи, комнаты для тренеров, судей, официальных лиц. Для этих помещений допускается наличие одной доступной универсальной раздевальной, рассчитанной на лиц обоего пола и оборудованной туалетом.

Площадь в общих раздевальных на одно место для занимающегося инвалида следует принимать не менее: в залах - 3,8 м2, в бассейнах с залом подготовительных занятий - 4,5 м2. Расчетная площадь на одного занимающегося инвалида в раздевальных с хранением одежды в отдельном помещении гардеробной - 2,1 м2. Площадь для индивидуальных кабин - 4 - 5 м2, общих раздевальных для инвалидов с сопровождающим - 6 - 8 м2.

(Измененная редакция. Изм. № 1)

7.15 Специальные размеры и оборудование сауны приведены на рисунке Б.25.

(Измененная редакция. Изм. № 1)

7.16 Специальные требования к основным и вспомогательным помещениям с учетом посетителей-инвалидов приведены в таблице А.3.

Демонстрационные спортивные сооружения

7.17 Демонстрационные спортивные сооружения, функционирующие в учебно-тренировочном режиме более 60 % времени, рекомендуется рассчитывать на совместное использование МГН и остальными посетителями. Следует рассматривать их как один из элементов единой системы физкультурно-спортивных сооружений.

Размещение мест для зрителей-инвалидов в спортивно-зрелищных залах показано на рисунке Б.22.

(Измененная редакция. Изм. № 1)

7.18 Все основные и дополнительные элементы спортивных зданий и сооружений должны быть доступны для маломобильных посетителей.

Если на трибунах спортивных и спортивно-зрелищных объектов предусматривается звуковая информация, то она должна дублироваться текстовой информацией.

(Измененная редакция. Изм. № 1)

7.19 Требования к проектированию тренировочных залов и вспомогательных помещений даны в таблице А.3, к размещению инвалидов на трибунах - в таблице А.4.

7.20 Количество мест для инвалидов на креслах-колясках на трибунах спортивно-зрелищных залов рекомендуется принимать из расчета 2 % от общей численности зрителей сооружений плюс 1 место на каждые 100 при вместимости свыше 1000 зрителей. На существующих сооружениях места могут быть приспособлены за счет временного демонтажа сидений.

Минимальное количество мест на трибунах для инвалидов в креслах-колясках с сопровождающими их лицами - 4.

8 Здания и помещения зрелищного и культурно-просветительного назначения

Библиотеки

8.1 На участке библиотек рекомендуется, по возможности, предусматривать озелененные территории, включающие площадки, которые необходимо оборудовать скамьями для чтения, навесами, перголами и другими малыми архитектурными формами для чтения на открытом воздухе.

Зону для чтения на открытом воздухе рекомендуется организовывать в стороне от улиц с транспортным движением.

8.2 В основу функционально-планировочного решения библиотек рекомендуется закладывать принцип совместного обслуживания всех категорий инвалидов, не выделяя специализированные помещения для какой-либо одной группы.

Планировочные требования к среде обитания инвалидов заключаются в том, чтобы она способствовала социальной интеграции, реализации возможностей интеллектуальных контактов инвалидов.

8.3 Помещения читальных залов библиотек следует располагать, как правило, в одном уровне, многоуровневое расположение допускается только для крупных библиотек.

8.4 В универсальных научно-технических библиотеках (областных и республиканских) рекомендуется предусматривать возможность получения в единой зоне всего необходимого инвалиду объема информационных услуг - организацию автоматизированной системы каталога, отражающего фонды библиотеки, получение необходимых справочно-библиографических данных на компьютере, размещение фонда для слепых и слабовидящих.

8.5 Вспомогательные помещения обслуживания следует проектировать с учетом требований СП 136.13330, блок помещений, включающий кружковые комнаты и лекционные залы - аудитории - в соответствии с требованиями раздела «Культурно-просветительские учреждения».

8.6 Библиотечное обслуживание инвалидов рекомендуется осуществлять во всех типах библиотек. В зависимости от местных условий и принятого функционально-планировочного решения в библиотечной системе могут быть предусмотрены организации обслуживания населения:

Вариант «А» - обслуживания всех категорий посетителей во всех помещениях читательского блока;

Вариант «Б» - обслуживания инвалидов в специально оборудованных отделах обычных библиотек, с выделением самостоятельных путей движения и зон обслуживания.

(Измененная редакция. Изм. № 1)

8.7 Площади помещений функциональных подразделений (зоны аван-зала, зоны читального зала, зоны хранения открытого фонда и абонемента) рекомендуется определять как сумму площадей, занимаемых рабочими местами сотрудников-методистов, набором необходимых функционально-технологических элементов, рассчитанных на здоровых читателей и инвалидов (в том числе стеллажами выставки новых поступлений, каталожными шкафами с местами для работы, кафедрами выдачи литературы с подсобными фондами закрытого хранения) из расчета - 8 м2 на 1 читателя-инвалида.

8.8 Количество читательских мест, специально оборудованных и предназначенных для библиотечного обслуживания инвалидов всех категорий, следует определять на базе предпроектных исследований по расчету для каждого функционального подразделения. В любом случае оно должно составлять не менее 5 % от общего числа читательских мест в библиотеках Централизованной библиотечной сети, в том числе для обслуживания инвалидов на креслах-колясках - не менее 4 специальных мест.

В читальных залах и в зонах читальных залов рекомендуется места, отведенные для читателей-инвалидов, размещать в непосредственной близости к кафедрам выдачи литературы или рядом с местом дежурного библиотекаря.

8.9 В отделениях городских библиотек для обслуживания читателей с нарушением зрения рекомендуется выделять фонд не менее 2,5 тыс. экз. литературы со шрифтом Брайля или аудиокниг, общей площадью 32 м2.

8.10 Для обслуживания читателей - инвалидов по зрению, пользующихся специализированным книжным фондом, рекомендуется предусматривать либо специализированный отдел, либо выделять часть читального зала. Количество мест для читателей с нарушением зрения рекомендуется предусматривать не менее 4 в виде кабин, кабинетов с возможностью размещения секретаря-чтеца и тифлотехнических средств (цифровые проигрыватели, электронные лупы, принтеры со шрифтом Брайля, компьютеры и плееры для слепых с аудиопрограммами и т.п.).

В зоне обслуживания слепых и слабовидящих читательские места и специальные стеллажи с литературой со шрифтом Брайля рекомендуется оборудовать добавочным освещением. При размещении читательских мест и фондов открытого доступа для читателей, обладающих слабым зрением, необходимо предусматривать высокий уровень естественной освещенности этой читательской зоны (КЕО - 2,5 %), а уровень освещения читательского стола не менее 1000 лк.

(Измененная редакция. Изм. № 1)

8.11 Специальную зону для работы инвалидов в читальных залах рекомендуется оборудовать следующим образом: четыре читательских места за одноместными столами пригодны для работы инвалидов на колясках, специальные стеллажи с наклонными полками для размещения как обычной литературы, так и книг с шрифтом Брайля (не менее двух стеллажей вблизи читательских мест). В зоне должны находиться несколько банкеток, кресел или стульев. Желательно наличие одного каталожного столика с каталогом, выполненным шрифтом Брайля (рисунок Б.26).

Рекомендуется принимать оптимальные габариты площади поверхности стола читателя с недостатками зрения для работы с секретарем-чтецом - 1,5×0,7 м в кабинах, полукабинах или кабинетах.

(Измененная редакция. Изм. № 1)

8.12 Необходимо предусмотреть отдельное помещение для функционального подразделения, где используются аудиовизуальные средства обслуживания. Для читателей с нарушением слуха помещения аудиовизуального обслуживания и помещения для групповой работы - кружковая и аудитория - должны быть изолированы планировочно, а также техническими средствами.

8.13 В помещении аудиовизуального обслуживания можно предусматривать зону для организации аутотренинга, предназначенного для психологической разгрузки, прослушивания музыки, а также читательские места для лиц с недостатками зрения.

8.14 Помещение должно быть радиофицировано, оборудовано аппаратурой для прослушивания музыки, креслами и, при необходимости, столами. Ряд кресел следует оборудовать специальным устройством для снятия мышечного напряжения с рук для инвалидов с полной потерей зрения.

Музеи и выставки

8.15 Все виды музеев должны быть доступны для всех категорий посетителей, включая инвалидов. Требования по доступности относятся как к планировке участка, так и здания с экспозицией.

8.16 При проектировании музеев следует применять, как правило, общие универсальные пути движения для здоровых и маломобильных посетителей и приспособление для их нужд помещений. В отдельных случаях, когда мемориальные и другие типы музеев невозможно адаптировать для посетителей инвалидов (на креслах-колясках, инвалидов по зрению), следует создавать специальные экспозиционные зоны вне здания или помещения, дающие представление указанным категориям инвалидов о содержании основной экспозиции (решения по варианту «Б»).

Зону постоянной экспозиции рекомендуется создавать с анфиладным или кольцевым маршрутом движения. Тупиковая планировка не желательна.

Пандусы допускается использовать для организации последовательного движения и одновременного осмотра экспозиции.

(Измененная редакция. Изм. № 1)

8.17 Следует обеспечить беспрепятственный доступ всех категорий посетителей в экспозиционную зону участка, которая является продолжением постоянной экспозиции здания под открытым небом: скульптур, архитектурных фрагментов, крупногабаритных экспонатов и т.д.

При наличии резких перепадов рельефа, ценных зеленых насаждений на участке возможно выделение только отдельной зоны, доступной для инвалидов.

8.18 Для посетителей-инвалидов рекомендуется обеспечивать доступность основных функциональных блоков музеев в соответствии с таблицей 8.1 и рисунками Б.27 и Б.28.

Таблица 8.1

Функция

Место

Доступность для инвалидов

Содержание экспонатов:

Показ

Экспозиционные и выставочные залы

Для всех групп

Сбор и хранение

Фондохранилища и реставрационные мастерские

В исключительных случаях

Изучение

Рабочие комнаты

Желательно оборудование специальных комнат

Обслуживание посетителей:

Прием

Вестибюль, кинолекционный зал, кружковые комнаты

Для всех групп

Показ

Экспозиционные и выставочные залы

Для всех групп

Информация

Информационные службы, библиотека

Для всех групп (с использованием специального оборудования)

При невозможности использовать визуальную информацию для инвалидов по зрению в помещениях с особыми требованиями к художественному решению интерьеров, в экспозиционных залах художественных музеев, выставок и т.п. допускается применять иные компенсирующие мероприятия.

(Измененная редакция. Изм. № 1)

8.19 Требования, предъявляемые к зонам постоянной экспозиции (зальным помещениям) музеев, приведены в таблице А.5.

Навесная витрина должна находиться на высоте, доступной для визуального восприятия с кресла-коляски (низ на отметке не более 0,85 м от уровня пола).

(Измененная редакция. Изм. № 1)

8.20 В крупных музеях в уровне вестибюля должен быть предусмотрен медпункт для оказания экстренней помощи посетителям, в том числе маломобильным.

8.21 При необходимости ознакомления с работой реставраторов, с процессом подготовки выставок рекомендуется обеспечить доступность в служебно-реставрационную зону.

В том случае, когда невозможно обеспечить доступность реставрационных мастерских, в стене, отделяющей их от коридора, рекомендуется запроектировать смотровое окно. Низ окна не должен быть выше 0,85 м от пола. Освещение коридора не должно создавать бликов на стеклах смотровых окон.

Культурно-просветительские учреждения

8.22 Зоны участка, не занятые обязательным перечнем сооружений, рекомендуется оборудовать разнообразными малыми формами, создающими максимальную функциональную и информативную насыщенность среды: небольшими водными аттракционами, специально оборудованными детскими песочницами и клумбами для занятий любителей садоводства. В спортивную зону участка рекомендуется включать разнообразные игровые площадки развлекательно-оздоровительного характера для активного отдыха инвалидов: площадки для крокета, кеглей, мини-гольфа, метательных игр и т.п. (рисунок Б.29)

(Измененная редакция. Изм. № 1)

8.23 Культурно-просветительские центры, проектируемые с учетом потребностей маломобильных групп населения, могут быть как с обычным составом помещений, предназначенных для смешанных коллективов - вариант «А», так и с дополнительными помещениями, специально оборудованными для инвалидов - вариант «Б». К числу таких помещений относятся: кружковые комнаты для занятий музыкой, танцами, различными ремеслами, а также вспомогательные помещения оздоровительного блока (раздевальные с душевыми и санузлами, медицинский кабинет).

8.24 Удельная площадь помещений кружков и универсальных зон на 1 посетителя при смешанном составе участников занятий рекомендуется принимать на 20 - 50 % выше наибольшего значения, принимаемого для обычных посетителей, но не менее, м2:

В помещениях кружков:

 

хорового и универсальных

2,0 (2,5)*

театрально-драматического, изобразительного искусства, кино-фототехнического, домоводства, оркестрового

3,6 (4,5)*

танцевального, циркового, технического, различных мастерских

7,2 (9)*

В универсальных помещениях:

 

гостиной

2,2 (2,7)*

зале

2,0 (2,6)*

рекреациях

3,8 (4,8)*

______________

* В скобках дано оптимальное значение.

8.25 Требования к проектированию помещений кружков даны в таблице 8.2.

Таблица 8.2

Назначение кружков

Требования к проектированию

1 Музыкальный кружок - танцевальная студия

1.1 Оборудование (полки для хранения нот, книг, наушников и др.) должно располагаться на доступной высоте

1.2 Общее освещение должно быть рассеянным, при возможности включения индивидуального освещения на каждом пюпитре, сетевые розетки для подключения электромузыкальных инструментах не только на стенах, но и в лючках в полу

1.3 Оборудование должно быть легко трансформируемым для возможности организации по центру танцевальной зоны. Рекомендуется устройство небольшой эстрады-подиума

1.4 Танцевальную зону для безопасности рекомендуется устилать съемным мягким покрытием. Размеры студии - не менее 6×6 м

1.5 В блоке с музыкальным кружком рекомендуется размещать мастерскую по настройке и ремонту инструментов, помещения для хранения дисков и аудиокассет

1.6 Помещение для музыкальных занятий должно иметь параметры и оборудование, позволяющие размещение от одного до четырех инвалидов на креслах-колясках. Оно должно иметь естественное освещение, звукоизоляцию и оборудоваться двойными дверями

1.7 Оборудование помещений для занятий музыкой (танцами) должно быть приспособлено к использованию его инвалидами: пристенную нотную доску рекомендуется делать откидной, размещение полок для хранения нот, книг, наушников и т.п. - на доступной высоте; розетки подключения к сети - не только внизу стен, но и в различных зонах пола. Общее освещение в помещении должно быть рассеянным, а кроме того, на каждом пюпитре рекомендуется индивидуальное освещение

1.8 Помещение для занятий музыкой может использоваться как танцевальная студия, для чего рекомендуется оборудовать центральную зону специальными матами для инвалидов с нарушением ОДА без кресел-колясок и небольшой эстрадой с пандусами для обеспечения доступа инвалидов. В общем танцевальном зале для инвалидов может быть оборудована специальная зона

1.9 Помещение для занятий музыкой лучше всего размещать в блоке с также приспособленной для инвалидов комнатой звукозаписи, мастерской по ремонту и настройке инструментов, помещением для хранения аудиокассет, дисков, каталогов

2 Комната звукозаписи

2.1 Комната должна быть рассчитана на 2 - 4 чел. и снабжена картотекой со специальной маркировкой для слепых, повторяющейся на компакт-дисках, аудиокассетах и пластинках

3 Мастерские для различных ремесел

3.1 Мастерские должны быть оборудованы рабочими местами с изменяющейся высотой рабочей поверхности, складирование материалов следует осуществлять в нижних зонах

3.2 Все углы оборудования рекомендуется скруглять, чтобы избежать травматизма

3.3 При мастерской следует предусматривать гардероб с санузлом, а в самой мастерской - мойки для рук, размещенные на доступной высоте и оборудованной специальными сантехприборами

3.4 Рабочая зона должна иметь общее рассеянное и дополнительное индивидуальное освещение

4 Изостудия

4.1 Помещение должно иметь размеры не менее 6,5×6,5 м

4.2 Расстановка оборудования в помещении (желательно трансформируемого) должна обеспечить возможность размещения 1 - 3 инвалидов на креслах-колясках в зонах комфортной видимости модели, находящейся на подиуме

4.3 Необходимо естественное освещение студий

Помещения для занятий кружков в клубном здании с участием инвалидов рекомендуется проектировать не более чем на 10 - 12 человек, в том числе два - три инвалида на креслах-колясках.

(Измененная редакция. Изм. № 1)

8.26 При проектировании универсального зрительного зала, следует учитывать «активные» мероприятия (вечера, клубные встречи по интересам и т.п.) с участием групп инвалидов на кресле-коляске в качестве действующих лиц или зрителей, рекомендуется предусматривать устройство горизонтального пола от наружной кромки сцены (эстрады) в сторону зала на 6 - 12 м для размещения инвалидов-колясочников, а далее - стационарных зрительских мест с уклоном пола согласно требованию комфортной видимости.

(Новая редакция. Изм. № 1)

8.27 В пределах удобной доступности для инвалидов - участников выступлений -желательно предусмотреть следующие помещения: артуборные, гримерную, комнату отдыха, санузлы с душевыми.

8.28 Рекомендуется эстрада типов Э-2 и Э-3 [3], но с увеличением глубины плоского планшета до 9 - 12 м и авансцены - до 2,5 м для возможности участия в программах инвалидов на креслах-колясках. Рекомендуемая высота эстрады - 0,8 м.

Для подъема на сцену, кроме лестниц, должен быть предусмотрен стационарный или приставной пандус шириной не менее 0,9 м с уклоном 8 % и бортиками по бокам. Лестницы и пандусы, ведущие на сцену, должны иметь ограждения с двойными поручнями на высоте 0,7 м и 0,9 м от уровня пола наиболее целесообразно применение лестницы-подъемника.

Для обеспечения комфортных условий инвалидам на креслах-колясках, выступающих с эстрады, рекомендуется устройство трибуны меньшей высоты (рабочая плоскость не выше 0,8 м).

Необходимо также обеспечивать возможность размещения рядом сопровождающих.

(Измененная редакция. Изм. № 1)

8.29 В лекционных и других залах необходимо обеспечивать условия для выступлений инвалидов-колясочников, для чего рекомендуется устройство дополнительной трибуны меньшей высоты.

По крайней мере 5 % общего числа откидных мест в проходах, но не менее одного должны быть специальными местами, расположенными как можно ближе к выходам из зала.

(Измененная редакция. Изм. № 1)

8.30 Наряду с общей системой звукоусиления следует проектировать специальную систему на основе индукционного контура или инфракрасного излучения, которая будет осуществлять передачу аудиосигнала непосредственно к слуховому аппарату, ушному имплантату или к наушникам.

8.31 На путях эвакуации зрителей из зала необходимо устраивать вдоль стены опорные поручни на высоте 0,9 м от уровня пола. За 1,5 м от дверного проема или поворота фактура поверхности поручня должна меняться.

8.32 В непосредственной близости от входа в зал (в фойе) следует предусматривать непроходные зоны отдыха и ожидания для инвалидов. Зона на одного человека - 1,2×1,8 м; общая площадь зоны должна быть рассчитана не менее чем на двух инвалидов на креслах-колясках (рисунок Б.33, таблица А.6).

Не допускается размещение инвалидов на креслах-колясках в зрительных залах на площади существующих проходов и у эвакуационных дверей, не рассчитанных по своим параметрам на их безопасную эвакуацию, рисунок Б.31.

(Измененная редакция. Изм. № 1)

Театры, театры-студии, цирки

8.33 Число мест для инвалидов на креслах-колясках в зрительных залах театров и в клубном зрительном зале рекомендуется принимать по вместимости зала, не менее:

50 - 75

мест в зале

3;

76 - 100

то же

4;

101 - 150

»

5;

151 - 200

»

6;

201 - 300

»

7;

301 - 400

»

8;

свыше 400

»

9.».

(Новая редакция. Изм. № 1)

8.34 Главные входы в театр (цирк, театр-студию) для зрителей следует предусматривать доступными для всех категорий посетителей.

Входы для почетных гостей должны быть доступны для МГН.

8.35 Для инвалидов рекомендуется делать доступными помещения зрительского комплекса: вестибюль, кассовый вестибюль, гардероб, санузлы, фойе, буфеты, коридоры и кулуары перед зрительным залом.

8.36 Требования к расположению и организации зрительских мест для маломобильных посетителей в зрительных залах изложены в таблице А.7 и на рисунках Б.31 и Б.32.

(Измененная редакция. Изм. № 1)

8.37 В театрах-студиях, где инвалиды обучаются и являются артистами, необходимо приспособление для них студийных помещений (классов и репетиционных залов).

8.38 Рекомендуется в передних и по краям задних рядов зрительных залов предусматривать съемные секции мест, для приспособления, при необходимости, для зрителей на креслах-колясках. На стационарных местах, примыкающих к местам размещения инвалидов, рекомендуется оборудовать кресла с опускающимися подлокотниками.

Кинотеатры и киноконцертные залы

8.39 Зрительские помещения - вестибюль с кассовым вестибюлем, гостиные, игровые, буфет, гардероб, уборные, а также услуги, предоставляемые в кинотеатрах посетителям, должны быть доступны для инвалидов.

Помещения залов, фойе и других обслуживающих помещений рекомендуется располагать на одном уровне.

8.40 Требования к размещению зрительских мест для инвалидов, условиям видимости и особенностям эвакуации аналогичны другим зрительным залам.

8.41 Расчетное число зрительских мест для инвалидов рекомендуется принимать не менее 3 % вместимости зала, но не менее двух мест.

Они могут уточняться в процессе проектирования.

(Измененная редакция. Изм. № 1)

8.42 Если зрители во время зрелищного мероприятия остаются в положении сидя при просмотре мероприятия, то линия обзора для зрителя на кресле-коляске должна быть выше голов или между голов над плечами впереди сидящих.

(Измененная редакция. Изм. № 1)

8.43 При наличии поперечного прохода, ширина которого не менее 1,2 м, а также при возможности въезда коляски на его уровень непосредственно из фойе, допускается оборудование мест для инвалидов-колясочников по бокам отрезков рядов, ограничивающих пространство прохода.

Для инвалидов на костылях и престарелых, при уклоне пандусов свыше 5 %, в местах примыкания пандуса к стенам необходимо предусмотреть перила.

(Измененная редакция. Изм. № 1)

8.44 В крупных киноцентрах, премьерных кинотеатрах, киноконцертных залах рекомендуется места, предназначенные для инвалидов, оборудовать наушниками, связанными с внутренней системой перевода фильмов с иностранных языков. Специальные места для хранения наушников рекомендуется предусматривать в подлокотниках, для инвалидов-колясочников - в спинках кресел, впереди сидящих зрителей, а для людей с ослабленным слухом оборудовать зал индукционной системой.

8.45 Если зрители во время зрелищного мероприятия остаются в положении сидя для просмотра мероприятия, линии обзора для зрителей на креслах-колясках проходят поверх голов зрителей или между их головами.

8.46 Если зрители во время мероприятия встают, зрители на инвалидных креслах-колясках должны иметь линии обзора поверх их голов.

9 Культовые, ритуальные и мемориальные здания и сооружения

9.1 При проектировании культовых, мемориальных и ритуальных зданий и сооружений следует обеспечивать здания и сооружения, а также их участки для МГН, а в особо оговоренных случаях с учетом преобладающих видов нарушения здоровья пользователей.

9.2 Требования доступности для всех категорий пользователей рекомендуется учитывать в следующих видах зданий, сооружений и комплексов:

здания и сооружения для совершения богослужений;

монастыри;

здания, сооружения и комплексы мемориального назначения- монументы, пантеоны;

здания и сооружения для совершения гражданских обрядов - загсы, Дворцы бракосочетаний, регистрации новорожденных, обрядовые (ритуальные) залы;

здания, сооружения и комплексы похоронного назначения - кладбища, Дома траура, залы прощания, крематории, мавзолеи;

здания и сооружения обслуживания, сопутствующего обрядовому действию.

Ширина (фронт) подхода к месту поклонения - не менее 0,9 м.

(Измененная редакция. Изм. № 1)

Участки

9.3 Проектирование участков культовых зданий, сооружений и комплексов, а также мест погребения на них рекомендуется осуществлять по требованиям положений СП 136.13330, с учетом конфессиональных, технологических и технических требований организаций-заказчиков и [2], а также действующих санитарно-гигиенических и экологических нормативных документов.

9.4 На участках храмов и монастырей следует предусматривать не менее одной зоны отдыха для лиц с нарушениями здоровья.

У зданий культовых, где предусматривается снятие обуви, необходимо устройство в составе входного узла места для хранения обуви, защищенного от осадков.

9.5 Около мемориалов, не имеющих обитаемых пространств, чаш для раздачи святой воды, иных используемых посетителями сооружений на участке культового здания или сооружения следует предусматривать места для инвалидов на креслах-колясках, непосредственно связанные с путями движения на участке, а также зону ожидания в непосредственной близости от них.

9.6 В зоны движения религиозных процессий и путей подъезда кортежей не должны попадать полосы движения, предназначенные для инвалидов и других маломобильных групп населения, а также места отдыха и ожидания.

9.7 На территориях кладбищ должен быть обеспечен доступ маломобильным группам населения:

к участкам погребений, к колумбариям всех видов;

к зданиям администрации, торговли и бытовым зданиям для посетителей, к общественным туалетам;

к водоразборным устройствам и чашам для полива;

к выставочным участкам;

мемориальным объектам общественного назначения;

к склепам, мавзолеям и пантеонам;

к культовым зданиям и сооружениям;

к крематориям, траурным и поминальным объектам.

9.8. Дороги на участках кладбищ, предназначенные для движения инвалидов на личном транспорте должны заканчиваться у каждого участка стоянкой для личного транспорта инвалидов.

9.9 На путях движения по кладбищам следует, не реже чем через 100 м, предусматривать места отдыха.

9.10 Места отдыха следует предусматривать также около братских могил, коллективных погребений, мест общественного поклонения, открытых колумбариев.

Культовые здания и сооружения

9.11 Архитектурная среда зданий, сооружений и комплексов культового назначения, а также мемориальные объекты, должны удовлетворять требованиям доступности для маломобильных посетителей и конфессиональным требованиям, в части мест размещения и оборудования мест поклонения и богослужений.

9.12 К культовым зданиям и сооружениям, среда которых должна быть доступна для маломобильных лиц относятся:

храмы и другие здания для совершения богослужений;

братские корпуса монастырей;

монастырские и приходские школы;

монастырские больницы;

общественные столовые при храмах и монастырях;

часовни;

сооружения на участках храмов и монастырей предназначенные для посещения (например, для раздачи святой воды);

усыпальницы;

временные сооружения на участках для освящения.

9.13 При устройстве в культовых зданиях и сооружениях, а также на их участках, места омовения следует не менее одного места оборудовать для маломобильных лиц. При этом рекомендуется обеспечивать требования доступности к объектам соответствующего назначения, сантехническому оборудованию и мебели.

В исповедальных следует предусмотреть не менее одного места для исповеди инвалидов и маломобильных лиц с учетом пользования средствами реабилитации.

В зоне для богослужений следует выделять места для инвалидов на креслах-колясках.

В культовых зданиях при лечебных заведениях и специализированных интернатах - необходимо устройство мест для богослужения и иных зон здания со встроенными техническими средствами реабилитации и трансляции богослужений.

9.14 Следует исключить возможность самопроизвольного сдвига или падения (в том числе от ветра) сосудов, подсвечников, лампад.

9.15 Освещенность путей движения должна быть не ниже 20 лк при лампах накаливания и 40 лк - при люминесцентных лампах.

9.16 Требования к объектам культового назначения приведены в таблице А.8, а также в [2].

Мемориальные здания и сооружения

9.17 В мемориальных зданиях и сооружениях, к которым относятся монументы, мемориальные павильоны - пантеоны, часовни, мемориальные музеи, следует руководствоваться требованиям СП 59.13330 и СП 136.13330 в части:

устройства входных узлов;

путей движения по зонам, предназначенным для посетителей;

подходов к местам отдыха и дополнительного обслуживания;

применения информационных систем, устройств и средств.

Требования к монументам рекомендуется принимать по таблице А.8.

9.18 Пути движения маломобильных посетителей в мемориальных залах и пространствах рекомендуется устраивать доступными.

9.19 В пространствах и залах мемориальных зданий и сооружений, предусматривающих длительное пребывание посетителей, следует предусматривать места отдыха и соответствующим образом оборудованные места участников ритуалов для маломобильных посетителей.

9.20 Не рекомендуется применять информационные средства, доступные для инвалидов, но создающие помехи световой и звуковой архитектуре мемориала.

10 Здания объектов по обслуживанию общества и государства

10.1 Рекомендуется соблюдать требования доступности в здания массовых учреждений и предприятий, содержащие в своем составе операционно-кассовые залы и предназначенные для обслуживания инвалидов и других маломобильных групп населения. К ним относятся банковские (кредитно-финансовые) учреждения и предприятия почтовой связи.

Во всех зданиях, доступных для маломобильных посетителей, рекомендуется предусматривать установку системы организованного приема посетителей, состоящую из: аппарата, выдающего талоны с указанием очередности приема; световых табло над дверями соответствующих кабинетов и окошек, указывающего номер очередного посетителя.

Для удобства маломобильных посетителей следует предусматривать также специализированные места индивидуального автотранспорта на автостоянках (временных парковках), места отдыха на участках учреждений и предприятий, санитарные узлы, оборудование которых должно соответствовать требованиям СП 59.13330 и СП 136.13330.

В вестибюлях зданий административного назначения рекомендуется предусматривать зону обслуживающих автоматов (телефонов, таксофонов, продаж и т.п.) и резервную площадь для киосков.

Стойка информации в вестибюлях и в зонах специализированного обслуживания инвалидов должна быть хорошо видимой со стороны входа и легко различаться слабовидящими посетителями.

В зданиях учреждений и предприятий, содержащих в своем составе операционно-кассовые залы, предназначенные для обслуживания посетителей, необходимо соблюдать требования беспрепятственной доступности МГН.

(Измененная редакция. Изм. № 1)

Банковские учреждения

10.2 Доступность для маломобильных клиентов (обслуживаемых посетителей) рекомендуется обеспечивать во всех зонах и помещениях зданий следующих видов:

здания (помещения) отделений банков, обслуживающих физических лиц;

здания (помещения) филиалов отделений;

помещения обособленных подразделений (дополнительные офисы, операционные кассы, пункты обмена валюты).

(Измененная редакция. Изм. № 1)

10.3 Учитывая, что высота ограждения участка должна быть 2,5 м, его объемно-пространственное и конструктивное решение должно соответствовать требованиям информативности и удобства для посетителей, изложенным в СП 136.13330.

10.4 Из каждых пяти мест на открытой автостоянке для клиентов банка (на каждое операционное место в зале) желательно приспособить одно место для инвалидов-пользователей. Общее количество специализированных мест при этом определяется заданием на проектирование.

10.5 Входы, в том числе обособленные входы в бюро пропусков и зал самообслуживания, рекомендуется проектировать универсальными (т.е. учитывающими использование всеми категориями пользователей).

10.6 К помещениям банковских учреждений, в которые допуск клиентов не ограничен по технологическим требованиям) рекомендуется относить:

кассовый блок (кассовый зал и депозитарий) коммерческих банков;

операционный блок (операционный зал и кассы) банков, обслуживающих физических лиц;

вспомогательные и обслуживающие помещения (комнаты переговоров с клиентами и оформления кредита, вестибюль, аван-вестибюль, бюро пропусков).

Кроме операционно-кассового зала в зону посетительской доступности предприятий рекомендуется включать:

вход с тамбуром (универсального типа - для всех, групп посетителей);

переговорный пункт (с зонами кабин междугородних телефонов, в том числе автоматов, и ожидания);

пункт обмена валюты и киоски продаж (при наличии).

(Измененная редакция. Изм. № 1)

10.7 Требования к основным помещениям обслуживания для данной группы учреждений (операционным, кассовым, операционно-кассовым залам и т.п.) приведены в таблице А.9.

10.8 Требования к проектированию офисных помещений, а также к помещениям оформления кредита и комнатам переговоров с клиентами - аналогичны требованиям к учреждениям управления.

10.9 Площади вестибюля (включая доконтрольную зону), гардероба и камеры хранения ручной клади коммерческих банков следует определять, исходя из численности единовременно находящихся в здании клиентов с обязательным учетом возможного их сопровождения (инвалидов и маломобильных посетителей). Процент специфических пользователей от общего числа клиентов определяется заданием на проектирование.

При проектировании бюро пропусков автономной группой помещений, зона ожидания должна включать в расчете на каждое рабочее место не менее двух стационарных мест сидения (возможно откидных) и резервную площадку для возможного размещения кресла-коляски (вне коммуникационной зоны).

При вестибюле банка рекомендуется предусматривать универсальную кабинку для клиентов МГН.

10.10 При наличии специальной операционной кассы (вариант «Б») рекомендуется увеличивать размеры зоны ожидания из расчета (м2): 8,0 + k×8,0, где k - коэффициент, учитывающий количество единовременно обслуживаемого специального контингента (по заданию на проектирование).

Зоны ожидания клиентов желательно оборудовать общей стационарной индукционной системой, а специализированные, операционные - оборудовать узконаправленными (портативными) индукционными системами.

Предприятия почтовой связи

10.11 Доступность зданий для массового обслуживания посетителей, в том числе инвалидов и других маломобильных групп, рекомендуется обеспечивать в:

почтамтах (центральных предприятиях города или района, обеспечивающих клиентуре также услуги телеграфной и междугородней телефонной связи);

узлах и отделениях связи, в том числе автоматизированных (городских, районных, сельских).

Кроме зданий перечисленных учреждений, требованиям доступности должны отвечать также операционные залы телефонных узлов (проводной и сотовой связи), осуществляющих обслуживание индивидуальных пользователей. В операционных залах должны быть предусмотрены кабины с установленными специальными средствами связи для инвалидов по слуху (текстовый телефон, факсимильный аппарат, телефон с усилителем звука).

10.12 Требования к проектированию операционных залов приведены в 10.10 и таблице А.9.

10.13 Кроме операционно-кассового зала, в зону посетительской доступности предприятий рекомендуется включать:

вход с тамбуром (универсального типа - для всех групп посетителей);

добарьерную (посетительскую) часть отдела доставки, совмещенную при необходимости с зоной индивидуального хранения подписных изданий и корреспонденции;

переговорный пункт (с зонами кабин междугородних телефонов, в том числе автоматов, и ожидания);

пункт обмена валюты и киоски продаж (при наличии).

10.14 Допускается устройство контролируемого входа посетителей в служебное помещение (начальника предприятия, цеха или участка) при соответствующем обосновании.

10.15 Отдел посылок, совмещенный с отделом продажи посылочной тары, рекомендуется проектировать обособленным от операционного зала и со входом с улицы.

Здания учреждений управления

10.16 Рекомендуется проектировать доступными для инвалидов все виды и типы зданий и помещений учреждений и организаций, связанных с приемом (обслуживанием) населения и размещаемых в зданиях с кабинетно-офисной структурой. К ним относятся:

административные организации - комитеты, управления, департаменты и их подразделения, в том числе органы социальной защиты населения, управления защиты прав потребителя, а также префектуры, муниципалитеты и т.п.;

судебно-правовые учреждения - юридические бюро и консультации, адвокатские коллегии, нотариальные конторы, страховые фирмы и фонды;

коммунальные (службы (ГУИС, управляющие компании и т.д.);

налоговые инспекции и управления и отделы виз и регистрации (УФМС);

организации по трудоустройству - федеральные службы, управления и центры занятости, агентства по трудоустройству;

многофункциональные центры государственных услуг.

(Измененная редакция. Изм. № 1)

10.17 Общими требованиями к доступности основных групп помещений, где происходит прием маломобильных посетителей, являются:

предпочтительное размещение их в уровне входа;

обязательное наличие справочно-информационной службы; возможное совмещение справочно-информационной службы и кабинета дежурного приема (вариант «Б»);

при наличии помещений коллективного использования (конференц-залов, залов совещаний и т.п.) желательно их размещение не выше второго уровня (этажа).

В приспосабливаемых зданиях учреждений, где осуществляется прием населения, допускается выделение части помещений, зон или мест для специализированного обслуживания маломобильных категорий посетителей с учетом возможного их сопровождения, (в том числе инвалидов на креслах-колясках, по зрению), по варианту «Б».

10.18 Зона (помещение) справочно-информационной службы следует размещать в непосредственной и удобной близости от входа в здание. При ее островном размещении в вестибюле, рекомендуется предусматривать периметральную зону (полосу) безопасности шириной не менее 1,5 м, отделяющую от основного пути движения.

10.19 Кабинет дежурного приема размещается в уровне входа с непосредственным примыканием к вестибюлю совместно с зоной отдыха и ожидания. Рекомендуется выделение объекта архитектурно-дизайнерскими средствами, облегчающими его поиск. Кабинет оснащается информационными средствами, гарантирующими полный объем информации о видах и форме услуг, режиме работы и размещении мест обслуживания. Следует также оснастить кабинет специальными средствами для общения с посетителями с частичной или полной потерей слуха и посетителями с частичной или полной потерей зрения.

10.20 Помещения зданий администраций и управлений: приемные, залы заседаний, конференц-залы, вестибюли и т.п. следует оборудовать индукционной системой.

Здания и помещения органов социальной защиты населения

10.21 В зданиях органов социальной защиты кроме помещений общего назначения, рекомендуется обеспечивать доступность для маломобильных посетителей в следующие помещения:

кабинет справочно-информационной службы;

кабинеты начальников (кабинет дежурного приема);

кабинеты сотрудников, ведущих прием посетителей в отделах выплат и социально-бытового обслуживания;

медицинский кабинет (при наличии);

кабинет юриста (при наличии);

в зданиях ПФР помещения для индивидуальной работы с клиентами. Оборудование помещений клиентских служб отображено на рисунках Б.34 и Б.35.

Здания органов социальной защиты должны быть обеспечены системами вывода оперативной информации (табло с бегущей строкой, плазменные экраны), визуальной информацией повышенной четкости с дублированием ее тактильной, системами звукового оповещения.

(Измененная редакция. Изм. № 1)

Здания и помещения судебно-правовых учреждений

10.22 В группе судебных, юридических учреждений и прокуратур, требования доступности распространяются, главным образом, на юридические консультации и нотариальные конторы (как учреждения открытого доступа) и залы заседания в судах (не менее одного).

Минимальный размер площади помещения (кабинета или кабины) для индивидуального приема (на одно рабочее место) рекомендуется принимать 12 м2.

10.23 Здания судов и прокуратур целесообразно дополнительно оборудовать индукционными системами для слабослышащих, соблюдая общие рекомендательные требования СП 59.13330 и СП 136.13330.

Здания и помещения коммунальных служб

10.24 Основными видами организаций, осуществляющими управление, эксплуатацию и ремонт жилого фонда, а также являющимися объектами возможного посещения маломобильными категориями обслуживаемых жителей являются: коммунальные службы, службы энерго-, газообеспечения, телефонной, радиотелефонной (сотовой) и кабельной связи частного обслуживания. Специфической особенностью помещений и зданий данных учреждений является наличие помещений коллективного приема (т.е. возможного единовременного индивидуального обслуживания на нескольких рабочих местах).

10.25 При наличии операционных залов в зданиях коммунальных служб, а также налоговых инспекций, учреждений страхования и трудоустройства, муниципалитетах, префектурах, требования к ним принимаются в соответствии с разделом 10.

10.26 В случае продольного (вдоль светового фронта) решения блока помещений, состоящего из двух кабинетов, к примеру, руководителей учреждения, разделенных общей приемной, желательно:

симметричное от входа размещение дверей смежных помещений (т.е. прямолинейность сквозного прохода в кабинеты);

отсутствие вспомогательного оборудования и мебели в зоне коммуникационного пути.

10.27 В помещениях приема на несколько мест обслуживания рекомендуется делать доступными для маломобильных посетителей:

одно из мест обслуживания;

несколько мест обслуживания, скомпонованных в общую зону;

целиком посетительскую зону помещения (все места обслуживания).

11 Здания и помещения временного пребывания

11.1 Комнаты длительного отдыха пассажиров, комнаты матери и ребенка, в привокзальных гостиницах следует размещать изолированно от основных потоков пассажиров.

В гостиницах, комнатах отдыха для пассажиров следует предусматривать не менее 5 % номеров (но не менее одного) универсальных для всех категорий инвалидов.

11.2 Гостевая автопарковка у зданий гостиниц, мотелей и т.п. с размеченными местами для автомобилей инвалидов должна размещаться и оформляться в соответствии с требованиями СП 59.13330. От стоянки автомобиля до стойки администратора через главный вход в здание гостиницы должен быть предусмотрен безопасный путь движения для МГН. Наличие на пути движения препятствий не допускается.

Для зданий с несколькими входами должна быть предусмотрена информация о главном и других доступных входах, воспринимаемая с автостоянки.

11.3 Стойка администратора или ее секция должна быть запроектирована с учетом доступности для гостей на креслах-колясках, с нарушениями слуха и зрения.

В группе телефонов общего пользования один должен быть доступен для пользователя на кресле-коляске и один должен быть оснащен для пользования людьми с нарушением слуха. Эти аппараты должны быть отмечены соответствующими символами, как и место у стойки администратора.

11.4 В номерах, оборудованных для МГН, не должно быть порогов. Допускается иметь порог высотой 0,015 - 0,025 м.

Планировка номера должна предусматривать, по крайней мере, одно место для полного разворота и изменения направления движения инвалида на кресле-коляске (рисунок Б.38).

Пространство для пересадки инвалида с кресла-коляски (например, на кровать, сиденье у стола, унитаз и т.д.) рекомендуется предусматривать шириной не менее 0,9 м.

11.5 Расположение мебели не должно препятствовать доступу гостя на кресле-коляске к окнам, шторам, а также к панели управления, которая должна располагаться на высоте 1,2 м от уровня пола.

Номера следует оборудовать мебелью простой в эксплуатации. Фурнитура должна быть рассчитана на «зацепление» пальцем, а не на захват рукой.

Прикроватные тумбочки, столики должны иметь пространство для ног высотой от пола не менее 0,23 м и глубиной не менее 0,3 м. Другие столы должны иметь свободное пространство для коленей под столешницей высотой не менее 0,75 м и глубиной не менее 0,35 м.

Следует применять кровати высотой 0,45 - 0,50 м от пола с каркасом, имеющим свободное пространство для ног высотой не менее 0,1 м.

11.6 Номер рекомендуется оборудовать радиотелефоном со съемной трубкой или со шнуром длиной 6,0 м. Он должен располагаться в пределах досягаемости с кровати. Телефон должен быть совместим со слуховым аппаратом и быть снабжен световым индикатором поступления сообщения. В целях безопасности рекомендуется предусматривать место для установки переносной трубки телефона в санузле в пределах досягаемости с унитаза.

Следует применять телевизоры, снабженные декодерами субтитров, и радиочасы, имеющие широкие дисплеи с высокой контрастностью.

11.7 При наличии в гостинице интернет-кафе, оно должно быть доступно всем категориям МГН и предоставлять компьютерные услуги, доступные всем посетителям.

В интернет-кафе должны быть стойки информации и касс высотой 0,85 м и шириной 1,0 м; автоматические камеры хранения на высоте не ниже 0,45 м и не выше 1,2 м; компьютерные столы высотой 0,75 - 0,85 м (некоторые могут иметь регулируемую высоту); сиденья высотой 0,45 - 0,5 м, в том числе с регулируемыми высотой и спинкой.

Часть компьютеров должна быть оснащена: программой чтения текста для слепых, увеличением изображения, программой распознания речи для перевода в текст, адаптированной клавиатурой, адаптированной компьютерной мышью.

Приложение А

(рекомендуемое)

Рекомендации по проектированию

(Измененная редакция. Изм. № 1)

Таблица А.1 - Рекомендации по проектированию зданий учреждений образования

(Измененная редакция. Изм. № 1)

Объект

Требования по критериям

доступности

безопасности

информативности

комфортности

1 Входы, общее коммуникационно-рекреационное пространство здания

1.1 Подъем на площадку крыльца в учреждениях общего и начального профессионального образования - по пандусу, в учреждениях среднего и высшего профессионального образования, в центрах переквалификации - по пандусу или с применением специального подъемника

1.2 Наличие не менее одного лифта для учащихся, передвигающихся на инвалидном кресле, и с нарушениями сердечнососудистой и легочной системы

1.3 Если ширина коридора менее 1,8 м, рекомендуется предусматривать через каждые 10 - 15 м длины коридора, но не менее одного на коридор, карман глубиной 1,8 м, длиной - 3,0 м

1.1 Лифт для учащихся-инвалидов, передвигающихся на инвалидном кресле, в учреждениях общего образования, а также начального и среднего профессионального образования должен предусматриваться в специальном лифтовом холле с ограниченным доступом в него остальных учащихся

1.1 В вестибюлях учреждений образования следует предусматривать электронные часы и календарь

1.1 Поручни на ограждениях лестниц следует предусматривать на высоте 0,5 м (в блоке начальных классов); 0,7 и 0,9 м. Диаметр поручня - 0,35 - 0,45 м для начальных классов и 0,45 - 0,55 м - для остального контингента учащихся

1.2 Если лестницы крыльца проектируются без ограждения (с двух- или трехсторонним спуском), их следует оборудовать поручнями, крепящимися к фасадной поверхности или на отдельных опорах

1.3 Следует предусматривать зоны отдыха для учащихся-инвалидов: 3 - 4 места в каждой рекреации, 5 - 6 мест в гардеробе верхней одежды

1.4 Зоны переодевания учащихся-инвалидов в гардеробе должны размещаться в стороне от транзитных проходов и иметь специальное оборудование: поручни, скамьи шириной не менее 0,4 м, полки и крючки для сумок и одежды, места для сидения и переодевания. Вблизи следует предусматривать индивидуальные камеры хранения личных вещей и учебников

1.5 При входной группе помещений следует предусматривать телефоны-автоматы, другие устройства внешней и внутренней двусторонней связи.

Телефоны-автоматы следует крепить на высоте (до номеронабирателя) не более 0.85 м

2 Основные учебные помещения

2.1 Все ученические места для учащихся-инвалидов следует оборудовать одноместными столами

2.2 Места для учащихся с нарушением зрения должны иметь свободный доступ с двух сторон

2.3 В учебных мастерских общеобразовательных учреждений следует предусматривать 3 места но возможному профилю обучения для учащихся-инвалидов с нарушением ОДА

2.4 В мастерских профессиональных учебных заведений для учащихся,

передвигающихся на инвалидном кресле-коляске, ширину свободного прохода, а также расстояние между станками следует принимать не менее 1,6 м

2.1 Стационарное крепление необходимо предусматривать для ученических, рабочих и обеденных столов, стульев, мольбертов, кроватей в спальнях и т.п. для учащихся с нарушением ОДА. Кровати в спальнях и ученические места в опытных лабораториях и практикумах должны оборудоваться опорными поручнями

2.1 Ученические места для учащихся-инвалидов должны размещаться идентично в однотипных учебных помещениях одного учебного учреждения

2.2 Зону специальных ученических мест в учебных помещениях следует выделять из общей площади помещений рельефной фактурой или ковровым покрытием поверхности пола

2.3 В многофункциональных помещениях (группа продленного дня, мастерские с разными видами деятельности, клубные и кружковые помещения и т.п.) следует предусматривать информационные указатели размещения функциональных зон по видам деятельности

2.1 В зоне специальных ученических мест для учащихся с нарушением ОДА и слепых следует предусматривать дополнительное пространство для хранения индивидуальных средств реабилитации при передвижении, личных индивидуальных средств компенсации, личных вещей

2.2 Ученические места для учащихся с нарушением слуха и зрения должны иметь дополнительное местное освещение рабочего места. В учебном помещении эти места следует располагать в первых рядах и у окна

2.3 Ученические места для учащихся с нарушением слуха (слабослышащих) должны иметь возможность оборудоваться электроакустическими приборами, индивидуальными наушниками, а в лекционных аудиториях учреждений профессионального образования - еще и сурдотехнической аппаратурой

2.4 Вдоль свободных участков стен в доступной зоне учебного помещения рекомендуется предусматривать опорный поручень на высоте 0,5 м и 0,7 м - в помещениях начальных классов; 0,7 м и 0,9 м - остального контингента учащихся

3 Залы для физкультурных занятий, бассейны, раздевальные, душевые

3.1 На площади спортивного зала или в отдельном помещении следует предусмотреть пространство (свободное или со специальными тренажерами) для занятий учащихся-инвалидов, не имеющих противопоказаний к физкультурным занятиям

3.1 Раздевальная, душевая и туалет при физкультурном зале для учащихся - инвалидов с нарушениями ОДА должны предусматриваться отдельным комплексом помещений с соответствующим оборудованием

3.2 В специальной зоне физкультурного зала или в специальном помещении для занятий учащихся-инвалидов общеобразовательных учреждений следует предусматривать «мягкие стены» для защиты от травм

3.1 В образовательных учреждениях в раздевальных физкультурного зала и бассейна для учащихся-инвалидов следует предусматривать изолированную раздевальную с душем и туалетом

Таблица А.2 - Рекомендации по проектированию формирования доступной среды лечебно-профилактических учреждений

(Измененная редакция. Изм. № 1)

Объект

Требования по критериям

доступности

безопасности

информативности

комфортности

1 Участки

1.1 Приемные отделения, травмпункты и поликлиники следует располагать приближенно к главному входу на участок

1.1 Выбор растений для садово-парковой зоны должен учитывать сочетание характера лечебного воздействия растения (аромотерапия и др.)

2 Входы в здания

2.1 Травмпункт, инфекционный кабинет и приемное отделение должны иметь автономные наружные входы, доступные для инвалидов

2.2 Наружный тамбур одного из боксов инфекционного отделения должен быть запроектирован для доступа инвалидов

2.1 Подъезд санитарного транспорта к приемному отделению должен быть отделен от пешеходного пути

2.1 Входы для пациентов и посетителей должны иметь визуальную, тактильную, радио- и акустическую информацию с указанием групп помещений, в которые можно попасть через этот вход

3 Коммуникации внутри здания:

3.1 Открывание дверей целесообразно предусматривать внутрь врачебных и лечебных кабинетов

3.1 Лифтовые холлы должны иметь различное декоративное поэтажное или цветовое оформление, облегчающее пациенту ориентацию

3.1 Больничные лифты, предназначенные для пациентов, должны иметь поручни и откидные сиденья, необходимые по ГОСТ информационные устройства, а также информационный текстовой дисплей для связи с диспетчером

4 Вестибюль

4.1 Справочная должна размещаться рядом с входом и оснащаться визуальными средствами информации и средствами радиоинформации

4.2 На пути движения больного рекомендуется устройство пристенных поручней, в том числе в коридорах палатных отделений

5 Лечебно-диагностические помещения

5.1 Не менее, чем один из отсеков зала лечебных и грязевых ванн, включая раздевальную при нем, должен быть приспособлен для инвалида на кресле-коляске

5.2 Травмпункт должен размещаться на первом этаже

5.3 Ширина коридоров, используемых для ожидания, при двустороннем расположении кабинетов должна быть не менее 3,2 м, при одностороннем - не менее 2,8 м

5.1 В залах лечебной физкультуры в качестве ограждений, направляющих и ограничивающих движение, следует применять приспособления и материалы, смягчающие удар

5.1 Функциональные зоны отделения необходимо выделять планировочно и обозначать визуальными, тактильными и акустическими средствами

5.2 Для ориентации слабовидящих и слабослышащих в зонах ожидания процедур и приема у врачей следует применять шумопоглощающие материалы

5.1 В зонах ожидания и отдыха должны быть использованы приемы оформления интерьера, которые оказывают успокаивающее воздействие на пациентов

5.2 Ванны для подводного вытяжения должны быть оборудованы подъемниками для перемещения инвалида из ванны в горизонтальном положении

Таблица А.3 - Рекомендации по проектированию учебно-тренировочных физкультурно-спортивных сооружений и площадок, используемых инвалидами

(Измененная редакция. Изм. № 1)

Объект

Требования по критериям

доступности

безопасности

информативности

комфортности

1 Сооружения для легкой атлетики

1.1 Для инвалидов должны быть доступны: дорожки для бега по кругу и прямой, места для толкания и метания (ядра, диска, копья), места для прыжков в длину и высоту

1.2 Дорожка для бега по прямой на 100 м должна иметь зону старта длиной 5 м и зону финиша длиной 25 м

1.1 Границы плоскостных сооружений должны быть удалены от всякого рода препятствий не менее чем на 3 м

1.2 Полосы ориентации должны иметь ширину не менее 2 м вокруг дорожек для бега или разбега перед прыжком

1.3 Вдоль беговой дорожки со стороны зрительских мест следует предусматривать полосу безопасности шириной не менее 1 м, а за ее пределами пространство шириной не менее 3 м для размещения инвалидов на креслах-колясках

1.4 Дорожка для бега по прямой изолируется от дорожки для бега по кругу

1.5 Перепады рельефа необходимо отмечать повышением или понижением направляющего поручня

1.6 Травмобезопасность обеспечивается устройством оград высотой 1 - 1,2 м из металлических сеток, дерева, живой изгороди; организацией дренажа

1.1 Полоса ориентации по периметру беговой дорожки должна отличаться по материалу от покрытия дорожки для бега (газон-грунт, газон - синтетическое покрытие)

1.2 Для ориентации при прыжках в длину за 4 м от края ямы необходима фактурная полоса

1.3 Для выполнения прыжков в высоту зону разбега выделить фактурной поверхностью

1.4 Планка и стойки для выполнения прыжков в высоту должны быть цветными, контрастными

1.5 Маршрут и зоны для упражнений должны обозначаться при помощи системы информации для незрячих, а также четкими, хорошо различимыми указателями для остальных занимающихся

1.6 Покрытие зон старта и финиша должно быть однородно по материалу, но выделяться по фактуре от покрытия дорожки. Стартовая линия должна быть фактурной

1.7 Повороты дорожек следует обозначать изменением качества и фактуры покрытия

1.1 Повороты беговой дорожки следует обозначать сменой фактуры (цвета покрытия) на расстоянии не менее 2,4 м от начала поворота

1.2 Стандартные виды оборудования следует дополнять специальным оборудованием для инвалидов

1.3 Пешеходные и беговые дорожки должны быть снабжены направляющими поручнями

2 Детские площадки игровые

2.1 Территория площадок в расчете на одного

ребенка-инвалида должна быть не менее 5 - 7 м2 (до 4 лет), 7 - 10 м2 (до 7 лет), 10 - 12 м2 (до 11 лет)

2.1 Игровое оборудование необходимо окрашивать в яркие контрастные цвета поверхностей площадок, правильным выбором покрытий для различных видов деятельности

2.1 На дорожках устанавливаются четкие указатели направления движения к площадке со стационарным игровым оборудованием

2.2 По периметру игровых площадок должны предусматриваться полосы ориентации шириной не менее 1,5 м

2.1 Необходимо разграничивать площадь участка по возрастным группам, выделяя зону для детей дошкольного возраста

2.2 Комплексные площадки для активного досуга детей следует компоновать из зон: физкультурно-игровых устройств, плескательного бассейна с песком, спортивных игр

3 Площадки для физкультурно-спортивных игр

3.1 Вокруг игровых площадок следует устраивать полосы безопасности по длинным сторонам шириной не менее 2 м, по коротким (торцевым) сторонам - не менее 3 м. На теннисных площадках зона безопасности должна быть увеличена по длинным сторонам до 4 м, по коротким - до 6 м

3.1 Площадки следует визуально обособлять от коммуникационных путей и пространств при наличии необходимой информации

3.2 Вокруг площадки для игры наибольшего размера рекомендуется устройство информационных тактильных полос.

Для ориентации занимающихся слепых используются звуковые маяки

4 Залы для физкультурно-оздоровительных и спортивных занятий

4.1 Размеры залов назначаются по наибольшему размеру площадки исходя из предполагаемых видов занятий с учетом площади зон информации и ориентации

4.2 В залах для игры в настольный теннис рекомендуется предусматривать зону размерами не менее 9×4,5 м на один стол

4.3 При расстановке оборудования в тренажерных залах необходимо учитывать проезды для инвалидов на креслах-колясках

4.1 Вокруг игровых площадок и тренажеров в залах следует предусматривать зоны безопасности

4.2 Стены залов должны быть абсолютно гладкими, без уступов

4.3 Все крепежные детали оборудования, регуляторов, электрических выключателей должны устанавливаться заподлицо с поверхностью стен или заглубляться

4.4 Рекомендуется мягкая обивка стен на высоту 3 м в залах для занятий на батуте и на высоту 2 м - в залах для занятий гимнастикой и борьбой

4.1 Для занятий в гимнастических залах инвалидов с дефектами зрения информационные тактильные дорожки рекомендуется устраивать вокруг зон снарядов, зоны для вольных упражнений, зоны для выполнения опорного прыжка

4.2 Объемы залов должны быть минимально необходимыми для облегчения ориентации

4.3 Для указателей, маркировки и других ориентиров в зале рекомендуется сочетание голубого, черного, красного с белым или желтого с черным цветов.

Цветом следует также выделять элементы инвентаря и оборудования (красные мячи, голубые, зеленые силовые тренажеры и т.п.)

4.4 Для занятий людей с полной или частичной потерей зрения рекомендуется использование отдельных площадок и зон, выделенных в многосекционных залах, только при обеспечении их акустической изоляции.

В спортивных залах, используемых слепыми, рекомендуются акустические потолки для облегчения получения звуковой информации

4.1 Для спортивных игр инвалидов на креслах-колясках следует использовать залы с шероховатым, пружинящим напольным покрытием из синтетических материалов.

Следует заглублять поручень, которым оборудуется зал для занятий слепых в нишу в стене

4.2 Для спортивных игр инвалидов с дефектами зрения поверхность пола должна быть идеально ровной и гладкой, границы площадок для игр обозначаются рельефными наклеивающимися полосами

4.3 При выборе материала для пола и стен необходимо компромиссно учитывать потребности различных групп пользователей, включая инвалидов

4.4 У стен зала следует устраивать откидную скамью для отдыха

4.5 Необходимо применение чистых, не зависящих от качества освещения, цветов. Для пола и стен - контрастные цвета (голубой - желтый). Красный, оранжевый цвета следует применять лишь в зонах кратковременного (до 10 мин.) пребывания - у отдельных тренажеров

5 Плавательные бассейны, ванны

5.1 Залы ванн бассейнов, доступных для инвалидов, как правило, должны иметь увеличенные по сравнению со стандартными размеры за счет увеличения ширины обходных дорожек и за счет зон для размещения дополнительного вспомогательного оборудования

5.2 Обходная дорожка по периметру ванн должна быть шириной не менее 2 м в крытых и 2,5 м у открытых ванн

5.3 Дорожка со стороны стартовых тумбочек и выходов из раздевальных должна быть шириной не менее 3,5 м

5.4 Ширина лестницы для спуска в воду должна быть не менее 0,9 м

5.5 Вместо ножных проходных ванн у выхода из раздевальных в зал бассейна

рекомендуется применять коврики, пропитанные антисептиками

5.6 Все пандусы, примененные в зале бассейна, должны иметь уклоны не более 1:20

5.7 Терапевтические ванны следует оборудовать двигающимися подвесными вспомогательными средствами

5.1 Вдоль стен бассейна по периметру обходной дорожки рекомендуется устраивать сплошной поручень на высоте 0,9 м от пола

5.2 Край ванны бассейна по всему периметру должен выделяться полосой, имеющей контрастную окраску по отношению к обходной дорожке

5.3 Для покрытия обходной дорожки следует применять шероховатую плитку. Уклон в сторону трапа 0,01 - 0,02

5.4 Для безопасного спуска в воду инвалидов, чья подвижность целиком зависит от ортопедических устройств, следует предусмотреть установку желоба или специальных подъемников. Желоб может устанавливаться на высоте 0,5 м над уровнем обходной дорожки. Подъемники могут устанавливаться на обходной дорожке, крепиться к потолку или стене.

5.5 Глубина ванн бассейнов должна быть в пределах:

0,6 - 0,85 м, для оздоровительно-терапевтических ванн размером 6×12 м;

0,7 - 1,0 м, для плескательных ванн свободной формы для детей 6 - 12 лет;

0,6 - 1,35 м, для обучения плаванию детей с размером ванн 6×10 м;

0,8 - 1,35 м, для обучения плаванию взрослых с размером ванн 8×16,6 м;

1,2 - 1,45 м, для физкультурно-оздоровительного плавания, с размером ванн 25×11 м

5.1 В ванных бассейнов, где возможны занятия слепых спортсменов, на обходных дорожках должны предусматриваться специальные тактильные полосы для информации и ориентации. Ширина полос ориентации для открытых ванн - не менее 1,2 м. За ней должно быть установлено предупреждающее ограждение с поручнем на высоте не менее 1 м

5.2 Предупредительная цветовая маркировка должна быть на входах и выходах из бассейна, границе борта, центровке трамплинов, стартовых

тумбочек и по краю ступеней в ванну бассейна

5.3 Для получения различимой звуковой информации и снижении уровня шума рекомендуется применять перфорированный или слоистый акустический потолок

5.1 По внешней границе обходной дорожки следует предусматривать устройство стационарных скамей высотой 0,5 м

5.2 На площади обходной дорожки следует предусматривать места для хранения кресел-колясок

5.3 В мелком конце ванны следует устраивать пологую лестницу с размерами, не менее: подступенков - 0,14 м и проступей - 0,3 м. Рекомендуется устраивать лестницу вне габаритов ванны. Лестница должна иметь стационарные поручни

5.4 Для спортивно-оздоровительного плавания рекомендуются ванны без бортов с периливной решеткой в уровне обходной дорожки. В ваннах

терапевтического и двигательно-оздоровительного назначения, как и в детских ваннах, с 3-х сторон устраивается борт высотой 0,65 м. С одной длинной стороны ванны уровень обходной дорожки должен быть понижен для работы врача или инструктора. В месте самостоятельного входа инвалида в воду борт должен находиться в уровне воды

6 Раздевальные, душевые и санузлы

6.1 Размер прохода между скамьями в общих раздевальных должен составлять не менее 1,8 м

6.2 Индивидуальные кабины для переодевания инвалидов, использующих кресла-коляски, следует предусматривать увеличенных размеров: 2×2 м.

Эти кабины должны быть доступны из помещений общих раздевальных, они могут быть и проходными с выходом непосредственно в зал

6.3 Количество душевых кабин для инвалидов следует принимать из расчета - одна душевая сетка на 3-х занимающихся инвалидов, но не менее одной

6.1 Зоны для переодевания инвалидов в общих раздевальных рекомендуется указать специальной маркировкой, а также визуально отделить от остального помещения мебелью и оборудованием

6.1 Необходимо устройство подиума или островной скамьи длиной 3 м, шириной 0,7 - 0,9 м и высотой 0,5 м для возможности переодевания лежа. Допускается устройство расширенной скамьи (шириной не менее 0,6 м) вдоль одной из стен раздевальной

6.2 В помещениях «семейных» раздевальных следует предусматривать самостоятельную душевую и санузел, доступные для инвалидов

7 Комната первой медицинской помощи

7.1 Прямой доступ из ванн и спортзалов бассейнов

7.1 Следует предусматривать санузел, доступный для инвалидов

Таблица А.4 - Рекомендации по проектированию демонстрационных спортивных сооружений (стадионы, спортивно-зрелищные залы)

(Измененная редакция. Изм. № 1)

Объект

Требования по критериям

доступности

безопасности

информативности

комфортности

1 Места для зрителей на трибунах

1.1 Места для инвалидов на стадионах следует предусматривать как на трибунах, так и перед трибунами на уровне спортивного ядра

1.2 Места для инвалидов в спортивно-зрелищных залах следует предусматривать как на трибунах, так и в партере

1.3 Если первый ряд приподнят над хоккейной ареной, необходимо предусматривать пандус

1.4 При расположении мест для инвалидов на горизонтальном участке пола в первом ряду ширина продольного прохода должна быть не менее 1,2 м

1.5 При выделении зоны для инвалидов в последнем ряду зрительских мест ее глубину принимают не менее 1,7 м (два ряда)

1.6(Б): При размещении инвалидов в ложе следует предусмотреть возможность устройства лифта с уровня вестибюля

1.1 Места для инвалидов следует располагать вблизи эвакуационных выходов

1.2 В одном месте не следует располагать более трех инвалидов на креслах-колясках

1.3 На трибунах при уклоне более 5 % не рекомендуется предусматривать места для инвалидов

1.4 Места для инвалидов, располагаемые на уровне арены, располагать только за пределами зон безопасности

1.5 Места для инвалидов в первых рядах у выходов или вблизи эвакуационных люков не должны сужать ширины прохода, необходимой по расчету путей эвакуации

1.6 Места, выделенные для размещения инвалидов на креслах-колясках, следует огораживать барьером высотой не менее 0,9 м

1.1 При расположении в партере на плоском полу мест для инвалидов на креслах-колясках два места следующего за ним ряда не используются, либо делаются съемными

1.2 На трибунах следует предусматривать не менее 3-х мест для подключения индивидуальных слуховых аппаратов, связанных со специальной акустической системой

1.3 Места для инвалидов должны располагаться в зоне прямой видимости светоинформационного табло

1.4 Места для инвалидов должны выделяться знаками доступности, при возможности оснащаться радиоинформаторами

1.1 Места для инвалидов, размещаемые на открытых трибунах, следует защищать от атмосферных осадков

1.2 Наиболее предпочтительные зоны для расположения мест инвалидов в спортивно-зрелищных залах:

в первом ряду,

у продольного прохода в зале на уровне фойе,

в последнем ряду (удаленность от центра арены не более 34 м)

1.3 Не следует располагать места для инвалидов перед первым рядом трибун в залах с хоккейной коробкой с бортами, препятствующими видимости

1.4 Рекомендуется размещение инвалидов в ложе, находящейся в зоне оптимальной видимости и имеющей самостоятельный эвакуационный выход

Таблица А.5 - Рекомендации по проектированию, предъявляемые к зонам постоянной экспозиции (зальным помещениям) музеев

(Измененная редакция. Изм. № 1)

Объект

Требования по критериям

доступности

безопасности

информативности

комфортности

1 Экспозиционная и выставочная зоны музеев и выставок

1.1 Для доступности объемных экспонатов посетителям с дефектами зрения их следует располагать на столе в центре зала

1.2 Для инвалидов в креслах-колясках требуется понижение высоты подвески плоскостных материалов с 1,56 до 1,25 м

1.3 Навесная витрина должна находиться на высоте, доступной для визуального восприятия с кресла-коляски (низ на отметке не более 0,85 м от уровня пола)

1.4 Горизонтальная витрина должна иметь под собой пространство для подъезда инвалида на кресле-коляске

1.1 Следует ограждать выступающие и свободно стоящие предметы

1.2 Для инвалидов с дефектами зрения вокруг экспозиционного стола предусмотреть предупредительную фактурную цветную полосу шириной 0,9 м в уровне пола

1.3 У витрин на высоте 0,8 м необходимо устройство горизонтального поручня со скругленными углами

1.1 В оборудование экспозиций необходимо включать разнообразные аудиовизуальные средства (в том числе видеогиды и интерактивные панели с информацией под экспозицией), облегчающие инвалидам осмотр и усвоение представленного материала

1.2 На несколько экспонатов (3 - 4) монтируется вывод наушников для получения информации об этих предметах

1.1 Экспонаты следует располагать на вращающихся подставках с табличками на шрифте Брайля.

Часть экспонатов желательно представлять в виде слепков, допуская их ощупывание

1.2 Для посетителей с ослабленным зрением этикетки экспонатов рекомендуется выполнять объемными

1.3 При подсветке экспонатов необходимо устройство комбинированного (местного и общего) освещения для компенсации недостатка в нем у инвалидов с дефектами зрения

1.4 В нижней части экспозиции рекомендуется повышать уровень освещенности

Таблица А.6 - Рекомендации по проектированию зрительных и лекционных залов

(Измененная редакция. Изм. № 1)

Объект

Требования по критериям

доступности

безопасности

информативности

комфортности

1 Универсальные клубные залы

1.1 Следует предусматривать устройство горизонтального пола от наружной кромки сцены в сторону зала на 6 - 12 м, в том числе для размещения временных зрительских мест для инвалидов на креслах-колясках

1.2 Стационарные места следует располагать за пределами горизонтального участка пола, при этом первые 2-5 рядов должны иметь глубину ряда не менее 1 м для доступности инвалидов с ограниченной подвижностью, а также с дефектами зрения и слуха

1.1 Места для инвалидов на креслах-колясках должны быть по возможности рассредоточены по залу, чтобы избежать их концентрации в местах эвакуации

1.1 Залы вместимостью более 800 мест рекомендуется дополнительно оснащать телемониторами

1.2 Следует предусматривать дополнительные осветительные мероприятия по усилению визуальной информации: рирпроектор, подсветку места переводчика жестового языка

1.1 Подъем зрительских мест должен соответствовать условиям комфортной видимости с учетом инвалидов на креслах-колясках

1.2 Места для инвалидов должны быть комфортными по антропометрическим характеристикам

1.3(Б) Оптимальная вместимость зала для посетителей с дефектами слуха - 200 - 300 мест с наибольшим удалением последнего ряда от сцены на 10 - 13 м

1.4 Форма зала должна обеспечить оптимальные условия видимости (особенно для компенсации дефекта слухового восприятия)

2 Лекционные залы

2.1 Расстояние между столами следует увеличить до 1,1 м

2.1 Пандусы, ведущие к рядам в ярусных амфитеатрах, должны иметь перила по стенам

2.1 Крышки столов-парт должны быть шириной не менее 0,48 м

2.2 Места для посетителей с дефектами зрения следует оборудовать индивидуальными светильниками

Таблица А.7 - Рекомендации по проектированию расположения и организации зрительских мест для маломобильных посетителей в зрительных залах

(Измененная редакция. Изм. № 1)

Объект

Требования по критериям

доступности

безопасности

информативности

комфортности

1 Зрительные залы

1.1 В реконструируемых залах, где уклон пандусов превышает 5 %, места для зрителей на креслах-колясках следует предусматривать на плоском полу по бокам первого ряда зрительских мест (минимальная ширина прохода перед первым рядом - 1,2 м)

1.2 Места для инвалидов на креслах-колясках возможно размещать в первых рядах театров при наличии зоны вдоль сцены шириной не менее 2,1 м

1.3 В залах, где имеются кроме боковых дополнительные продольные проходы, места для инвалидов допускается размещать по бокам отрезков первого ряда, а также вдоль среднего продольного прохода при условии устройства съемных кресел в соответствии с 5.3

1.4 При наличии поперечного прохода, шириной не менее 1,2 м, а также при возможности въезда кресла-коляски на его уровень непосредственно из фойе, допускается оборудование мест для инвалидов по бокам отрезков рядов, ограничивающих пространство прохода

1.5 Места для кресел-колясок в среднем поперечном проходе вблизи эвакуационных выходов допускается предусматривать при ширине прохода между креслами не менее 2,6 м (без съемных мест) и не менее 2,1 м (с устройством съемных мест)

1.6 При размещении зрителей на костылях (с протезами, с негнущимися в коленях ногами и т.п.) в крайних местах на общих рядах следует обеспечить ширину между рядами не менее 1,1 м

1.7 Размещать места для инвалидов в залах цирков следует размещать вблизи эвакуационных люков в тех рядах, плоскость которых находится на одном уровне с фойе.

В существующих цирках допускается использовать служебные входы для доступа зрителей к местам, расположенным на плоском полу перед первым рядом. В этом случае площадь прохода должна быть увеличена не менее чем до 2,2 м (в местах, где предполагается размещение инвалидов)

1.1 В залах вместимостью 800 зрителей и более места для инвалидов на креслах-колясках следует рассредоточивать в нескольких зонах

1.2 В залах с 1 - 2 выходами рекомендуется места для инвалидов по возможности размещать в непосредственной близости от зон эвакуации

1.3 В одном месте следует располагать не более 3-х инвалидов на креслах-колясках

1.4 Не допускается размещение инвалидов вне зрительских мест у дверей в тех случаях, когда ширина продольного прохода менее 1,8 м, а поперечного - менее 2,1 м.

В случае расположения инвалидов в первых рядах вблизи эвакуационных выходов ширина прохода должна быть увеличена на ширину свободного проезда кресла-коляски

1.5 Поперечную ширину путей эвакуации следует назначать не более 2,5-кратной ширине горизонтальной проекции кресла-коляски

1.6 При возможности расположения инвалидов в отдельных рядах, имеющих самостоятельный путь эвакуации, не

пересекающийся с путями эвакуации остальной части зрителей, дополнительный выход из зала должен иметь ширину не менее 1,8 м

1.7 При уклоне гребенки амфитеатра более 5 % следует предусмотреть преодоление уклона в несколько приемов по пандусу при соблюдении нормируемого уклона, а также устройство перил в местах примыкания пандуса к стенам

1.1 В зрительных залах театров для зрителей с дефектами слуха рекомендуется предусматривать место переводчика жестового языка, оснащенное подсветкой и расположенное в первом ряду

1.1 Места для инвалидов на креслах-колясках следует проектировать с учетом установки(при необходимости) съемных кресел или съемного ряда для обслуживания обычных посетителей с расстоянием между ним и предыдущим рядом не менее 1,1 - 1,2 м

1.2 Необходимо оборудовать съемными секциями первые и последние ряды кинозалов, чтобы варьировать количество мест для инвалидов в зависимости от потребности

1.3 Пандусы и ступени в зале должны иметь подсветку для облегчения ориентации и передвижения инвалидов в затемненном зале

1.4 Для облегчения доступа сопровождающих лиц к инвалидам рекомендуется в местах их размещения предусматривать откидные сиденья и подлокотники кресел

1.5 Разница в превышении луча зрения у инвалида в кресле-коляске и обычного посетителя - 4 - 6 см, что позволяет располагать инвалидов на плоском полу в поперечных проходах при соблюдении комфортной видимости

1.6 В театрах-студиях при активном участии инвалидов в качестве зрителей или действующих лиц рекомендуется устройство сцены-арены с уменьшенной глубиной сценической площадки

Таблица А.8 - Рекомендации по проектированию культовых зданий, сооружений и комплексов

(Измененная редакция. Изм. № 1)

Объект

Требования по критериям

доступности

безопасности

информативности

комфортности

1 Сооружения, не имеющие обитаемых пространств (монументы)

1.1 Удаление мест возложения цветов, камней, амулетов, установки икон, свечей, лампад, раздачи святой воды не должно быть далее 0,6 м от кромки пути движения. Высота - от 0,6 до 1,2 м от уровня пола

1.2 Фронт подхода к месту поклонения - не менее 0,9 м

1.1 Применение подсветок в темное время суток

1.1 Устройство на путях движения лиц с нарушениями здоровья опор (стоек, поручней)

1.2 (Б) Устройство специальных входов и подходов для лиц с нарушением здоровья

2 Здания мест поклонения без проведения богослужений

2.1 Внутренние пространства часовен, иных зданий для поклонений должно обеспечивать маневрирование инвалида на кресле-коляске и одновременное расхождение с ним встречного потока посетителей

2.1 Устройство в составе здания (если это допускают конфессиональные требования) или около здания мест отдыха (ожидания) с местами для инвалидов и маломобильных лиц

3 Здания для богослужений

3.1 Выделение в составе здания зон для инвалидов и маломобильных лиц и путей движения к ним

3.2 Устройство наклонных и вертикальных коммуникационных путей, оборудованных для лиц с нарушениями здоровья, обеспечивающих доступность к помещениям (в том числе для богослужений), находящихся не на уровне участка

3.1 Изменения высоты или формы пола не должны иметь частей, выступающих в кромку полосу движения в здании

3.2 В габарит пути не должны выступать металлические хоругви, посохи с торчащими концами, паникадила, подвесные лампады, иные предметы богослужений

3.1 (А) Применение (в пределах, разрешенных конфессиональными требованиями) разметок на полу и стенах, установка указателей на специальных конструкциях для выделения зон движения лиц с нарушениями здоровья

3.1 (Б) Выделение около

святилища (алтаря, иконостаса и т.д.) мест богослужения для инвалидов и маломобильных лиц,

оборудованных для их длительного пребывания в помещениях для богослужений

3.3 Устройство в исповедальнях не менее одного места для исповеди инвалидов и маломобильных лиц с учетом пользования средствами реабилитации

3.4 В зоне сидения не менее 3 % мест рекомендуется отводить для инвалидов на креслах-колясках (не менее одного)

3.5 На хорах, галереях, доступных для лиц с нарушениями здоровья, рекомендуется устройство мест для них рядом с путями движения

3.6 Расстояние от приподнятых частей пола у мест размещения реликвий, а также от амвона, престолов, сеней, кафедр, чаш, купелей, других элементов интерьера до выступающих по горизонтали в сторону путей движения деталей интерьера не должно быть менее 1,8 м

3.3 Расстояние от аналоя, купели, иных островных элементов до края выступающих элементов интерьеров в габаритах зоны движения должно быть не менее 1,5 м в свету

3.4 Высота приподнятой части пола у реликвий, солеи и амвона не должна быть менее 0,1 м

3.5 Скользкие покрытия полов следует покрывать нескользкими полосами ковровых покрытий или резиновыми ковриками

3.2 Использование звуковых маячков вне времени проведения богослужения, применение во время богослужения световых и тактильных средств информации

3.2 Устройство в зоне для лиц с нарушениями здоровья оборудованного места для переводчика синхронного жестового языка

3.3 Устройство мест для временного хранения технических средств реабилитации при зонах для богослужений

3.4 Выделение мест, оборудованных звукоусиливающей аппаратурой, для лиц с нарушениями слуха

Таблица А.9 - Рекомендации по проектированию зданий кредитно-финансовых учреждений и предприятий связи

(Измененная редакция. Изм. № 1)

Объект

Требования по критериям

доступности

безопасности

информативности

комфортности

1 Кассовые и операционно-кассовые залы банков

1.1 Размещение в уровне входа в здание

1.2(Б) Размещение специализированных касс в непосредственной близости от входа в зал совместно с обособленной зоной ожидания увеличенной площади

1.3(Б) Наличие боксов (помещений) для пересчета денег, оборудованных специальными переговорными устройствами для контакта с персоналом

1.4 При нескольких островных (автономных) рабочих местах операционистов, одно приспосабливается для обслуживания инвалидов

1.5 Обеспечение доступности контрольного шлюза и шлюзового помещения (при наличии)

1.1 Наличие справочно-информационной службы

непосредственно при входе в зал

1.2 Дублирующая функциональная маркировка каждого операционного места обслуживания: пенсионных выплат, почтовых отправлений, подписки на газеты и журналы

1.1(Б) Обязательное наличие переговорных спецустройств в кассах для пенсионных и коммунальных платежей при обеспечении полноценного визуального контакта

2 Депозитарий

2.1 Возможность присутствия сопровождения, наличие переговорных устройств и технических средств слежения

2.1(Б) Увеличение площади специализированных кабин в кладовых хранения индивидуальных ценностей с учетом возможного сопровождения

3 Операционные залы предприятий связи, переговорные пункты

3.1(Б) В почтамтах рекомендуется наличие специализированных кабин в переговорных пунктах

3.1 В отделе пенсионных выплат:

локальное понижение прилавка;

увеличение глубины и ширины

прилавка со стороны клиента

3.2 Наличие переговорных устройств с возможностью двустороннего включения в Отделе пенсионных выплат

3.3 Рекомендуется наличие Отдела сервисной упаковки и доставки в Отделе посылок

Приложение Б

(справочное)

Иллюстрации

Рисунок Б.1 - Примеры расстановки оборудования в помещениях для занятий

Рисунок Б.2 - Варианты планировочных решений классных помещений площадью около 50 м2

Рисунок Б.3 - Варианты планировочных решений классных помещений площадью 60 - 70 м2

Рисунок Б.4 - Примеры расстановки оборудования в аудитории и лабораториях химии и физики

Рисунок Б.5 - Примеры расстановки оборудования в творческих классах

Рисунок Б.6 - Оборудование учебных мест

Рисунок Б.7 - Примеры расстановки оборудования учебных мастерских

Рисунок Б.8 - Примеры расстановки оборудования в кабинетах поликлиник и амбулаторий

Рисунок Б.9 - Примеры расстановки оборудования в помещениях поликлиник и амбулаторий

1 - кушетка; 2 - стол врача; 3 - умывальник; 4 - шкаф; 5 - тумбочка; 6 - медоборудование;
7 - кресло стоматологическое; 8 - стерилизатор; 9 - холодильник; 10 - кресло гинекологическое;
11 - стерилизационное помещение; 12 - место временного хранения коляски

Рисунок Б.10 - Планировочные решения различных медицинских кабинетов с учетом оказания услуг в них инвалидам

Рисунок Б.11 - Реабилитационные помещения медицинского назначения

Рисунок Б.12 - Варианты помещений ванны подводного массажа

Рисунок Б.13 - Зоны обслуживания и зоны проезда в палатах для лежачих больных

Рисунок Б.14 - Оборудование предприятий торговли

Рисунок Б.15 - Оборудование предприятий торговли

Рисунок Б.16 - Оборудование предприятий питания

Рисунок Б.17 - Варианты размещения мест для инвалидов в обеденном зале

Рисунок Б.18 - Примеры размещения мест в залах предприятий общественного питания

Рисунок Б.19 - Примеры размещения мест в залах предприятий общественного питания

Рисунок Б.20 - Оборудование предприятий обслуживания

Рисунок Б.21 - Оборудование вокзалов

Рисунок Б.22 - Места для зрителей

А - лестница; Б - трап; В - сиденье на борту бассейна; Г - горка; Д - минилифт

Рисунок Б.23 - Спуск в плавательный бассейн

Рисунок Б.24 - Душевые кабины и раздевальные

Рисунок Б.25 - Оборудование сауны

Рисунок Б.26 - Оборудование библиотек

Рисунок Б.27 - Планировка и оборудование экспозиционного зала для посетителей с ослабленным зрением

Рисунок Б.28 - Оборудование экспозиционного зала

Рисунок Б.29 - Оборудование спортивно-игровой зоны участка

Рисунок Б.30 - Размещение зрительских мест

Рисунок Б.31 - Места для инвалидов в зрительном зале

Рисунок Б.32 - Места для инвалидов в зрительном зале

Рисунок Б.33 - Клубные помещения. Зоны и места отдыха

 

Рисунок Б.34 - Пример планировки рабочего места специалиста Клиентской службы (кабинка для работы с посетителем)

Схема размещения номера для инвалидов в гостинице

Рисунок Б.35 - Примеры планировки рабочих мест сотрудников, ведущих прием посетителей

Приложение В

(справочное)

Планировочные параметры фотолюминесцентной эвакуационной системы

(Приложение В введено дополнительно. Изм. № 1)

Пути эвакуации от мест обслуживания или постоянного нахождения МГН целесообразно оборудовать фотолюминесцентной эвакуационной системой (далее - ФЭС) в соответствии с требованиями ГОСТ Р 12.2.143.

ФЭС должна обеспечивать непрерывную видимость маршрута движения до эвакуационных выходов.

На путях эвакуации (на полу, на лестницах и пандусах) размещаются направляющие полосы из фотолюминесцентного материала, которые являются неразрывным продолжением путей эвакуации.

Проступи краевых ступеней лестничных маршей должны быть выделены цветом, фактурой или накладкой с фотолюминесцентной контрастной полосой с противоскользящим покрытием желтого цвета. Ширина такой маркировки должна быть в пределах 0,03 - 0,1 м. Расстояние между контрастной полосой и краем проступи - от 0,00 м до 0,04 м.

Проступи промежуточных ступеней лестничных маршей рекомендуется выделять цветом, фактурой или накладкой с фотолюминесцентной контрастной полосой с противоскользящим покрытием черного цвета. Ширина такой маркировки должна быть в пределах 0,03 - 0,1 м. Расстояние между контрастной полосой и краем проступи - от 0,00 м до 0,04 м.

Маркировка должна быть нанесена на всю ширину ступеней и может отступать от поверхности стены или примыкающих конструктивных элементов не более 0,05 м.

В целях безопасности запрещается использовать на ступенях лестничных маршей элементы в виде самоклеящейся пленки (ленты).

Дверные проемы эвакуационных и аварийных выходов обозначаются по контуру элементами из фотолюминесцентного материала.

Эвакуационные знаки рекомендуется изготавливать из фотолюминесцентного материала и устанавливать непосредственно на самой двери или на поверхности стены, прилегающей к двери.

В помещениях, где возможно задымление, а также используемых инвалидами-колясочниками, эвакуационные знаки безопасности размещаются на высоте не более 0,5 м от пола. Знаки безопасности с внешней подсветкой не применяют.

Таблица В.1 - Общие технические требования к элементам ФЭС

Параметр

Единица измерения

Значение

Рабочее значение яркости послесвечения ФЛМ через 10 минут после активации не менее

мкд/м2

105

Рабочее значение яркости послесвечения ФЛМ через 60 минут после активации

мкд/м2

28

Рабочее значение яркости послесвечения ФЛМ через 90 минут после активации

мкд/м2

20

Минимальное рабочее значение яркости послесвечения ФЛМ обеспечивающее требования ФЭС

мкд/м2

5

Максимальное время послесвечения ФЛМ до минимального значения 5 мкд/м2

ч

Не менее 24

Время приведения в работоспособное состояние при освещенности: 60 люкс

мин

2,5

Время приведения в работоспособное состояние при освещенности: 40 люкс

мин

10

Минимальная дальность видения ФЛМ направляющих полос ФЭС

м

10

Минимальная дальность видения ФЛМ эвакуационных знаков ФЭС

м

16

Стойкость ФЛМ УФЛ излучению. Потеря яркости после 1000 ч

%

< 10

Износостойкость ФЛМ

По специальному тесту

Определяется по дополнительной методике

-

Износостойкость антискользящего слоя

По специальному тесту

Определяется по дополнительной методике

-

Тесты антискользящего покрытия

Определяется по дополнительной методике

-

Группа воспламеняемости не ниже

Значение

В1

Группа по распространению пламени

Значение

РП1

Группа по дымообразующей способности

Значение

Д1

Приложение Г

(справочное)

Общий перечень первоочередных мероприятий по обеспечению доступности МГН к образовательному учреждению

(Приложение Г введено дополнительно. Изм. № 1)

Г.1 В перечень первоочередных мероприятий по обеспечению доступности МГН к образовательному учреждению входят:

1) расширение входной площадки, с устройством около входа пандуса и наружной подъемной платформы. Входную группу необходимо устраивать с навесом;

2) устройство лифтов или вертикальных подъемных платформ, обеспечивающих доступ к основным помещениям всех уровней;

3) организация на каждом этаже дополнительно одного санитарного узла с унитазом и умывальником с внутренними параметрами, позволяющими пользование инвалидом-колясочником;

4) наружные эвакуационные выходы из залов многоцелевого назначения (спортивные залы, актовые залы, музыкальных занятий и т.п.) дополнить пандусом;

5) организация зон пожарной безопасности;

6) организация поручней вдоль коммуникационных коридоров и в лестничных клетках;

7) соответствующее требованиям МГН покрытие коммуникационных путей;

8) включение средств визуальной коммуникации и специального освещения.

На рисунках Г.1 - Г.10 даны примеры проектной адаптации планировочных элементов школьных зданий.

Г.2 Примеры планировочных решений по адаптации входных узлов для наиболее распространенных из построенных (на примере г. Санкт-Петербурга) типовых проектов образовательных учреждений приведены в таблице Г.1.

Таблица Г.1 - Примеры проектной адаптации планировочные решения входных узлов требованиям МГН

Наименование типового проекта

Примеры планировочных решений функционально-планировочных элементов входного узла

1 Школа, т.п. 4902/1

2 Школа, т.п. 2ЛГ-02-2

3 Школа, т.п. 2С-02-10

4 Школа, т.п. 222-1-1ЛГ

5 Школа, т.п. 222-1-1ЛГ/82

6 Детский сад, т.п. 2ЛГ-04

7 Детский сад, т.п. 2С-04-3/71 (67)

8 Детский сад, т.п. 212-2-3ЛГ/85

Г.3 Вестибюльная группа помещений

Вестибюльная группа помещений должна размещаться в уровне входного тамбура.

Вестибюльное пространство необходимо разделять на функциональные зоны движения и ожидания (как родителей, так и учащихся). Целесообразно за счет соответствующего цветового решения и фактурного покрытия пола выделять полосу движения МГН.

В гардеробном отсеке (при каждой возрастной группе) необходимо предусматривать не менее одного места для переодевания учащегося, пользующегося инвалидной креслом-коляской. Зоны переодевания учащихся-инвалидов в гардеробе должны размещаться в стороне от транзитных проходов и иметь специальное оборудование; поручни» скамьи» полки и крючки для сумок и одежды» места для сидения и переодевания. Расстояние между вешалками или стеной и вешалкой должно быть не менее 1,5 м, максимальная высота расположения крючков - 1,6 м. Скамья для переодевания инвалида должна иметь ширину не менее 0,6 м, проходы между скамьями - не менее 1,2 м.

Рисунок Г.1 - Параметры зоны переодевания учащихся-инвалидов в гардеробе

Подвесные и настенные указатели» табло» знаки визуальной информации и т.д. должны размещаться с учетом оптимального угла зрения.

Рисунок Г.2 - Зона расположения инвалидных колясок

Г.4 Безопасная зона

Реконструкционные мероприятия зданий образовательных организаций должны соответствовать требованиям [4] и ГОСТ 12.1.004. При этом необходимо учитывать психофизиологические особенности различных категорий учащихся и преподавателей инвалидов» их численность.

Для надежности защиты и спасения МГН, кроме обычных путей эвакуации - лестничных клеток» рекомендуется предусматривать безопасные зоны, в которых можно находиться более продолжительное время до прибытия спасательных служб. Функцию безопасной зоны могут выполнять, кроме помещений с подпором воздуха (находящихся не далее 15 м от лифта, предназначенного для транспортирования пожарной команды), открытые балконы или террасы с участком противопожарной стены, защищающей от прямого распространения огня (рисунок Г.3).

Открытые террасы и балконы, могут рассматриваться как аварийные зоны и предусматриваться для повышения безопасности людей при пожаре (СП 1.13130.2009, пункт 4.2.8). К аварийным выходам относится и выход на балкон, лоджию или террасу с глухим простенком не менее 1,2 м от торца балкона (лоджии, террасы) до оконного проема (остекленной двери) или не менее 1,6 м между остекленными проемами, выходящими на балкон, лоджию или террасу (СП 112.13330.2011, пункт 6.19, перечисление а) пункта 6.20*).

Рисунок Г.3 - Открытая терраса, выполняющая дополнительную функцию
безопасной зоны

Боковой доступ

А - библиотека;
Б, В - раздаточные, столовая

Рисунок Г.4 - Досягаемость в месте получения услуги

Параметры комнаты отдыха - кухни с местом приема пищи должны определяться с учетом удобного пользования инвалидами на кресле-коляске.

Рисунок Г.5 - Комната отдыха - кухня

Рисунок Г.6 - Спортзал

В образовательных учреждениях в раздевальных физкультурного зала и бассейна для учащихся-инвалидов возможна организация изолированной комнаты для переодевания с душем и унитазом.

Рисунок Г.7 - Зал лечебной физкультуры

В зрительных залах места для инвалидов должны располагаться в отдельных рядах, выходящих на самостоятельный путь эвакуации, не пересекающийся с путями эвакуации остальной части зрителей. Места для учащихся-инвалидов с поражением ОДА следует предусматривать на горизонтальных участках пола, в рядах, непосредственно примыкающих к проходам, и в одном уровне с входом в актовый зал. Для учащихся начальных классов, передвигающихся в инвалидных креслах-колясках, места в актовых залах следует предусматривать в первом раду перед сценой (ареной, подиумом и т.п.). Для лиц, передвигающихся в креслах-колясках, следует предусматривать свободные площадки перед эстрадой или в конце зала и дополнительный проем - выезд из зала - шириной не менее 1,6 м.

Рисунок Г.8 - Варианты планировочного решения зрительного зала

Рисунок Г.9 - Библиотека с читальным залом

Рисунок Г.10 - Учебный класс, класс рисунка, класс для музыкальных
занятий

Библиография

[1] Рекомендации по проектированию окружающей среды, зданий и сооружений с учетом потребностей инвалидов и других маломобильных групп населения. Выпуски 12, 13. - М., 1997

[2] МДС 31-10.2004 «Рекомендации по планировке и содержанию зданий, сооружений и комплексов похоронного назначения»

[3] РМД 35-14-2012 «Рекомендуемые для повторного применения проектные решения по обеспечению доступности для инвалидов и других маломобильных групп населения образовательных учреждений Санкт-Петербурга, построенных по типовым проектам в 60 - 80 годах XX века», Правительство Санкт-Петербурга. - СПб, 2012

[4] Федеральный закон от 22 июля 2008 г, № 123-ФЗ «Технический регламент о требованиях пожарной безопасности».

(Измененная редакция. Изм. № 1)

Ключевые слова: требования к архитектурной среде, доступность, маломобильные группы населения, проектирование зданий и сооружений, пути движения, зоны обслуживания, санитарно-гигиенические помещения, эргономические параметры.



© 2013 Ёшкин Кот :-)