Building and structures. Common regulations of accessibility for physically handicapped persons 

Информационная система
«Ёшкин Кот»

XXXecatmenu

ФЕДЕРАЛЬНОЕ АГЕНТСТВО ПО СТРОИТЕЛЬСТВУ
И ЖИЛИЩНО-КОММУНАЛЬНОМУ ХОЗЯЙСТВУ
(ГОССТРОЙ)

СВОД ПРАВИЛ

СП 136.13330.2012

ЗДАНИЯ И СООРУЖЕНИЯ.
ОБЩИЕ ПОЛОЖЕНИЯ ПРОЕКТИРОВАНИЯ
С УЧЕТОМ ДОСТУПНОСТИ
ДЛЯ МАЛОМОБИЛЬНЫХ ГРУПП НАСЕЛЕНИЯ

(С изменением № 1 от 09.09.2016 г.)

Москва 2013

Предисловие

Цели и принципы стандартизации в Российской Федерации установлены Федеральным законом от 27 декабря 2002 г. № 184-ФЗ «О техническом регулировании», а правила разработки сводов правил - постановлением Правительства Российской Федерации от 19 ноября 2008 г. № 858 «О порядке разработки и утверждения сводов правил».

Сведения о своде правил

1 ИСПОЛНИТЕЛЬ - ОАО «Институт общественных зданий» и ОАО «ЦНИИЭП жилища»

2 ВНЕСЕН Техническим комитетом по стандартизации ТК 465 «Строительство»

3 ПОДГОТОВЛЕН к утверждению Управлением градостроительной политики

4 УТВЕРЖДЕН приказом Федерального агентства по строительству и жилищно-коммунальному хозяйству (Госстрой) от 27.12.2012 г. № 112/ГС и введен в действие с 1 июля 2013 г.

5 ЗАРЕГИСТРИРОВАН Федеральным агентством по техническому регулированию и метрологии (Росстандарт)

6 ВВЕДЕН ВПЕРВЫЕ

Информация об изменениях к настоящему своду правил публикуется в ежегодно издаваемом информационном указателе Национальные стандарты, а текст изменений и поправок в ежемесячно издаваемых информационных указателях «Национальные стандарты». В случае пересмотра (замены) или отмены настоящего свода правил соответствующее уведомление будет опубликовано в ежемесячно издаваемом информационном указателе «Национальные стандарты». Соответствующая информация, уведомление и тексты размещаются также в информационной системе общего пользования - на официальном сайте Федерального агентства по техническому регулированию и метрологии в сети Интернет

СОДЕРЖАНИЕ

1 Область применения. 3

2 Нормативные ссылки. 3

3 Термины и определения. 5

4 Общие положения. 8

5 Требования к земельному участку. 10

6 Пути движения в здании. 14

7 Зоны обслуживания. 20

8 Санитарно-бытовые помещения. 22

9 Инженерные устройства и оборудование. 24

10 Информационные и сигнальные устройства, средства и их системы.. 26

10.1 Общие положения. 26

10.2 Визуальные устройства и средства информации. 28

10.3 Акустические устройства и средства информации. 30

10.4 Тактильные средства информации. 31

Приложение А (рекомендуемое). Требования доступности к элементам зданий и участкам.. 33

Приложение Б (справочное). Основные типы наземных тактильно-контрастных указателей, применяемых на коммуникационных путях. 42

Приложение В (справочное). Параметры архитектурной среды, доступной для инвалидов. 43

Приложение Г (справочное). Эргономические параметры.. 76

Приложение Д (справочное). Планировочные параметры фотолюминесцентной эвакуационной системы.. 93

Приложение Е (рекомендуемое). Материалы к расчету уровня пожарной безопасности маломобильных групп населения. 94

 

(Измененная редакция. Изм. № 1)

Введение

Настоящий свод правил разработан в соответствии с Федеральным законом от 30 декабря 2009 г. № 384-ФЗ «Технический регламент о безопасности зданий и сооружений».

Настоящий свод правил разработан в развитие требований СП 59.13330, который следует применять в блоке с другими отраслевыми документами.

В своде правил реализованы требования Федерального закона от 29 декабря 2004 г. № 190-ФЗ «Градостроительный кодекс Российской Федерации», Федерального закона от 24 ноября 1995 г. № 181-ФЗ «О социальной защите инвалидов в Российской Федерации», Федерального закона от 27 декабря 2002 г. № 184-ФЗ «О техническом регулировании», Федерального закона от 30 декабря 2009 г. № 384-ФЗ «Технический регламент о безопасности зданий и сооружений», Федерального закона от 30 марта 1999 г. № 52-ФЗ «О санитарно-эпидемиологическом благополучии населения».

Свод правил разработан авторским коллективом: научный руководитель темы, ответственный исполнитель - канд. архит. А.М. Гарнец, компьютерная графика - канд. техн. наук А.И. Цыганов, при участии инж. Л.В. Сигачевой и инж. Н.И. Чернозубовой (ООО «Институт общественных зданий»); инж. В.Б. Осиновская (ГКУ «Дирекция по ремонту и техническому обслуживанию учреждений ДСЗН г. Москвы); инж. В.Н. Климович (ЗАО «НПФ «Мир красок», г. Санкт-Петербург); инж. А.Б. Ямщиков (ООО «Аурика», г. Тула); при участии канд. архит., проф. А.А. Магая и канд. архит. Н.В. Дубынина (ОАО «ЦНИИЭП жилища»), и Л.П. Абрамовой и С.С. Сохранского (Всероссийское общество слепых).

Изменение № 1 к настоящему своду правил подготовлено авторским коллективом: научный руководитель работы и отв. исполнитель - канд. архит. А.М. Гарнец, канд. техн. наук А.И. Цыганов (ООО «Институт общественных зданий»); Л.П. Абрамова и С.С. Сохранский (Всероссийское общество слепых); инж. В.Б. Осиновская (ДСЗН г. Москвы) при участии доктора техн. наук Г.Ш. Мирфатулаева, доктора техн. наук Ю.М. Глуховенко (Ассоциация МОАБ), инж. М.Ю. Зверев, инж. В.В. Коновалова (НП «Доступная городская среда»).

(Измененная редакция. Изм. № 1)

СП 136.13330.2012

СВОД ПРАВИЛ

ЗДАНИЯ И СООРУЖЕНИЯ.
ОБЩИЕ ПОЛОЖЕНИЯ ПРОЕКТИРОВАНИЯ С УЧЕТОМ ДОСТУПНОСТИ
ДЛЯ МАЛОМОБИЛЬНЫХ ГРУПП НАСЕЛЕНИЯ

Buildings and structures.
Common design regulations of accessibility for physically handicapped persons

Дата введения 2013-07-01

1 Область применения

1.1 В настоящем своде правил установлены общие требования для всех объектов проектирования (в дальнейшем - здания и сооружения), доступных для маломобильных групп населения (далее - МГН), а также их участков в развитие положений СП 59.13330. Развитие или расширение этих требований по функциональному назначению различных зданий и сооружений дано в соответствующих разделах других сводов правил: СП 137.13330, СП 138.13330 и СП 139.13330.

1.2 Свод правил распространяется на доступные для маломобильных групп населения элементы архитектурной среды и системы ими образуемые: элементы участка, части зданий, группы помещений, помещения, функциональные зоны (в том числе пути движения), устройство мест основных процессов жизнедеятельности, обслуживания, приложения труда и отдыха по ГОСТ Р 52880. К этим объектам также относятся конструктивные элементы и малые формы.

Настоящий свод правил не распространяется на те части зданий, сооружений и их участки, куда не предусмотрен доступ инвалидов.

(Измененная редакция. Изм. № 1)

2 Нормативные ссылки

В своде правил использованы ссылки на следующие нормативные документы:

СП 59.13330.2012 «СНиП 35-01-2001 Доступность зданий и сооружений для маломобильных групп населения (с изменением № 1)»

СП 137.13330.2012 «Жилая среда с планировочными элементами, доступными инвалидам. Правила проектирования»

СП 138.13330.2012 «Общественные здания и сооружения, доступные маломобильным группам населения. Правила проектирования»

СП 139.13330.2012 «Здания и помещения с местами труда для инвалидов. Правила проектирования»

ГОСТ Р 12.4.026-2001 СБСТ. Цвета сигнальные, знаки безопасности и разметка сигнальная. Назначение и правила применения. Общие технические требования и характеристики. Методы испытаний

ГОСТ Р 50602-93 Кресла-коляски. Максимальные габаритные размеры

ГОСТ Р 50918-96 Устройство отображения информации по системе шрифта Брайля. Общие технические условия

ГОСТ Р 51136-2008 Стекла защитные многослойные. Общие технические условия

ГОСТ Р 51261-99 Устройства опорные стационарные реабилитационные. Типы и технические требования

ГОСТ Р 51671-2000 Средства связи и информации технические общего пользования, доступные для инвалидов. Классификация. Требования доступности и безопасности

ГОСТ Р 52131-2003 Средства отображения информации знаковые для инвалидов. Технические требования

ГОСТ Р 52875-2007 Указатели тактильные наземные для инвалидов по зрению. Технические требования

ГОСТ 10807-78 Знаки дорожные. Общие технические условия

СП 113.13330.2012 «СНиП 21-02-99 Стоянки автомобилей» (с изменением № 1);

ГОСТ Р 12.2.143-2009 ССБТ. Системы фотолюминесцентные эвакуационные. Требования и методы контроля

ГОСТ 33652-2015 (ЕН 81-70:2003) «Лифты пассажирские. Технические требования доступности, включая доступность для инвалидов и других маломобильных групп населения»

ГОСТ Р 51256-2011 Технические средства организации дорожного движения. Разметка дорожная. Типы и основные параметры. Общие технические требования

ГОСТ Р 51261- Устройства опорные стационарные реабилитационные. Типы и технические требования

ГОСТ Р 51264-99 Средства связи, информатики и сигнализации реабилитационные электронные. Общие технические условия

ГОСТ Р 51885-2022 (ИСО 7001:1990) Знаки информационные для общественных мест

ГОСТ Р 52289-2004 Технические средства организации дорожного движения. Правила применения дорожных знаков, разметки, светофоров, дорожных ограждений и направляющих устройств

ГОСТ Р 52290-2004 Технические средства организации дорожного движения. Знаки дорожные. Общие технические требования

ГОСТ Р 52382-2010 (ЕН 81-72:2003) Лифты пассажирские. Лифты для пожарных

ГОСТ Р 52880-2007 Социальное обслуживание населения. Типы учреждений социального обслуживания граждан пожилого возраста и инвалидов

ГОСТ Р 53453-2009 Эргономика термальной среды. Применение требования стандартов к людям с особыми требованиями

ГОСТ Р 55555-2013 Платформы подъемные для инвалидов и других маломобильных групп населения. Требования безопасности и доступности. Часть 1. Платформы подъемные с вертикальным перемещением

ГОСТ Р 55556-2013 Платформы подъемные для инвалидов и других маломобильных групп населения. Требования безопасности и доступности. Часть 2. Платформы подъемные с наклонным перемещением

ГОСТ Р 55641-2013 Платформы подъемные для инвалидов и других МГН. Диспетчерский контроль. Общие технические требования

ГОСТ Р 55956-2014 Лифты. Специальные требования безопасности к лифтам, используемым для эвакуации инвалидов и других маломобильных групп населения

ГОСТ Р 55966-2014 (CEH/TS 81-76:2011) Лифты. Специальные требования безопасности к лифтам, используемым для эвакуации инвалидов и других маломобильных групп населения

ГОСТ 12.1.004-91 Система стандартов безопасности труда. Пожарная безопасность. Общие требования

ГОСТ 12.1.005-88 Система стандартов безопасности и труда. Общие санитарно-гигиенические требования к воздуху рабочей зоны

ГОСТ 5746-2015 (ИСО 4190-1:2010) Лифты пассажирские. Основные параметры и размеры

ГОСТ 53998-2010 Туристские услуги. Услуги туризма для людей с ограниченными физическими возможностями. Общие требования

Примечание - При пользовании настоящим сводом правил целесообразно проверить действие ссылочных стандартов и классификаторов в информационной системе общего пользования - на официальном сайте национальных органов Российской Федерации по стандартизации в сети Интернет или по ежегодно издаваемому информационному указателю «Национальные стандарты», который опубликован по состоянию на 1 января текущего года, и по соответствующим ежемесячно издаваемым информационным указателям, опубликованным в текущем году. Если ссылочный документ заменен (изменен), то при пользовании настоящим сводом правил следует руководствоваться замененным (измененным) документом. Если ссылочный документ отменен без замены, то положение, в котором дана ссылка на него, применяется в части, не затрагивающий эту ссылку.

(Измененная редакция. Изм. № 1)

3 Термины и определения

Основные термины и сокращения, применяемые в тексте, и их определения даны по СП 59.13330, кроме того ниже приведены следующие термины и определения:

3.1 аванвестибюль: Дополнительный предвестибюль, как правило перед зоной контроля, для ожидания, получения справок, решения вопросов входа (допуска) в - здание.

3.2 акцент (здесь): Контрастный ориентир, элемент архитектурной среды информационно значимый для посетителей (потребителей), в том числе маломобильных.

3.3. анфилада: Группа последовательно расположенных помещений, имеющих общие по одной оси расположенные проемы, двери. Здесь: вариант организации пространства, облегчающий доступность для инвалидов на креслах-колясках.

3.4 архитектурная среда (здесь): Совокупность внешнего облика и внутреннего пространства зданий и сооружений, предназначенных для определенных функций и наделенных необходимой и достаточной для потребителя информативностью, в том числе с помощью архитектурной пластики.

3.5 доступность (безбарьерность): Свойство здания, помещения, места обслуживания, позволяющее беспрепятственно достичь места назначения и воспользоваться услугой.

(Измененная редакция. Изм. № 1)

3.6 зона (здесь): Параметры и конфигурация функционально организованного пространства, не полностью выделенного ограждающими конструкциями.

3.7 идентификация (здесь): Однозначное опознавание функционального назначения объекта или зоны риска.

3.8 (Исключить. Изм. № 1)

3.9 инклюзивность: Равные условия совместной доступности людей без инвалидности и маломобильных групп населения к зданиям и сооружениям, культурным и образовательным программам:, к бытовой технике, оборудованию и т.д.

3.10 информативность: Один из основных критериев приспособления (адаптации) объекта для маломобильных групп населения, определяющий необходимость и достаточность информации, получаемой об объекте, оказываемых услугах и основных путях следования.

(Новая редакция. Изм. № 1)

3.11 катафоты: Светоотражающие панели, предназначенные для разметки и маркировки поверхностей.

3.12 коммуникационные пространства (здесь): Зоны и помещения зданий, сооружений или участков, предназначенные, главным образом, для движения по ним людских потоков.

3.13 коммуникационные пути (пути движения): Части коммуникационных пространств, предназначенных исключительно для движения.

3.14 латеральный: Кромочный, ограничивающий края.

3.15 лестничные подъемники: Автономные мобильные средства для подъема и спуска МГН в креслах-колясках по лестничным маршам, крутым подъемам, а также в ландшафтно-парковых зонах с рельефной поверхностью.

3.16 маршрут доступный (беспрепятственный): Непрерывный маршрут передвижения, связывающий все элементы и пространства зданий или сооружений, в которых осуществляется обслуживание маломобильных посетителей.

3.17 маячок (здесь): Устройство, подающее световые или звуковые сигналы, позволяющее определить направление движения на него.

(Новая редакция. Изм. № 1)

3.18 (Исключен. Изм. № 1)

3.19 объекты социальной инфраструктуры: Здания, сооружения, их комплексы и входящие в их состав помещения многоквартирных домов, учреждений социального, медицинского, бытового, культурно-зрелищного, торгового, кредитно-финансового, банковского, гостиничного, туристического, санаторно-курортного и пассажирского обслуживания населения, воспитания, образования, отдыха, туризма, спорта и трудовой деятельности, по представлению услуг связи и информационных услуг, иных учреждений и организаций, связанных с обеспечением жизнедеятельности и обслуживанием населения, а также участки и элементы застройки территорий указанных учреждений.

3.20 парапет: Как правило, глухое ограждение перепада высоты. Здесь: конструктивный элемент, ограждающий пути движения и функциональные пространства, совмещающий функции по критериям безопасности и информативности.

3.21 переводчик жестового языка (сурдопереводчик): Специалист, осуществляющий перевод речевой информации посредством жестов на язык для лиц с нарушениями слуха.

3.22 подъемное устройство (платформа): Стационарная грузоподъемная машина периодического действия для подъема и спуска пользователей, размещающихся на платформе. Платформы с вертикальным перемещением - под углом не более 15°, платформы с наклонным перемещением - под углом не более 75°.

3.23 покрытия противоскольжения: Покрытия, применяемые на потенциально травмоопасных участках (пандусы, входные площадки, ступени лестниц и другие части участка), с целью увеличения сцепляемости подошв обуви людей (а также колес кресел-колясок) для предотвращения травматизма при перемещениях по этим участкам.

3.24 поле внимания (поля внимания): Указатель тактильно-контрастной разметки, обозначающий точки начала и окончания тактильно обозначенных путей следования, а также точки (места) пересечения двух тактильно обозначенных путей следования или примыкания одного из путей к другому.

(Измененная редакция. Изм. № 1)

3.25 (Исключен. Изм. № 1)

3.26 (Исключен. Изм. № 1)

3.27 помещение универсальное (здесь): Помещение здания, где благодаря организационным мероприятиям, а также сменяемому или трансформируемому оборудованию возможна организация различных видов деятельности.

3.28 портик: Выступающая перед входом часть здания, как правило, с колоннами.

3.29 посетительская зона: Совокупность помещений и пространств в зданиях и сооружениях, предназначенных для приема и оказания (предоставления) услуги гражданам.

3.30 продольный уклон: Уклон поверхности, параллельный направлению движения.

3.31 сигнализаторы (оповещатели) опасности: Специальные элементы, встроенные или прикладываемые к поверхности пешеходной дорожки или другим элементам для предупреждения людей с нарушением зрения об опасностях на их пути.

3.32 символика (здесь): Знаковая информация для посетителей, воспроизводимая графическим или тактильным способом для условного представления объекта (понятия).

3.33 система радиоинформирования и ориентирования инвалидов по зрению: Система, состоящая из индивидуальных носимых абонентских устройств пользователей и инфраструктурного оборудования радиоинформаторов, передающих на абонентское устройство по радиоканалу сообщения об объекте, на котором установлены, и другую информацию, вплоть до рекламной, звуковых маячков, подающих, по запросу пользователя, сигналы ориентирования, устройств речевого и звукового дублирования сигналов пешеходного светофора с дополнительными функциями радиоинформирования, а также сервера системы, обеспечивающего удаленный контроль исправности инфраструктурного оборудования, его перепрограммирование, изменение параметров, ввод/изменение текстов сообщений.

(Новая редакция. Изм. № 1)

3.34 среда жизнедеятельности: Материальная среда, окружающая человека, в которой он осуществляет все свои жизненные потребности, в том числе здания и сооружения, их оборудование, оснащение и прилегающая территория.

3.35 табло: Указатели с механическим, электронным или иным приводом изменения символов на их рабочей поверхности.

3.36 (Исключен. Изм. № 1)

3.37 тактильно-контрастная разметка: Фактурное и контрастное наземное или напольное покрытие, выполняющее направляющую или предупреждающую функцию при перемещении людей с ограниченными возможностями (слабовидящих и незрячих) по коммуникационным путям.

(Новая редакция. Изм. № 1)

3.38 техническое средство реабилитации человека с ограничениями жизнедеятельности: Устройства, которые благодаря специальным свойствам обеспечивают компенсацию или устранение ограничений способностей инвалидов к бытовой, общественной и профессиональной деятельности, вызванных нарушением здоровья со стойким расстройством функций организма.

(Измененная редакция. Изм. № 1)

3.38а фотолюминесцентная эвакуационная система: Совокупность фотолюминесцентных элементов, предназначенных для информации о путях эвакуации людей, включая МГН, в случае возникновения чрезвычайной ситуации, в том числе при аварийном отключении освещения.

(Введен дополнительно. Изм. № 1)

3.39 функциональная группа помещений: Совокупность пространственно связанных помещений и коммуникационных путей, предназначенных для выполнения определенной задачи.

3.40 холодный пластик для тактильной разметки: Двухкомпонентный материал на основе полимерного связующего, содержащий пигменты и наполнители, образующий после полимеризации (отверждения) твердое непрозрачное покрытие - элементы тактильно-контрастной разметки.

(Измененная редакция. Изм. № 1)

4 Общие положения

4.1 В своде правил дан набор требований, проектных мероприятий и элементов архитектурного решения. Конкретизация требований, выбор состава мероприятий и определение этапов их реализации устанавливаются заданием на проектирование, а также в процессе проектирования.

4.2 Положения нормативного документа допускают возможность выбора вариантов проектных решений исходя из комплекса требований, предъявляемых к проектируемому или реконструируемому объекту с целью обеспечения доступа к нему и использования его маломобильными гражданами.

В зависимости от расчетной численности инвалидов, функциональной структуры учреждения и конструктивной структуры здания, рекомендуется предусматривать один из двух вариантов организации доступности (не учитывая обслуживание на дому):

вариант А («Универсальный проект») для нового строительства и, частично, для капитального ремонта доступность для МГН любой жилой ячейки в жилище, любого места обслуживания в общественном здании, любого допускаемого социальными органами, места приложения труда. При этом должно предусматриваться устройство общих путей движения, доступных для всех категорий населения; приспособленных для нужд инвалидов всех или специально выделенных из их общего числа жилых ячеек, мест обслуживания; специально приспособленных мест приложения труда;

вариант Б («Разумное приспособление») для приспособления здания под новые функции, для реконструкции и, частично, для капитального ремонта выделение (как правило, в уровне входной площадки) специальных помещений, зон или блоков, приспособленных и оборудованных для инвалидов. При необходимости следует предусматривать устройство специальных входов, специально обустроенных параллельных путей движения и мест обслуживания для лиц с нарушениями здоровья.

Представленные в приложении Г настоящего свода правил графические схемы рекомендуется использовать при любом варианте организации доступности зданий и сооружений для МГН.

4.3 Повышение качества архитектурной среды достигается при соблюдении доступности, безопасности, удобства и информативности зданий для нужд МГН без ущемления соответствующих прав и возможностей других людей, находящихся в этих зданиях.

По степени значимости эти критерии при всей их важности при проектировании имеют следующий порядок приоритетов: 1) доступность, 2) безопасность, 3) информативность, 4) комфортность (удобство).

4.3.1 Критерий доступности требует создания в проекте условий:

свободного попадания в здание;

беспрепятственного движения по коммуникационным путям, помещениям и пространствам;

достижения места целевого назначения или обслуживания и пользования предоставленными возможностями.

4.3.2 Критерий безопасности требует создания условий проживания, посещения места обслуживания или труда без риска быть травмированным или нанести вред другим людям, зданию или оборудованию.

Основными требованиями критерия безопасности являются:

сохранение жизни и здоровья в случае чрезвычайных ситуаций (пожар, наводнение, землетрясение и т.п.) созданием зон безопасности и безопасных путей эвакуации;

возможность избежать травм, ранений, увечий, излишней усталости и т.п. из-за свойств архитектурной среды зданий (в том числе используемых отделочных материалов);

сохранение жизни и здоровья людей при перемещениях внутри зданий и на подходах к ним;

предупреждение потребителей о потенциальных местах и зонах риска, в том числе плохо воспринимаемых мест пересечения путей движения.

4.3.3 Критерий информативности требует обеспечения возможности своевременного получения и осознания потребителем разносторонней информации и соответствующего реагирования на нее.

Требования критерия информативности включают в себя:

использование средств информирования, соответствующих особенностям различных групп МГН;

своевременное распознавание ориентиров в архитектурной среде общественных зданий;

точную идентификацию своего места нахождения и мест, являющихся целью посещения;

возможность эффективной ориентации как в светлое, так и в темное время суток;

возможность иметь непрерывную информационную поддержку на всем пути следования по зданию или сооружению;

возможность получить заблаговременную информацию о доступности объекта и режиме его функционирования (по интернету, по телефону).

Размещение и характер исполнения элементов информационного обеспечения должны учитывать:

расстояние, с которого сообщение может быть эффективно воспринято;

углы поля наблюдения, удобные для восприятия зрительной информации;

ясное начертание и контрастность, а при необходимости - рельефность текста или изображения;

соответствие применяемых символов или пластических приемов общепринятому значению;

исключение помех восприятию информационных средств (бликование указателей, слепящее освещение, совмещение зон действия различных акустических источников, акустическая тень и т.п.).

4.3.4 Уровень комфортности архитектурной среды и обслуживания в проекте оценивается как с физической, так и с психологической позиций.

Критерий комфортности (удобства) содержит следующие основные требования:

создание условий для минимизации затрат и усилий МГН на реализацию цели посещения и удовлетворение своих нужд;

обеспечение своевременной возможности отдыха, ожидания и дополнительного обслуживания, обеспечение условий для компенсации усилий, затраченных на движение и получение услуги;

сокращение времени и усилий на получение необходимой информации;

исключение конфликтных ситуаций («конфликт интересов») между разными группами маломобильного населения с учетом специфики приспособливаемых объектов.

Нижним пределом комфортности (удобства) следует считать уровень условий, при которых получение или предоставление необходимой информации не может быть признано дискомфортным (неудобным).

Повышение комфортности рекомендуется осуществлять путем сокращения необходимого пути и времени для получения на одном месте нескольких услуг, увеличения числа мест отдыха, применения необходимого и эргономичного оборудования и др.

4.4 Если при реконструкции, капитальном ремонте, приспособлении зданий и сооружений, в том числе исторических и культурных памятников, а также прилегающих к ним территорий, требования доступности не могут быть выполнены в полном объеме, то в соответствии с Конвенцией о правах инвалидов следует придерживаться принципа «разумного приспособления». По согласованию с местным органом социальной защиты населения и с учетом мнения общественных организаций инвалидов должны быть приняты решения, обеспечивающие условия жизнедеятельности инвалидов в степени возможной и достаточной для конкретной ситуации и конкретного объекта. При этом степень (уровень) и способы адаптации зданий и сооружений, имеющих особую архитектурную, художественную или историческую ценность, должны определяться с обязательным участием соответствующих органов по охране памятников истории, культуры и архитектуры.

4.5 Для обеспечения доступности МГН к местам обслуживания в зданиях рекомендуется соблюдать следующий порядок приоритетов проектирования:

объемно-пространственное решение здания и внешний облик, детали декора фасадов, а также цветовое и световое (в вечернее время) решение участка, фасада, входов;

функциональные зоны, группы помещений, помещения;

места обслуживания;

коммуникационные, рекреационные пространства и помещения, в том числе зоны и места отдыха и ожидания, санитарно-бытовые помещения;

элементы инженерного оборудования, в том числе специального для лиц с нарушениями здоровья;

системы информационного обеспечения, в том числе наружная реклама;

применение мебели и оборудования.

4.6 Архитектурное решение объекта должно помогать МГН:

идентифицировать назначение зон здания, сооружения, помещения и участка;

находить и использовать коммуникационные пространства, в том числе входы, определять направление своего пути, в том числе при эвакуации;

своевременно определять и уверенно избегать зоны риска.

4.7 Планировочные решения зданий и сооружений, в том числе коммуникации, должны учитывать параметры инвалидного кресла-коляски (ГОСТ Р 50602, СП 59.13330, рисунки В.1 - В.4 настоящего свода правил).

(Измененная редакция. Изм. № 1)

4.8 При расчете эвакуации следует применять приложение Е.

(Введен дополнительно. Изм. № 1)

5 Требования к земельному участку

5.1 При проектировании участка здания, сооружения или комплекса зданий, сооружений следует соблюдать непрерывность пешеходных и транспортных путей, обеспечивающих доступ инвалидов и маломобильных лиц в здания.

Рекомендуется обеспечивать возможность опорного движения вдоль ограждения участков и проходов через них. Ширина прохода в ограждении должна быть не менее 0,9 м.

При расположении зданий, сооружений и комплексов в глубине участка следует стремиться к сокращению пути от наиболее вероятного входа на участок до входа в здание или сооружение, доступного для МГН.

При адаптации существующих зданий к потребностям МГН следует создавать доступные пешеходные пути в пределах земельных участков, прилегающих к зданиям. Эти работы следует выполнять также при ремонте покрытий путей движения.

5.2 При размещении зданий и сооружений на выделенном участке следует:

разделять по возможности пешеходные и транспортные потоки на участке;

обеспечивать удобные пути движения ко всем функциональным зонам и площадкам участка, а также входам, элементам благоустройства и внешнего инженерного оборудования, доступным МГН;

обеспечивать, по возможности, крытыми кратчайшими переходами связь между входами в здания комплекса, образованного отдельно стоящими на едином участке объектами.

Система средств информационной поддержки и навигации должна быть обеспечена на всех путях движения, доступных для МГН в часы работы организации, учреждения или предприятия в соответствии с ГОСТ Р 51256, ГОСТ Р 52875, ГОСТ Р 51671.

(Измененная редакция. Изм. № 1)

5.3 При организации на участке подъезда транспортных средств непосредственно к входу на входных площадках и в портиках рекомендуется предусматривать:

а) в учреждениях с формой обслуживания по варианту А:

возможность одновременных прохода пешеходов и посадки или высадки пассажиров;

места на горизонтальной части входной площадки или портика, достаточные для остановки транспортного средства, пропускающего пешеходные потоки;

разметку пешеходных и транспортных путей на пандусах и площадке;

б) в учреждениях с формой организации обслуживания по варианту Б:

создание оборудованного входа для МГН, не пересекающегося с транспортными путями;

при наличии нескольких лестниц (или лестниц, охватывающих площадку с нескольких сторон) как минимум одна оборудуется для МГН.

Параметры зон для посадки-высадки инвалидов на кресле-коляске из автотранспорта приведены на рисунке В.10.

Обеспечение безопасности пешеходного и дорожного движения осуществляется за счет разделения этих путей дорожной разметкой по ГОСТ Р 52289 и ГОСТ Р 51256.

(Измененная редакция. Изм. № 1)

5.4 В портиках и на крытых площадках высота проходов от поверхности пешеходного пути до низа конструкции или низа любых подвесных элементов в свету должна быть не менее 2,5 м, а проездов - 4,5 м. При этом транспортные пандусы и проезды должны иметь сквозной проезд или разворотные площадки для эвакуации транспортных средств.

5.5 На участках перед входами в общественные здания рекомендуется создавать озелененные и благоустроенные площадки для отдыха, оборудованные навесами, скамьями, указателями, светильниками и т.п. Малые формы благоустройства рекомендуется применять контрастных цветов и тонов по отношению к окружающему фону.

На земельных участках предприятий питания и торговли целесообразно организовать зону с местами кратковременного отдыха МГН, оборудуя эти зоны информационными и рекламными устройствами.

Комфортность таких зон может быть усилена разнообразными видами мощения, обеспечивающими удобство и безопасность передвижения МГН, системой освещения, указателями, элементами озеленения: вазонами, цветочными посадками, являющимися одновременно ориентирами для людей с недостатками зрения.

(Измененная редакция. Изм. № 1)

5.6 К информационным средствам на участках зданий и сооружений, используемых МГН, относятся:

рельефные, фактурные и иные виды тактильных поверхностей путей движения на участках, дорогах и пешеходных трассах;

ограждение опасных зон;

тактильно-контрастные или фотолюминесцентные указатели на путях движения на участках;

тактильные указатели по разграничению пешеходных и велосипедных дорожек;

информационные сооружения (мнемосхемы, стенды, щиты и иные объемные рекламные устройства) и тактильно-звуковые мнемосхемы, средства радио информирования и ориентирования;

светофоры и световые указатели.

Рекомендуется предусматривать установку (обустройство) на участках указанных выше информационных средств для обеспечения непрерывности получения информации на путях движения МГН к местам обслуживания (получения услуги), санитарно-бытовым помещениям, зонам отдыха, рабочим местам и т.д.

При проектировании на участках объектов информационных узлов в зоне ожидания рекомендуется дублировать визуальную информацию тактильной.

(Измененная редакция. Изм. № 1)

5.7 Тактильно-контрастная разметка на горизонтальной поверхности выполняется, как правило, желтого цвета, допускается применение белого цвета.

Для обустройства тактильно-контрастных указателей на участке применяются следующие технологии и материалы:

- бетонные, каменные, керамо-гранитные плиты с тактильными элементами (рифами) - в соответствии с ГОСТ Р 52875;

- тактильные покрытия, выполненные из полимерных (композитных) материалов с тактильными элементами (рифами), плиты, ленты различной формы;

- отдельные тактильные элементы (рифы), изготовленные из различных материалов - металлов, полимеров или их комбинаций;

- специальные быстро полимеризирующиеся материалы, в частности холодный пластик.

(Новая редакция. Изм. № 1)

5.8 Тактильные наземные указатели для инвалидов по зрению рекомендуется устанавливать (обустраивать) на следующих элементах путей движения:

- перед входом на участок (выходом с участка) следует обустраивать предупреждающий тактильно-контрастный указатель и/или устанавливать оборудование систем радиоинформирования и ориентирования;

- на расстоянии 1,5 - 2,0 м после входа на многообъектный участок (больницы, высшие учебные заведения, спортивные комплексы, парки отдыха и т.п.) с правой стороны устанавливаются тактильные мнемосхемы или тактильно-звуковые мнемосхемы с указанием планировки участка и доступных зданий;

- перед находящимися на пути движения лестничными маршами, пешеходными переходами, пересечениями с проезжей дорогой следует обустраивать предупреждающие тактильно-контрастные указатели, разрешающие их пересечение и движение в прежнем направлении с осторожностью;

- перед находящимися на пути движения опорами (столбами), деревьями, малыми архитектурными формами и искусственными сооружениями следует обустраивать предупреждающие тактильно-контрастные указатели, запрещающие движение в прежнем направлении;

- на протяженных (более 70 м) участках основных маршрутов движения могут обустраиваться тактильно обозначенные пути безопасного следования с применением направляющих тактильно-контрастных указателей.

(Новая редакция. Изм. № 1)

5.9 В местах пересечения двух дорожек на участке рекомендуется устраивать площадки, возвышающиеся на 0,03 м над полотном дорожек. От площадок по четырем сторонам оборудуются спуски с углом наклона 10 %. Покрытия пересекающихся дорожек в местах стыка могут отличаться друг от друга, например: асфальт - гравий, асфальт - плитка или гравий с различающимися размерами фракций - 20, 40, 60 мм.

В местах пересечения двух тактильно обозначенных путей следования, примыкания одного из путей к другому следует обустраивать тактильные указатели «поле внимания». Изменения в направлении тактильной разметки при пересечении, примыкании (ответвлении) должны выполняться под углом (90 ± 10)°. Указатель «Поле внимания» следует применять также для обозначения точек начала (конца) тактильно обозначенных путей следования. Пример совместного применения направляющих указателей и указателей «Поле внимания» приведен на рисунке Г.19.

Временные сооружения, столбы наружного освещения и указателей, газетные и торговые киоски и т.д. должны располагаться за пределами полосы движения и быть контрастного цвета. Углы должны быть закруглены.

(Новая редакция. Изм. № 1)

5.10 Предупреждающую сигнализацию о приближении к препятствиям (лестницам, пешеходному переходу, окончанию островка безопасности, краю платформы и др.) для людей с нарушениями зрения следует также обеспечивать изменением фактуры поверхностного слоя покрытия пешеходных путей движения с учетом требований ГОСТ Р 52875, применением информирующего тактильно-визуального покрытия из плитки или полимерных материалов яркой контрастной окраски. Рисунок «поле внимания» необходимо применять также в местах начала и окончания направления движения, вокруг или перед одиночным препятствием на пути движения.

На земельном участке объекта на основных путях движения людей не менее чем через 100 - 150 м рекомендуется предусматривать места отдыха, доступные для МГН, оборудованные навесами, скамьями, телефонами-автоматами, указателями, светильниками, сигнализацией и т.п.

Места отдыха должны выполнять функции архитектурных акцентов, входящих в общую информационную систему объекта.

(Измененная редакция. Изм. № 1)

5.11 При обустройстве тротуаров на участке следует по возможности применять единое установленное для данного населенного пункта расположение осветительных столбов и посадок деревьев по отношению к краю тротуарного бордюра, что позволит создать оптимальные условия ориентирования для слабовидящих людей.

5.12 Ландшафтные и фитодизайнерские композиции на участке должны выполнять функции архитектурных акцентов, входящих в общую информационную систему объекта обслуживания. При этом рекомендуется использовать сходные или единые приемы обозначения, выявления зон или мест со сходным функциональным назначением.

В случае примыкания места отдыха к пешеходным путям, расположенным на другом уровне, следует обеспечить плавный переход между этими поверхностями. Скамейки для инвалидов, в том числе слепых, устанавливаются на обочинах проходов и обозначаются с помощью изменения фактуры наземного покрытия. В местах отдыха следует применять скамьи разной высоты от 0,38 до 0,58 м с опорой для спины. У сидений должно быть не менее одного подлокотника. Минимальное свободное пространство для ног под сиденьем должно быть не менее 1/3 глубины сиденья.

(Измененная редакция. Изм. № 1)

5.13 Допускается применение световых или подсвеченных указателей, в том числе опор светофоров на пешеходных путях, разметки из светоотражающих материалов и световых нитей, используемых в темное время суток.

Осветительную арматуру светильников при входах на участок и в здание целесообразно крепить непосредственно к воротам или элементам зданий или ограждений.

5.14 Светильники на стойках, находящиеся в пешеходной зоне, желательно размещать в составе малых архитектурных форм (ограждений, на тумбах) на высоте не менее 0,75 м.

Светильники, размещаемые на открытом пространстве над зоной интенсивного пешеходного движения или специальной полосы пешеходного движения, следует устанавливать не ниже 2,1 м от отметки пути движения.

Светильники, способствующие ориентации инвалидов с нарушением зрения, рекомендуется заделывать заподлицо в вертикальные, горизонтальные или наклонные поверхности стационарных конструкций зданий и сооружений или в элементы стационарного оборудования: в поручни или участок стены за поручнем, в подступенки лестниц, в плоскость стен или покрытия горизонтального или наклонного пола.

Рекомендуется предусматривать световые маячки. Светильники, устанавливаемые на площадках отдыха, должны быть расположены ниже уровня глаз сидящего.

(Измененная редакция. Изм. № 1)

5.15 Световой поток осветительных приборов на путях движения должен обеспечивать освещенность в уровне полос движения 20 лк при лампах накаливания, 40 лк при люминесцентных лампах и идентичные показатели для энергосберегающих источников света. При этом суммарный световой поток, включая огни рекламы, не должен ослеплять пешеходов и засвечивать знаки, указатели, светофоры и световые маячки.

Не следует направлять световые маячки импульсных ламп-вспышек направленного действия навстречу движения пешеходов и водителей.

5.16 Элементы обустройства территории (участков) приведены на рисунках В.5 - В.10.

Требования к участкам зданий и их элементам, доступным для МГН, приведены в таблице А.1.

(Измененная редакция. Изм. № 1)

5.17 Места для автомашин инвалидов на креслах-колясках в многоуровневых стоянках автомобилей рекомендуется размещать у выхода на первом этаже или около лифтов.

Высота свободного пространства от плоскости (пола) стоянки автомобилей до низа перекрывающих конструкций и другие конструктивные размеры следует принимать по СП 113.13330.

(Введен дополнительно. Изм. № 1)

5.18 Для предупреждения соскальзывания ноги возможно применение защитного углового профиля на каждой ступени по ширине марша. Материал должен быть шириной 0,05 - 0,065 м на проступи и 0,03 - 0,055 м на подступенке. Он должен визуально контрастировать с остальной поверхностью ступени.

(Введен дополнительно. Изм. № 1)

5.19 Каждое выделяемое машино-место должно обозначаться дорожной разметкой по ГОСТ Р 51256 и, кроме того, на участке около здания - дорожными знаками по ГОСТ Р 52289, ГОСТ Р 52290, внутри зданий - знаком доступности по ГОСТ Р 52131, выполняемым на вертикальной поверхности (стене, стойке и т.п.) на высоте от 1,5 до 2,0 м.

(Введен дополнительно. Изм. № 1)

6 Пути движения в здании

6.1 К коммуникационным путям и пространствам относятся:

входы и выходы;

вестибюльные группы;

части функциональных и рекреационных зон, содержащие пути движения посетителей;

вертикальные средства передвижения с помещениями и площадками перед ними;

лестницы и пандусы с поворотными и разворотными площадками.

Коммуникационные пути и пространства, обеспечивающие непрерывность связей между входами, местами обслуживания и отдыха и выходами, должны быть:

доступными для различных категорий пользователей;

безопасными для движения и отдыха в процессе движения;

оборудованы для облегчения движения, получения своевременной информации, попутного отдыха или ожидания;

по возможности короткими, геометрически простыми.

Требования к коммуникациям и их элементам в графической форме представлены на рисунках В.11 - В.26.

(Измененная редакция. Изм. № 1)

6.2 При проектировании адаптированных входных узлов следует учитывать требования таблицы А.2.

6.3 При перепаде высоты на путях движения и при входе в здание следует создавать равные условия доступности и комфорта для всех групп людей. При этом необходимо принимать во внимание, что для людей на креслах-колясках, с детскими колясками и ручными тележками удобно пользоваться пандусами, для людей с нарушениями зрения и некоторых маломобильных групп предпочтительна лестница с поручнями, а для немощных, беременных, людей с костылями - наиболее удобны платформы подъемные (для инвалидов вертикального или наклонного перемещения).

6.4 К пандусу не должны примыкать по ходу движения лестничные марши. Минимальное расстояние между ними должно составлять не менее 3 м.

Размещение ведущих вниз лестниц и ступеней напротив пандуса представляет собой потенциальную опасность для лиц, пользующихся инвалидными колясками или спускающихся по лестнице.

Если на входных пандусах и ступенях приспосабливаемого здания применена облицовка скользкими материалами (керамическая плитка, керамогранит, гранит, мрамор и прочее), следует применять покрытия, препятствующие скольжению. Коэффициент сцепления поверхности крыльца, пандусов и ступеней должен быть не менее 0,4 и не более 0,75.

6.5 При наличии у входной площадки нескольких лестниц или лестниц, охватывающих площадку с нескольких сторон, как минимум одна оборудуется для МГН.

6.6 Планировка внутренних тамбуров (тамбур-шлюзов) должна соответствовать требованиям к входным тамбурам, см. таблицу А.2 и рисунки В.18, В.20, В.21.

При глубине тамбура в пределах менее 1,8 м до 1,5 м (при реконструкции) его ширина должна быть не менее 2 м.

(Измененная редакция. Изм. № 1)

6.7 При реконструкции зданий допускается предусматривать рампы винтового типа, внутренний радиус которых принимается не менее 5,5 м.

6.8 Допускается объединение коммуникационных путей с зонами обслуживания и отдыха в общих пространствах, в том числе пассажах, атриумах. В этих случаях рекомендуется места обслуживания МГН размещать не выше второго уровня (этажа), если аналогичные зоны или элементы обслуживания населения повторяются и выше.

6.9 Коммуникационные пути рекомендуется совмещать с эвакуационными путями. Необходимость создания дополнительных путей и устройств, облегчающих и ускоряющих эвакуацию, особенно для МГН, определяется расчетом. Расчет ширины путей эвакуации следует производить с учетом площади, занимаемой МГН, приведенной в таблице 6.1, где а - длина проекции, b - ширина проекции и F - площадь проекции инвалида.


Таблица 6.1 - Максимальные размеры площади в плане, занимаемой МГН

Здоровые; с дефектами слуха

С недостатками зрения

С поражением ОДА, передвигающиеся без дополнительных опор

С поражением ОДА, передвигающиеся с одной дополнительной опорой

С поражением ОДА, передвигающиеся с двумя дополнительными опорами

С поражением ОДА, передвигающиеся на креслах-колясках

Транспортируемые на носилках, каталках

Транспортируемые на эвакуационных стульях по горизонтальной поверхности

Транспортируемые на эвакуационных стульях по лестнице

а = 0,28 м

а = 0,72 м

а = 0,40 м

а = 0,50 м

а = 0,50 м

а = 0,80 м

а = 0,55 м

а = 1,65 м

а = 1,8 м

b = 0,46 м

b = 0,82 м

b = 0,75 м

b = 0,65 м

b = 0,90 м

b = 1,2 м

b = 2,15 м

b = 0,74 м

b = 0,74 м

F = 0,1 м2

F = 0,40 м2

F = 0,25 м2

F = 0,20 м2

F = 0,30 м2

F = 0,96 м2

F = 1,18 м2

F = 0,89 м2

F = 0,97 м2


6.10 На путях движения по зданию следует стремиться к уменьшению числа выступающих углов, пилястр, избегать острых кромок оборудования.

Рекомендуется скруглять внешние углы выступающих в сторону путей движения частей оборудования в местах ожидания и отдыха (радиус - не менее 5 см).

В местах отдыха или ожидания следует предусматривать не менее одного места для инвалида на кресле-коляске или пользующегося костылями (тростью), а также его сопровождающего.

Зону «возможной опасности» от открытой в коридор двери (проекцию движения дверного полотна) целесообразно обозначать краской контрастной цвету окружающего пространства. Разметка может быть на всю поверхность или только на ее контур.

На путях движения МГН в здании следует предусматривать смежные с ними места отдыха и ожидания. В местах отдыха или ожидания следует предусматривать не менее одного места для инвалида на кресле-коляске или пользующегося костылями (тростью), а также его сопровождающего.

(Измененная редакция. Изм. № 1)

6.11 В поэтажных лифтовых холлах для облегчения ориентации посетителей рекомендуется на каждом этаже применять различные декоративные, пространственные или цветовые решения интерьеров. Напротив выхода из лифта на поверхности противоположной стены, перегородки необходимо разместить номер этажа (уровня). Требования к лифтам и подъемникам приведены на рисунках В.29 - В.34 и в ГОСТ 5746, ГОСТ Р 55956, ГОСТ Р 55966.

(Измененная редакция. Изм. № 1)

6.12 В коммуникационных помещениях и пространствах для предупреждения о пересечениях путей движения рекомендуется использовать формы архитектурной пластики порталов, активную пластику декора пути.

6.13 Декор полов и площадок независимо от того, какой материал применен, рекомендуется сочетать с разметкой путей движения, зон ожидания, обеспечивая при этом допустимую контрастность.

Место получения инвалидами по зрению каких-либо услуг или информации - перед окном кассы, справочного или информационного бюро, регистратуры, прилавка магазина, сервисного центра, перед размещенной на стене или на стенде тактильной схемой и т.д. целесообразно обустраивать напольным указателем «Поле получения услуги (информации).

Для обеспечения безопасной ориентации при перемещении инвалида по зрению в окружающей среде, смежные поверхности и информация относительно поверхностей, на которые она нанесена, должны быть визуально контрастными.

Коэффициент контрастности Кк должен составлять, не менее:

- 30 % - для мебели относительно стен;

- 40 % - для дверей относительно стен;

- 70 % - для информации, в том числе о потенциальной опасности, относительно поверхности, на которую информация нанесена, (рисунок 1).

Рисунок 1 - Коэффициент контрастности

(Измененная редакция. Изм. № 1)

6.14 На путях движения посетителей в здании следует предусматривать смежные с ними зоны отдыха и ожидания не реже чем через 25 м пути, в том числе хотя бы одну на каждый этаж, доступный для МГН.

Места отдыха (ожидания) рекомендуется размещать в тихом месте вдали от витрин, стендов, элементов помещений, где возможно возникновение сквозняков, перегрева, ослепляющего освещения. В местах отдыха и ожидания следует предусматривать возможность размещения не менее одного места для инвалида на кресле-коляске или пользующегося костылями либо иными мобильными техническими средствами реабилитации, а также не менее одного места для лица его сопровождающего.

При размещении мест отдыха или ожидания в нишах рекомендуется обеспечивать их подсветку, выявлять цветом и фактурой материала места сидения маломобильных посетителей. При этом важно, чтобы поверхность мест сидения контрастировала с покрытием пола. Рекомендуется наличие и разметка на покрытии пола границ резервной зоны (места возможного размещения) кресла-коляски.

6.15 Декоративные изделия и скульптура в интерьере не должны выступать в полосу движения на высоте менее 2,1 м и не должны в пределах этой высоты иметь детали, которые могут поранить при столкновении с ними, или за которые можно зацепиться.

При размещении растений в интерьерах следует избегать попадания их частей в зоны движения и места отдыха (ожидания) в пределах их габаритов. Места установки емкостей с растениями рекомендуется ограждать бортиками высотой не менее 0,1 м.

6.16 Применяемые в качестве покрытий пола ковры должны иметь ровные или текстурные петли, либо ровно подрезанный ворс высотой не более 0,013 м на границе с поверхностью не закрываемого ковром пола.

Ковровые покрытия пола должны быть прочно закреплены, особенно по краям.

6.17 Для стеклянных перегородок на путях движения и в зонах отдыха следует применять ударостойкое безопасное стекло для строительства по ГОСТ Р 51136 с маркировкой по пункту 5.1.5 СП 59.13330.

6.18 На путях эвакуации посетителей и сотрудников на креслах-колясках в зонах безопасности перед лестницей следует выделять место для хранения эвакуационных стульев. Они предназначаются для эвакуации по лестнице инвалидов с нарушением ОДА (рисунок В.31).

(Измененная редакция. Изм. № 1)

6.19 На путях эвакуации допускается применение раздвижных дверей при условии, что:

- они включают в себя функцию «антипаника»;

- наряду с раздвижными дверями есть эвакуационные распашные двери;

- они раскрываются и фиксируются при срабатывании автоматически, дистанционно с пожарного поста (поста охраны), от кнопки у двери или механическим способом.

В местах размещения раздвижных дверей следует учитывать необходимость устройства дублирующих их распашных эвакуационных дверей с параметрами обеспечивающими требуемую пропускную способность и соответствующих требованиям нормативных документов по пожарной безопасности.

На входных дверях в специальные помещения (бойлерных, вентиляционных камер, трансформаторных узлов и т.п.), следует применять дверные ручки, на поверхность которых нанесены опознавательные насечки или неровности, ощущаемые тактильно.

(Введен дополнительно. Изм. № 1)

6.20 На перепаде отметок пола в коридорах шириной 2,4 м и более, при подъеме на сцену и т.п., допускается для сокращения площади вместо дополнительного пандуса применять лестницу-подъемник или другое подъемное устройство - рисунок В.34.

(Введен дополнительно. Изм. № 1)

6.21 Дверные наличники или края дверного полотна и ручки рекомендуется окрашивать в отличные от дверного полотна контрастные цвета.

(Введен дополнительно. Изм. № 1)

6.22 Зоны «возможной опасности» с учетом проекции движения дверного полотна должны быть обозначены краской контрастной цвету окружающего пространства.

(Введен дополнительно. Изм. № 1)

6.23 Все проходы (кроме одностороннего) должны обеспечивать возможность разворота на 180° диаметром не менее 1,4 м или на 360° диаметром не менее 1,5 м, а также фронтального (вдоль прохода) обслуживания инвалидов на кресле-коляске вместе с сопровождающим.

При ширине прохода не более 1,8 м рекомендуется предусматривать через каждые 10 - 15 м длины коридора, но не менее одного на коридор, уширение глубиной 1,8 м, длиной - 3,0 м.

(Введен дополнительно. Изм. № 1)

7 Зоны обслуживания

7.1 Помещения, часто посещаемые МГН и взаимосвязанные функциональным процессом, для удобства рекомендуется размещать компактно, на минимальном числе уровней. Желательна одноуровневая организация процессов проживания, обслуживания, трудовой деятельности инвалидов.

При наличии специальных мест обслуживания, адаптированных для маломобильных категорий пользователей, рекомендуется предусматривать их в минимальной удаленности от доступного для инвалидов входа.

Помещения, в которых могут находиться инвалиды на креслах-колясках или с недостатками зрения, следует размещать на уровне входа, ближайшего к поверхности земли. При ином размещении помещений по высоте здания, кроме лестниц, следует предусматривать пандусы, подъемные платформы для инвалидов (далее - подъемные платформы) или лифты.

При проектировании рекомендуется учитывать требования, представленные в таблице А.3.

(Измененная редакция. Изм. № 1)

7.2 При проектировании помещений и зон, предназначенных для обслуживания посетителей, следует учитывать специфику функциональной организации и эргономические параметры МГН (рисунки Г.1 - Г.7).

(Измененная редакция. Изм. № 1)

7.3 Помещения индивидуального обслуживания включают одно место индивидуального обслуживания и коммуникационную зону (зону движения/перемещения). Частным случаем являются кабины для индивидуального обслуживания (самообслуживания).

Место индивидуального обслуживания - это пространство, которое предназначается (в зависимости от вида учреждения) для: посетителя с сопровождающим; обслуживающего персонала (при его наличии); функционального оборудования и мебели для осуществления обслуживания (самообслуживания); дополнительной зоны (с резервной площадью для временного хранения кресла-коляски, дополнительного оборудования и мебели).

По заданию на проектирование место индивидуального обслуживания МГН следует оборудовать как универсальное для всех групп посетителей или, при наличии нескольких однотипных мест, как специализированное для людей, имеющих определенные нарушения здоровья.

7.4 В помещениях (кабинах) индивидуального обслуживания, предназначенных для МГН (телефонных переговорных пунктов, лингафонных кабин, экспресс-фото и т.п.), рекомендуется обеспечивать достаточное пространство для пользователя на кресле-коляске и сопровождающего его лица, но не менее - 1,6×1,8 м.

В помещениях (кабинах), предназначенных, в том числе для обслуживания инвалидов с нарушением опорно-двигательного аппарата, все реабилитационные приспособления для других категорий маломобильных посетителей (откидные места для сидения, опоры для костылей и тростей, зонтов, опорные поручни для стояния и вставания, крюки и полочки для ручной клади, телефонных справочников и т.д.) не должны снижать доступности и безопасности данного места обслуживания, а также не должны затруднять или снижать комфортность процесса обслуживания для других категорий посетителей.

В каждом помещении следует предусмотреть свободное пространство для разворота инвалида на кресле-коляске диаметром не менее 1,4 м.

7.5 Помещения коллективного обслуживания, как правило, состоят из специализированных зон с одним или несколькими местами обслуживания МГН и адаптированных коммуникаций (проходов, подходов, выходов). В ряде учреждений помещения коллективного обслуживания могут не иметь специализированных зон (вариант Б), в таком случае не менее 5 % мест обслуживания проектируют универсальными для всех категорий населения.

Коммуникационные зоны помещений обслуживания должны соответствовать требованиям раздела 6.

7.6 В помещениях при совмещении функционального обслуживания с перемещением (например, в музеях, спортзалах, супермаркетах и т.д.) рекомендуется выделять зоны безопасности, буферные и информационные полосы у стен с экспонатами и по периметру стационарного напольного оборудования или экспонатов.

7.7 Места обслуживания для МГН рекомендуется предусматривать в минимальной удаленности от адаптированного входа.

7.8 В многофункциональных помещениях рекомендуется проектировать пути целевого движения и подходы к каждой зоне обслуживания с минимальным числом пересечений различных потоков в одном уровне.

7.9 В универсальных помещениях с трансформируемым оборудованием доступность зон и мест обслуживания рекомендуется обеспечивать при всех вариантах трансформации.

Рекомендуется обеспечивать средствами информационной поддержки МГН каждый вариант трансформации помещений в соответствии с требованиями раздела 10.

В рабочей зоне помещений должно быть обеспечено выполнение комплекса санитарно-гигиенических требований к микроклимату в соответствии с ГОСТ 12.1.005, а также соблюдены дополнительные требования, устанавливаемые в зависимости от вида заболевания инвалидов.

(Измененная редакция. Изм. № 1)

7.10 Под поверхностью столов индивидуального пользования, кассовых автоматов, банкоматов и других мест обслуживания, предназначенных для посетителей на креслах-колясках, рекомендуется предусматривать свободное пространство высотой (от пола до низа ограничивающей поверхности) не менее 0,65 м и глубиной не менее 0,5 м для размещения коленей инвалида на кресле-коляске или глубиной не менее 0,25 м на высоте до 0,3 м от пола для размещения подножки кресла-коляски.

7.11 Рекомендуется предусматривать в местах обслуживания инвалидов на креслах-колясках использование приставных (откидных, выдвижных) рабочих поверхностей к столу персонала с высотой рабочей поверхности от пола не менее 0,7 м и не более 0,9 м с возможностью въехать под поверхность частью кресла-коляски.

Планированием кабины для переодевания, примерочной и т.п. должно быть предусмотрено свободное пространство размером не менее 1,5×1,5 м.

(Измененная редакция. Изм. № 1)

7.12 Проектировать оборудование индивидуальных мест обслуживания следует с учетом размеров зоны досягаемости на рабочей поверхности:

на столе для обеих рук в диапазоне от 0,25 м (от контактной кромки) до 0,7 м в зависимости от удаленности и наклона туловища;

0,3 - 0,45 м для гардероба, регистратуры (справочной), КПП, операционной и кассовой стойки при высоте рабочей поверхности от 0,8 до 0,9 м;

0,55 - 0,6 м по глубине для прилавков магазинов, пунктов приема (ремонта и чистки изделий), при высоте рабочей поверхности от 0,7 до 0,9 м.

Длину рабочей поверхности (совокупного фронта обслуживания) на одно место персонала (с учетом обслуживания и ожидания) рекомендуется принимать по функциональным производственным нормативам удельной площади рабочего места, но не менее 0,9 м - для прилавков всех видов и 1,2 м - для стола приемщика.

7.13 Для маломобильных посетителей, использующих дополнительные опоры при ходьбе (костыли и трости), в месте обслуживания предусматривается увеличение габаритов зоны сидения: ориентировочно в продольном направлении (с учетом мебели) не менее: 1,2 м - при островном размещении, (а также в зрительском ряду) или боком к столу; 0,8 м - при сидении за столом.

7.14 В таких помещениях с обслуживанием через прилавок, как гардероб, стойка администратора, операционно-кассовые залы, регистратуры, справочные, отделы, киоски продаж и т.п., место обслуживания допускается не оборудовать местом для сидения посетителей (кроме барной стойки).

При наличии разделяющих перегородок между зонами посетителя и обслуживающего персонала дополнительно к переговорным устройствам в обязательном порядке перегородки следует делать из прозрачного материала, чтобы были видны лица обслуживающего персонала для удобства инвалидов по слуху.

7.15 Ширину (глубину со стороны посетителя) прилавка, при размещении на рабочей поверхности предметов, в том числе, при необходимости их осмотра, рекомендуется принимать:

0,3 - 0,45 м для гардероба, регистратуры (справочной), контрольно-пропускного пункта, операционной и кассовой стойки при высоте от 0,8 до 1,2 м;

0,55 - 0,6 м для прилавков магазинов, пунктов приема (ремонта и чистки изделий) при высоте от 0,7 до 0,9 м.

7.16 В помещениях с местами обслуживания, имеющими стационарное специализированное оборудование (в том числе медицинские кушетки, парикмахерские и стоматологические кресла и т.п.), рекомендуется предусматривать резервную площадь для временного хранения индивидуальных реабилитационных средств в целом на помещение или непосредственно при месте обслуживания.

7.17 В помещении (зоне) обслуживания при наличии перед местом операциониста сплошных разделяющих конструкций следует обеспечивать не только визуальный, но и звуковой контакты посетителя с персоналом, в том числе и для посетителей с дефектами слуха (не менее одного места).

7.18 Расстояние до уборных, помещений для обогрева или охлаждения, полудушей, устройств питьевого водоснабжения от рабочих мест, предназначенных для инвалидов с поражением опорно-двигательного аппарата и недостатками зрения, должно быть не более:

- 60 м - в пределах зданий;

- 150 м - в пределах территории учреждения, предприятия.

Нежелательно смежное размещение мужских и женских уборных для инвалидов по зрению.

(Введен дополнительно. Изм. № 1)

8 Санитарно-бытовые помещения

8.1 Расстояние от мест обслуживания (в том числе зрительских мест) до уборных на участках спортивных, зрелищных, мемориальных, культовых комплексов и объектов погребения не должно превышать 200 м, при этом размещение санитарно-гигиенических помещений (зданий) рекомендуется в непосредственной близости от основных входов, въездов, коммуникационных узлов.

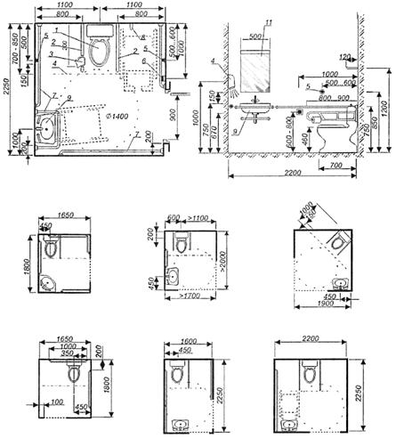
8.2 В общественных зданиях и сооружениях санитарно-бытовые помещения рекомендуется размещать на каждом уровне (этаже), где находятся посетители, а также в помещениях для матери и ребенка. Если универсальная кабина одна, то ее надо размещать на первом этаже вблизи от входа. Требования к их проектированию приведены на рисунках Г.8 - Г.13, в таблице А.3 (поз. 7 - 10).

(Измененная редакция. Изм. № 1)

8.3 В санитарно-бытовых помещениях для МГН рекомендуется предусматривать: кабины уборных, гигиенические комнаты и кабины для женщин, душевые, умывальные, комнаты и кабины матери и ребенка, а также специальные раковины для стомированных больных.

В доступной кабине и других санитарно-бытовых помещениях, предназначенных для пользования всеми категориями граждан, в том числе инвалидов, следует предусматривать возможность установки стационарных и откидных опорных поручней в соответствии с ГОСТ Р 51261.

(Измененная редакция. Изм. № 1)

8.4 Помещения санузлов и туалетные комнаты для матерей с детьми следует предусматривать в зданиях транспортно-пересадочных узлов, вокзалов, в гостиничных номерах, а также, если это предусмотрено заданием на проектирование в торговых предприятиях, музеях и выставочных залах, предприятиях общественного питания, административных зданиях, где предусмотрен прием посетителей, в зданиях для гражданских и культовых обрядов или при них.

8.5 При определении числа санитарных приборов для инвалидов в санитарно-гигиенических помещениях рекомендуется исходить из расчета (но не менее 1 на здание):

для детских учреждений:

5 % общего числа унитазов для девочек;

2 % общего числа унитазов и писсуаров для мальчиков;

не менее 1 комнаты гигиены для девочек-инвалидов в возрасте от 12 лет и более на этаже, где есть жилые комнаты (в специализированном учреждении).

Доля универсальных и доступных кабин принимается по СП 59.13330.

Следует предусматривать не менее одного санузла, оборудованного раковиной для обработки стомы, и не менее одной комнаты (кабины) матери и ребенка, адаптированной для МГН, на вокзалах и в зданиях транспортно-пересадочных узлов.

8.6 В одном санитарно-бытовом помещении уборной, где имеются доступные приборы и кабинки для инвалидов, не рекомендуется размещать более 16 приборов или кабин.

Если по расчету в здании требуется только одно место в уборной или душевой, то его рекомендуется проектировать по размерам и оборудованию универсальным для лиц обоих полов (так называемым семейным) с полным набором санитарно-гигиенического оборудования для всех категорий посетителей в соответствии с СП 59.13330. Входы в такие помещения должны быть предусмотрены отдельными, независимыми от мужских или женских санитарно-бытовых помещений. В санузлах, где в кабинах применен комплекс приборов, рекомендуется учитывать возможность пользования раковиной сидя на унитазе.

8.7 При наличии в санитарно-бытовых помещениях тамбуров-шлюзов расстояние между открытыми дверьми внутри тамбур-шлюза рекомендуется делать не менее 1,5 м. Допускается использовать в качестве тамбур-шлюзов помещения умывальных.

8.8 Расстояние между осями одиночных умывальников, ручных и ножных ванн рекомендуется не менее 0,8 м.

8.9 Один из писсуаров в уборных следует предусматривать для МГН и размещать на высоте не более 0,5 м от пола или устанавливать вертикальный напольный писсуар. Расстояние между осями писсуаров - не менее 0,8 м. Следует оборудовать писсуар для МГН поручнем.

8.10 Не менее одной из раковин в умывальной при общественной уборной, доступной для МГН, устанавливается на высоте не более 0,8 м от уровня пола и на расстоянии от боковой стены не менее 0,2 м. Желательно применение приборов с изменяемой высотой.

Нижний край зеркала и электрического прибора для сушки рук, предназначенных для пользования инвалидами, следует располагать на высоте не более 0,8 м от уровня пола.

8.11 Доступные кабины, писсуары и раковины умывальников желательно размещать в конце ряда, чтобы инвалид имел возможность без помех развернуться.

8.12 Рекомендуется гигиенические комнаты и кабины для женщин, комнаты матери и ребенка размещать смежно с уборными и умывальными для женщин.

В комнатах матери и ребенка с числом мест более двух допускается устраивать индивидуальные места для ухода за ребенком в виде кабин (полукабин). В состав комнат матери и ребенка рекомендуется включать помещения для кормления и ухода за ребенком, санузлы и умывальники. При комнатах матери и ребенка с числом индивидуальных мест более 5 рекомендуется устраивать игровые зоны (комнаты).

8.13 Для МГН следует применять унитазы с высотой от уровня пола до верха сиденья не ниже 0,45 м и не выше 0,60 м. Желательно применение санитарных приборов (умывальник, унитаз, биде) с изменяемой высотой рабочей поверхности.

При отсутствии при унитазе бачка для слива следует предусматривать дополнительную опору для спины инвалида.

(Измененная редакция. Изм. № 1)

8.14 В здании учреждений, рассчитанных на посещение маломобильных посетителей с детьми, в составе уборных рекомендуется предусматривать полукабины для детей, оборудованные детскими унитазами.

8.15 В развитие пункта 5.3.3 СП 59.13330 ширина входа в кабины общественных уборных, уборных на вокзалах и стадионах должна быть 0,9 м, в остальных случаях -0,8 м. Дверной проем в кабину душа, ванную и сауну должен быть 0,8 м.

8.16 Санитарно-бытовые помещения и/или отдельные кабины следует обозначать на планах мнемосхем для обеспечения возможности пользования ими инвалидам с нарушением зрения. У дверей таких помещений, со стороны дверной ручки на высоте 1,5 м могут быть установлены тактильные схемы размещения санитарно-гигиенического оборудования.

(Введен дополнительно. Изм. № 1)

9 Инженерные устройства и оборудование

9.1 Следует приспосабливать для возможности пользования и управления всеми категориями МГН следующие системы жизнеобеспечения и инженерного оборудования зданий и сооружений:

лифты;

платформы подъемные наклонного и вертикального перемещения для инвалидов, потолочные рельсовые системы, мобильные подъемники и другие специальные системы перемещения для инвалидов;

устройства водоснабжения и канализации;

устройства энергоснабжения и электроосвещения;

системы оповещения о пожаре;

система радиоинформирования и звукового ориентирования инвалидов по зрению;

устройства связи и сигнализации;

элементы и устройства для сбора мусора;

устройства для звукоусиления и звуковоспроизведения, теле-, видео- и кинопросмотра;

штатные устройства обеспечения доступности объекта.

К штатным устройствам обеспечения доступности объекта следует относить: стационарные опоры для движения, стояния и сидения (в том числе, поручни); специально оборудованные места для лиц с нарушениями здоровья; устройства специальной связи; откидная мебель (сиденья); инвентарные (передвижные) пандусы и мобильные подъемники для инвалидов на креслах-колясках, а также специальные эвакуационные устройства (эвакуационные стулья), предназначенные для спуска инвалида по ступенькам лестницы.

(Измененная редакция. Изм. № 1)

9.2 При подборе типа внутреннего оборудования, применяемого МГН, и его размещения необходимо учитывать его соответствие требованиям ГОСТ Р 53453. Все элементы стационарного оборудования, предназначенные для пользования МГН, должны быть прочно и надежно закреплены. Крепежные детали оборудования, выключателей, иных закрепляемых в конструкциях устройств не должны выступать за плоскость стен или закрепленного элемента. Поручни пандусов и лестниц должны соответствовать требованиям к опорным стационарным устройствам по ГОСТ Р 51261.

(Измененная редакция. Изм. № 1)

9.3 В зданиях, где могут находиться маломобильные группы населения, для обеспечения их эвакуации в чрезвычайных ситуациях рекомендуется применять лифты по ГОСТ Р 55966.

В общественных зданиях рекомендуется применять платформы по ГОСТ Р 55555 и ГОСТ Р 55556 габаритами, позволяющими разместить на платформе инвалида в кресле-коляске с сопровождающим.

Подъемные платформы оснащаются средствами диспетчерского и визуального контроля, с выводом информации на удаленное автоматизированное рабочее место оператора в соответствии с ГОСТ 55641.

Подъемные платформы для инвалидов рекомендуется размещать так, чтобы не перекрывать движение по лестницам и пандусам другим посетителям.

(Новая редакция. Изм. № 1)

9.4 При наличии в зоне массовых посещений стационарных мест для сидения свободные пространства для кресел-колясок желательно рассредоточивать по всему пространству.

Откидные стулья и скамьи не должны выступать в сложенном положении за плоскость стены, неоткидные - рекомендуется размещать в нишах или вне зоны движения.

9.5 Поручни, стойки и другие опорные устройства в соответствии с ГОСТ Р 51261 рекомендуется делать, как правило, круглого сечения диаметром не менее 40 мм и не более 60 мм (для детей - 30 мм).

Расстояние между стеной и поручнями в свету должно быть не менее 0,045 м в здании; а на улице и при негладкой поверхности стены - не менее 0,06 м (рисунок В.22).

9.6 Санитарно-бытовые помещения, доступные инвалидам, должны иметь горячее и холодное водоснабжение, канализацию, устройства мусороудаления. В случаях когда присоединение к централизованным или местным сетям затруднено или невозможно, допускается применение автономных систем водоснабжения и канализации.

9.7 Устройства связи для лиц с нарушениями зрения должны иметь цветовые и тактильные средства опознавания, а для лиц с дефектами слуха - регулируемое звукоусиление.

9.8 Таксофоны, доступные для инвалидов, следует устанавливать на высоте от 0,85 до 1,1 м от пола до оси номеронабирателя. Наружные углы кабин и полукабин должны быть закруглены.

9.9 Для лиц с дефектами слуха рекомендуется делать дополнительно к штатным индивидуальные встроенные устройства для звукоусиления и звуковоспроизведения в местах обслуживания, отдыха, ожидания.

9.10 В помещениях с регулярной программой обслуживания групп лиц с дефектами слуха рекомендуется предусматривать оборудованные подсветкой посты для переводчиков жестового языка, хорошо видимые с мест.

9.11 В помещениях рекомендуется применять неопрокидываемые урны и мусоросборники закрытого типа с расположением приемных отверстий не ниже 0,6 м и не выше 1,0 м от уровня пола.

9.12 Типы дверей, особенности их размещения, а также используемые на них механизмы и устройства, должны соответствовать требованиям СП 59.13330.

Ручки механических и ручных дверей по расположению и форме исполнения должны быть легко доступными с обеих сторон, независимо от положения двери. Не рекомендуется применение ручек утопленных в дверное полотно, а также в форме кнопки или шара.

Применение складных дверей допускается только при малых потоках людей.

На входных дверях в специальных помещениях (бойлерных, вентиляционных камер, трансформаторных узлов и т.п.), следует применять дверные ручки, на поверхность которых нанесены опознавательные насечки или неровности, ощущаемые тактильно.

(Измененная редакция. Изм. № 1)

9.13 Должны применяться механизмы, ручки, краны и другие устройства управления или регулирования, позволяющие действовать одной рукой без применения излишних усилий, а также крутых поворотов или изгибов руки в запястье. Краны следует применять рычажного действия, сенсорного или локтевого управления.

Ручки дверей, расположенных в углу коридора или помещения, должны размещаться на расстоянии не менее 0,6 м от боковой стены.

(Измененная редакция. Изм. № 1)

9.14 Тип лифта следует выбирать по ГОСТ 5746, ГОСТ 33652, ГОСТ Р 55956 и ГОСТ Р 52382.

Следует применять пассажирские лифты с кабинами, размеры которых обеспечивают размещение инвалида на кресле-коляске с сопровождающим по ГОСТ 33652 и ГОСТ 5746.

(Введен дополнительно. Изм. № 1)

9.15 Перед входом на эскалатор или пассажирский конвейер (за 2 - 3 м от линии гребенки входной площадки) должен устанавливаться тактильный предупреждающий знак «Подъемник, эскалатор».

(Введен дополнительно. Изм. № 1)

10 Информационные и сигнальные устройства, средства и их системы

(Измененная редакция. Изм. № 1)

10.1 Общие положения

10.1.1 Информационные и сигнальные устройства, средства и их системы наиболее массово применяются в общественных зданиях и сооружениях для облегчения посетителям ориентации в незнакомой архитектурной среде зданий и сооружений. Целесообразность применения и конкретный набор таких устройств и средств информации устанавливаются в задании на проектирование или при последующей разработке проекта.

Все виды сигнализации следует проектировать по ГОСТ Р 51264 с учетом их восприятия инвалидами всех категорий.

Набор групп, подгрупп и видов информационных сигнальных устройств и средств, доступных для МГН, представлены в таблице 10.1 (по ГОСТ Р 51671).

Следует использовать, в первую очередь, естественные свойства архитектурных компонентов среды, ориентирующие посетителей в пространстве.

(Измененная редакция. Изм. № 1)

10.1.2 Элементы информационной системы рекомендуется формировать в виде:

точечных (локальных) информационных средств или устройств, устраиваемых у входов в помещения, на ответственных участках путей движения, в зонах нерегулируемого движения;

линейных, состоящих из одного или нескольких средств и (или) устройств, размещаемых на протяженных участках путей движения, в крупномасштабных пространствах и помещениях с регулируемыми потоками движения; в планировочно не выраженных зонах участков;

информационных узлов, размещаемых у входов в здания, сооружения, комплексы, в вестибюлях, в холлах, на пересекающихся путях движения, в специально отведенных зонах и помещениях зданий и сооружений, а также на участках. Это комплексные ориентиры и источники информации, сочетающие множественные средства и устройства, размещенные компактно или связанно в ограниченном пространстве.

Информационные устройства могут быть визуальными (зрительными), акустическими (звуковыми) и тактильными (осязаемыми). При использовании средств информации необходимо ориентироваться на задействование как минимум двух чувств из трех (слух, зрение, осязание). При этом следует учитывать, что для слабовидящих и незрячих людей в первую очередь важны акустические и тактильные, а не визуальные ориентиры. Технические средства информирования, ориентирования и сигнализации, размещаемые в помещениях, предназначенных для пребывания инвалидов различных категорий и МГН должны соответствовать требованиям ГОСТ Р 51671, ГОСТ Р 51885 и ГОСТ Р 52131.

(Измененная редакция. Изм. № 1)

Таблица 10.1 - Информационные и сигнальные устройства и средства связи, доступные для инвалидов

Группы технических средств

Подгруппы средств информации, сигнализации и связи

Виды технических средств и устройств

1 Технические средства информации общего пользования, доступные для инвалидов

1.1 Визуальные средства отображения информации

1.1.1 Печатные носители статической информации (указатели, таблички, вывески, щиты, стенды, аппликации и т.п.)

1.1.2 Электронные носители статической и динамической информации: табло, большие экраны, дисплеи, интерактивные навигаторы, персональные мобильные навигационные системы, в том числе на базе смартфонов, средства, дублирующие звуковую информацию, и устройства сурдоперевода (для людей с недостатком слуха)

1.2 Звуковые средства воспроизведения информации

1.2.1 Акустические средства (речевые синтезаторы, речевые оповещатели, громкоговорители, репродукторы, радиопередатчики и т.п.), в том числе устройства звукового дублирования визуальной информации

1.2.2 Вспомогательные аудиосистемы с индукционными контурами FM и радиоустановками и их элементы (устройства звукового дублирования, наушники и др.)

1.3 Тактильные средства отображения информации

1.3.1 Печатные носители статической информации, выполненной рельефным шрифтом (указатели, таблички и т.п.)

1.3.2 Печатные носители статической информации, выполненной шрифтом Брайля (указатели, таблички и т.п.)

1.3.3 Тактильные модели и схемы объектов, зданий, помещений, территорий

1.3.4 Тактильно-визуальная разметка тактильные схемы, тактильно-визуальные указатели, информационные таблички и наклейки (разметка, располагающаяся на полах в зданиях и на цементно-бетонных, асфальтовых и пр. поверхностях пешеходных зон, дорожек, тротуаров

2 Технические средства сигнализации общего пользования, доступные для инвалидов

2.1 Визуальные средства сигнализации

2.1.1 Графические средства сигнализации, в том числе знаки безопасности (предупреждающие знаки)

2.1.2 Световые сигнальные устройства, в том числе световые сигнализаторы, световые маячки, светофоры

Цветные и графические сигнальные устройства, в том числе сигнальные цвета, цветовая разметка, контрастные цветовые полосы

2.2 Звуковые средства сигнализации

2.2.1 Звуковые сигнальные устройства уведомляющей сигнализации, в том числе речевые радиооповещатели, звуковые маяки

2.2.2 Звуковые сигнальные устройства аварийной и предупреждающей сигнализации, в том числе предупреждающие оповещатели, аварийные звуковые оповещатели, а также звуковые сигнальные устройства, дублирующие световые сигнальные устройства аварийной и предупреждающей сигнализации (для людей с недостатками зрения)

2.3 Тактильные средства сигнализации

2.3.1 Статические тактильные-контрастные устройства, в том числе тактильные-контрастные разметки, тактильные-контрастные полосы, в том числе выполненные из холодного пластика для тактильной разметки, тактильные-контрастные покрытия (плитки, рельефные или фактурные средства), искусственные плавные подъемы, уклоны и обочины (бордюрные камни)

2.3.2 Динамические тактильные устройства, в том числе вибрационные сигнализаторы, тактильные вибраторы

3 Технические средства связи общего пользования, доступные для инвалидов

3.1 Средства односторонней связи

3.1.1 Громкоговорители

3.1.2 Акустические системы громкоговорящей связи

3.1.3 Микрофоны

3.1.4 Ларингофоны

3.1.5 Наушники

3.1.6 Электронные навигаторы

3.2 Средства двусторонней связи

3.2.1 Громкоговорящие средства связи

3.2.2 Средства связи с усилителями приема

3.2.3 Текстовые средства связи, в том числе с «бегущей строкой», факсимильные аппараты

3.2.4 Таксофоны, в том числе с терминалом для отправки электронных писем

3.2.5 Мобильные телефоны, смартфоны

3.2.6 Персональные компьютеры с технологией специальных возможностей для слепых и слабовидящих

(Измененная редакция. Изм. № 1)

10.1.3 На каждом этаже многоуровневой стоянки автомобилей должны быть установлены информационные мониторы и указатели, обозначающие путь движения к билетному автомату, лифту и др. Указатели специализированных парковочных мест следует размещать на въезде и на каждом изменении маршрута к специализированным парковочным местам.

(Введен дополнительно. Изм. № 1)

10.2 Визуальные устройства и средства информации

10.2.1 К визуальным устройствам и средствам информации, используемым для вспомогательного управления движением и поведением посетителей (рисунки Г.14 - Г.18), относятся:

цветографические указатели и знаки, в том числе цветная разметка;

разметка и цвет элементов оборудования;

щиты, стенды, электронные информационные табло, мониторы, дисплеи;

тактильные таблички и схемы с рельефным шрифтом;

световые маяки.

(Измененная редакция. Изм. № 1)

10.2.2 Для создания визуальной информации рекомендуется использовать общеупотребительные символы и пиктограммы. Шрифт и начертание символов рекомендуется принимать по ГОСТ 10807, ГОСТ Р 52131, ГОСТ 12.4.026.

10.2.3 Знаки и символы должны иметь размеры, соответствующие расчетному расстоянию распознавания: на расстояниях до 20 м - высота и ширина знака должны быть не менее 0,3 м, на расстоянии 100 м - не менее 1,5 м. Размеры знаков, которые могут восприниматься с расстояний, имеющих промежуточные значения, следует определять по интерполяции. На указателях, размещенных под потолком помещения, на высоте более 2 м, (измеренной от пола до нижней кромки указателя), высота прописных букв надписей должна быть не менее 0,075 м. Размеры знаков, которые могут восприниматься с расстояний, имеющих промежуточные значения, следует определять по интерполяции.

В надписях рекомендуются следующие сочетания цветов:

Светлые объекты на темном фоне

Темные объекты на светлом фоне

объект

фон

объект

фон

Белый

Фиолетовый

Черный

Белый

Желтый

Темно-синий

Темно-синий

Желтый

 

Красный

 

Зеленый

 

Черный

 

 

 

Темно-зеленый

 

 

10.2.4 Буквы и цифры, изображаемые на знаках, должны иметь пропорции в пределах отношения ширины к высоте от 3:5 до 1:1, а отношение ширины штрихов к их высоте - от 1:5 до 1:10 (см. ГОСТ Р 52131).

10.2.5 Рекомендуется информацию о назначении помещения (в том числе тактильную) размещать рядом с дверью на высоте от 1,4 до 1,6 м со стороны дверной ручки.

Визуальные знаки и указатели располагаются - на высоте до 2,5 м в зонах движения по путям в зальных помещениях.

10.2.6 Освещенность поверхности надписей, знаков, символов и пиктограмм должна быть одинаковой на всей поверхности средств отображения информации. Ее значение должно составлять от 100 до 300 лк.

Цветографическое решение визуальных средств отображения информации должно соответствовать общему интерьеру зданий, сооружений и обеспечивать четкость и выразительность подачи информации.

10.2.7 Применяемые текстовые табло с переменным содержанием (матричные, бегущая строка и т.п.) должны иметь символы по ГОСТ 10807.

Экраны телемониторов и другие передающие изображение экраны следует располагать в затененных местах для обеспечения необходимой контрастности изображения. Не следует размещать экраны на стене с оконными проемами.

10.2.8. Следует применять приборы и устройства систем аварийной сигнализации с яркостью и цветностью световых сигналов, продолжительностью и частотой вспышек, соответствующих требованиям ГОСТ Р 51671.

10.2.9 Рекомендуется световые маяки предупреждающей сигнализации выполнять в виде сигнальных светильников с цветными фильтрами, излучающими импульсы света небольшой яркости.

Допускается применять маяки с постоянным светом. Цвет маяков должен быть на путях безопасного движения зеленым, в зонах повышенного внимания - желтым, а в зонах опасных или с ограниченной доступностью - красным.

Рекомендуется размещать световые маяки по оси полосы движения в помещениях на высоте не менее 2,0 м или сбоку от пути на стенах на высоте от 1,5 до 2,1 м, или на расстоянии 0,15 м от потолка любой высоты.

10.2.10 Следует графически или при помощи полей внимания, выполненных краской или из полимерного материала (в том числе из холодного пластика для тактильной разметки), контрастно выделять на полу зоны риска (например, открывания полотна двери и т.п.).

10.2.11 Малые формы благоустройства рекомендуется применять контрастных цветов и тонов по отношению к фону.

Рекомендуется окрашивать поручни, стойки и другие опорные устройства в контрастные по отношению к фону цвета и тона.

10.2.12 На путях эвакуации в общественных зданиях массового посещения допускается применение фотолюминесцентной эвакуационной системы (ФЭС) по ГОСТ Р 12.2.143.

ФЭС разрабатывается и применяется для объектов, у которых площадь и расчетная вместимость находящихся в них людей соответствуют нормативным показателям, установленным для проектирования противопожарных систем оповещения людей о пожаре. Отдельные положения ФЭС приведены в приложении Д.

(Введен дополнительно. Изм. № 1)

10.3 Акустические устройства и средства информации

10.3.1 Акустические устройства и средства предназначены для оказания помощи лицам с нарушениями зрения и слуха, а также для дублирования визуальной информации в наиболее ответственных местах. К ним относятся: звуковые маячки, шумовые индикаторы, средства звуковоспроизведения, речевые синтезаторы; индукционная петля и другие электроакустические (звукоусиливающие) приспособления (приложение Б).

Следует применять индукционные системы стационарные, узконаправленные, портативные. Места установки индукционных систем - помещения приема посетителей и ожидания, лекционные, зрительные и спортивно-зрелищные залы, фойе, учебные помещения, библиотеки, общежития и гостиничные номера, стационары социальных учреждений.

10.3.2 Рекомендуется использовать шумовые индикаторы, воспроизводящие звуки: метронома; колокольчиков или ксилофонных пластин; звуков ударных инструментов.

Рекомендуется размещать шумовые индикаторы вне полосы движения, но с приводами, реагирующими на движение по этим полосам.

10.3.3 Звуковые маячки на доступных входах в здания могут воспроизводить в автоматизированном режиме музыкальные, шумовые и речевые сообщения.

10.3.4 Следует применять сигнальные приборы и устройства уровня звука, частота, длительность и интервал звукового сигнала которых соответствуют требованиям ГОСТ Р 51671.

Насыщенность индукционного поля должна быть не менее 400 мА/м. Коэффициент восстановления автоматического регулировщика усилий (АРУ) - 125 мс.

10.3.5 Не рекомендуется размещать акустические устройства так, чтобы зоны их действия перекрывали друг друга, создавая звуковые помехи. Ограничение зон действия может выполняться путем помещения устройств в ниши или за экраны, препятствующие распространению воспроизводимых звуков в нежелательном направлении.

10.3.6 Индукционными системами - техническими средствами дополнительного озвучивания - следует оборудовать зрительные залы театров, кинотеатров, концертные залы и т.п. на уровне партера, а зрительные залы цирков, спортивных арен и т.п. - отдельными секторами.

10.3.7 Средства телефонной связи (СТС) общего применения (25 % всех средств), предусматриваемые в здании, но не менее одного, должны быть оснащены регуляторами громкости и рассредоточены по всему зданию среди всех типов средств телефонной связи общего применения. При наличии в здании одного специализированного аппарата телефонной связи его следует размещать в вестибюле или на наиболее людном этаже.

СТС, доступные для инвалидов, должны быть обозначены в соответствии с ГОСТ Р 52131.

10.3.8 Если внутри зданий, предназначенных для проведения культурно-массовых мероприятий, в том числе на стадионах и спортивных аренах, в общественных центрах, в местах развлечений и отдыха, установлены таксофоны общего применения, то, как минимум, один из них должен быть текстовым телефонным аппаратом.

10.4 Тактильные средства информации

10.4.1 Наземные тактильные поверхности, наземные и напольные тактильно-контрастные указатели должны обеспечивать возможность их быстрого и однозначного распознавания, должны быть безопасными для инвалидов и для применяемых ими индивидуальных технических средств реабилитации, должны обеспечивать возможность их уборки и очистки.

Они не должны самопроизвольно сдвигаться, зацепляться и задираться обувью или средствами реабилитации. Эти поверхности и указатели не должны усложнять условия движения людей, которые в них не нуждаются.

Для того чтобы люди с ослабленным зрением могли однозначно воспринимать предупреждающие и направляющие тактильные знаки, не рекомендуется применять ребристое покрытие на путях движения в помещениях, на площадках лифтов, лестниц и пандусов, за исключением плоских мозаичных или плиточных полов в вестибюлях и специальных тактильных направляющих или предупреждающих полос.

(Новая редакция. Изм. № 1)

10.4.2 Тактильные схемы, тактильно-визуальные указатели, информационные таблички и наклейки, информационные средства, использующие шрифт Брайля по ГОСТ Р 50918, тактильно-графический шрифт должны быть безопасными для рук и доступными для применения.

Оптимальная высота размещения средств тактильной информации в зоне путей движения на стенах - 1,2 - 1,6 м, на столах или витринах (горизонтально или под наклоном) - 0,6 - 1,1 м.

(Измененная редакция. Изм. № 1)

10.4.3 На поручнях вдоль путей движения и на их концах следует устанавливать специальные тактильные информационные и сигнальные указатели (таблички или наклейки), использующие шрифт Брайля, а также рельефные символы, буквы и цифры высотой не менее 15 мм.

(Измененная редакция. Изм. № 1)

10.4.4 Основные типы наземных тактильно-контрастных указателей, применяемых на коммуникационных путях земельных участков, и напольных тактильно-контрастных указателей, применяемых на путях движения в зданиях, и их основные нормируемые характеристики приведены в приложении Б и на рисунке Г.19.

(Измененная редакция. Изм. № 1)

Таблица 10.2 - Расстояние от внешнего края предупреждающей тактильной поверхности (полосы) до препятствия

НА УЧАСТКЕ

В ЗДАНИИ, СООРУЖЕНИИ

Бетонная, керамическая плитки (рекомендуемая высота рифта не более 5 мм для климатических зон III и IV, не более 7 мм - для климатических зон II и I) или тактильная разметка из холодного пластика и т.п.

Бетонная, керамическая плитки (рекомендуемая высота рифта не более 2,5 мм) или клеящаяся тактильная лента, или тактильная разметка из холодного пластика и т.п.

Размещение тактильной поверхности

Расстояние до преграды, ширина указателя

Размещение тактильной поверхности

Расстояние до преграды, ширина указателя

Перед первой ступенью с подступенком и после последней ступени с подступенком открытых лестниц входов и подземных переходов;

Расстояние 0,8 - 0,9 м (в особо стесненных условиях - 0,6 м). Ширина (глубина) - 0,5 - 0,6 м

Перед первой и последней ступенью с подступенком внутренней лестницы.

Расстояние 0,6 м. Ширина (глубина) - 0,3 - 0,6 м.

Перед краем верхней ступени марша, спускающегося с этажа

Специальные контрастные полосы, выполняемые профилированными, структурными лакокрасочными или полимерными материалами с низким коэффициентом скольжения на первой и последней ступенях марша с подступенками

На расстоянии 0,03 - 0,05 м от края проступи. Ширина (глубина) - 0,15 м

Специальные контрастные полосы, выполняемые профилированными, структурными лакокрасочными покрытиями с низким коэффициентом скольжения на первой и последней ступенях марша с подступенками

На расстоянии 0,03 - 0,05 м от края проступи. Ширина (глубина) - 0,15 м

Перед столбами, рекламными тумбами, скамьями (в рекреационных зонах на основных путях движения), дорожными знаками, деревьями на путях движения и пр.

Расстояние 0,5 - 0,6 м перед препятствием или вокруг него (как альтернатива - изменение типа дорожного покрытия (асфальт - плитка, гранитный отсев и т.п.). Ширина (глубина) - 0,5 - 0,6 м

Перед раздвижными дверями при входе; перед распашными дверями перед тамбуром (в качестве альтернативы можно использовать цветовые контрасты дверей, поручни с указателями, световые указатели)

Расстояние 0,6 м (полотно двери по направлению движения). Ширина полотна двери +0,6 м (полотно двери против направления движения). Ширина (глубина) - 0,5 - 0,6 м

Перед эскалаторами в переходах, конкорсах

Расстояние 0,5 - 0,6 м перед площадкой эскалатора по ширине движущейся ленты эскалатора. Ширина (глубина) - 0,15 м.

Перед эскалаторами, траволаторами

Расстояние 0,5 - 0,6 м перед площадкой эскалатора, траволатора по ширине движущейся ленты. Ширина (глубина) - 0,15 м

Предупреждающая тактильная полоса вдоль стены здания или сооружения

На расстоянии 0,9 - 1,0 м от стены здания или сооружения. Ширина 0,3 - 0,5 м (уточняется по месту)

 

 

Предупреждающая тактильная полоса перед навесным оборудованием, выступающим более чем на 0,3 м от плоскости стены, перед опорой (рекламные щиты, таксофоны)

Расстояние 0,6 м перед проекцией выступающего навесного оборудования. Ширина 0,3 - 0,5 м (уточняется по месту)

Предупреждающая тактильная полоса перед навесным оборудованием, выступающим более чем на 0,3 м от плоскости стены, перед опорой (рекламные щиты, таксофоны, кассовые автоматы и т.п.)

Расстояние 0,6 м перед проекцией выступающего навесного оборудования. Ширина 0,3 - 0,5 м (уточняется по месту)

Предупреждающая тактильная полоса вдоль платформы

На расстоянии 1,0 - 1,1 м от края платформы. Ширина 0,3 - 0,5 м (уточняется по месту)

Предупреждающая тактильная полоса вдоль платформы

На расстоянии 1,0 - 1,1 м от края платформы. Ширина 0,3 - 0,5 м (уточняется по месту)

Направляющая тактильная полоса: вдоль тротуара, площади, набережной, дорожке на участке и т.п.

Ширина не менее 0,5 м.  Устанавливается по месту

Направляющая тактильная полоса: на основном пути следования, в вокзалах; аэропортах и других больших пространствах: вдоль стены, экспозиции и т.п.

Ширина полосы не менее 0,5 м

Предупреждающая тактильная полоса перед зеброй наземного перехода и пересечением пешеходных путей движения с транспортными проездами на нерегулируемых переходах

0,8 - 0,9 м (в особо стесненных условиях - 0,6 м). Ширина (глубина) -  0,5 - 0,6 м

Направляющие дорожки в универсальной или доступной уборной; в душе

Ширина дорожки не менее 0,3 м от двери к унитазу; к душевой сетке

Открытые пространства под лестницей с высотой в чистоте 2,0 м и более

Искусственное препятствие под/перед опасным местом

Открытые пространства под лестницей с высотой в чистоте 2,0 м и менее

Искусственное препятствие под/перед опасным местом

Предупреждающее тактильное покрытие у мнемосхемы у входа на участок и т.п.

По 0,6 м спереди и по бокам 0,6×0,6 м

Предупреждающее тактильное покрытие: у мнемосхемы, у кнопки вызова лифта, у сигнальной кнопки вызова и т.п.

По 0,6 м спереди и по бокам 0,6×0,6 м

Примечания

1 Тип рисунка тактильной плитки следует определять по ГОСТ Р 52875.

2 Ширина (глубина) тактильных полос входит в нормируемые размеры расстояний (согласно СП 59.13330).

3 Тактильные предупреждающие поверхности должны иметь, как правило, контрастную окраску.

Приложение А

(рекомендуемое)

Требования доступности к элементам зданий и участкам


Таблица А.1 - Требования к участкам и их элементам

Объект

Требования по критериям

доступности

безопасности

информативности

комфортности

1

2

3

4

5

1 Ограждения участка

-

1.1 Отсутствие выступающих элементов у ограждений на опасной высоте

1.1 Обеспечение возможности ориентироваться через ограждение

1.1 Устройство встроенных или пристроенных мест отдыха

1.2 В качестве живой изгороди следует использовать нетравмирующие древесно-кустарниковые породы

1.2 Включение в ограждения (заграждения) элементов опознавания и заблаговременного оповещения

1.2 Устройство поручней вдоль живой изгороди

2 Входы и въезды на участок

-

2.1 Тактильные полосы перед входом на участок

2.1 Архитектурное и световое (в темное время суток) выявление проходов

2.1 Наличие маркировки, разметки проходов

3 Пешеходные пути движения

3.1 Устройство поворотных и разворотных площадок, в том числе в тупиковых элементах путей пешеходного движения

3.1 Съезды не должны выступать на проезжую часть

3.1 Обеспечение информации о месте и удаленности входов в здания, мест обслуживания и отдыха с помощью мнемосхем, устанавливаемых через 1,5 - 2,0 м после входа на участок

3.1 Наличие мест отдыха вблизи пересечений путей движения, перед входом в здание и выходом с участка

3.2 Использование ограждения, парапетов, бортиков (в том числе из зелени) для выявления безопасных путей движения на участке

3.2 Оборудование путей движения инвалидов средствами ориентации

3.3 Обеспечение обзора путей движения при их пересечении

3.3 Освещение путей движения, особенно во время работы организации, учреждения

4 Стоянки личного автотранспорта инвалидов

по СП 59.13330

4.1 Приближение пешеходных коммуникаций без пересечения с транспортным движением

4.1 Отделение от пешеходных путей с помощью знаков и указателей, предупредительных надписей с размером символа по высоте не менее 0,5 м, рифления, изменения фактуры покрытия

4.1 Создание на автостоянке мест хранения для проката различных видов средств передвижения, а также технических средств реабилитации для инвалидов

4.2 Ограждение мест риска и устройство средств  заблаговременной информации о них

4.2 Устройство средств местной связи между стоянкой и администрацией общественных зданий для вызова обслуживающего персонала

5 Озеленение

5.1 Граница озелененных эксплуатируемых площадок, примыкающая к путям пешеходного движения не должна иметь перепада высот, бордюров, бортовых камней высотой не более 0,025 м

5.1 Отсутствие озеленения, закрывающего обзор для оценки ситуации на перекрестках, опасных участках

5.1 Использование приемов ландшафтной архитектуры для выявления путей пешеходного движения, мест отдыха, мест сопутствующего обслуживания

5.1 Устройство для лиц с нарушениями здоровья крытых путей прохода в здание

5.2 Устройство грунтовых дорожек (троп) со свойствами и параметрами путей пешеходного движения

5.2 Отсутствие элементов фитодизайна, создающих: иллюзию падающих растений, затененность проходов и проездов, а также выступающих крон, стволов, корней

5.2 Применение линейных посадок деревьев и кустарников для формирования кромок путей пешеходного движения

5.2 Создание озелененных зон отдыха с применением пород, обеспечивающих оздоровительный эффект

5.3 Для озеленения участка следует применять нетравмирующие древесно­кустарниковые породы

5.3 Отсутствие затенения озеленением сигналов, информационных устройств, ограждений опасных мест

5.3 Применение цветочных ковров для дублирования информационных указателей

6 Элементы благоустройства, малые формы, реклама

6.1 Применение элементов благоустройства, позволяющих использовать их сидя на кресле-коляске

6.1 Отсутствие в информации для инвалидов надписей и символов, которые могут быть истолкованы неоднозначно и создавать угрозу стресса.

6.1 Подсветка или световая маркировка мест размещения элементов благоустройства, входов в беседки, павильоны, парковые сооружения в темное время суток

6.1 Расположение элементов благоустройства вблизи путей пешеходного движения

6.2 Элементы рекламы, благоустройства и информационные знаки не должны закрывать видимость адаптированного входа, площадок на путях движения

6.2 Отсутствие помех для восприятия информации, в том числе ослепления средствами рекламы

6.2 Асинхронность (разновременность) предоставления информация различными средствами для исключения помех

6.2 Размещение элементов благоустройства с учетом наименьшего числа поворотов для их использования

6.3 Устройство опор (поручней и т.п.) для отдыха у мест пользования элементами благоустройства

7 Специализированные площадки (с местами обслуживания)

-

7.1 Размещение и оборудование мест обслуживания на участке аналогичны к требованиям безопасности, местам обслуживания в зданиях

7.1 Применение архитектурных, в том числе ландшафтно-архитектурных, приемов для узнавания назначения объектов и входов на площадки, а также в зоны обслуживания

7.1 Соединение подходов к площадкам кратчайшими путями движения. При наличии площадок для собак-поводырей, минимальная площадь клеток 1,5 м2

8 Площадки и места отдыха

8.1 Размещение мест отдыха и ожидания вне габаритов путей движения, но вблизи них

-

8.1 Информационное обеспечение мест отдыха

8.1 Применение теневых навесов, тентов для защиты от перегрева и осадков

8.2 Защита от посторонних шумов мест тихого отдыха

8.3 Обеспечение визуального восприятия панорам с мест отдыха, а также декоративных объектов ландшафтной архитектуры

(Измененная редакция. Изм. № 1)

Таблица А.2 - Требования к входным узлам

Объект

Требования по критериям

доступности

безопасности

информативности

комфортности

1

2

3

4

5

1 Входы в целом

1.1 Устройство входов в одном уровне с подходами

1.1 Подсветка лестниц и пандусов в темное время суток работы учреждения, организации

1.1 Выделение архитектурными средствами иерархии входов, если это не противоречит художественной части проекта

1.1 Устройство мест отдыха перед входом и после него

1.2 Оборудование входа автоматически открывающимися дверьми, а также лифтами или подъемниками (при входе на разных уровнях) (ГОСТ 5746, ГОСТ 33652 и ГОСТ Р 55555, ГОСТ Р 55556)

1.2 Размещение тактильных указателей на неподвижных элементах

1.2 Подсветка входов в темное время суток

1.2 (Б) Устройство у полос движения опор, удобных для всех лиц с нарушениями здоровья

1.3 Устройство маркировки входов, включение в архитектуру входов знаков, пиктограмм или указателей доступности здания, сооружения

1.3 Применение универсальной фурнитуры (ручек и т.п.), удобной для пользования как здоровым, так и лицам с нарушениями здоровья

1.4 Кнопка вызова сопровождающего в здание

2 Входные площадки и портики

2.1 Выделение и оборудование полос движения пешеходов и инвалидов на креслах- колясках на транспортно­пешеходных пандусах. Обеспечение габаритов входных площадок, достаточных для расхождения встречных потоков посетителей, а также потоков пешеходов и автотранспортных средств

2.1 Разделение в зонах входов, на пандусах, площадках, в портиках потоков движущихся пешеходов и инвалидов на креслах-колясках и механических колясках

2.1 Устройство перед входом на расстоянии 0,8 м предупредительных знаков или разметки, тактильных и акустических указателей (в том числе рифленых покрытий площадок и полов)

2.1 Размещение при входах элементов благоустройства и средств связи с администрацией

2.2 Ширина полосы транспортного въезда (проезда) у входа должна быть не менее 3 м

2.2 На криволинейных пандусах минимальный радиус с внутренней стороны кривизны должен быть не менее 2 м при пешеходном движении

2.2 Разметка зон и путей движения на входе с выделением зон ожидания (расхождения) и поворотных площадок

 

2.2 Защита движущихся элементов (эскалаторов и транспортеров) от атмосферных осадков

2.3(Б) Разметка автостоянок должна учитывать, что расстояние от открытых дверей транспортного средства до баз колонн портиков, балюстрад, парапетов, должно быть не менее 0,5 м

2.3 На площадках и портиках с возможностью проезда автотранспорта расстояние от входов до марша пандуса должно обеспечивать остановку транспортного средства на горизонтальном участке пути не ближе 1 м от ближайшего дверного проема с учетом открытых дверей

2.3 Размещение на площадках и в портиках информационных устройств, табло, щитов с информацией о назначении, планировке и режиме работы объекта обслуживания

2.3 Устройство подогрева в холодное время года покрытия полов на площадках, пандусах и лестницах

2.4 Лестницы с двух-, трехсторонним спуском следует оборудовать поручнями, крепящимися к фасадной поверхности или на самостоятельных опорах

2.4 Устройство козырьков над входными площадками и лестницами

3 Тамбуры

3.1 Ширина тамбура должна быть не менее 1,5 м

3.1 Отсутствие в тамбурах, а также на расстоянии не менее 1,5 м от них, ступеней

3.1 Применение прозрачных панелей из противоударного стекла в дверях. Нижняя кромка панели не выше 0,9 м от пола

3.1 Осевая организация движения

3.2 Наличие мест расхождения (ожидания) с карманами глубиной, перпендикулярно проходу, не менее 0,9 м и длиной в направлении пути не менее 1,5 м

3.2 Исключение из отделки стен тамбуров зеркал и других блестящих поверхностей

3.2 Выделение фактурой, цветом, иными средствами для распознавания прозрачных входных дверей

3.2 Применение дренажей (устранение избытка атмосферной влаги по нормам) и подогрев пола

(Измененная редакция. Изм. № 1)

Таблица А.3 - Требования к основным функциональным помещениям

Объект

Требования по критериям

доступности

безопасности

информативности

комфортности

1

2

3

4

5

1 Входы

по СП 59.13330

1.1 Обозначение зоны «возможной опасности» с учетом проекции движения дверного полотна

1.1 Тактильные мнемосхемы, информирующие о расположении помещений или мест получения услуги и направление движения к ним. На расстоянии 1,5 - 2,0 м от входа с правой стороны

1.1 Устройство автоматического открывания и блокировки дверей

1.2 Наличие предупреждающей информации о размещении входа в искомое помещение на подходе к нему

1.3 Выделение дверного проема за счет пластических, графических звуковых и световых средств информации

2 Зоны движения в функциональных помещениях

по СП 59.13330

по СП 59.13330

2.1 Предупредительная световая и (или) звуковая информация о возможности войти в помещение (при индивидуальном обслуживании по очереди)

2.1 Автоматическое включение, отключение и регулирование осветительных приборов, гарантирующих достаточный уровень освещенности

2.2 Выявление информационными средствами, в том числе архитектурными, ориентиров движения к месту обслуживания в зальных помещениях

3 Зоны и места обслуживания

3.1 Размеры зоны круговой досягаемости диаметром не более 2 м при использовании стационарных вращающихся стульев (кресел)

3.1 Размещение опорных поручней в кабинах с учетом удобства пользования (самими поручнями и другими устройствами и приспособлениями), при наличии стационарных элементов - их совмещение с поручнями (встраивание)

3.1 Наличие функциональной маркировки зон и мест обслуживания.

3.1 Наличие переговорных устройств, таксофонов с возможным усилением звука и синхронной визуальной информацией (табло) в адаптированных функциональных кабинах

3.2 Предупреждающая контрастная маркировка консольно выступающих ручек, рычагов, крючков, горизонтальных панелей и т.п.), размещение, исключающее их случайное задевание

3.2 Контрастная маркировка контактных деталей функционального оборудования.

3.2 Использование посетителями у рабочих столов персонала выдвижных консолей или переносных приспособлений для письма, устойчивых к сдвигу и опрокидыванию

3.3 Устойчивость к сдвигу и опрокидыванию стационарного оборудования и мебели

3.3 Информация о наличии и размещении адаптационных устройств и приспособлениях

3.3 (Б) Использование столов для индивидуальной работы со специальными приспособлениями (в том числе для захвата и удержания предметов)

3.4 Отсутствие травмоопасных элементов (фурнитуры, выступов и фактуры контактных поверхностей) мебели и стационарного оборудования

3.4 Размещение тактильной информации в зоне оптимальной досягаемости от рабочих поверхностей мест обслуживания

3.4 Размещение мест для лиц, сопровождающих инвалидов на креслах-колясках, в непосредственной близости от них

4 Вестибюли и атриумы

4.1 Размещение в уровне входа

4.1 При организации кольцевой развязки движения, разметку и информационные ориентиры размещать по периметру против часовой стрелки

4.1 Установка аудио- и видеоинформации о путях движения по зданию, сооружению или комплексу и о размещении мест обслуживания и отдыха

4.1 Оборудование зон отдыха (ожидания) телемониторами, кулерами, торговыми автоматами

4.2 Разделение зон движения и ожидания у регистратур, столов справок, киосков; выделение достаточной площади для максимального расчетного числа пользователей

4.2 (Б) Выделение части помещения, адаптированного для инвалидов и маломобильных лиц

4.2 Размещение подвесных и настенных указателей, табло, знаков с учетом оптимального угла зрения

4.2 При открывании дверей наружу заглубление дверных проемов вглубь окружающих помещений

4.3 Закрепление турникетов, барьеров, мест сидения, подвижных опор, исключающее их опрокидывание или сдвиг

4.3 Выделение полос движения инвалидов на креслах-колясках

5 Помещения приема, справочные, бюро пропусков, КПП

5.1 При организации входа в разных уровнях допускается размещение бюро пропусков на нижнем уровне

5.1 Аналогично требованиям к вестибюлям

5.1 Аналогично требованиям к вестибюлям

5.1 Организация мест ожидания с местами для инвалидов или маломобильных лиц

5.2 Устройство специальной линии пропуска в здание инвалидов и маломобильных лиц с необходимым обустройством маркировкой, информационными устройствами

5.2 Устройство обменных пунктов кресел- колясок для посещения объекта обслуживания по пропуску через КПП

6 Гардеробы

6.1 Расстояние между вешалками или стеной и вешалкой должно быть не менее 1,5 м, высота крючков - не более 1,3 м

6.1 Скругление выступающих деталей и углов прилавка с радиусом не менее 0,05 м

6.1 Дополнительная подсветка указателей и вешалок гардероба, доступного для инвалидов

6.1 В зданиях с регламентированным посещением предусмотреть возможность смены обуви и кресел-колясок с организацией мест их хранения (в музеях, медицинских и детских учреждениях)

6.2 Выделение у прилавка гардероба зоны, оборудованной поручнями для лиц с нарушениями здоровья

6.2 Устройство скамей шириной не менее 0,6 м для одевания инвалидов, а проходы между скамьями - не менее 1,2 м.

6.3 Для самостоятельного пользования лицами на креслах-колясках гардеробных рекомендуются вешалки с ленточной автоматизированной системой передвижения крючков

7 Уборные, умывальные и гигиенические кабины

7.1 Нижний край зеркала, электрополотенца и держателя туалетной бумаги на высоте не выше 0,8 м от пола, зеркала - над столиком умывальника не выше 1,0 м от пола, а крючка или вешалки - не выше 1,3 м от пола

7.1 Двери туалетных кабин должны открываться наружу

7.1 Установка сигнальных устройств у кабины (занято/свободно)

7.1 Визуальное обособление зон, предназначенных для лиц с ярко выраженными физическими дефектами (ширмы, занавеси и шторы)

7.2 Оборудование поручнями (подвесными трапециями) доступных и универсальных уборных и умывальных

7.2 Применение нескользких при намокании материалов полов

7.2 Применение контрастного цветового решения в интерьере кабины и умывальной зоны для лиц с нарушениями зрения

7.2 Применение торговых автоматов для индивидуальных гигиенических изделий

7.3 Размещение трапов и сливов - вне зоны движения

7.3 Предусмотреть тактильный путь в санитарно-бытовых помещениях к доступным кабинкам и в кабинке - к унитазу

7.3 Устройство вешалки и места для временного размещения кресел-колясок, костылей, протезов и т.п.

8 Душевые и ванные

8.1 Габариты кабины не менее чем 2,1×1,8 м при оборудовании биде

8.1 То же, что и для уборных

8.1 То же, что и для уборных

8.1 Оснащение душевой кабины горизонтальными (на высоте 0,6 и 0,9 м) и вертикальными опорными поручнями (низ на высоте 0,75 м), а также скамьей размерами 0,5×0,5 м на высоте 0,5 м от пола. Желательно устройство откидной скамьи

8.2 Площадь душевых (включая преддушевую) для инвалидов - не менее 5 м2

8.2 Каменка должна быть защищена съемной защитной решеткой

8.3 Оборудование поручнями и подвесными трапециями душевых, ванных и раздевальных, используемых инвалидами

9 Сауны и бани

9.1 Между входной дверью и полками в помывочной бани необходимо свободное пространство площадью не менее круга диаметром 1,5 м

-

-

9.1 Устройство в раздевальных и на обходных дорожках в моечных помещениях специальных мест для хранения кресел-колясок и других индивидуальных средств вспоможения при передвижении

9.2 Полки в парильной оборудуются опорными поручнями

9.2 Устройство на двери парильной наклонной ручки из дерева, расположенной по диагонали двери

9.3 Краны в душевых должны располагаться на высоте не более 1,3 м

10 Комнаты (кабины) матери и ребенка

10.1 Оборудование кабин, используемых маломобильными женщинами, поручнями и подвесными трапециями

10.1 То же, что и для уборных

10.1 То же, что и для уборных

10.1 То же, что и для уборных. Дополнительно должно быть кресло, тумба для вещей, прибор для утилизации мусора

10.2 Применение пеленальных столиков и подвесных кресел с фиксирующими устройствами для ребенка

(Измененная редакция. Изм. № 1)

 


Приложение Б

(справочное)

Основные типы наземных тактильно-контрастных указателей, применяемых на коммуникационных путях

(Измененная редакция. Изм. № 1)

Таблица Б.1

Тип указателя

Назначение

Нормируемые характеристики (параметры)

Предупреждающий указатель с усеченными конусами (куполами), расположенными в шахматном порядке

Предупреждает инвалида по зрению о наличии на пути следования непреодолимых препятствий (столб, опора, тумба, ограждение, стена и т.п.) или зоны повышенной опасности (край платформы, не огражденный берег водоема, стена здания, имеющая выступающие части). Не разрешает пересечение указателя, разрешает движение вдоль него

Глубина указателя от 0,5 до 0,6 м. Ширина указателя перед одиночными препятствиями определяется в зависимости от размеров препятствия, находящегося на пути следования

Предупреждающий указатель с усеченными конусами (куполами), расположенными в линейном порядке

Предупреждает инвалида по зрению о наличии на пути следования преодолеваемых препятствий (лестницы, отдельные ступени, пандусы, входные группы, эскалаторы и траволаторы). Разрешает пересечение указателя и дальнейшее движение с осторожностью

Глубина указателя от 0,5 до 0,6 м. Ширина определяется в зависимости от ширины преодолеваемого препятствия, но не менее 1 м

Предупреждающий указатель с продольными параллельными рифами, ориентированными в направлении движения

Предупреждает инвалидов по зрению о предстоящем выходе на пешеходный переход или о пересечении проезжей части. Задает направление движения до аналогичного указателя на противоположной стороне перехода (проезжей части)

Глубина указателя от 0,5 до 0,6 м.

Ширина определяется разрешенной шириной перехода или места пересечения проезжей части. Размещается параллельно краю проезжей части на расстоянии от него до ближайшей грани полосы указателя 0,3 м, направление рифов соответствует оси перехода

Предупреждающий указатель с продольными диагональными рифами

Предупреждает инвалидов по зрению о наличии пешеходного перехода, расположенного перпендикулярно к оси тротуара или пешеходного пути. Определяет направление движения в сторону перехода

Глубина указателя от 0,5 до 0,6 м.

Ширина определяется шириной тротуара или пешеходного пути. Расстояние между продолжением условной линии, проведенной по ближайшей внешней стороне границы пешеходного перехода и ближайшей к ней границей указателя 0,3 м

Указатель «Поле внимания» с усеченными конусами (куполами), расположенными в линейном порядке

Обозначает точки (места) начала и окончания тактильно обозначенных путей следования, их пересечения, а также примыкания одного пути к другому

Выполняется в виде квадрата размерами 0,6×0,6 м

Направляющие указатели с тремя продольными параллельными полосами для тактильного обозначения безопасного пути следования в одном направлении

Применяются совместно с указателем «Поле внимания» для формирования тактильно обозначенной полосы, вдоль которой (с правой стороны от нее) обеспечивается безопасное движения инвалидов по зрению в одном направлении

Ширина указателя 0,15 - 0,2 м. Длина соответствует протяженности безопасного пешеходного пути, на котором отсутствуют какие-либо препятствия, а также примыканию (ответвлению) или пересечению других тактильно обозначенных путей

Направляющие указатели с шестью продольными параллельными полосами, с двумя разнесенными группами по три продольных полосы каждая, для тактильного обозначения безопасного пути следования в двух направлениях

Применяются совместно с указателем «Поле внимания» для формирования тактильно обозначенной полосы, внутри которой обеспечивается безопасное передвижение инвалидов по зрению

Обустраиваются только при использовании технологии холодного пластика. Ширина указателя 0,6 м, расстояние между двумя группами полос - 0,3 м, ширина каждой тактильной полосы и промежутков между ними - 0,03 м. Длина соответствует протяженности безопасного пешеходного пути, на котором отсутствуют какие-либо препятствия, ответвления (примыкания) или пересечения

Направляющий указатель «Полоса обхода значимого объекта» с шестью продольными параллельными полосами

Применяется для обозначения пути обхода вдоль внешних протяженных границ значимых объектов (объектов притяжения), например павильонов, установленных на остановках общественного транспорта. Разрешает движение вдоль указателя параллельно тактильным полосам, запрещает пересечение указателя

Обустраивается только при использовании технологии холодного пластика. Глубина (ширина) указателя - 0,33 м, ширина каждой тактильной полосы и промежутков между ними - 0,03 м.

Указатель «Поле получения услуги» с девятью продольными параллельными полосами, ориентированными перпендикулярно к направлению движения

Применяется для обозначения места получения определенной услуги - площадки перед окном кассы, справочного или информационного бюро, регистратуры, прилавка магазина, сервисного центра и т.д.

Обустраивается только при использовании технологии холодного пластика. Глубина указателя - 0,50 м, ширина каждой тактильной полосы и промежутков между ними - 0,03 м. Ширина должна соответствовать размерам места получения услуги, но не менее 1 м

Предупреждающий контрастный указатель для обозначения крайних ступеней лестничного марша

Обозначение контрастными полосами первой и последней ступеней, с подступенками, на лестничных маршах лестниц или группах ступеней, не являющихся лестничным маршем. Контрастные полосы одновременно используются в качестве противоскользящего покрытия

Глубина указателя - 0,1 м. Коэффициент сцепления - от 0,4 до 0,7

(Новая редакция. Изм. № 1)

Приложение В

(справочное)

Параметры архитектурной среды, доступной для инвалидов

(Новая редакция приложения В. Изм. № 1)

Рисунок В.1 - Габариты кресла-коляски

площадка для размещения
инвалида в кресле-коляске.

Рисунок В.2 - Габариты кресла-коляски

А - при боковом доступе
Б - при фронтальном доступе

Диапазон досягаемости для бокового доступа

Возраст ребенка

Н

Н1

от 3 до 4

50

92

от 5 до 8

46

102

от 9 до 12

40

112

Рисунок В.3 - Габариты кресла-коляски школьника

А - поворот на 90 градусов; Б - разворот на 180 градусов

Примечание - В скобках даны размеры для кресла-коляски школьников.

Рисунок В.4 - Параметры занимаемой зоны при вращении и движении
МГН на кресле-коляски

________

* Высота до маркировки на столбе

Примечание - Ширина тактильной полосы входит в габариты предупреждающей зоны.

Рисунок В.5 - Преграды на путях движения около зданий

Рисунок В.6 - Преграды на путях движения

Съезд с тротуара

Дорожка на участке

________

* Допускается уклон увеличивать до 1:10 (10 %) в затесненных условиях

Рисунок В.7 - Организация путей движения на участке

Рисунок В.8 - Площадки для отдыха на пешеходных путях

Габариты зоны стоянки автомобилей инвалидов

Обозначение мест стоянки автомобилей, управляемых инвалидами

Организация места для транспорта инвалидов вдоль тротуара (в кармане)

Рисунок В.9 - Стоянки автомобилей

Загрузка с помощью автомобильного подъемника

Загрузка с помощью трапа-аппарели

Рисунок B.10 - Параметры зоны посадки-высадки из автотранспорта
инвалида на кресле-коляске

Рисунок B.11 - Габариты полосы движения

Минимальные габариты полосы движения для детей-инвалидов

Рисунок В.12 - Параметры зон движения инвалидов

Рисунок В.13 - Размеры поворота и разворота кресла-коляски

Рисунок В.14 - Параметры и пропускная способность коридоров

Рисунок B.15 - Ниши в коридорах

А, Б - сохранение пропускной способности коридоров;
В - безопасное размещение смонтированных на стене объектов;
Г - заглубление объектов в нишу

Рисунок В.16 - Преграды в коридорах

А, В - допустимые параметры вертикальных преград, размещаемых параллельно стене;
В - параметры опознавательной ступени;
Г - допустимые параметры предмета, закрепленного на опорах;
Д - допустимая высота преграды над головой

Рисунок B.17 - Преграды на путях движения

А и Б - параметры свободной площадки перед распашной дверью со стороны ее открывания;
В - проход через турникет; Г - минимальные размеры зоны перед входом при фронтальном
подъезде; Д - то же при боковом подъезде к двери

Рисунок В.18 - Параметры входных площадок

Минимально необходимая зона перед входом

Минимально необходимая площадка перед входом

Вероятные ситуации на площадках перед входом

________

* При новом строительстве.

Рисунок В.19 - Площадки перед входами

Измерение проемов входных дверей

________

* При новом строительстве

Рисунок В.20 - Входные тамбуры

Двойной тамбур

Портик

________

* При новом строительстве

Рисунок B.21 - Площадки перед тамбуром и портиком

В здании

На открытом пространстве

Параметры тактильных контрастных полос на ступенях

Рисунок В.22 - Предупреждающие контрастные и тактильные полосы

В общественных зданиях

А - минимальные параметры лестничной клетки;
Б - максимальные параметры ступени;
В - принцип устройства поручня в общественных местах;
Г - допустимые параметры внутренней лестницы в жилой ячейке;
Д - соотношение ширины преступи и высоты подступенка

Рисунок В.23 - Лестницы в общественных зданиях и жилой ячейке

Предохранение от непроизвольного попадания
в подлестничное пространство

Рисунок В.24 - Параметры лестниц

Рисунок B.25 - Безопасная зона для инвалидов на лестничной клетке

Рисунок В.26 - Основные параметры пандусов

Промежуточные площадки

Конечные площадки

Рисунок В.27 - Площадки пандусов

Оптимальные габариты папертного сечения поручней и перил

Элементы, фиксирующие окончание поручня

Рисунок B.28 - Форма и габариты поручней и перил

Минимальные внутренние размерь кабины лифта и площадки перед лифтом:
А - для транспортирования больного на каталке;
Б, Г и Д - для передвигающегося в кресле-коляске
при различном расположении и открывании дверей
Размеры кабины лифта:
Б - минимальные; В, Д - оптимальные
1 - блок управления лифтом; 2 - откидное сиденье

Рисунок В.29 - Габариты лифтов

Рисунок B.30 - Оборудование лифтов

Подъемник для инвалида с сопровождающим

А - перемещение подъемника параллельно лестнице;
Б - перемещение лестничного подъемника (над ступенями);
1 - панель управления: 2 - откидное сиденье;
3 - тактильная полоса
предупреждения; 4 - откидное ограждение

Подъемник для самостоятельного перемещения инвалида

Рисунок В.31 - Параметры наклонных подъемников

Подъемные устройства на траверсах

Подвесные подъемные устройства

Рисунок В.32 - Индивидуальные подъемные устройства

Подъемники с открытой платформой

Шахтный подъемник с закрытой платформой

Рисунок В.33 - Параметры вертикальных подъемников

Лестничные подъемники

А - колесный кресельный подъемник: Б - ступенькоход; В - гусеничный подъемник.

Лестница-подъемник

Эвакуационные стулья

Рисунок В.34 - Автономные транспортные устройства

(Новая редакция приложения В. Изм. № 1)

Приложение Г

(справочное)

Эргономические параметры

Рисунок Г.1 - Зоны досягаемости инвалидов на кресле-коляске

Рисунок Г.2 - Параметры досягаемости в месте получения услуги

Боковой доступ

А - в библиотеке, магазине; Б - гардеробе; В - в раздаточных столовых

Рисунок Г.3 - Досягаемость в месте получения услуги

Раздевалки в спортивных сооружениях

Места в домах-интернатах

Рисунок Г.4 - Параметры функциональных зон

Габариты зоны перед местом обслуживания

Габариты мест размещения инвалидов на кресле-коляске

Минимальные размеры свободного пространства
для доступа к сиденьям и столам

Рисунок Г.5 - Габариты у мест обслуживания

Открытые телефоны-автоматы

Самообслуживание при фронтальном (А) и боковом (Б) доступе
к торговым и билетным автоматам

1 - домофон; 2 - термостат кондиционера; 3 - пожарная
сигнализация; 4 - выключатель: 5 - электрическая
розетка; 6 - табло, часы, бегущая строка

Варианты размещения дверных ручек

1 - ручка-скоба; 2 - ручка для самостоятельного
закрывания двери инвалидом на кресле-коляске;
3 - ручка нажимного действия

Рисунок Г.6 - Досягаемость оборудования

 место размещения дверного проема

1 - унитаз; 2 - откидывающаяся опора для рук; 3 - бумагодержатель; 4 - фен; 5 - кнопка слива воды;
6 - кнопка сигнализации; 7 - горизонтальный поручень; 8 - крючок для одежды; 9 - раковина
с туалетной полкой; 10 - рычаговый удлинитель крана; 11 - зеркало

Рисунок Г.7 - Примеры оборудования кабин общественных уборных

Умывальники

1 - раковина умывальника; 2 - рычаг управления краном: 3 - зона кресла-коляски;
4 - зеркало (при наклоне середина зеркала - на высоте 1250 мм); 5 - горизонтальная опора;
6 - полка; 7 - кнопка управления крышкой бачка; 8 - мусорный бачок; 9 - полотенце (фен)

Писсуары

1 - поручни опоры; 2 - смывной кран (ручной); 3 смывной кран (ножной);
4 - кнопка управления смывом; 5 - опора вертикалы

Рисунок. Г.8 - Умывальники и писсуары

Ванны для «сидячих» (А) и «лежачих» (Б) инвалидов.

Поручни в кабинах с ванными для «сидячих» (В) и «лежачих» (Г) инвалидов

Варианты планировки ванной комнаты

 Место размещения дверного проема

1 - поручень; 2 - съемное сиденье; 3 - сиденье откидное; 4 - зона маневрирования кресла-коляски;
5 - зона маневрирования каталки; 6 - наклонный поручень (как вариант)

Рисунок Г.9 - Функциональные зоны и примеры оборудования ванных комнат

Подъемник передвижной с гидравлическим приводом

Кулисный подъемник

________

* Максимальный вынос кулисы по горизонтали.

* Максимальное перемещение кулисы по вертикали.

Рисунок Г.10 - Примеры конструкций подъемников
для пересадки в ванну и бассейн

Непроходная кабина

Проходная кабина

Душевая кабина для инвалида на кресле-коляске

1 - поручень; 2 - душевая сетка; 3 - откидное или стационарное сиденье;
4 - занавес или раздвижная дверь; 5 - зона оптимальной доступности для
размещения кранов; 6 - вертикальный поручень; 7 - горизонтальный поручень

Рисунок Г.11 - Габариты душевых кабин

место размещения дверного проема

Рисунок Г.12 - Примеры оборудования
совмещенною санитарною узла

Параметры и пропорции символа доступности для инвалидов

1 - символ «Помещение для глухих»; 2 - зона действия оборудования, усиливающего звук микрофона
для людей, чьи аппараты снабжены Т-образным выключателем; 3 - зона действия оборудования,
усиливающего звук микрофона посредством инфракрасного излучения и место выдачи оборудования;
4 - символ «Телекоммуникационные устройства для людей с нарушением слуха»; 5, 6 - туалеты для
инвалидов; 7 - место для инвалидов, пожилых и пассажиров с детьми; 8 - стоянка транспорта
инвалидов; 9 - пути эвакуации; 10 - информационный центр (справочная); 11 - лифты для инвалидов;
12 - проходы, лифты, санитарные узлы, доступные инвалидам всех категорий, хроме «К»;
13 - пути движения для слепых с сопровождением; 14 - пути движения слепых без сопровождения

Рисунок Г.13 - Пиктограммы и символы

Обзор через оконные проемы

Зависимость размеров знака от расстояния до субъекта восприятия

Зависимость размеров знака от контраста надписи

Рисунок Г.14 - Обеспечение фронта видимости

Оптимальная высота размещения информации

Размещение информации на улице

Параметры зоны экспозиции

Рисунок Г.15 - Размещение информации

Фотолюминесцентная эвакуационная система (ФЭС)
(светящиеся в темноте полосы и знаки)

Размещение тактильной полосы перед мнемосхемой

Бегущая строка или световой маяк

Информационное табло, часы с подсветкой
циферблата и арабскими цифрами

Рисунок Г.16 - Размещение информации

Минимальная область обзора и
примеры допустимых конфигураций смотровых панелей

Размещение предупреждающей маркировки на стеклянной двери и витражах

Варианты маркировки дверей и дверных проемов

А - изменение фактуры и цвета полосы ориентации перед дверным проемом;
Б - указание направления открывания дверей;
В - выделение контрастной фактурной полосой дверного проема

Рисунок Г.17 - Примеры размещения маркировки и смотровых панелей
на входных дверях

Типы рифления тактильно-контрастных указателей
для различным видов технологии

Типы рифления тактильно-контрастных указателей
для технологии холодного пластика

Применение тактильно-контрастных указателей
на примере технологии холодного пластика

Применение тактильно-контрасных указателей
перед лифтом и лестницами

Показатель контрастности

Ls - яркость горизонтальной поверхности (кандела/м2)
Lp - яркость линий тактильно-визуальных указателей (кандела/м2)
К > 0,6 - для предупреждающей функции
К > 0,3 - для направляющей функции

Рисунок Г.18 - Тактильно-контрастные указатели

 Сообщения, получаемые индивидуально на абонентское устройство
пользователя:

«Вход о здание. Перед входом площадка - 3 ступени вверх.
Дверь открывается на себя. Ручка двери справа. Поручни с двух сторон.
Далее - тамбур. Вторая дверь в тамбуре открывается на себя.»

Рисунок Г.19 - Система радиоинформирования и ориентирования
для инвалидов но зрению

Приложение Д

(справочное)

Планировочные параметры фотолюминесцентной эвакуационной системы

(Приложение Д введено дополнительно. Изм. № 1)

Пути эвакуации от мест обслуживания или постоянного нахождения МГН допускается, по заданию на проектирование, оборудовать фотолюминесцентной эвакуационной системой в соответствии с требованием ГОСТ Р 12.2.143. ФЭС представляет собой непрерывный маршрут до эвакуационных выходов.

На путях эвакуации, (на полу, на лестницах и пандусах) размещаются направляющие полосы из фотолюминесцентного материала (ФЛМ).

На края ступеней лестничных маршей устанавливается контрастная полоса из ФЛМ с противоскользящим покрытием. Контрастность обеспечивается сочетанием зеленого цвета ФЛМ и желтого с черным противоскользящего покрытия.

Края проступи начальной и конечной ступени лестничного марша в ФЭС должны быть контрастного сочетания: зеленая полоса ФЛМ - желтая полоса анти скольжения. Края промежуточных ступеней могут быть с черной полосой антискольжения.

Накладка и контрастная полоса из ФЛМ устанавливаются на ступени на всю ширину марша и должны быть надежно прикреплены. Допускается отступать от края ступени (стены) не более 0,05 м.

Край полосы из ФЛМ может совпадать с краем ступени или отступать на расстояние не более 0,03 м. Минимальная ширина полосы ФЛМ и ширина антискользящего покрытия должны быть не менее 0,1 м.

Цвет перил должен быть контрастным по отношению к цвету поверхностей прилегающих стен. Рекомендуется применять желтый и красный контрастные цвета, которые являются последними гаснущими в сознании человека, когда он теряет сознание, поэтому в самый последний момент он сможет за них ухватиться.

Ширина направляющей полосы из ФЛМ на перилах и поручнях должна быть не мене 0,015 м. Направляющая полоса устанавливается на верхней или боковой, со стороны марша, поверхности поручней. На изгибах, поворотах и углах перил допускается делать разрыв направляющей полосы не более 0,10 м. Направляющая полоса должна быть с усиленной подложкой, исключающей непроизвольное отделение ФЛМ от поверхности перил.

Дверные проемы эвакуационных и аварийных выходов обозначаются по контуру элементами из фотолюминесцентного материала. Эвакуационные знаки изготавливаются из фотолюминесцентного материала и устанавливаются непосредственно на самой двери или на поверхности стены прилегающей к двери. Значения параметров элементов ФЭС, изготовленных из ФЛМ, приведены в таблице Д.1.

Таблица Д.1.

Параметр

Значение

Рабочее значение яркости послесвечения ФЛМ через 10 мин после активации, мкд/м2

105

Рабочее значение яркости послесвечения ФЛМ через 60 мин после активации, мкд/м2

28

Рабочее значение яркости послесвечения ФЛМ через 90 мин после активации, мкд/м2

20

Минимальное рабочее значение яркости послесвечения ФЛМ обеспечивающее требования ФЭС, мкд/м2

5

Максимальное время послесвечения ФЛМ до минимального значения 5 мкд/м2, ч

Не менее 24

Время приведения в работоспособное состояние при освещенности 60 люкс, мин

2,5

Время приведения в работоспособное состояние при освещенности 40 люкс, мин

10

Минимальная дальность видения ФЛМ направляющих полос ФЭС, м

10

Минимальная дальность видения ФЛМ эвакуационных знаков ФЭС, м

16

Стойкость ФЛМ УФЛ излучению. Потеря яркости после 1000 ч, %

< 10 %

Износостойкость ФЛМ

Определяется по дополнительной методике

Износостойкость антискользящего слоя

Определяется по дополнительной

методике

Тесты на анти скользящего покрытия

Определяется по дополнительной методике

Группа воспламеняемости не ниже

В1

Приложение Е

(рекомендуемое)

Материалы к расчету уровня пожарной безопасности маломобильных групп населения

(Приложение Е введено дополнительно. Изм. № 1)

Для учета специфики передвижения МГН по путям эвакуации следует применять дополнительные расчетные значения параметров движения МГН по ГОСТ 12.1.004.

Е.1 По мобильным качествам людей в потоке эвакуирующихся из зданий и сооружений следует подразделять на четыре группы согласно таблице Е.1:

Таблица Е.1

Группа мобильности

Общая характеристика людей групп мобильности

Средняя площадь горизонтальной проекции людей, f, м2

M1

Люди без ограничений по мобильности, в том числе с нарушением слуха

0,1

М2

Немощные люди, мобильность которых снижена из-за старения организма (инвалиды по старости); инвалиды на протезах; инвалиды с недостатками зрения, пользующиеся белой тростью; люди с психическими отклонениями

0,2

М3

Инвалиды, использующие при движении дополнительные опоры (костыли, палки)

0,3

М4

Инвалиды, передвигающиеся на креслах-колясках, приводимых в движение вручную

0,96

Е.2 Расчетные значения скорости VD и интенсивности движения потоков людей с различной группой мобильности qD следует определять по формулам:

(Е.1)

qD,j = VD,jD м/мин,

(Е.2)

где аj - коэффициент, отражающий степень влияния плотности людского потока на его скорость при движении по j-му виду пути;

D - плотность людского потока на участке эвакуационного пути, м22;

D0,j - значение плотности людского потока на j-м виде пути, при достижении которого плотность потока начинает оказывать влияние на скорость движения людей в потоке;

qD,j - интенсивность движения людей в потоке по j-му виду пути при плотности потока Di;

VD,j - скорость движения людей в потоке по j-му виду пути при плотности потока Di;

V0,j - среднее значение скорости свободного движения людей по j-му виду пути при значениях плотности потока DD0,j.

Значения D0,j, V0,j, аj, для потоков людей различных групп мобильности для формул (Е.1) и (Е.2) приведены в таблице Е.2.

Таблица Е.2

Группа мобильности

Значение параметра

Значение параметра по вицам пути j

горизонтальный

лестница вниз

лестница вверх

пандус вниз

пандус вверх

M1

V0,j

100

100

60

115

80

D0,j

0,051

0,089

0,067

0,171

0,107

аj

0,295

0,400

0,305

0,399

0,399

М2

V0,j

30

30

20

45

25

D0,j

0,135

0,139

0,126

0,171

0,146

аj

0,335

0,346

0,348

0,438

0,384

М3

V0,j

70

20

25

105

55

D0,j

0,102

0,208

0,120

0,122

0,136

аj

0,350

0,454

0,347

0,416

0,446

М4

V0,j

60

 

 

115

40

D0,j

0,135

 

 

0,146

0,150

аj

0,400

 

 

0,424

0,420

Е.3 При движении людских потоков с участием МГН на участках пути перед проемами, не следует допускать образования плотности потоков более 0,5. При этом расчетные максимальные значения интенсивности движения qmax через проем различных групп мобильности следует принимать равными; M1 - 19,6 м/мин, М2 - 9,7 м/мин, М3 - 17,6 м/мин, М4 - 16,4 м/мин.

 

Ключевые слова: требования к архитектурной среде, доступность, маломобильные группы населения, проектирование зданий и сооружений, пути движения, зоны обслуживания, санитарно-бытовые помещения, эргономические параметры.

 

 



© 2013 Ёшкин Кот :-)