Buildings and premises with working places for disebled rules of architectural design 

Информационная система
«Ёшкин Кот»

XXXecatmenu

ФЕДЕРАЛЬНОЕ АГЕНТСТВО ПО СТРОИТЕЛЬСТВУ
И ЖИЛИЩНО-КОММУНАЛЬНОМУ ХОЗЯЙСТВУ
(ГОССТРОЙ)

СВОД ПРАВИЛ

СП 139.13330.2012

ЗДАНИЯ И ПОМЕЩЕНИЯ С МЕСТАМИ
ТРУДА ДЛЯ ИНВАЛИДОВ

ПРАВИЛА ПРОЕКТИРОВАНИЯ

(С изменением № 1)

Москва 2013

Предисловие

Цели и принципы стандартизации в Российской Федерации установлены Федеральным законом от 27 декабря 2002 г. № 184-ФЗ «О техническом регулировании», а правила разработки сводов правил - постановлением Правительства Российской Федерации от 19 ноября 2008 г. № 858 «О порядке разработки и утверждения сводов правил».

Сведения о своде правил

1 ИСПОЛНИТЕЛИ ОАО «Институт общественных зданий» и ОАО «ЦНИИЭП жилища», Изменение № 1 к СП 139.13330.2012 - ООО «Институт общественных зданий»

2 ВНЕСЕН Техническим комитетом по стандартизации ТК 465 «Строительство»

3 ПОДГОТОВЛЕН к утверждению Управлением градостроительной политики

4 УТВЕРЖДЕН приказом Федерального агентства по строительству и жилищно-коммунальному хозяйству (Госстрой) от 27 декабря 2012 г. № 120/ГС и введен в действие с 1 июля 2013 г.

5. ЗАРЕГИСТРИРОВАН Федеральным агентством по техническому регулированию и метрологии (Росстандарт)

Информация об изменениях к настоящему своду правил публикуется в ежегодно издаваемом информационном указателе Национальные стандарты, а текст изменений и поправок в ежемесячно издаваемых информационных указателях Национальные стандарты. В случае пересмотра (замены) или отмены настоящего свода правил соответствующее уведомление будет опубликовано в ежемесячно издаваемом информационном указателе Национальные стандарты. Соответствующая информация, уведомление и тексты размещаются также в информационной системе общего пользования - на официальном сайте Федерального агентства по техническому регулированию и метрологии в сети Интернет

(Измененная редакция. Изм. № 1)

Содержание

1 Область применения. 2

2 Нормативные ссылки. 3

3 Термины и определения. 3

4 Общие положения. 3

5 Требования к территории предприятия. 5

6 Требования к зданиям и помещениям.. 7

6.1 Общие положения. 7

6.2 Основные помещения. 8

6.3 Вспомогательные помещения. 10

7 Рабочие места (рабочая зона) для инвалидов. 12

Приложение А (рекомендуемое). Порядок организации доступности рабочих мест инвалидов (при проектировании предприятия общего типа или учреждения) 15

Приложение Б (рекомендуемое). Требования к условиям и организации труда на рабочих местах инвалидов с различными заболеваниями. 18

Приложение В (справочное). Планировочные схемы.. 24

Библиография. 35

 

Введение

Настоящий свод правил разработан в соответствии с Федеральным законом от 30 декабря 2009 г. № 384-ФЗ «Технический регламент о безопасности зданий и сооружений» и с принципами Конвенции ООН о правах инвалидов, подписанной Российской Федерацией в сентябре 2008 года.

Настоящий Свод правил детализирует требования СП 59.13330 и может применяться совместно с другими документами в области проектирования и строительства для инвалидов и других маломобильных групп населения.

В нормативном документе реализованы требования Федерального закона от 29 декабря 2004 г. № 190-ФЗ «Градостроительный кодекс Российской Федерации», Федерального закона от 24 ноября 1995 г. № 181-ФЗ «О социальной защите инвалидов в Российской Федерации», Федерального закона от 30 марта 1999 г. № 52-ФЗ «О санитарно-эпидемиологическом благополучии населения», Федерального закона от 1 декабря 2014 г. № 419-ФЗ «О внесении изменений в отдельные законодательные акты Российской Федерации по вопросам социальной защиты инвалидов в связи с ратификацией Конвенции о правах инвалидов» [6], «Федерального закона от 28 декабря 2013 г. № 426-ФЗ «О специальной оценке условий труда»[7].

Редакция выполнена авторским коллективом: организация-исполнитель ООО «ИОЗ» (руководитель работы канд. арх., проф. А.М. Гарнец), руководитель разработки и ответственный исполнитель свода правил - канд. арх. Л.А. Викторова (ОАО «ЦНС»), организация-разработчик ОАО «ЦНИИЭП жилища» (руководитель работы канд. арх., проф. А.А. Магай).

Изменение № 1 выполнено: ООО «Институт общественных зданий» (научный руководитель работы - канд. архитектуры А.М. Гарнец) при участии АО «ЦНС» (архитектор М.И. Лежава), Ассоциации МОАБ (д-р техн. наук Г.Ш. Мирфатулаев, д-р техн. наук Ю.М. Глуховенко), НП «Доступная городская среда» (инж. В.В. Коновалова).».

(Измененная редакция. Изм. № 1)

СП 139.13330.2012

СВОД ПРАВИЛ

ЗДАНИЯ И ПОМЕЩЕНИЯ С МЕСТАМИ ТРУДА ДЛЯ ИНВАЛИДОВ
ПРАВИЛА ПРОЕКТИРОВАНИЯ

Buildings and premises with working places for disebled rules of architectural design

Дата введения 2013-07-01

1 Область применения

1.1 Данный свод правил распространяется на проектирование предприятий различных отраслей промышленности, ремонтных предприятий и других, где имеются профессии и специальности, по медицинским показателям пригодные для инвалидов и граждан пожилого возраста, а также на проектирование зданий и помещений различных организаций, административно-управленческих зданий, зданий проектных и научно-исследовательских институтов и других общественных зданий, где могут быть организованы отдельные рабочие места для инвалидов (далее - рабочее место инвалида).

(Измененная редакция. Изм. № 1)

1.2 Настоящий Свод правил не распространяется на проектирование предприятий, производственных и общественных зданий и сооружений, части зданий, сооружений, в которых по заданию на проектирование не предусмотрены места труда или доступ инвалидов, а также на организацию рабочих мест в квартирах для инвалидов-надомников.

2 Нормативные ссылки

В настоящем своде правил даны ссылки на следующие документы:

ГОСТ Р 12.4.026-2001 Система стандартов безопасности труда. Цвета сигнальные, знаки безопасности и разметка сигнальная. Назначение и правила применения. Общие технические требования и характеристики. Методы испытаний

ГОСТ 14202-69 Трубопроводы промышленных предприятий. Опознавательная окраска, предупреждающие знаки и маркировочные щитки

СП 1.13130.2009 «Системы противопожарной защиты. Эвакуационные пути и выходы»

СП 44.13330.2011 «СНиП 2.09.04-87* Административные и бытовые здания»

СП 56.13330.2011 «СНиП 31-03-2001 Производственные здания»

СП 59.13330.2016 «СНиП 35-01-2001 Доступность зданий и сооружений для маломобильных групп населения»

СП 60.13330.2012 «СНиП 41-01-2003 Отопление, вентиляция и кондиционирование воздуха»

СП 136.13330.2012 «Здания и сооружения. Общие положения проектирования с учетом доступности для маломобильных групп населения»

СП 138.13330.2012 «Общественные здания и сооружения, доступные маломобильным группам населения. Правила проектирования»

СП 148.13330.2012 «Помещения в учреждениях социального и медицинского обслуживания. Правила проектирования» (с изменением № 1)

СП 2.2.9.2510-09 «Гигиенические требования к условиям труда инвалидов»

Р 2.2.2006-05 Гигиена труда. Руководство по гигиенической оценке факторов рабочей среды и трудового процесса. Критерии и классификация условий труда

СанПиН 2.2.4.548-96 Гигиенические требования к микроклимату производственных помещений

ГН 2.2.5.1313-03 Предельно допустимые концентрации (ПДК) вредных веществ в воздухе рабочей зоны

ГОСТ Р 50602-93 Кресла-коляски. Максимальные габаритные размеры

ГОСТ Р 50918-96 Устройство отображения информации по системе шрифта Брайля. Общие технические условия

ГОСТ Р 51261-99 Устройства опорные стационарные реабилитационные. Типы и технические требования

ГОСТ Р 51671-2015 Средства связи и информации технические общего пользования, доступные для инвалидов. Классификация. Требования доступности и безопасности

ГОСТ Р 52131-2003 Средства отображения информации знаковые для инвалидов. Технические требования

ГОСТ Р 52875-2007 Указатели тактильные наземные для инвалидов по зрению. Технические требования

ГОСТ Р 52495-2005. Социальное обслуживание населения. Термины и определения

СП 140.13330.2012 Городская среда. Правила проектирования для маломобильных групп населения

Примечание - При пользовании настоящим сводом правил целесообразно проверить действие ссылочных стандартов и классификаторов в информационной системе общего пользования - на официальном сайте национальных органов Российской Федерации по стандартизации в сети Интернет или по ежегодно издаваемому информационному указателю «Национальные стандарты», который опубликован по состоянию на 1 января текущего года, и по соответствующим ежемесячно издаваемым информационным указателям, опубликованным в текущем году. Если ссылочный документ заменен (изменен), то при пользовании настоящим сводом правил следует руководствоваться замененным (измененным) документом. Если ссылочный документ отменен без замены, то положение, в котором дана ссылка на него, применяется в части, не затрагивающей эту ссылку.

(Измененная редакция. Изм. № 1)

3 Термины и определения

В настоящем своде правил применены термины по СП 59.13330 и СП 136.13330, ГОСТ Р 52495, а также следующие термины с соответствующими определениями:

3.1 индивидуальная программа реабилитации инвалида: Комплекс оптимальных для инвалида реабилитационных мероприятий, включающий в себя отдельные виды, формы, объемы, сроки и порядок реализации медицинских, профессиональных и других реабилитационных мер, направленных на восстановление, компенсацию нарушенных или утраченных функций организма, восстановление, компенсацию способностей инвалида к выполнению определенных видов деятельности.

3.2 маломобильные группы населения (МГН) (здесь): Люди, испытывающие затруднения при самостоятельном передвижении, получении услуги, необходимой информации или при ориентировании в пространстве. К маломобильным группам населения для целей настоящего свода правил отнесены: лица с ограниченными возможностями здоровья (ОВЗ); люди с временным нарушением здоровья; люди пожилого возраста, продолжающие свою трудовую деятельность.

3.3 нозология инвалидности: Классификация и номенклатура заболеваний, приведших к инвалидности.

3.4

рабочая зона: Оснащенная необходимыми средствами производства часть рабочего места, в которой один работник или несколько работников выполняют схожие работы или технологические операции.

[7, статья 16, пункт 4]

3.5 универсальная кабина для инвалида: Санитарная кабина, в которой совмещены туалет и душевая.

(Новая редакция. Изм. № 1)

4 Общие положения

4.1 Все проектируемые объекты (за исключением вредных и опасных производств, режимных объектов и объектов, на которых к работникам предъявляются особые требования по состоянию здоровья) должны быть полностью доступны для маломобильных групп населения (далее - МГН) независимо от наличия рабочих мест для инвалидов.

Принцип создания рабочих мест зависит от особенностей технологических процессов и организации производства (структуры учреждения), а также от контингента инвалидов, трудоустройство которых планируется осуществить на данном объекте. Во-первых, необходимо организовать их размещение в объемно-планировочной структуре предприятия, учреждения, здания, помещения, во-вторых, - создать доступность рабочих мест для инвалидов, в-третьих, - безопасность и комфортность этих рабочих мест, в том числе оптимальные (или допустимые) санитарно-гигиенические условия в помещениях, где размещаются рабочие места для инвалидов [1] и [3].

4.2 В соответствии с [2] органами исполнительной власти субъектов Российской Федерации устанавливается для каждого предприятия, учреждения, организации квота рабочих мест для инвалидов, при этом она должна быть не менее 2 % и не более 4 %. Квота рабочих мест, виды и группы инвалидности работников, которым может быть предоставлена работа, уточняются в задании на проектирование по согласованию с учетом предложений организации, проводящей оценку условий труда в соответствии с [7].

(Измененная редакция. Изм. № 1)

4.3 На проектируемых объектах следует создавать такие рабочие места инвалидов, которые нужны экономике региона, будут востребованы инвалидами и будут учитывать основные требования индивидуальных программ реабилитации инвалидов.

4.4 В разделе проекта «Мероприятия по обеспечению доступа инвалидов» должно содержаться описание проектных решений по обустройству рабочих мест инвалидов, их доступности в здании и на территории и безопасности [3], [4].

В проектной документации следует отразить:

обоснование принятых конструктивных, объемно-планировочных и иных технических решений, обеспечивающих безопасное перемещение инвалидов на объекте, а также их эвакуацию в случае пожара или стихийного бедствия;

размещение рабочих мест в объемно-планировочной структуре предприятия, учреждения, здания, помещения;

обеспечение доступности рабочих мест для инвалидов, безопасность и комфортность этих рабочих мест, в том числе создание оптимальных (или допустимых) санитарно-гигиенические условий в помещениях, где размещаются рабочие места инвалидов;

адаптацию основного и вспомогательного оборудования, техническое и организационное оснащение, обеспечение техническими приспособлениями с учетом индивидуальных возможностей инвалидов, а также ГОСТ Р 50918, ГОСТ Р 51671, ГОСТ Р 52131;

наличие санитарно-бытовых и других помещений, необходимых для осуществления и организации трудовой деятельности инвалидов на предприятии.

(Измененная редакция. Изм. № 1)

4.5 В зависимости от характера производства, функциональной структуры предприятия и конструктивной структуры здания рекомендуется предусматривать один из двух вариантов организации рабочих мест (кроме рабочих мест на дому):

вариант А («Универсальный проект») для нового строительства и, частично, для реконструкции и капитального ремонта - доступность для инвалидов любого места приложения труда на предприятии. При этом должно предусматриваться устройство общих путей движения, доступность для инвалидов мест приложения труда наравне со здоровыми работниками;

вариант Б («Разумное приспособление») для приспособления здания под новые функции, для реконструкции и, частично, для капитального ремонта - выделение (как правило, в уровне входной площадки) специальных помещений, зон или блоков, приспособленных и оборудованных для организации рабочих мест инвалидов, если это допустимо по технологическому процессу производства. При необходимости следует предусматривать устройство специальных входов, специально обустроенных параллельных путей движения и специально оборудованных мест приложения труда для лиц с нарушениями здоровья определенных категорий.

Если к объекту проектирования могут быть применены различные требования в зависимости от принятого варианта формы обслуживания, то после указания номера и перед текстом нормативного положения указывается индекс варианта проектного решения А или Б.

4.6 Рабочие места инвалидов на каждом конкретном предприятии или в учреждении могут быть одиночными, рассредоточенными или сконцентрированными на основных или специализированных производственных участках или цехах.

4.7 Рабочие места, присущие данному производственному процессу и пригодные для инвалидов, определяют и включают в задание на проектирование с учетом рекомендаций органов медико-социальной экспертизы, а в конкретных случаях в соответствии с «Индивидуальной программой реабилитации инвалида».

4.8 Рабочие места в зависимости от специальности (профессии), для которой они предусмотрены, и нозологии инвалидности могут быть обычными, то есть со стандартным оборудованием, или специализированными для определенной нозологии инвалидности со специализированной оснасткой и оборудованием.

4.9 Доступность рабочих мест для инвалидов должна обеспечиваться:

комплексным определением принципов их размещения, в том числе в структуре населенного пункта, предприятия, учреждения или организации;

устранением или преобразованием элементов среды жизнедеятельности городской инфраструктуры, которые могут являться барьерами на путях передвижения инвалидов от места проживания к местам приложения их труда;

информативной оснащенностью путей передвижения инвалидов от места проживания до места приложения труда;

объемно-планировочной структурой проектируемого здания (производственного, административного, общественного, в ряде случаев - жилого).

4.10 Безопасность рабочего места обеспечивается специальными защитными приспособлениями, входящими в набор его оборудования, а также созданием условий для своевременной эвакуации инвалида в экстремальных случаях, например при пожарной опасности в соответствии с требованиями, установленными в [5] и СП 1.13130.

Комфортность рабочего места обеспечивается хорошо подобранными в соответствии с физиологическими особенностями инвалида комплектом оборудования, различных вспомогательных приспособлений к нему и мебели, а также созданием необходимых санитарно-гигиенических условий в рабочей зоне.

4.11 Настоящий свод правил разработан с целью создания рабочих мест для инвалидов всех групп и большинства заболеваний, являющихся причиной инвалидности, в том числе для инвалидов, передвигающихся с помощью кресел-колясок и других вспомогательных средств.

В каждом конкретном случае в зависимости от особенностей контингента населения территориальными органами социальной защиты населения в задании на проектирование могут быть установлены требования к рабочим местам по определенным нозологиям. Однако во всех случаях должны выполняться мероприятия по обеспечению доступности рабочих мест для инвалидов, передвигающихся с помощью специальных средств, так как эти мероприятия обеспечат доступность рабочих мест для большинства инвалидов других категорий, в том числе для наиболее многочисленной группы инвалидов вследствие сердечно-сосудистых заболеваний.

5 Требования к территории предприятия

5.1 Территория предприятия (учреждения) должна быть доступна для инвалидов всех категорий, так как невозможно предусмотреть, инвалиды какой нозологии будут трудоустроены, какой контингент будет проживать в близлежащих жилых районах.

5.2 Для обеспечения доступности территории предприятия (учреждения) ее генеральный план должен формироваться в комплексе с прилегающей территорией города, поселка или другой территориальной единицы, в которую входит данное предприятие или учреждение в соответствии с правилами, установленными в СП 140.13330. При этом должны быть предусмотрены элементы, обеспечивающие связь мест проживания инвалидов с местами приложения их труда. К ним относятся: специально оборудованные остановки общественного транспорта (если это предусматривается в задании на проектирование), стоянки личного транспорта инвалидов с расположением их на расстоянии не более 50 м от контрольно-пропускных пунктов, входов на территорию предприятия или здания, где расположено рабочее место инвалида.

На предприятиях, где рабочие места инвалидов расположены на расстоянии более 300 м, автостоянки для инвалидов следует делать обособленными и размещать их в производственной зоне предприятия рассредоточенно, вблизи входов в бытовые корпуса. В этих случаях в планировке контрольно-пропускных пунктов или проходных предусматривают возможность пропуска личного автотранспорта инвалидов на заводскую территорию.

(Измененная редакция. Изм. № 1)

5.3 Число мест на автостоянке предприятия определяется в соответствии с СП 59.13330 и с учетом численности работающих инвалидов в каждом конкретном случае.

Места на автостоянке должны быть запроектированы и выполнены в соответствии с требованиями СП 59.13330.

5.4 При наличии контроля на входе на территорию предприятия следует применять к зданиям контрольно-пропускных пунктов требования СП 59.13330 и СП 136.13330.

На крупных предприятиях для обеспечения наиболее коротких связей возможно устройство дополнительных контрольно-пропускных пунктов и остановок общественного транспорта, рассредоточенных вдоль границы территории, а также размещение стоянок личного автотранспорта инвалидов непосредственно на территории предприятия вблизи цехов, где предусмотрены рабочие места инвалидов (рисунок В.1 приложения В).

5.5 Планировка территории предприятия, на котором предполагается трудоустройство слабовидящих или слепых инвалидов, должна быть предельно простой для удобства ее запоминания и ориентации в пространстве. Пешеходные и транспортные пути спроектированы по прямоугольной схеме. Рекомендуется обеспечить минимальную протяженность пешеходных путей передвижения.

5.6 При планировке территории следует избегать пересечения с транспортными потоками пешеходных путей инвалидов, пользующихся для передвижения креслами-колясками, слабовидящих и слепых инвалидов (рисунок В.2 приложения В).

Участки пешеходных дорожек и тротуаров, примыкающие к местам их пересечения с проездами, целесообразно выполнять с фактурной поверхностью покрытия, отличной от других участков дорожки или тротуара.

Должны быть предусмотрены:

- рельефные, фактурные и иные виды тактильных поверхностей путей движения на участках, дорогах и пешеходных трассах, в том числе тактильно-визуальная разметка путей движения на участках в соответствии с ГОСТ Р 52875;

- ограждение опасных зон;

- информационные устройства (мнемосхемы у входа на участок, стенды, щиты и иные объемные рекламные устройства) в соответствии с ГОСТ Р 52131;

- световые указатели;

- устройства звукового дублирования сигналов движения у входа на участок или у входа в здание.

Все тактильно-визуальные разметки на горизонтальной поверхности следует выделять контрастным цветом. Линии разметки путей движения для лиц с нарушением зрения следует выполнять с использованием наземных тактильных плиток по ГОСТ Р 52875, нанесением на поверхность краски, пластика (в том числе холодного пластика для тактильной разметки) или иными материалами, дублированными цветом.

(Измененная редакция. Изм. № 1)

5.7 Территорию предприятия или учреждения следует обеспечить системой ориентиров и информации, разработанной в каждом конкретном случае в зависимости от контингента работающих инвалидов и с учетом рекомендаций СП 136.13330.

Визуальная информация должна давать по возможности полную информацию по всему комплексу производственной деятельности, социальному и культурно-бытовому обслуживанию. В необходимых случаях визуальная информация может дублироваться звуковой в виде отдельных звуковых маяков или при помощи радиофикации всей территории.

5.8 Основные пути передвижения инвалидов с нарушениями зрения по территории рекомендуется оборудовать направляющими поручнями в соответствии с ГОСТ Р 51261, а при их протяженности, превышающей 100 м, - площадкой для кратковременного отдыха. На направляющих поручнях при входах в здания и на пересечениях путей движения рекомендуется устанавливать элементы тактильной информации.

Поручни, стойки и другие опорные устройства в соответствии с ГОСТ Р 51261 рекомендуется делать круглого сечения диаметром не менее 40 мм и не более 60 мм.

Расстояние между стеной и поручнями в свету должно быть не менее 0,045 м в здании, а снаружи и при негладкой поверхности стены - не менее 0,06 м.

(Измененная редакция. Изм. № 1)

5.9 Осветительные устройства на путях движения рекомендуется устанавливать по одной стороне дороги. Освещенность поверхности путей движения в темное время суток должна обеспечивать не менее 40 лк - при люминесцентных лампах и не менее 20 лк при использовании других видов источников освещения.

5.10 При проектировании благоустройства территории учреждения или предприятия следует учитывать, что у инвалидов определенных нозологий утраченные или ограниченные функции одних органов часто компенсируются обострением чувствительности других. Например, у слепого обостряются чувства обоняния и осязания. В связи с этим целесообразно окружающую среду проектировать достаточно разнообразной по ее цветовым, световым, фактурным, слуховым и даже обонятельным качествам. При озеленении мест пассивного отдыха на открытом воздухе рекомендуется использовать сильно пахнущие растения, что позволит слепым и слабовидящим работникам не только получать эстетическое удовольствие, но и ориентироваться на территории при выборе места отдыха.

5.11 При устройстве на территории предприятия (учреждения) площадок для активного отдыха и занятий спортом их целесообразно группировать в едином комплексе. Устройство специальных площадок для занятий спортом рекомендуется выполнять с учетом требований к открытым плоскостным сооружениям СП 138.13330.

Площадки для пассивного отдыха целесообразно рассредоточить, приближая их к входам в здания, где имеются рабочие места инвалидов.

6 Требования к зданиям и помещениям

6.1 Общие положения

6.1.1 В зданиях и сооружениях должны быть обеспечены для инвалидов условия использования в полном объеме помещений для безопасного самостоятельного осуществления необходимой деятельности с учетом требований СП 59.13330, СП 44.13330, СП 56.13330, [3], а также дополнительных условий, рекомендуемых в настоящем своде правил.

Объемно-планировочные решения производственных и других зданий, в которых предусматриваются рабочие места инвалидов, рекомендуется проектировать с учетом обеспечения следующих требований:

наиболее коротких путей передвижения за счет локальной, по возможности, группировки помещений различного назначения, ежедневно посещаемых инвалидами (рисунок В.4 приложения В);

эвакуации инвалидов в соответствии с физическими возможностями инвалидов и требованиями [5] и СП 1.13130;

оборудованием здания системой информации, обеспечивающей ориентацию и наиболее короткие пути передвижения инвалидов в соответствии с СП 59.13330;

санитарно-гигиеническим и бытовым оборудованием инвалидов в соответствии СП 59.13330.

6.1.2 Главный вход в здание, являющийся во многих случаях и главным входом в учреждение или предприятие, должен быть архитектурно-художественно оформлен для удовлетворения и эстетических, и ориентировочных потребностей работников. Для лиц с нарушениями зрения главный вход и все эвакуационные выходы целесообразно оборудовать звуковым маяком.

Если для малых предприятий выполнение требования СП 59.13330 об устройстве лифтов экономически нецелесообразно, то рабочие места и помещения бытового обслуживания инвалидов с нарушениями опорно-двигательного аппарата следует размещать на уровне основного входа в здание по варианту Б («Разумное приспособление»). Рабочие места и помещения бытового обслуживания инвалидов вследствие сердечно-сосудистых заболеваний, гипертонии, двигательных нарушений, сниженного интеллекта и др. рекомендуется размещать не выше второго этажа.

6.1.3 Пути движения в здании следует выполнять в соответствии с СП 59.13330 и СП 136.13330.

При организации в производственных зданиях специализированных цехов или производственных участков для инвалидов с поражениями опорно-двигательного аппарата, их, по возможности, следует размещать на уровне земли. С целью сокращения путей передвижений этих инвалидов и устранения нерациональных передвижений желательно помещения, повседневно посещаемые инвалидами (бытовые помещения, комнаты приема пищи и т.п.), блокировать с указанными специализированными цехами (участками), по возможности, исключая из этих блоков помещения, не посещаемые инвалидами (складские, конторские, хозяйственные и др. подобные помещения).

6.2 Основные помещения

6.2.1 Рабочие места инвалидов с нарушениями зрения рекомендуется размещать вблизи входа в здание желательно не выше третьего этажа. Планировка этой части здания должна быть предельно простой, симметричной, легко запоминающейся.

В местах пересечений путей передвижения по производственному зданию слепых и слабовидящих инвалидов и напольного транспорта целесообразно устраивать защитные ограждения в виде съемных барьеров.

При производственных участках, предназначенных для труда слепых инвалидов, следует устраивать умывальные, так как их трудовой процесс связан в основном с осязанием, что требует периодического мытья рук.

Материалы покрытия полов не должны допускать скольжения.

6.2.2 Рабочие места для инвалидов со сниженным интеллектом следует размещать не выше второго этажа. Планировка этого блока должна быть четкой с минимальными по протяженности путями передвижения, без дублирования, по возможности, одинаковых по значению помещений (раздевальных, санузлов, кладовых и т.п.) и смежного размещения женских и мужских санитарно-бытовых помещений.

Помещения с рабочими местами для инвалидов со сниженным интеллектом и эмоциональной неустойчивостью, а также инвалидов-гипертоников должны иметь небольшие габариты.

6.2.3 Пути передвижения глухих инвалидов по производственному зданию к цеху или производственному участку, предназначенному для их труда, а также к помещениям социально-бытового назначения и другим, периодически посещаемым этими инвалидами, должны быть оснащены визуальной информацией.

6.2.4 С целью сокращения путей передвижений инвалидов и устранения нерациональных передвижений рекомендуется рабочие места для инвалидов по возможности размещать вблизи помещений санитарно-бытового обслуживания: помещений и мест отдыха в рабочее время и психологической разгрузки, комнат приема пищи, раздевальных, санузлов и т.п. Минимальные расстояния до санитарно-бытовых помещений должны соответствовать требованиям СП 59.13330. Вблизи рабочих мест инвалидов рекомендуется установка торговых автоматов, телефонных аппаратов городской и внутренней связи, автоинформаторов.

6.2.5 При планировке зданий следует учитывать, что площадь помещений в расчете на одно рабочее место, в которых размещаются рабочие места инвалидов, должна быть увеличена для ряда нозологий, а именно: для инвалидов вследствие заболеваний туберкулезом, заболеваний легких с дыхательной недостаточностью, сердечно-сосудистых заболеваний, двигательных нарушений нижних конечностей, ампутации нижних конечностей, для инвалидов с высокой близорукостью, слепых, передвигающихся с помощью кресел-колясок, для инвалидов со сниженным интеллектом или с эмоциональной неустойчивостью.

6.2.6 Для инвалидов вследствие двигательных нарушений нижних конечностей, ампутации нижних конечностей, для инвалидов с высокой близорукостью, слепых, инвалидов, передвигающихся с помощью кресел-колясок увеличение площади связано с увеличением по сравнению с нормами для работников ширины проходов между оборудованием, а также рабочей зоны для этих инвалидов с учетом максимальных габаритов инвалидных колясок по ГОСТ Р 50602.

(Измененная редакция. Изм. № 1)

6.2.7 Помещения с рабочими местами для инвалидов вследствие заболеваний сердечно-сосудистой системы желательно ориентировать на теневую сторону, а при невозможности соблюдения этого необходимо применение солнцезащитных устройств.

В этих помещениях следует обеспечивать повышенную кратность воздухообмена, при этом рециркуляция воздуха не допускается.

6.2.8 Помещения с рабочими местами для инвалидов с заболеванием туберкулезом должны иметь расширенный состав: помещения с дезинфекционными камерами для обеззараживания спецодежды, продукции, отходов; ингаляторий, отдельные комнаты приема пищи, отдельные санитарные комнаты и др., предусмотренные в приложении Б данного свода правил.

Помещения с рабочими местами для инвалидов с заболеванием туберкулезом желательно ориентировать на солнечную сторону.

В помещениях для труда инвалидов вследствие туберкулезных заболеваний отделочные материалы пола и стен следует выбирать с учетом обеспечения влажной уборки и дезинфекции.

В этих помещениях следует обеспечивать повышенную кратность воздухообмена, при этом рециркуляция воздуха не допускается.

6.2.9 Для обеспечения ориентирования в зданиях, сокращения излишних передвижений по зданиям и безопасности передвижений в проекте интерьеров должна разрабатываться система визуальной, звуковой и тактильной информации в соответствии с требованиями СП 59.13330, ГОСТ Р 50918, ГОСТ Р 52131. Эта система должна быть ориентирована в первую очередь на безопасность передвижения и ориентировки в пространстве инвалидов с недостатками зрения, но хорошо продуманная система позволит ориентироваться и инвалидам других заболеваний, являющихся причиной инвалидности.

Необходимо применять осязательные (тактильные) ориентиры: направляющие поручни в коридорах; рельефные обозначения на поручнях; таблицы с выпуклыми надписями или шрифтом Брайля при входах в помещения и цехи; рельефные поэтажные планы на лестничных площадках, в вестибюлях и лифтовых холлах; изменяемый тип покрытия пола (по фактуре, по цвету) перед препятствиями и местом изменения направления движения (входами, подъемами, лестницами, лифтами, поворотами коридоров и т.п.).

Звуковые ориентиры: звуковые маяки при входах и эвакуационных выходах, пересечениях путей движения с внутрицеховыми транспортными проездами; радиотрансляция в зданиях, помещениях (цехах) с рабочими местами инвалидов, в лифтовых кабинах, в бытовых помещениях с раздевальными для инвалидов - помогут слабовидящим или слепым инвалидам.

Необходимо использовать и визуальные ориентиры: различные специально освещаемые указатели в виде символов и пиктограмм с использованием яркого цвета, контрастного по отношению к фоновой поверхности; контрастное цветовое обозначение входов. Текстовая информация должна быть максимально краткой. Ориентиры-указатели направления движения должны быть однотипными для всего объема здания и зданий одного комплекса.

(Измененная редакция. Изм. № 1)

6.2.10 Отделочные материалы помещений, в которых предполагается размещение рабочих мест инвалидов, следует выбирать, учитывая специфические требования по шумопоглощению и цветовому решению в зависимости от нозологии инвалидности.

При организации рабочих мест инвалидов в помещениях, где уровень шума или вибрации превышает допустимый уровень, следует проводить мероприятия по защите рабочих мест инвалидов от шума и вибрации.

Мероприятия по защите от шума и вибрации особенно важны для инвалидов вследствие гипертонической болезни, заболеваний органов слуха, нервно-психических заболеваний и инвалидов с недостатками зрения (для последних шум затрудняет ориентировку в пространстве).

Для снижения уровня шума и вибрации следует устраивать звукопоглощающие облицовки потолков и стен в зоне работающего в помещении шумного оборудования. Возможно устройство отдельных звукопоглотителей, звукоизолирующих кожухов, акустических экранов или перегородок, не доходящих до потолка.

6.2.11 Цветовую отделку интерьеров следует предусматривать с учетом психофизиологических особенностей восприятия окружающей среды отдельными категориями инвалидов, а также в соответствии с ГОСТ 12.4.026. Опознавательная окраска трубопроводов должна выполняться в соответствии с ГОСТ 14202.

(Новая редакция. Изм. № 1)

6.2.12 В учреждениях и предприятиях при трудоустройстве значительного количества слабовидящих инвалидов возможно применение так называемого цветового кода помещений, когда каждое помещение в зависимости от его функционального назначения получает определенный цвет, что дает дополнительную информацию и возможность быстро ориентироваться.

Для инвалидов вследствие заболевания нервной системы и психических заболеваний в окраске помещений следует применять спокойные тона.

Предупреждающая окраска должна применяться с учетом требований ГОСТ Р 12.4.026.

6.3 Вспомогательные помещения

6.3.1 Помещения или здания социально-бытового назначения целесообразно располагать таким образом, чтобы пути движения инвалидов от контрольно-пропускных пунктов через бытовые корпуса до рабочих мест были наиболее короткими. Для этого рекомендуется здания социально-бытового назначения, здания проходных и производственные корпуса по возможности блокировать друг с другом, отдавать предпочтение встроенным или пристроенным к производственным корпусам бытовым помещениям.

В отдельно стоящих бытовых корпусах размещение раздевальных блоков для инвалидов целесообразно указывать с расположением производственных участков, где для них организуются рабочие места, таким образом, чтобы они располагались в одном уровне и вблизи от переходных галерей.

6.3.2 Размещение раздевальных и душевых для инвалидов всех нозологий возможно в составе общих раздевальных блоков. При этом их расположение в блоке должно обеспечивать наикратчайшие пути передвижения для инвалидов с поражениями опорно-двигательного аппарата и слабовидящих от раздевальных блоков до рабочих мест (рисунок В.6 приложения В). При размещении раздевальных и душевых для слепых и зрячих в одном помещении их следует четко разделять. Нумерация на шкафах в гардеробных-раздевальных и душевых должна быть рельефной и на контрастном фоне.

6.3.3 Санитарно-бытовые помещения для инвалидов следует выполнять с учетом требований СП 59.13330.

Шкафчики в раздевальных для инвалидов с поражениями опорно-двигательного аппарата и для слепых должны быть для совместного хранения уличной, домашней и рабочей одежды.

Шкафчики для слабовидящих работников рекомендуется оборудовать внутренним светильником с автоматическим включением при открывании дверцы шкафчика и приспособлением для фиксации дверцы в открытом положении. Размещение шкафчиков должно быть однорядным.

6.3.4 Умывальные для слепых и для инвалидов, передвигающихся на креслах-колясках, следует размещать непосредственно в раздевальном блоке или смежно с ним. Душевые для слепых при размещении их в общем блоке с душевыми для зрячих должны быть с закрытыми кабинами, имеющими вход непосредственно из гардеробной.

Оборудование санитарно-гигиенических помещений для слабовидящих инвалидов должно быть одинаковым по типу, форме, цвету и материалу. Сантехника и сопутствующее оборудование должны быть в контрастном исполнении.

Уборные с кабиной для инвалида рекомендуется размещать на каждом этаже, независимо от численности работающих инвалидов. Универсальную кабину для инвалида рекомендуется размещать в составе санузлов, расположенных на первых этажах зданий.

На предприятиях, где численность инвалидов, пользующихся креслами-колясками, составляет 3 - 5 человек в смену и они заняты на одном производственном участке, для них может быть оборудована универсальная кабина, в которой совмещены туалет и душевая.

6.3.5 Помещения для пассивного кратковременного отдыха должны быть оборудованы с учетом категории инвалидности, характером работы, необходимостью создания в них необходимых санитарно-гигиенических условий. Они могут размещаться рассредоточенно вблизи рабочих мест, на свободных участках площади производственных цехов, или в специальных комнатах в составе бытовых помещений.

Открытые места отдыха можно организовать в производственных помещениях с комфортной для инвалидов всех категорий воздушной средой и бесшумным производством. Их можно выделить передвижными перегородками - экранами, декоративными решетками и другими инвентарными, легко демонтируемыми устройствами. При необходимости более полной изоляции мест отдыха, расположенных в производственном цехе, для их сооружения целесообразно применять переносные объемные блоки.

Число мест и оборудование помещений отдыха инвалидов определяют в каждом конкретном случае при консультации врачей-реабилитологов. Ориентировочная численность отдыхающих в одном помещении не должна превышать 20 человек для инвалидов вследствие нервно-психических заболеваний и не более 5 человек для гипертоников.

(Измененная редакция. Изм. № 1)

6.3.6 При проектировании помещений для активного отдыха и занятий спортом целесообразно ориентироваться на то, что назначение, состав и оборудование этих помещений должны соответствовать потребностям медицинской реабилитации инвалидов и, по возможности, включать площади, занятые тренажерами для лечебной физкультуры.

При проектировании помещений для активного отдыха и занятий спортом на предприятии следует выполнять требования СП 59.13330.

6.3.7 Пункты питания должны соответствовать рекомендациям СП 59.13330. При наличии на предприятии специализированных цехов или производственных участков для инвалидов этих категорий целесообразно вблизи них размещать комнаты приема пищи, в том числе в инвентарном исполнении.

6.3.8 Медицинские пункты предприятий и учреждений, применяющих труд инвалидов, могут быть дополнены кабинетами врачей-специалистов и другими медицинскими помещениями в соответствии с видами заболеваний основного контингента работников-инвалидов, если это устанавливается в задании на проектирование местными органами социальной защиты населения. Кабинеты врачей должны соответствовать требованиям СП 138.13330 и СП 148.13330.

6.3.9 В помещениях социально-бытового назначения (раздевальных, помещениях отдыха, медпунктах) на предприятиях и в учреждениях, где трудоустраиваются инвалиды вследствие заболеваний, которые могут сопровождаться внезапным резким ухудшением здоровья (сердечно-сосудистые, нервно-психические и другие заболевания) должны быть предусмотрены дополнительные площади для установки лежанки и оказания первой помощи.

6.3.10 На крупных предприятиях с массовым использованием труда инвалидов таких категорий, трудовая деятельность которых требует специального инструктажа или выработки специальных навыков в труде, а также выработки навыков ориентации в пространстве предприятия, должны быть предусмотрены помещения для кабинетов социально-трудовой ориентации и учебные классы для практического обучения специальности на полностью оснащенных типовых рабочих местах, обучения ориентации на предприятии на планшетах с рельефными планами или макетами предприятия, цеха и участка, где для них предусмотрены рабочие места, ознакомление с системой ориентации на данном предприятии.

На предприятии, использующем труд инвалидов по слуху, должен быть кабинет переводчика жестового языка. Указанный кабинет должен быть оборудован специальными техническими средствами связи для глухих: телефонами с текстовым устройством или телефаксами.

Площади кабинетов социально-трудовой реабилитации зависят от численности инвалидов, вида инвалидности, от формы проведения занятий (групповые или индивидуальные).

7 Рабочие места (рабочая зона) для инвалидов

7.1 Проектирование и оснащение специальных рабочих мест инвалидов должны осуществляться с учетом профессии, характера выполняемых работ, тяжести инвалидности, степени функциональных нарушений и ограничения способности к трудовой деятельности, уровня специализации рабочего места, механизации и автоматизации производственного процесса.

При проектировании, реконструкции и эксплуатации специальных рабочих мест инвалидов следует руководствоваться положениями [7], СП 2.2.9.2510, Р 2.2.2006, а также санитарными правилами, нормами и гигиеническими нормативами, разработанными для различных факторов производственной среды (шум, вибрация, освещенность и т.п.).

Специальное рабочее место инвалида должно обеспечивать безопасность труда, работу с незначительными или умеренными физическими, динамическими и статическими, интеллектуальными, сенсорными, эмоциональными нагрузками, исключать возможность ухудшения здоровья или травматизма инвалида.

(Измененная редакция. Изм. № 1)

7.2 Противопоказанными условиями труда для трудоустройства инвалидов являются условия, характеризующиеся наличием вредных производственных факторов, превышающих гигиенические нормативы и оказывающих неблагоприятное воздействие на организм работающего и/или его потомство и условия труда, воздействие которых в течение рабочей смены (или ее части) создает угрозу для жизни, высокий риск возникновения тяжелых форм острых профессиональных поражений.

Характеристика противопоказанных для трудоустройства инвалидов условий труда приведена в [7, статья 13, пункт 2].

(Измененная редакция. Изм. № 1)

7.3 Условия труда на рабочих местах инвалидов должны соответствовать Индивидуальной программе реабилитации инвалида, разрабатываемой органами медико-социальной экспертизы.

Характеристика показанных для трудоустройства инвалидов условий труда приведена в СП 2.2.9.2510.

7.4 Расстановка оборудования и мебели на рабочих местах инвалидов должна обеспечивать безопасность и комфортность труда (рисунки В.7 - В.11 приложения В).

Расстановка станков, оборудования и мебели на рабочем месте, предназначенном для труда инвалида, пользующегося для передвижения креслом-коляской, должна обеспечивать возможность подъезда и разворота инвалидной коляски, а на рабочем месте слепого и слабовидящего - возможность работы без помех от передвижений в помещении других работников. Для удобного нахождения своего рабочего места слепым работником станки, оборудование или мебель должны быть снабжены тактильными ориентирами.

Оргтехоснастка рабочих мест для инвалидов (рабочие столы, верстаки, стеллажи, шкафы) должны соответствовать антропометрическим данным исполнителя (таблица 1).

Таблица 1

Параметры и рабочее положение

Рост человека

низкий

средний

высокий

Высота рабочего стола при обычной работе сидя, мм

700

725

750

Высота стола для особо точных работ при работе сидя, мм

900

950

1000

Высота рабочей поверхности для работы на станках и машинах при работе сидя, мм

800

825

850

Высота рабочей поверхности для работы на станках и машинах при работе стоя, мм

1000

1050

1100

Высота рабочей поверхности при работе, где возможно изменение рабочего положения (сидя или стоя), мм

950

1000

1050

Примечание - Высота для ног от отметки пола до нижней поверхности стола - 600 - 625 мм, ширина зоны для ног - 400 мм.

Отдельные элементы оборудования и мебель на рабочих местах инвалидов с поражениями опорно-двигательного аппарата должны быть трансформируемыми. Рабочий стол должен, как правило, иметь изменяемую высоту и наклон рабочей поверхности, а также - регулируемую подставку для ног. Рабочий стул для инвалидов этой категории должен быть оснащен устройством для изменения положения сиденья по высоте и наклону, регулируемой подставкой для ног, в отдельных случаях -специальным сиденьем, обеспечивающим компенсацию усилия при вставании, приспособлением для рабочих инструментов, устройством перемещения вдоль рабочей плоскости по направляющей, а также посредством электромеханических автономных устройств (рисунки В.12 и В.13 приложения В).

7.5 Специальное рабочее место инвалида должно иметь основное и вспомогательное оборудование, техническую и организационную оснастку, обеспечивающие реализацию эргономических принципов при организации рабочих мест инвалидов и учитывающих индивидуальные возможности и ограничения конкретных лиц. Целесообразно применять специально комплексно разработанные для различных специальностей рабочие места инвалидов, включающие рабочий стол, стул, технологическое оборудование и подставки для сырья, инструментов и готовой продукции. При проектировании рабочего места инвалида с поражениями опорно-двигательного аппарата следует учитывать параметры оперативного поля, доступного верхним конечностям при условии фиксированного положения тела в соответствии с СП 136.13330.2012 (приложение Г).

Организация рабочего места, дизайн и конструкция всех элементов мебели, оргтехоснастки производственного оборудования должны соответствовать антропометрическим, физиологическим и психологическим особенностям и ограниченным возможностям работающих инвалидов с учетом:

анатомо-морфологических характеристик двигательного аппарата;

возможностей распознавания органов управления, предметов труда, инструмента;

точности, скорости и амплитуды движений при осуществлении управляющих действий;

возможностей захвата и перемещения инструментов, предметов труда (пальцами, кистью, всей рукой, стопой, в том числе с использованием протезов и рабочих насадок на них);

величины усилий, развиваемых при осуществлении управляющих действий.

При проектировании и организации специальных рабочих мест для инвалидов должно быть предусмотрено:

использование специальных приспособлений для управления и обслуживания оборудования, компенсирующих анатомо-морфологические и физиологические недостатки и ограничения инвалидов;

применение специально разработанного ручного инструмента, форма, размеры и величина сопротивления приводных элементов которого обеспечивают надежный захват и эффективное использование;

расположение органов управления оборудованием, технологической или организационной оснастки, обрабатываемых деталей на рабочем месте в пределах зон досягаемости моторного поля (в горизонтальной и вертикальной плоскостях), учитывающих антропометрические и физические размеры и физические ограничения инвалида;

использование для регулировки высоты рабочей поверхности стола и элементов рабочего стула легко досягаемых и управляемых механизмов, имеющих надежную фиксацию;

выделение дополнительных площадей, обеспечивающих возможность подъезда, разворота на рабочем месте и выполнения работы в инвалидной коляске;

оснащение оборудования и мебели на рабочем месте индикаторами (визуальными, акустическими, тактильными), учитывающими возможности и ограничения отдельных групп инвалидов (слепые, слабовидящие, глухие) в восприятии информации для беспрепятственного нахождения своего рабочего места и выполнения работы.

Все элементы стационарного оборудования, предназначенные для пользования инвалидами, должны быть прочно и надежно закреплены. Крепежные детали оборудования, регуляторов, электровыключателей и т.п. не должны выступать за плоскость закрепляемого элемента.

(Измененная редакция. Изм. № 1)

7.6 При размещении рабочего места инвалида в помещении, где на отдельных участках протекают процессы, противопоказанные для его организма, следует регулировать параметры производственной среды в рабочей зоне инвалида. При этом следует учитывать гигиенические нормативы инфразвука на рабочих местах, гигиенические требования при работе с источниками ультразвука, а также особые требования, устанавливаемые для различных видов инвалидности.

При организации рабочих мест труда инвалидов в помещениях, где уровень шума или вибрации превышает допустимые гигиенические уровни, а мероприятия по защите рабочих мест инвалидов от шума и вибрации при небольшой численности рабочих мест инвалидов экономически нецелесообразны, следует применять звукопоглотители кулисного типа, звукопоглощающие экраны или различные штучные поглотители.

На рабочих местах инвалидов, организуемых в конторских помещениях, шумы от телефонных разговоров и оргтехники следует снижать при помощи звукопоглощающей облицовки стен, устройства акустических потолков, коврового покрытия полов и расстановки конторской мебели, позволяющей изолировать рабочее место инвалида.

7.7 Требуемое качество воздушной среды на рабочем месте инвалида устанавливается в соответствии с требованиями СП 60.13330, а также СанПиН 2.2.4.548, ГН 2.2.5.1313.

7.8 При организации искусственного освещения рабочего места инвалида следует учитывать требования безопасных и благоприятных условий труда, а также современные требования по экономии электроэнергии согласно [7, статья 3].

При выборе рациональных источников света следует учитывать светоотдачу источника, цвет света; при установке - светораспределение, обеспечивающее образование контрастов на объекте зрительного наблюдения и ослабляющее отраженную блесткость.

Установка светильников должна обеспечивать рациональное светораспределение. Следует учитывать, что наилучшая направленность света, увеличивающая контрасты и ослабляющая блесткость, достигаются, когда свет падает на рабочее место главным образом сбоку, наискось и сзади.

Рекомендуется освещенность в зоне рабочих столов увеличивать путем опускания светильников, но не ниже 240 см, так как подвешенные ниже светильники будут мешать своей близостью, особенно когда часть работы за столом проводится стоя.

(Измененная редакция. Изм. № 1)

7.9 Искусственное освещение рабочей зоны и рабочих мест инвалидов с остаточным зрением следует разрабатывать наиболее тщательно. Оно всегда предусматривается общее и местное. Местное освещение должно осуществляться лампами накаливания. Шкафы или стеллажи, входящие в оборудование рабочего места инвалида с остаточным зрением, должны быть с вмонтированными светильниками с автоматическим включением при открывании дверей шкафа.

Местное освещение должно быть стабильным (исключающим мерцание), регулируемым по яркости и спектру в зависимости от заболевания глаз. Уровень освещенности на рабочей плоскости устанавливается в зависимости от характера работы и особенностей инвалидности в соответствии с приложением Б.

7.10 Рабочие места инвалидов вследствие сердечно-сосудистых заболеваний при их расположении в непосредственной близости от окон должны быть защищены от перегрева в летнее время солнцезащитными устройствами. Таким же образом расположенные рабочие места для инвалидов с заболеваниями органов зрения должны быть защищены от слепимости специальными солнцезащитными устройствами.

Данное правило не распространяется на окна, ориентированные на северную сторону, а также на окна, ориентированные на западную четверть горизонта при работе инвалидов только в первую половину дня.

Приложение А

(рекомендуемое)

Порядок организации доступности рабочих мест инвалидов (при проектировании предприятия общего типа или учреждения)

А.1 После проведения специальной оценки условий труда рабочих мест инвалидов на предприятии общего типа следует сделать проект мероприятий по обеспечению их доступности. Комплекс этих мероприятий разрабатывается совместно врачом-реабилитологом, технологом и архитектором, который составляет проект предприятия в целом и производственных помещений, в которых предполагается разместить рабочие места инвалидов.

(Измененная редакция. Изм. № 1)

А.2 Для разработки комплекса мероприятий по обеспечению доступности рабочих мест следует провести предпроектную работу, которая включает в себя:

предварительное определение точек размещения рабочих мест инвалидов в технологической схеме производственного процесса;

сравнение существующих условий труда в рабочих зонах прошедших специальную оценку условий труда рабочих мест и требуемых для видов инвалидности, для которых данные рабочие места предназначаются, при этом учитываются: габариты рабочей зоны, качество воздушной среды, наличие неблагоприятных факторов, а также строительных и планировочных барьеров на пути инвалида к рабочей зоне в пределах производственного помещения;

выявление строительных и планировочных барьеров на путях передвижения инвалида от рабочего места до помещений социально-бытового назначения, повседневно или периодически им посещаемых (санузлы, гардеробные, помещения отдыха и приема пищи, медпункт и т.п.);

предварительное составление комплекса мероприятий по обеспечению доступности всех пригодных для труда инвалидов рабочих мест. Экономическая оценка комплекса указанных мероприятий, выявление обязательных и рекомендательных мероприятий, а также рабочих мест, пригодных для инвалидов, мероприятия по обеспечению доступности которых являются экономически нецелесообразными;

составление оптимального комплекса мероприятий по обеспечению доступности рабочих мест.

(Измененная редакция. Изм. № 1)

А.3 Примеры адаптации производственных зданий для обеспечения доступности рабочих мест инвалидов.

Пример 1 Адаптация здания цеха мучных кондитерских изделий мощностью 1000 т/год (по типовому проекту № 414-1-049.91).

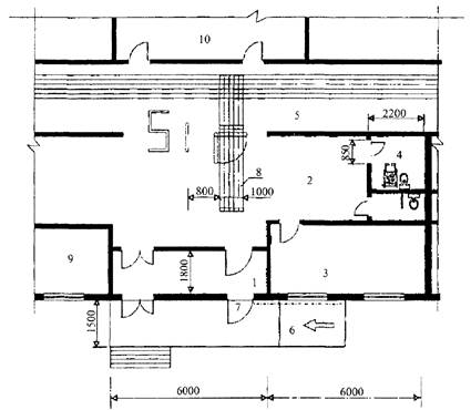
Планы цеха и перепланировки его элементов для адаптации в целях обеспечения трудоустройства инвалидов представлены на рисунках В.14 и В.15 приложения В, а потенциальные рабочие места инвалидов - в таблице А.1.

Предложения по адаптации здания цеха для труда инвалидов

Обязательные мероприятия:

1 На каждом этаже кабина уборной для женщин должна иметь размеры, соответствующие потребностям инвалидов с поражениями нижних конечностей (большинство работающих - женщины).

2 В женском гардеробе на первом этаже одна из душевых кабин должна иметь размеры, соответствующие потребностям инвалидов с поражениями нижних конечностей.

3 На втором этаже должна быть размещена комната отдыха.

Желательные мероприятия:

4 Устройство пассажирского лифта с кабиной, обеспечивающей въезд инвалидной коляски.

5 Устройство пандуса при входе в здание, для чего площадку перед входом объединить с рампой (оси 3 - 4) и сделать на нее пандус (см. фрагмент плана на отметке 0.000).

Перепланировка помещений осуществляется за счет резервов площади вестибюля и помещения общественных организаций на втором этаже.

Желательные мероприятия рассчитаны на возможность трудоустройства на втором этаже в лаборатории инвалида, пользующегося для передвижения креслом-коляской.

Штатное расписание - 83 чел.

3 %-ная квота рабочих мест для инвалидов - 3 чел.


Таблица А.1 - Потенциальные рабочие места для инвалидов цеха мучных и кондитерских изделий

Профессии и специальности

Инвалиды

Цехи, отделения помещения

Размещение по отношению к уровню земли

Вследствие внутренних болезней

С дефектами зрения (кроме слепых)

С дефектами слуха (восприятие разговорной речи от 1 м)

С заболеваниями ЦНС

Инвалиды с заболеванием и поражениями опорно-двигательного аппарата

Наименование

№ по экспликации рисунка В.14

Не пользующиеся приспособлениями для передвижения

С ампутацией голени или стопы

Машинист тесторазделочных машин

 

+

 

 

+

+

Отделение производства печенья

7

Первый этаж с отметкой пола 1,2 м

Упаковщик-укладчик

+

+

+

+

+

+

То же

7

То же

Лаборант

+

 

+

+

+

+

Лаборатория

15

Второй этаж

Кладовщик

+

 

 

 

+

+

Кладовая сменного запаса сырья

6

Первый этаж с отметкой 1,2 м

Кладовая сырья

8

То же

Склад готовой продукции

9

»

Склад тары

10

»

Слесарь-ремонтник

 

 

+

 

 

 

Помещение дежурного слесаря

17

Второй этаж

Слесарь-сантехник

 

 

+

 

 

 

То же

17

То же


Пример 2 Адаптация здания цеха по производству комплектов деревянных изделий (таблица А.2) для обеспечения доступности рабочих мест инвалидов (по типовому проекту 411-2.186.87) (рисунок В.16).

Штатное расписание - 51 чел.

3 %-ная квота рабочих мест для инвалидов - 2 чел.

Таблица А.2 - Потенциальные рабочие места для инвалидов в цехе деревянных изделий

Профессии и специальности

Инвалиды

Цехи, помещения

№ по экспликации рисунка В.16

Вследствие внутренних болезней

С дефектами слуха (восприятие разговорной речи от 1 м)

Инвалиды с заболеваниями и поражениями опорно-двигательного аппарата

Наименование

Не пользующиеся приспособлениями для передвижения

С ампутацией голени или стопы

Плотник

+

+

+

+

Участок обработки пиломатериалов

1

Лаборант

+

+

+

+

Лаборатория

3

Заточник

+

 

+

 

Пилоножеточка

2

Конторский служащий

+

+

+

+

Контора

7

Предложения по адаптации здания цеха для труда инвалидов

1 При привязке типового проекта предлагается выровнять отметки пола цеха и административно-бытовой пристройки.

На действующем предприятии при ступенях, соединяющих цех с пристройкой целесообразно иметь инвентарный деревянный пандус (в случае трудоустройства в конторе или лаборатории инвалида, пользующегося для передвижения креслом-коляской).

2 Устройство пандуса при входе в пристройку у оси Г.

3 В мужском санузле одна из кабин должна иметь размеры не менее 1,8×1,65 м (расширение за счет площади курительной).

4 В мужском гардеробе одна из душевых должна иметь размеры не менее 1,2×0,9 м (открытая) и не менее 1,8×1,8 м (закрытая).

Приложение Б

(рекомендуемое)

Требования к условиям и организации труда на рабочих местах инвалидов с различными заболеваниями

Б.1 Общие положения

В соответствии с [7, статья 13] и Р 2.2.2006 для инвалидов пригодны: 1-й класс - оптимальные условия труда, при которых сохраняется не только здоровье работающих, но и создаются предпосылки для поддержания высокого уровня работоспособности; 2-й класс - допустимые условия труда, с уровнем факторов среды и трудового процесса, которые не превышают установленных гигиеническими нормативами для рабочих мест, а возможные изменения организма восстанавливаются во время регламентированного отдыха или к началу следующего рабочего дня.

(Измененная редакция. Изм. № 1)

Б.2 Требования к условиям и организации труда на рабочих местах инвалидов вследствие заболеваний сердечно-сосудистой системы

Б.2.1 Оптимальные и допустимые санитарно-гигиенические условия производственной среды в соответствии с классификацией условий труда по [7, статья 14] - 1-го и 2-го классов, в том числе:

температура воздуха, скорость движения и влажность воздуха, соответствующие 1-му классу;

отсутствие вредных веществ, аллергенов, канцерогенов, металлов, оксидов металлов, аэрозолей, преимущественно фиброгенного действия;

отсутствие тепловых излучений, локальной вибрации, электромагнитных излучений;

производственный шум не выше ПДУ (2-й класс);

освещенность по норме (2-й класс);

отсутствие ультрафиолетовой радиации.

(Измененная редакция. Изм. № 1)

Б.2.2 Необходимые защитные мероприятия:

повышенная кратность воздухообмена без рециркуляции воздуха;

шумовибропоглощение (защитные кожухи на оборудовании, облицовка строительных конструкций звукопоглощающими материалами и др.).

Б.2.3 Требования к оборудованию рабочего места:

расположение шкафов, конструкция стеллажей должны исключать вынужденные наклоны туловища;

полки должны быть расположены на уровне плеч и не выше человеческого роста;

столы с регулируемыми высотой и углом наклона поверхности;

стулья (кресла) с регулируемыми высотой сиденья и положения спинки.

Б.3 Требования к условиям и организации труда на рабочих местах инвалидов вследствие патологии органа зрения

Б.3.1 По идентичности требований к организации рабочих мест и однотипности реакции на воздействие факторов внешней среды инвалидизирующие заболевания органа зрения подразделяют на 8 основных групп-категорий (по СП 2.2.9.2510).

Применительно к организации рабочих мест состояние основных зрительных функций инвалидов (степень их сохранности) подразделяются на следующие группы:

1 Слепота: острота зрения = 0 - 0,04 или концентрическое сужение поля зрения до 10 градусов и менее от точки фиксации.

2 Слабовидение высокой степени: острота зрения = 0,05 - 0,1 или концентрическое сужение поля зрения до 20 - 10 градусов и менее от точки фиксации.

3 Слабовидение средней степени: острота зрения = 0,2 и выше.

В зависимости от степени сохранности зрительных функций определяется возможность организации трудового процесса.

Б.3.2 Для инвалидов со слабовидением средней степени рекомендуются виды труда, относящиеся к IV - VI, VIII, «в», «д», «ж», «з» разрядам зрительных работ. Инвалиды со слабовидением высокой степени могут выполнять работы, относящиеся к VI, VIII, «д», «ж», «з» разрядам зрительных работ. Инвалиды с абсолютной или практической слепотой могут выполнять трудовые операции без зрительного контроля, используя анализаторные системы, компенсирующие зрительный дефект (осязание, тактильно-мышечное чувство, слух).

Б.3.3 Санитарно-гигиенические характеристики условий труда на рабочих местах инвалидов вследствие зрительных нарушений дифференцируются в зависимости от заболевания органа зрения по СП 2.2.9.2510, в которых приведены показанные при разных видах офтальмопатологии классы условий труда.

Б.3.4 Рабочее место для инвалидов с полной и практической слепотой, а также со слабовидением высокой степени должно быть обустроено системой тифлотехнических ориентиров (осязательных, слуховых, зрительных), обеспечивающих ориентировку этих инвалидов на рабочем месте [3]. Технологическое оборудование данных рабочих мест (от простого инструмента до сложных технических устройств) должно быть оснащено тифлотехническими приспособлениями, обеспечивающими возможность выполнения работы без зрительного контроля и исключающими возможность получения производственной травмы.

Б.3.5 Освещенность на рабочих местах инвалидов с патологией глаз должна устанавливаться индивидуально с учетом нозологической формы заболевания, путем устройства комбинированного освещения. Общее освещение в системе комбинированного должно составлять не менее 20 %. Недопустимы резкие изменения освещенности в течение рабочего дня (не более 30 %). По мере снижения естественного освещения автоматически должно подключаться искусственное, путем ступенчатого включения отдельных групп светильников.

Б.3.6 Для снижения резкой неравномерности распределения яркости в поле зрения работающих инвалидов необходимо предотвратить попадание прямых солнечных лучей в помещение с помощью штор или жалюзи, которые, однако, не должны значительно снижать освещенность. Местные светильники должны быть оснащены устройствами для регулирования направления и интенсивности светового потока.

Б.3.7 Окраска поверхностей рабочих помещений и элементов рабочего места инвалидов по зрению должна осуществляться таким образом, чтобы коэффициент отражения световой энергии был близок к максимальному. Наименьшие коэффициенты отражения поверхностей приведены в таблице Б.1.

Таблица Б.1

Наименование поверхностей

Наименьший коэффициент отражения материала изделий, %

Потолки

70

Стены (верх)

60

Панели стен

35

Рабочее оборудование

25 - 40 (в зависимости от коэффициента отражения материала изделий)

Полы

20 - 25

Б.3.8 На рабочих местах инвалидов по зрению соотношение между коэффициентами отражения рабочих поверхностей и обрабатываемых изделий должно быть не менее 1:3, что достигается покраской рабочих поверхностей (либо использованием комплектов съемных покрытий) в цвета, подобранные по цветовому контрасту к обрабатываемому материалу:

для деталей холодного цвета (сталь, алюминий и т.п.) - теплые цвета (например, кремовый);

для деталей теплого цвета (медь, латунь и т.п.) - холодные цвета (например, серо-голубой);

для деталей темного цвета - светлые тона.

Для инвалидов с врожденной цветоаномалией и с заболеваниями, сопровождающимися нарушением цветовой чувствительности, не следует предоставлять виды работ, требующие различения цветов.

Б.3.9 Одиночные рабочие места для слепых следует радиофицировать. При размещении нескольких рабочих мест для слепых в одном помещении радиофицировать следует помещение.

Б.4 Требования к условиям и организации труда на рабочих местах инвалидов вследствие заболеваний опорно-двигательного аппарата

Б.4.1 Санитарно-гигиенические условия производственного помещения оптимальные - 1-й класс и допустимые - 2-й класс (в соответствии с классификацией условий труда по [7, статья 14] с руководством Р 2.2.2006), в том числе:

температура, влажность, скорость движения воздуха, тепловое излучение в рабочей зоне устанавливаются в соответствии с СП 2.2.9.2510 (1-й и 2-й классы условий труда);

шум не выше предельно допустимого уровня;

отсутствие общей и локальной вибрации, инфразвука, постоянного магнитного поля, статического электричества, электрического поля промышленной частоты (50 Гц), электромагнитного диапазона, лазерного излучения, вредных веществ: канцерогенов, аллергенов, металлов, оксидов металлов; микроорганизмов, препаратов, содержащих живые клетки и споры микроорганизмов.

(Измененная редакция. Изм. № 1)

Б.4.2 Организационно-техническая оснастка по своим размерам должна соответствовать антропометрическим данным, обладать устойчивостью, обеспечивать комфортность и безопасность пользования: - рабочие столы, верстаки высотой в пределах 630 - 1020 мм. Полки на кронштейнах для размещения настольного оборудования, для выполнения измерений, записей; инструментальные шкафы (или встроенные ящики), расположенные на высоте 800 - 1600 мм от пола для хранения на рабочем месте документации, крепежного вспомогательного и режущего инструмента и других средств.

Б.4.3 Рабочий стол должен обеспечивать возможность изменения высоты и наклона рабочей поверхности, цвета и фактуры поверхности, крепления к ней на струбцинах лампы местного освещения и малогабаритного технологического оборудования, поручней для обеспечения легкого подъема с места, подножек, подлокотников. Стол должен иметь выдвигаемые ящики для хранения инструмента. Габариты стола должны соответствовать эргономическим требованиям работы инвалида на коляске и функциональным требованиям выполнения рабочих операций в пределах зоны досягаемости.

Б.4.4 Рабочий стул должен обеспечивать возможность поворота и изменения высоты и наклона сиденья, угла наклона высоты спинки, крепления подножек, подлокотников, спинки под шею, штанги для инструментов, компенсационной подушки, облегчающей вставание.

Б.4.5 Подставка для сырья и готовой продукции должна быть передвижной с возможностью изменения высоты и угла наклона поверхности крепления тары.

Б.5 Требования к условиям и организации труда на рабочих местах инвалидов вследствие заболевания нервной системы

Б.5.1 Санитарно-гигиенические условия производственного помещения оптимальные и допустимые классов 1 и 2 (в соответствии с классификацией условий труда по [7, статья 14] с руководством Р 2.2.2006), в том числе:

температура, влажность, скорость движения воздуха, тепловое излучение в рабочей зоне в соответствии с санитарными нормами (1-й и 2-й классы условий труда);

шум не выше предельно допустимого уровня (ПДУ);

отсутствие воздействия общей и локальной вибрации, инфразвука, ультразвука, постоянного магнитного поля, статического электричества, электрического поля промышленной частоты, электромагнитного излучения радиочастотного диапазона, постоянного лазерного излучения, вредных веществ (канцерогенов, аллергенов, металлов, оксидов металлов), микроорганизмов (продуцентов, препаратов, содержащих живые клетки и споры микроорганизмов).

(Измененная редакция. Изм. № 1)

Б.5.2 Архитектурно-планировочные требования к зданиям и помещениям:

Размещение рабочих мест в небольших помещениях, мастерских, участках;

Обеспечение возможности визуального наблюдения и контроля за работающими инвалидами;

Ограждение движущихся механизмов, лестничных пролетов и других опасных зон. Остекление окон небьющимися стеклами;

Б.5.3 Требования к рабочему месту:

Рабочие столы, верстаки высотой в пределах 630 - 1020 мм;

Рабочее кресло или стул, легко перемещающиеся в рабочей зоне;

Инструментальные шкафы, расположенные на высоте 800 - 1600 мм от пола для хранения на рабочем месте документации, крепежного вспомогательного и режущего инструмента, запасных частей, средств ухода за рабочим местом;

Полки-стеллажи для размещения аппаратуры, приспособлений, деталей с такими размерами, чтобы располагаемые на них предметы не выступали за края полок. Полки для размещения мелких предметов и деталей должны иметь бортики.

Б.6 Требования к условиям и организации труда на рабочих местах инвалидов вследствие психических заболеваний

Б.6.1 Больным с основной психической патологией, признанным инвалидами II группы (92 % всего контингента с психическими заболеваниями), в 50 % случаев доступно участие в различной трудовой деятельности в специально созданных условиях на спецпредприятиях, спецучастках, на дому, а также на обычных предприятиях, учреждениях, где условия работы приравнены к специально созданным.

Б.6.2 Оптимальные и допустимые санитарно-гигиенические условия производственной среды (1-й и 2-й классы, в отдельных случаях 3.1 класс в соответствии с классификацией условий труда по [7, статья 14] с руководством Р 2.2. 2006), в том числе:

температура воздуха в холодный период года при легкой работе - 21 - 24 °С; при средней тяжести работ - 17 - 20 °С; в теплый период года при легкой работе - 22 - 25 °С; при работе средней тяжести - 21 - 23 °С.

влажность воздуха в холодный и теплый периоды года 40 - 60 %;

скорость движения воздуха (м/с): при легкой работе 0,1 - 0,2; при работе средней тяжести 0,1 - 0,2 в холодный период года и в теплый период года - не более 0,3;

отсутствие вредных веществ: аллергенов, канцерогенов, аэрозолей, металлов, оксидов металлов;

электромагнитное излучение - не выше ПДУ, шум - не выше ПДУ (до 81 дБА, 1-й класс);

отсутствие локальной и общей вибрации;

отсутствие микроорганизмов, продуктов и препаратов, содержащих живые клетки и споры микроорганизмов, белковые препараты.

(Измененная редакция. Изм. № 1)

Б.6.3 Помещения, мастерские или участки, должны быть небольших размеров (что уменьшает возможность контакта с окружающими).

Б.6.4 Обеспечение возможности визуального наблюдения и контроля за работающими инвалидами; обеспечение аварийными сигнализирующими устройствами рабочих мест;

Б.6.5 Ограждение движущихся механизмов, лестничных пролетов и других опасных зон; остекление окон небьющимися стеклами.

Б.6.6 Помещения медицинской службы должны быть приближены к рабочим местам психически больных для контроля за поведением в процессе трудовой деятельности и проведения адекватной терапии, коррекции поведения, способствующих безопасности самих инвалидов и их окружения. В связи с этим целесообразно размещать помещения для трудовой занятости инвалидов вблизи или на базе специализированных медицинских учреждений (психоневрологические диспансеры, психиатрические больницы, психоневрологические интернаты).

Создавать на специализированных предприятиях медицинские кабинеты, в штате которых должен быть врач-психиатр и средний медицинский персонал, а также средства для проведения основных специализированных терапевтических мероприятий.

Б.6.7 Требования к рабочему месту следующие:

Оборудование (станки, технические устройства) - безопасное и комфортное в пользовании (устойчивые конструкции, прочная установка и фиксация, простой способ пользования, без сложных систем включения и выключения; с автоматическим выключением при неполадках; расстановка и расположение, не создающие помех для подхода, пользования, передвижения; расширенные расстояния между столами, мебелью, станками и в то же время не затрудняющие досягаемость; исключение острых выступов, углов, ранящих поверхностей, выступающих крепежных деталей).

Эстетический дизайн и яркая окраска оборудования и мебели для активизации эмоционально-волевой сферы, положительного эмоционального настроя, концентрации и фиксации внимания.

Трансформирующаяся конструкция рабочего стола и сиденья;

Удобные устройства для инструментов, одежды, готовой продукции, заготовок и пр.;

Упрощенные в применении рабочие инструменты;

Удобная рабочая одежда ярких и заметных окрасок.

Б.7 Требования к условиям и организации труда на рабочих местах инвалидов вследствие туберкулеза легких

Б.7.1 Оптимальные и допустимые санитарно-гигиенические условия производственной среды (1-го и 2-го классов) в соответствии с классификацией условий труда по [7, статья 14] с Р 2.2.2006, в том числе:

отсутствие веществ с раздражающим действием на дыхательные пути; аллергенов; канцерогенов; металлов, оксидов металлов; аэрозолей преимущественно фиброгенного действия; белковых препаратов; ультрафиолетовой радиации;

отсутствие неблагоприятных микроклиматических факторов, связанных с высокой или низкой температурой воздуха и ее значительными перепадами на рабочем месте, повышенной влажностью и сквозняками (температура воздуха, скорость движения и влажность должны соответствовать 1-му классу).

повышенная кратность воздухообмена, но не допускается рециркуляция воздуха.

(Измененная редакция. Изм. № 1)

Б.7.2 Архитектурно-планировочные требования, к зданиям и помещениям в соответствии с 6.2.5 и 6.2.8:

площадь и объем производственных помещений на одного работающего следует увеличить на 10 %;

взаимное размещение помещений должно способствовать тому, чтобы передвижения, обусловленные технологическим процессом, в течение смены не превышали 4 км;

полы производственных помещений в рабочей зоне инвалидов с туберкулезом должны быть теплыми;

для инвалидов с туберкулезом и для здоровых лиц должны быть предусмотрены раздельные столовые (буфеты) и туалеты;

на предприятиях должны быть предусмотрены помещения для стерилизации и дезинфекции готовой продукции, отходов, спецодежды, продуктов и т.п. При буфетах и столовых следует предусмотреть комнату для дезинфекции посуды и остатков пищи, оборудованную посудомоечным агрегатом;

производственные и специальные помещения должны быть оборудованы бактерицидными лампами.

Б.7.3 Требования к рабочему месту - в соответствии с разделом 7 данного свода правил и СП 2.2.9.2510.

Приложение В

(справочное)

Планировочные схемы

▲ - стоянки личного транспорта инвалидов;
1 - производственные корпуса; 2 - бытовые корпуса; 3 - административное здание

Рисунок В.1 - Рассредоточенное размещение личного транспорта инвалидов

1 - тамбур; 2 - вестибюль; 3 - камера хранения; 4 - санузел; 5 - коридор; 6 - пандус;
7 - дверной проем с устройством для плавного открытия; 8 - специальное покрытие пола;
9 - бюро пропусков; 10 - помещения охраны

Рисунок В.2 - Встроенный контрольно-пропускной пункт

 - помещения и цехи, повседневно посещаемые инвалидами;
1 - производственные корпуса; 2 - бытовой корпус; 3 - административное здание;
4 - конструкторское бюро

Рисунок В.3 - Сосредоточение рабочих мест инвалидов вблизи входа на завод

а - аналог; б - перепланировка;
 - помещения повседневного пребывания инвалидов (а - 156 м2; б - 68 м2);
 - общая длина перемещений инвалидов (а - 42 м; б - 20 м).

1 - кладовая запчастей; 2 - кладовая готовой продукции; 3 - салон; 4 - контора;
5 - комната приема пищи; 6 - женский гардероб; 7 - мужской гардероб; 8 - участок чистки;
9 - тепловой узел; 10 - венткамера; 11 - вакуумная; 12 - комната линейных мастеров;
13 - участок ремонта радиоаппаратуры; 14 - участок ремонта телевизоров

Рисунок В.4 - Мастерская по ремонту бытовой радиоаппаратуры

Встроенное помещение инвентарного типа для пассивного отдыха; пример оборудования комнаты отдыха для инвалидов: 1 - стол для настольных игр; 2 - диван; 3 - кресла; 4 - телевизор

Цеховая уборная с кабиной для инвалидов

Места инвалидных колясок в помещении для собраний

Рисунок В.5 - Помещения социального обслуживания

Размещение гардеробной (а) и душевой (б) для инвалидов в общем гардеробном блоке.
Индивидуальная кабина инвалида в общей душевой

Рисунок В.6 - Гардеробные и душевые

1 - верстак столярный; 2 - рабочее место инвалида; 3 - табурет с регулируемым сиденьем;
4 - стол с вытяжкой; 5 - верстак с деревообрабатывающим станком и циркулярной пилой;
6 - мойка; 7 - стол мастера; 8 - стеллаж производственный

Рисунок В.7 - Пример планировки помещения. Столярная мастерская

1 - стол мастера; 2 - табурет с регулируемым сиденьем; 3 - машина для приклеивания каблуков;
4 - пресс для приклеивания подошв; 5 - машина для отделочных операций; 6 - машина для пристрочки
подошв; 7 - рабочее место инвалида; 8 - мойка; 9 - швейная машина; 10 - шарошечно-полировальный
станок; 11 - верстак; 12 - стол обувщика

Рисунок В.8 - Пример планировки помещения. Мастерская по ремонту обуви

1 - стол монтажный; 2 - стенд испытательный; 3 - стол с вытяжкой; 4 - стол приемщика; 5 - мойка;
6 - стеллаж для материалов; 7 - табурет с регулируемым сиденьем; 8 - стеллаж приемщика

Рисунок В.9 - Пример планировки помещения.
Мастерская по ремонту аппаратуры и бытовой техники

1 - швейная машина; 2 - табурет с регулируемым сиденьем; 3 - рабочее место инвалида;
4 - гладильный стол; 5 - гладильный пресс; 6 - умывальник; 7 - стол раскроечный;
8 - стол мастера; 9 - сборочно-сметочный стол

Рисунок В.10 - Пример планировки помещения. Швейная мастерская

1 - стол рабочий; 2 - табурет с регулируемым сиденьем; 3 - проволочно-швейный аппарат;
4 - клееварка; 5 - стол мастера; 6 - стул 7 - мойка

Рисунок В.11 - Пример планировки помещения. Картонажный участок, приспособленный для труда инвалидов в тарном цехе завода

Рисунок В.12 - Трансформируемый рабочий стол для инвалида

1 - ручное управление изменением высоты и углом наклона сиденья; 2 - подставка для ног;
3 - приспособление для рабочих инструментов; 4 - уровень рабочего стола; 5 - подъемный агрегат

Рисунок В.13 - Трансформируемое рабочее кресло для инвалида

1 - тамбур; 2 - вестибюль; 3 - санузлы; 4 - комната приема пищи; 5 - женский гардероб уличной
и спецодежды; 6 - кладовая сменного запаса сырья; 7 - отделение производства печенья;
8 - кладовая сырья; 9 - склад готовой продукции; 10 - склад тары; 11 - коридор; 12 - душевая;
13 - преддушевая; 14 - помещение общественных организаций; 15 - лаборатория; 16 - мужской гардероб;
17 - помещение дежурного слесаря

 - цехи и помещения, где имеются рабочие места для инвалидов

Рисунок В.14 - Адаптация цеха мучных изделий для обеспечения трудоустройства инвалидов

2 - вестибюль; 3 - санузлы; 4 - комната приема пищи; 5 - женский гардероб уличной и спецодежды;
12 - душевая; 13 - преддушевая; 17 - помещение дежурного слесаря; 18 - кладовая уборочного инвентаря;
19 - комната отдыха; 20 - помещение охраны

Рисунок В. 15 - Адаптация цеха мучных кондитерских изделий для обеспечения
трудоустройства инвалидов

1 - участок заготовки и обработки пиломатериалов; 2 - пилоножеточка; 3 - лаборатория;
4 - гардеробные и душевые; 5 - санузлы; 6 - комнаты для курения; 7 - конторские помещения;
8 - комната для приема пищи; 9 - комната общественных организаций;
10 - коридор с вестибюлем и переходом; 11 - тамбур

Оборудование рабочих мест для инвалидов: А - станок комбинированный; Б - станок круглопильный;
В - станок четырехсторонний строгальный; Г - станок заточный универсальный ТчПА-5;
Д - станок заточный универсальный ТчПА-6; Е - полуавтомат для заточки строгальный

Рисунок В.16 - Адаптация цеха по производству комплектов деревянных деталей для обеспечения трудоустройства инвалидов

Библиография

[1] Рекомендации по проектированию окружающей среды, зданий и сооружений с учетом потребностей инвалидов и других маломобильных групп населения. Выпуск 20 «Промышленные предприятия, здания и сооружения для труда инвалидов различных категорий». - М.: ГУП ЦПП, 1994

[2] Федеральный закон от 24 ноября 1995 г. № 181-ФЗ «О социальной защите инвалидов в Российской Федерации»

[3] МДС 35-11-2004 Создание среды трудовой деятельности маломобильных групп населения на промышленных предприятиях. - М.: ФГУП ЦПП, 2004

[4] Постановление Правительства РФ от 16 февраля 2008 г. № 87 «О составе разделов проектной документации и требованиях к их содержанию»

[5] Федеральный закон от 22 июля 2008 г. № 123-ФЗ «Технический регламент о требованиях пожарной безопасности»

[6] Федеральный закон от 1 декабря 2014 г. № 419-ФЗ «О внесении изменений в отдельные законодательные акты Российской Федерации по вопросам социальной защиты инвалидов в связи с ратификацией Конвенции о правах инвалидов»

[7] Федеральный закон от 28 декабря 2013 г. № 426-ФЗ «О специальной оценке условий труда»

(Измененная редакция. Изм. № 1)

Ключевые слова: доступность рабочих мест для инвалидов, комфорт и безопасность рабочего места, оборудование территории, маломобильные группы населения.

(Измененная редакция. Изм. № 1)

 

 



© 2013 Ёшкин Кот :-)