Информационная система
«Ёшкин Кот»

XXXecatmenu

ГОСУДАРСТВЕННЫЙ
КОМИТЕТ
ПО ГРАЖДАНСКОМУ
СТРОИТЕЛЬСТВУ
И АРХИТЕКТУРЕ
ПРИ ГОССТРОЕ СССР

ЗОНАЛЬНЫЙ
НАУЧНО-
ИССЛЕДОВАТЕЛЬСКИЙ
И ПРОЕКТНЫЙ
ИНСТИТУТ ТИПОВОГО
И ЭКСПЕРИМЕНТАЛЬНОГО
ПРОЕКТИРОВАНИЯ
жилых
И ОБЩЕСТВЕННЫХ ЗДАНИЙ
(КиевЗНИИЭП)

центральный
научно-исследовательский
и проектный институт
типового
и экспериментального
проектирования
ЖИЛИЩА

НОРМАЛИ
ПЛАНИРОВОЧНЫХ ЭЛЕМЕНТОВ
И ГАБАРИТОВ ОБОРУДОВАНИЯ
ЖИЛЫХ И ОБЩЕСТВЕННЫХ
ЗДАНИЙ

Вып. НП 6.3-73

учреждения массового отдыха.
помещения спальных корпусов
круглогодичного действия

Москва СТРОЙИЗДАТ 1973 г.

Нормали служат пособием по проектированию и издаются отдельными выпусками по видам зданий: гостиницы, жилые дома, школы и др.

Настоящий выпуск содержит нормативные и исходные данные, чертежи и рисунки с функциональными схемами помещений спальных корпусов круглогодичного действия учреждений массового отдыха.

Выпуск включает нормали помещений спальных комнат на 1 и 2 места для домов отдыха и на 2, 3 и 4 места для пансионатов, автопансионатов и турбаз с оборудованием, мебелью, встроенными шкафами, с санитарными узлами при комнатах или общими поэтажными. Даны также нормали обслуживающих и подсобных помещений, лестниц и лифтов.

Нормали основаны на действующих СНиП, стандартах и изучении передового советского и зарубежного опыта нормализации помещений и оборудования.

Нормали предназначены для архитекторов, инженеров, преподавателей, студентов архитектурных и строительных вузов и техникумов, а также работников местных Советов, соответствующих министерств и ведомств.

В разработке серии нормалей планировочных элементов жилых и общественных зданий принимают участие ведущие организации: ЦНИИЭП жилища (директор института д-р архитектуры Б.Р. Рубаненко) и ЦНИИЭП учебных зданий (директор института д-р архитектуры Г.А. Градов), а также ЦНИИЭП зрелищных зданий и спортивных сооружений; ЦНИИЭП торговых зданий. ЦНИИЭП лечебно-курортных зданий, ЦНИИЭП Граждансельстрой, КиевЗНИИЭП, Гипропрос, Гипроторг, Гипротеатр, Союзспортпроект, Гипронииздрав, МНИИТЭП ГАПУ Москвы, Гипронии, Гипровуз.

Методическое руководство работой и общее редактирование нормалей осуществляют: руководитель отдела стандартизации ЦНИИЭП жилища канд. архитектуры Д.Б. Хазанов, руководитель сектора нормализации и стандартизации планировочных элементов и оборудования канд. архитектуры Е.С. Раева, руководитель сектора унификации общественных зданий ЦНИИЭП учебных зданий архит. Н.М. Вавировский.

Выпуск НП-6.3-73 «Учреждения массового отдыха. Помещения спальных корпусов круглогодичного действия» разработан КиевЗНИИЭП (директор института канд. архитектуры А.И. Заваров, гл. инж. института канд. техн. наук М.И. Медведев, зам. директора по научной работе канд. архитектуры М.И. Гречина, руководитель отдела общественных зданий канд. архитектуры Н.Б. Чмутина, руководитель сектора лечебно-оздоровительных зданий канд. архитектуры Л.В. Синькевич) и ЦНИИЭП жилища.

Руководитель работы «Учреждения массового отдыха. Помещения спальных корпусов круглогодичного действия» канд. архитектуры Л.В. Синькевич.

Выпуск НП-6.3-73 разработан авторским коллективом КиевЗНИИЭП и ЦНИИЭП жилища - архитекторы С.В. Бабий, М.И. Барановский, Б.И. Козорез, В.Ф. Клименко, М.И. Макушенко, кандидаты архитектуры Н.Д. Манучарова, Е.С. Раева, А.П. Седов, Л.В. Синькевич, В.А. Ткаченко при участии в первой редакции архит. X.М. Ходиева, инженеров В.С. Диденко и О.X. Згурского.

Консультанты: кандидаты архитектуры В.И. Делле, М.Н. Иманов, Г.И. Колчанова, Б.М. Мержанов, Л.П. Хохлова, инж. Ю.П. Буянов, Г.И. Мадера.

Графическое оформление - архитекторы С.В. Бабий, М.И. Барановский; техники Е.Т. Майданюк, Н.М. Сенчук, В.Н. Корчевская.

Проект нормалей одобрен секцией Ученого совета ЦИИИЭП жилища. Отзывы и замечания по выпускам нормалей, а также предложения о дальнейшей работе по нормализации планировочных элементов зданий просьба направлять по адресу: Москва, И-434, Дмитровское шоссе, 9, корпус «Б», Центральный научно-исследовательский и проектный институт типового и экспериментального проектирования жилища (ЦНИИЭП жилища), отдел стандартизации, а по данному выпуску также по адресу: Киев, 133, бульвар Леси Украинки, 26, КиевЗНИИЭП, научное отделение, сектор лечебно-оздоровительных зданий.

ВВЕДЕНИЕ

Нормали планировочных элементов спальных корпусов круглогодичного действия учреждений массового отдыха входят в состав серии нормалей элементов планировки и оборудования жилых домов и общественных зданий.

Цель разработки нормалей - внедрение в типовое проектирование и строительство прогрессивных функциональных и технических решений в соответствии с действующими нормами проектирования.

Нормали должны также служить основой уточнения типоразмеров индустриальных строительных изделий, повышения степени их заводской готовности, определения мест расположения встроенного стационарного оборудования, приборов, трубопроводов и коммуникаций.

Настоящее издание нормалей предназначено для практического использования при проектировании спальных корпусов учреждений массового отдыха.

Нормали применяются для полносборного строительства зданий крупнопанельной и каркасной конструкции, а также зданий с несущими стенами из кирпича или блоков. При составлении нормалей учтены действующий каталог индустриальных строительных изделий ИИ-04, параметры и изделия, принятые для наиболее распространенных серий типовых проектов жилых домов, а также крупнопанельные и каркасно-панельные конструкции, предусмотренные в «Сортаменте унифицированных строительных элементов жилых и общественных зданий». Планировочные решения учитывают условия строительства в II - IV климатических районах.

Нормали разработаны на основе опыта проектирования, материалов научно-исследовательских работ и практики эксплуатации зданий. При разработке нормалей учитывали следующее:

габариты человека (групп людей) разного возраста в различных положениях (во время работы, отдыха, еды, сна и т.п.);

функциональные и технологические процессы, связанные с индивидуальными физиологическими, трудовыми и общественными функциями человека, а также с работой механизмов и оборудования;

санитарно-гигиенические нормы площади и объема помещений, естественной и искусственной освещенности;

каталоги и рекомендации по типам и габаритам технологического, санитарно-технического и электротехнического оборудования, встроенной и передвижной мебели;

противопожарные требования к ширине и длине эвакуационных путей (коридоров, проходов, лестниц, дверей); типы противопожарного оборудования и устройств;

правила техники безопасности при размещении специального оборудования;

требования видимости, акустики, звукоизоляции;

технико-экономические показатели объемно-планировочных решений, установленные нормами и программами проектирования.

В полный состав нормалей планировочных элементов входят:

номенклатура и типы необходимого оборудования и мебели с указанием габаритов;

схемы основных функциональных зон с размещением оборудования и мебели;

габаритные схемы помещений с расположением оборудования и мебели (указываются их размеры и минимальные нормативные расстояния между предметами мебели и оборудования);

схемы планировки помещений (при необходимости также разрезы или развертки стен) применительно к основным конструктивным системам и унифицированным модульным параметрам;

схемы санитарно-технических, технологических и электротехнических устройств.

При нормализации помещений учитывается система взаимосвязи между ними в соответствии с общей объемно-планировочной структурой здания.

Различный состав нормали (полный или неполный) принимается в зависимости от необходимой степени нормализации помещения.

На чертежах оборудования указаны основные габаритные размеры. На схемах планировочных узлов и на общих габаритных схемах даются две категории размеров:

а) размеры элементов оборудования и отдельные твердо установленные параметры (например, ширина санитарного узла); б) минимальные размеры со знаком ³ (т.е. более или равно) расстояний между предметами оборудования и проходов.

На габаритных схемах приводятся также минимальная ширина и длина помещений со знаком ³. На некоторых листах минимальные размеры оговорены специальным примечанием; в этом случае знак ³ опущен.

На схемах планировки помещений, разработанных применительно к основным конструктивным системам, даны унифицированные модульные параметры, соответствующие главе СНиП II-А.4-62 «Единая модульная система; основные положения проектирования», с учетом опыта проектирования и рекомендаций научно-исследовательских институтов. В связи с этим здесь приводятся точные размеры всех элементов планировки и привязка конструктивных элементов к модульным разбивочным осям.

При разработке планировочных схем учтено указание СНиП о предпочтительном применении размеров продольных и поперечных шагов, кратных наиболее крупным из установленных производных модулей 60М и 30М (600 и 300 см), а в некоторых случаях (преимущественно для жилых зданий) кратных 12М (120 см).

Применение модуля 6М (60 см) допускается в пределах до 720 см, а модуля 3М (30 см) - до 360 см (при обосновании - до 720 см). Модуль 2М (20 см) допускается лишь при том условии, если проект рассчитывается на существующее массовое производство строительных изделий или оборудования для изготовления изделий с размерами, соответствующими этому модулю. В соответствии со СНиП II-Л.19-62 высота этажа спальных корпусов принимается, как для жилых зданий, т.е. равной 2,8 м (от пола до пола), а высота жилых помещений от пола до потолка - не менее 2,5 м. В IА, IБ, IГ, IVА климатических подрайонах высота этажа от пола до пола должна быть равна 3 м, а высота жилых помещений от пола до потолка не менее 2,7 м (СНиП II-Л.1-71). Высота этажа общественных зданий 3,3 м; высота залов принимается кратной 6М (60 см).

Размеры на чертежах планировочных нормалей и оборудования указаны в см. Для маркировки разделов альбома приняты следующие буквенные и цифровые обозначения: НП - нормали планировочные. Следующая затем первая цифра означает порядковый номер части, включающей вид или группу видов зданий, объединяемых по однородным функциональным признакам; вторая - порядковый номер выпуска, включающего определенную разновидность зданий. После дефиса указан год издания нормалей.

Например, маркой НП-6.3-73 обозначено:

НП - нормали планировочные;

6 - нормали основных помещений лечебно-оздоровительных зданий;

3 - помещения спальных корпусов (круглогодичного действия) учреждений массового отдыха;

73 - год издания.

Серия выпусков нормалей содержит унифицированные объемно-планировочные решения помещений, соответствующих номенклатуре типовых проектов жилых и общественных зданий.

Нормали выходят в свет отдельными выпусками:

Часть 1. Нормали основных помещений жилых зданий

1.1. Помещения квартирных жилых домов.

1.2. Помещения жилых корпусов гостиниц.

1.3. Помещения жилых корпусов общежитий.

1.4. Помещения жилых корпусов домов-интернатов для престарелых.

Часть 2. Нормали основных помещений зданий учебно-воспитательного назначения

2.1. Помещения детских яслей и садов.

2.2. Помещения общеобразовательных школ.

2.3. Помещения аудиторий высших учебных заведений и профтехучилищ.

2.4. Помещения учебных кабинетов профтехучилищ.

Часть 3. Нормали основных помещений торговых зданий и предприятий общественного питания

3.1. Помещения магазинов.

3.2. Помещения предприятий общественного питания.

Часть 4. Нормали основных помещений предприятий хозяйственно-бытового и коммунального обслуживания

4.1. Помещения предприятий бытового обслуживания.

Часть 5. Нормали основных помещений зданий культурно-просветительного назначения

5.1. Помещения зрелищных зданий.

5.2. Помещения спортивных сооружений.

5.3. Открытые плоскостные спортивные сооружения.

Часть 6. Нормали основных помещений зданий лечебно-оздоровительного назначения

6.1. Помещения лечебных зданий.

6.2. Помещения санаториев.

6.3. Помещения спальных корпусов круглогодичного действия учреждений массового отдыха.

6.4. Помещения пионерских лагерей.

Часть 7. Нормали основных помещений зданий научно-исследовательских институтов, проектных организаций и административных зданий

7.1. Помещения научно-исследовательских институтов.

7.2. Помещения административных зданий.

Внутри каждого выпуска листы альбома нормалей имеют свои порядковые номера.

* * *

Выпуск НП-6.3-73 «Учреждения массового отдыха. Помещения спальных корпусов круглогодичного действия» включает четыре раздела и приложения.

Нормали, разработанные на основе СНиП II-Л.19-62 «Учреждения отдыха. Нормы проектирования» и «Изменений главы СНиП II-Л.19-62»1 предназначаются для использования в типовом и индивидуальном проектировании спальных корпусов круглогодичного действия учреждений массового отдыха (домов отдыха, пансионатов, автопансионатов и туристских баз).

1 Приложение к постановлению Госстроя СССР от 23 июля 1971 г. № 118.

Состав нормалей, методика их разработки и правила назначения размеров соответствуют изложенным выше общим правилам.

Исходные данные и площади помещений (лист 1) приняты исходя из расчета 6,0 м2 жилой площади на одно спальное место в домах отдыха и 4,5 - 5,0 м2 в пансионатах, автопансионатах и туристских базах.

Номенклатура и габариты мебели (листы 2 - 5) содержат необходимый перечень предметов мебели для оборудования спальных, общественных, подсобных и вспомогательных помещений. В основу унификации встроенных шкафов положены модульные размеры по фронту 60, 90 и 120 см и по глубине 45 и 60 см (по наружным размерам).

Группировка мебели спальных комнат (лист 8) разработана на основе исходных габаритов (лист 7) и габаритов мебели (листы 3 - 5).

На листах 9, 10 даны примеры расстановки мебели в комнатах на 2 - 4 спальных места (с санузлами и без санузлов) спальных корпусов пансионатов, автопансионатов и туристских баз. На листе 11 даны примеры расстановки мебели в комнатах на 1 и 2 места спальных корпусов домов отдыха.

На листе 6 показаны приборы оборудования санитарных узлов, на листе 12 - компоновка индивидуальных совмещенных и раздельных санитарных узлов при спальных комнатах.

На листе 13 приведены варианты заполнения световых проемов спальных комнат. Примеры расстановки мебели в лоджиях или на балконах, а также ориентация окон спальных комнат приведены на листе 14. Группировка мебели и примеры планировки гостиных даны на листе 15.

На листе 16 приводятся рекомендации по отделке основных помещений спальных корпусов.

Группировка санитарных приборов и примеры планировки общих санитарных узлов даны на листах 17 и 18.

На листах 19 - 25 даются примеры решений секции спальных корпусов со спальными комнатами с санузлами при норме жилой площади 4,5 - 5,0 м2 на 1 место (пансионат, автопансионат и туристская база) и отдельно при норме жилой площади 6,0 м2 на 1 место (дом отдыха).

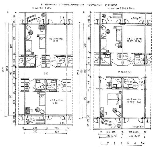
Примеры, приведенные на листах 19 - 22, разработаны для зданий с поперечными несущими стенами с шагами 3,0; 3,3 (3,2) и 6,0 м.

В примере «А» на листе 22 в здании с поперечными несущими стенами (с шагом 6,0 м) показаны варианты размещения спальных комнат на 2 - 4 места в спальных корпусах для туристских баз.

На листах 22 - 24 приведены примеры для зданий каркасной конструкции с сеткой колонн 6,0´6,0; 6,0´4,5; и 6,0´3,0 м с поперечными ригелями.

На листе 25 даны примеры для зданий с продольными несущими стенами.

На листах 26 и 27 даны примеры решений секций спальных корпусов со спальными комнатами с умывальниками при норме жилой площади 4,5 - 5,0 м2 на 1 место в зданиях с поперечными несущими стенами, для зданий каркасной системы и в зданиях с продольными несущими стенами.

В разделе альбома «Секции спальных корпусов» приведены примеры секций спальных корпусов, разработанные по наиболее экономичной и широко применяемой в практике проектирования и строительства схеме корпуса с двусторонней застройкой коридора. Менее экономичные и поэтому редко применяемые схемы с односторонней застройкой коридора или галерейные, а также типа «елочки» и другие в альбоме не приведены, но могут применяться проектировщиками с использованием элементов секций при двусторонней застройке коридора, приведенных в настоящем альбоме.

Спальные корпуса в зависимости от климатических условий или других требований могут строиться с лоджиями, балконами, французскими балконами или без лоджий и балконов.

Для сопоставимости технико-экономических показателей всех примеров секций толщина наружных панелей, внутренних перегородок и размеры других элементов приняты одинаковыми; площадь лоджий и балконов не учитывалась.

На листе 28 приведены схемы планировки и взаимосвязи вестибюля, лестницы, лифтов и гостиных в 2 - 3 и 9 - 16-этажных зданиях спальных корпусов.

На листах 29 - 36 приведены исходные нормативные данные для проектирования лестниц и лифтов.

Минимально допустимые размеры и уклоны лестничных маршей, ширины площадок указаны в соответствии со СНиП II-Л.1-71. Минимальная ширина марша принята 105 см, а наибольший уклон лестницы 1:1,75. Размеры железобетонных лестничных маршей и площадок принимаются по ГОСТ 9818-72.

Номенклатура, типы и параметры пассажирских лифтов даны в нормалях на основе ГОСТ 5746-67 (лифты пассажирские обычные) и ГОСТ 13023-67 (лифты пассажирские скоростные). Учтены изменения, опубликованные в Информационном указателе государственных стандартов СССР (ИУС, 1970, № 6). Основные параметры и размеры кабин, лифтовых шахт, машинных и блочных помещений представлены в виде габаритных схем по каждому типу лифта.

При этом учтены частичные изменения некоторых, цифровых данных, внесенные ЦПКБ Союзлифтмаш в процессе составления рабочих чертежей новых лифтов и уточнения основных параметров в соответствии с рекомендациями Постоянной комиссии по стандартизации СЭВ.

Шахты лифтов должны быть глухими, с раздвижными автоматическими дверями.

Ограждение шахт лифтов металлическими сетками не рекомендуется. В особых, обоснованных, случаях это допускается по согласованию с головной организацией по проектированию лифтов.

В соответствии со СНиП II-Л.19-62 «Учреждения отдыха» в спальных корпусах высотой 4 этажа и более должна быть предусмотрена установка не менее двух лифтов.

Целесообразно применение сборных железобетонных элементов, тюбингов высотой на этаж, предусмотренных в «Сортаменте унифицированных строительных элементов жилых и общественных зданий» в соответствии с ГОСТ 17538-72 - Блоки железобетонные для шахт лифтов.

Точность изготовления и монтаж сборных элементов лифтовых шахт должны соответствовать требованиям ГОСТ на пассажирские лифты: отклонения стен шахты от вертикальной плоскости не должны превышать 15 мм при высоте подъема до 45 м и 20 мм при высоте свыше 45 до 75 м (30 мм при высоте 100 м). Допускается разность диагоналей шахты в плане не более 10 мм. Отрицательные отклонения от размеров по ширине и глубине шахт не допускаются.

Нормалями предусматриваются варианты расположения противовесов в лифтовых шахтах сзади кабины и сбоку от нее. Компоновка шахт в плане может быть в виде зеркального отражения.

При проектировании противопожарные требования следует принимать в соответствии со СНиП II-Л.17-65; СН 295-64; СНиП II-А.5-62; II-Л.1-71.

Перечень листов выпуска НП-6.3-73. «Учреждения массового отдыха. Помещения спальных корпусов круглогодичного действия».

I. Исходные данные. Мебель

1. Площади помещений. Исходные данные.

2. Наборы мебели.

3. Габариты мебели.

4. Габариты мебели.

5. Встроенные шкафы. Типы и габариты.

6. Санитарные узлы. Оборудование.

7. Исходные габариты.

II. Спальные комнаты

8. Спальная комната. Группировка мебели.

9. Спальная комната на 2 места. Примеры расстановки мебели (при норме площади 4,5 - 5,0 м2 на 1 место).

10. Спальные комнаты на 3 и 4 места. Примеры расстановки мебели (при норме площади 4,5 - 5,0 м2 на 1 место).

11. Спальные комнаты на 1 и 2 места. Примеры расстановки мебели (при норме площади 6,0 м2 на 1 место).

12. Санитарный узел при спальной комнате. Типы и размещение.

13. Спальная комната. Заполнение световых проемов.

14. Лоджии и балконы. Примеры расстановки мебели. Ориентация спальных комнат.

III. Помещения общего пользования

15. Гостиная. Группировка мебели и примеры планировки.

16. Рекомендации по отделке помещений.

17. Общие санитарные узлы. Размещение оборудования.

18. Обслуживающие помещения. Примеры планировки.

IV. Секции спальных корпусов. Примеры

19. Секции спальных корпусов. Спальные комнаты с санитарными узлами (при норме жилой площади 4,5 - 5 м2 на 1 место) в зданиях с поперечными несущими стенами.

20. Секции спальных корпусов. Спальные комнаты с санитарными узлами (при норме площади 4,5 - 5 м2 на 1 место) в зданиях с поперечными несущими стенами.

21. Секции спальных корпусов. Спальные комнаты с санитарными узлами (при норме жилой площади 4,5 - 5 на 1 место) в зданиях с поперечными несущими стенами.

22. Секции спальных корпусов. Спальные комнаты с санитарными узлами (при норме жилой площади 4,5 - 5 м2 на 1 место) в зданиях с поперечными несущими стенами и каркасной конструкции.

23. Секции спальных корпусов. Спальные комнаты с санитарными узлами (при норме жилой площади 4,5 - 5 м2 на 1 место) в зданиях каркасной конструкции.

24. Секции спальных корпусов. Спальные комнаты с санитарными узлами (при норме жилой площади 6 м2 на 1 место) в зданиях каркасной конструкции.

25. Секции спальных корпусов. Спальные комнаты с санитарными узлами (при норме жилой площади 4,5 - 5 мг на 1 место) в зданиях с продольными несущими стенами.

26. Секции спальных корпусов. Спальные комнаты с умывальниками (при норме жилой площади 4,5 - 5 м2 на 1 место) в зданиях каркасной конструкции и с продольными несущими стенами.

27. Секции спальных корпусов. Спальные комнаты с умывальниками (при норме жилой площади 4,5 - 5 м2 на 1 место).

28. Схемы планировки и взаимосвязи вестибюля, лестницы, лифтов и гостиной.

Приложения: Лестницы и лифты.

29. Основные параметры лестниц

30. Защита лестниц от задымления

31. Типы и параметры обычных пассажирских лифтов, таблица

32. Типы и параметры обычных пассажирских лифтов, габаритные схемы

33. Типы и параметры обычных пассажирских лифтов, габаритные схемы

34. Типы и параметры обычных пассажирских лифтов, габаритные схемы

35. Типы и параметры скоростных пассажирских лифтов, габаритные схемы

36. Типы и параметры скоростных пассажирских лифтов, габаритные схемы.

1
РАЗДЕЛ

ИСХОДНЫЕ
ДАННЫЕ

МЕБЕЛЬ

 

Нормы и площади помещений спальных комнат

Типы учреждений массового отдыха

Количество спальных мест

Варианты заселения

Норма жилой площади на 1 спальное место в м2

Жилая площадь спальной комнаты без санузла в м2

Площади помещений спальной комнаты с санузлом в м2

Лоджия или балкон2)

 

спальная комната

совмещенный санузел

шлюз и встроенный шкаф

всего

одиночки

семьи

одиночки с детьми

 

Дом отдыха

1

-

-

60

90

90

20

20 - 25

130

35

 

Дом отдыха

2

60

120

120

20

20 - 25

160 - 165

30 - 45

 

Пансионат

2

45 - 50

90 - 100

90 - 100

20

20 - 25

130 - 145

35

 

Автопансионат

Турбаза

Пансионат

3

45 - 50

135 - 150

135 - 150

20

20 - 25

175 - 193

40 - 45

Автопансионат

Турбаза

Турбаза

4

45 - 50

180 - 200

40 - 45

 

1) В турбазах индивидуальные санузлы предусматривать в зависимости от задания.

2) Лоджии или балкон желательны.

Нормы и площади помещений общего пользования (СНиП II-А.19-62 и изменение СНиП II-А.19-62, постановление Госстроя СССР от 23 июля 1971 г. № 118)

Наименование помещений

Норма на 1 место

Наименьшая площадь помещений в м2

Где располагается помещение

Примечание

1. Вестибюль с регистратурой, дежурным администратором, отделением связи и сберегательной кассой

0,12 - 0,25 м2

-

На первом этаже

В отдельно стоящих спальных корпусах круглогодичного действия следует предусматривать вестибюли и гардеробные из расчета 0,23 м2 на одно место

2. Гардеробная1

0,08 м2

-

То же

3. Гостиная

0,6 м2

15

На каждом этаже

-

4. Комната персонала с санузлом

0,10 - 0,12 м2

12

На один - два этажа

Одна на 100 - 120 мест

5. Комната чистки и глажения одежды

0,06 м2

6

То же

То же

1 Учитываются места только в зданиях круглогодичного действия, в туристских базах при распределении всех групп помещений (приемных, административных, спальных, столовых и культурно-массового обслуживания) в одном здании или в разных зданиях, соединенных крытыми переходами; гардеробная рассчитывается на 30 % мест.

 

Наименование помещений

Норма на 1 место

Наименьшая площадь помещения в м2

Где располагается помещение

Примечание

6. Уборная общая

1 унитаз и 1 писсуар на 10 мужчин, 1 унитаз  на 10 женщин

На каждом этаже

В спальных корпусах с индивидуальными санузлами общая уборная делается по одному толчку для мужчин и женщин

7. Кабина личной гигиены женщин

1 кабина на 125 женщин

4

На один - два этажа

При устройстве душа в гигиенической кабине площадь последней должна быть 6 м2

8. Душевая

1 сетка на 25 мест

-

То же

В корпусах без индивидуальных санузлов

9. Сушилка для одежды и обуви

0,05 м2

-

На первом этаже

Предусматривать в I - III климатических районах

 

 

Предметы мебели

Размеры мебели в плане1 в см

Количество предметов мебели

спальные комнаты с количеством мест

помещения общего пользования

длина

ширина

1

2

3

4

лоджия

вестибюль

гостиная

лоджии или терраса

комната персонала

комната чистки одежды

бельевая

душевая

1

2

3

4

5

6

7

8

9

10

11

12

13

14

15

16

1. Кровать одинарная

195 - 200

70 - 80

15)

25)

3

4

-

-

-

-

-

-

-

-

2. Кровать откидная

200

90

-

25)

3

4

-

-

-

-

-

-

-

-

3. Кровать двухъярусная

200

70

-

25)

3

4

-

-

-

-

-

-

-

-

4. Диван-кровать

200

80

15)

25)

3

4

-

-

-

-

1

-

-

-

5. Тумба для постели

40

80

1

25)

3

4

-

-

-

-

-

-

-

-

6. Тумба прикроватная

30

30

1

25)

3

4

-

-

-

-

-

-

-

-

7. Стол комбинированный (с зеркалом)

80

55

1

15)

1

1

-

-

-

-

-

-

-

-

8. Стол журнальный

100

60

15)

1

1

1

12)

1 - 2

1 - 22)

-

-

-

-

8'. То же

Æ 06

Æ 90 - 120

1

9. Стул

50

38 - 45

1

25)

3

4

-

-

-

-

1

-

-

-

10. Банкетка

50

35

-

25)

3

4

-

2

1 - 2

-

1

-

-

-

10'. То же

150

38 - 42

11. Кресло

78

65

1

25)

3

4

-

4 - 6

-

-

1

-

-

-

12. Подставка для чемоданов (складная)

70

45

1

1

1 - 2

1 - 2

-

-

-

-

1

-

-

-

13. Шкаф для одежды и белья3)

60, 90, 120

45, 60

1

1

1 - 2

1 - 2

-

-

-

-

1

-

-

-

14. Стол для телевизора

60 - 90

38 - 60

-

-

-

-

-

-

1

-

-

-

-

-

15. Диван

190 - 200

80

-

-

-

-

-

-

1

-

-

-

-

-

16. Пианино

143

55

-

-

-

-

-

-

1

-

-

-

-

-

17. Рояль

170 - 230

145 - 155

-

-

-

-

-

-

1

-

-

-

-

-

18. Кровать раскладная

200

75

-

-

-

-

1

-

-

-

-

-

-

-

19. Стул террасный

46

42

-

-

-

-

1 - 2

-

-

2 - 7

-

-

-

-

20. Шезлонг

130

60

-

-

-

-

1 - 2

-

-

2

-

-

-

-

21. Стол рабочий

120

60

-

-

-

-

-

1

-

-

1

1

1

-

22. Табурет

Æ 035

-

14)

14)

14)

14)

-

-

-

-

1

1

1

3 - 4

23. Подножка с ящиком для щеток

40

30

-

-

-

-

-

1

-

-

-

1 - 2

-

-

24. Шкаф хозяйственный

90

45 - 60

-

-

1-

-

-

-

-

-

1

1

1 - 2

-

25. Подцветочница

-

-

-

-

-

-

-

1 - 2

2 - 3

-

-

-

-

-

26. Полка навесная

-

-

1

1

1

1

-

-

-

-

1

2

1

-

27. Зеркало

35

50

1

14)

14)

1

-

-

-

-

1

1

-

1

28. Настенная вешалка с количеством крючков (3 - 6)

-

-

3

3

5

6

-

-

-

-

3

3 - 6

3 - 6

3 - 6

1. Отступления от норм проектирования на бытовую мебель обоснованы тем, что в планировке комнат следует учитывать возможность применения нестандартной мебели (ГОСТ 13025.1-13-71).

2. Журнальные столы, устанавливаемые в лоджиях и на террасах, должны выполняться из металла и пластиков.

3. Шкафы, размещаемые в шлюзах или спальных комнатах, делаются встроенными; вместо встроенных шкафов в спальных комнатах могут применяться переносные шкафы тех же размеров (объемы шкафов приведены на листе 5).

4. Размещение - в санитарном узле или в спальной комнате.

5. Выбор предметов мебели зависит от планировки и других условий.

Примечание. Для оборудования спальных комнат могут быть применены наборы мебели, принятые для оборудования гостиниц (проект № 03-118-00) и летних курортных городков (проект № 011-4-65/1-7), разработанные Всесоюзным проектно-конструкторским и технологическим институтом мебели.

Примечания: 1. Порядковые номера соответствуют номерам предметов мебели в перечне их на листе 2.

2. Предметы мебели, приведенные на данном листе, за исключением № 3, имеются в продаже.

3. Кроме переносной мебели в спальных комнатах может применяться стационарная (встроенная) мебель, не обусловленная стандартами.

Примечания: 1. Порядковые номера соответствуют номерам предметов мебели в перечне их на листе 2.

2. Предметы мебели, приведенные на листе 4, за исключением № 10, 10', 19, 23, имеются в продаже.

3. Телевизор устанавливается на столе, так чтобы горизонтальный луч из центра экрана был на уровне глаз зрителя.

Величины минимально необходимых размеров встроенного платяного шкафа
для спальной комнаты.

Показатели

Единица измерения

На 1 чел.

На 2 чел.

На 3 чел.

На 4 чел.

Площадь ...

м2

0,27

0,96

0,54

0,72

Объем ...

м3

0,67

0,90

1,36

1,80

Размер по фронту ...

м

0,60

0,60

0,90

1,20

Примечания: 1. Дверные створки шкафов могут быть на петлях или раздвижные.

2. Размеры шкафов даны по наружным габаритам.

3. В основном применяются встроенные или пристроенные шкафы; передвижные шкафы принимаются тех же габаритов.

4. Исходные данные для определения размеров шкафов взяты по РТУ УССР 242-59.

Примечания: 1. Мойка чугунная эмалированная устанавливается в помещениях для уборочного инвентаря.

2. Унитаз «компакт» применяется как в индивидуальных, так и в общих санитарных узлах. Унитаз напольный керамический применяется только в общих санитарных узлах.

2
РАЗДЕЛ

СПАЛЬНЫЕ КОМНАТЫ

 

Примечания: 1. Между предметами мебели указаны минимальные расстояния.

2. Кровати показаны по максимальному габариту.

3. Цифровые обозначения предметов мебели соответствуют порядковым номерам их на листе 2.

4. Пример, приведенный на схеме 3в, допускается применять только в турбазах.

5. В I и II климатических районах кровати от оконных проемов должны размещаться на расстоянии £ 50 см.

 

1 - кровать одинарная; 3 - кровать двухъярусная; 4 - диван-кровать; 5 - тумбочка для постельных принадлежностей; 6 - прикроватная тумбочка; 7 - стол; 8 - журнальный стол; 9 - стул; 11 - кресло для отдыха; 13 - шкаф для одежды и белья

Примечания: 1. В приведенных примерах показаны минимальные размеры сторон спальных комнат, допустимые для принятой расстановки мебели.

2. Цифровые обозначения предметов мебели соответствуют порядковым номерам их на листе 2.

3. Санитарные узлы см. лист 12.

4. В I и II климатических районах кровати от оконных проемов должны размещаться на расстоянии ³ 50 см.

5. В схемах 1. 2, 3 нормативная площадь комнаты 9,0 - 10,0 м2.

Примечания: 1. В приведенных примерах показаны минимальные размеры сторон спальных комнат, допустимые для принятой расстановки мебели.

2. Цифровые обозначения предметов мебели соответствуют порядковым номерам их на листе 2.

3. Санитарные узлы см. лист 12.

4. В I и II климатических районах кровати от окон должны размещаться на расстоянии ³ 50 см.

5. В схемах 1. 2, 3 нормативная площадь комнаты - 13,5 - 15,0 м2; в схеме 4 - 18,0 - 20,0 м2.

Примечания: 1. В приведенных примерах показаны минимальные размеры сторон спальных комнат, допустимые для принятой расстановки мебели.

2. Цифровые обозначения предметов мебели соответствуют порядковым номерам их на листе 2.

3. Санитарные узлы см. лист 12.

4. В I и II строительно-климатических зонах кровати от окон должны размещаться на расстоянии ³ 50 см.

5. В верхней схеме нормативная площадь - 9,0 м2; в схемах 1, 2, 3 - 12 м2.

Примечания: 1. Санитарные узлы могут монтироваться как из объемных кабин заводского изготовления, так и из отдельных панелей. В обоих случаях рекомендуется применение бетонной панели-пола (поддона) с заделанным в нее трапом и канализационным трубопроводом от него.

2. Совмещенные санитарные узлы типа А и Б взаимозаменяемые (в примерах показан тип А).

3. Для совмещенного санитарного узла предусмотрены четыре варианта положения канализационного стояка - в зависимости от решения плана и конструктивной схемы здания.

4. В примерах 1а, 1в, 2б приведены вентиляционные блоки для зданий и 2 - 5 этажей, в остальных примерах - для зданий в 9 - 16 этажей.

Примечания: 1. Согласно ГОСТу, ширина оконных проемов принята 272 и 242 см, высота - 182 см.

2. В I климатическом районе оконные и дверные переплеты делать раздельными.

Примечания: 1. Размер L определяется шириной спальной комнаты.

2. Глубина лоджий, вынос балконов приняты унифицированными 120 и 160 см.

3. Рекомендуемое количество мебели в лоджиях и на балконах указано на листе 2.

Ориентация окон спальных комнат (для всех климатических районов) не более 40 % спальных мест

Примечания: 1. В III и IV климатических районах при ориентации окон спальных комнат на З и ЮЗ следует предусматривать регулируемые солнцезащитные устройства у окон.

2. Севернее 60° северной широты допускается для спальных комнат любая ориентация, но такая, чтобы наружные стены с оконными проемами не были обращены против господствующих ветров (по зимней розе ветров).

3. Рекомендации по ориентации спальных помещений даны на основе СНиП II-Л.19-62.

4. В сумме на С и З можно ориентировать спальные помещения не более чем на 40  мест.

3

РАЗДЕЛ

ПОМЕЩЕНИЯ ОБЩЕГО ПОЛЬЗОВАНИЯ

 

Примечания: 1. Площади гостиных приняты ориентировочно.

2. Цифровые обозначения предметов мебели соответствуют порядковым номерам их на листе 2.

3. Вместо раздвижных или решетчатых перегородок (из несгораемых материалов), отделяющих гостиную от коридора, можно делать остекленную перегородку с дверями. Перегородки делаются из несгораемых материалов.

УЧРЕЖДЕНИЯ МАССОВОГО ОТДЫХА

РЕКОМЕНДАЦИИ ПО ОТДЕЛКЕ ПОМЕЩЕНИЙ

16

отделка

Примечания: Для отделки стен спальных комнат рекомендуются высококачественные казеиновые, клеевые и мастичные краски с разделками и тщательной подготовкой поверхности.

1. Для окраски стен спальных комнат следует применять: при северной ориентации - теплые, а при южной - холодные цвета с коэффициентом отражения ρ = 40 ÷ 60 %.

2. Для окраски стен холлов и гостиных можно рекомендовать светлые и более интенсивные тона с коэффициентом отражения ρ = 30 ÷ 60 %.

3. Для окраски стен коридоров при двусторонней застройке применяются тона с коэффициентом отражения ρ = 60 ÷ 70 %.

4. В помещениях, слабо освещенных естественным светом, рекомендуются более светлые тона окраски для стены, на которой размещены окна, а также для стен напротив окон с коэффициентом отражения ρ = 60 - 75 %.

5. Панели в санитарных помещениях следует отделывать или облицовывать водостойкими материалами.

6. Отделка (облицовка) поверхностей конструкций сгораемыми материалами в коридорах, холлах, гостиных в лестничных клетках не допускается.

ОКРАСКА ПОТОЛКОВ

1. Потолки рекомендуются белые с добавлением колера стен с коэффициентом отражения ρ = 70 ÷ 82 %.

2. Потолки коридоров можно окрасить в тот же колер, что и стены, с коэффициентом отражения ρ = 70 ÷ 82 %.

Щитовые двери опальных комнат можно окрасить в белый или в любой цвет согласно общему цветовому решению, а также покрыть цветной пленкой. Переплеты окон белые.

Для подключения в разных местах осветительных и других электроприборов рекомендуется устанавливать розетки по периметру комнаты в соответствии с действующими нормами.

ПОКРЫТИЕ ПОЛОВ

Полы могут быть паркетные, а также высококачественные рулонные или плиточные из синтетических материалов; для коридоров желательно применить особо прочные и мягкие звукопоглощающие материалы. Цвет пола в соответствии с цветом стен может быть несколько темнее и интенсивнее. Пол санузла и шлюза при спальной комнате рекомендуется делать водонепроницаемым и водостойким (мозаичный, плиточный).

Примеры колерных составов для окраски спальных комнат

№ колера

Наименование и состав колера

Весовой, %

ρ, %

№ колера

Наименование и состав колера

Весовой, %

ρ, %

3

Золотисто-желтый

50 - 60

31

Холодно-серый

45 - 50

Краска желтая ЖЛП-2

71,0

Мел

48,0

Охра золотистая

29,0

Краска синяя У-25

29,4

Краска желтая ЖЛП-2

22,6

6

Светлый лимонно-желтый

60 - 70

62

Тепло-серый

-

35 - 40

Мел

85,9

Краска желтая ЖЛП-2

67,0

Краска красная К-5

5,1

Мел

33,0

Краска бордо Б-5

5,1

Краска зеленая ЗП-5

3,9

7

Светлый соломенно-желтый

60 - 70

64

Серебристо-серый

35 - 40

Мел

73,0

Мел

83,0

Охра золотистая

27,0

Краска голубая МО-2

9,0

Краска коричневая М-25

8,0

8

Тепло-желтый

45 - 50

73

Светло-синий

30 - 40

Мел

87,0

Краска синяя У-25

67,4

Охра золотистая

13,0

Мел

27,4

Краска зеленая ЗП-5

2,6

Ультрамарин

2,6

17

Желто-зеленый

50 - 60

75

Серо-голубой

30 - 40

Краска желтая ЖЛП-2

51,7

Мел

66,0

Охра золотистая

34,4

Краска синяя У-25

28,0

Мел

12,2

Охра золотистая

6,0

Краска зеленая ЗП-10

1,7

1 Таблица колеров составлена на основе «Альбома колеров». Авторы: В.К. Крауклис, М.Я. Рудзите, О.Я. Амстерс, Л., 1964.

Примечания:

1. В связи с тем, что в спальных корпусах круглогодичного действия душевые устраиваются в индивидуальных санузлах или централизованы, в кабине личной гигиены женщин душ не предусматривается.

2. Душевые кабины могут быть без поддона с устройством трапа.

3. Основные размеры даны «в чистоте».

Примечания:

1. В корпусах с общими санузлами и душевыми при комнате персонала может предусматриваться только умывальник.

2. Цифровые обозначения предметов мебели соответствуют порядковым номерам их на листе 2.

А - помещение для хранения уборочного инвентаря; Б - помещение для хранения грязного белья; В - кабина личной гигиены женщин.

4

РАЗДЕЛ

СЕКЦИИ СПАЛЬНЫХ КОРПУСОВ

ПРИМЕРЫ

 

Примечания:

1. Толщина перегородок, наружных панелей и панелей перекрытия принята условно одинаковой во всех примерах секции.

2. Комнаты спальных корпусов могут быть с лоджиями, французскими балконами или без лоджии и балконов в зависимости от климатических условий.

3. Санитарные узлы в примерах секций предусмотрены в кабинах заводского изготовления: при строительстве без кабин санитарные приборы размещаются так же.

4. Указанные в скобках размеры, некратные укрупненному модулю 30 см, предусмотрены для возможного применения индустриальных изделий, выпускаемых в настоящее время.

Технико-экономические показатели

Секция

Жилая площадь на 1 место в комнате в м2

Строительный объем на 1 место (без лоджии) в м3

в комнате с санузлом и шлюзом

секция

2-местной

3-местной

2-местной

3-местной

«А» с шагом 3 м

«Б» с шагом 3,3 м

«Б» с шагом 3,2 м

 

Примечания:

1. Толщина перегородок, наружных панелей и панелей перекрытия принята условно одинаковой во всех примерах секций.

2. Комнаты спальных корпусов могут быть с лоджиями, французскими балконами или без лоджий и балконов в зависимости от климатических условий.

3. Санитарные узлы в примерах секций предусмотрены в кабинах заводского изготовления: при строительстве без кабин санитарные приборы размещаются так же.

Технико-экономические показатели

Секция

Жилая площадь на 1 место в комнате в м2

Строительный объем на 1 место (без лоджии) в м3

в комнате с санузлом и шлюзом

секция

2-местной

3-местной

2-местной

3-местной

«А» с шагом 6 м

«Б» с шагом 6,0 м

 

Примечания: 1, 2, 3 - см. л. 20 на стр. 35.

4. Указанные в скобках размеры 320 см некратные укрупненному модулю 3м предусмотрены для возможного применения индустриальных изделий, выпускаемых в настоящее время.

5. В примере «А» показана секция из 2 двухместных и 2 одноместных комнат; заменив две одноместные комнаты двухместными (зеркальное повторение верхних комнат), можно получить секцию из 4 двухместных комнат.

Технико-экономические показатели

Секция

Жилая площадь на 1 место в комнате в м2

Строительный объем на 1 место (без лоджии) в м3

в комнате с санузлом и шлюзом

секция

1-местной

2-местной

1-местной

2-местной

«А» с шагом 3 м; 2 комнаты по 1 месту; 2 комнаты по 2 места

9,35

«А» с шагом 3,0 м; 4 комнаты по 2 места

-

-

«Б» с шагом 3,3 м; 4 комнаты по 2 места

-

-

«Б» с шагом 3,2 м; 4 комнаты по 2 места

-

-

 

Примечания:

1. Толщина перегородок, наружных панелей и панелей перекрытий принята условно одинаковой во всех примерах секций.

2. Комнаты спальных корпусов могут быть с лоджиями, французскими балконами или без лоджий и балконов в зависимости от климатических условий.

3. Санитарные узлы в примерах секций предусмотрены в кабинах заводского изготовления; при строительстве без кабин санитарные приборы размещаются так же.

Технико-экономические показатели

Секция

Жилая площадь на 1 место в комнате в м2

секция

Строительный объем на 1 место без лоджии в м3

2-местной

3-местной

на 6 мест

в комнате с санузлом и шлюзом

2-местной

3-местной

на 6 мест

«А» (поперечные несущие стены) с шагом 6,0 м

«Б» (каркасной конструкции) сетка колонн 6´6 и 6´3 м

-

-

 

Технико-экономические показатели

Секция

Жилая площадь на 1 место в комнате в м2

Строительный объем на 1 место (без лоджии) в м3

в комнате с санузлом и шлюзом

секция

2-местной

3-местной

2-местной

3-местной

«А» (сетка 6´6 м)

«Б» (сетка 4,5´6 м)

Примечание. См. аналогичное примечание к листу 22.

Примечания:

1. Толщина перегородок, наружных панелей и панелей перекрытий принята условно одинаковой во всех примерах секций.

2. Комнаты спальных корпусов могут быть с лоджиями, французскими балконами или без лоджий и балконов в зависимости от климатических условий.

3. Санитарные узлы в примерах секций предусмотрены в кабинах заводского изготовления; при строительстве без кабин санитарные приборы размещаются так же.

4. В примере А показана секция из 2 двухместных и 2 одноместных комнат; заменив две одноместные комнаты двухместными (зеркальное повторение верхних комнат), можно получить секцию из 4 двухместных комнат.

Технико-экономические показатели

Секция

Жилая площадь на 1 место в комнате в м2

Строительный объем на 1 место без лоджии в м3

1-местной

2-местной

в комнате с санузлом и шлюзом

секция

1-местной

2-местной

«А» (сетка 4,5´6,0 м), 4 комнаты по 2 места

-

-

«А» (сетка 4,5 и 3,6´6,0 м), 2 комнаты по 1 месту, 2 комнаты по 2 места

10,02

«Б» (сетка 6,0´6,0 и 6,0´3,0 м), 4 комнаты по 2 места

-

-

 

Примечания:

1. Толщина перегородок, наружных панелей и панелей перекрытий принята условно одинаковой во всех примерах секций.

2. Комнаты спальных корпусов могут быть с лоджиями, французскими балконами или без лоджий и балконов в зависимости от климатических условий.

3. Ширина простенков наружных стен в сейсмических районах определяется расчетом согласно СНиП II-А.12-62.

4. Санитарные узлы в примерах секции предусмотрены в кабинах заводского изготовления; при строительстве без кабин санитарные приборы размещаются также.

5. Указанные в скобках размеры, некратные укрупненному модулю 30 см, предусмотрены для возможного применения индустриальных изделий, выпускаемых в настоящее время.

6. В примере «Б» показана секция из 2 двухместных и 2 одноместных комнат; заменив обе одноместные комнаты двухместными (зеркальное повторение верхних комнат), можно получить секцию из 4 двухместных комнат.

Технико-экономические показатели

Секция

Жилая площадь на 1 место в комнате в м2

Строительный объем на 1 место без лоджии в м3

в комнате с санузлом и шлюзом

секции

2-местной

3-местной

2-местной

3-местной

«А» с шагом 3,3 м

«А» с шагом 3,2 м

 

Технико-экономические показатели

Секция

Жилая площадь на 1 место в комнате в м2

Строительный объем на 1 место без лоджии в м3

в комнате с санузлом и шлюзом

секция

1-местной

2-мсстной

1-местной

2-местной

«Б» продольные стены - 4 2-местные комнаты

-

-

«Б» продольные стены - 2 одноместные комнаты - 2 двухместные комнаты

8,90

 

Примечания: 1. Толщина перегородок, наружных панелей и панелей перекрытия принята условно одинаковой во всех примерах секций.

2. Комнаты спальных корпусов могут быть с лоджиями, французскими балконами или без лоджий и балконов, в зависимости от климатических условий.

3. Указанные в скобках размеры, некратные укрупненному модулю 30 см, предусмотрены для возможного применения индустриальных изделий, выпускаемых в настоящее время.

Технико-экономические показатели

Секция

Жилая площадь на 1 место в комнате в м2

Строительный объем на 1 место без лоджии в м3

2-местной

3-местной

«А» с шагом 3 м

«Б» с шагом 3,30 м

«Б» с шагом 3,2 м

«В» с шагом 6,0 м

 

Примечания: 1. Толщина перегородок наружных панелей и панелей перекрытий принята условно одинаковой во всех примерах секций.

2. Комнаты спальных корпусов могут быть с лоджиями, французскими балконами или без лоджий и балконов в зависимости от климатических условий.

3. Указанные в скобках размеры, некратные укрупненному модулю 30 см, предусмотрены для возможного применения индустриальных изделий, выпускаемых в настоящее время.

4. Ширина простенков наружных стен в сейсмических районах определяется расчетом и принимается по требованию СНиП II-А.12-62.

Технико-экономические показатели

Секция

Жилая площадь на 1 место в комнате в м2

Строительный объем на 1 место без лоджии в м3

2-местной

3-местной

«А» (сетка 6,0´6,0 м)

«Б» (сетка 6,0´6,0 и 3,0 м)

«В» с продольными несущими стенами с шагом 3,3 м

«В» с продольными несущими стенами с шагом 3,2 м

 

1 - вестибюль; 2 - дежурный; 3 - лестница; 4 - лифт; 5 - гардероб; 6 - гостиная; 7 - комната персонала; 8 - спальная комната; 9 - мусоропровод

ПРИЛОЖЕНИЯ

ЛЕСТНИЦЫ И ЛИФТЫ

 

Схематический разрез и планы лестничной клетки

Примечания: 1. Размеры проемов входной двери в зависимости от устройства порога и четверти в стене следует принимать по МРТУ 20-6-65.

2. При заполнении наружных стен лестничных клеток стеклоблоками на каждом этаже должен быть предусмотрен оконный проем (с открывающимися створками) площадью не менее 1,2 м2.

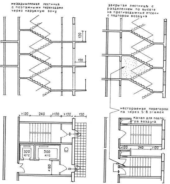
3. Число ступеней (подъемов) в одном марше лестницы должно быть не менее 3 и не более 18. На чертеже указана минимальная ширина марша, она может быть принята 120 см, если это необходимо по расчету суммарной ширины путей эвакуации на основании СНиП II-А.5-70.

4. Способы защиты лестниц от задымления и схемы их взаимосвязи с эвакуационными путями и выходами см. «Нормали планировочных элементов НП I.1-71. Лестницы и лифты».

5. Размеры сборных железобетонных лестничных маршей и площадок следует принимать по ГОСТ 9818-72, утвержденному Госстроем СССР 17 августа 1972 г. со сроком введения с 1 января 1973 г.

6. Сборные элементы железобетонных лестниц приведены в «Сортаменте унифицированных строительных элементов жилых и общественных зданий». Выпуск ЦНИИЭП жилища, М. - 1972.

Лестницы проектируются, как правило, с естественным освещением через окна. В стенах незадымляемых лестничных клеток, смежных с поэтажными вестибюлями, общими коридорами или галереями, устройство открытых проемов не допускается. Допускается устройство световых проемов, заполненных стеклоблоками; при этом нижняя отметка светового проема должна быть не менее 120 см от уровня площадки или марша.

Незадымляемые лестничные клетки в первом этаже должны иметь выходы непосредственно наружу и в вестибюль через проход, открытый во внешнюю среду, или через шлюз с обеспечением в нем при пожаре воздушного подпора давлением не менее 2 кг/м2.

Допускается, независимо от этажности жилых домов, проектировать лестничные клетки без естественного освещения при обеспечении незадымляемости путем создания в них воздушного подпора, определяемого по расчету, и удаления дыма из коридоров, холлов или шлюзов через размещаемые в них вентиляционные шахты, а также с помощью других технических средств.

 

Основные параметры лифтов

Характеристика основных параметров лифтов номинальной грузоподъемности в кгс

Примечание

320

500

1000

Скорость, м/сек

0,71

1

1

1,4

1

1,4

Пассажирские лифты грузоподъемностью 320 и 500 кг со скоростью движения кабины 0,71 и 1 м/сек допускается изготовлять с ручными раздвижными дверями кабины и шахты.

В величину номинальной грузоподъемности лифта вес кабины не входит.

В обоснованных случаях, если невозможно устройство глухих шахт, допускается установка пассажирских лифтов со скоростью 0,7 и 1 м/сек в металлокаркасных шахтах с остеклением или ограждением их металлической сеткой, но это должно быть согласовано с головной организацией по проектированию лифтов.

В общую номенклатуру лифтов по ГОСТ 5746-67 включены грузопассажирские лифты с удлиненными кабинами для подъема и спуска пассажиров, мебели и др. Такие лифты имеют подъемность 500 и 1000 кг и скорость движения кабины и 1 и 1,4 м/сек (листы 33 и 34)

Наибольшая высота подъема м

45

75

75

100

75

100

Количество остановок кабины, не более

9

16

16

24

16

24

Вместимость кабины (человек)

4

4

6

6

12

12

Тип кабины

Непроходная с раздвижными автоматическими дверями

Тип шахты

Глухая с раздвижными автоматическими дверями

Расположение противовеса

Сзади или сбоку кабины

Сзади кабины

Расположение машинного помещения

Вверху над шахтой

Система управления лифтами

Кнопочная внутренняя с вызовом порожней кабины на любой этаж, а при скорости 1 и с попутными остановками по вызовам при движении кабины вниз

Кнопочная внутренняя  с вызовом порожней кабины на любой этаж и с попутными остановками по вызовам при движении кабины вниз

или кнопочная внутренняя собирательная по приказам и вызовам при  движении вверх и вниз

 

Основные размеры кабин, лифтовых шахт, машинных помещений, размеры дверей в них, глубины приямков указаны для каждого типа обычных лифтов в габаритных схемах на листах 32 - 34.

Примечания: 1. Для каждого типа лифта указаны грузоподъемность, ширина и глубина кабины (по наружному измерению), вместимость кабины (число пассажиров, на которое рассчитан лифт) и скорость движения кабины. Размеры шахты - внутренние.

2. Размер двери машинного помещения 90´80 см; проемы в зависимости от конструкций стен следует принимать по МРТУ 20-6-65. В схемах указано рекомендуемое расположение дверей машинных помещений; другое расположение возможно лишь при условии согласования с головной организацией по проектированию лифтов.

3. При двух значениях размеров первое относится к лифту со скоростью 0,7 м/сек, второе - к лифту со скоростью 1 м/сек.

4. Для глухих железобетонных шахт лифтов могут быть применены сборные элементы (тюбинги высотой на этаж).

Примечание. См. текст на листе 32.

 

Основные параметры лифтов

Характеристика основных параметров лифтов номинальной грузоподъемности в кгс

Примечание

1000

1600

Скорость, м/сек

2

2,8

4

2

2,8

4

В величину номинальной грузоподъемности лифта вес кабины не входит.

При установке двух и более лифтов, обслуживающих одни и те же этажи, рекомендуется предусматривать групповое управление лифтами.

Ширина групповой шахты равна произведению ширины шахты для одного лифта на число лифтов в группе с прибавлением суммарной ширины балок, укладываемых между лифтами, но не более 10 см для каждой балки. Доступ в блочное помещение осуществляется через люк, устраиваемый в полу машинного помещения.

Лифт со скоростью 2,8 м/сек введен дополнительно (см. Информационный указатель государственных стандартов СССР - ИУС, 1970, № 6). Все параметры его одинаковы с лифтами при скоростях 2 и 4 м/сек. Только высота от пола верхней остановки до потолка шахты должна быть не менее 520 см, а глубина приямка - не менее 400 см.

Наибольшая высота подъема, м

150

150

Количество остановок кабины, не более

40

40

Вместимость кабины (человек)

12

20

Тип кабины

Непроходная с раздвижными автоматическими дверями

Тип шахты

Глухая с раздвижными автоматическими дверями

Расположение противовеса

Сзади кабины

Расположение машинного и блочного помещений

Вверху над шахтой

Система управления лифтами

Кнопочная внутренняя собирательная по приказам и вызовам при движении кабины вверх и вниз или (для лифта грузоподъемностью 1000 кгс) кнопочная собирательная с вызовом порожней кабины на любой этаж и с попутными остановками по вызовам при движении кабины вниз

 

Основные размеры кабин, лифтовых шахт, машинных и блочных помещений, размеры дверей в них; глубины приямков указаны на габаритных схемах для каждого типа скоростных лифтов.

Примечания: 1. Для каждого типа лифта указаны грузоподъемность, ширина и глубина кабины (по наружному измерению), вместимость кабины (число пассажиров, на которое рассчитан лифт) и скорость движения кабины. Размеры шахты внутренние.

2. Размер двери машинного помещения 100´80 см; проемы в зависимости от конструкций стен следует принимать по МРТУ 20-6-65. В схемах указано рекомендуемое расположение дверей машинных помещений; другое расположение возможно лишь при условии согласования с головной организацией по проектированию лифтов.

3. При двух значениях размеров первое относится к лифту со скоростью 2 м/сек, второе - к лифту со скоростью 4 м/сек.

4. Для глухих железобетонных шахт лифтов могут быть применены сборные элементы (тюбинги высотой на этаж).

СОДЕРЖАНИЕ

Введение. 2

Раздел 1. Исходные данные. Мебель. 8

Площади помещений. Исходные данные (лист 1) 8

Наборы мебели (лист 2) 10

Габариты мебели (листы 3 - 4)) 11

Встроенные шкафы. Типы и габариты (лист 5) 13

Оборудование санитарные узлы (лист 6) 15

Исходные габариты (лист 7) 16

Раздел 2. Спальные комнаты.. 16

Спальная комната. Группировка мебели (лист 8) 17

Спальная комната на 2 места. Примеры расстановки мебели (при норме жилой площади 4,5 - 5 м2 на 1 место) (лист 9) 18

Спальные комнаты на 3 и 4 места. Примеры расстановки мебели (при норме жилой площади 4,5 - 5 м2 на 1 место) (лист 10) 18

Спальные комнаты на 1 и 2 места. Примеры расстановки мебели при норме жилой площади 6 м2 на 1 место (лист 11) 19

Санитарный узел при спальной комнате. Типы и размещение (лист 12) 20

Спальная комната. Заполнение световых проемов (лист 13) 21

Лоджии и балконы. Примеры расстановки мебели. Ориентация спальных комнат (лист 14) 23

Раздел 3. Помещения общего пользования. 25

Гостиная. Группировка мебели и примеры планировки (лист 15) 25

Рекомендации по отделке помещения (лист 16) 27

Общие санитарные узлы. Расположение оборудования (лист 17) 28

Обслуживающие помещения. Примеры планировки (лист 18) 29

Раздел 4. Секции спальных корпусов. Примеры.. 31

Секции спальных корпусов. Спальные комнаты с санитарными узлами (при норме жилой площади 4,5 - 5 м2 на 1 место) (лист 19) 31

Секции спальных корпусов. Спальные комнаты с санитарными узлами (при норме жилой площади 4,5 - 5 м2 на 1 место) (лист 20) 32

Секции спальных корпусов. Спальные комнаты с санитарными узлами (при норме жилой площади 6,0 м2 на 1 место) (лист 21) 34

Секции спальных корпусов. Спальные комнаты с санитарными узлами (при норме жилой площади 4,5 - 5 м2 на 1 место). (лист 22) 35

Секции спальных корпусов. Спальные комнаты с санитарными узлами (при норме жилой площади 4,5 - 5 м2 на 1 место) (лист 23) 37

Секции спальных корпусов. Спальные комнаты с санитарными узлами (при норме жилой площади 6 м2 на 1 место) (лист 24) 38

Секции спальных корпусов. Спальные комнаты с санитарными узлами (при норме жилой площади 4,5 - 5 и 6 м2 на 1 место) (лист 25) 39

Секции спальных корпусов. Спальные комнаты с умывальниками (при норме жилой площади 4,5 - 5 на 1 место) (листы 26 - 27)) 41

Схемы планировки и взаимосвязи вестибюля, лестницы, лифтов и гостиной (лист 28) 45

Приложения. Лестницы и лифты.. 46

Основные параметры лестниц (лист 29) 46

Защита лестниц от задымления (лист 30) 47

Типы и параметры обычных пассажирских лифтов (листы 31 - 34) 50

Типы и параметры скоростных пассажирских лифтов (листы 35 - 36) 53

 



© 2013 Ёшкин Кот :-)