Информационная система
«Ёшкин Кот»

XXXecatmenu

ЗАО «ТОЧИНВЕСТ»

Ограждения дорожные удерживающие
для автомобилей, первого типа, группы 11ДО и 11ДД

Технические условия

2006 г.

СОДЕРЖАНИЕ

Настоящие технические условия распространяются на ограждения дорожные удерживающие для автомобилей, первого типа, группы 11ДО и 11ДД (далее - ограждения дорожные) в одностороннем и двустороннем исполнении для автомобильных дорог общего пользования, производимых ЗАО «Точинвест».

Авторские права на настоящие технические условия принадлежат ЗАО «Точинвест». Использование настоящих технических условий третьими лицами без письменного согласия ЗАО «Точинвест» не допускается.

Ограждения дорожные по настоящим техническим условиям применяются на автомобильных дорогах I - V категорий с разделительной полосой, по группам дорожных условий А, Б, Е, Ж и соответствуют значениям удерживающей способности - У1, У2, У3 и У4 согласно ГОСТ Р 52289-2004.

Условные обозначения марки участков ограждений составляются по схеме:

Класс обозначается цифрой 1 - ограждение боковое,

Тип обозначается цифрой 1 - балка ограждения крепится к стойке,

Группа - буквой Д - ограждение дорожное устанавливается на обочине или разделительной полосе дороги,

Исполнение - буквой О - односторонние ограждения,

Д - двусторонние ограждения,

Модификация - буквой Н - начальный участок,

К - конечный участок.

Примеры записи условных обозначений участков ограждений:

Участок рабочий группы Д, односторонний, с шагом стоек 1,5 м, с удерживающей способностью 300 кДж, с прогибом динамическим 1,5 м

11ДО-1,5-300/1,5

ТУ 5216-007-44884945-2006

Участок начальный группы Д, односторонний, с шагом стоек 2,0 м

11ДО-Н-2,0

ТУ 5216-007-44884945-2006

1 Технические требования

1.1 Основные параметры и размеры

1.1.1 Ограждения дорожные удерживающие для автомобилей, первого типа, в одностороннем и двустороннем исполнении должны соответствовать требованиям настоящих технических условий, ГОСТ 26804-86, ГОСТ Р 52289-2004 и конструкторской документации ТР - 99.00.00.000, ТР - 100.00.00.000, ТР - 101.00.00.000, утвержденной в установленном порядке.

1.1.2 По назначению ограждения подразделяются на группы:

11ДО - дорожные односторонние (рисунки В.1, В.3, Приложение В);

11ДД - дорожные двусторонние (рисунок В.4, Приложение В).

1.1.3 Ограждения групп 11ДО и 11ДД состоят из участков:

- 11ДО-S; 11ДД-S - рабочие участки с шагом стоек S (рисунки В1, В3, В4, Приложение В);

- 11ДО-Н; 11ДО-К - начальные и конечные участки (рисунок В1, Приложение В);

- 11ДД-Н; 11ДД-К - начальные и конечные участки (рисунок В4, Приложение В).

1.1.4 Основные параметры ограждений должны соответствовать приведенным в таблице 1.

Таблица 1

Марка участка ограждения

Удерживающая способность, кДж

Прогиб динамический Умакс, м

Рабочая ширина участка, м

Масса, кг/м

Примечание

11ДО-4,0-130/1,5

ТУ 5216-007-44884945-2006

130

1,5

1,7

23,10

Балка

t = 4 мм

11ДО-3,0-190/1,5

ТУ 5216-007-44884945-2006

190

1,5

1,7

25,49

Балка

t = 4 мм

11ДО-2,0-250/1,5

ТУ 5216-007-44884945-2006

250

1,5

1,7

26,44

Балка

t = 3 мм

11ДО-1,5-300/1,5

ТУ 5216-007-44884945-2006

300

1,5

1,7

33,03

Балка

t = 3 мм,

связь СП

11ДД-3,0-300/1,5

ТУ 5216-007-44884945-2006

не менее 300

1,5

1,7

42,38

Балка

t = 4 мм

11ДД-2,0-300/1,5

ТУ 5216-007-44884945-2006

300

1,5

1,7

39,81

Балка

t = 3 мм

11ДД-1,5-300/1,0

ТУ 5216-007-44884945-2006

не менее 300

1,0

1,2

44,14

Балка

t = 3 мм

Примечание - Связь продольная СП (полоса 60×5 мм) применяется только при шаге стоек 1,5 м.

1.1.5 Конструктивные элементы и основные размеры ограждений:

- СБ - секция балки (балка) (рисунок В.7, Приложение В);

- СДЕ - стойка дорожная (рисунок В.6, Приложение В);

- КЖЕ - консоль жесткая (рисунок В.8, Приложение В);

- КРЕ - консоль-распорка (рисунок В.9, Приложение В);

- СП - связь продольная (рисунок В.10, Приложение В);

- СДО-М - световозвращатель дорожный (рисунок В.11, Приложение В);

- ПЛ - пластина (рисунок В.12, Приложение В).

1.1.6 Высота ограждения всех групп рабочих участков - 0,75 м.

1.1.7 Основные параметры и размеры ограждений должны соответствовать указанным на рисунках В.1 - В.12 (Приложение В) и в таблицах 2, 3, 4.

Таблица 2

Марка участка ограждения

Размеры, м

Масса (справочная), кг/м

Ширина b

Шаг стоек S

11ДО-4,0-130/1,5

0,39

4,0

23,10

11ДО-3,0-190/1,5

0,39

3,0

25,49

11ДО-2,0-250/1,5

0,39

2,0

26,44

11ДО-1,5-300/1,5

0,39

1,5

33,03

11ДД-3,0-250/1,5

0,87

3,0

42,38

11ДД-2,0-300/1,5

0,87

2,0

31,81

11ДД-1,5-350/1,5

0,87

1,5

44,14

11ДО-Н

0,39

2,0

26,40

11ДО-К

0,39

2,0

26,40

11ДО-Н

0,39

4,0

32,47

11ДО-К

0,39

4,0

32,47

11дд-н

0,87

3,0

34,39

11дд-к

0,87

3,0

34,39

11дд-н

0,87

1,5

45,08

11дд-к

0,87

1,5

45,08

Таблица 3

Марка секции балки

Размеры, мм

L

h

СБ-1а

4320

83

СБ-2а

6320

83

СБ-7а

4820

83

СБ-8а

8320

83

СБ-9а

9320

83

(Измененная редакция).

Таблица 4

Группа ограждения

Марка консоли

Длина консоли, мм

11ДО

КЖЕ

415

11ДД

КРЕ

860

1.1.8 Выбор марки ограждения следует производить в зависимости от категории дороги, группы дорожных условий и требуемого уровня удерживающей способности согласно правил изложенных в ГОСТ Р 52289-2004.

1.1.9 Ограждение следует изготовлять в соответствии с требованиями настоящих технических условий по рабочим чертежам, утвержденным в установленном порядке.

1.1.10 Секции балок следует изготовлять из стального гнутого профиля с размерами 312×83×4 мм. Марка стали ВСт3пс, ВСт3кп по ГОСТ 380-94. Допускается изготовлять из стального гнутого профиля 312×83×3. Марка стали ВСт3пс, ВСт3кп по ГОСТ 380-94.

(Измененная редакция).

1.1.11 Размеры отверстий по концам секций балок, предназначенные для соединения секций между собой, должны обеспечивать допустимое смещение секций не более 10 мм.

1.1.12 Стойки СДЕ-1, СДЕ-3 следует изготовлять из С-образного гнутого профиля 168×120×51×4 мм. Марки стали ВСт3пс, ВСт3кп, ВСт3 по ГОСТ 380-94.

(Измененная редакция).

1.1.13 Консоль жесткую КЖЕ следует изготовлять из стали толщиной 4 мм, марка стали ВСт3 по ГОСТ 380-94.

1.1.14 Консоль - распорку КРЕ следует изготовлять из стали толщиной 4 мм, марка стали ВСт3 по ГОСТ 380-94.

1.1.15 Связь продольную СП следует изготовлять из полосовой стали толщиной 5 мм, марка стали ВСт3 по ГОСТ 380-94.

1.1.16 Световозвращатель дорожный следует изготовлять в соответствии с требованиями ГОСТ Р 50971-96 или технических условий ТУ 5217-006-44884945-05.

1.1.17 Для соединения секций балок между собой, с консолями следует применять болты M16×45 с полукруглой головкой и квадратным подголовником по ГОСТ 7802-81.

(Измененная редакция).

1.1.18 Для соединения консоли жесткой КЖЕ, консоли - распорки КРЕ, связи продольной СП со стойками следует применять болты M16×30, класс прочности 58, по ГОСТ 7798-70.

1.1.19 Защитное покрытие всех основных элементов ограждений должно соответствовать ГОСТ 9.307-89. В качестве антикоррозийного покрытия следует применять горячее цинкование толщиной 80 - 120 мкм, покрытие грунтом типа ГФ-021 ГОСТ 25129-82 или другое аналогичное покрытие.

1.1.20 Предельные отклонения размеров деталей ограждений по ГОСТ 25347-82; отклонения секций балок от прямолинейности не должно превышать 3 мм на длине 1000 мм.

1.2 Комплектность

1.2.1 Комплекты ограждений, подготовленные к отправке потребителю, должны содержать:

- комплекты участков ограждения, составленные в соответствии с таблицами 5, 6, 7, 8;

- крепежные элементы в количестве, необходимом для установки ограждения;

- паспорт ограждения со свидетельством ОТК предприятия - изготовителя о приемке комплектов участков ограждения;

- инструкцию по установке ограждения;

- копию Сертификата соответствия показателей ограждения требованиям настоящих технических условий.

1.2.2 Комплекты начального и конечного участков 11ДО-Н и 11ДО-К приведены в таблице 5.

Таблица 5

Наименование и марка элемента

Количество элементов в комплекте участка, шт

11ДО-Н

11ДО-К

Секция балки СБ-2а

2

2

Стойка СДЕ-3

6

6

Пластина ПЛ

6

6

Консоль жесткая КЖЕ-1

6

6

Световозвращатель дорожный СДО-М

3

3

1.2.3 Комплекты начального и конечного участков 11ДО-Н и 11ДО-К для рабочих участков с шагом S = 1,5 м приведены в таблице 6.

Таблица 6

Наименование и марка элемента

Количество элементов в комплекте участка, шт

11ДО-Н

11ДО-К

Секция балки СБ-2а

2

2

Стойка СДЕ-3

8

8

Пластина ПЛ

8

8

Консоль жесткая КЖЕ-1

8

8

Связь продольная СП-2

2

2

Световозвращатель дорожный СДО-М

4

4

1.2.4 Комплекты рабочих участков 11ДО приведены в таблице 7.

Таблица 7

Наименование и марка элемента

Количество элементов в комплекте участка ограждения L, выраженное в долях длины участка, м

11ДО-4,0-130/1,5

11ДО-3,0-190/1,5

11ДО-2,0-250/1,5

11ДО-1,5-300/1,5

Секция балки:

 

 

 

 

СБ-1

L/4

L/4

-

-

СБ-1а

-

-

L/4

-

(СБ-2а)

-

-

(L/6)

L/6

(СБ-3)

(L/8)

(L/8)

-

-

(СБ-4)

(L/9)

(L/9)

-

 

СБ-7а

-

-

-

L/4,5

(СБ-8а)

-

-

-

(L/6)

(СБ-9а)

-

-

-

(L/9)

Стойка СДЕ-3

L/4 + 1

L/3 + 1

L/2 + 1

L/1,5 + 1

Пластина ПЛ

L/4 + 1

L/3 + 1

L/2 + 1

L/1,5 + 1

Связь продольная СП-2

-

-

-

L/6

Консоль КЖЕ (КЖЕ-1)

L/4 + 1

L/3 + 1

L/2 + 1

L/1,5 + 1

Световозвращатель дорожный СДО-М

L/4

L/3

L/4

L/3

1.2.5 Комплекты рабочих и начальных участков 11ДД, 11ДД-Н приведены в таблице 8.

Таблица 8

Наименование и марка элемента

Количество элементов в комплекте участка ограждения, шт

11ДД3,0-250/1,5

(11ДД-К) 11ДД-Н-3,0-250/1,5

11ДД-2,0-300/1,5

(11ДД-К) 11ДД-Н-2,0-300/1,5

11ДД-1,5-350/1,0

(11ДД-К) 11ДД-Н-1,5-350/1,0

Секция балки:

 

 

 

 

 

 

СБ-2

L/3

4

-

 

 

 

СБ-2а

-

 

L/3

4

-

-

(СБ-4)

(L/4,5)

-

-

-

-

-

(СБ-7а)

(L/2,25)

-

-

-

(L/2,25)

-

(СБ-8а)

(L/3)

(4)

-

-

(L/3)

4

(СБ-9а)

(L/4,5)

-

-

-

(L/4,5)

-

Стойка СДЕ-3

L/3 + 1

5

L/2 + 1

5

L/1,5 + 1

9

Консоль распорка КРЕ-1

L/3 + 1

5

L/2 + 1

5

L/1,5 + 1

9

Световозвращатель дорожный СДО-М

L/2

6

L/2

6

L/1,5

6

1.3 Маркировка

1.3.1 Маркировка, наносимая на металлический, пластмассовый или деревянный ярлык, прикрепляемый к связке (упаковке), должна содержать:

- наименование или товарный знак предприятия - изготовителя;

- марку ограждения;

- число элементов в связке (упаковке);

- массу связки (упаковки);

- номер связки (упаковки);

- клеймо (штамп) отдела технического контроля предприятия - изготовителя.

1.3.2 Маркировку следует выполнять несмываемой краской.

1.4 Упаковка

1.4.1 Все элементы ограждений, согласно заявке потребителя, кроме световозвращателей дорожных, следует отправлять потребителю в связках без упаковки. Световозвращатели дорожные, крепежные изделия, паспорт ограждения со свидетельством о приемке и копию Сертификата соответствия ограждения данной марки требованиям настоящих технических условий следует отправлять в упаковке, изготовленной по документации предприятия - изготовителя.

2 Правила приемки

2.1 Качество материалов и изделий, изготовленных другими предприятиями, определяется при входном контроле по сопроводительной документации (паспортам, сертификатам качества и сертификатам соответствия).

2.2 Комплекты ограждений должны приниматься отделом технического контроля предприятия - изготовителя партиями. Партией следует считать комплекты ограждений одной марки, изготовленные по одной технологии.

2.3 Для контроля размеров и внешнего вида элементов дорожных ограждений и качества их антикоррозийного покрытия из каждой партии отбирают не менее 5 комплектов.

2.4 При получении неудовлетворительных результатов контроля хотя бы по одному из показателей, устанавливаемых настоящими техническими условиями, по этому показателю проводят повторный контроль на удвоенном количестве комплектов, отобранных из той же партии.

Если при повторной проверке окажется хотя бы один комплект, не удовлетворяющий требованиям настоящих технических условий, то всю партию подвергают поштучной приемке.

2.5 Потребитель имеет право проводить контрольную проверку соответствия комплектов ограждений требованиям настоящих технических условий, соблюдая при этом приведенный порядок отбора комплектов и применяя указанные методы контроля.

2.6 Элементы ограждений, не соответствующие требованиям настоящих технических условий, подлежат выбраковке.

2.7 Правильность комплектации каждого участка ограждения подтверждается свидетельством о приемке ОТК предприятия - изготовителя.

3 Методы контроля

3.1 Внешний вид и качество поверхности элементов ограждений определяют визуально путем сравнения с образцами-эталонами, утвержденными в установленном порядке.

3.2 Качество конструктивных и сварочных материалов должно быть удостоверено сертификатами соответствия предприятий - поставщиков или данными лаборатории предприятия - изготовителя ограждений.

3.3 Линейные размеры элементов ограждений проверяют рулеткой 2-го класса точности по ГОСТ 7502 -98, линейкой измерительной металлической (2 класс точности, 300 - 500 мм) по ГОСТ 427-75, штангенциркулем (0 - 320 мм, нониус с ценой деления 0,1 мм) по ГОСТ 166-89 или другими измерительными средствами, обеспечивающими требуемую точность измерений.

3.4 Отклонение секций балок СБ-1 - СБ-9 от прямолинейности проверяют измерением металлической линейкой по ГОСТ 427-75 зазора между поверхностью контролируемой балки и струной, закрепленной на ее концах.

3.5 Соответствие геометрической формы балок следует проверять специальным поверочным шаблоном, изготовленным предприятием-изготовителем.

4 Транспортирование и хранение

4.1 Секции балки должны храниться по маркам в связках с опиранием на деревянные прокладки и подкладки. Подкладки под нижний ряд связок должны быть толщиной на менее 50 мм, шириной не менее 200 мм и уложены по ровному основанию через 1000 мм. Прокладки между связками должны быть толщиной не менее 20 мм и шириной не менее 200 мм.

4.2 При транспортировании связок секций необходимо обеспечивать их укладку с опиранием на деревянные прокладки согласно п. 4.1.

4.3 Условия транспортирования элементов ограждений при воздействии климатических факторов - Ж1, условий хранения - Ж2 по ГОСТ 15150-69.

5 Указания по монтажу

5.1 Монтаж ограждений следует выполнять в соответствии с требованиями ГОСТ Р 52289-2004, СНиП 3.06.03-85 и приложения Б к настоящим техническим условиям.

5.2 Барьерные ограждения монтируются таким образом, чтобы в местах соединений секций балок, предыдущая по ходу движения балка накладывалась на последующую, а отклонения оси балки от ее проектного положения в плане не превышали 1:1000 от длины стыкуемых балок.

5.3 Световозвращатели следует размещать в углублении в средней части поперечного профиля балки по всей длине ограждения с интервалом 4 м (в т.ч. на участках отгона и понижения).

6 Гарантии изготовителя

6.1 Изготовитель гарантирует соответствие ограждений требованиям настоящих технических условий при соблюдении условий транспортирования, хранения, указаний по монтажу, при условии выполнения требований «Инструкции по установке ограждений» (приложение Б) и отсутствия каких-либо механических повреждений, а также при условии хранения ограждений заказчиком до их установки не более 3-х месяцев с момента выпуска с предприятия - изготовителя.

6.2 Гарантийный срок эксплуатации ограждений дорожных устанавливается не менее 20 лет с момента отгрузки в адрес потребителя.

Приложение А

(справочное)

Определения терминов

Ограждение боковое (барьерное) - ограждение, расположенное вдоль проезжей части дороги и относящееся к техническим средствам организации дорожного движения в соответствии с ГОСТ Р 52289-2004. «Технические средства организации дорожного движения. Правила применения дорожных знаков, разметки, светофоров, дорожных ограждений и направляющих устройств».

Исполнение одностороннее (двустороннее) - исполнение ограждения, обеспечивающее ему способность воспринятая наездов автомобилей с одной стороны (обеих сторон).

Тип первый - ограждение с балкой, опирающейся на стойки.

Секция балки (балка) - элемент ограждения; главная функция балки - восприятие, распределение и передача ударной нагрузки на другие элементы ограждения.

Стойка - элемент ограждения; главная функция - передача нагрузки от ограждения полотну дороги.

Консоль - элемент ограждения; главная функция - предотвращение непосредственного контакта автомобиля со стойками ограждения.

Габарит высоты - расстояние по вертикали между поверхностью покрытия дороги и верхней кромкой ограждения.

Габарит динамический - расстояние по горизонтали между вертикальными плоскостями, касательными к лицевой стороне недеформированного ограждения и задней стороне ограждения при динамическом прогибе.

Рабочая ширина ограждения - расстояние от лицевой поверхности ограждения до задней стороны ограждения.

Прогиб ограждения динамический - поперечный прогиб рабочего участка ограждения в момент завершения коррекции.

Удерживающая способность ограждения - энергия бокового удара, выдерживаемого рабочим участком ограждения при заданной величине динамического прогиба.

Участки ограждений:

- начальный (конечный) - вспомогательная часть бокового ограждения; главная функция - удержание начала (конца) балки рабочего участка;

- рабочий - основная часть бокового ограждения; главная функция - удержание автомобиля;

- сопрягающий - участок, последовательно соединяющий ограждения с неодинаковой величиной динамического поперечного прогиба;

- переходный - участок перехода двустороннего ограждения к двум односторонним;

- вспомогательный - участок рабочий, предназначенный для установки на технических съездах и проездах с ограничением скорости, стояночных площадках и т.д.

Шаг стоек - расстояние между точками пересечения продольных осей соседних стоек с поверхностью дороги.

Приложение Б

(обязательное)

Инструкция по установке ограждений

При установке дорожных ограждений следует руководствоваться ГОСТ Р 52289-2004 и СНиП 3.06.03-85.

Б.1 Определение положения стоек

Б.1.1 Положение стоек ограждения группы ДО в поперечном сечении дороги следует определять, исходя из следующих требований:

- расстояние от кромки ближайшей к ограждению проезжей части дороги до лицевой поверхности ограждения должно быть не менее 1,00 м;

- расстояние от бровки земляного полотна до стойки ограждения должно быть не менее 0,5 м.

Б.1.2 Интенсивность отгона рабочего участка ограждения группы ДО относительно кромки проезжей части дороги может быть не более 1:50 начального и конечного участков не более 1:20.

Б.2 Установка стоек

Б.2.1 Стойки СДЕ следует устанавливать в цилиндрические шурфы диаметром не более 0,25 м, предварительно выбуренные в полностью уплотнённом полотне дороги.

Примечание - При наличии специальных механизмов стойки следует заглублять в ненарушенное земляное полотно.

Б.2.2 Глубина шурфа при установке стоек СДЕ должна быть на 100 - 150 мм меньше длины заглубляемой части стойки. Установку стойки в вертикальное положение и её верхнего торца на нужной высоте следует выполнять одновременно с обратной засыпкой свободного пространства вокруг стойки щебеночно-песчанной смесью с послойным уплотнением через 0,2 - 0,25 м ручными трамбовками до коэффициента уплотнения - 0,95. При необходимости сверху на глубину 60 мм заливается битумно-полимерная мастика, до уровня верха дорожного покрытия.

Б.2.3 Допускаемая величина возвышения дорожных стоек ± 10 мм.

Б.2.4 Допускаемая величина отклонения шага всех стоек ± 20 мм.

Б.2.5 Допускаемая величина отклонения стоек относительно продольной оси ограждения стоек ± 10 мм.

Б.3 Установка консолей, связей и световозвращателей

Б.3.1 Установку консолей жестких на стойки СДЕ следует выполнять со стороны направления движения с последующим креплением их к стойкам при помощи болтов M16×30 по ГОСТ 7798-70 с гайками (по три болта на каждую консоль) в соответствии с чертежами, крепление консоли к секции балки производится при помощи болтов M16×45,58 ГОСТ 7802-81, шайб и гаек M16.

Б.3.2 Связи продольные типа СП крепятся в задней части стоек СДЕ болтами М16×30 по ГОСТ 7798-70 и гайками с шайбами.

Б.3.3 Связи диагональные типа СДД крепятся к балкам при помощи болтов М16×45,58 ГОСТ 7802-81, шайб и гаек М16, к стойкам СДЕ болтами М16×30 по ГОСТ 7798-70 и гайками.

Б.3.4 Световозвращатели дорожные крепятся к секциям балок при помощи болтов М16×45,58 ГОСТ 7802-81, шайб и гаек М16.

Б.4 Моменты затяжки болтовых соединений

Б.4.1 Моменты затяжки болтовых соединений должны составлять следующие величины:

- M16 - 60 Н.м - крепление световозвращателей;

- M16 - 90 - 100 Н.м - крепление основных элементов (КЖЕ, КРЕ и т.п.);

- M16 - 100 - 120 Н.м - крепление секций балок.

Б.5 Контроль качества сборки ограждения

Б.5.1 Контроль качества сборки ограждений следует проверять при помощи мерительных средств согласно таблицы 1.

Таблица Б.1

 

Контролируемый параметр

Допуск

Инструмент для контроля

1

Шаг стоек

20 мм

Рулетка 310УЗК ГОСТ 7502-98

2

Высота стоек относительно дорожного покрытия

10 мм

Линейка 1-50 ГОСТ 427-75, шнур строительный

3

Отклонения стоек относительно продольной оси ограждения

10 мм

Линейка 1-50 ГОСТ 427-75, шнур строительный, отвес строительный ГОСТ 7948-80

4

Высотное отклонение секций балок от верха дорожного покрытия на длине 6000 мм

15 мм

Линейка 1-50 ГОСТ 427-75, шнур строительный

5

Волнистость линии ограждения в плане на длине 10000 мм

30 мм

Линейка 1-50 ГОСТ 427-75, шнур строительный

6

Отклонение величины момента затяжки болтовых соединений

10 Н.м

Ключ динамометрический

Приложение В

(обязательное)

1 - балка; 2 - стойка СДЕ-1; 3 - консоль жёсткая КЖЕ; 5 - световозвращатель дорожный СДО-М;

Рисунок В.1 - Дорожные ограждения 11ДО. Общий вид

1 - балка СБа; 2 - стойка СДЕ-3; 3 - консоль жёсткая КЖЕ-1; 4 - световозвращатель дорожный; 5 - болт М16×45,58 ГОСТ 7802-81; 6 - болт M16×30,58 ГОСТ 7798-70; 7 - гайка М16 ГОСТ 5915-70; 8 - шайба 16 ГОСТ 11371-78; 9 - шайба 22 ГОСТ 11371-78, 10 - пластина ПЛ.

Рисунок В.2 - Ограждение группы 11ДО. Соединение балки, консоли жёсткой КЖЕ со стойкой.

(Измененная редакция).

1 - балка СБ-7а; 2 - балка СБ-2а; 3 - стойка СДЕ-3; 4 - консоль жёсткая КЖЕ-1; 5 - световозвращатель дорожный СДО-М; 6 - болт М16×45,58 ГОСТ 7802-81; 7 - болт М16×30,58 ГОСТ 7798-70; 8 - связь продольная СП; 9 - гайка М16 ГОСТ 5915-70; 10 - шайба 16 ГОСТ 11731-78; 11 - шайба 22 ГОСТ 11371-78; 12 - пластина ПЛ

Рисунок В.3 - Ограждения дорожные 11ДО-1,5-300/1,5

(Измененная редакция).

1 - балка; 2 - стойка СДЕ-1; 3 - консоль-распорка КРЕ; 4 - световозвращатель дорожный СДО-М.

Рисунок В.4 - Ограждения дорожные 11ДД. Общий вид

1 - балка СБ-2а; 2 - стойка СДЕ-3; 3 - консоль - распорка КРЕ-1; 4 - световозвращатель дорожный СДО-М; 5 - болт M16×45,58 ГОСТ 7802-81; 6 - болт M16×30,58 ГОСТ 7798-70; 7 - гайка M16 ГОСТ 5915-70; 8 - шайба 16 ГОСТ 11371-78; 9 - шайба 22 ГОСТ 11371-78; 10 - пластина ПЛ.

Рисунок В.5 - Ограждение группы 11ДД. Соединение консоли - распорки КРЕ со стойкой и двумя балками.

(Измененная редакция).

Рисунок В.6.1 - Стойка дорожная СДЕ-1

Рисунок В.6.2 - Стойка дорожная СДЕ-3

Рисунок В.6 - Стойка дорожная СДЕ

(Новая редакция).

Рисунок В.7 - Секция балки СБ

(Измененная редакция).

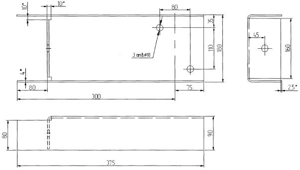
Рисунок В.8 - Консоль жёсткая КЖЕ-1

(Измененная редакция).

Рисунок В.9 - Консоль - распорка КРЕ-1

(Измененная редакция).

Рисунок В.10.1

Рисунок В.10.2

Обозначение

Рисунок

L, мм

S, мм

n

l, мм

СП-1

В.10.1

4640

5

2

4500

СП-2

6140

5

3

6000

СП-3

9140

5

5

9000

СП-4

В.10.2

4140

5

1

4000

СП-5

6140

5

2

6000

Рисунок В.10 - Связь продольная СП

1 - кронштейн; 2 - плёнка световозвращателя (белая); 3 - плёнка световозвращателя (красная).

Рисунок В.11 - Световозвращатель дорожный СДО-М

Рисунок В.12 (Исключен).

Приложение Г

(обязательное)

Нормативные ссылки

1. ГОСТ 9.307-89

ЕСЗКС. Покрытия цинковые горячие. Общие требования и методы контроля.

2. ГОСТ 166-89

Штангенциркули. Технические условия.

3. ГОСТ 380-94

Сталь углеродистая обыкновенного качества. Марки.

4. ГОСТ 427-75

Линейки измерительные металлические. Технические условия.

5. ГОСТ 5915-70

Гайки шестигранные класса точности В. Конструкция и размеры.

6. ГОСТ 7502-98

Рулетки измерительные металлические. Технические условия.

7. ГОСТ 7798-70

Болты с шестигранной головкой класса точности В. Конструкция и размеры.

8. ГОСТ 7802-81

Болты с увеличенной полукруглой головкой и квадратным подголовком класса точности С. Конструкция и размеры.

9. ГОСТ 7948-80

Отвесы стальные строительные. Технические условия.

10. ГОСТ 11371-78

Шайбы. Технические условия.

11. ГОСТ 15150-69

Машины, приборы и другие технические изделия. Исполнения для различных климатических районов. Категории, условия эксплуатации, хранения и транспортирования в части воздействия климатических факторов внешней среды.

12. ГОСТ 25129-82

Грунтовка ГФ-021. Технические условия.

13. ГОСТ 25347-82

Основные нормы взаимозаменяемости. ЕСДП. Поля допусков и рекомендуемые посадки.

14. ГОСТ 26804-86

Ограждения дорожные металлические барьерного типа. Технические условия.

15. ГОСТ Р 50971-96

Технические средства организации дорожного движения. Световозвращатели дорожные. Общие технические требования. Правила применения.

16. ГОСТ Р 52289-2004

Технические средства организации дорожного движения. Правила применения дорожных знаков, разметки, светофоров, дорожных ограждений и направляющих устройств.

17. СНиП 3.06.03-85

Автомобильные дороги.

18. ТУ 5217-006-44884945-05

Световозвращатели дорожные СДО-М.

 



© 2013 Ёшкин Кот :-)