Информационная система
«Ёшкин Кот»

XXXecatmenu

УТВЕРЖДАЮ

Начальник Главхимнефтемаша Роскоммаша

_________________________ В.Н. Бондарев

" __ " ________________ 1993 г.

Дата введения 1993-07-01

 

 

 

ЛИСТ УТВЕРЖДЕНИЯ

ОПОРЫ ГОРИЗОНТАЛЬНЫХ СОСУДОВ
И АППАРАТОВ

Конструкция

ОСТ 26-2091-93

 

 

Начальник ЦКБН

И.К.Глушко

Главный инженер ЦКБН

Ю. А. Кащицкий

Зав. отделом стандартизации

А. Ю. Пролесковский

Исполнитель

Т. Д. Демченкова

 

 

 

ОТРАСЛЕВОЙ СТАНДАРТ

ОПОРЫ ГОРИЗОНТАЛЬНЫХ
СОСУДОВ И АППАРАТОВ.
Конструкция

ОСТ 26-2091-93

Дата введения 1993-07-01

 

Несоблюдение стандарта преследуется по закону.

Настоящий стандарт распространяется на опоры горизонтальных стальных сварных сосудов и аппаратов, применяющихся в химической, нефтехимической, нефтеперерабатывающей, нефтяной и газовой промышленности.

Стандарт не распространяется на опоры для стальных эмалированных и сдвоенных аппаратов.

1. КОНСТРУКЦИЯ И РАЗМЕРЫ

1.1. Опоры по конструкции и размерам предусматриваются трех типов:

тип 1 - опоры для сосудов и аппаратов диаметром от 159 до 630 мм (черт. 1; 2; табл. 1; 2), который имеет два исполнения по нагрузкам:

исполнение 1 - от 10 до 40 кН (от 1 до 4 тс),

исполнение 2 - от 16 до 80 кН (от 1,6 до 8 тс);

тип 2 - опоры для сосудов и аппаратов диаметром от 800 до 2000 мм (черт. 3; 4; табл. 3; 4; 5), который имеет три исполнения по нагрузкам:

исполнение 1 - от 80 до 250 кН (от 8 до 25 тс),

исполнение 2 - от 160 до 400 кН (от 16 до 40 тс),

исполнение 3 - от 300 до 450 кН (от 30 до 45 тс);

тип 3 - опоры для сосудов и аппаратов диаметром от 2200 до 4000 мм (черт. 5; 6; табл. 6; 7; 8), который имеет три исполнения по нагрузкам:

исполнение 1 - от 250 до 630 кН (от 25 до 63 тс),

исполнение 2 - от 500 до 1400 кН (от 50 до 140 тс),

исполнение 3 - от 900 до 1200 кН (от 90 до 120 тс).

1.2. Опоры типа 2 и 3 для аппаратов с массой до 16400 кг должны изготавливаться с резьбовыми втулками под регулировочные винты - см. черт. 3 - 6.

Размеры резьбовых втулок - см. табл. 9.

Расположение регулировочных винтов - см. черт. 7, табл. 10.

1.3. В опорах для аппаратов с массой более 16400 кг резьбовые втулки (поз. 5) и отверстия (d + 10) не изготавливаются.


Тип 1

Опора подвижная

DН, DВ от 159 до 530 мм

DН, DВ от 600 до 630 мм

 

 

DН 159, 273 мм.
Позиция 1 не показана

DН, DВ от 325 до 530 мм.
Позиция 1 не показана

DН, DВ 600, 630 мм.
Позиция 1 не показана

 

 

 

Б-Б (1:2)

 

 

 

 

1 - лист опорный; 2 - плита опорная; 3 - лист подкладной;
4 - ребро; 7 - болт М16 ОСТ 26-2037 - 2 шт.

* Размер для справок

Черт. 1

 

Тип 1

Опора неподвижная

DН, DВ от 159 до 530 мм

DН, DВ 600, 630 мм

 

 

DН 159, 273 мм.
Позиция 1 не показана

DН, DВ от 325 до 530 мм.
Позиция 1 не показана

DН, DВ 600, 630 мм.
Позиция 1 не показана

1 - лист опорный; 2 - плита опорная; 4 - ребро.

* Размер для справок

Черт. 2


Таблица 1

Параметры и размеры опор типа 1

Размеры, мм

Диаметр аппарата

Допускаемая нагрузка на опору,
кН (тс)

S1

S2

R

L

L1

В

B1

h

h1

A

A1

Масса*, кг

Масса листа подкладного,
кг

Исполнение

Исполнение

DН

DВ

Исп. 1

Исп. 2

1

2

1

2

1

2

159

-

-

16 (1,6)

-

6

-

10

84

180

200

80

120

200

65

75

-

140

-

3,6

1,8

273

-

-

20 (2,0)

-

-

141

290

310

175

90

120

-

250

-

6,6

2,9

325

-

10 (1,0)

4

8

167

400

420

240

180

260

115

165

330

130

10,0

13,0

5,0

-

400

25 (2.5)

50 (5.0)

6

10

12

14

214

450

470

235

120

155

17,0

21,0

5,7

222

240

426

-

217

236

-

500

60 (6,0)

4

10

16

264

500

520

280

190

230

380

160

18,8

32,0

6,3

272

285

282

290

530

-

271

285

-

600

40 (4,0)

80 (8,0)

6

14

314

600

620

306

300

450

200

25,2

36,5

8,8

322

312

332

315

25,0

630

-

325

312

* Масса опор дана без учета листа опорного и листа подкладного.


Пример условного обозначения опоры неподвижной с допускаемой нагрузкой 40 кН, с радиусом R = 314 мм, исполнением по материалу 1:

Опора 40-314-1 ОСТ 26-2091-93.

То же, опоры подвижной без подкладного листа:

Опора П 40-314-1 ОСТ 26-2091-93.

То же, опоры подвижной с подкладным листом:

Опора ПЛ 40-314-1 ОСТ 26-2091-93.

Лист опорный для опор типа 1

Таблица 2

Размеры, мм

Диаметр аппарата

R

S

H

Масса,
кг

DВ

DН

-

159

4

84

140

0,9

273

141

1,5

325

167

220

2,8

400

-

10

214

8,8

8

7,1

6

5,3

4

3,6

10

222

9,1

8

7,3

6

5,5

4

3,7

-

426

217

3,6

500

-

10

264

10,9

8

8,8

6

6,6

4

4,4

10

272

11,2

8

9,0

6

6,8

4

4,6

12

282

14,0

10

11,7

8

9,4

6

7,1

-

530

6

271

6,8

600

-

10

314

13,0

8

10,4

6

7,9

12

322

16,0

10

13,4

8

10,7

6

8,1

14

332

19,2

12

16,5

10

13,8

8

11,0

6

8,3

-

630

10

325

13,5

Пример условного обозначения листа опорного S = 10 мм, радиусом R = 222 мм из материала Ст3пс4:

Лист опорный 10-222-Ст3пс4 ОСТ 26-2091-93


Тип 2

Опора подвижная

 

Е (1:2)
Позиция 6 не показана

Б-Б (1:2)

 

 

 

Позиция 1 не показана

А-А (1:2)

1 - лист опорный; 2 - плита опорная; 3 - лист подкладной; 4 - ребро;
5 - втулка резьбовая - 2 шт.; 6 - шайба - 4шт.; 7 - болт М16 ОСТ 26-2037 - 4 шт.

* Размер для справок

** Для DВ = 800 мм принимать отверстия и пазы под
фундаментные болты 30 мм и шайбу не ставить.

Черт. 3

 

Тип 2

Опора неподвижная

 

Позиция 1 не показана

 

А-А (1:2)

 

1 - лист опорный; 2 - плита опорная; 4 - ребро;
5 - втулка резьбовая - 2 шт.; 6 - шайба - 4шт.

** Для DВ = 800 мм принимать отверстия и пазы под
фундаментные болты 30 мм и шайбу не ставить.

Черт. 4


Таблица 3

Параметры и размеры опор типа, 2 исполнении 1 и 2

Размеры, мм

Диаметр аппарата,
DВ

Допускаемая нагрузка на опору, кН (тс)

S1

S2

R

L

L1

В

В1

В2

h

А

А1

Масса*, кг

Масса листа подкладного, кг

Исполнение

Исполнение

Исп. 1

Исп. 2

1

2

1

2

1

2

800

80 (8,0)

160 (16,0)

8

14

14

18

414

740

760

662

250

400

140

345

500

600

42,5

65,3

23,6

418

665

43,0

65,5

422

670

428

675

66,0

432

680

442

690

1000

125 (12,5)

200 (20,0)

514

1000

1020

910

455

650

790

58,5

90,0

31,8

518

915

59,0

522

920

90,2

528

928

90,5

532

933

546

950

91,0

1200

12

614

1100

1120

1032

460

800

940

63,5

88,8

34,9

618

1035

64,0

89,0

622

1040

626

1045

89,5

630

1050

638

1056

1400

160 (16,0)

250 (25,0)

20

714

1250

1270

1175

488

950

1090

72,0

105,0

39,7

718

1180

722

1185

726

1190

732

1195

105,5

744

1206

1600

300 (30,0)

814

1420

1440

1350

300

450

200

540

1100

1260

95,0

137,7

50,6

818

1355

822

1360

826

1365

138,0

832

1370

1800

914

1600

1620

1538

600

1280

107,0

157,0

57,0

918

1545

922

1548

930

1555

107,5

157,5

2000

250 (25,0)

400 (40,0)

16

1014

1770

1790

1696

638

1500

1630

127,0

173,5

63,0

1018

1700

1022

1704

174,0

l032

1715

1042

1725

127,5

174,3

* Масса опоры дана без учета листа опорного и листа подкладного.

Таблица 4

Параметры и размеры опор типа 2, исполнения 3

Размеры, мм

Диаметр аппарата,
DВ

Допускаемая нагрузка на опору, кН (тс)

S1

S2

R

L

L1

В

В1

В2

h

А

А1

Масса*, кг

Масса подкладной плиты,
кг

1000

250 (25,0)

20

20

532

1000

1020

920

250

400

140

445

650

790

116,6

31.8

546

936

117,3

1100

300 (30,0)

584

1050

1070

970

440

800

940

114,0

33,4

592

980

122,0

600

988

1200

638

1100

1120

1028

125,7

34,9

646

1036

139,0

654

1044

360 (36,0)

22

22

638

1028

129,0

646

1036

139,0

654

1044

1300

20

20

688

1230

1250

1150

490

950

1090

135,0

39,0

б96

1158

143,0

1400

450 (45,0)

22

22

722

1250

1270

1156

153,7

39,7

732

1167

154,1

744

1179

154,7

* Масса опоры дана без учета листа опорного и листа подкладного.


Пример условного обозначения опоры неподвижной с допускаемой нагрузкой 360 кН, с радиусом R = 646 мм, исполнением по материалу 1:

Опора 360-646-1 ОСТ 26-2091-93.

То же, опоры подвижной без подкладного листа:

Опора П 360-646-1 ОСТ 26-2091-93.

То же, опоры подвижной с подкладным листом:

Опора ПЛ 360-646-1 ОСТ 26-2091-93.

Лист опорный для опор типа 2

Таблица 5

Размеры, мм

DВ

S

R

H

Масса, кг

800

10

414

360

28,2

8

22,6

6

17,0

10

418

28,5

8

22,9

6

17,2

10

422

28,8

8

23,1

6

17,4

10

428

29,2

8

23,4

6

17,6

10

432

29,5

8

23,6

6

17,8

14

442

42,1

12

36,1

10

30,2

6

18,2

1000

10

514

35,1

8

28,2

6

21,2

10

518

35,4

8

28,4

6

21,3

10

522

35,7

8

28,6

6

21,5

10

528

36,1

8

28,9

6

21,7

10

532

36,4

8

29,2

6

21,9

18

546

66,7

16

59,4

14

52,1

10

37,4

6

22,5

1100

16

584

62,3

14

53,9

12

45,5

10

39,9

8

32,0

14

592

56,5

12

48,5

8

32,5

6

24,4

12

600

49,2

10

41,1

6

24,7

1200

10

614

42,0

8

33,7

6

25,3

10

618

42,3

8

33,9

6

25,5

10

622

42,6

8

34,1

6

25,6

10

626

42,9

8

34,4

6

25,8

10

630

43,2

8

34,6

6

26,0

12

638

52,4

10

43,7

8

35,0

6

26,3

12

646

53,0

10

44,2

8

35,4

6

26,6

12

654

53,7

10

44,8

8

35,9

6

400

27,0

1300

10

688

45,4

8

31,2

6

28,3

12

696

57,1

10

46,8

8

36,9

6

28,8

1400

10

714

54,4

8

43,6

6

32,7

10

718

54,7

8

43,8

6

32,9

10

722

55,0

8

44,1

6

33,1

10

726

55,3

8

44,3

6

33,3

10

732

55,8

8

44,7

6

33,6

16

744

90,3

14

79,1

12

67,9

8

45,4

1600

10

814

62,1

8

49,7

6

37,3

10

818

62,4

8

49,9

6

37,5

10

822

62,7

8

50,1

6

37,7

10

826

63,0

8

50,4

6

37,9

12

832

76,0

10

63,4

8

50,8

6

38,2

1800

10

914

69,7

8

55,8

6

41,9

10

918

70,0

8

56,1

6

42,1

10

922

70,3

8

65,3

6

42,3

12

930

85,0

10

71,0

8

56,8

2000

10

1014

450

87,1

8

69,7

6

52,3

10

1018

87,4

8

70,0

6

52,6

10

1022

87,8

8

70,2

6

52,8

14

1032

123,8

12

106,3

10

88,6

8

71,0

6

53,3

14

1042

125,1

12

107,3

10

89,5

6

53,8

Пример условного обозначения листа опорного S = 10 мм, радиусом R = 832 мм из стали 16ГС:

Лист опорный 10-832-16ГС ОСТ 26-2091-93.

То же, листа опорного с углом охвата 180°:

Лист опорный 10-832-180°-16ГС ОСТ 26-2091-93


Тип 3

Опора подвижная

 

Е (1:2)
Позиция 6 не показана

 

 

Позиция 1 не показана

 

А-А (1:2)

 

1 - лист опорный; 2 - плита опорная; 3 - лист подкладной; 4 - ребро;
5 - втулка резьбовая - 2 шт.; 6 - шайба - 4шт.; 7 - болт М16 ОСТ 26-2037 - 4 шт.

* Размер для справок

Черт. 5

 

Тип 3

Опора неподвижная

 

Позиция 1 не показана

 

А-А (1:2)

 

1 - лист опорный; 2 - плита опорная; 4 - ребро;
5 - втулка резьбовая - 2 шт.; 6 - шайба - 4шт.

* Размер для справок

Черт. 6


Таблица 6

Параметры и размеры опор типа 3, исполнения 1 и 2

Размеры, мм

Диаметр аппарата,
DВ

Допускаемая нагрузка на опору, кН (тс)

S1

S2

R

L

L1

1

h

h1

А

А1

Масса*, кг

Масса листа подкладного, кг

Исполнение

Исполнение

Исп. 1

Исп. 2

1

2

1

2

1

2

2200

250 (25,0)

500 (50,0)

8

14

14

20

1116

1940

1960

1850

966

670

290

1500

1100

140

224

49

1120

1852

968

225

1124

1856

971

1128

I860

972

141

1132

1865

976

1146

1880

981

226

2400

400 (40,0)

630 (63,0)

10

18

18

22

1216

2120

2140

2020

1054

720

300

1800

1400

195

298

76

1220

2025

1056

1224

2030

1057

1228

2035

1059

299

1232

2040

1061

1246

2055

1067

2600

750 (75,0)

1316

2290

2310

2182

1085

760

210

321

82

1320

2185

1100

322

1324

2190

1101

1328

2195

1104

1332

2200

1106

1346

2215

1111

211

323

2800

1416

2460

2480

2370

1186

820

310

2200

1800

230

351

88

1420

2375

1187

1424

2378

1189

1428

2382

1191

352

1432

2386

1192

1446

2400

1199

231

353

3000

630 (63,0)

900 (90,0)

14

20

1520

2640

2660

2560

1246

880

320

316

382

95

1528

2570

1278

383

1540

2582

1283

317

384

3200

1620

2810

2830

2720

1362

920

330

337

408

100

1628

2730

1365

338

1634

2735

1369

409

1640

2745

1371

3400

1400 (1400)

12

25

18

25

1720

2990

3010

2895

1450

970

340

2390

2000

316

570

106

1726

2900

1451

317

1732

2907

1455

571

1740

2915

1458

318

572

3600

22

1820

3160

3180

3067

1579

1020

360

2800

2300

339

560

112

1828

3076

1583

361

1834

3080

1586

562

3800

1920

3330

3350

3245

1667

1070

370

360

595

118

1928

3250

1669

361

598

1934

3256

1672

4000

20

2020

3510

3530

3430

1736

1130

380

384

600

125

2028

3435

1756

385

2034

3445

1759

Таблица 7

Параметры и размеры опор типа 3,исполнения 3

Размеры, мм

Диаметр аппарата,
DВ

Допускаемая нагрузка на опору, кН (тс)

S1

S2

R

L

L1

1

h

h1

А

А1

Масса*, кг

Масса подкладной плиты,
кг

2600

900 (90,0)

20

22

1316

2290

2310

2182

1085

760

300

1800

1400

346

82

1320

2185

1100

1324

2190

1101

1328

2195

1104

1332

2200

1106

1346

2215

1111

347

2800

18

1416

2460

2480

2370

1186

820

310

2200

1800

353

88

1420

2375

1187

1424

2378

1189

1428

2382

1191

354

1432

2386

1192

1446

2400

1199

355

3000

1200 (120,0)

22

25

1520

2660

2560

1246

880

320

457

95

1528

2570

1278

1540

2582

1283

458

3200

20

1620

2810

2830

2720

1362

920

330

460

100

1628

2730

1365

1634

2735

1369

461

1640

2745

1371

* Масса опор дана без учета листа опорного и листа подкладного.


Пример условного обозначения опоры неподвижной с допускаемой нагрузкой 630 кН, с радиусом R = 1920 мм, исполнением по материалу 1:

Опора 630-1920-1 ОСТ 26-2091-93.

То же, опоры подвижной без подкладного листа:

Опора П 630-1920-1 ОСТ 26-2091-93.

То же, опоры подвижной с подкладным листом:

Опора ПЛ 630-1920-1 ОСТ 26-2091-93.

Лист опорный для опор типа 3

Таблица 8

Размеры, мм

DВ

S

R

H

Масса, кг

2200

10

1116

450

95,9

8

76,8

6

57,6

10

1120

96,2

8

77,1

6

57,8

12

1124

115,8

10

96,5

8

77,3

6

58,1

10

1128

96,9

8

77,6

6

58,1

14

1132

136,0

12

116,6

10

97,3

8

77,9

6

58,5

18

1146

176,6

16

157,2

14

137,6

10

98,5

2400

10

1216

104,5

8

83,7

6

62,8

10

1220

104,9

8

84,0

6

63,0

12

1224

126,2

10

105,2

8

84,2

6

63,2

10

1228

105,6

8

84,5

6

63,4

14

1232

148,0

12

127,0

10

106,0

8

84,8

6

63,6

18

1246

192,2

16

170,9

14

149,7

10

107,0

2600

10

1316

113,2

8

90,6

6

68,0

10

1320

113,5

8

91,0

6

68,2

12

1324

136,5

10

113,8

8

91,2

6

68,4

10

1328

114,2

8

92,6

6

68,6

14

1332

160,0

12

137,3

10

114,3

8

91,7

6

68,8

18

1346

207,7

16

184,7

14

161,8

10

115,7

2800

10

1416

121,8

8

97,5

6

73,2

10

1420

122,1

8

97,8

6

73,4

12

1424

146,9

10

122,5

8

98,0

6

73,6

10

1428

122,8

8

98,3

6

73,8

14

1432

172,2

12

147,7

10

123,2

8

98,6

6

74,0

18

1446

223,2

16

198,5

14

173,8

10

124,4

3000

12

1520

156,8

10

130,8

8

104,7

14

1528

183,8

12

157,6

10

131,5

8

105,2

18

1540

237,9

16

211,6

14

185,2

12

158,9

10

132,5

3200

12

1620

167,2

10

139,4

8

115,9

14

1628

195,9

12

168,0

10

140,1

14

1634

196,6

12

168,6

10

140,6

14

1640

197,3

12

169,2

10

141,1

3400

12

1720

500

197,2

10

164,5

8

131,7

12

1726

198,0

10

165,0

8

132,0

12

1732

198,6

10

165,6

8

132,6

14

1740

232,7

12

199,6

10

166,4

3600

12

1820

225,4

10

188,0

8

155,5

14

1828

264,0

12

226,5

10

188,8

14

1834

265,0

12

227,2

10

189,4

3800

12

1920

238,0

10

198,3

8

158,8

14

1928

278,6

12

239,0

10

199,2

14

1934

279,4

12

239,6

10

199,8

4000

12

2020

250,3

10

208,7

8

167,0

14

2028

293,0

12

251,3

10

209,5

14

2034

294,0

12

252,0

10

210,2

Пример условного обозначения листа опорного S = 10 мм, радиусом R = 1920 мм из стали 16ГС:

Лист опорный 10-1920-16ГС ОСТ 26-2091-93.

То же, листа опорного с углом охвата 180°:

Лист опорный 10-1920-180°-16ГС ОСТ 26-2091-93.

Размеры резьбовой втулки

Таблица 9

Размеры, мм

Диаметр резьбы втулки, d

Допускаемая нагрузка, кН (тс)

D

h2

Масса, кг

Масса пустого аппарата*, кг, не более

М20

7,7 (0,77)

40

25

0,21

1500

М24

12,5 (1,25)

0,20

2500

М30

24,5 (2,45)

60

35

0,60

4900

М36

39,0 (3,90)

0,51

7800

М42

58,0 (5,80)

80

50

1,45

11600

М48

82,0 (8,20)

86

1,52

16400

Примечание. Масса резьбовых втулок должна быть прибавлена к массе опоры.

* Для справок.

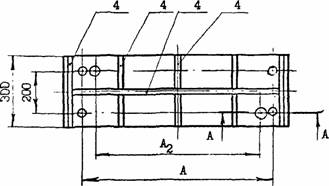
Расположение регулировочных винтов на опорной плите

Черт. 7

Таблица 10

Размеры, мм

DВ

L*

A2

В*

В2

800

740

360

250

140

1000

1000

500

1200

1100

650

1400

1250

800

1600

1420

950

300

200

1800

1600

2000

1770

1300

2200

1940

2400

2120

1600

2600

2290

2800

2460

2000

3000

2640

3200

2810

3400

2990

2190

3600

3160

2600

3800

3330

4000

3510

* Размеры для справок.

2. ТЕХНИЧЕСКИЕ ТРЕБОВАНИЯ

2.1. Опоры должны изготавливаться в соответствии с требованиями настоящего стандарта, ОСТ 26-2091, по рабочим чертежам утвержденным в установленном порядке.

2.2. Материал опор в зависимости от температуры рабочей среды и средней температуры наиболее холодной пятидневки должен выбираться по табл. 11.

Таблица 11

Шифр материального исполнения

Температура, °С

Марка стали, обозначение стандарта

Технические требования

рабочей среды

средняя наиболее холодной пятидневки

1

от минус 40 до 350

не ниже минус 40

ст3пс4 ГОСТ 380

ГОСТ 14637

2

от минус 40 до 475

не ниже минус 40

для S от 12 до 60 мм: 16ГС-17 ГОСТ 5520

для S до 12 мм: 16ГС-12 ГОСТ 5520

ГОСТ 5520

3

ниже минус 40 до минус 70

от минус 41 до минус 60

09Г2С-9 ГОСТ 5520 категории 7, 8 для рабочих температур 50 и 60 °С соответственно

ГОСТ 5520

Примечание:

1. Требования к материалам, виды их испытаний должны соответствовать ОСТ 26-2091.

2. Материал втулки резьбовой для всех материальных исполнений сталь марки 20, 25 ГОСТ 1050.

2.3. Количество опор, расположенных вдоль аппарата, должно устанавливаться при проектировании в зависимости от длины и массы аппарата, при этом одна опора должна быть неподвижной, остальные подвижными. Указание об этом должно содержаться в техническом проекте.

2.4. Скольжение подвижной опоры от температурных расширений аппарата должно осуществляться по подкладному листу, которым комплектуется подвижная опора или по металлоконструкции.

2.5. Устойчивость корпуса аппарата в местах расположения опор должна проверяться расчетом по ГОСТ 26202.

2.6. Опорные листы допускается изготавливать с углом охвата 180°, если это обусловлено расчетом на устойчивость. Масса опорного листа в этом случае должна быть пересчитана.

2.7. Опорный лист должен привариваться к аппарату прерывистым валиковым швом по периметру. Величина катета сварного шва должна приниматься равной меньшей толщине соединения "корпус-опорный лист".

Допускается приварка опоры к аппарату без опорного листа при однородных материалах корпуса и опоры, при этом .

2.8. К аппаратам подлежащим термообработке приварка опорного листа должна производиться до термообработки.

2.9. Материал опорного листа должен удовлетворять требованиям, предъявляемым к материалу корпуса аппарата.

2.10. Приварка ребер опоры к аппарату и к опорному листу должна производиться односторонним сплошным швом.

2.11. Сварка опоры должна выполняться сплошным односторонним швом в соответствии с ГОСТ 5264, ГОСТ 8713, ГОСТ 14771.

Допускается применять другие типы швов сварных соединений о величиной катета не менее указанного в стандартах.

2.12. Допускается крупногабаритные детали опоры изготавливать сварными из частей при условии полного провара. Поверхности скольжения и сопрягаемые поверхности должны быть зачищены заподлицо.

2.13. Для опор типа 1 допускается сварной вариант опорной плиты вместо гиба, при этом толщина ребра должна быть равна толщине опорной плиты.

2.14. Опоры для сосудов и аппаратов диаметром до 3200 мм включительно должны привариваться к корпусу аппарата на предприятии-изготовителе.

Опоры для сосудов и аппаратов диаметром более 3200 мм допускается приваривать на монтаже, опорные листы должны быть приварены к аппарату на предприятии-изготовителе.

2.15. Для транспортировки опор отдельно от аппарата в центральном ребре опоры необходимо предусмотреть отверстие для строповки (см. черт. 8).

 

Черт.8

2.16. В случае поставки опор отдельно от аппарата на предприятии-изготовителе должна производиться контрольная сборка аппарата с опорой с монтажной маркировкой, обеспечивающей приварку опоры к аппарату на монтажной площадке без подгонки.

Маркировка выполняется нанесением на корпус аппарата несмываемой краской контура примыкаемых крайних ребер опоры с конкретной маркировкой одного ребра и корпуса аппарата.

2.17. Допуск плоскостности подкладного листа и опорной плиты для опоры типа 1 не более 2 мм на всей длине, для опор типа 2 и 3 не более 2,5 мм на длине 1000 мм, но наболев 8 мм на всей длине.

2.18. Допуск соосности отверстий в опорной плите относительно осей отверстий в подкладном листе не более 2 мм.

2.19. Допускается изготавливать опору с радиусами, превышающими максимальные радиусы, указанные в таблицах, но в пределах допускаемых нагрузок на опору.

Выбор радиуса производится следующим образом: ,

где SК - толщина корпуса аппарата,

S - толщина подкладного листа.

Радиус отражается в условном обозначении опоры.

2.20. В опорах тапа 2 и 3 при массе пустого аппарата до 16400 кг должны быть предусмотрены втулки резьбовые под регулировочные винты по ОСТ 26-1420. Регулировочные винты применяются с целью выверки аппаратов и выведения их на проектную отметку. Узел регулировочного винта дан на черт. 9.

Примечание. Масса 16400 кг принято из условия допускаемой нагрузки на винт при распределении всей нагрузки от пустого аппарата па два винта.

 

5 - втулка резьбовая; 6 - шайба; 7 - болт M16 по ОСТ 26-2037; 8 - винт регулировочный;
9 - гайка по ГОСТ 15521; 10 - пластина опорная по
 ОСТ 26-1420;
11 - болт фундаментный М24 по ГОСТ 24379.0; 12 - сайка М24 по ГОСТ 5915.

Черт. 9

2.21. Для сосудов и аппаратов с массой более 16400 кг и для опор типа 1 из-за малого габарита применяются другие методы выверки их положения на фундаменте по рекомендациям монтажных организаций.

2.22. Выбор втулки резьбовой под регулировочный винт должен осуществлять разработчик технического проекта в зависимости от допускаемой нагрузки (см. табл. 9) с указанием размера резьбы на чертеже общего вида аппарата.

2.23. Перед бетонной подливкой резьбовая часть регулировочных винтов смазывается графитной или консистентной смазкой.

2.24. При подливке бетон не должен доходить до поверхности скольжения опоры по подкладному листу.

2.25. После выверки сосудов и аппаратов на фундаменте и затвердения бетонной подливки, регулировочные винты, а также болты M16, служащие для крепления подкладного листа к подвижной опоре на время установки аппарата на фундамент, должны быть удалены.

Резьбовые отверстия забивается противокоррозионной замазкой.

2.26. Для аппаратов, устанавливаемых на металлоконструкции (раме) если монтаж и выверка горизонтального положения относительно рамы произведена на предприятии-изготовителе, резьбовые втулки под регулировочные винты и болты M16 не устанавливаются.

2.27. Регулировочные винты, опорные пластины, контргайки являются инвентарным инструментом монтажных организаций и предприятиями-изготовителями не поставляются.

2.28. По требованию монтажных организаций в опорах под фундаментные болты должны быть предусмотрены увеличенные отверстия или пазы (для подвижной опоры), на которые устанавливаются шайбы (поз. 6).

2.29. Приварку шайб под фундаментные болты на неподвижной опоре производить при монтаже после установки аппарата на фундамент.

На подвижной опоре шайба не приваривается.

2.30. Для неподвижной опоры в опорной плите допускается вместо отверстий под фундаментные болты выполнять пазы как в подвижной опоре.

2.31. Фундаментные болты в подвижной опоре должны располагаться так, чтобы обеспечить свободное перемещение аппарата от температурных расширений.

2.32. Гайки и контргайки фундаментных болтов не должны затягиваться. Между гайкой и шайбой должен оставаться зазор 1 - 2 мм.

2.33. Допускается вместо круглых шайб под фундаментные болты применять квадратные со стороной квадрата 60 мм.

2.34. При поставке сосудов и аппаратов с опорами, устанавливаемыми на фундаменте подвижная опора комплектуется подкладным листом, болтами М16.

2.35. Подкладной лист должен быть неподвижен относительно фундамента.

2.36. При установке сосудов и аппаратов на металлоконструкцию (раму) подкладной лист должен быть предусмотрен на металлоконструкции.

2.37. Если монтаж и выверка горизонтального положения сосудов и аппаратов относительно металлоконструкции (рамы) производится на предприятии-изготовителе, то резьбовые втулки под регулировочные винты и болты M16 не устанавливаются.

2.38. Фактическая масса опор может отличаться от указанной в стандарте в пределах ± 5 %.

2.39. Маркировать условное обозначение опоры без наименования, товарный знак, ОСТ 26-2091-93.

Если опора не имеет самостоятельной поставки, допускается производить маркировку в порядке принятом на предприятии-изготовителе.

ИНФОРМАЦИОННЫЕ ДАННЫЕ

1. УТВЕРЖДЕН И ВВЕДЕН В ДЕЙСТВИЕ письмом.

РАЗРАБОТЧИКИ

А.Ю. Пролесковский (руководитель темы), Т.Д. Демченкова.

2. Срок первой проверки - 1998 г., периодичность проверки - 5 лет.

3. ВЗАМЕН ОСТ 26-2091-81.

4. ССЫЛОЧНЫЕ НОРМАТИВНО-ТЕХНИЧЕСКИЕ ДОКУМЕНТЫ

Обозначение НТД, на который дана ссылка

Номер пункта, подпункта, перечисления, приложения

ГОСТ 380-88

2.2

ГОСТ 1050-88

2.2

ГОСТ 5264-80

2.11; 2.20

ГОСТ 5520-79

2.2

ГОСТ 5915-70

2.20

ГОСТ 8713-79

2.11

ГОСТ 14637-89

2.2

ГОСТ 14771-76

2.11

ГОСТ 15521-70

2.20

ГОСТ 19281-89

2.2

ГОСТ 24379.0-80

2.20

ГОСТ 26202-8 4

2.5

ОСТ 26-291-87

2.1; 2.2

ОСТ 26-1420-75

2.20

ОСТ 26-2037-77

1.1; 2.20

 

СОДЕРЖАНИЕ

 



© 2013 Ёшкин Кот :-)