Информационная система
«Ёшкин Кот»

XXXecatmenu

МИНИСТЕРСТВО АВТОМОБИЛЬНОГО
И
СЕЛЬСКОХОЗЯЙСТВЕННОГО МАШИНОСТРОЕНИЯ СССР

ОБЩЕСОЮЗНЫЕ НОРМЫ
ТЕХНОЛОГИЧЕСКОГО ПРОЕКТИРОВАНИЯ
ПРЕДПРИЯТИЙ
МАШИНОСТРОЕНИЯ,
ПРИБОРОСТРОЕНИЯ И МЕТАЛЛООБРАБОТКИ

СБОРОЧНО-СВАРОЧНЫЕ ЦЕХИ

ОНТП 09-88
Минавтопром
СССР

Утверждены Минавтопромом СССР

протокол от 7 декабря 1988 г.

12 по согласованию с Госстроем

СССР письмо от 22 ноября 1988 г.

АЧ-4130-7/3

Москва - 1989

«Общесоюзные нормы технологического проектирования предприятий машиностроения, приборостроения и металлообработки. Сборочно-сварочные цехи» ОНТП 09-88 разработаны Государственным ордена «Знак Почета» институтом по проектированию заводов автомобильной промышленности (Гипроавтопром).

В разработке норм принимали участие: Гипростанок Минстанкопрома, Гипротракторосельхозмаш Минсельхозмаша, Союзтяжмашпроект Минтяжмаша, ЛГПИ Минпромсвязи.

Нормы разработаны ответственными исполнителями - В.А. Зыкиным, Е.А. Карпухиным, Е.И. Лесковым, В.Я. Гольдиным, С.Г. Завьяловым под руководством О.В. Максимова.

Нормы подготовлены к утверждению Гипроавтопромом Министерства автомобильной промышленности.

С введением в действие настоящих норм утрачивают силу:

«Общесоюзные нормы технологического проектирования предприятий машиностроения, приборостроения и металлообработки. Цехи металлоконструкций (заготовительное и сварочное производства)» ОНТП 01-85 Минстройдормаша в части сварочного производства;

«Ведомственные нормы технологического проектирования сборочно-сварочных цехов автомобильных заводов», арх. 19664, 1986 г.;

«Ведомственные нормы технологического проектирования сборочно-каркасных и сварочных участков» ВНТП 37-87, ЛГПИ Минпромсвязи.

Министерство автомобильной промышленности СССР

(Минавтопром СССР)

Общесоюзные нормы технологического проектирования предприятий машиностроения, приборостроения и металлообработки. Сборочно-сварочные цехи

ОНТП 09-88

Минавтопром СССР

1. ОБЩАЯ ЧАСТЬ

Настоящие нормы технологического проектирования предназначены для использования при разработке проектной документации на строительство новых, расширение, реконструкцию и техническое перевооружение сборочно-сварочных цехов. На основании настоящих норм определяются основные параметры сборочно-сварочных цехов.

Нормы распространяются на проектирование сборочно-сварочных цехов, в которых применяются процессы сборки под сварку, соединений деталей методом сварки и пайки сборочных единиц из черных и цветных металлов.

Входящие в состав сборочно-сварочных цехов участки холодной листовой штамповки, механической обработки резанием, окраски, термической обработки и т.д. должны проектироваться по соответствующим нормам технологического проектирования.

При разработке проектов сборочно-сварочных цехов должны учитываться последние достижения науки и техники, предусматриваться прогрессивные технологические процессы, новейшее высокопроизводительное оборудование, эффективные средства автоматизации и механизации производственных процессов, прогрессивные формы организации производства, применение АСУП и АСУ ТП, рациональное использование площадей, материальных ресурсов, энергоносителей, воды, тепла, исключение или технически возможное снижение загрязнения окружающей среды.

2. ФОНДЫ ВРЕМЕНИ РАБОТЫ ОБОРУДОВАНИЯ И РАБОЧИХ

Эффективные годовые фонды времени работы сварочного, сборочного оборудования и рабочих принимать по действующим «Общесоюзным нормам технологического проектирования предприятий машиностроения, приборостроения и металлообработки. Фонды времени работы оборудования и рабочих» ОНТП 15-86 Минстанкопром.

Внесены

Гипроавтопромом

Утверждены Минавтопромом

протокол 12 от 7 декабря 1988 г.

Срок введения в действие

1 мая 1989 г.

3. РАСЧЕТ КОЛИЧЕСТВА ПРОИЗВОДСТВЕННОГО ОБОРУДОВАНИЯ

Производственное оборудование делится на основное и прочее.

Оборудование, работающее в комплекте с производственным, следует принимать по технологической необходимости, организации рабочего места и его автоматизации.

3.1. Расчет количества основного оборудования

Расчетное количество оборудования, работающего в самостоятельном режиме (вне автоматизированных линий), следует определять по формуле

                                                                       (1)

где Мр - расчетное количество оборудования, ед.;

Тс - суммарная годовая станкоемкость, ст. ч;

Фэ - эффективный годовой фонд времени работы оборудования, ч.

Суммарная годовая станкоемкость определяется по каждому виду и модели оборудования по формуле

Тс = Тр + Тн,                                                                (2)

где Тр - расчетная годовая станкоемкость на выполнение операций, ст. ч;

Тн - продолжительность наладки оборудования (принимать по табл. 2), ст.ч.

Принятое количество оборудования (Мп) определяется по полученному расчетному значению с последующим округлением результата до ближайшего целого числа.

Количество оборудования в составе гибкой автоматизированной линии рассчитывается пооперационно по формуле

                                                                 (3)

где tшт. - штучное время на операцию, мин.;

t - такт выпуска единиц с линии, мин.

t определяется по формуле

                                                               (4)

где N - количество обрабатываемых единиц в год, шт.;

Кз - коэффициент загрузки, см. табл. 1.

3.2. Расчет количества прочего оборудования

Количество прочего оборудования (сушильные шкафы, станки для перемотки проволоки) следует рассчитывать по формуле

                                                                      (5)

где Q - годовая программа, т;

q - часовая производительность, т/ч.

3.3. Коэффициенты загрузки производственного оборудования

Коэффициенты загрузки работы оборудования должны быть не ниже значений, указанных в табл. 1.

Таблица 1

Коэффициент

Тип производства

гпс

Единичное и мелкосерийное

Среднесерийное

Крупносерийное и массовое

Загрузки оборудования з)

0,8 - 0,85

0,85 - 0,9

0,9 - 0,95

до 1,0

Сменности работы оборудования

1,7

1,8

1,9

до 2,5

Примечания: 1. Кз определяется отношением расчетного количества оборудования к принятому.

2. Значение показателей, меньше указанных в табл. 1, допускается при обосновании.

3.4. Прогрессивность технологического оборудования

На основании Постановления Госстандарта СССР все технологические процессы подлежат аттестации в соответствии с РД 50-532-85.

Одним из показателей, характеризующих уровень технологических процессов, является прогрессивность технологического оборудования.

Примерный состав прогрессивного технологического оборудования по сварочному производству:

роботизированные технологические линии;

роботизированные технологические комплексы;

роботизированные технологические участки на базе универсального сварочного оборудования: машин контактной сварки (типа МТ-1222УХЛЧ, МР3818УХЛЧ и др.);

автоматы для сварки в защитных газах порошковой проволокой (типа А-1416УХЛЧ, А-1406УХЛ4, АДГ-601УХЛ4 и др.);

автоматы для сварки под флюсом, в том числе на форсированных резинах, 70 м/ч (типа АДФ-1001У3, АДФ-1202У3 и др.);

установки для электрошлаковой сварки;

машины для сварки трением (типа ПСТМ-1,5);

машины для холодной сварки (типа МСХС-802УХЛ4, МСХС-2005УХЛ4 и др.);

машины контактной сварки: точечной, рельефной, шовной (типа МТР-1201УХЛ4, МТ-1222УХЛ4, МШВ-5001УХЛ4 и др.);

установки электронно-лучевой и лазерной сварки;

установки для плазменной, лазерной, диффузионной сварки (типа МДВ-301УХЛ4, УПО-201УХЛ4, АПР-404УХЛ4, УПРП-201У3 и др.);

машины для кислородной, плазменной и лазерной резки с программным управлением;

многопостовые источники питания.

Примечание. Перечень прогрессивного технологического оборудования должен пересматриваться не реже одного раза в пять лет.

4. РАСЧЕТ ЧИСЛЕННОСТИ РАБОТАЮЩИХ

4.1. Расчет численности основных рабочих

К основным рабочим относятся все рабочие, непосредственно участвующие в технологическом процессе, в том числе наладчики.

Численность основных рабочих N (без наладчиков) определяется по формуле

                                                                        (6)

где Т - трудоемкость годового выпуска, чел. ч;

Фр - эффективный фонд времени рабочего, ч.

Численность наладчиков для отдельно стоящего оборудования определяется по трудоемкости наладки по табл. 2, с учетом плотности бригады, равной 1.

Таблица 2

Оборудование

Трудоемкость наладки от годовой станкоемкости изготовления узлов (изделий) в зависимости от количества закрепленных узлов за оборудованием, %

до 3

4 - 8

свыше 8

Для дуговой сварки

3

5

8

Машины контактной сварки:

 

 

 

стационарные

5

8

10

подвесные

1

2

-

шовные

2

4

-

стыковые

3

5

10 - 25

Многоэлектродные машины с количеством электродов в них, шт.:

 

 

 

до 24

3

5

-

''    48

5

8

-

свыше 48

8

10

-

Для термической резки:

 

 

 

по копиру

-

3

5

с фотоэлектронной системой

-

8

10

с программным управлением

-

5

8

Примечания: 1. Расчет численности наладчиков не производится в случае включения времени на наладочные работы в общую трудоемкость изготовления изделий.

2. Для более полного использования времени работы наладчиков применять принцип совмещения профессий, при котором один и тот же наладчик обслуживает несколько различных типов оборудования.

Для механизированных и автоматизированных линий, гибких автоматизированных линий, робототехнических комплексов, гибких производственных модулей количество наладчиков следует определять в зависимости от количества встроенного оборудования (по расстановке), согласно табл. 3.

Таблица 3

Содержание работы

Механизированные, автоматизированные, гибкие автоматизированные линии

Робототехнические комплексы, гибкие производственные модули

Количество встроенного оборудования

до 20

свыше 20

до 5

свыше 5

Наладка электротехнической части оборудования

0,5

0,8

0,1

0,15

То же механической части оборудования

0,6

1,0

0,05

0,1

''       гидравлической системы (при наличии ее)

0,3

0,5

0,05

0,1

''       электронной части системы управления

0,2

0,5

0,05

0,1

Примечания: 1. Нормы численности наладчиков даны для условий компактного расположения оборудования в цехе.

2. За единицу встроенного оборудования следует считать транспортные устройства (конвейер, кантователь, подъемник, загрузчик, перегрузчик и т.п.), робот в комплекте с встроенным оборудованием, специальную установку, фильтровентиляционный агрегат.

4.2. Определение состава и численности работающих

Численность вспомогательных рабочих следует принимать в зависимости от количества основных рабочих, сварочного оборудования, типа производства, площади цеха (участка) по табл. 4.

Таблица 4

Профессия

Количество основных рабочих, обслуживаемых одним распределителем (кладовщиком) в смену

Тип производства

Единичное и мелкосерийное

Среднесерийное

Крупносерийное и массовое

Распределитель работ

50 - 55

55 - 60

65 - 70

Кладовщик-раздатчик инструмента, приспособлений

70 - 80

80 - 90

100 - 110

Кладовщик кладовых сварочных и вспомогательных материалов

80 - 90

90 - 100

110 - 120

Кладовщик склада комплектации заготовок

60 - 65

65 - 70

-

Кладовщик склада сварных узлов

170 - 180

180 - 190

-

Смазчик

Из расчета 200 единиц оборудования на одного смазчика в одну смену

Уборщики

Из расчета один рабочий в смену на 3500 м2 производственных помещений

Примечания: 1. Расчет численности кладовщиков заготовок и сварных узлов производить при отсутствии системы АСУТП.

2. Уборка производственных помещений осуществляется механизированным способом.

3. Уборку рабочего места производит основной рабочий.

Определение численности инженерно-технических работников, служащих и МОП производить по данным табл. 5.

Таблица 5

Категория работающих

Количество работающих по категориям от общего числа рабочих в зависимости от типа производства, %

Единичное и мелкосерийное

Среднесерийное

Крупносерийное и массовое

Инженерно-технические работники (ИТР)

9,0

8,0

6,6

Служащие (СКП)

2,2

2,0

1,8

Младший обслуживающий персонал (МОП)

1,6

1,5

1,4

Примечание. Приведенные нормы даны применительно к следующим условиям:

разработка технологических процессов и их нормирование, а также проектирование специальных приспособлений и инструмента производится работниками отдела главного технолога, отдела труда и заработной платы. Бухгалтерские расчеты и табельный учет централизованы по заводу, поэтому бухгалтеры, счетоводы и табельщики не входят в состав работающих цеха.

4.2.1. Определение численности работников службы технического контроля (СТК) следует производить по данным табл. 6, 7.

Таблица 6

Производство

Рабочие (контролеры) ИТР

Количество основных рабочих, обслуживаемых одним контролером

Количество контролеров, приходящихся на одного ИТР

Единичное и мелкосерийное

36 - 40

18 - 20

Среднесерийное

32 - 36

16 - 18

Крупносерийное и массовое

28 - 32

14 - 16

Примечание. Количество работников технического контроля следует рассчитывать по каждому цеху.

Расчет количества основных рабочих службы неразрушающего контроля следует определять по трудоемкости контрольных операций в соответствии с техническими условиями на изделие.

Укрупненное количество работников службы неразрушающего контроля на одно рабочее место в смену следует принимать по табл. 7.

Таблица 7

Метод контроля

Дефектоскопист, чел.

Количество вспомогательных рабочих, чел.

фотолаборант

расшифровщик

дозиметрист

Радиационный

2

1

1

1 на 3 рабочих места

Ультразвуковой

1

-

-

-

Магнитопорошковый или магнитоферрозондовый

1

-

-

 

Капиллярная дефектоскопия

1

-

-

-

Контроль герметичности

1

-

-

-

Примечание. Работники служб неразрушающего контроля подчиняется ЦЗЛ и СТК предприятия в зависимости от структуры, объема и организации производства.

4.2.2. Расчет численности крановщиков и стропальщиков

Расчет численности крановщиков и стропальщиков должен быть провиден в целом по корпусу или по отдельному цеху в зависимости от принятой структуры управления и их количество должно учитываться в числе транспортных рабочих по корпусу (цеху).

При этом следует принимать: 1 крановщик в смену на 1 кран мостовой, подвесной, штабелер с управлением из кабины вне зависимости от грузоподъемности.

Примечания: 1. Подвесные и мостовые краны с нижним управлением обслуживаются основными рабочими цеха.

2. Число кранов, работающих во 2-й и 3-й сменах, и соответствующее число рабочих по их обслуживанию, принимать исходя из числа обслуживаемых ими станков или рабочих мест.

Расчет численности стропальщиков следует производить по данным табл. 8.

Таблица 8

Кран

Количество установленных кранов в пролете

Количество стропальщиков в смену для кранов грузоподъемностью, т

от 5 до 30

свыше 30

Мостовой (опорный) подвесной и консольно-передвижной с управлением из кабины

1

1

1

2

2

2 - 3

3

3

3 - 4

4

4

4 - 5

Примечания: 1. При большом объеме крановых операций допускается закрепление стропальщиков за кранами, управляемыми с пола.

2. Расчет потребного количества стропальщиков по цеху, участку производить для каждого пролета отдельно.

3. Если в одном пролете размещается несколько производственных подразделений, потребное количество стропальщиков рассчитывается отдельно для каждого подразделения исходя из количества закрепленных за ним кранов.

4. Количество стропальщиков уточняется в зависимости от их загрузки.

4.3. Распределение работающих по сменам и соотношение мужчин и женщин в общем количестве работающих

При выдаче заданий для разработки специальных частей проекта (бытовых помещений и др.) следует пользоваться данными табл. 9 - 11.

Распределение работающих по сменам приведено в табл. 9.

Таблица 9

Категории работающих

Количество работающих в наибольшую смену (%) при режиме работы

двухсменном

трехсменном

Рабочие:

 

 

основные

50 - 55

35 - 40

вспомогательные

55 - 60

35 - 40

ИТР

65 - 70

65 - 70

Служащие

75 - 80

75 - 80

моп

50

50

Количество работающих в конторских помещениях (от общего количества ИТР, служащих):

 

 

ИТР

75

-

служащих

100

-

Укрупненные показатели соотношения мужчин и женщин по группам работающих приведены в табл. 10.

Таблица 10

Работающие

Отношение количества женщин к числу работающих, %

Рабочие:

 

основные

10 - 15

вспомогательные

25 - 30

ИТР

45 - 50

Служащие

100

МОП

100

Примечание. Приведенные нормы могут корректироваться по основным указаниям на проектирование цеха, должны соответствовать нормам предельно допустимых нагрузок для женщин при подъеме и перемещении тяжестей вручную, введенным Постановлением СМ СССР и ВЦСПС № 1142 от 05.12.81 г. и «Гигиенической классификацией труда» Минздрава СССР.

4.4. Распределение работающих по группам санитарной характеристики производственных процессов

Согласно СНиП 2.09.04-87 работающие отнесены к соответствующим группам санитарной характеристики, приведенным в табл. 11.

Таблица 11

Профессия

Санитарная характеристика производственных процессов

Группа производственных процессов

 

Процессы, вызывающие загрязнение веществами 3-го и 4-го классов опасности:

1

ИТР, служащие, сварщики на лазерных и электроннолучевых установках

только рук

Вспомогательные рабочие, рабочие, не связанные непосредственно с выполнением технологических процессов (транспортно-складские рабочие)

тела и спецодежды

Вспомогательные рабочие:

 

 

по обслуживанию оборудования (смазчики, наладчики) рихтовщики

то же, удаляемое с применением специальных моющих средств

по металлу (кроме рихтовщиков по свинцовистому припою)

 

 

 

Процессы, протекающие при избытках явного тепла или при неблагоприятных метеорологических условиях:

2

Сварщики, работающие на машинах контактной точечной, рельефной и стыковой сварки, на автоматах дуговой сварки

конвекционного

Сварщики, работающие на установках дуговой сварки (кроме автоматов)

лучистого

Контролеры гидравлического испытания водой и сварщики на машинах шовной сварки

связанные с воздействием влаги, вызывающей намокание спецодежды

Все работающие на открытом воздухе

при температуре до 10 °С

 

Процессы, вызывающие загрязнение веществами 1-го и 2-го классов опасности, и также веществами, обладающими стойким запахом:

3

Основные рабочие, работающие с клеем, токопроводящим грунтом, герметикой и т.п.

только рук

Рабочие, работающие на операциях оплавки и рихтовки со свинцовистым припоем

тела и спецодежды

Сварщики и резчики, работающие с плазменными установками; рабочие, контролеры и ИТР, работающие на установках с рентгеновскими и радиоактивными излучениями

Процессы, требующие особых условий к соблюдению чистоты или стерильности при изготовлении продукции

4

Все работающие, связанные с производством особо чистой продукции

То же

4

5. ОБЪЕМНО-ПЛАНИРОВОЧНЫЕ И СТРОИТЕЛЬНЫЕ РЕШЕНИЯ

5.1. Определение общей площади

Общая площадь, занимаемая сборочно-сварочным производством, определяется как сумма производственной площади и площади, занимаемой проездами, энергетическими и сантехническими устройствами, кладовыми, антресолями и т.д.

Производственная площадь включает площадь рабочего места (рабочее место по ГОСТ 12.1.005-76), а также площадь, занимаемую относящимся к данному рабочему месту оборудованием, средствами механизации и местами складирования.

Для укрупненного расчета производственной площади в сборочно-сварочном цехе (участке) в табл. 12 приведены нормы на единицу оборудования в зависимости от площади проекции сборочной единицы.

Таблица 12

Площадь проекции сборочной единицы на горизонтальную плоскость (сборочно-сварочного приспособления), м2

Производственная площадь, м2

до 1,5

до 20

1,5 - 3,0

20 - 30

3,0 - 7,0

30 - 50

7,0 - 10,0

50 - 65

10,0 - 20,0

65 - 90

20,0 - 30,0

90 - 120

30 - 40

120 - 140

40 - 60

140 - 180

60,0 - 100,0

180 - 300

100,0 - 150,0

300 - 400

свыше 150

более 400

Примечание. Для ИТР и служащих, работающих в цехе, предусматриваются конторские помещения на площади цехов из расчета 4,5 м2 на 1 чел.

Площадь, занимаемая проездами, энергетическими и сантехническими устройствами, составляет 25 - 30 % от производственной площади сборочно-сварочного производства и уточняется компоновкой корпуса. Расчет площадей кладовых помещений определяется по табл. 31.

5.2. Основные строительные параметры зданий

Для размещения сборочно-сварочных цехов (участков) необходимо применять, как правило, одноэтажные здания. Габаритные схемы одноэтажных зданий следует принимать по ГОСТ 23837-79.

При установке оборудования в многоэтажных зданиях габаритные схемы зданий принимать по ГОСТ 24337-80.

Рекомендуемые унифицированные размеры пролетов и грузоподъемность подъемно-транспортных средств приведены в табл. 13.

В сборочно-сварочных цехах, в которых имеется большое количество транспортных операций, рекомендуется преимущественно применять грузоподъемные средства без опоры на несущие конструкции каркаса здания. Типы полов следует принимать в соответствии со СНиП 2.03.13-88. Для цехов с гибкими производственными системами, где используются робокары и микропроцессорная аппаратура, рекомендуется проектировать полы с полимерным покрытием на базе компаунда по типу ЭКР-22, за исключением тех сварочных участков и помещений, где применяются горючие жидкости.

При размещении сборочно-сварочных цехов в многоэтажных зданиях нагрузки на каркас принимать по утвержденным отраслевым нормам.

Нагрузки на пол приведены в приложении 7.

Таблица 13

Цех по производству

Характеристика сварного узла

Размеры пролетов, м

Максимальная грузоподъемность крана, т

Масса, т

Габариты, м

Сетка колонн

Высота до низа стропильных ферм

Высота до головки подкранового рельса

Одноэтажное здание

Тяжелых металлоконструкций типа станин, рам, платформ и т.п.

до 2

10,5´2,5

24´12

8,4; 9,5

-

5

2 - 10

1,5´3,5

24´12

10,8; 12,0; 14,4

8,15; 9,35; 12,2

15

 

15 - 25

16,0´7,0

24´12

10,8; 12,0; 14,4; 16,8

8,15; 9,35; 12,2; 14,6

50

 

30 - 175

24,0´5,0

24´12

14,4; 16,8; 19,2

12,2; 14,6; 16,0

100

30´12

150 и более

36´12

Пространственно-сложных объемно-штампованных конструкций

до 0,5

5,0´2,5

24´12

8,4; 9,6

-

3,2

''       3

12,5´2,5

24´12

9,6; 10,8

-

5,0

Разных узлов

''       0,3

2,5´1,0

18´12

6,0; 7,2; 8,4

-

3,2

24´12

Многоэтажное здание

Первый и средний этажи

Разных узлов (балки, небольшие емкости и т.п.)

-

-

12´6

7,2; 8,4

-

3,2

(12´12)*)

Верхний этаж

Пространственно-сложных объемных штамповосварных конструкций

от 0,6 до 0,6 - 2,5

24´12

8,4; 9,6

-

3,2

*) При обосновании в каждом конкретном случае

Примечания: 1. При реконструкции и техническом перевооружении цехов (участков), расположенных в существующих зданиях, допускается их размещение в помещениях высотой, менее указанной в таблице, при условии соблюдения норм и правил техники безопасности, удобства обслуживания и эксплуатации технологического и подъемно-транспортного оборудования.

2. Расчетную высоту пролета определять по формулам (7 - 11) и условиям, приведенным на рис. 1, 2 и в табл. 14, и принимать по ближайшему большому значению в табл. 13.

Унификацию высот многопролетных зданий проводить в каждом конкретном случае по максимальной высоте при обосновании.

3. Ширина пролетов 30 м и более, шаг колонн 18 м, высота головки рельса свыше 14,8 м, в том числе двухъярусное расположение кранов, принижается при соответствующих обоснованиях.

Таблица 14

Условное обозначение

Наименование

Нормы расчета

Н

Высота здания до низа конструкции

По рис. 1, 2 и табл. 13

Н1

Высота до головки рельса подкранового пути

То же

А1

Высота (от уровня пола) стола, на который устанавливается изделие

По паспорту оборудования или по аналогу

А2

Высота подъема над столом устанавливаемого изделия

500 мм

А3

Высота устанавливаемого изделия или тары

По габариту изделия, тары

А4

Расстояние от верхней поверхности изделия (тары) до низа крюка

0,3 ширины тары, не менее 1000 мм

А5

Резерв высоты подъема крюка

500 мм

А6

Расстояние от уровня головки рельса подкранового пути (конвейера) до низа крюка

По паспорту крана

А7

Расстояние от низа крюка до низа подвесного пути конвейера

То же

А8

Расстояние от верхней габаритной точки грузоподъемной машины, конвейера до низа фермы

Не менее 100 мм

К1

Максимальная высота оборудования над уровнем пола

По паспорту оборудования или по каталогу

К2

Расстояние от верхней габаритной точки оборудования до нижней габаритной точки грузоподъемной машины, конвейера или его ограждения

Не менее 400 мм

К3

Расстояние от нижней габаритной точки грузоподъемной машины до уровня головки рельса подкранового пути

По паспорту крана

К4

Расстояние от низа фермы до верхней габаритной точки наиболее высокого оборудования

По условиям монтажа и демонтажа оборудования, но не менее 100 мм

К5

Зона прохождения конвейера

Определяется конструктивно

Примечание. Для обеспечения безопасности следует транспортировать груз вдоль проезда, прохода не менее 3200 мм над уровнем пола.

а) Н1 = А1 + А2 + А3 + А4 + А5 + А6                                                (7)

б) Н = К + К + К                                                            (8)

Рис. 1. Пролеты, обслуживаемые мостовыми опорными кранами

а) Н = К1 + К4 или Н = К1 + К2 + К5                                   (9), (10)

б) Н = А1 + А2 + А3 + А4 + А5 + А7 + А8                                         (11)

Рис. 2. Бескрановые пролеты, обслуживаемые подвесными кранами, конвейерами

5.3. Нормы размещения оборудования

Нормы размещения оборудования учитывают требования научной организации труда (НОТ) на рабочем месте и правил техники безопасности. При организации рабочих мест следует использовать «Межотраслевые требования НОТ при проектировании», утвержденные Госкомтрудом СССР, ГКНТ, Госстроем СССР, а также типовые проекты ведущих отраслевых и всесоюзных проектно-технологических институтов:

«Типовые проекты организации рабочих мест газорезчиков и сварщиков», ЦПКТБ НОТ, Москва.

«Типовой проект организации рабочего места сварщика», ВПТИ Тяжмаш, Москва.

«Типовой проект организации рабочего места электросварщика на полуавтоматических линиях» (в среде углекислого газа), ВПТИ, Тяжмаш.

Нормы расстояний в табл. 15 - 25 указаны приблизительно к наиболее часто встречающемуся оборудованию (см. рис. 3 - 14). Все расстояния указаны от наружных габаритов оборудования, включающих крайние положения движущихся частей, оснастку, элементы механизации питания и управления, максимальные габариты обрабатываемых деталей, сварных узлов с учетом их установки и снятия.

Нормы расстояний учитывают возможность монтажа и демонтажа отдельных узлов при ремонте оборудования.

При установке оборудования на индивидуальные фундаменты расстояние от колонн и между оборудованием принимать с учетом конфигурации и глубины фундаментов оборудования и колонн.

Электрошкафы, пульты управления и т.п., расположение которых определено заводом-изготовителем, включается в габарит оборудования.

Расстояние для устанавливаемых вне габаритов оборудования электрошкафов, пультов управления и прочих элементов здания и оборудования принимать по ПУЭ.

При обслуживании оборудования мостовыми и подвесными кранами максимальное приближение этого оборудования к стенам и колоннам здания определяется с учетом крайних положений крюка крана.

При организации роботизированных технологических комплексов и участков соблюдать требования ГОСТ 12.2.072-82.

Уменьшение расстояний, указанных в настоящих нормах не допускается.

Условные обозначения к рис. 3 - 14

А - расстояние между фронтом станка, тыльной и боковой стороной станка, подвеской транспортного конвейера, местом складирования, проездом;

Б - ширина зоны размещения однопостовых источников питания, силовых шкафов, шкафов управления, слесарных станков, контрольной оснастки, наждачных станков, фильтровентиляционных агрегатов, местных технологических вентиляционных установок и вакуумных систем отсоса;

В - длина зоны складирования, равная длине тары, детали или сборочной единицы;

Г - ширина зоны складирования, равная ширине тары, детали или сборочной единицы;

Д - размер стенда по длинной стороне детали, сборочной единицы;

Е - габарит стенда по ширине детали, сборочной единицы;

Ж - ширина проезда;

И - ширина прохода;

К - расстояние от конструкции здания до боковой стороны оборудования;

Л - расстояние от конструкции здания до тыльной стороны оборудования;

М - проход между оборудованием и местом складирования;

Н - расстояние от оборудования до подвески транспортного конвейера.

Таблица 15

Обозначение размеров

А

Д

Е

К

У

Расстояние между оборудованием и элементами здания, м

1,5 - 2,0

определяется конструкцией изделия плк с 0,2 - 0,3

0,8 - 1,2

1,5 - 2,0

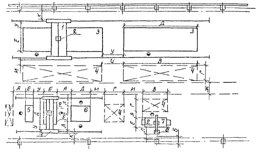
рис. 3. Размещение стендов, кантователей для сварки крупногабаритных узлов:

1 - двухстоечный кантователь; 2 - стенд для сборки; 3 - место складирования; 4 - универсальная площадка для сварщика с подвижной стрелой; 5 - полукозловой кран.

Таблица 16

Обозначение размеров

А

В, Г, Д, Е

И

У

Расстояние между оборудованием и элементами здания, м

1,5 - 2,0

определяется конструкцией изделия

2,0

2,0 - 3,0

Рис. 4. Размещение установки велосипедной тележки для автоматической сварки продольных и кольцевых швов цилиндрических изделий:

1 - направляющий рельс; 2 - велосипедная тележка с балконом; 3 - сварочный автомат; 4 - сварочный узел; 5 - стенд роликовый механизированный; 6 - место складирования.

Таблица 17

Обозначение размеров

А

Б

В, Г, Д, Е

Ж

И

К

Л

М

У

Расстояние между оборудования и элементами здания, м

1,5 - 2,0

1,5

определяется конструкцией изделия

3,0 - 5,0

2,0

1,2

1,2

1,5 - 2,0

0,8 - 1,2

Рис. 5. Размещение установок автоматической сварки и резки с поворотными колоннами и самоходными порталами:

1 - портал самоходный; 2 - автомат сварочный или резак; 3 - универсальный цепной кантователь или стол термической резки; 4 - место складирования; 5 - стенд; 6 - роликовый стенд; 7 - кантователь; 8 - поворотная колонна.

Таблица 18

Обозначение размеров

А

К

Л

М

Н

Расстояние между оборудованием и элементами здания, м

1,2 - 1,5

1,2

1,2 - 2,0

0,8

0,3 - 0,5

Рис. 6. Размещение оборудования для электронно-лучевой сварки:

1 - моечно-сушильный агрегат; 2 - установка для размагничивания; 3 - пресс для запрессовки; 4 - монорельс; 5 - установка для электронно-лучевой сварки; 6 - подвесной грузонесущий конвейер; 7 - ограждающие элементы помещения для электронно-лучевой сварки; 8 - место складирования; 9, 10, 11 - шкафы управления и источники питания.

Примечание. Размеры уточняются по паспортным данным оборудования.

Таблица 19

Обозначение размеров

А

Л

М

П

Р

Расстояние между оборудованием и элементами здания, м

1,5 - 2,0

0,8 - 1,2

0,8 - 1,0

определяется конструктивно

0,1

Рис. 7. Размещение оборудования для сварки длинномерных деталей:

1 - рольганг для подачи труб; 2 - установка для сварки труб; 3 - накопитель.

Таблица 20

Обозначение размеров

Б

К

Л

Расстояние между оборудованием и элементами здания, м

1,3 - 1,5

0,8

0,8

Рис. 8. Размещение источников питания (рекомендуемое):

1 - однопостовой источник питания; 2 - многопостовой источник питания; 3 - ограждение сетчатое.

Примечания: 1. Размеры ограждения зависят от габаритов источника питания и условий их обслуживания.

2. При недостаточном количестве свободной площади между колоннами допускается размещение однопостовых источников на специальных балконах. При этом пусковая регулирующая аппаратура источников должна быть установлена на рабочих местах.

Таблица 21

Обозначение размеров

К

М

П

Т

Расстояние между оборудованием и элементами здания, м

1,6

0,8

определяется конструктивно

0,3 - 0,5

Рис. 9. Размещение установки электрошлаковой сварки:

1 - роликовый стенд механизированный; 2 - направляющие рельсы; 3 - установочная тележка; 4 - колонна с реечным устройством; 5 - автомат сварочный; 6 - сварочный узел; 7 - место складирования.

Таблица 22

Обозначение размеров

А

И

К

Л

М

У

Т

Расстояние между оборудованием и элементами здания, м

1,2

0,8

1,0

0,8

1,0

1,0 - 2,0

0,8 - 1,0

Рис. 10. Размещение автоматов для сварки кольцевых швов:

1 - сварочный автомат; 2 - место складирования.

Размещение средств механизации

Таблица 23

Обозначение размеров

А

К

Р

С

У

П

Расстояние между оборудованием и элементами здания, м

1,2 - 1,5

0,8

0,2 - 0,3

0,8 - 1,0

0,8 - 1,0

определяется конструктивно

Рис. 11. Размещение напольных конвейеров:

1 - напольный конвейер; 2 - стол, оборудование.

Таблица 24

Обозначение размеров

А

И

М

Н

П

Ф

Расстояние между оборудованием и элементами здания, м

1,2 - 2,0

0,8

0,8

0,5 - 0,8

определяется конструктивно

0,2 - 0,3

Рис. 12. Размещение подвесных конвейеров:

1 - оборудование; 2 - подвеска; 3 - конвейер; 4 - склад.

Таблица 25

Обозначение размеров

А

В, Г

Ж

К

С

Расстояние между оборудованием и элементами здания, м

1,5 - 2,0

определяется конструктивно

3,0 - 5,0

1,0

6,5 - 7,0

Рис. 13. Размещение конвейеров сборки, рихтовки и отделки изделий:

1 - конвейер; 2 - обрабатываемое изделие.

Рис. 14. Гибкий автоматический участок сварки мелких узлов:

1 - высотный склад штамповок и узлов; 2 - кран-балка; 3 - рольганг; 4 - цепной конвейер; 5 - машина сварочная универсальная; 6 - робот промышленный для загрузки; 7 - робот для сварки; 8 - накопитель; 9 - стол поворотный для приспособлений; 10 - многоэлектродная машина; 11 - конвейер доварки; 12 - ограждение; 13 - подающее транспортное устройство.

П - ширина зоны накопителя, конвейера (определяется конструктивно);

Р - расстояние между конвейером и оборудованием;

С - расстояние между конвейерами;

Т - расстояние между тыльной и боковой сторонами оборудования или стендов;

У - расстояние между боковыми сторонами оборудования или стендов;

Ф - расстояние между стендом складирования и подвеской транспортного конвейера.

Пример размещения оборудования и средств автоматизации для сварки мелких узлов на гибком автоматическом участке (ГАУ) с использованием роботехники, высотных складов с штабелерами и автоматической выдачей деталей к рабочим позициям показан на рис. 14.

Расстояние от стен и колонн до оборудования следует принимать с учетом возможности обслуживания мостовыми или подвесными кранами.

При расположении оборудования, рабочих мест у стен с остеклением, протирка которых производится с помощью напольных механизированных уборочных машин, ширина проезда определяется по габаритным размерам средств механизации, но не менее 1500 км.

Нормы расстояния (см. табл. 15 - 25) между соседними единицами оборудования не распространяются на гибкие производственные системы, роботизированные и комплексно-автоматизированные участки. Эти расстояния определяются планом расположения оборудования конкретных участков, с учетом конструкции оборудования транспортно-складских систем, систем управления и условий обслуживания.

При создании роботизированных технологических комплексов и участков следует соблюдать требования ГОСТ 12.2.072-82.

Условные изображения и обозначения на планах расположения технологического оборудования должны соответствовать ГОСТ 21.107-78.

Нормы ширины проездов принимать по табл. 26.

Таблица 26

Вид проезда

Транспортные средства

Ширина проезда, мм

при одностороннем движении

при двухстороннем движении

Магистральный

Напольное:

 

 

 

электротележки,

-

4500

 

электротягачи,

 

 

 

электропогрузчики

 

 

 

автопогрузчики,

-

5500

 

автомашины,

 

 

 

уборочные машины

 

 

Магистральный для приборостроительной промышленности

Все виды напольного электротранспорта

-

3000

Цеховой

Все виды напольного электротранспорта, кроме робокар

А*) + 1400

*) + 1600

Железнодорожный ввод

Вагоны грузовые

6000

-

Пешеходный проход

-

-

1400

*) А - ширина груза (транспорта), мм.

Примечания: 1. Перегрузочные платформы (тележки) на рельсовом пути не должны размещаться на проездах.

2. Количество и расположение проездов, проходов определяется компоновочным планом корпуса.

3. При вводе железнодорожного пути в здание должна быть обеспечена возможность обслуживания вагонов грузоподъемными механизмами (мостовыми кранами, кран-балками и т.), заезд локомотива в цех запрещается.

4. Расстояние от границы проезда тыльной стороны оборудования 500 мм по ГОСТ 12.3020-80.

6. НОРМЫ РАСХОДА, ТРЕБОВАНИЯ К ПАРАМЕТРАМ И КАЧЕСТВУ МАТЕРИАЛОВ И ЭНЕРГОНОСИТЕЛЕЙ

6.1. Основные материалы

Качество материалов регламентируется требованиями государственных и отраслевых стандартов.

К основным относятся материалы, присоединяемые и входящие в конструкции изделия методами сборки и сварки.

Порядок расчета расхода электродной проволоки приведен в приложении 1.

6.2. Вспомогательные материалы

К вспомогательным материалам, не входящим в состав сварных единиц и изделий, относятся флюсы, вольфрамовые и угольные электроды, упаковочные, смазочные, обтирочные и другие материалы.

Расход вспомогательных материалов следует принимать по ведомственным нормам расхода вспомогательных материалов.

Расход флюса (Ф) рассчитывается по следующей формуле:

Ф = (1,2 - 1,4)Э,                                                         (12)

где Ф, Э - расход флюса и электродной проволоки соответственно, кг.

6.3. Нормы расхода энергоносителей

6.3.1. Электроэнергия

Годовой расход электроэнергии при укрупненных расчетах определяется по следующим формулам:

                                                         (13)

                                                  (14)

                                                       (15)

где Рм - максимальная расчетная нагрузка;

Тм - годовое количество часов использования максимума электрических нагрузок, ч;

Рн - номинальная (установленная) мощность;

ПВн - паспортная продолжительность включения;

Кс - коэффициент спроса;

Sн - паспортная мощность, кВ · А;

cosjн - коэффициент мощности.

Примечание. Значения Тм и Кс принимать по отраслевым руководящим материалам.

6.3.2. Сжатый воздух

Требования к параметрам сжатого воздуха приведены табл. 27.

Таблица 27

Параметры

Предельные значения

Примечания

Давление, МПа

0,4 - 0,6

-

Колебания давления, %

±15

По данным ВНИИ Гидропривод, ГОСТ 17433-80

Класс загрязненности

5

Температура окружающей среды, °С

5 - 40

ГОСТ 297-80

Влажность, г/кг:

0,2 - 0,3

В установках силикагелевых, холодильных соответственно ГОСТ 297-80

абсолютная, кг

0,7 - 1,05

относительная, %

80

Расход сжатого воздуха при уточненных расчетах принимается по паспортным данным сварочного оборудования и по техническим характеристикам приспособлений и пневмоинструмента с учетом использования числа ходов, времени работы и т.д.

Расход сжатого воздуха при укрупненных расчетах приведен в приложении 2.

6.3.3. Газоснабжение (на технологические нужды)

Снабжение газом рабочих постов следует предусматривать от распределительных рамп при суммарном часовом расходе газа по цеху или участку до 30 м3, а более 30 м3 - от станции газоснабжения.

Рампы с баллонами, наполненными горючими газами, необходимо устанавливать снаружи зданий у глухих простенков в металлических шкафах с прорезями для проветривания или за сетчатыми ограждениями.

Устройство газовых коммуникаций должно соответствовать СНиП 2.04.08-87, «Правилам устройства и безопасной эксплуатации трубопроводов для горючих, токсичных и сжиженных газов» и «Правилам безопасности в газовом хозяйстве».

Газопроводы с горючими газами следует прокладывать в помещениях, где они потребляются. Прокладка транзитных трубопроводов через помещения других производств не допускается.

Примечание. При периодических работах с часовым расходом горючего газа до 10 м3 допускается осуществлять снабжение от одиночных баллонов при общем количестве не более пяти штук, устанавливаемых в помещениях, что должно оформляться соответствующим разрешением.

При разработке плана расположения оборудования потребители однородных газов следует группировать.

При укрупненных расчетах расход газов и их смесей при дуговой сварке рекомендуется принимать по приложению 3, при газовой сварке - по приложению 4.

6.3.4. Водоснабжение (на технологические нужды)

Система водоснабжения сварочного оборудования должна быть оборотной.

Расход воды и требования к качеству воды для охлаждения электродов, приборов и других элементов оборудования принимать по паспортным данным оборудования.

Для оборудования, к которому предъявляются требования повышенной стабильности параметров режима сварки, применяется вода для охлаждения со следующими параметрами:

жесткость не более 5 мг, экв./л;

в том числе карбонатная до 3,5 мг, экв./л;

взвешенных частиц не более 20 мг/л;

РН - 5,5 - 7,5 мг/л;

удельное электрическое сопротивление не менее 2000 Ом/см;

Давление охлаждающей воды на входе должно быть 0,25 - 0,3 МПа (2,5 - 3,0 кгс/см2) при температуре 15 - 25 °С.

Сброс воды от оборудования в оборотную систему должен быть по системе «слив без разрыва струи», т.е. с остаточным напором, если нет других указаний в стандарте или технических условиях на конкретную машину, при этом наличие датчиков давления и температуры охлаждающей воды - обязательно.

Для укрупненного расчета часовой расход воды принимать по приложению 5.

7. НОРМЫ ЗАПАСОВ И СКЛАДИРОВАНИЯ

Складирование, хранение и транспортировку заготовок и деталей следует осуществлять в оборотной унифицированной или специализированной таре (ящиках, поддонах, контейнерах), которая обеспечивает сохранность геометрических параметров заготовок.

Типы, основные параметры и размеры металлической производственной тары следует принимать по ГОСТ 14861-74.

Автоматизированные склады проектировать с учетом их работы в ГПС, учет грузов должен осуществляться ЭВМ.

7.1. Нормы запаса хранения узлов на складах цехов с крупносерийным и массовым производством

Величина запаса хранения деталей или сборочных единиц Q (в штуках или тоннах) определяется нормой запаса хранения и темпом производства по формуле

Q = Нx ´ q,                                                                   (16)

где Н - норма запаса хранения узлов, ч (cм. табл. 28, 29);

q - темп производства, шт./ч или т/ч.

Таблица 28

Узлы

Нормы запаса хранения в зависимости от годового выпуска тыс. комплектов, ч

Способ хранения

до 10

50

100

200 и более

 

Склад перед окраской

 

Крупные пространственно-объемные штампованно-сварные

-

1,5 - 2,0

-

-

Подвесной склад

Сварные конструкции (рамы, платформы, каркасы)

2 - 2,5

1,5 - 2

1,0 - 1,5

1,0

То же

Мелкие и средние

5 - 6

3,5 - 5

2,5 - 3

2 - 2,5

Подвесной или высотный стеллажный склад

 

Промежуточные склады перед сборкой и сваркой

 

Крупные

2 - 3

1,5 - 2

1 - 1,5

0,5 - 1

В механизированном складе-накопителе

Средние

3 - 4

2 - 3

1,5 - 2

1 - 2

Подвесное или напольное в обменной таре

Мелкие

14 - 16

8 - 10

5 - 8

2 - 3

Напольное в обменной таре или на стеллажах

Примечания: 1. Нормы запаса хранения приведены для поточного производства на один узел.

2. Если окрасочному производству необходим запас хранения больше указанных в таблице, площади для дополнительного хранения узлов в несгораемой таре следует предусмотреть в цехе окраски.

3. Тяжелые узлы массой более 500 кг хранятся без тары на полу или на стеллажах.

4. Подвесное хранение следует применять при необходимости циркуляции запасов хранения на грузонесущем цепном или толкающем конвейере при автоматическом их учете, пополнении и расходовании.

5. При условии работы ГПС цеха сварки в три смены и цеха окраски в две смены запасы хранения узлов перед окраской должны быть рассчитаны не менее чем на восемь часов работы.

Нормы запаса хранения деталей (штамповок) перед рабочими местами приведены в табл. 29.

Таблица 29

Детали (штамповки)

Нормы запаса напольного хранения в зависимости от годового выпуска в тыс. комплектов, ч

Способ хранения

до 10

50

100

200 и более

Крупные (панели пола, крыши, боковины, лонжероны и др.)

8 - 12

2 - 3

1,5 - 2

0,5 - 1,0

Специальная тара

Средние (поперечины рамы, панели бензобаков, корпуса глушителей, воздушных баллонов и др.)

10 - 16

4 - 5

2 - 3

1,5 - 2,0

Стандартная тара

Мелкие (кронштейны, патрубки, фланцы, усилители и др.)

недельный

до 3 суток

16

8

Стеллажи

Примечание. При открытом хранении грузов в сгораемой таре на стеллажах (в том числе на рис. 14) запас хранения не должен превышать сменной потребности.

7.2. Расчет и нормы площадей складов цехов с крупносерийным и массовым производством

Площадь склада при хранении запаса в штабелях (м2) следует определять по формуле

                                                                  (17)

где Q - величина хранящихся деталей или сборочных единиц, т;

d - грузоподъемность полезной площади склада, т/м2;

λ - коэффициент использования площади склада (0,45 - 0,55).

Площадь склада при тарном хранении, м2 определяется выражением

                                                              (18)

где Q - вместимость тары, шт./м3 или т/м;

h = t · в - высота штабеля, м (t - высота тары, м по ГОСТ 14861-74; в - количество ярусов, шт.;

λ - коэффициент использования площади склада (при проездах и проходах шириной 3,5 - 4 м между блоками штабелей) принимать 0,5 - 0,6 при обслуживании напольным транспортом и 0,55 - 0,7 при обслуживании верхним транспортом.

7.3. Расчет и нормы площадей складов для цехов единичного, мелкосерийного и среднесерийного производства

Общая площадь складов рассчитывается по формуле

                                                             (19)

где S - общая площадь склада, м2;

Q - годовое поступление материалов на склад, т;

t - норма запаса материалов, календарные дни;

q - средняя нагрузка на площадь складирования (площадь, непосредственно занятая хранящимся грузом на стеллажах и в штабелерах), т/м2;

K - коэффициент использования площади склада;

365 - календарное число дней в году.

Значения входящих в формулу величин приводятся в табл. 30.

Таблица 30

Склады

Габарит

Нормы запаса хранения в календарных днях

Способ хранения

Средняя нагрузка на площадь складирования, т2

Высота хранения, м

Единичное и мелкосерийное

Среднесерийное

до 2,5

до 3,0

до 2,5

2,5 - 4,0

4,0 - 6,0

6,0 - 8,0

Комплектации заготовок и деталей

Крупный

3 - 4

2 - 3

поштучно на стеллажах

3,0

-

-

-

-

-

-

-

2,5

4,0

6,0

8,0

 

Средний и мелкий

4 - 6

3 - 4

в таре на стеллажах

-

3,0

-

-

-

-

-

-

2,5

4,0

6,0

8,0

Сварных узлов

Крупный

3 - 4

2 - 3

поштучно на стеллажах

1,2

-

-

-

-

-

-

-

1,0

1,5

1,8

2,5

 

Средний и мел

4 - 6

3 - 4

в таре на стеллажах

-

1,5

-

-

-

-

-

-

1,0

1,5

1,8

2,5

Примечания: 1. Приведенные в табл. 30 нагрузки на 1 м2 площади складирования относятся к серийному производству. Для единичного и мелкосерийного производства следует принимать поправочные коэффициенты 0,8.

2. Большие значения норм запаса принимать для производства с выпуском более 30 тыс. т.

3. Коэффициент использования площади при обслуживании напольным транспортом 0,3, при обслуживании верхний транспортом 0,4.

7.4. Нормы расчета площадей цеховых кладовых

Площади кладовых принимать по табл. 31.

Таблица 31

Кладовая

Назначение

Единица измерения

Площадь по типам производства, м2

Мелкосерийное, среднесерийное

Массовое, крупносерийное

Инструментально-раздаточная (ИРК)

Хранение и выдача инструмента, приборов, сменных рабочих органов оборудования

На единицу технологического оборудования

0,5

0,3

Вспомогательных материалов

Хранение и выдача вспомогательных материалов

То же

0,15

0,1

Сварочных материалов

Хранение и выдача электродов, флюсов, перемотка сварочной проволоки и кассет

На единицу оборудования дуговой газовой сварки

0,2

0,1

Оснастки

Хранение и выдача

На один сварной узел

0,4

0,6

Контрольных пунктов ОТК

Хранение и выдача шаблонов, мастер-макетов, периодические измерения сварных узлов

На один контрольный стенд

5

15

Примечание. В нормах не учитываются вспомогательные помещения ремонтных служб.

8. УРОВЕНЬ МЕХАНИЗАЦИИ И АВТОМАТИЗАЦИИ ПРОИЗВОДСТВА

Расчет уровня механизации и автоматизации производства следует производить по «Методическим указаниям по оценке степени и уровня автоматизации производства, предусматриваемой в проектах на строительство новых, реконструкцию и техническое перевооружение действующих предприятий», утвержденным постановлением Государственного комитета СССР по науке и технике от 7 августа 1985 г. 425.

Уровень механизации и автоматизации основных технологических процессов должны составлять для мелкосерийного и серийного производства не ниже 0,55, для крупносерийного и массового производства не ниже 0,7.

9. УРОВЕНЬ СПЕЦИАЛИЗАЦИИ И КООПЕРИРОВАНИЯ ПРОИЗВОДСТВА

При проектировании промышленных комплексов, промузлов, производственных объединений, их расширения или реконструкции предусматривается создание общего специализированного предприятия (или цеха в составе одного из предприятий) по производству металлоконструкций.

При наличии или строительстве в одном территориальном районе нескольких предприятий отрасли на одном или на нескольких из них для однотипной продукции создаются специализированные подразделения для кооперирования между ними.

В основу внутризаводской специализации следует принимать принцип групповой обработки деталей, подобных по конструктивному и технологическим признакам, организуя при этом специализированные поточно-механизированные линии, участки, оснащенные комплексными средствами механизации и автоматизации.

Для обеспечения передового технического уровня производства проектируемых цехов выявлять резервы повышения специализации и кооперирования путем анализа чертежей на технологичность, унификацию и нормализацию отдельных деталей и узлов расчетных программ.

10. МАТЕРИАЛОЕМКОСТЬ И ЭНЕРГОЕМКОСТЬ ПРОДУКЦИИ

В проектах следует применять мероприятия в целях снижения расходов основных и вспомогательных материалов и видов энергии.

Для снижения расходов основных материалов (сварочной проволоки) необходимо применять для защиты сварочной дуги смеси, состоящие из различных газов (аргона, кислорода, углекислого газа), что позволит снизить на 3 - 5 % разбрызгивание металла и соответственно увеличить массу наплавленного металла.

Применение сварочной проволоки с покрытием редкоземельными элементами позволяет также снизить расход ее до 3 %.

Применение многопостовых источников питания позволяет снизить потребление энергии на 3 - 5 %.

Применение промышленных роботов для контактной точечной сварки комплектно с клещами со встроенным трансформатором позволяет снизить потребление энергии на 30 - 50 %.

Нормы энергоносителей на 1 т выпуска сварных конструкций для укрупненных расчетов приведены в табл. 32.

Таблица 32

Энергоносители

Расход на 1 т выпуска

тонколистовых конструкций

толстолистовых конструкций

Электроэнергия, кВт · ч

500 - 900

100 - 300

Сжатый воздух, м3

450 - 700

50 - 150

Углекислый газ, м3

3 - 5

20 - 80

Вода (оборотная), м3

10 - 50

2 - 10

11. ПРОТИВОПОЖАРНЫЕ ТРЕБОВАНИЯ

Категории помещений по взрывопожарной и пожарной опасности и классы взрывоопасных и пожароопасных зон должны устанавливаться в соответствии с ведомственными нормами технологического проектирования или специальными перечнями помещений, утвержденными министерствами и ведомствами в установленном порядке.

Необходимость оборудования помещений автоматическими средствами пожаротушения и пожарной сигнализации определяется в соответствии с отраслевыми перечнями, согласованными с Госстроем СССР и ГУП МВД СССР.

Первичные средства пожаротушения (огнетушители, ящики с песком и др.) следует принимать по нормам «Типовых правил противопожарной безопасности для промышленных предприятий».

Для противопожарной защиты автоматизированных линий и робототехнологических комплексов на базе мини-ЭВМ следует предусматривать передвижные углекислотные установки из расчета одна установка ОУ-80 на 1500 м2 производственной площади.

Общие требования безопасности к конструкциям ПР, РТК, РТИ, организации и эксплуатации роботизированных технологических комплексов и участков должны соответствовать ГОСТ 12.2.003-74, 26054-85, 12.2.072-32.

Помещения систем автоматизированного управления технологическими процессами на базе ЭВМ необходимо отделять от других помещений противопожарными стенами 2-го типа с выполнением противопожарных требований, предусмотренных СН 512-78.

Отработанные масла подлежат сбору и регенерации на общезаводских установках. Отходы от регенерации, промасленная ветошь, керосин подлежат сжиганию в спецустановках.

Для обезжиривания деталей и изделий следует применять пожаробезопасные растворы и препараты.

12. СПЕЦИАЛЬНЫЕ ТРЕБОВАНИЯ ТЕХНОЛОГИЧЕСКИХ ПРОЦЕССОВ К ПОМЕЩЕНИЯМ, СООРУЖЕНИЯМ И ОБОРУДОВАНИЮ

При проектировании сборочно-сварочных цехов следует строго руководствоваться действующими нормами, инструкциями и правилами проектирования, относящимися к вопросам техники безопасности, пожарной безопасности, производственной санитарии и охране труда.

12.1. Требования к помещениям

Организация рабочих мест и трудового процесса должна обеспечивать выполнение эргономических требований к рабочим местам в соответствии с ГОСТ 12.2.049-80, 12.2.032-78, 12.2.033-78, «Санитарными правилами при сварке, наплавке и резке металлов» и «Гигиенической классификацией труда» 4137-86 Минздрава СССР.

Рабочие места сварки следует ограждать экранами из несгораемых материалов в соответствии с требованиями «Правил пожарной безопасности при проведении сварочных и других работ на объектах народного хозяйства».

Для мелких изделий стационарные рабочие места сварщиков следует оборудовать в кабинах с открытым верхом. При сварке в защитных газах обшивка кабины по всему периметру не должна доходить до пола на 100 мм, а высота светового экрана должна быть не менее 2 м. Обшивка кабин и световые экраны должны выполняться из несгораемых материалов.

Площадь кабины должны быть достаточной для размещения сварочного оборудования, приспособлений и мест складирования деталей и готовых узлов. Свободная площадь в кабине для сварщика должна составлять не менее 4,5 м2.

Машины плазменной резки следует ограждать сплошными перегородками из несгораемых материалов высотой не ниже 2,2 м, в которых входы завешивают шторами из несгораемых материалов.

Размещение в одной кабине двух или более сварочных столов допускается при условии разделения кабины светозащитными экранами.

При сварке и наплавке с предварительным подогревом размещение нескольких сварочных постов в одной кабине не разрешается.

Источники питания и шкафы управления для оборудования допускается размещать как на полу, так и на опорных площадках над оборудованием или в «мертвой зоне» пролетов сборочно-сварочных цехов при обосновании. Размеры площадок должны позволять обслуживания устанавливаемых на них источников питания, шкафов управления, рессиверов и т.п.

Многопостовые сварочные источники питания должны выделяться перегородками (решетками, сетками) из несгораемых материалов высотой не менее 1,7 м. Источники питания для плазменной обработки допускается располагать вне производственных помещений. В этом случае управление ими должно осуществляться дистанционно со специальных пультов.

Помещения для электронно-лучевой сварки должны соответствовать требованиям «Санитарных правил при сварке, наплавке и резке металлов» Минздрава СССР.

Неразрушающий контроль качества сварных швов ионизирующим излучением - рентгеновским и радиоактивным, излучением линейных ускорителей бета-частиц и т.п. - оказывает биологическое воздействие на организм человека.

В составе служб неразрушающего контроля качества входят лаборатории радиационной дефектоскопии, которые располагаются в специальных защитных помещениях. Толщина защиты помещений - камер зависит от энергии источника излучения и рассчитывается в каждом конкретном случае специализированной организацией. Площади и размеры камер определяются габаритом контролируемых изделий, применяемой аппаратурой.

Контроль изделий непосредственно в потоке их изготовления производится в защитных боксах-камерах.

Сварку и наплавку с использованием хромоникелевых сварочных материалов следует производить в изолированных помещениях. Выполнение этих работ допускается в общих помещениях при условии, что расход хромоникелевых сварочных материалов по отношению к расходу других сварочных материалов на стационарных постах, оборудованных местными отсосами, не превышает 5 % и составляет 0,25 г/ч на 1000 м3 объема помещений.

12.2. Требования к отоплению, вентиляции и кондиционированию воздуха

Вентиляцию, отопление и кондиционирование воздуха производственных помещений зданий и сооружений (включая кабины крановщиков, помещения пультов управления и т.п., изолированные помещения) следует проектировать с обеспечением на постоянных рабочих местах и в рабочей зоне во время проведения основных и ремонтно-вспомогательных работ метеорологических условий (температуры, относительной влажности, скорости движения воздуха), а также содержания вредных веществ в воздухе в соответствии с требованиями ГОСТ 12.1.005-76, дополнениями к СН 245-71 и перечнем ПДК и СНиП II-33-75.

Параметры микроклимата в производственных помещениях должны предусматриваться в соответствии с ГОСТ 12.1.005-76 и «Санитарными нормами» 4288-86 Минздрава СССР с учетом категории тяжести выполняемых работ и наличия или отсутствия теплоизбытков.

Вытяжная вентиляция должна быть местной и общеобменной. Местные отсосы, независимо от габарита изделий, должны предусматриваться к каждому оборудованию и рабочему месту, где есть выделения вредных веществ.

Конструкции местных отсосов могут быть различными и определиться габаритом изделия, организацией рабочих мест, сварочными материалами и видом сварочных работ.

Местные отсосы в зависимости от своей конструкции улавливают 75 - 90 % вредных веществ (для РТК до 90 %); оставшиеся в помещении 10 - 25 % должны разбавляться до предельно допустимой концентрации (ПДК) с помощью общеобменной вентиляции. Допустимые уровни наиболее часто встречающихся в воздухе сварочных цехов вредных веществ следует определять по отраслевым нормативным документам. Вытяжные системы должны быть оборудованы фильтрами для очистки воздуха от сварочных аэрозолей с выбросом его в цех или в атмосферу.

В целях уменьшения затрат на вентиляцию следует предусматривать рециркуляционные установки отсасываемого воздуха.

Подачу приточного воздуха необходимо осуществлять следующим образом: рассредоточенно - при сварке в среде защитных газов; сосредоточенно - в верхнюю зону во всех остальных случаях.

При газоплазменной обработке металлов сжиженными газами 2/3 объема воздуха следует удалять из нижней зоны помещения, 1/3 - из верхней (естественным и механическим путем).

Вентиляцию при сварке внутри замкнутых и полузамкнутых пространств следует выполнять по «Санитарным правилам при сварке, наплавке и резке металлов» Минздрава СССР.

Общеобменной и местной вентиляцией из сварочных цехов выбрасывать воздух в атмосферу можно при условии, что концентрация их в воздухе населенных пунктов не превышает предельно допустимых концентраций регламентируемых СНиП 2.04.05-86.

12.3. Защита от шума и вибрации

На постоянных рабочих местах и в рабочих зонах цехов уровни звукового давления в октавных полосах частот в дБ, уровни звука и эквивалентные уровни звука в дБА не должны превышать допустимых по ГОСТ 12.1.003-83.

В качестве мероприятия по снижению шума рекомендуется:

моторные преобразователи токов выделять в отдельные звукоизолированные помещения, выполняемые из несгораемых или трудносгораемых материалов;

к выхлопным каналам струи сжатого воздуха пневмоцилиндров сварочного оборудования и приспособлений необходимо подключать глушители шума;

при плазменной обработке и металлизации изделий стены кабин должны быть покрыты звукопоглощающей облицовкой из несгораемых или трудносгораемых материалов.

При невозможности добиться снижения шума указанными средствами рекомендуется, по согласованию с органами и учреждениями санэпидемслужбы, применять индивидуальные средства защиты (наушники, противошумные каски, вкладыши, заглушки).

Значения величины вибрации не должны превышать пределов, установленных «Санитарными нормами допустимых уровней шума на рабочих местах» 3223-85 Минздрава СССР.

При использовании механизированных ручных инструментов следует руководствоваться ГОСТ 17770-86.

13. НОРМЫ ИСПОЛЬЗОВАНИЯ И ХРАНЕНИЯ ОТХОДОВ И ПОПУТНЫХ МАТЕРИАЛОВ

Проектирование технологического процесса изготовления металлоконструкций следует производить с учетом получения минимальных отходов основных и вспомогательных материалов.

Выбор необходимых решений по механизации уборки и транспортированию отходов следует производить в зависимости от вида и количества отходов.

Неиспользуемые отходы должны быть рассортированы по маркам материала и габаритам.

Хранение отходов предусматривать в контейнерах.

Неиспользуемые в сварочном производстве отходы могут быть использованы в металлургическом производстве.

14. НОРМЫ, РЕГЛАМЕНТИРУЮЩИЕ БИОЛОГИЧЕСКУЮ ЗАЩИТУ ОКРУЖАЮЩЕЙ ПРИРОДНОЙ СРЕДЫ

В сварочном производстве к процессам, сопровождающимся опасными и вредными производственными факторами, кроме перечисленных в ГОСТ 12.3.003-86, относятся рентгеновские и радиоактивные излучения при выполнении электронно-лучевой сварки и неразрушающего контроля сварных швов. При применении указанных процессов следует соблюдать требования «Основных санитарных правил работы с радиоактивными веществами и другими источниками ионизирующих излучений» и «Санитарных правил по радиоизотопной дефектоскопии» 1171-74, ГОСТ 12.1.006-76, ГОСТ 12.3.003-86».

15. ПРОИЗВОДИТЕЛЬНОСТЬ ТРУДА И ТРУДОЕМКОСТЬ

15.1. Производительность труда

Производительность труда определяется показателями выработки продукции в год (годовой выпуск) на одного работающего, выраженными в штуках и в тоннах, а также трудоемкостью изготовления одной тонны сварных конструкций по следующим формулам (20), (21), (22):

                                                                    (20)

где В1 - годовая выработка продукции на одного работающего;

N - годовая программа, шт. или т;

Р - количество работающих, чел.

                                                            (21)

где В2 - годовая выработка на одного работающего, т;

q - масса комплекта сварных конструкций, т;

Кзап - коэффициент, учитывающий потребность в запасных частях;

                                                                 (22)

где Т - трудоемкость изготовления одной тонны сварных конструкций;

Т - трудоемкость годовой программы, чел. ч;

N - годовая программа, т.

15.2. Технологическая трудоемкость

Технологическая трудоемкость - сумма трудовых затрат на выполнение объема работ по изготовлению выпускаемого изделия.

Расчет технологической трудоемкости изделия осуществляется следующим образом:

                                                       (23)

где ТI - трудоемкость изготовления узлов изделия на автоматических и механизированных линиях, определяемая по расстановке рабочих (формула 27);

Пр - плотность бригады (см. табл. 34);

t - штучное время изготовления узлов изделия на отдельно стоящем оборудовании;

n, m - количество сборочных единиц в комплекте, изготовляемых соответственно на линиях и отдельно стоящем оборудовании.

Штучное время изготовления узлов изделия (t) на отдельно стоящем оборудовании подсчитывается по формуле

t = tоп · К,                                                                     (24)

где tоп = tоoн + tвсп       (25) - оперативное время на одну операцию, мин.;

tоoн - машинное время для всех видов контактной сварки, сварки трением, время горения дуги при всех видах дуговой сварки, время, затраченное на образование сварного шва (реза) при газовой сварке (резке) и т.д.;

tвсп - вспомогательное время, связанное с образованием сварного шва (реза) и время, затраченное на сборку деталей, их фиксацию, крепеж, подборку, подгонку, съем готового узла и укладку его в тару или навеску на конвейер;

       (26) - поправочный коэффициент к оперативному времени на организационно-техническое обслуживание рабочего места (Аобс) и перерывы на отдых и личные надобности (Аот.л).

Значения коэффициента К приведены в табл. 33.

Основное время (tосн) вспомогательное (tвсп) принимается по отраслевым нормативам времени на сварочные и слесарно-сборочные работы.

Время (в % от оперативного) на обслуживание рабочего места (Аобс) и личные надобности (Аот.л) принимать по табл. 33.

Таблица 33

Вид сварки

Оборудование

Аобс, %

Аот.л, %

Значение поправочного коэффициента, К

Грузооборот деталей в смену, т

3

7

12

3

7

12

Точечная и рельефная

Стационарное

3

8

10

12

1,11

1,13

1,15

Подвесное

4

11

13

15

1,15

1,17

1,19

 

Специальное

6

6

8

10

1,12

1,14

1,16

Роликовая

Стационарное

5

8

10

12

1,13

1,15

1,17

 

Подвесное

6

11

13

15

1,17

1,19

1,21

Стыковая

С неавтоматическим управлением

5

11

13

15

1,16

1,18

1,20

 

С автоматическим управлением

7

7

10

13

1,14

1,17

1,20

Трением

Всех видов

5

6

8

10

1,11

1,13

1,15

Дуговая

Для ручной сварки

3

11

13

15

1,14

1,16

1,18

То же

Для сварки под флюсом с автоматическим управлением

6

6

8

10

1,12

1,14

1,16

''

То же, с полуавтоматическим управлением

5

8

10

13

1,13

1,15

1,18

''

Для сварки в защитных газах с полуавтоматическим управлением в удобном положении

3

9

11

13

1,12

1,14

1,16

''

То же, в неудобном положении

5

11

13

15

1,16

1,18

1,20

Дуговая

Для сварки с автоматическим управлением

6

8

10

12

1,14

1,16

1,18

''

Для сварки в защитных газах в автоматических линиях

10

6

8

10

1,16

1,18

1,20

''

Для сварки в защитных газах на конвейерах и механизированных линиях со спецоснасткой

5

11

15

18

1,16

1,20

1,23

Газовая:

 

 

 

 

 

 

 

 

в удобном положении

 

3

10

12

14

1,13

1,15

1,17

в неудобном положении

 

3

12

14

16

1,15

1,17

1,19

Резка ручная

 

3

8

10

12

1,11

1,13

1,15

Резка

Полуавтоматическое

5

8

10

12

1,13

1,15

1,17

То же

Автоматическое

8

6

8

10

1,14

1,16

1,18

Напыление

 

5

8

10

12

1,13

1,15

1,17

Пайка ручная

 

3

14

16

18

1,17

1,19

1,21

Пайка

То же

10

8

10

12

1,18

1,20

1,22

Специальные методы

Электроннолучевое, лазерное

10

6

8

10

1,16

1,18

1,20

 

Прочее

8

8

10

12

1,16

1,18

1,20

Слесарно-сборочные работы

Сборочное на конвейере

5

8

10

12

1,13

1,15

1,17

То же

Сборочное на стендах и столах

4

7

9

11

1,11

1,13

1,15

''

Клепальное на конвейере

5

9

11

13

1,14

1,16

1,18

''

На стендах и столах

4

6

8

10

1,10

1,12

1,14

Трудоемкость изготовления узлов изделий на автоматических, механизированных линиях определяется по формуле

                                                                   (27)

где Р - количество рабочих, обслуживающих линию, включая наладчиков автоматических линий, чел.;

Фн - номинальный годовой фонд времени рабочего места, ч;

N - годовая программа, шт.

Таблица 34

Оборудование, рабочие места и оснастка

Характеристика узла

Плотность работ (Пр), чел.

Масса, кг

Габарит, м

ширина

длина

Полуавтоматы и автоматы для дуговой сварки

 

1

Машины контактной сварки:

 

 

 

 

стационарные без автоматических приспособлений

до 16

-

-

1

более 16

-

-

1 - 2

подвесные

Независимо от массы и габарита

1 - 0,5

Многоэлектродные точечные машины:

 

 

 

 

загрузка и съем с фронта машины

до 16

-

-

1 - 2

 

более 16

-

-

2 - 3

загрузка с фронта и съем с тыла машины

до 16

-

-

2 - 3

 

более 16

-

-

3 - 4

с автоматической загрузкой и выгрузкой

Независимо от массы и габаритов

0,3 - 0,5

Приспособления стационарны:

 

 

 

 

неповоротные для сборки и прихватки

Независимо от массы

до     0,6

2

1

''        0,6

4

до 2

 

 

''        0,6

8

''        4

стенды для сборки и прихватки

то же

более 0,6

2

''        2

 

 

более 0,6

4

''        3

 

 

более 0,6

11

''        4

собранные конструкции для окончательной сварки

''

до 0,6

2

1

 

более 0,6

4

1 - 2

главные кондукторы и стенды для окончательной сварки узлов

''

более 0,6

-

до 1

 

более 0,6

2

1 - 2

 

 

более 0,6

4

до 4

 

 

более 0,6

8

''        6

Приспособления поворотные:

''

до 0,6

2

1

позиционеры и кантователи

 

''        0,6

4

1 - 2

 

 

''        0,6

8

до 4

крупные многоместные и кантователи

Не зависимо от массы

более 0,6

2

1

 

 

более 0,6

4

1 - 2

 

 

более 0,6

8

до 4

Рабочие места конвейеров

То же

до 2,5

4

''        4

 

 

''        2,5

8

''        6

 

 

''        2,5

12

''        6

Примечание. Меньшие значения плотности работ следует принимать, когда большее значение не дает полной загрузки рабочих мест, т.е. менее 65 %.

ПРИЛОЖЕНИЕ 1

Справочное

РАСХОД ЭЛЕКТРОДНОЙ ПРОВОЛОКИ

Расход электродной проволоки (Gпр) следует рассчитывать по формуле

                                                                   (1)

где λ - коэффициент потерь на огарки, равный 1,1;

G - количество металла, необходимого для получения сварного шва заданного сечения, кг;

ψ - коэффициент потерь на угар и разбрызгивание, равный 0,05 - 0,1.

Количество металла (G), необходимого для получения шва заданного сечения, следует определять по формуле

                                                                      (2)

где γ - плотность наплавленного металла, кг/см3;

Fн - плотность поперечного сечения шва, см2;

L - длина шва, см.

Для укрупненных расчетов часовой расход сварочной проволоки при сварке стальных конструкций принимать в зависимости от катета шва и способа сварки.

Катет шва, мм

Часовой расход электродной проволоки при ручной дуговой сварке, кг

Часовой расход сварочной проволоки при сварке, кг

полуавтоматической и автоматической в среде защитных газов

автоматической под слоем флюса

2

-

-

0,8

1,2

3

1,2

1,2

0,9

1,5

4

1,5

1,5

1,0

2,0

5

2,0

2,0

1,5

2,5

6

2,2

2,2

2,0

4,0

8

2,5

2,5

2,3

7,0

10

2,7

2,7

2,5

9,0

12

3,0

3,0

2,8

11,0

ПРИЛОЖЕНИЕ 2

Справочное

РАСХОД СЖАТОГО ВОЗДУХА

Средний часовой расход сжатого воздуха для укрупненных расчетов на единицу оборудования в зависимости от толщины свариваемого материала приводится ниже.

Потребители

Средний часовой расход воздуха (приведенного к нормальным условиям), м3

для тонколистовых конструкций, до 3 мм

для толстолистовых конструкций, свыше 3 мм

Контактные машины:

 

 

точечные, рельефные

8,0 - 10,0

6,0 - 8,0

шовные

1,0 - 2,0

-

многоточечные

5,0 - 8,0

6,0 - 7,0

Крупные приспособления

3,0

4,0

Пневмоинструмент

36,0

36,0

Установки воздушно-плазменной резки

5,0

8,0

ПРИЛОЖЕНИЕ 3

Справочное

РАСХОД ГАЗОВ И ИХ СМЕСИ ПРИ ДУГОВОЙ СВАРКЕ

ГАЗ

Толщина металла, мм

Диаметр электродной проволоки, мм

Рабочее давление, МПа

Часовой расход на 1 горелку, м3

для полуавтоматов

для автоматов

Углекислый (ГОСТ 8050-76)

до 3

0,8 - 1,0

 

0,6 - 0,8

0,4 - 0,6

3 - 5

1,2 - 1,6

0,05 - 0,1

0,8 - 1,2

0,8 - 1,0

5 - 8

1,6 - 2,0

 

1,2 - 1,5

1,0 - 1,3

свыше 8

2,0 - 3,0

 

1,5 - 2,0

1,3 - 1,8

Смесь (70 % СО2 и 30 % О2)

до 3

0,8 - 1,0

 

0,5 - 07

0,4 - 0,5

3 - 5

1,2 - 1,6

0,05 - 0,1

0,7 - 0,9

0,5 - 0,7

5 - 8

1,6 - 2,0

 

0,9 - 1,2

0,7 - 1,0

свыше 8

2,0 - 3,0

 

1,2 - 1,4

1,0 - 1,4

Смесь (70 % Ar и 30 % СО2)

до 3

0,8 - 1,6

0,03 - 0,07

0,4 - 0,6

0,3 - 0,5

до 6

1,6 - 2,0

 

0,6 - 0,7

0,7 - 0,9

Для стальных конструкций

 

 

 

 

 

Аргон (ГОСТ 10157-79)

1,5

2,0

 

0,2 - 0,3

-

2,0

2,0 - 3,0

до 0,05

0,3 - 0,4

-

Для алюминиевых (вольфрамовый электрод)

4,0

3,0 - 4,0

 

0,4 - 0,5

-

5,0

5,0

 

0,5 - 0,6

-

Примечания: 1. Расход аргона и диаметр вольфрамового электрода приведены для ручной сварки.

2. Расход аргона при сварке нержавеющей стали указанных толщин свариваемого металла принимать меньше на 10 %.

ПРИЛОЖЕНИЕ 4

Справочное

РАСХОД СМЕСИ ГАЗОВ ПРИ ГАЗОВОЙ СВАРКЕ

(на 1 м сварного шва)

Толщина листа, мм

Смесь газов, м3

Ацетилен

Кислород

Пропан-бутан

Кислород

Природный газ

Кислород

 

С отбортовкой кромок

 

 

 

0,5

0,006

0,007

0,003

0,012

0,010

0,015

1,0

0,009

0,011

0,006

0,019

0,016

0,025

1,5

0,016

0,019

0,010

0,033

0,028

0,043

 

Без скоса кромок

 

 

 

1,0

0,015

0,018

0,013

0,044

0,038

0,057

1,5

0,029

0,033

0,023

0,081

0,071

0,107

2,0

0,042

0,048

0,034

0,119

0,105

0,158

2,5

0,052

0,060

0,044

0,148

0,128

0,194

3,0

0,062

0,070

0,051

0,178

0,152

0,230

Примечания: 1. Давление ацетилена, пропан-бутана, природного газа не ниже 0,001 МПа (0,01 кгс/см2), кислорода 0,3 - 0,5 МПа (3 - 5 кгс/см2).

2. Для двухсторонних стыковых соединений приведенные нормы расхода газа принимать с коэффициентов 1,4.

3. Для сварки труб приведенные нормы расхода газа принимать с коэффициентом 1,15.

4. Для плазменной резки и сварки в среде защитного газа расход газа принимать по паспортным данным оборудования.

ПРИЛОЖЕНИЕ 5

Справочное

РАСХОД ВОДЫ

Машина

Часовой расход на единицу, м3

Для контактной сварки мощностью:

 

200 кВ · А

0,8

630 кВ · А

1,2

Шовная

1,2

Многоэлектродная, с количеством электродов, шт.:

 

до 48

5,0

до 96

10,0

Роботы контактной сварки (клещи со встроенным трансформатором)

0,6

Роботы дуговой сварки при силе тока свыше 500 А

0,1

ПРИЛОЖЕНИЕ 6

Справочное

УКРУПНЕННЫЙ РАСЧЕТ ТРУДОЕМКОСТИ МЕТОДОМ ПРИВЕДЕНИЯ

Искомая трудоемкость определяется по формуле

Тизд = То ´ Кмр,                                                              (1)

где Тизд, То - искомая трудоемкость комплекта и аналога соответственно, чел. ч;

Общий коэффициент приведения трудоемкости (Кмр) подсчитывается по формуле

Кмр = К1 ´ К2 ´ К3 ´ К4 ´ К5,                                                 (2)

где К1 - коэффициент приведения трудоемкости определяется по разнице в массе комплектов сварочных конструкций

                                                            (3)

Mi, М0 - масса комплекта сварных конструкций заданного изделия и аналога соответственно, кг;

К2 - коэффициент приведения трудоемкости в зависимости от годового выпуска, определяется из отношения заданного выпуска Ni к расчетному выпуску N0 в штуках по логарифмической кривой, рис. 1;

К3 - коэффициент сложности учитывает разницу в количестве деталей, из которых собраны сварные конструкции

                                                            (4)

ni, n0 - количество деталей в сварных узлах заданного изделия и аналога соответственно, шт.;

К4 - коэффициент повышения производительности труда, планируемый заводу, рассчитанный на год выхода завода на полную мощность, определяется по формуле

                                                       (5)

где Р - планируемый директивный процент роста производительности труда в текущей пятилетке (приводится в задании на проектирование);

5 - число лет, отделяющее время выхода завода на полную мощность от года, в котором за базу принята трудоемкость аналога;

К5 - коэффициент, учитывающий новые прогрессивные проектные решения (принимать 0,6 - 0,9).

Для мелкосерийного и среднесерийного производств трудоемкость одного комплекта может определяться по удельной трудоемкости одной тонны металлоконструкций по технологическим операциям.

Трудоемкость одного комплекта и одной тонны сварных конструкций, рассчитанная в проектах по формулам данного приложения, должна быть в пределах числовых значений «Основных прогрессивных показателей технического уровня» по отраслям.

Трудоемкость одной тонны сварных конструкций станкостроения и тяжелого машиностроения при единичном, мелкосерийном и среднесерийном производстве не должна превышать:

для тонкостенных конструкций - 40 - 45 чел. ч;

для толстостенных конструкций - 20 - 25 чел. ч;

для узлов дизелестроения - 40 - 60 чел. ч;

для узлов тепловозостроения - 80 - 100 чел. ч;

для узлов гидравлики - 100 - 120 чел. ч.

Рис. 1. Коэффициент приведения трудоемкости (К2), учитывающий разницу в годовых выпусках аналога (N0) и заданного (Ni) изделия.

Вид продукции

Масса комплекта сварных узлов, кг

Трудоемкость (комплект/1 т сварных узлов), чел. ч

Выпуск в год, тыс. комплектов

 

2,5

5

10

15

25

50

100

150

200

300

400

 

Легковые автомобили

250

-

-

-

-

-

8,8

33,1

6,9

27,9

6,2

24,7

5,5

21,8

4,9

19,6

4,5

17,7

 

 

400

-

-

-

-

-

13,7

34,1

10,5

24,4

9,0

22,3

8,4

20,9

7,4

18,5

7,0

17,2

 

 

630

-

-

-

-

34,2

54,3

25,4

40,2

19,8

31,6

17,9

28,6

16,2

25,6

-

-

 

Грузовые автомобили

500

-

-

-

-

6,9

13,9

4,9

9,7

4,2

8,3

3,6

7,1

3,4

6,7

-

-

 

 

800

-

-

-

-

8,8

10,9

6,6

8,3

5,2

6,4

4,5

5,5

4,2

5,1

-

-

 

 

1250

-

-

-

13,7

10,8

10,7

8,5

8,5

6,8

7,1

5,6

6,5

5,2

-

-

-

 

 

1600

-

-

-

16,2

10,2

13,3

8,3

10,1

6,2

8,4

5,2

7,7

4,8

-

-

-

 

Автобусы, фургоны

1000

-

-

-

30,7

30,7

26,2

26,2

19,1

19,1

14,5

14,5

-

-

-

-

 

 

1600

70,1

44,2

52,8

33,0

42,2

26,2

35,1

21,9

31,9

20,1

-

-

-

-

-

-

 

 

2500

108,8

43,5

89,1

35,6

76,8

30,7

72,6

28,1

65,5

26,3

-

-

-

-

-

-

 

Прицепы и полуприцепы

1000

-

-

-

9,1

9,1

8,1

8,1

7,2

7,2

-

-

-

-

-

 

1600

-

-

-

10,7

6,7

9,6

5,9

8,5

5,4

-

-

-

-

-

 

 

2500

-

-

16,1

6,5

15,1

6,0

13,8

5,2

-

-

-

-

-

-

 

 

4000

-

-

22,9

21,7

19,6

-

-

-

-

-

-

 

Примечание. В комплект сварных узлов автомобилей входят рама, кузов (кабина), оперение, узлы шасси (топливные баки, воздушные баллоны, глушители и другие узлы), но не входят трансмиссии (карданные валы и др.).

ПРИЛОЖЕНИЕ 7

Справочное

НАГРУЗКА НА ПОЛ

Нагрузка на пол составляет, кН/м2 для:

сборочно-сварочного цеха - 50;

проездов - 100;

внутрицеховых складов (кладовых):

деталей и заготовок - 100;

вспомогательных материалов - 50.

При размещении сборочно-сварочных цехов на втором этажа и выше:

для расчета плит перекрытия - 50;

для расчета балок (ригелей) - суммарная масса оборудования, устанавливаемого в ячейке 12´12 м, не более 250 т, расположенного самым неблагоприятным способом.

СОДЕРЖАНИЕ

1. Общая часть. 1

2. Фонды времени работы оборудования и рабочих. 2

3. Расчет количества производственного оборудования. 2

3.1. Расчет количества основного оборудования. 2

3.2. Расчет количества прочего оборудования. 3

3.3. Коэффициенты загрузки производственного оборудования. 3

3.4. Прогрессивность технологического оборудования. 3

4. Расчет численности работающих. 4

4.1. Расчет численности основных рабочих. 4

4.2. Определение состава и численности работающих. 5

4.3. Распределение работающих по сменам и соотношение мужчин и женщин в общем количестве работающих. 7

4.4. Распределение работающих по группам санитарной характеристики производственных процессов. 7

5. Объемно-планировочные и строительные решения. 8

5.1. Определение общей площади. 8

5.2. Основные строительные параметры зданий. 9

5.3. Нормы размещения оборудования. 12

6. Нормы расхода, требования к параметрам и качеству материалов и энергоносителей. 19

6.1. Основные материалы.. 19

6.2. Вспомогательные материалы.. 20

6.3. Нормы расхода энергоносителей. 20

7. Нормы запасов и складирования. 21

7.1. Нормы запаса хранения узлов на складах цехов с крупносерийным и массовым производством.. 21

7.2. Расчет и нормы площадей складов цехов с крупносерийным и массовым производством.. 23

7.3. Расчет и нормы площадей складов для цехов единичного, мелкосерийного и среднесерийного производства. 23

7.4. Нормы расчета площадей цеховых кладовых. 24

8. Уровень механизации и автоматизации производства. 24

9. Уровень специализации и кооперирования производства. 25

10. Материалоемкость и энергоемкость продукции. 25

11. Противопожарные требования. 25

12. Специальные требования технологических процессов к помещениям, сооружениям и оборудованию.. 26

12.1. Требования к помещениям.. 26

12.2. Требования к отоплению, вентиляции и кондиционированию воздуха. 27

12.3. Защита от шума и вибрации. 28

13. Нормы использования и хранения отходов и попутных материалов. 28

14. Нормы, регламентирующие биологическую защиту окружающей природной среды.. 28

15. Производительность труда и трудоемкость. 29

15.1. Производительность труда. 29

15.2. Технологическая трудоемкость. 29

Приложение 1 Расход электродной проволоки. 32

Приложение 2 Расход сжатого воздуха. 33

Приложение 3 Расход газов и их смеси при дуговой сварке. 33

Приложение 4 Расход смеси газов при газовой сварке. 33

Приложение 5 Расход воды.. 34

Приложение 6 Укрупненный расчет трудоемкости методом приведения. 34

Приложение 7 Нагрузка на пол. 37

 

 



© 2013 Ёшкин Кот :-)