Информационная система
«Ёшкин Кот»

XXXecatmenu

 

ГОСУДАРСТВЕННЫЙ СТАНДАРТ СОЮЗА ССР

СТУПЕНИ ЖЕЛЕЗОБЕТОННЫЕ И БЕТОННЫЕ

Конструкция и размеры

Reinforced concrete and concrete steps.
Structure and dimensions

ГОСТ
8717.1-84

Переиздание. Июль 1987 г.

Постановлением Государственного комитета СССР по делам строительства от 23 апреля 1984 г. № 58 срок ведения установлен

от 01.01.86

Несоблюдение стандарта преследуется по закону

1. Настоящий стандарт распространяется на железобетонные и бетонные ступени, предназначенные для устройства внутренних и наружных лестниц зданий и сооружений, и устанавливает конструкцию ступенек, а также арматурных и закладных изделий к ним.

2. Ступени должны удовлетворять всем требованиям ГОСТ 8717.0-84 и требованиям, изложенным в соответствующих пунктах настоящего стандарта.

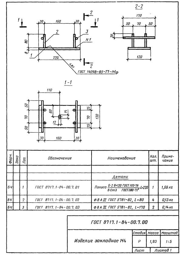
3. Положение закладных изделий и монтажных петель в бетонных ступенях должно соответствовать указанному на черт. 01.0.00СБ и 02.0.00СБ.

4. Положение арматурных сеток, закладных изделий и монтажных петель в железобетонных ступенях должно соответствовать указанному на черт. 03.0.00СБ - 11.0.00СБ.

5. Спецификация арматурных и закладных изделий на одну ступень приведена на черт. 01.0.00 - 11.0.00.

6. Форма и размеры арматурных сеток должны соответствовать указанным на черт. 00.1.00СБ - 00.3.00СБ, а закладных изделий и монтажных петель - на черт. 00.4.00 - 00.9.00.

7. Спецификация стали на арматурное изделие приведена на черт. 00.1.00 - 00.3.00, а на закладное изделие и монтажную петлю - на черт. 00.4.00 - 00.9.00.

8. Ведомость расхода стали на ступени приведена на черт. 00.0.00ВМС.

9. Закладные изделия марки M1 предназначены для восприятия горизонтальной нормативной нагрузки на поручни ограждения 0,49 кН (50 кгс/м), марок М2, М3 и М5 - 1,47 кН (150 кгс/м).

10. Марки ступеней на чертежах настоящего стандарта приведены без указания вида бетона и отделки верхних лицевых поверхностей ступеней.




























© 2013 Ёшкин Кот :-)