Информационная система
«Ёшкин Кот»

Скачать базу одним архивом
Скачать обновления
История создания базы
Карта сайта

Скачать ГОСТ 27108-2016 Конструкции каркаса железобетонные сборные для многоэтажных зданий с безбалочными перекрытиями. Технические условия

Дата актуализации: 10.08.2017

ГОСТ 27108-2016

Конструкции каркаса железобетонные сборные для многоэтажных зданий с безбалочными перекрытиями. Технические условия

Обозначение: ГОСТ 27108-2016
Обозначение англ: GOST 27108-2016
Статус:принят
Название рус.:Конструкции каркаса железобетонные сборные для многоэтажных зданий с безбалочными перекрытиями. Технические условия
Название англ.:Reinforced concrete framework structures for multistory industrial buildings with girderless floors. Specifications
Дата добавления в базу:05.05.2017
Дата актуализации:05.05.2017
Дата введения:22.11.2016
Дата окончания срока действия:01.06.2017
Область применения:Стандарт распространяется на сборные железобетонные конструкции каркаса зданий с безбалочными перекрытиями, изготовляемые из тяжелого бетона, для многоэтажных производственных и складских зданий промышленных и сельскохозяйственных предприятий с сетками колонн 6х6 м и 9х6 м, с высотой этажа 4,8 и 6,0 м.
Оглавление:1 Область применения
2 Нормативные ссылки
3 Термины и определения
4 Технические требования
   4.1 Основные параметры и размеры
   4.2 Характеристики конструкций
   4.3 Требования к материалам
   4.4 Требования к качеству поверхности и внешнему виду конструкций
   4.5 Маркировка конструкций
5 Правила приемки
6 Методы контроля
7 Транспортирование и хранение
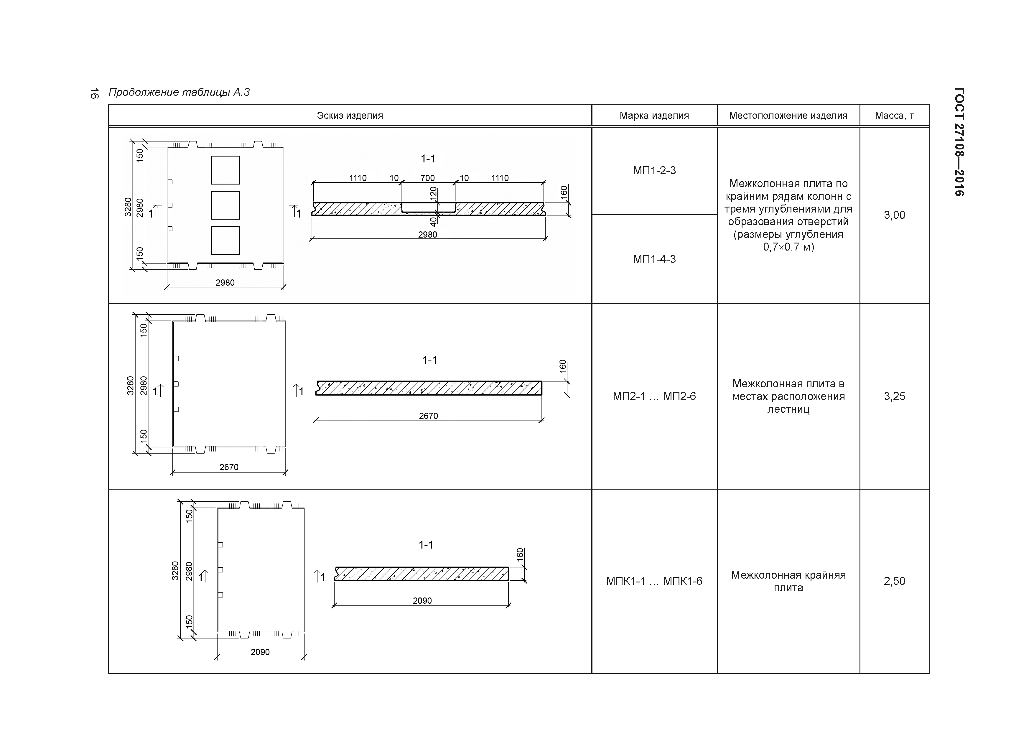
Приложение А (рекомендуемое) Форма и основные размеры конструкций
Библиография
Разработан: АО ЦНИИпромзданий
Утверждён:25.10.2016 Межгосударственный Совет по стандартизации, метрологии и сертификации (Inter-Governmental Council on Standardization, Metrology, and Certification 92-П)
22.11.2016 Федеральное агентство по техническому регулированию и метрологии (1737-ст)
Издан: Стандартинформ (2016 г. )
Расположен в:Техническая документация Электроэнергия СТРОИТЕЛЬНЫЕ МАТЕРИАЛЫ И СТРОИТЕЛЬСТВО Конструкции зданий Бетонные конструкции Экология СТРОИТЕЛЬНЫЕ МАТЕРИАЛЫ И СТРОИТЕЛЬСТВО Конструкции зданий Бетонные конструкции Строительство Стандарты Другие государственные стандарты, применяемые в строительстве Строительные материалы и строительство
Заменяет собой:
Нормативные ссылки:
ГОСТ 27108-2016ГОСТ 27108-2016ГОСТ 27108-2016ГОСТ 27108-2016ГОСТ 27108-2016ГОСТ 27108-2016ГОСТ 27108-2016ГОСТ 27108-2016ГОСТ 27108-2016ГОСТ 27108-2016ГОСТ 27108-2016ГОСТ 27108-2016ГОСТ 27108-2016ГОСТ 27108-2016ГОСТ 27108-2016ГОСТ 27108-2016ГОСТ 27108-2016ГОСТ 27108-2016ГОСТ 27108-2016ГОСТ 27108-2016ГОСТ 27108-2016ГОСТ 27108-2016ГОСТ 27108-2016ГОСТ 27108-2016ГОСТ 27108-2016ГОСТ 27108-2016ГОСТ 27108-2016

© 2013 Ёшкин Кот :-) Карта сайта