Скачать НД 2-030101-009 Приложения к Руководству по техническому наблюдению за судами в эксплуатации (редакция 2016 года)Дата актуализации: 10.08.2017 НД 2-030101-009
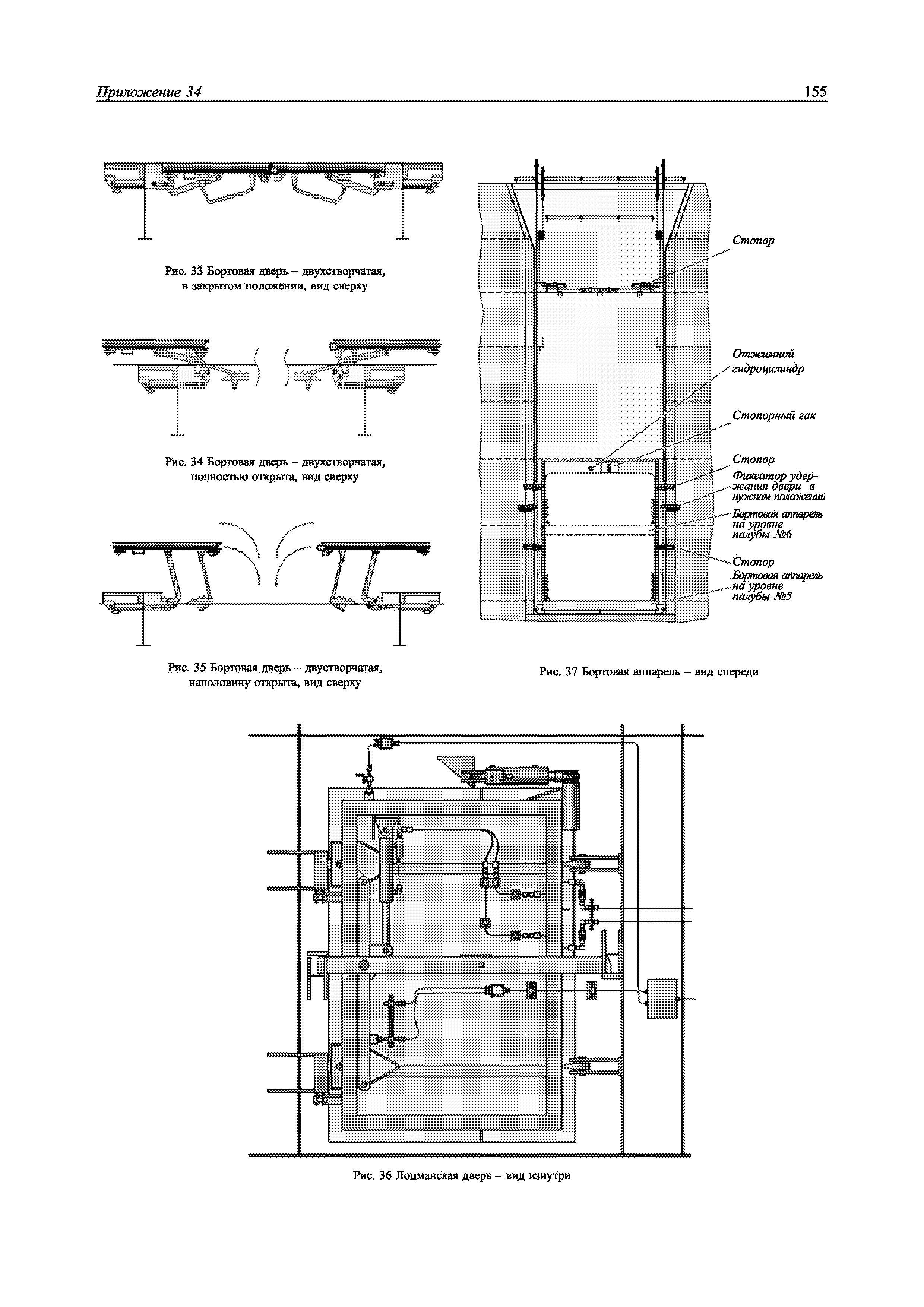
Приложения к Руководству по техническому наблюдению за судами в эксплуатации (редакция 2016 года)Обозначение: | НД 2-030101-009 | Обозначение англ: | ND 2-030101-009 | Статус: | заменен | Название рус.: | Приложения к Руководству по техническому наблюдению за судами в эксплуатации (редакция 2016 года) | Дата добавления в базу: | 01.02.2017 | Дата актуализации: | 05.05.2017 | Дата введения: | 01.01.2017 | Область применения: | Приложения являются частью Руководства по техническому наблюдению за судами в эксплуатации и предназначены для инспекторского состава, экипажей судов и судовладельцев в качестве руководства по проведению освидетельствований и испытаний отдельных объектов наблюдения, оформлению отчетных документов Регистра по результатам освидетельствований, инструкций по определению технического состояния, проведению замеров толщин и т.п., определению состава оборудования и снабжения судов. | Оглавление: | 1 Методика освидетельствования подводной части судов и других плавучих сооружений на плаву 2 Инструкция по непрерывному освидетельствованию судов 3 Инструкция по использованию достоверных показаний встроенных систем и переносных средств диагностирования и неразрушающего контроля при освидетельствовании объектов технического наблюдения судна 4 Инструкция по освидетельствованию спасательных кругов и спасательных жилетов на специализированных участках по освидетельствованию, испытанию и ремонту спасательных средств индивидуального пользования 5 Оценка предельной балльности волнения по условиям обеспечения прочности корпуса судна 6 Оценка предельной балльности ветра по условиям обеспечения остойчивости судна 7 Снабжение плавучих доков якорями и якорными цепями для разового перегона. 8 Снабжение плавучих доков буксирными тросами для разового перегона 9 Снабжение буксирующих судов буксирными тросами для разового перегона (рекомендации) 10 Испытание непроницаемости корпуса 11 Инструкция по освидетельствованию судов на пригодность для перевозки незерновых навалочных грузов 12 Инструкция по оформлению документов Регистра на суда специального назначения 13 Положение по освидетельствованию дейдвудных устройств с масляной смазкой подшипников 14 Отчет теряющему обществу 15 Методика ежегодного освидетельствования радиооборудования ГМССБ 16 Циркулярное письмо Комитета по безопасности на море ИМО 17 Выставление, снятие и проверка выполнения требований Регистра 18 Рекомендация по условиям одобрения станций обслуживания надувных спасательных плотов 19 Образец Акта на спасательные круги и жилеты 20 Форма L 21 Форма G 22 Перечни документов радиотехнической службы на морских судах и судах смешанного (река-море) плавания, находящихся в ведении МТРФ (I), и на судах Госкомрыболовства РФ (II) 23 Инструкция по проверке корректировки навигационных карт и пособий 24 Схема предъявления судов по гармонизированной системе освидетельствований (международные конвенции) 25 Освидетельствование судов, перевозящих опасные грузы в упаковке и навалом 26 Инструкция по освидетельствованию судовых трубопроводов 27 Методика проведения освидетельствований судов в эксплуатации по инициативе Регистра (инициативные освидетельствования) 28 Руководство по безопасной океанской буксировке 29 Данные по судну (РRIА) 30 Проверка и эксплуатационные испытания средств посадки и высадки во время периодических освидетельствований грузовых и пассажирских судов 31 Ежемесячный отчет о судах, чей класс был приостановлен более чем на 7 дней, восстановлен, снят и переназначен 32 Инструкция по проведению. испытаний штормтрапов, спасательных шкентелей с мусингами, предохранительных поясов и страховочных канатов 33 Руководство для инспекторов Регистра по контролированию процесса замеров толщин, проводимых признанными Регистром организациями 34 Руководство для инспекторов Регистра по освидетельствованию носовых, бортовых, кормовых дверей и аппарелей и внутренних дверей накатных судов и пассажирских накатных судов (ро-ро) 35 Инструкция по освидетельствованию главных винторулевых колонок на основе мониторинга технического состояния 36 Требования к содержанию и оформлению планов технического обслуживания, ремонта и проверки противопожарных систем и средств, наставлений по подготовке персонала по противопожарной безопасности, пожарных планов и буклетов по мерам противопожарной безопасности 37 Инструкция по освидетельствованию автоматических головок воздушных труб 38 Методика диагностирования и определения остаточного ресурса силиконовых демпферов судовых ДВС 39 Методика дистанционного освидетельствования 40 Инструкция о порядке проведения обязательных ежегодных освидетельствований и проверок регистраторов данных рейса (РДР)/упрощенных регистраторов данных рейса (У-РДР) и признание предприятий, выполняющих эти работы 41 Руководство по оценке остаточного углового сварного шва между настилом палубы и продольными балками 42 Руководство по ежегодным проверкам аппаратуры автоматической идентификационной системы (АИС) (МSС.1/Сiгс.1252 от 22 октября 2007 года) 43 Руководство по освидетельствованию танков, в которых применено мягкое покрытие 44 Инструкция по оформлению документов. Регистра на плавучие буровые установки 45 Методические рекомендации по обеспечению проведения анализов топлива, смазочною масла, груза нефтепродуктов и нефтесодержащих вод 46 Руководство по безопасности буксируемых судов и других плавучих объектов, включая установки, сооружения и платформы (далее, буксируемые объекты), в море (внедрено Резолюцией ИМО А.765(18), принятой 04.11.1993) 47 Рекомендации по обеспечению мореходных качеств и назначению ограничений по условиям погоды во время совершения перегонов 48 SC 249. Внедрение правила П-1/3-5 Конвенции СОЛАС и циркуляра ИМО MCS.1/Сirc.1379 (октябрь 2011 год) 49 Рекомендация МАКО № 122. Встроенные отсеки плавучести спасательных и дежурных шлюпок 50 Руководство по техническому наблюдению за якорным оборудованием в эксплуатации с учетом положений Рекомендации МАКОМ № 79 51 Руководство по экспериментальным программам расширенного периода между освидетельствованиями подводной части судна в доке 52 Руководство по освидетельствованию и оценке состояния покрытия судовых пространств 53 Руководство по освидетельствованию якорных цепей для позиционирования плавучих буровых установок | Разработан: | Российский морской регистр судоходства
| Утверждён: | 30.12.2015 Российский морской регистр судоходства
| Издан: | Российский морской регистр судоходства (2016 г. )
| Расположен в: |
| Список изменений: | | Заменяет собой: | | Чем заменён: | | Нормативные ссылки: | |
                                                                                                                                                                                                                                                                                                                    
Текстовое изменение 340-22-884ц от 15.04.2016
         
Текстовое изменение 340-22-895ц от 01.07.2016
      
Текстовое изменение 340-22-935ц от 16.09.2016
     
Текстовое изменение 340-22-941ц от 20.10.2016
  
Текстовое изменение 340-22-960ц от 01.07.2017
  
|