Информационная система
«Ёшкин Кот»

Скачать базу одним архивом
Скачать обновления
История создания базы
Карта сайта

Скачать Альбом АТР БГБ 4.2-2015 Альбом узлов и технических решений для применения в проектах жилых и общественных зданий этажностью более 3 этажей в районах с сейсмичностью до 6 баллов включительно

Дата актуализации: 10.08.2017

Альбом АТР БГБ 4.2-2015

Альбом узлов и технических решений для применения в проектах жилых и общественных зданий этажностью более 3 этажей в районах с сейсмичностью до 6 баллов включительно

Обозначение: Альбом АТР БГБ 4.2-2015
Обозначение англ: АТР БГБ 4.2-2015
Статус:не определен законодательством
Название рус.:Альбом узлов и технических решений для применения в проектах жилых и общественных зданий этажностью более 3 этажей в районах с сейсмичностью до 6 баллов включительно
Дата добавления в базу:12.02.2016
Дата актуализации:05.05.2017
Дата введения:11.08.2015
Оглавление:Введение
1. Применяемые понятия, термины, определения и уловные обозначения
2. Общие положения
   2.1. Назначение, описание и номенклатура выпускаемой продукции
   2.2. Условия применения описываемых технических решений
   2.3. Перечень основных нормативных документов
3. Технические требования при разработке и реализации проектов
   3.1. Требования к кладке и раствором
   3.2. Требования к армированию
   3.3. Требования к проведению расчетов
4. Конструктивные решения
   4.1. Рекомендации по установке скользящей связей
   4.2. Крепление стен к конструкциям каркаса и колоннам фахверка
   4.3. Устройство проемов в стенах
   4.4. Устройство фасадов
   4.5. Устройство вентиляционных шахт
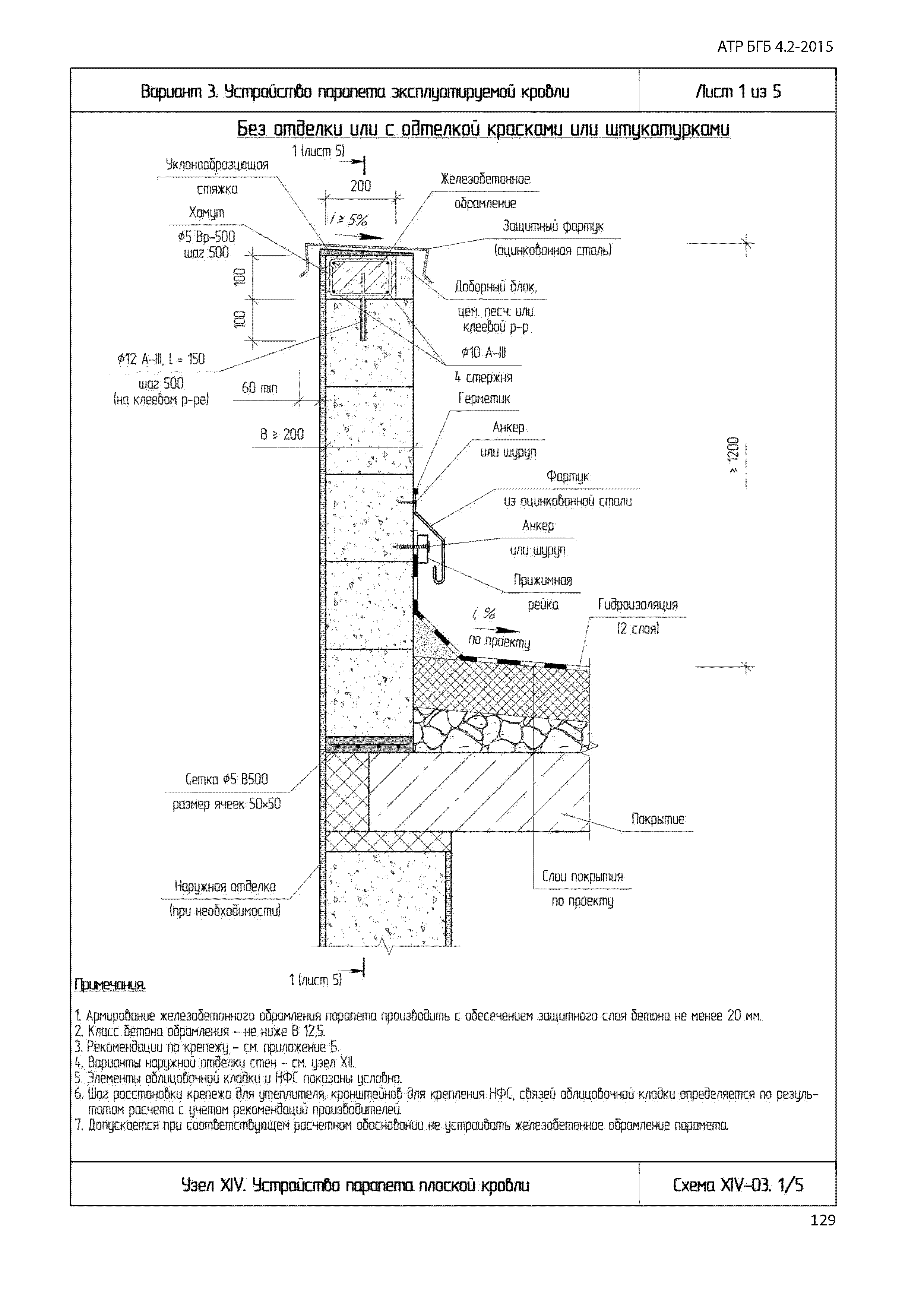
   4.6. Устройство парапета плоской кровли
Приложения
Библиография
Разработан: ЦНИИСК им. В.А. Кучеренко
ООО Байкальский газобетон
Утверждён:04.02.2015 ООО Байкальский газобетон
Расположен в:Техническая документация Строительство Справочные документы Типовые строительные конструкции, изделия и узлы Разработанные другими министерствами, ведомствами и организациями
Нормативные ссылки:
Альбом АТР БГБ 4.2-2015Альбом АТР БГБ 4.2-2015Альбом АТР БГБ 4.2-2015Альбом АТР БГБ 4.2-2015Альбом АТР БГБ 4.2-2015Альбом АТР БГБ 4.2-2015Альбом АТР БГБ 4.2-2015Альбом АТР БГБ 4.2-2015Альбом АТР БГБ 4.2-2015Альбом АТР БГБ 4.2-2015Альбом АТР БГБ 4.2-2015Альбом АТР БГБ 4.2-2015Альбом АТР БГБ 4.2-2015Альбом АТР БГБ 4.2-2015Альбом АТР БГБ 4.2-2015Альбом АТР БГБ 4.2-2015Альбом АТР БГБ 4.2-2015Альбом АТР БГБ 4.2-2015Альбом АТР БГБ 4.2-2015Альбом АТР БГБ 4.2-2015Альбом АТР БГБ 4.2-2015Альбом АТР БГБ 4.2-2015Альбом АТР БГБ 4.2-2015Альбом АТР БГБ 4.2-2015Альбом АТР БГБ 4.2-2015Альбом АТР БГБ 4.2-2015Альбом АТР БГБ 4.2-2015Альбом АТР БГБ 4.2-2015Альбом АТР БГБ 4.2-2015Альбом АТР БГБ 4.2-2015Альбом АТР БГБ 4.2-2015Альбом АТР БГБ 4.2-2015Альбом АТР БГБ 4.2-2015Альбом АТР БГБ 4.2-2015Альбом АТР БГБ 4.2-2015Альбом АТР БГБ 4.2-2015Альбом АТР БГБ 4.2-2015Альбом АТР БГБ 4.2-2015Альбом АТР БГБ 4.2-2015Альбом АТР БГБ 4.2-2015Альбом АТР БГБ 4.2-2015Альбом АТР БГБ 4.2-2015Альбом АТР БГБ 4.2-2015Альбом АТР БГБ 4.2-2015Альбом АТР БГБ 4.2-2015Альбом АТР БГБ 4.2-2015Альбом АТР БГБ 4.2-2015Альбом АТР БГБ 4.2-2015Альбом АТР БГБ 4.2-2015Альбом АТР БГБ 4.2-2015Альбом АТР БГБ 4.2-2015Альбом АТР БГБ 4.2-2015Альбом АТР БГБ 4.2-2015Альбом АТР БГБ 4.2-2015Альбом АТР БГБ 4.2-2015Альбом АТР БГБ 4.2-2015Альбом АТР БГБ 4.2-2015Альбом АТР БГБ 4.2-2015Альбом АТР БГБ 4.2-2015Альбом АТР БГБ 4.2-2015Альбом АТР БГБ 4.2-2015Альбом АТР БГБ 4.2-2015Альбом АТР БГБ 4.2-2015Альбом АТР БГБ 4.2-2015Альбом АТР БГБ 4.2-2015Альбом АТР БГБ 4.2-2015Альбом АТР БГБ 4.2-2015Альбом АТР БГБ 4.2-2015Альбом АТР БГБ 4.2-2015Альбом АТР БГБ 4.2-2015Альбом АТР БГБ 4.2-2015Альбом АТР БГБ 4.2-2015Альбом АТР БГБ 4.2-2015Альбом АТР БГБ 4.2-2015Альбом АТР БГБ 4.2-2015Альбом АТР БГБ 4.2-2015Альбом АТР БГБ 4.2-2015Альбом АТР БГБ 4.2-2015Альбом АТР БГБ 4.2-2015Альбом АТР БГБ 4.2-2015Альбом АТР БГБ 4.2-2015Альбом АТР БГБ 4.2-2015Альбом АТР БГБ 4.2-2015Альбом АТР БГБ 4.2-2015Альбом АТР БГБ 4.2-2015Альбом АТР БГБ 4.2-2015Альбом АТР БГБ 4.2-2015Альбом АТР БГБ 4.2-2015Альбом АТР БГБ 4.2-2015Альбом АТР БГБ 4.2-2015Альбом АТР БГБ 4.2-2015Альбом АТР БГБ 4.2-2015Альбом АТР БГБ 4.2-2015Альбом АТР БГБ 4.2-2015Альбом АТР БГБ 4.2-2015Альбом АТР БГБ 4.2-2015Альбом АТР БГБ 4.2-2015Альбом АТР БГБ 4.2-2015Альбом АТР БГБ 4.2-2015Альбом АТР БГБ 4.2-2015Альбом АТР БГБ 4.2-2015Альбом АТР БГБ 4.2-2015Альбом АТР БГБ 4.2-2015Альбом АТР БГБ 4.2-2015Альбом АТР БГБ 4.2-2015Альбом АТР БГБ 4.2-2015Альбом АТР БГБ 4.2-2015Альбом АТР БГБ 4.2-2015Альбом АТР БГБ 4.2-2015Альбом АТР БГБ 4.2-2015Альбом АТР БГБ 4.2-2015Альбом АТР БГБ 4.2-2015Альбом АТР БГБ 4.2-2015Альбом АТР БГБ 4.2-2015Альбом АТР БГБ 4.2-2015Альбом АТР БГБ 4.2-2015Альбом АТР БГБ 4.2-2015Альбом АТР БГБ 4.2-2015Альбом АТР БГБ 4.2-2015Альбом АТР БГБ 4.2-2015Альбом АТР БГБ 4.2-2015Альбом АТР БГБ 4.2-2015Альбом АТР БГБ 4.2-2015Альбом АТР БГБ 4.2-2015Альбом АТР БГБ 4.2-2015Альбом АТР БГБ 4.2-2015Альбом АТР БГБ 4.2-2015Альбом АТР БГБ 4.2-2015Альбом АТР БГБ 4.2-2015Альбом АТР БГБ 4.2-2015Альбом АТР БГБ 4.2-2015Альбом АТР БГБ 4.2-2015Альбом АТР БГБ 4.2-2015Альбом АТР БГБ 4.2-2015Альбом АТР БГБ 4.2-2015Альбом АТР БГБ 4.2-2015Альбом АТР БГБ 4.2-2015Альбом АТР БГБ 4.2-2015Альбом АТР БГБ 4.2-2015Альбом АТР БГБ 4.2-2015Альбом АТР БГБ 4.2-2015Альбом АТР БГБ 4.2-2015Альбом АТР БГБ 4.2-2015Альбом АТР БГБ 4.2-2015Альбом АТР БГБ 4.2-2015Альбом АТР БГБ 4.2-2015Альбом АТР БГБ 4.2-2015Альбом АТР БГБ 4.2-2015Альбом АТР БГБ 4.2-2015Альбом АТР БГБ 4.2-2015Альбом АТР БГБ 4.2-2015Альбом АТР БГБ 4.2-2015Альбом АТР БГБ 4.2-2015Альбом АТР БГБ 4.2-2015Альбом АТР БГБ 4.2-2015Альбом АТР БГБ 4.2-2015Альбом АТР БГБ 4.2-2015Альбом АТР БГБ 4.2-2015Альбом АТР БГБ 4.2-2015Альбом АТР БГБ 4.2-2015Альбом АТР БГБ 4.2-2015Альбом АТР БГБ 4.2-2015Альбом АТР БГБ 4.2-2015Альбом АТР БГБ 4.2-2015Альбом АТР БГБ 4.2-2015Альбом АТР БГБ 4.2-2015Альбом АТР БГБ 4.2-2015Альбом АТР БГБ 4.2-2015Альбом АТР БГБ 4.2-2015Альбом АТР БГБ 4.2-2015Альбом АТР БГБ 4.2-2015Альбом АТР БГБ 4.2-2015Альбом АТР БГБ 4.2-2015Альбом АТР БГБ 4.2-2015Альбом АТР БГБ 4.2-2015Альбом АТР БГБ 4.2-2015Альбом АТР БГБ 4.2-2015Альбом АТР БГБ 4.2-2015Альбом АТР БГБ 4.2-2015Альбом АТР БГБ 4.2-2015Альбом АТР БГБ 4.2-2015Альбом АТР БГБ 4.2-2015Альбом АТР БГБ 4.2-2015Альбом АТР БГБ 4.2-2015Альбом АТР БГБ 4.2-2015Альбом АТР БГБ 4.2-2015Альбом АТР БГБ 4.2-2015Альбом АТР БГБ 4.2-2015

© 2013 Ёшкин Кот :-) Карта сайта