Информационная система
«Ёшкин Кот»

Скачать базу одним архивом
Скачать обновления
История создания базы
Карта сайта

Скачать Серия ИИ-03-06 Часть I. Жилищное строительство. Рабочие чертежи крупных стеновых блоков из кирпича (высота жилых помещений 2,5 м)

Дата актуализации: 10.08.2017

Серия ИИ-03-06

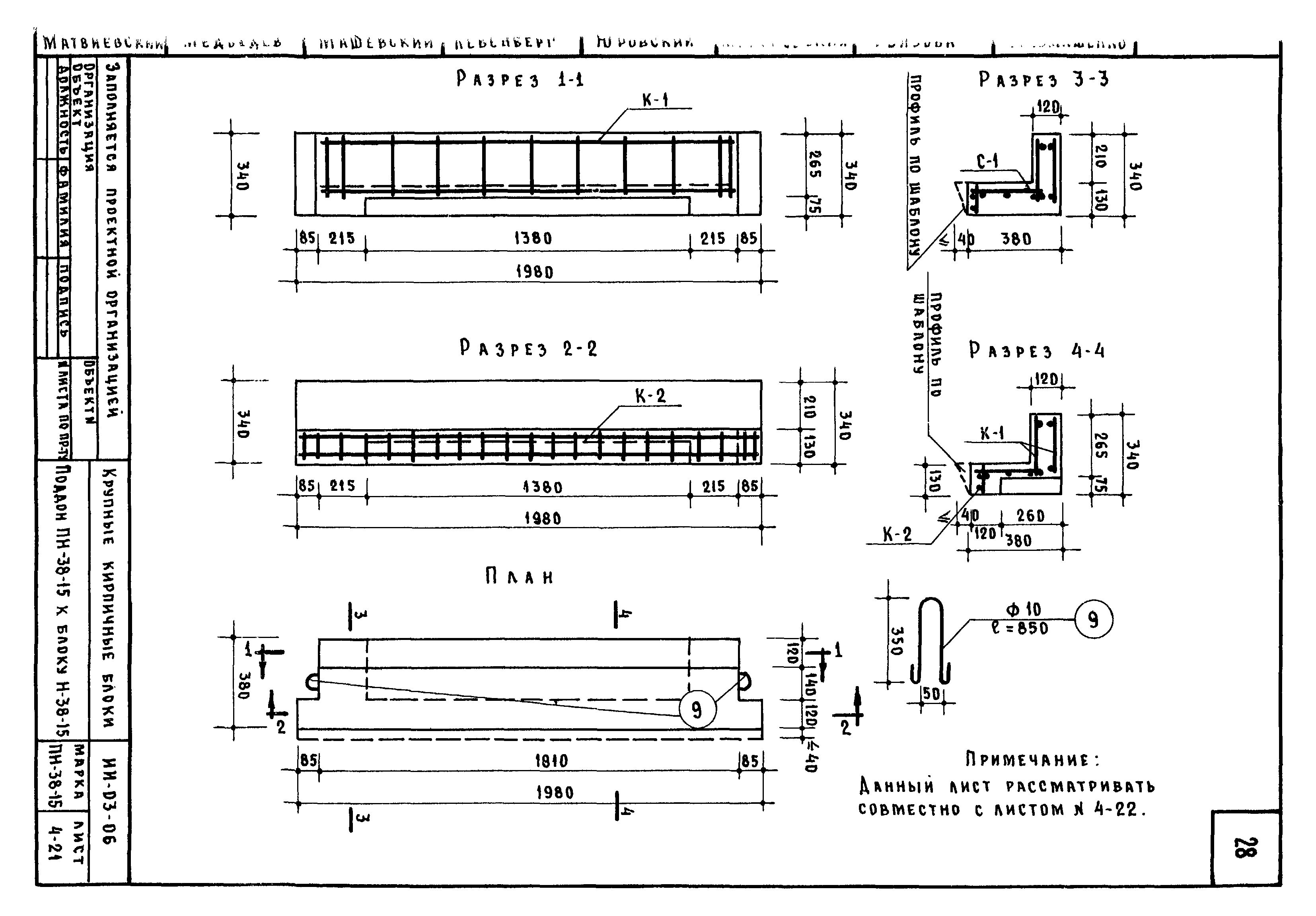
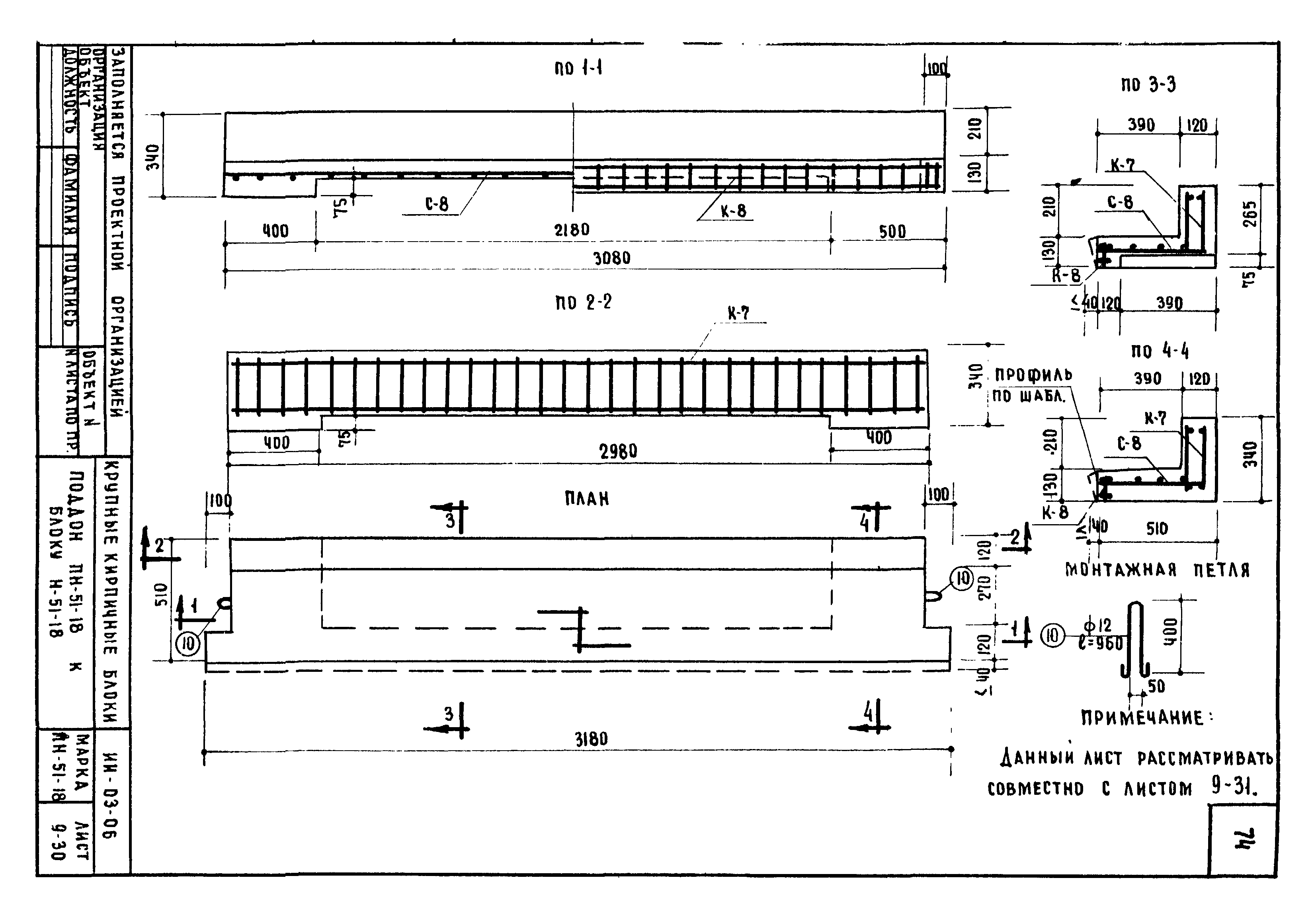
Часть I. Жилищное строительство. Рабочие чертежи крупных стеновых блоков из кирпича (высота жилых помещений 2,5 м)

Обозначение: Серия ИИ-03-06
Обозначение англ: Series ИИ-03-06
Статус:действует
Название рус.:Часть I. Жилищное строительство. Рабочие чертежи крупных стеновых блоков из кирпича (высота жилых помещений 2,5 м)
Дата добавления в базу:01.10.2014
Дата актуализации:05.05.2017
Область применения:Настоящий альбом рабочих чертежей крупных стеновых блоков из кирпича для зданий с высотой жилых помещений 2,5 м разработан для применения взамен выпущенного в 1957 году аналогичного альбома чертежей блоков, соответствующих высоте этажа 3,0 м
Оглавление:Содержание
Пояснительная записка
I. Блоки для наружных стен толщиной 38 см
   1. Простеночные блоки
   2. Подоконные блоки
   3. Угловые стеновые блоки
   4. Перемычечные блоки
   5. Поясные блоки
II. Блоки для наружных стен толщиной 51 см
   1. Простеночные блоки
   2. Подоконные блоки
   3. Угловые стеновые блоки
   4. Перемычечные блоки
   5. Поясные блоки
III. Блоки для наружных стен толщиной 64 см
   1. Простеночные блоки
   2. Подоконные блоки
   3. Угловые стеновые блоки
   4. Перемычечные блоки
   5. Поясные блоки
IV. Блоки для внутренних стен
   1. Простеночные блоки
   2. Перемычечные блоки
   3. Специальные блоки
V. Общие чертежи
   Общий вид 3-х рядной разрезки наружной стены
   Пример раскладки блоков наружной стены
   Пример раскладки блоков внутренней продольной стены
   Примыкание внутренней продольной стены к наружной торцевой
   Наружная стена в местах оконного и балконного проемов
   Пример решения сплошного ж/б пояса
   Соединение блоков между собой
   Установка электротехнических блока и импоста
VI. Примеры раскладки кирпича в наиболее характерных блоках
   1. Простеночный блок для наружной стены толщиной 51 см
   2. Подоконный блок
   3. Угловой стеновой блок
   4. Перемычечный блок
   5. Поясной блок
   6. Стеновой блок для внутренней стены толщиной 38 см
Разработан: Гипрогор Госстроя РСФСР
Киевпроект Киевского горисполкома
Утверждён:06.09.1958 Госстрой СССР (348)
Расположен в:Техническая документация Строительство Справочные документы Типовые строительные конструкции, изделия и узлы Общероссийский строительный каталог Строительные конструкции, изделия и узлы зданий и сооружений для всех видов строительства Конструкции, изделия и узлы зданий Ограждающие конструкции Стены наружные Металлические и из других материалов
Серия ИИ-03-06Серия ИИ-03-06Серия ИИ-03-06Серия ИИ-03-06Серия ИИ-03-06Серия ИИ-03-06Серия ИИ-03-06Серия ИИ-03-06Серия ИИ-03-06Серия ИИ-03-06Серия ИИ-03-06Серия ИИ-03-06Серия ИИ-03-06Серия ИИ-03-06Серия ИИ-03-06Серия ИИ-03-06Серия ИИ-03-06Серия ИИ-03-06Серия ИИ-03-06Серия ИИ-03-06Серия ИИ-03-06Серия ИИ-03-06Серия ИИ-03-06Серия ИИ-03-06Серия ИИ-03-06Серия ИИ-03-06Серия ИИ-03-06Серия ИИ-03-06Серия ИИ-03-06Серия ИИ-03-06Серия ИИ-03-06Серия ИИ-03-06Серия ИИ-03-06Серия ИИ-03-06Серия ИИ-03-06Серия ИИ-03-06Серия ИИ-03-06Серия ИИ-03-06Серия ИИ-03-06Серия ИИ-03-06Серия ИИ-03-06Серия ИИ-03-06Серия ИИ-03-06Серия ИИ-03-06Серия ИИ-03-06Серия ИИ-03-06Серия ИИ-03-06Серия ИИ-03-06Серия ИИ-03-06Серия ИИ-03-06Серия ИИ-03-06Серия ИИ-03-06Серия ИИ-03-06Серия ИИ-03-06Серия ИИ-03-06Серия ИИ-03-06Серия ИИ-03-06Серия ИИ-03-06Серия ИИ-03-06Серия ИИ-03-06Серия ИИ-03-06Серия ИИ-03-06Серия ИИ-03-06Серия ИИ-03-06Серия ИИ-03-06Серия ИИ-03-06Серия ИИ-03-06Серия ИИ-03-06Серия ИИ-03-06Серия ИИ-03-06Серия ИИ-03-06Серия ИИ-03-06Серия ИИ-03-06Серия ИИ-03-06Серия ИИ-03-06Серия ИИ-03-06Серия ИИ-03-06Серия ИИ-03-06Серия ИИ-03-06Серия ИИ-03-06Серия ИИ-03-06Серия ИИ-03-06Серия ИИ-03-06Серия ИИ-03-06Серия ИИ-03-06Серия ИИ-03-06Серия ИИ-03-06Серия ИИ-03-06Серия ИИ-03-06Серия ИИ-03-06Серия ИИ-03-06Серия ИИ-03-06Серия ИИ-03-06Серия ИИ-03-06Серия ИИ-03-06Серия ИИ-03-06Серия ИИ-03-06Серия ИИ-03-06Серия ИИ-03-06Серия ИИ-03-06Серия ИИ-03-06Серия ИИ-03-06Серия ИИ-03-06Серия ИИ-03-06Серия ИИ-03-06Серия ИИ-03-06Серия ИИ-03-06Серия ИИ-03-06Серия ИИ-03-06Серия ИИ-03-06Серия ИИ-03-06Серия ИИ-03-06Серия ИИ-03-06Серия ИИ-03-06Серия ИИ-03-06Серия ИИ-03-06Серия ИИ-03-06Серия ИИ-03-06Серия ИИ-03-06Серия ИИ-03-06Серия ИИ-03-06Серия ИИ-03-06Серия ИИ-03-06Серия ИИ-03-06Серия ИИ-03-06Серия ИИ-03-06Серия ИИ-03-06Серия ИИ-03-06Серия ИИ-03-06Серия ИИ-03-06Серия ИИ-03-06Серия ИИ-03-06Серия ИИ-03-06Серия ИИ-03-06Серия ИИ-03-06Серия ИИ-03-06Серия ИИ-03-06Серия ИИ-03-06Серия ИИ-03-06Серия ИИ-03-06Серия ИИ-03-06Серия ИИ-03-06Серия ИИ-03-06Серия ИИ-03-06Серия ИИ-03-06Серия ИИ-03-06Серия ИИ-03-06Серия ИИ-03-06Серия ИИ-03-06Серия ИИ-03-06Серия ИИ-03-06Серия ИИ-03-06Серия ИИ-03-06

© 2013 Ёшкин Кот :-) Карта сайта