Информационная система
«Ёшкин Кот»

Скачать базу одним архивом
Скачать обновления
История создания базы
Карта сайта

Скачать СТО ДОКТОР БЕТОН 68686983-004-2014 Смеси сухие строительные марки ДОКТОР БЕТОН® для гидроизоляции и ремонта бетонных конструкций. Типовые решения. Узлы

Дата актуализации: 10.08.2017

СТО ДОКТОР БЕТОН 68686983-004-2014

Смеси сухие строительные марки "ДОКТОР БЕТОН®" для гидроизоляции и ремонта бетонных конструкций. Типовые решения. Узлы

Обозначение: СТО ДОКТОР БЕТОН 68686983-004-2014
Обозначение англ: 68686983-004-2014
Статус:действует
Название рус.:Смеси сухие строительные марки "ДОКТОР БЕТОН®" для гидроизоляции и ремонта бетонных конструкций. Типовые решения. Узлы
Название англ.:Dry building mixtures trade mark "ДОКТОР БЕТОН®" for waterproofing and repair concrete construction.
Дата добавления в базу:01.10.2014
Дата актуализации:05.05.2017
Дата введения:01.05.2014
Оглавление:Гидроизоляция и дренаж подземной части здания снаружи при новом строительстве
Гидроизоляция подвала здания изнутри при реконструкции
Гидроизоляция изнутри при новом строительстве и ремонте
Устройство гидроизоляции подземной части здания в стесненных условиях
Гидроизоляция подвала существующего здания изнутри
Гидроизоляция подвала существующего здания с устройством внутреннего дренажа
Гидроизоляция и дренаж подземной части здания при новом строительстве с утеплением
Гидроизоляция подземной части здания при новом строительстве
Гидроизоляция при ремонте существующего здания
Гидроизоляция и дренаж подземной части здания при новом строительстве
Гидроизоляция при ремонте старого здания с кирпичными стенами
Гидроизоляция резервуара изнутри при новом строительстве
Гидроизоляция заглубленного резервуара
Гидроизоляция бассейна
Гидроизоляция сборного железобетонного колодца
Устройство гидроизоляции КНС
Устройство гидроизоляции Аэротенка
Гидроизоляция примыкания "стена-фундаментная плита" снаружи
Герметизация холодного шва бетонирования ж/б плиты
Герметизация холодного шва бетонирования ж/б стены
Гидроизоляция примыкания "стена-фундаментная плита" изнутри
Гидроизоляция ввода коммуникаций с учетом сейсмичности
Гидроизоляция ввода коммуникаций в газифицированных населенных пунктах
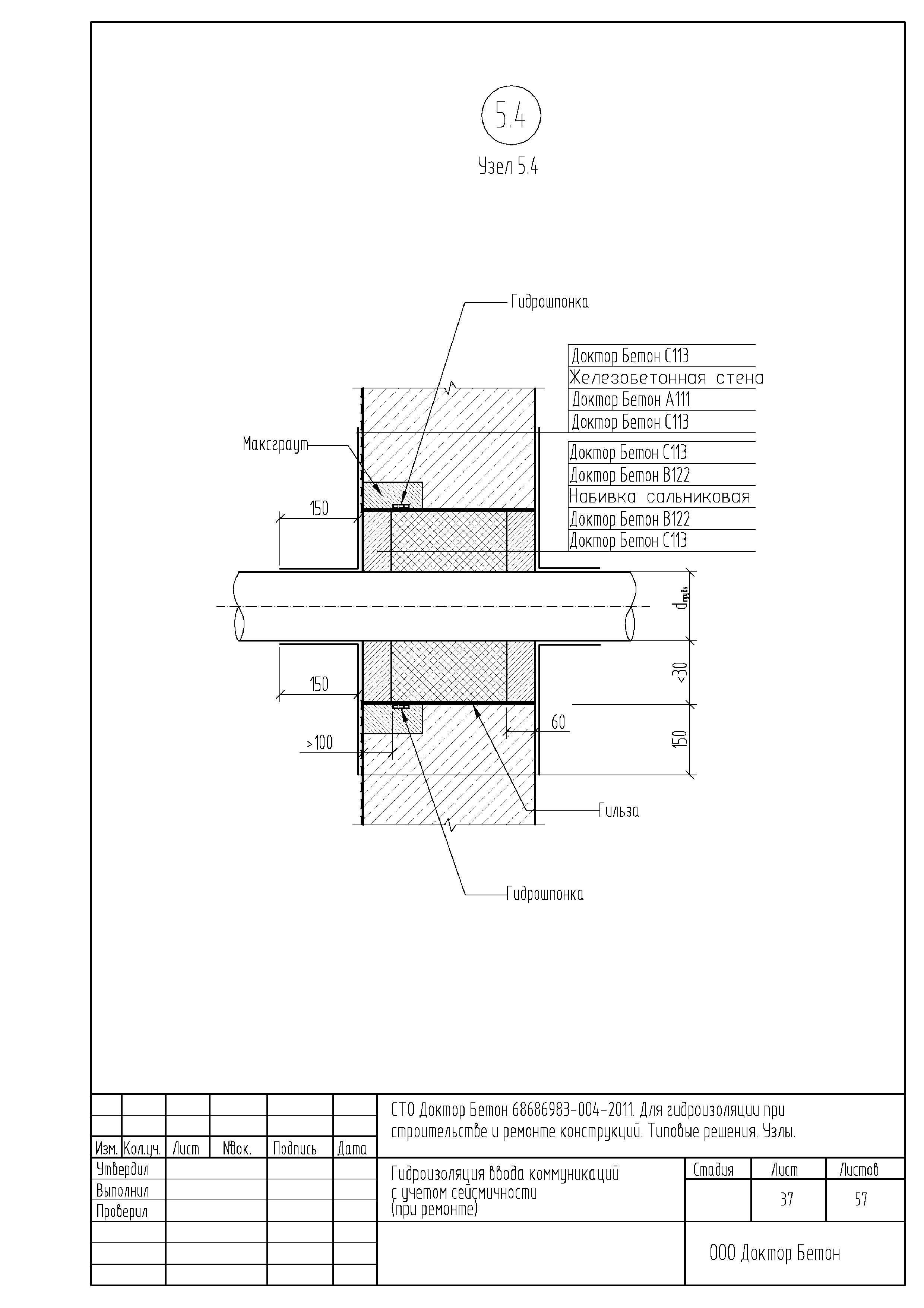
Гидроизоляция ввода коммуникаций с учетом сейсмичности (при ремонте)
Гидроизоляция ввода коммуникаций (при ремонте)
Гидроизоляция деформационного шва
Гидроизоляция деформационного шва при воздействии агрессивных сред
Герметизация технологических отверстий
Устройство гидроизоляции временного температурно-усадочного шва
Гидроизоляция террас и балконов
Гидроизоляция эксплуатируемых кровель, террас и балконов
Гидроизоляция технологических швов (разрывов бетонирования)
Гидроизоляция фундаментной плиты в месте расположения деформационного шва
Гидроизоляция внутреннего помещения (санузлы, душевые и т.д.)
Гидроизоляция плитно-свайного фундамента снизу
Устройство гидроизоляции эксплуатируемой кровли с дорожным покрытием
Устройство гидроизоляции эксплуатируемой кровли с утеплением
Устройство гидроизоляции и дренажа подпорной стенки
Разработан: ООО ДОКТОР БЕТОН
Утверждён:01.05.2014 ООО ДОКТОР БЕТОН (04/НТД)
Издан: ООО ДОКТОР БЕТОН (2014 г. )
Расположен в:Техническая документация Строительство Стандарты Производственно-отраслевые стандарты
Нормативные ссылки:
СТО ДОКТОР БЕТОН 68686983-004-2014СТО ДОКТОР БЕТОН 68686983-004-2014СТО ДОКТОР БЕТОН 68686983-004-2014СТО ДОКТОР БЕТОН 68686983-004-2014СТО ДОКТОР БЕТОН 68686983-004-2014СТО ДОКТОР БЕТОН 68686983-004-2014СТО ДОКТОР БЕТОН 68686983-004-2014СТО ДОКТОР БЕТОН 68686983-004-2014СТО ДОКТОР БЕТОН 68686983-004-2014СТО ДОКТОР БЕТОН 68686983-004-2014СТО ДОКТОР БЕТОН 68686983-004-2014СТО ДОКТОР БЕТОН 68686983-004-2014СТО ДОКТОР БЕТОН 68686983-004-2014СТО ДОКТОР БЕТОН 68686983-004-2014СТО ДОКТОР БЕТОН 68686983-004-2014СТО ДОКТОР БЕТОН 68686983-004-2014СТО ДОКТОР БЕТОН 68686983-004-2014СТО ДОКТОР БЕТОН 68686983-004-2014СТО ДОКТОР БЕТОН 68686983-004-2014СТО ДОКТОР БЕТОН 68686983-004-2014СТО ДОКТОР БЕТОН 68686983-004-2014СТО ДОКТОР БЕТОН 68686983-004-2014СТО ДОКТОР БЕТОН 68686983-004-2014СТО ДОКТОР БЕТОН 68686983-004-2014СТО ДОКТОР БЕТОН 68686983-004-2014СТО ДОКТОР БЕТОН 68686983-004-2014СТО ДОКТОР БЕТОН 68686983-004-2014СТО ДОКТОР БЕТОН 68686983-004-2014СТО ДОКТОР БЕТОН 68686983-004-2014СТО ДОКТОР БЕТОН 68686983-004-2014СТО ДОКТОР БЕТОН 68686983-004-2014СТО ДОКТОР БЕТОН 68686983-004-2014СТО ДОКТОР БЕТОН 68686983-004-2014СТО ДОКТОР БЕТОН 68686983-004-2014СТО ДОКТОР БЕТОН 68686983-004-2014СТО ДОКТОР БЕТОН 68686983-004-2014СТО ДОКТОР БЕТОН 68686983-004-2014СТО ДОКТОР БЕТОН 68686983-004-2014СТО ДОКТОР БЕТОН 68686983-004-2014СТО ДОКТОР БЕТОН 68686983-004-2014СТО ДОКТОР БЕТОН 68686983-004-2014СТО ДОКТОР БЕТОН 68686983-004-2014СТО ДОКТОР БЕТОН 68686983-004-2014СТО ДОКТОР БЕТОН 68686983-004-2014СТО ДОКТОР БЕТОН 68686983-004-2014СТО ДОКТОР БЕТОН 68686983-004-2014СТО ДОКТОР БЕТОН 68686983-004-2014СТО ДОКТОР БЕТОН 68686983-004-2014СТО ДОКТОР БЕТОН 68686983-004-2014СТО ДОКТОР БЕТОН 68686983-004-2014СТО ДОКТОР БЕТОН 68686983-004-2014СТО ДОКТОР БЕТОН 68686983-004-2014СТО ДОКТОР БЕТОН 68686983-004-2014СТО ДОКТОР БЕТОН 68686983-004-2014СТО ДОКТОР БЕТОН 68686983-004-2014СТО ДОКТОР БЕТОН 68686983-004-2014СТО ДОКТОР БЕТОН 68686983-004-2014СТО ДОКТОР БЕТОН 68686983-004-2014СТО ДОКТОР БЕТОН 68686983-004-2014СТО ДОКТОР БЕТОН 68686983-004-2014СТО ДОКТОР БЕТОН 68686983-004-2014СТО ДОКТОР БЕТОН 68686983-004-2014

© 2013 Ёшкин Кот :-) Карта сайта