Скачать РМД 35-17-2012 Санкт-Петербург Рекомендуемые для повторного применения проектных решения по обеспечению доступности для инвалидов и других маломобильных групп населения жилых домов, построенных в Санкт-Петербурге по типовым проектам в 60 - 80 годах ХХ векаДата актуализации: 10.08.2017 РМД 35-17-2012 Санкт-Петербург
Рекомендуемые для повторного применения проектных решения по обеспечению доступности для инвалидов и других маломобильных групп населения жилых домов, построенных в Санкт-Петербурге по типовым проектам в 60 - 80 годах ХХ векаОбозначение: | РМД 35-17-2012 Санкт-Петербург | Обозначение англ: | 35-17-2012 Санкт-Петербург | Статус: | действует | Название рус.: | Рекомендуемые для повторного применения проектных решения по обеспечению доступности для инвалидов и других маломобильных групп населения жилых домов, построенных в Санкт-Петербурге по типовым проектам в 60 - 80 годах ХХ века | Дата добавления в базу: | 01.10.2014 | Дата актуализации: | 05.05.2017 | Область применения: | Рекомендации регионального методического документа направлены на создание полноценной архитектурной среды в соответствии со специфическими требованиями маломобильной группы населения, путем применения необходимых реконструкционных мероприятий к отдельным частям зданий, оснащением современным оборудованием и мебелью, обеспечивающими необходимый уровень доступности, безопасности и стандарта обслуживания. Действие РМД распространяется на проектирование реконструкционных мероприятий в жилых зданиях Санкт- Петербурга, построенных по типовым проектам в 60 - 80 годах ХХ века, при их реконструкции и капитальном ремонте.
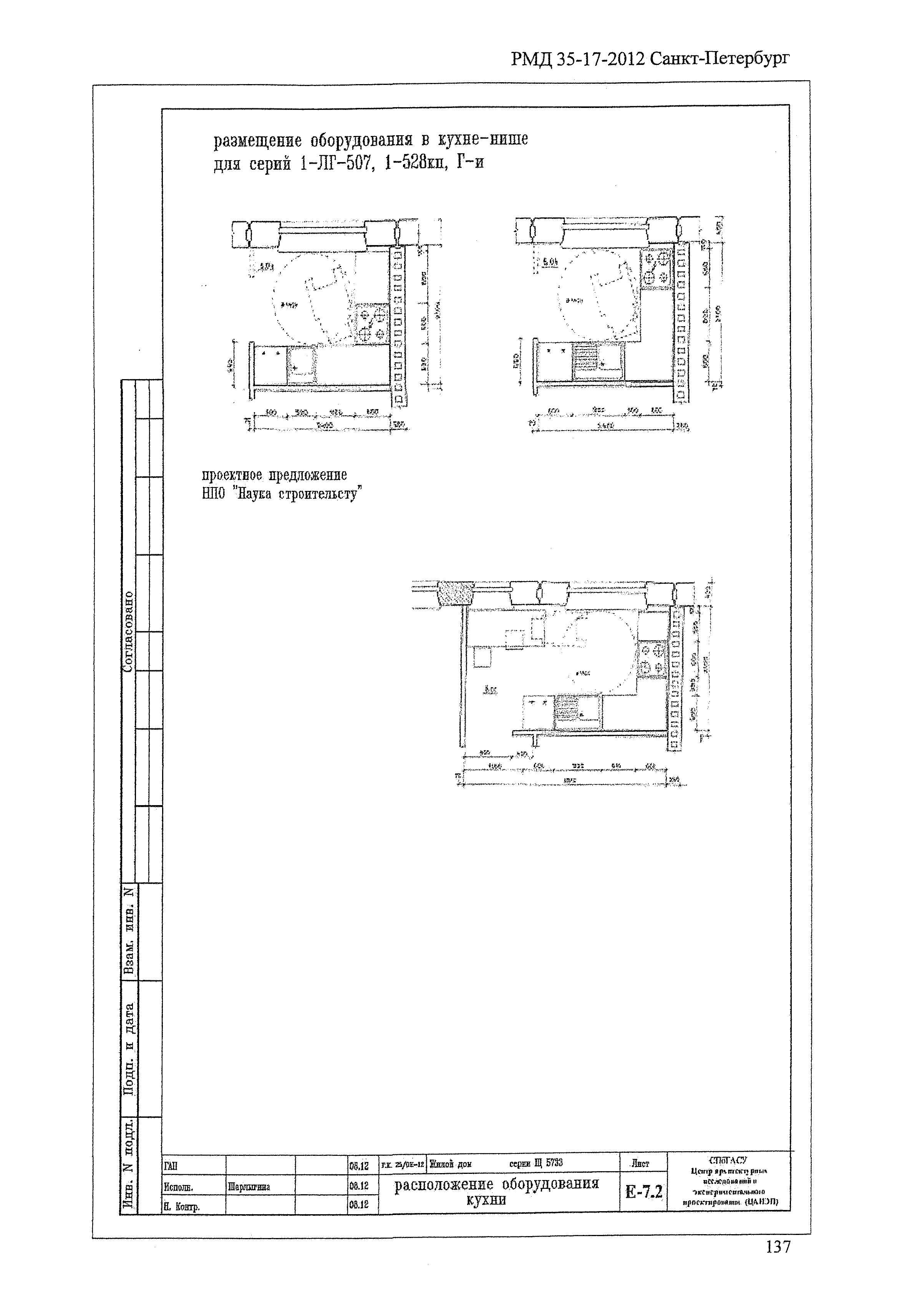
Документ предназначается для всех участников градостроительной деятельности, государственных органов управления и надзора, в том числе органов экспертизы, при включении их в задание на проектирование, утвержденное в установленном порядке. Положения методического документа являются обязательными для выполнения при включении требования руководствоваться данным документом в договоры (контракты), задания на проектирование, нормативные документы (стандарты) организаций, в том числе саморегулируемых. | Оглавление: | Введение 1 Область применения 2 Нормативные ссылки 3 Термины и определения 4 Общие положения 5 Жилые дома, построенные по типовым проектам в 60 - 80-х годах ХХ века 6 Требования к обеспечению доступности территорий земельных участков 7 Требования к к обеспечению доступности зданий 7.1 Входная группа помещений 7.2 Вестибюльная группа помещений 7.3 Вертикальные коммуникации (архитектурные элементы и технические средства доступности) 7.4 Поэтажные коммуникационные пространства 7.5 Входы в помещения 7.6 Пожаробезопасная зона 8 Квартиры и их помещения 8.1 Условия доступности внутри помещений 8.2 Жилые комнаты 8.3 Вспомогательные помещения 8.4 Кухни 8.5 Санитарные узлы 8.6 Открытые помещения 8.7 Расчет стоимости предлагаемых мероприятий Библиография Приложение А (справочное) Приспособление безлифтовых жилых секций с продольными несущими стенами к условиям передвижения инвалидов-колясочников Приложение Б (справочное) Приспособление безлифтовых жилых секций с поперечными несущими стенами к условиям передвижения инвалидов-колясочников Приложение В (справочное) Приспособление каркасных безлифтовых жилых секций к условиям передвижения инвалидов-колясочников Приложение Г (справочное) Приспособление односекционных точечных жилых секций с лифтами к условиям передвижения инвалидов-колясочников Приложение Д (справочное) Приспособление жилых секций с продольными несущими стенами с лифтами к условиям передвижения инвалидов-колясочников Приложение Е (справочное) Приспособление жилых секций с поперечными несущими стенами с лифтами к условиям передвижения инвалидов-колясочников | Разработан: | СПбГАСУ
| Утверждён: | 24.12.2012 Комитет по строительству Правительства Санкт-Петербурга (152)
| Принят: | Комитет по градостроительству и архитектуре Администрации Санкт-Петербурга (Committee on Urban Planning and Architecture, Administration of St. Petersburg ) Служба государственного строительного надзора и экспертизы Санкт-Петербурга Жилищный комитет Санкт-Петербурга Комитет по социальной политике Санкт-Петербурга Управление Роспотребнадзора по г. Санкт-Петербург
| Издан: | Администрация Санкт-Петербурга (2013 г. )
| Расположен в: |
| Нормативные ссылки: |   МДС 35-2.2000 «Рекомендации по проектированию окружающей среды, зданий и сооружений с учетом потребностей инвалидов и других маломобильных групп населения. Выпуск 2. "Градостроительные требования"»  ГОСТ 12.1.004-91 «Система стандартов безопасности труда. Пожарная безопасность. Общие требования»  СП 35-101-2001 «Проектирование зданий и сооружений с учетом доступности для маломобильных групп населения. Общие положения»  СП 35-102-2001 «Жилая среда с планировочными элементами, доступными инвалидам»  СП 35-103-2001 «Общественные здания и сооружения, доступные маломобильным посетителям» Федеральный закон 181-ФЗ «О социальной защите инвалидов в Российской Федерации»  ГОСТ Р 51630-2000 «Платформы подъемные с вертикальным и наклонным перемещением для инвалидов. Технические требования доступности» СанПиН 2.2.1/2.1.1.1076-01 «Гигиенические требования к инсоляции и солнцезащите помещений жилых и общественных зданий и территорий»  СП 35-105-2002 «Реконструкция городской застройки с учетом доступности для инвалидов и других маломобильных групп населения»  СанПиН 2.2.1/2.1.1.1200-03 «Санитарно-защитные зоны и санитарная классификация предприятий, сооружений и иных объектов» ГОСТ Р 51083-97 «Кресла-коляски. Общие технические условия»  СП 35-114-2003 «Реконструкция и приспособление зданий для учреждений социального обслуживания пожилых людей» ГОСТ Р 51633-2000 «Устройства и приспособления реабилитационные, используемые инвалидами в жилых помещениях. Общие технические требования» ГОСТ Р 52131-2003 «Средства отображения информации знаковые для инвалидов. Технические требования»  Кодекс 190-ФЗ «Градостроительный кодекс Российской Федерации» Федеральный закон 191-ФЗ «О введении в действие Градостроительного кодекса Российской Федерации»  СП 35-109-2005 «Помещения для досуговой и физкультурно-оздоровительной деятельности пожилых людей» ГОСТ Р 51079-2006 «Технические средства реабилитации людей с ограничениями жизнедеятельности. Классификация»  ГОСТ Р 52875-2007 «Указатели тактильные наземные для инвалидов по зрению. Технические требования» ГОСТ Р 52880-2007 «Социальное обслуживание населения. Типы учреждений социального обслуживания граждан пожилого возраста и инвалидов» Технический регламент «Технический регламент о требованиях пожарной безопасности»  ГОСТ Р 51631-2008 «Лифты пассажирские. Технические требования доступности, включая доступность для инвалидов и других маломобильных групп населения» Федеральный закон 384-ФЗ «Технический регламент о безопасности зданий и сооружений»  ГОСТ Р 53453-2009 «Эргономика термальной среды. Применение требований стандартов к людям с особыми требованиями»  СанПиН 2.1.2.2645-10 «Санитарно-эпидемиологические требования к условиям проживания в жилых зданиях и помещениях»  СП 29.13330.2011 «Полы»  СП 52.13330.2011 «Естественное и искусственное освещение»  СП 54.13330.2011 «Здания жилые многоквартирные»  СП 42.13330.2011 «Градостроительство. Планировка и застройка городских и сельских поселений»  СП 118.13330.2012* «Общественные здания и сооружения» Серия 2.090-2.11 «Конструкции с системами электрообогрева: полы, элементы покрытий и водостоков, пути движения людей и автотранспорта»  СП 59.13330.2012 «Доступность зданий и сооружений для маломобильных групп населения»  СП 113.13330.2012 «Стоянки автомобилей» Приказ 627 «Об утверждении критериев наличия (отсутствия) технической возможности установки индивидуального, общего (квартирного), коллективного (общедомового) приборов учета, а также формы акта обследования на предмет установления наличия (отсутствия) технической возможности установки таких приборов учета и порядка ее заполнения»
|
                                                                                                                                           
|