Информационная система
«Ёшкин Кот»

Скачать базу одним архивом
Скачать обновления
История создания базы
Карта сайта

Скачать Типовой проект 902-2-337 Альбом II. Конструкции железобетонные

Дата актуализации: 10.08.2017

Типовой проект 902-2-337

Альбом II. Конструкции железобетонные

Обозначение: Типовой проект 902-2-337
Обозначение англ: 902-2-337
Статус:не определен законодательством
Название рус.:Альбом II. Конструкции железобетонные
Дата добавления в базу:01.10.2014
Дата актуализации:05.05.2017
Дата введения:13.05.1980
Оглавление:Общие данные
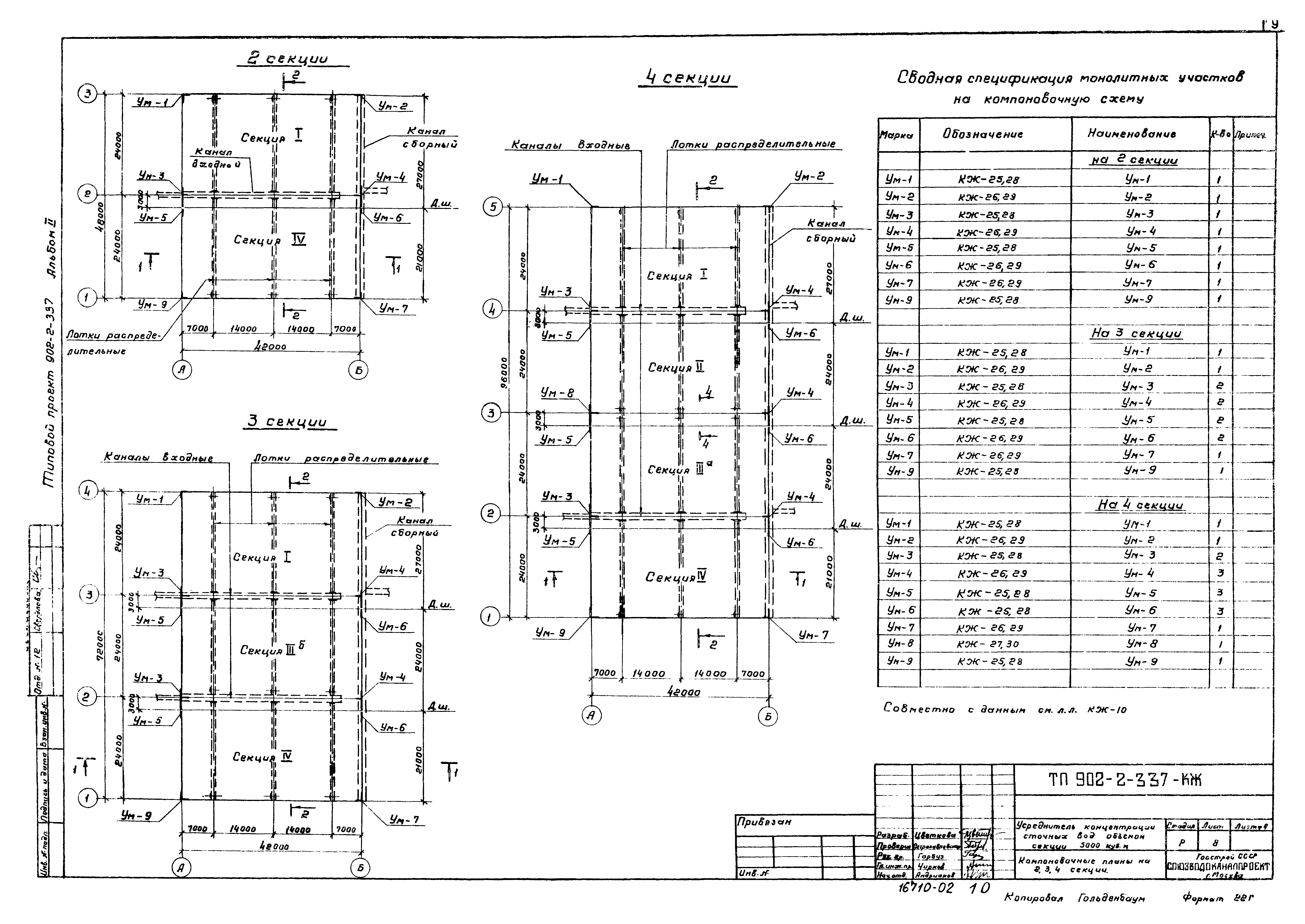
Компоновочные планы на 2, 3, 4 секции
Компоновочные планы на 5, 6 секций
План, разрезы
Секция I. Днище. Опалубочный чертеж
Секции II, IIIа, б, в. Днище. Опалубочный чертеж
Секция IV. Днище. Опалубочный чертеж
Секции I, II, IIIа, б, в, IV. Днище. Опалубочный чертеж. Сечения
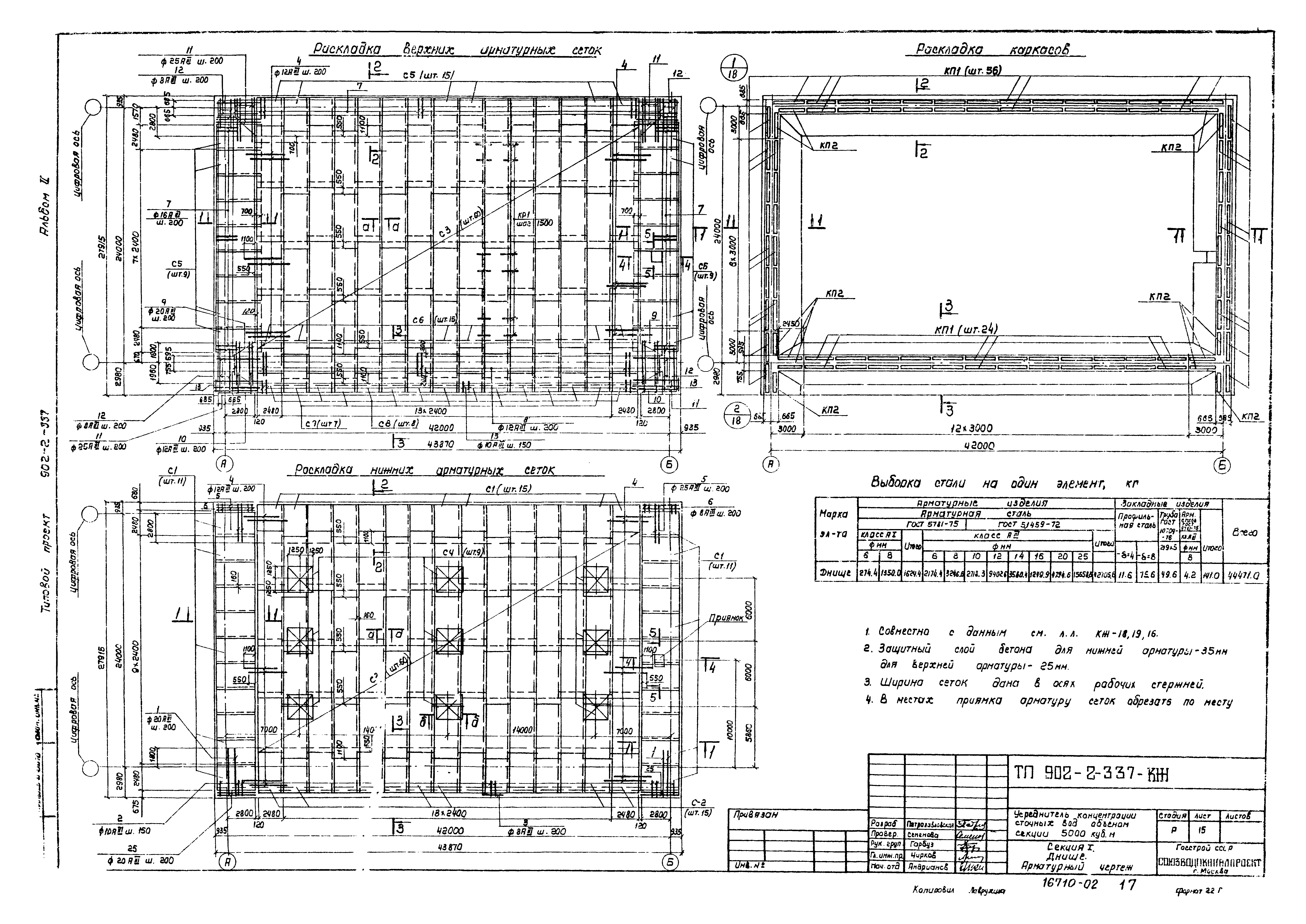
Секция I. Днище. Арматурный чертеж
Секции II, IIIа, б, в. Днище. Арматурный чертеж
Секция IV. Днище. Арматурный чертеж
Секции I, II, IIIа, б, в, IV. Днище. Арматурный чертеж. Сечения. Узлы 1, 2
Секции I, II, IIIа, б, в, IV. Днище. Ведомости стержней
Секция I. Монтажный чертеж стен
Секция II. Монтажный чертеж стен
Секции IIIа, б, в. Монтажный чертеж стен
Секция IV. Монтажный чертеж стен
Секции I, II, IIIа, б, в, IV. Монтажный чертеж стен. Узлы, детали
Монолитные участки Ум-1, 3, 5, 9. Опалубочный чертеж
Монолитные участки Ум-2, 4, 6, 7. Опалубочный чертеж
Монолитный участок Ум-8. Опалубочный чертеж. Спецификация элементов
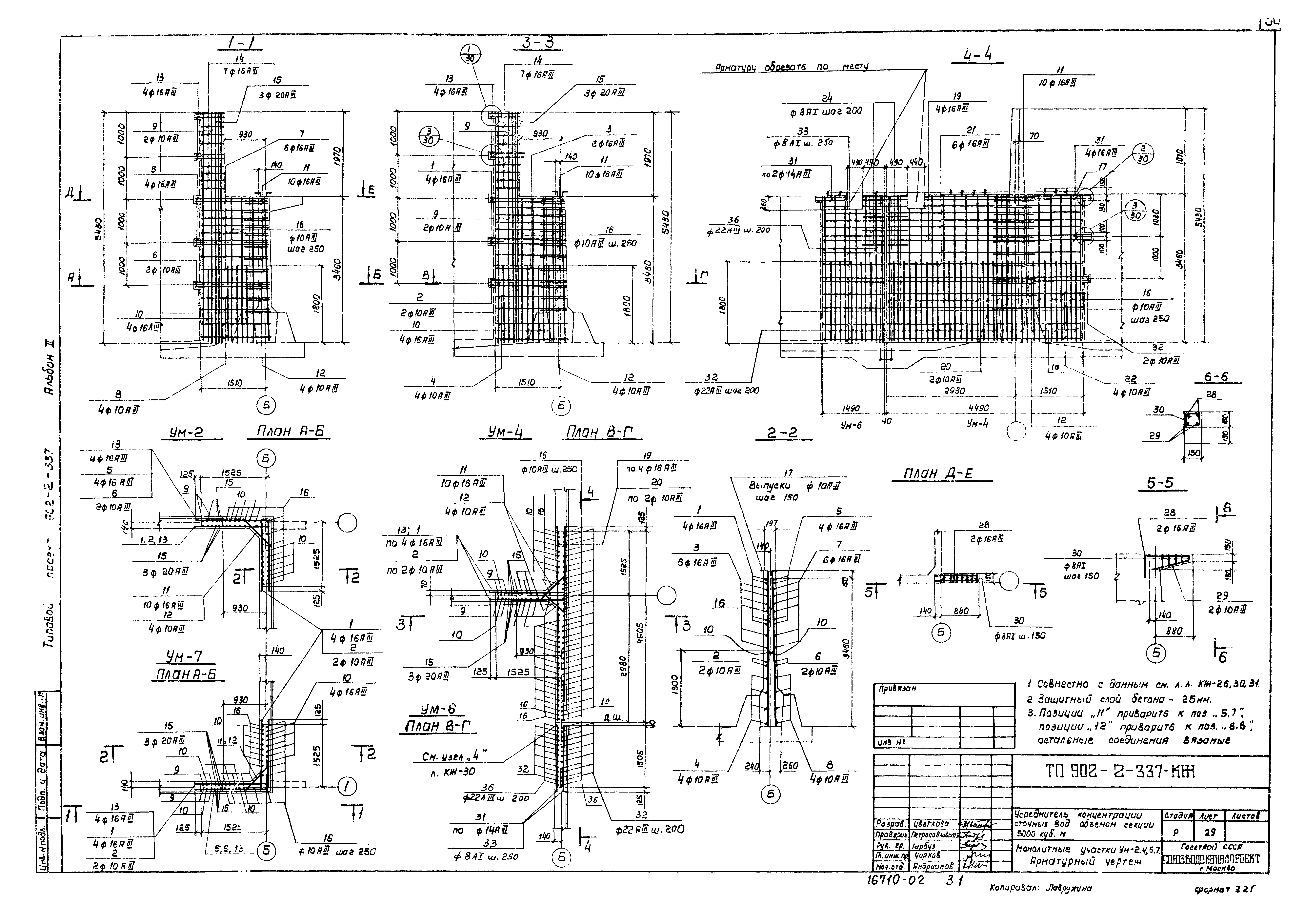
Монолитные участки Ум-1, 3, 5, 9. Арматурный чертеж
Монолитные участки Ум-2, 4, 6, 7. Арматурный чертеж
Монолитный участок Ум-8. Арматурный чертеж. Узлы, детали
Монолитные участки. Спецификация одиночных стержней. Выборка арматуры
Монолитные участки Ум-10, 11. Арматурно-опалубочный чертеж
Секция I. Монтажный план лотков, балок, колонн
Секции II, IV. Монтажный план лотков, балок, колонн
Секции IIIа, б, в. Монтажный план лотков, балок, колонн
Узлы 1 - 6; 14
Узлы 7 - 10
Узлы 11 - 13
Секции I, IV. Монтажный план переходных мостиков
Секции II, IIIа, б, в. Монтажный план переходных мостиков
Секции I, II, IV. Монтажный план опор под барботеры
Секции IIIа, б, в. Монтажный план опор под барботеры. Узлы, сечения
Разработан: Союзводоканалниипроект
Утверждён:15.02.1980 СоюзводоканалНИИпроект (SoyuzvodokanalNIIproject )
Расположен в:Техническая документация Строительство Справочные документы Типовые строительные конструкции, изделия и узлы Общероссийский строительный каталог Промышленные предприятия, здания и сооружения Здания и сооружения санитарно-технические Канализация Сооружения для очистки производственных сточных вод Станции физико-химической очистки
Типовой проект 902-2-337Типовой проект 902-2-337Типовой проект 902-2-337Типовой проект 902-2-337Типовой проект 902-2-337Типовой проект 902-2-337Типовой проект 902-2-337Типовой проект 902-2-337Типовой проект 902-2-337Типовой проект 902-2-337Типовой проект 902-2-337Типовой проект 902-2-337Типовой проект 902-2-337Типовой проект 902-2-337Типовой проект 902-2-337Типовой проект 902-2-337Типовой проект 902-2-337Типовой проект 902-2-337Типовой проект 902-2-337Типовой проект 902-2-337Типовой проект 902-2-337Типовой проект 902-2-337Типовой проект 902-2-337Типовой проект 902-2-337Типовой проект 902-2-337Типовой проект 902-2-337Типовой проект 902-2-337Типовой проект 902-2-337Типовой проект 902-2-337Типовой проект 902-2-337Типовой проект 902-2-337Типовой проект 902-2-337Типовой проект 902-2-337Типовой проект 902-2-337Типовой проект 902-2-337Типовой проект 902-2-337Типовой проект 902-2-337Типовой проект 902-2-337Типовой проект 902-2-337Типовой проект 902-2-337Типовой проект 902-2-337Типовой проект 902-2-337Типовой проект 902-2-337Типовой проект 902-2-337Типовой проект 902-2-337

© 2013 Ёшкин Кот :-) Карта сайта