| ||||||||||||||||||||||||||||||
Скачать Серия 1.020-1 Выпуск 0-1. Часть II. Указания по применению изделий. Рабочие чертежиДата актуализации: 10.08.2017
|
| Обозначение: | Серия 1.020-1 |
| Обозначение англ: | Series 1.020-1 |
| Статус: | заменен |
| Название рус.: | Выпуск 0-1. Часть II. Указания по применению изделий. Рабочие чертежи |
| Дата добавления в базу: | 01.10.2014 |
| Дата актуализации: | 05.05.2017 |
| Дата введения: | 01.10.1984 |
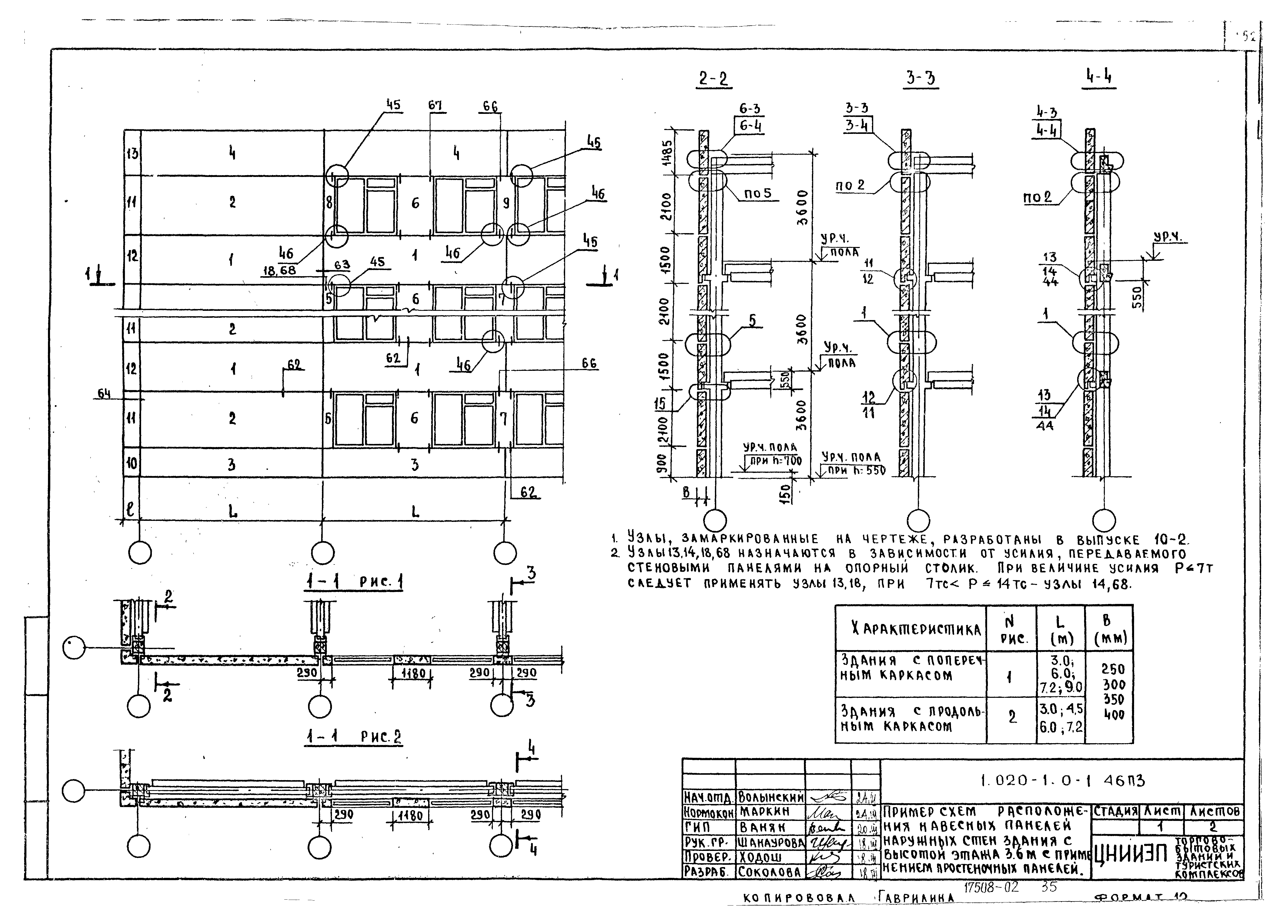
| Оглавление: | 1.020-1.0-1 37ПЗ Схемы компоновки диафрагм жесткости для различных высот этажей и пролетов 1.020-1.0-1 38ПЗ Схемы расположения элементов каркаса для зданий с многопустотными панелями перекрытий при ригелях с высотой сечения 450 мм 1.020-1.0-1 39ПЗ Схема расположения элементов каркаса для зданий с плитами перекрытия типа ТТ и Т 1.020-1.0-1 40ПЗ Схемы расположения элементов каркаса для зданий с сетками колонн 6х6 и 9х9 м с ребристыми плитами и для зданий с многопустотными панелями при опережающем монтаже 1.020-1.0-1 41ПЗ Схема установки ограждений лестниц 1.020-1.0-1 42ПЗ Пример схем расположения самонесущих панелей наружных стен здания с высотой этажа 3,3 м 1.020-1.0-1 43ПЗ Пример схем расположения самонесущих панелей наружных стен здания с высотой 1-го этажа 6,0 м и высотой последующих этажей 4,8 м 1.020-1.0-1 44ПЗ Пример схем расположения самонесущих панелей наружных стен здания с высотой 1-го этажа 7,2 м и высотой последующих этажей 6,0 м 1.020-1.0-1 45ПЗ Пример схем расположения самонесущих панелей наружных стен здания при шаге колонн 12 м 1.020-1.0-1 46ПЗ Пример схем расположения навесных панелей наружных стен здания с высотой этажа 3,6 м с применением простеночных панелей 1.020-1.0-1 47ПЗ Пример схем расположения навесных панелей наружных стен здания с высотой 1-го этажа 3,6 м и высотой последующих этажей 2,8 м с применением ленточного остекления 1.020-1.0-1 48ПЗ Пример схем расположения навесных панелей наружных стен здания с высотой 1-го этажа 7,2 м и высотой последующих этажей 6,0 м при ленточном остеклении 1.020-1.0-1 49ПЗ Пример схем расположения навесных и самонесущих панелей наружных стен при устройстве внутреннего угла зданий с высотой этажа 3,3 м 1.020-1.0-1 50ПЗ Решение нулевого цикла в зданиях с полами по грунту 1.020-1.0-1 51ПЗ Примеры схем расположения карнизных панелей 1.020-1.0-1 52ПЗ Пример схем расположения панелей нулевого цикла длиной на пролет 1.020-1.0-1 53ПЗ Пример схем расположения панелей нулевого цикла с применением промежуточных фундаментов 1.020-1.0-1 54ПЗ Примеры схем расположения панелей входов зданий 1.020-1.0-1 55ПЗ Примеры расположения дополнительных закладных деталей в колоннах для крепления диафрагм 1.020-1.0-1 56ПЗ Примеры расположения дополнительных закладных деталей в колоннах для крепления поворотных ригелей, пристенных и связевых плит 1.020-1.0-1 57ПЗ Примеры расположения дополнительных закладных деталей в колоннах для крепления стеновых панелей 1.020-1.0-1 58ПЗ Примеры расположения дополнительных закладных деталей в колоннах для крепления лестничных ригелей 1.020-1.0-1 59ПЗ Пример расположения дополнительных закладных деталей в колоннах для крепления лестничных ригелей при высотах этажей 6,0 и 7,2 м 1.020-1.0-1 60ПЗ Пример расположения дополнительных закладных деталей в колоннах для крепления вертикальных стальных связей 1.020-1.0-1 61ПЗ Расчетные схемы дополнительных закладных деталей в колоннах 1.020-1.0-1 62ПЗ Расчетные схемы дополнительных закладных деталей для крепления стальных связей 1.020-1.0-1 63ПЗ Примеры расположения дополнительных закладных деталей в ригелях. Опалубочный чертеж диафрагм жесткости 1Д-Л и 1Д-П 1.020-1.0-1 64ПЗ Пример расположения закладной детали для крепления подкоса стальных связей к монолитному фундаменту связевой панели 1.020-1.0-1 65ПЗ Пример расположения дополнительных арматурных изделий в пристенной панели 1.020-1.0-1 66ПЗ Расположение дополнительных закладных деталей в колоннах при монтаже зданий без поэтажного замоноличивания 1.020-1.0-1 67ПЗ Расположение дополнительных закладных деталей в плитах перекрытия типа ТТ и Т |
| Разработан: | НИИЖБ Госстроя СССР ЦНИИпромзданий ЦНИИЭП торгово-бытовых зданий и туристских комплексов |
| Утверждён: | 16.11.1981 Госстрой СССР (Государственный комитет Совета Министров СССР по делам строительства) (USSR Gosstroy 190) |
| Расположен в: | |
| Заменяет собой: |
|
| Чем заменён: |






























































