Информационная система
«Ёшкин Кот»

Скачать базу одним архивом
Скачать обновления
История создания базы
Карта сайта

Скачать Пособие по применению Методики определения расчетных величин пожарного риска в зданиях, сооружениях и строениях различных классов функциональной пожарной опасности

Дата актуализации: 10.08.2017

Пособие по применению "Методики определения расчетных величин пожарного риска в зданиях, сооружениях и строениях различных классов функциональной пожарной опасности"

Статус:действует
Название рус.:Пособие по применению "Методики определения расчетных величин пожарного риска в зданиях, сооружениях и строениях различных классов функциональной пожарной опасности"
Дата добавления в базу:01.09.2013
Дата актуализации:05.05.2017
Область применения:Документ предназначен для практического использования при определении расчетных величин пожарного риска на объектах общественного назначения. Представлены разъяснения по ряду вопросов, не нашедших отражения в 1-м издании. Приведены примеры расчета пожарного риска для многофункционального здания, здания гостиницы и пример расчета эвакуации с использованием имитационно-стохастической модели. Предназначено для сотрудников Государственной противопожарной службы, преподавателей и слушателей пожарно-технических и других образовательных организаций, специалистов ведомств, научно-исследовательских, экспертных и проектных организаций, занимающихся проведением и экспертизой расчетов по оценке пожарного риска.
Оглавление:1. Общие положения
2. Порядок определения расчетных величин пожарного риска в зданиях, сооружениях и строениях различных классов функциональной пожарной опасности
   2.1. Анализ пожарной опасности объекта
   2.2. Определение частоты реализации пожароопасных ситуаций
   2.3. Построение полей опасных факторов пожара для различных сценариев его развития
   2.4. Оценка последствий воздействия опасных факторов пожара на людей для различных сценариев его развития
   2.5. Порядок разработки дополнительных противопожарных мероприятий при определении расчетной величины индивидуального пожарного риска
   2.6. Определение расчетных величин индивидуального пожарного риска
3. Типовые примеры расчетов величин пожарного риска
   3.1. Пример расчета для здания торгово-развлекательного центра
      3.1.1. Анализ пожарной опасности объекта
      3.1.2. Определение частоты реализации пожароопасных ситуаций
      3.1.3. Экспертный выбор сценариев пожара
      3.1.4. Выбор метода математического моделирования пожара
      3.1.5. Исходные данные для проведения расчетов по распространению опасных факторов пожара
      3.1.6. Описание полевого метода моделирования пожара в здании
      3.1.7. Построение полей опасных факторов пожара для различных сценариев его развития
      3.1.8. Определение расчетного времени эвакуации людей из здания
         3.1.8.1. Методика расчета времени эвакуации людей при пожаре
         3.1.8.2. Результаты расчета времени эвакуации
         3.1.8.3. Оценка последствий воздействия опасных факторов пожара на людей для различных сценариев его развития
      3.1.9. Определение величины индивидуального пожарного риска
   3.2. Пример расчета для здания класса функциональной пожарной опасности Ф1.2
      3.2.1. Анализ пожарной опасности объекта
      3.2.2. Определение частоты реализации пожароопасных ситуаций
      3.2.3. Экспертный выбор сценариев пожара
      3.2.4. Выбор метода математического моделирования пожара
      3.2.5. Исходные данные для проведения расчетов по распространению опасных факторов пожара
      3.2.6. Описание полевого метода моделирования пожара в здании
      3.2.7. Результаты расчета времени блокирования путей эвакуации опасными факторами пожара
      3.2.8. Определение расчетного времени эвакуации людей из здания
         3.2.8.1. Методика расчета времени эвакуации людей при пожаре
         3.2.8.2. Результаты расчета времени эвакуации
         3.2.8.3. Оценка последствий воздействия опасных факторов пожара на людей для различных сценариев его развития
         3.2.8.4. Определение величины индивидуального пожарного риска
      3.2.9. Разработка дополнительных противопожарных мероприятий
         3.2.9.1. Результаты расчета времени блокирования путей эвакуации опасными факторами пожара с учетом реализации дополнительных противопожарных мероприятий
         3.2.9.2. Расчет времени эвакуации людей для сценариев № 5 и 6 при выполнении дополнительных мероприятий
         3.2.9.3. Определение вероятности эвакуации людей из здания при пожаре Рэ
         3.2.9.4. Определение величины индивидуального пожарного риска с учетом реализации дополнительных мероприятий
   3.3. Пример определения расчетного времени эвакуации людей для здания класса функциональной пожарной опасности Ф4.3 с использованием имитационно-стохастической модели движения людских потоков
      3.3.1. Описание модели
      3.3.2. Краткая характеристика объекта
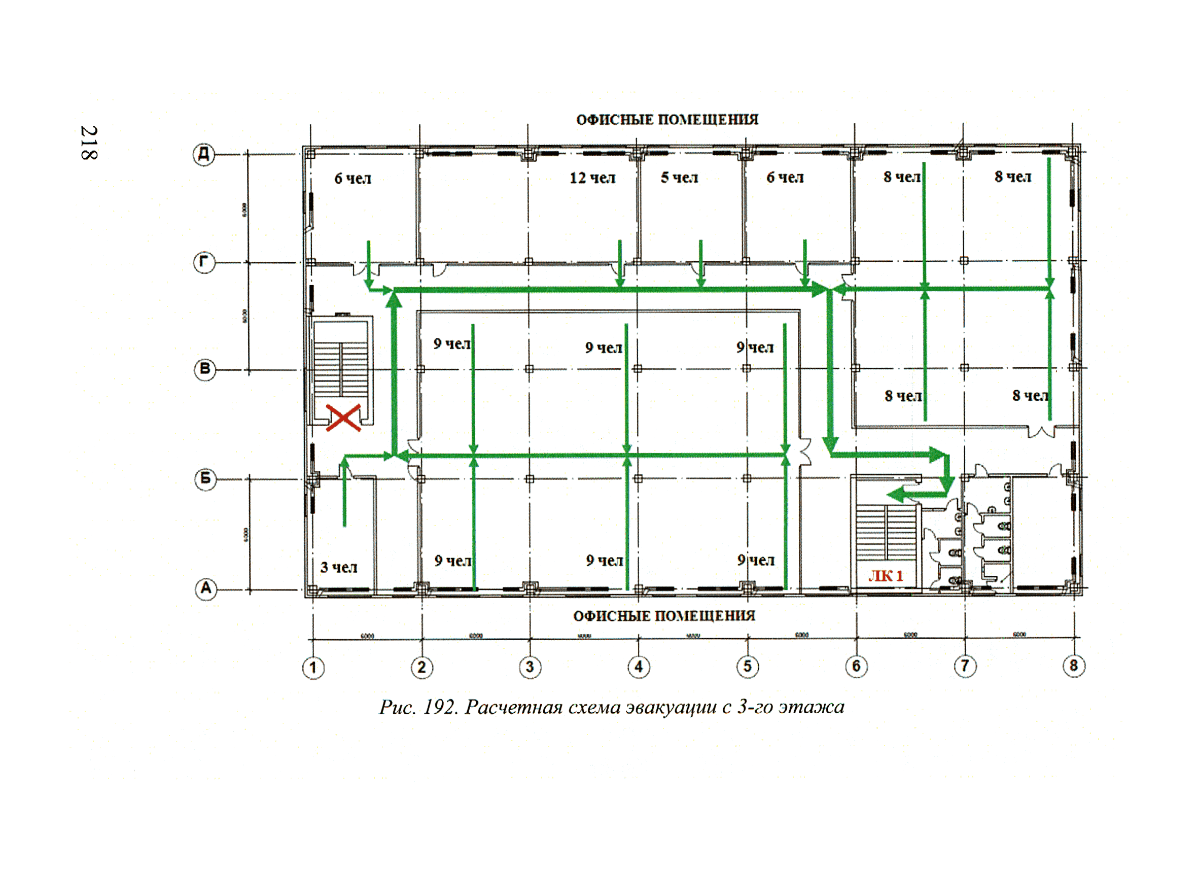
      3.3.3. Составление расчетной схемы эвакуации
      3.3.4. Выбор мест размещения контрольных точек
      3.3.5. Результаты расчета
      3.3.6. Выводы по результатам расчета
Литература
Разработан: ДНД МЧС России
ФГБУ ВНИИПО МЧС России
АГПС МЧС России
Утверждён: МЧС России (Russian Federation MChS )
Издан: ФГБУ ВНИИПО МЧС России (2014 г. )
Расположен в:Техническая документация Экология ОХРАНА ОКРУЖАЮЩЕЙ СРЕДЫ, ЗАЩИТА ЧЕЛОВЕКА ОТ ВОЗДЕЙСТВИЯ ОКРУЖАЮЩЕЙ СРЕДЫ. БЕЗОПАСНОСТЬ Защита от пожаров Защита от пожара в целом Строительство Нормативные документы Нормативные документы органов надзора Нормативные документы Государственной противопожарной службы и вневедомственной охраны МВД
Нормативные ссылки:

© 2013 Ёшкин Кот :-) Карта сайта