| Обозначение: | СП 150.13330.2012 |
| Обозначение англ: | SP 150.13330.2012 |
| Статус: | действует |
| Название рус.: | Дома-интернаты для детей-инвалидов. Правила проектирования |
| Название англ.: | Boarding schools (institutions) for disabled children. Rules of architectural design |
| Дата добавления в базу: | 01.10.2014 |
| Дата актуализации: | 05.05.2017 |
| Дата введения: | 01.07.2013 |
| Область применения: | Свод правил устанавливает правила проектирования зданий домов-интернатов для стационарного проживания детей-инвалидов с сохранным интеллектом и физическими недостатками (от 3 до 16 лет) и умственно отсталых с различной инвалидностью (от 4 до 18 лет). Требования свода правил распространяются на проектирование новых объектов, реконструкцию и модернизацию существующего фонда. |
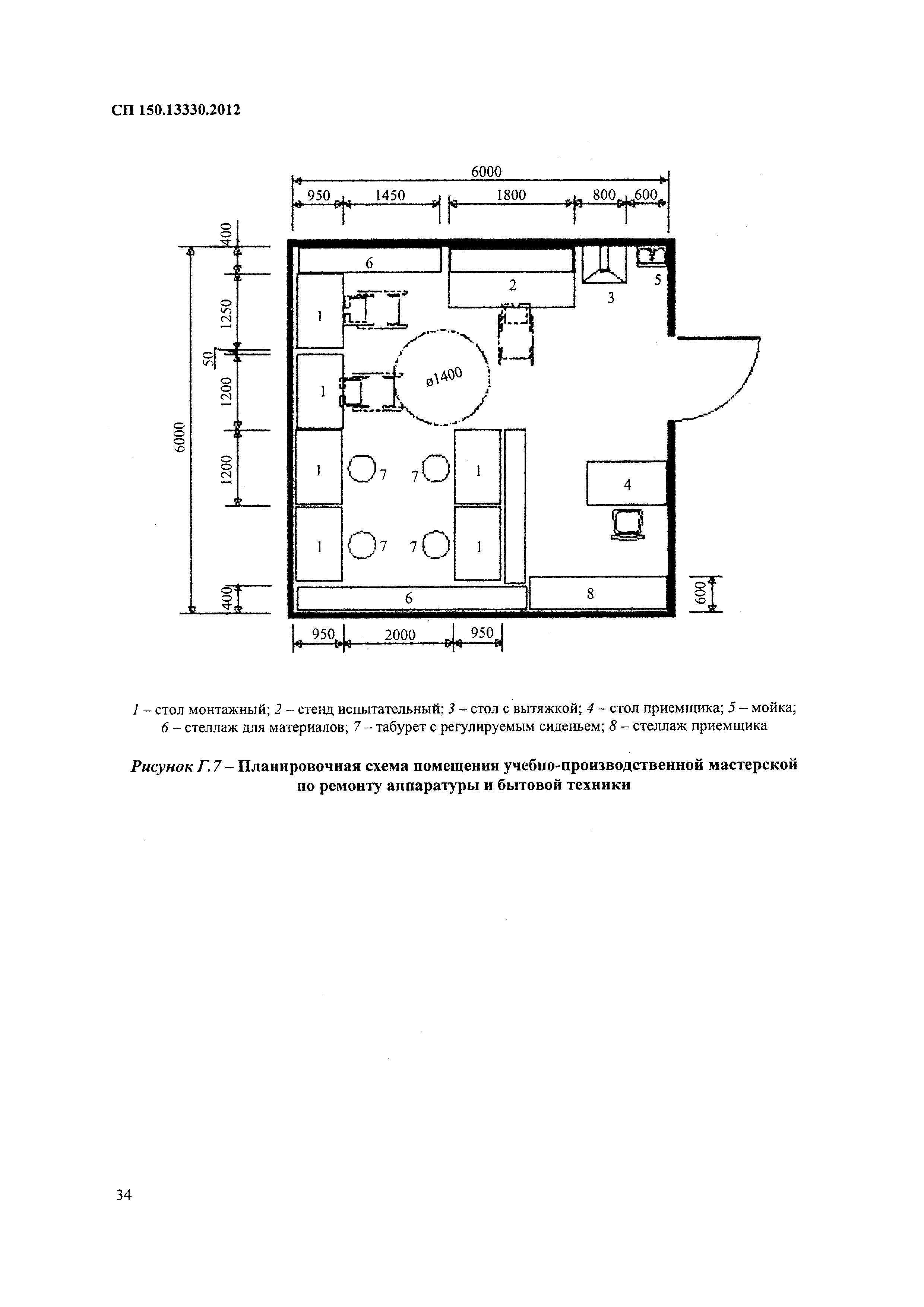
| Оглавление: | 1 Область применения 2 Нормативные ссылки 3 Термины и определения 4 Общие положения 5 Земельный участок для дома-интерната 6 Объемно-планировочные решения 6.1 Приемно-карантинное отделение 6.2 Жилые ячейки 6.3 Учебные помещения 6.4 Учебно-производственные мастерские 6.5 Медицинские помещения 6.6 Служебно-бытовые помещения 6.7 Помещения питания 6.8 Зальные помещения 6.9 Помещения культурно-массового и досугового назначения 7 Инженерное оборудование 7.1 Водоснабжение и канализация 7.2 Отопление, вентиляция и кондиционирование воздуха 7.3 Электротехнические устройства Приложение А (справочное). Возрастные группы детей-инвалидов в доме-интернате Приложение Б (рекомендуемое). Площади земельных участков Приложение В (рекомендуемое). Состав и площади помещений домов-интернатов для детей-инвалидов Приложение Г (рекомендуемое). Планировочные схемы Библиография |
| Разработан: | ОАО ЦНИИЭП жилища ООО Институт общественных зданий
|
| Утверждён: | 27.12.2012 Федеральное агентство по строительству и жилищно-коммунальному хозяйству (136/ГС)
|
| Издан: | Минстрой России (2016 г. )
|
| Расположен в: |
|
| Список изменений: | |
| Нормативные ссылки: |   ГОСТ 12.1.004-91 «Система стандартов безопасности труда. Пожарная безопасность. Общие требования»  ГОСТ 30494-96 «Здания жилые и общественные. Параметры микроклимата в помещениях» СанПиН 2.2.1/2.1.1.1076-01 «Гигиенические требования к инсоляции и солнцезащите помещений жилых и общественных зданий и территорий» Федеральный закон 184-ФЗ «О техническом регулировании»  РД 78.36.003-2002/МВД России «Инженерно-техническая укрепленность. Технические средства охраны. Требования и нормы проектирования по защите объектов от преступных посягательств»  СО 153-34.21.122-2003 «Инструкция по устройству молниезащиты зданий, сооружений и промышленных коммуникаций»  СанПиН 2.4.1201-03 «Гигиенические требования к устройству, содержанию, оборудованию и режиму работы специализированных учреждений для несовершеннолетних, нуждающихся в социальной реабилитации»  СП 31-110-2003 «Проектирование и монтаж электроустановок жилых и общественных зданий»  Кодекс 190-ФЗ «Градостроительный кодекс Российской Федерации»  ГОСТ Р 50571.28-2006 «Электроустановки зданий. Часть 7-710. Требования к специальным электроустановкам. Электроустановки медицинских помещений» Технический регламент «Технический регламент о требованиях пожарной безопасности» Федеральный закон 384-ФЗ «Технический регламент о безопасности зданий и сооружений»  СП 1.13130.2009 «Системы противопожарной защиты. Эвакуационные пути и выходы»  СП 4.13130.2009 «Системы противопожарной защиты. Ограничение распространения пожара на объектах защиты. Требования к объемно-планировочным и конструктивным решениям»  СП 5.13130.2009 «Системы противопожарной защиты. Установки пожарной сигнализации и пожаротушения автоматические. Нормы и правила проектирования»  ГОСТ Р 12.2.143-2009 «Система стандартов безопасности труда. Системы фотолюминесцентные эвакуационные. Требования и методы контроля» Федеральный закон 261-ФЗ «Об энергосбережении и о повышении энергетической эффективности и о внесении изменений в отдельные законодательные акты Российской Федерации»  СанПиН 2.1.2.2564-09 «Гигиенические требования к размещению, устройству, оборудованию, содержанию, санитарно-гигиеническому и противоэпидемическому режиму организаций здравоохранения и социального обслуживания, предназначенных для проживания лиц пожилого возраста и инвалидов, санитарно-гигиеническому и противоэпидемическому режиму их работы»  СанПиН 2.1.3.2630-10 «Санитарно-эпидемиологические требования к организациям, осуществляющим медицинскую деятельность»  «Правила разработки и утверждения сводов правил»  СП 52.13330.2011 «Естественное и искусственное освещение»  СП 54.13330.2011 «Здания жилые многоквартирные»  СП 42.13330.2011 «Градостроительство. Планировка и застройка городских и сельских поселений»  СП 132.13330.2011 «Обеспечение антитеррористической защищенности зданий и сооружений. Общие требования проектирования»  СП 118.13330.2012* «Общественные здания и сооружения»  СП 59.13330.2012 «Доступность зданий и сооружений для маломобильных групп населения»  СП 30.13330.2012 «Внутренний водопровод и канализация зданий»  СП 60.13330.2012 «Отопление, вентиляция и кондиционирование воздуха»  СП 133.13330.2012 «Сети проводного радиовещания и оповещения в зданиях и сооружениях. Нормы проектирования»  ГОСТ 30494-2011 «Здания жилые и общественные. Параметры микроклимата в помещениях»  СП 2.13130.2012 «Системы противопожарной защиты. Обеспечение огнестойкости объектов защиты»  СП 145.13330.2012 «Дома-интернаты. Правила проектирования»  СП 147.13330.2012 «Здания для учреждений социального обслуживания. Правила реконструкции» Приказ 136/ГС «Об утверждении свода правил "Дома-интернаты для детей-инвалидов. Правила проектирования"»  СанПиН 2.4.1.3049-13 «Санитарно-эпидемиологические требования к устройству, содержанию и организации режима работы дошкольных образовательных организаций»  СанПиН 2.4.1.2660-10 «Санитарно-эпидемиологические требования к устройству, содержанию и организации режима работы в дошкольных организациях»  СП 4.13130.2013 «Системы противопожарной защиты. Ограничение распространения пожара на объектах защиты»  ПУЭ «Правила устройства электроустановок»
|