| |||||||||||||||||||||||||||||||||||||||||||||||||||||||||||||||||||||||||||||||||||||||||||||||||||||||||||||||||||||||||||||||||||||||||||||||||||||||||||||||||||||||||||||||||||||||||||||||||||||||||||||||||||||||||||||||||||||||||||||||||||||||||||||||||||||||||||||||||||||||||||||||||||||||||||||||||||||||||||||||||||||||||||||||||||||||||||||||||||||||||||||||||||||||||||||||||||||||||||||||||||||||||||||||||||||||||||||||||||||||||||||||||||||||||||||||||||||||||||||||||||||||||||||||||||||||||||||||||||||||||||||||||||||||||||||||||||||||||||||||||||||||||||||||||||||||||||||||||||||||||||||||||||||||||||||||||||||||||||||||||||||||||||||||||||||||||||||||||||||||||||||||||||||||||||||||||||||||||||||||||||||||||||||||||||||||||||||||||||||||||||||||||||||||||||||||||||||||||||||||||||||||||||||||||||||||||||||||||||||||||||||||||||||||||||||||||||||||||||||||||||||||||||||||||||||||||||||||||||||||||||||||||||||||||||||||||||||||||||||||||||||||||||||||||||||||||||||||||||||||
МИНИСТЕРСТВО
СТРОИТЕЛЬСТВА
ДОМА-ИНТЕРНАТЫ ПРАВИЛА ПРОЕКТИРОВАНИЯ Москва 2016 Предисловие Сведения о своде правил 1 ИСПОЛНИТЕЛИ ООО «Институт общественных зданий» и ОАО «ЦНИИЭП жилища». Изменение № 1 к СП 145.13330.2012 - НИИСФ РААСН 2 ВНЕСЕН Техническим комитетом по стандартизации ТК 465 «Строительство» 3 ПОДГОТОВЛЕН к утверждению Управлением градостроительной политики. Изменение № 1 к СП 145.13330.2012 подготовлено к утверждению Департаментом градостроительной деятельности и архитектуры Министерства строительства и жилищно-коммунального хозяйства Российской Федерации (Минстрой России) 4 УТВЕРЖДЕН приказом Федерального агентства по строительству и жилищно-коммунальному хозяйству (Госстрой) от 27.12.2012 г. № 132/ГС и введен в действие с 1 июля 2013 г. В СП 145.13330.2012 «Дома-интернаты. Правила проектирования» внесено и утверждено изменение № 1 приказом Министерства строительства и жилищно-коммунального хозяйства Российской Федерации от 30 декабря 2015 г. № 977/пр и введено в действие с 25 марта 2016 г. 5 ЗАРЕГИСТРИРОВАН Федеральным агентством по техническому регулированию и метрологии (Росстандарт) В случае пересмотра (замены) или отмены настоящего свода правил соответствующее уведомление будет опубликовано в установленном порядке. Соответствующая информация, уведомление и тексты размещаются также в информационной системе общего пользования - на официальном сайте разработчика (Минстрой России) в сети Интернет. Пункты, таблицы, приложения, в которые внесены изменения, отмечены в настоящем своде правил звездочкой. СОДЕРЖАНИЕ Введение* Настоящий свод правил направлен на обеспечение требований Федерального закона от 30 декабря 2009 г. № 384-ФЗ «Технический регламент о безопасности зданий и сооружений». Свод правил разработан в развитие положений СП 59.13330 в соответствии с принципами Конвенции ООН о правах инвалидов, подписанной Российской Федерацией в сентябре 2008 года и ратифицированной 3 мая 2012 г. - Федеральный закон от 3 мая 2012 г. № 46-ФЗ «О ратификации Конвенции о правах инвалидов», содержит нормы и правила по проектированию среды, адаптированной для инвалидов и других маломобильных групп населения. В настоящем своде правил учтены опыт исследований в данной области отечественных и зарубежных специалистов, а также разработки различных авторов и творческих коллективов. В тексте учтены предложения и замечания специалистов центральных правлений ВОН, ВОС и ВОГ, НИИ экологии человека и гигиены окружающей среды им. А.Н. Сысина. Свод правил разработан: ООО «Институт общественных зданий» (руководитель работы - канд. архит. А.М. Гарнец, отв. исполнитель - канд. архит. Т.А. Исаева, компьютерная графика - канд. архит. А.И. Цыганов, инж. И.Р. Домрачева, исполнители: ст. науч. сотрудник Л.В. Сыгачева, инж. Н.И. Чернозубова); ОАО «Центральный научно-исследовательский институт жилых и общественных зданий», ЦНИИЭП жилища (канд. архит., проф. А.А. Магай, канд. архит. Н.В. Дубынин), Федеральным бюро медико-социальной экспертизы, ФГБУ ФБ МСЭ, Федеральным медико-биологическим агентством России, ФМБА России (д-р мед. наук, проф. Н.Ф. Дементьева). Изменение № 1 разработано: НИИСФ РААСН, при участии канд. архит., проф. А.М. Гарнеца, канд. архит. Т.А. Исаевой, канд. архит. Б.Л. Крундышевой, д-ра техн. наук М.М. Мирфатуллаева, д-ра техн. наук, проф. Ю.М. Глуховенко, В.В. Коноваловой. СВОД ПРАВИЛ
Дата введения 2013-07-01 1 Область применения1.1 Настоящий свод правил распространяется на проектирование новых, реконструкцию и техническое перевооружение действующих зданий домов-интернатов общего типа психоневрологических для постоянного проживания маломобильных групп населения и инвалидов, лиц старшего возраста, нуждающихся в постоянной помощи, мужчин старше 60 лет и женщин старше 55 лет, а также инвалидов I и II группы 18 лет. 1.2 Настоящий свод правил не распространяется на дома-интернаты для ветеранов войны и труда; дома-интернаты ухода (милосердия); психоневрологические интернаты, осуществляющие функции диспансеризации, лечения проживающих, госпитализацию, связанную с тяжело больными психоневрологическими болезнями; дома-интернаты специальные социального обслуживания лиц, вышедших из мест заключения. 2* Нормативные ссылкиВ настоящем своде правил приведены ссылки на следующие нормативные документы: ГОСТ Р 12.2.143-2009 Система стандартов безопасности труда. Системы фотолюминесцентные эвакуационные. Требования и методы контроля ГОСТ Р 50571.28-2006 Электроустановки зданий. Часть 7 - 710. Требования к специальным электроустановкам. Электроустановки медицинских помещений ГОСТ Р 51633-2000 Устройства и приспособления реабилитационные, используемые инвалидами в жилых помещениях. Общие технические требования ГОСТ Р 51764-2001 Устройства подъемные транспортные реабилитационные для инвалидов. Общие технические требования ГОСТ Р 53770-2010 Лифты пассажирские. Основные параметры и размеры ГОСТ Р 56305-2014 Технические средства помощи слепым и слабовидящим людям. Тактильные указатели на пешеходной поверхности ГОСТ 12.1.004-1991 Система стандартов безопасности труда. Пожарная безопасность. Общие требования ГОСТ 30471-96 Кресла-коляски. Максимальные габаритные размеры СП 1.13130.2009 Системы противопожарной защиты. Эвакуационные пути и выходы (с изменением № 1) СП 2.13130.2012 Системы противопожарной защиты. Обеспечение огнестойкости объектов защиты (с изменением № 1) СП 3.13130.2009 Системы противопожарной защиты. Система оповещения и управления эвакуацией людей при пожарах. Требования пожарной безопасности СП 4.13130.2013 Системы противопожарной защиты. Ограничение распространения пожара на объекты защиты. Требования к объемно-планировочным и конструктивным решениям СП 5.13130.2009 Системы противопожарной защиты. Установки пожарной сигнализации и пожаротушения автоматические. Нормы и правила проектирования (с изменением № 1) СП 30.13330.2012 «СНиП 2.04.01-85* Внутренний водопровод и канализация зданий» СП 42.13330.2011 «СНиП 2.07.01-89* Градостроительство. Планировка и застройка городских и сельских поселений» СП 52.13330.2011 «СНиП 23-05-95* Естественное и искусственное освещение» СП 54.13330.2011 «СНиП 31-01-2003 Здания жилые многоквартирные» СП 59.13330.2012 «СНиП 35-01-2001 Доступность зданий и сооружений для маломобильных групп населения» (с изменением № 1) СП 60.13330.2012 «СНиП 41-01-2003 Отопление, вентиляция и кондиционирование воздуха» СП 118.13330.2012 «СНиП 31-06-2009 Общественные здания и сооружения» (с изменением № 1) СП 136.13330-2012 Здания и сооружения. Общие положения проектирования с учетом доступности для маломобильных групп населения СП 158.13330-2014 Здания и помещения медицинских организаций. Правила проектирования СанПиН 2.1.2.2564-09 Гигиенические требования к размещению, устройству, оборудованию, содержанию объектов организаций здравоохранения и социального обслуживания, предназначенных для постоянного проживания престарелых и инвалидов, санитарно-гигиеническому и противоэпидемическому режиму их работы СанПиН 2.2.1/2.1.1.1278-03 Гигиенические требования к естественному, искусственному и совмещенному освещению жилых и общественных зданий СанПиН 2.2.1/2.1.1.1076-01 Гигиенические требования к инсоляции и солнцезащите помещений жилых и общественных зданий и территорий СанПиН 2.3.6.1079-01 Санитарно-эпидемиологические требования к организациям общественного питания, изготовлению и оборотоспособности в них пищевых продуктов и продовольственного сырья Примечание - При пользовании настоящим сводом правил целесообразно проверить действие ссылочных стандартов (сводов правил и/или классификаторов) в информационной системе общего пользования - на официальном сайте национального органа Российской Федерации по стандартизации в сети Интернет или по ежегодно издаваемому информационному указателю «Национальные стандарты», который опубликован по состоянию на 1 января текущего года, и по выпускам ежемесячно издаваемого информационного указателя «Национальные стандарты» за текущий год. Если заменен ссылочный стандарт (документ), на который дана недатированная ссылка, то рекомендуется использовать действующую версию этого стандарта (документа) с учетом всех внесенных в данную версию изменений. Если заменен ссылочный стандарт (документ), на который дана датированная ссылка, то рекомендуется использовать версию этого стандарта (документа) с указанным выше годом утверждения (принятия). Если после утверждения настоящего стандарта в ссылочный стандарт (документ), на который дана датированная ссылка, внесено изменение, затрагивающее положение, на которое дана ссылка, то это положение рекомендуется применять без учета данного изменения. Если ссылочный стандарт (документ) отменен без замены, то положение, в котором дана ссылка на него, рекомендуется применять в части, не затрагивающей эту ссылку. Сведения о действии сводов правил можно проверить в Федеральном информационном фонде технических регламентов и стандартов. 3 Термины и определенияВ настоящем своде правил использованы следующие термины с соответствующими определениями: 3.1 дом-интернат общего типа: Учреждение, предназначенное для стационарного проживания лиц старшего возраста и инвалидов, нуждающихся в социальной и медицинской помощи. 3.2 дом-интернат психоневрологический: Учреждение, предназначенное для стационарного проживания лиц старшего возраста и инвалидов, нуждающихся в социальной и психологической поддержке, психиатрической помощи и в соответствующем медицинском уходе. 3.3 лица старшего возраста: Женщины 55 лет и старше и мужчины 60 лет и старше. 3.4 жилая комната: По СП 54.13330. 3.5 жилое отделение: Функциональный элемент здания, состоящий из жилых групп (от двух до четырех) и общественных помещений в составе отделения. 3.5а* реабилитация: Система мероприятий, направленных на устранение или создание возможно полной компенсации ограничений жизнедеятельности; реабилитация определяется, как система и процесс полного или частичного восстановления способностей инвалидов к бытовой, общественной, профессиональной и иной деятельности. 3.6 жилая группа: Элемент жилого отделения, включающий в свой состав несколько жилых ячеек. Жилые группы, рассчитанные для различных категорий проживающих, называются комплексными (в отличие от однородных жилых групп). 3.7 жилая ячейка: Это функциональный элемент здания, состоящий из жилых и подсобных комнат для заселения определенной численности проживающих до 25 чел. 3.8 комната социально-бытовой адаптации: Помещение для оказания психологической помощи лицам, оказавшимся в затрудненных жизненных ситуациях с полной или частичной потерей трудоспособности, и возвращение их к обычным социальным условиям общества. 3.9 маломобильные группы населения (МГН): По СП 59.13330. 3.10 тактильные средства информации: По СП 59.13330. 3.11 трансформация (здесь): Преобразование, видоизменение пространства путем организованных пространств. 3.12 уровень комфортности проживания: Дополнительная площадь на человека, дополнительные социально-медицинские услуги. 3.13 функциональная зона: Пространство, характеризующееся определенными общими признаками, связанными с какой-либо деятельностью, например зона у стола, зона проезда на кресле-коляске по коридору и т.д. 3.14* социальное обслуживание: Деятельность социальных служб, осуществляющих социальные услуги, в том числе бытовые, для граждан, находящихся в трудной жизненной ситуации. 4 Основные положения4.1 Основными задачами домов-интернатов являются: обеспечение, создание условий жизнедеятельности, проживания граждан, клиентов домов-интернатов, соответствующих их возрасту и состоянию здоровья; социально-бытовое, санитарно-гигиеническое обслуживание; питание; лечебно-трудовая терапия; культурно-массовое обслуживание; медицинское обслуживание, включая реабилитацию; социально-бытовое обслуживание; охрана безопасности проживания. Функциональные схемы размещения отделений, различных групп помещений в домах-интернатах представлены в приложении Б (рисунки Б.1 и Б.2). В вестибюлях домов-интернатов следует предусматривать установку звуковых информаторов по типу телефонов-автоматов, которыми могут пользоваться инвалиды с недостатками зрения, и текстофонов для инвалидов с дефектами слуха. 4.2 Вместимость домов-интернатов рекомендуется принимать: общего типа - от 50 до 200 мест; психоневрологических от 50 до 600 мест. Вместимость психоневрологических домов-интернатов рекомендуется принимать по заданию на проектирование. 4.3* В домах-интернатах противопожарную защиту зданий следует обеспечивать в соответствии с техническим регламентом [4]. Дома-интернаты общего типа, дома-интернаты психоневрологические следует проектировать согласно требованиям СП 2.13130; СП 4.13130. Требования приведены также в [10]. Наличие фотолюминесцентной эвакуационной системы (ФЭС) в домах-интернатах указывается в задании на проектирование. 4.4 Численность инвалидов, передвигающихся на креслах-колясках, должна составлять не более 12 % общей вместимости дома-интерната. 4.5 При каждом доме-интернате следует предусматривать дополнительное помещение или место площадью не менее 4 м2 для хранения уличных кресел-колясок. 4.6 Высоту жилых помещений от пола до потолка для нового строительства рекомендуется принимать 3 м, общественных помещений - не менее 3 м в соответствии с СанПиН 2.1.2.2564, СП 118.13330. 4.7* В домах-интернатах должна обеспечиваться инсоляция помещений согласно СП 42.13330, СанПиН 2.2.1/2.1.1.1076. Длительность инсоляции в весенне-осенний период года в жилых помещениях должна быть (в период с 22 февраля по 22 октября): в центральной зоне (58 - 48° с. ш.) - не менее 2,5 ч в день; в северной зоне (севернее 58° с. ш.) - не менее 3 ч в день; в южной зоне (южнее 48° с. ш.) - не менее 2 ч в день. 4.8 Нормируемые показатели естественного и искусственного освещения различных: помещений следует устанавливать в соответствии с СП 52.13330, СанПиН 2.2.1/2.1.1.1278. В случае прерываемого режима инсоляции суммарная длительность инсоляции должна быть увеличена на 0,5 ч, при этом глубина помещений не должна превышать 6 м. 4.9 При проектировании домов-интернатов следует предусматривать обязательный минимальный уровень комфортности проживания класса «М» (минимальный уровень), при котором минимально допустимые параметры обеспечивают благоприятную среду жизнедеятельности, а также безопасность и здоровье людей, проживающих в домах-интернатах. Состав и площади помещений, требования к проектированию зданий класса «М» представлены в таблицах A.1* - A.11, на рисунках Б.4 - Б.8. При повышенном оптимальном уровне комфортности проживания класса «О» (оптимальный уровень) состав помещений дома-интерната может быть увеличен по условиям заказчика при составлении задания на проектирование. При проектировании домов-интернатов независимо от уровня комфортности, указанной выше, допускается по требованию заказчика в здании дома-интерната предусматривать помещение для проведения религиозных обрядов по специальному заданию на проектирование. 4.10 При реконструкции или приспособлении зданий для домов-интернатов следует учитывать также требования СП 54.13330, СП 59.13330, [1], [2], [3], [4], [5], [7]. 5 Площадки домов-интернатов5.1 Дома-интернаты рекомендуется размещать на селитебной территории городов и населенных пунктов на участках, наиболее благоприятных по санитарно-гигиеническим условиям, согласно СП 42.13330, ГОСТ Р 56305, [1], [6], [7]. При выборе площадки строительства следует учитывать ее близость к больницам, социальным центрам адаптации и культовым сооружениям, а также доступность проезда к учреждениям родственников проживающих. 5.2* На земельных участках домов-интернатов для условий городской и сельской застройки состав площадок и их площади следует определять по СП 42.13330. Таблица 5.1* - Исключена. 5.3 Ширину пути движения на участке дома-интерната при встречном движении инвалидов на креслах-колясках следует принимать 1,8 м по ГОСТ 30471. 5.4 Для слабовидящих, проживающих в доме-интернате, следует предусматривать тактильные средства, выполняющие предупредительную функцию на покрытии пешеходных путей участка. Организацию тактильных направляющих участков движения для покрытия пешеходных путей следует принимать по СП 59.13330. Оптимальным вариантом покрытия пешеходных путей и пандусов являются бетонное покрытие или бетонные плитки, создающие ровную поверхность. Толщина швов между плитками принимается не более 0,015 м. 5.5 Площади участков домов-интернатов следует определять заданием на проектирование. 5.6 При строительстве нового здания дома-интерната в районах со стесненной застройкой площадь земельного участка при соответствующем обосновании может быть уменьшена, исходя из условий застройки и задания на проектирование, но не более чем на 20 - 25 % по сравнению с нормами СП 42.13330. 5.7 Территория, предназначенная для домов-интернатов, должна иметь ограждение высотой не менее 1,6 м. 5.8 На территории земельного участка, принадлежащего дому-интернату, транспортные проезды и пешеходные дороги на пути к учреждению и объектам, посещаемым инвалидами, должны иметь удобные подъезды и подходы. Остановки общественного транспорта следует увязывать с местом размещения здания дома-интерната со стороны главного входа. 5.9 Площадки для физкультурных занятий и гимнастики необходимо предусматривать с зоной для занятий корригирующей гимнастикой из расчета 2 м2/чел. Указанные площадки входят в площадь участка, размеры их зависят от вида здания и вместимости. 5.10* В составе физкультурной площадки предусматривают дорожки для лечебной ходьбы и бега трусцой. 5.11* В психоневрологических домах-интернатах для лиц, самостоятельно передвигающихся, для занятий лечебной физкультурой следует предусматривать площадку из расчета 10 м2/место. 5.12 В хозяйственной зоне предусматриваются: гараж, стоянка для автомобилей, разгрузочная площадка, площадка для сушки белья и при необходимости - котельная, овощехранилище, прачечная, склады и другие помещения. 6 Объемно-планировочные решения6.1 При проектировании зданий домов-интернатов рекомендуются жилые и общественные помещения рассредоточенной павильонной планировки, в одном или нескольких зданиях. 6.2* Дома-интернаты следует проектировать, как правило, 1 - 3-этажными. Этажность выше трех этажей устанавливают заданием на проектирование при соответствующем обосновании в соответствии с СП 118.13330; СП 59.13330, [2], [3], [4], [5], [6], [7], [8]. В домах-интернатах высотой 2 этажа и выше следует предусматривать лифты или подъемник в соответствии с требованиями ГОСТ Р 53770, [6]. Выбор способа подъема инвалида устанавливается заданием на проектирование. Размер кабины лифта в домах-интернатах (в том числе для инвалида-колясочника) следует принимать: ширина - не менее 1,1 м, глубина - 1,4 м, ширина двери - не менее 0,9 м в соответствии с СП 54.13330 и ГОСТ Р 53770. Число лифтов для спасения МГН в исполнении «для пожарных подразделений» определяют расчетом. Расчеты должны соответствовать динамике опасных факторов пожара и их влиянию на МГН. В случае невозможности установки в здании лифтов соответствующего исполнения и недостаточности расчетного времени для спасения МГН, безопасность для лежачих больных по СП 158.13330 следует обеспечивать. 6.3 Общая площадь домов-интернатов принимается в зависимости от типа зданий, вместимости, уровня комфортности согласно таблицам А.1* - А.12 и указывается в задании на проектирование. Схемы взаимосвязей жилых групп и отделений приведены на рисунках Б.1 и Б.2. 6.4 Жилую площадь в домах-интернатах следует предусматривать от 7 до 8 м2/чел. в зависимости от степени инвалидности и вида дома-интерната. Для проживающих, способных к частичному самообслуживанию и передвигающиеся с помощью посторонней помощи, в домах-интернатах общего типа и психоневрологических жилую площадь следует принимать 7 м2/чел. Для инвалидов, пользующихся креслами-колясками и нуждающихся в постоянной помощи, в психоневрологических и общего типа домах-интернатах рекомендуется предусматривать жилую площадь из расчета 8 м2/чел. с учетом разворота кресла-коляски. 6.5* Этажи зданий должны иметь не менее двух эвакуационных выходов в соответствии с СП 1.13130. При входе в здание дома-интерната следует устраивать пандусы в соответствии с СП 59.13330. Пандус, служащий путем эвакуации со 2-го этажа, должен быть связан непосредственно через тамбур с выходом наружу. Лестницы, пандусы, лифты, подъемники, вспомогательные средства и приспособления для передвижения людей по зданию и помещениям следует проектировать в соответствии с требованиями СП 54.13330. 6.6* Объемно-планировочные решения домов-интернатов следует проектировать с учетом следующих требований к путям эвакуации (СП 1.13130, [4], [6], СП 3.13130-СП 5.13130): на путях эвакуации не следует применять вращающиеся двери и турникеты, винтовые лестницы; в жилых ячейках комнату дежурного персонала следует размещать рядом со спальными комнатами и комнатами для занятий. Такое расположение обусловлено в случае необходимости скорейшей эвакуацией контингента из этих помещений с помощью дежурного персонала. В этих помещениях предусматриваются устройства автоматической пожарной сигнализации; на путях эвакуации дверные проемы не должны иметь порогов и перепадов высоты пола. При необходимости устройства порогов их высота или перепад высоты не должны превышать 0,025 м в соответствии с требованиями СП 54.13330; вдоль обеих сторон лестниц и пандусов, а также у всех переходов высотой более 0,45 м необходимо устраивать ограждения с поручнями из негорючих материалов на высоте 0,9 м. Пути эвакуации рассчитывают по установленным либо апробированным методикам с учетом динамики опасных факторов пожара по ГОСТ 12.1.004 и психофизиологических возможностей МГН различных категорий. ФЭС должна быть установлена на всем протяжении пути эвакуации и иметь непрерывный маршрут до эвакуационных выходов. При установке элементов ФЭС на ступенях лестниц для предотвращения получения людьми травм и увеличения времени эвакуации, в обязательном порядке должны быть использованы фотолюминесцентные материалы ФЛМ совместно с противоскользящим (антискользящим) покрытием. Запрещается использование элементов ФЭС на основе самоклеющейся пленки. На края ступеней лестницы с помощью специальной накладки устанавливается направляющая контрастная полоса из ФЛМ с противоскользящим (антискользящим) покрытием из карбида кремния. Вдоль стен и на лестничных площадках на полу, на путях эвакуации размещаются направляющие полосы из ФЛМ, которые должны быть неразрывным продолжением ФЛМ путей эвакуации по лестницам и пандусам. Направляющие полосы из ФЛМ должны иметь нижнее расположение, то есть крепиться к полу. Для надежного крепления ФЛМ к полу, его следует размещать на специальной накладке жесткого типа, исключающей несанкционированное изменение маршрута эвакуации в результате воздействия персонала учреждения или посетителей. Поверхности слоя ФЛМ и самой накладки должны быть рифлеными (тактильными и т.д.), исключающими получение травм в чрезвычайных ситуациях. В целях безопасности запрещается использовать самоклеющуюся пленку. Дверные проемы эвакуационных и аварийных выходов должны быть обозначены по контуру элементами ФЛМ. Двери эвакуационных и аварийных выходов должны быть оборудованы фотолюминесцентными знаками безопасности. Знаки могут быть установлены непосредственно на самой двери или на поверхности стены, прилегающей к двери, а также в комбинированном варианте. Места нахождения дверных ручек для открывания дверей (во всех помещениях либо определить каких) должны быть обозначены маркером из ФЛМ размерами не менее 50×50 мм. ФЭС следует размещать и устанавливать в соответствии с требованиями СП 136.13330, ГОСТ Р 12.2.143. 6.7 При проектировании лестниц поручень перил с внутренней стороны должен быть непрерывным. По всей высоте лестницы на верхней поверхности поручня перил следует предусматривать рельефные обозначения этажей. Размеры цифр должны быть не менее, м: ширина 0,01, высота 0,015, высота рельефа цифры - не менее 0,002 м в соответствии с требованиями СП 54.13330 к лестницам и пандусам. 6.8 На путях движения людей старшего возраста и инвалидов в здании следует предусматривать смежные с ними зоны отдыха и ожидания не реже чем через каждые 25 м, не менее одной на каждом этаже. 6.9 При всех наружных входах в здания домов-интернатов следует предусматривать тамбуры глубиной не менее 1,5 м и шириной 2,2 м. Двойные тамбуры при входе следует проектировать в I и II климатических районах строительства. Если в I климатическом районе при входе в дом имеется веранда, то ее наличие учитывается как один из тамбуров в соответствии с требованиями СП 54.13330. 6.10 В жилой части здания допускается размещать обслуживающие помещения, библиотеку-читальню, комнаты для кружковых занятий, медпункт, высота которых должна быть равной высоте жилых помещений. Высоту помещений зрительного зала, лечебно-трудовых и учебно-производственных мастерских, а также помещений столовой следует принимать не менее 3 м в соответствии с СП 118.13330. 6.11 В домах-интернатах специальных, общего типа со специальными отделениями при входе в здание в вестибюльной группе помещений следует предусматривать комнаты вахтера и охранника, рисунок Б.3. 6.12 Состав и площади помещений домов-интернатов следует принимать согласно приложению А*. 6.13 Глубина жилых комнат не должна превышать 6 м. Ширина жилых помещений для нуждающихся в посторонней помощи и инвалидов, передвигающихся на креслах-колясках, а также процедурных помещений должна быть не менее 3 м. Пропорции сторон глубины к ширине в жилых комнатах рекомендуется принимать при соотношении сторон комнаты 2:1. 6.14* Ширина пути движения внутри здания (в коридорах, помещениях, галереях) в чистоте должна быть не менее: при движении кресла-коляски в одном направлении - 1,5 м; при встречном движении - 1,8 м. Ширину прохода в помещении с оборудованием и мебелью следует принимать не менее 1,2 м. Глубина балконов и лоджий должна быть, как правило, не менее 1,4 м в свету. Ширину коридора или перехода в другое здание следует принимать не менее 2 м. Подходы к различному оборудованию и мебели должны быть не менее 0,9 м, а при необходимости поворота кресла-коляски на 90° - не менее 1,2 м в соответствии с требованиями СП 54.13330, ГОСТ Р 51633. 6.15 В I и II климатических районах рекомендуется предусматривать в домах-интернатах при жилых комнатах лоджии и балконы глубиной не менее 1,4 м. При этом разница отметок пола жилого помещения и балкона (лоджии) не должна превышать 0,02 м. При решении балконов и лоджий следует учитывать местные условия и при необходимости предусматривать на летних помещениях ветрозащитные, трансформируемые экраны и солнцезащиту в виде штор, козырьков по заданию на проектирование. Примечание - В психоневрологических домах-интернатах рекомендуется проектировать остекленную лоджию общего пользования на жилую группу из расчета 1 м2/чел. 6.16 Столовую, лечебно-трудовые мастерские (далее - ЛТМ) и учебно-производственные мастерские (далее - УПМ) рекомендуется размещать в отдельных блоках. 6.17 В помещении мастерской при размещении оборудования рядом со столом мастера следует предусматривать стол медсестры для наблюдения и оказания в случае необходимости медицинской помощи занимающимся трудотерапией людям старшего возраста или инвалидам. 6.18 При учебно-производственных мастерских следует предусматривать кладовые для хранения материалов и кладовые готовых изделий. Состав и площади помещений УПМ представлены в таблице А.9 приложения А* и на рисунке Б.14 приложения Б. 6.19 Учебно-производственные мастерские, их вместимость и количество следует определять в соответствии с заданием на проектирование с учетом требований к условиям организации труда на рабочих местах СП 59.13330, приложение А*. 6.20* Санитарные узлы для людей старшего возраста и инвалидов рекомендуется проектировать совмещенными или раздельными. Для инвалидов с поражением опорно-двигательного аппарата применяются совмещенные санузлы, оборудованные унитазом, умывальником, ванной или душем. Рекомендуются к применению сидячие ванны (полибаны) с местом для сидения, ванны с открывающимися боковыми дверцами. Душевые зоны оборудуются поддоном без порога (трапом). Для уменьшения числа перемещений рекомендуется в уборных на стене рядом с унитазом помещать гибкий шланг с душевой сеткой. Площади санузлов приведены в приложении А* (таблицы А.3 и А.5), СП 54.13330, СП 59.13330. 6.21 Для психоневрологических больных, не способных к передвижению, предусматриваются санузлы с местом для каталки, со шкафом для суден. Набор оборудования санузлов следует принимать в соответствии с таблицей А.5. 6.22* В уборных общего пользования необходимо предусматривать не менее одной универсальной кабины, доступной для всех. Размеры универсальной кабины в плане принимаются не менее: ширина - 1,65 м и глубина - 2,1 м. В кабине рядом с унитазом следует предусматривать пространство для размещения кресла-коляски, а также крючки для одежды, костылей и других принадлежностей. 7 Функциональные требования к проектированию основных групп помещений7.1 Дома-интернаты включают отделения, группы помещений жилого, обслуживающего и хозяйственного назначения. Состав и площади основных групп помещений домов-интернатов приведены в таблицах А.1* - А.12. 7.2 В домах-интернатах состав помещений вестибюльной группы следует проектировать в соответствии с таблицей А.1*. В помещении охраны следует предусматривать технические средства охраны. Требования к средствам охраны приведены в [13], [14], [15]. 7.3 Приемно-карантинные отделения, состав, площади и число помещений принимаются по заданию на проектирование в соответствии с таблицей А.2. Приемное и карантинное отделения, помещения охраны следует размещать в обязательном порядке на первом этаже здания дома-интерната. Необходимость устройства централизованных приемно-карантинных отделений определяется заданием на проектирование. 7.4 Жилые отделения и жилые группы проектируются непроходными. 7.5 Жилые группы помещений следует проектировать специализированными: для лиц, свободно передвигающихся, передвигающихся с трудом, способных к частичному самообслуживанию, нуждающихся в посторонней помощи, передвигающихся на креслах-колясках и нуждающихся в постельном режиме. Жилые группы проектируются в соответствии с таблицами А.3 - А.5 приложения А*. 7.6 Из вспомогательных помещений в жилой группе следует предусматривать: помещения для хранения носилок (каталки), санитарную комнату и помещение для хранения чистого белья, кухню самообслуживания, буфетную комнату, комнату отдыха, помещение для уборочного инвентаря, кладовую грязного белья с местом для разборки, комнату для персонала, комнату бытового обслуживания, площади которых приведены в таблицах А.3 - А.5. 7.7 Набор жилых комнат по вместимости, а также их соотношение в жилых группах и отделениях уточняются при составлении задания на проектирование. 7.8 Типы жилых ячеек представлены на рисунках Б.4 - Б.8, состав и площади помещений жилых ячеек приведены в таблицах А.3 - А.5. В приложении Б на рисунке Б.8 представлены схемы жилых ячеек (далее ЖЯ) для домов-интернатов общего типа - ЖЯ-1 по ЖЯ-4; для психоневрологических домов-интернатов - ЖЯ-5; ЖЯ-6. В домах-интернатах общего типа жилые ячейки предусматриваются с жилыми комнатами на 1 - 2 чел., рассчитанными для свободно передвигающихся, способных к самообслуживанию. Эта категория лиц питается в основном в столовой. Для контингента, передвигающегося с трудом и на креслах-колясках, следует проектировать жилые ячейки типа ЖЯ-4 с жилыми комнатами на 2 - 3 места. При жилых ячейках предусматриваются буфетная и кухня-раздаточная, в которую из столовой доставляется готовая пища для лиц, передвигающихся с трудом. 7.9 В психоневрологических домах-интернатах для жилых групп предусматривают жилые ячейки ЖЯ-5 с жилыми комнатами на четыре места, рассчитанными на лиц, способных к частичному самообслуживанию и нуждающихся в реабилитации, лица этой категории в основном питаются в столовой. Жилые ячейки ЖЯ-6 проектируют с жилыми комнатами на 4 - 6 мест, рассчитанными на лиц, нуждающихся в посторонней помощи и постельном режиме. Эта категория лиц питается в жилых комнатах. Состав и площадь помещений жилой ячейки ЖЯ-6 представлены в таблице А.5. При ванной комнате в жилой группе с жилыми ячейками для нуждающихся в постельном режиме и колясочников (ЖЯ-6) рекомендуется размещать хозяйственную кладовую для грязного белья. 7.10 Площадь жилых комнат для проживающих, способных к частичному самообслуживанию или нуждающихся в посторонней помощи, рекомендуется принимать по таблице А.4. 7.11 Жилые комнаты для людей старшего возраста, передвигающихся на креслах-колясках, следует проектировать с учетом функциональных зон, обеспечивающих свободный подъезд человека в кресле-коляске к любой точке помещения, к оборудованию помещения при минимальной ширине зоны маневрирования кресла-коляски не менее 1,4 м согласно СП 59.13330. 7.12 Жилые комнаты рекомендуется оборудовать встроенными шкафами для одежды, обуви, белья и личных вещей, а передние - вешалками для уличной одежды. Встроенные шкафы возможно размещать в передних при наличии индивидуальных замков согласно таблицам А.3 - А.5. 7.13 Для лиц, свободно передвигающихся и способных к частичному самообслуживанию, рекомендуются жилые ячейки ЖЯ-1 и ЖЯ-3 с совмещенными санузлами. Для лиц, передвигающихся с трудом, предусматривают жилые ячейки ЖЯ-4. В жилых ячейках этого типа проживающие пользуются санузлом с помощью младшего медицинского персонала. Для удобства наблюдения за проживающими шлюз-передняя не предусматривается. 7.14 Для лиц с психоневрологическими заболеваниями предусматривают жилые ячейки ЖЯ-5 и ЖЯ-6. Санитарные узлы в этих жилых ячейках по сравнению с ячейками ЖЯ-1 и ЖЯ-4 проектируют большей площади (таблица А.5). Передние в жилых ячейках следует принимать площадью не менее 4 м2 при минимальной ширине 1,5 м. 7.15 Состав и площади помещений культурно-массового назначения представлены в таблице А.6 и на рисунках Б.9 - Б.13. 7.16 Зрительный зал проектируют, как правило, с амфитеатром. Уклон амфитеатра устанавливается исходя из условий видимости сцены. Требования к проектированию параметров зрительного зала и киноэкранов должны соответствовать требованиям СП 118.13330. 7.17 В зрительном зале предусматривают места для инвалидов на креслах-колясках из расчета не менее 10 - 12 % и для лиц с психоневрологическими заболеваниями не менее 5 - 10 %. Состав и площади зрительного зала представлены в таблице А.6 и на рисунке Б.10. 7.18 Число мест в зрительном зале необходимо принимать в процентном соотношении от вместимости домов-интернатов: в домах-интернатах общего типа со специальными отделениями или без них - в расчете не менее 80 % лиц, способных к самостоятельному передвижению, не менее 20 % лиц, передвигающихся с трудом, а также передвигающихся на креслах-колясках; в психоневрологических домах-интернатах - в расчете на 100 % лиц, способных к частичному самообслуживанию. Площадь зала принимается, как правило, из расчета 1,2 м2/место, а для лиц, использующих кресла-коляски, - 1,8 м2/место. 7.19* В зрительных залах должны быть установлены неподвижно прикрепленные к полу полумягкие кресла с неоткидными сиденьями. Для людей с физическими недостатками число мест в ряду должно быть: при односторонней эвакуации из ряда - не более 12, при двусторонней эвакуации - не более 25, ширина прохода между рядами - не менее 0,55 м. Для лиц, передвигающихся в креслах-колясках, следует предусматривать свободные площадки перед эстрадой или в конце зала и дополнительный проем-выезд из зала шириной не менее 1,6 м, размер зоны для размещения человека на кресле-коляске 0,9×1,4 м. 7.20 Артистические комнаты при зрительном зале допускается проектировать без естественного освещения. 7.21 Зрительный зал рекомендуется объединять с фойе в единое пространство (при проведении крупных мероприятий). Тип трансформируемой перегородки между зрительным залом и фойе устанавливается заданием на проектирование. 7.22 Помещения для проведения культовых обрядов следует предусматривать одно на здание в соответствии с таблицей А.6 и рисунком Б.13 в соответствии с требованием заказчика и заданием на проектирование. 7.23 При оптимальном уровне комфортности проживания класса «О» в составе помещений для культурно-массового назначения следует дополнительно предусматривать картинную галерею, зимний сад и др., по заданию на проектирование. 7.24 В зданиях домов-интернатов вместимостью 50 мест и более в составе медицинских помещений предусматривают кабинет врача, в зданиях вместимостью 100 - 200 мест - кабинет врача вместо кабинета фельдшера в соответствии с таблицей А.7. 7.25 Число и профиль ЛТМ определяют заданием на проектирование в соответствии с таблицей А.8 и рисунком Б.15. Комнату мастера следует размещать вблизи помещений соответствующей мастерской. Помещения ЛТМ и ЛПМ следует размещать на одном этаже, или в отдельных корпусах, соединенных с основным зданием теплым переходом. В мастерских, в которых могут работать инвалиды на креслах-колясках, ширину основного прохода, а также расстояние между рабочими местами следует принимать 1,5 - 2 м. 7.26 В психоневрологическом доме-интернате помещения лечебно-трудовых мастерских рекомендуется проектировать в соответствии с рисунком Б.14. Состав, площади и профиль таких мастерских и помещений для них следует определять заданием на проектирование. 7.27* В домах-интернатах следует проектировать оборудование индивидуальных рабочих мест или мест обслуживания с учетом размеров зоны досягаемости на рабочей поверхности стола для обеих рук в диапазоне от 0,25 м (от контактной кромки) по глубине и 0,7 м по фронту, до 0,7 м по глубине и 1,7 м по фронту в зависимости от удаленности и наклона туловища в соответствии с требованиями СанПиН 2.1.2.2564, СП 118.13330, ГОСТ Р 51633. 7.28 Учебно-производственные мастерские в учреждениях рассчитываются на лиц, находящихся под наблюдением врача, свободно передвигающихся и колясочников, способных к трудовому и профессиональному обучению и желающих заняться посильной работой по своей профессии или приобрести новую профессию. Ориентировочный состав и площади помещений УПМ представлены в таблице А.9. Планировочная схема картонажной мастерской приведена на рисунке Б.14. 7.29 В домах-интернатах проектируют столовые, рассчитанные в целом на учреждение. Для учреждений вместимостью до 100 мест рекомендуется подвоз пищи в термосах в жилые комнаты или буфетные. Буфетные с кухней-раздаточной рассчитывают на жилые группы, в которые из кухни-столовой в буфетные доставляют готовые обеды. Столовая работает на сырье и полуфабрикатах. Состав и площади помещений столовой представлены в таблице А.10. Обеденный зал столовой предусматривается для свободно передвигающихся лиц, передвигающихся с трудом и контингента, передвигающегося на креслах-колясках (рисунок Б.17, см. также СанПиН 2.3.6.1079, СП 59.13330). Состав и площади помещений столовой рекомендуется принимать по таблице А.10. 7.30 Число мест в обеденном зале следует принимать из расчета односменного обслуживания лиц, свободно передвигающихся и передвигающихся на креслах-колясках, списочный состав определяется заданием на проектирование, ориентировочно: в домах-интернатах общего типа - 90 % списочного состава; в психоневрологических домах-интернатах - 80 % списочного состава. Обслуживание должно осуществляться официантами. 7.31 Число мест в буфетных для лиц, передвигающихся с трудом, временно заболевших, следует принимать из расчета одновременного обслуживания ориентировочно: в домах-интернатах общего типа для лиц, не способных к частичному самообслуживанию, - 10 %; в психоневрологических домах-интернатах для лиц, не способных к частичному самообслуживанию, нуждающихся в постельном режиме, - 20 %. Доставка пищи из кухни-столовой на этажи, где расположены буфетные жилых отделений, производится с помощью подъемников. 7.32 При размещении столовой отдельно от здания дома-интерната при входе в столовую следует предусматривать вестибюль с гардеробом, уборной и умывальником в шлюзе (для мужчин и женщин). 7.33 Площадь обеденного зала следует принимать на одно место в зале не менее: при самообслуживании - 1,8 м2 и 1,4 м2 - при обслуживании официантами в соответствии с СП 118.13330. В специализированных учреждениях площадь залов принимается по заданию на проектирование. 7.34 В домах-интернатах для людей старшего возраста и инвалидов следует предусматривать помещения для коррегирующих упражнений и физкультурных занятий. Для лиц, практически здоровых и свободно передвигающихся, рекомендуется проектировать многоцелевой спортзал. В интернатах вместимостью до 200 мест помещение для гимнастики проектируется из расчета проведения посменных занятий. Состав и площади помещений представлены в таблице А.1* и на рисунке Б.16. Физкультурный зал рекомендуется проектировать в соответствии с данными таблицы А.1*, что отражается в задании на проектирование. 7.35 Административные и служебно-бытовые, а также хозяйственные помещения рекомендуется проектировать согласно таблицам А.1*, А.11, А.12. 7.36 Прачечная, стирально-разборочная, прачечная для самообслуживания при доме-интернате допускаются в том случае, когда отсутствует возможность стирки белья в прачечной населенного пункта. Производительность прачечной при доме-интернате следует принимать из расчета стирки 1 кг сухого белья в сутки на одного проживающего, передвигающегося с трудом и нуждающегося в посторонней помощи, пользующегося креслом-коляской, и 0,5 кг - для остальных категорий проживающих. Площадь прачечных, а также площадь кладовых для чистого и грязного белья следует принимать согласно таблицам А.1* и А.12. 7.37 Хозяйственные помещения (центральная бельевая, кладовая, складские помещения, блок дезинфекционных камер, прачечная, кладовые инвентаря) следует определять в соответствии с таблицами А.1*, А.12 и заданием на проектирование по расчету исходя из общей вместимости учреждения и местных условий. 7.38 Помещение вахтера рекомендуется функционально связывать с вестибюльной группой помещений для работы вахтера в течение дня с 8.00 до 20.00 ч. Помещение охранника функционально связано с вестибюльной группой и административно-служебными помещениями для работы охранника в течение суток. Состав и площади помещений представлены на рисунке Б.3 и в таблице А.1*. 8 Инженерно-техническое обеспечение и инженерное оборудование8.1 Регулирование инженерно-технического обеспечения и инженерного оборудования следует осуществлять из единого диспетчерского пункта, СП 54.13330. 8.2 Внутренний водопровод и канализацию домов-интернатов следует проектировать в соответствии с требованиями СП 30.13330 и [8]. В жилых ячейках при установке кранов в умывальники и душевые необходимо предусматривать термостатические регуляторы, исключающие подачу горячей воды температурой более 50 °С. 8.3 В домах-интернатах следует предусматривать вентиляцию с естественным побуждением в соответствии с СП 60.13330. Расход наружного воздуха в жилых помещениях и помещениях общественного и административного назначения следует принимать согласно СП 60.13330. 8.4 При использовании звуковой сигнализации места для инвалидов с дефектами слуха в общественных помещениях, зрительном зале следует размещать на расстоянии не более 10 м от источника звука или оборудовать специальными переносными приборами усиления звука в соответствии с требованиями СП 59.13330, ГОСТ Р 51764, [10], [11], [12]. Требования к необходимой звуковой, световой, тактильной информации, устанавливаемой в медицинских помещениях, следует предусматривать в соответствии с ГОСТ Р 51764, ГОСТ Р 50571.28. 8.5 Надежность электроснабжения электроприемников (кроме устройств противопожарной защиты) должна соответствовать II степени в соответствии с [9]. 8.6 Жилые комнаты, помещения отдыха и общественные помещения с постоянным пребыванием людей, а также помещение охраны, мастерские учебно-производственные, лечебно-трудовые и помещения администрации следует радиофицировать. 8.7 Телефоны устанавливают в кабинетах врачей, в кабинете директора и заместителя директора по хозяйственной части, в помещении охранника и вахтера, бухгалтерии. Телефоны-автоматы следует устанавливать в вестибюле и на каждом этаже домов-интернатов. В домах-интернатах на 100 мест и более следует предусматривать внутреннее устройство телефонной связи в зависимости от возможности местной телефонной сети. Телефоны с выходом в городскую сеть должны размещаться в кабинете директора и в вестибюле. Перечень других помещений, в которых устанавливают телефоны, определяется заданием на проектирование. 8.8 Коллективные приемные антенны телевидения следует предусматривать в жилых комнатах, комнатах отдыха, зрительном зале, фойе в домах-интернатах общего типа и психоневрологических домах-интернатах. В домах-интернатах устанавливают видеонаблюдение в помещении охраны. В психоневрологических домах-интернатах установку телевизоров следует предусматривать в комнатах отдыха и в зрительном зале. 8.9* Аварийное освещение устраивают в соответствии с требованиями СП 52.13330, СП 54.13330. Для аварийной звуковой сигнализации следует применять приборы согласно [10], СП 5.13130, СП 4.13130. Аварийное освещение должно выполняться в помещениях вестибюля, гардероба, охраны, аппаратной управления, звукоаппаратной, телефонной станции в соответствии с СП 52.13330, системой оповещения и управления эвакуацией, а также ФЭС. 8.10 Эвакуационное освещение должно быть предусмотрено во всех помещениях, где возможно пребывание не менее 50 чел., а также на всех лестницах, проходах и других путях эвакуации согласно СП 59.13330, СП 118.13330. 8.11* Для вызова дежурного персонала в домах-интернатах общего типа и психоневрологических следует предусматривать сигнализацию (звуковую или световую). Одну кнопку вызова устанавливают у изголовья каждой кровати в жилой комнате, а также в комнатах отдыха, обеденном и зрительном залах, лечебно-трудовых и учебно-производственных мастерских, санузлах и ванных комнатах. В психоневрологических домах-интернатах одна кнопка вызова предусматривается на каждую жилую комнату, обеденный и зрительный залы, лечебно-трудовую мастерскую, санузлы и вестибюли. Сигналы вызова должны поступать в помещение дежурного персонала. Помещения для постоянного пребывания инвалидов могут быть оборудованы автономными пожарными извещателями, сблокированными с общей системой оповещения и управления эвакуацией. 8.12* Пожарную, охранную тревожную сигнализацию и средства связи следует проектировать в соответствии с требованиями СП 5.13130. Приложение А*
|
Помещение |
Площадь помещения, м2 |
|||||
минимальный уровень |
оптимальный уровень |
|||||
при вместимости учреждения, место |
||||||
50 |
100 |
200 |
50 |
100 |
200 |
|
1 Вестибюль, гардероб для посетителей, пост дежурного |
30,0 |
40,0 |
70,0 |
40,0 |
80,0 |
100,0 |
помещение вахтера |
9,0 |
9,0 |
9,0 |
9,0 |
9,0 |
9,0 |
помещение охранника |
14,0 |
14,0 |
14,0 |
14,0 |
14,0 |
14,0 |
торговый киоск |
- |
4,0 |
4,0 |
4,0 |
4,0 |
4,0 |
комната приема гостей |
12,0 |
12,0 |
20,0 |
12,0 |
12,0 |
24,0 |
телефоны-автоматы |
1,5 |
1,5 |
1,5 |
1,5 |
1,5 |
1,5 |
санузел при вестибюле |
3,0 |
6,0 |
8,0 |
3,0 |
6,0 |
8,0 |
2 Комната социально-бытовой адаптации* |
16 |
20 |
40 |
18 |
30 |
60 |
3 Кабинет заведующего при комнате социально-бытовой адаптации |
16 |
16 |
16 |
18 |
18 |
18 |
4 Прачечная: |
|
|
|
|
|
|
стиральная-разборочная |
12 |
18 |
20 |
12 |
18 |
20 |
сушильно-гладильная |
10 |
12 |
12 |
10 |
12 |
12 |
хозяйственная кладовая (помещение) |
(7×2) |
(9×2) |
(9×2) |
(7×2) |
(9×2) |
(9×2) |
|
14 |
18 |
18 |
14 |
18 |
18 |
5 Помещения: |
|
|
|
|
|
|
для занятий гимнастикой и физкультурой** |
|
81, одно помещение на здание |
|
|||
комната для раздевания |
14,5 |
14,5×2 |
14,5×2 |
14,5 |
14,5×2 |
14,5×2 |
санузел |
3,2 |
3,2×2 |
3,2×2 |
3,2 |
3,2×2 |
3,2×2 |
комната для хранения спортинвентаря** |
6,5 |
6,5 |
6,5 |
6,5 |
6,5 |
6,5 |
санузел для инвалидов на креслах-колясках |
4 |
4×2 |
4×2 |
4 |
4×2 |
4×2 |
душевая |
6,5 |
6,5 |
6,5 |
6,5 |
6,5 |
6,5 |
комната тренера |
8 |
8 |
8 |
8 |
8 |
8 |
6 Отапливаемые стоянки для кресел-колясок |
0,8 на каждого передвигающегося на кресле-коляске, но не менее 10 |
|||||
7 Мастерская ремонта |
7 |
7 |
7 |
7 |
7 |
7 |
Кладовая запчастей |
7 |
7 |
7 |
7 |
7 |
7 |
8 Многоцелевой спортзал размером 12×24 м |
- |
288 |
288 |
По заданию на проектирование |
||
Кладовая для хранения спортивного инвентаря |
- |
16 |
16 |
То же |
||
Раздельные комнаты для раздевания для мужчин и женщин с душевыми и санитарными узлами |
- |
По 2 рожка и одному унитазу на каждую раздевалку |
То же |
|||
Комната методиста |
- |
12 |
12 |
То же |
||
* Помещения предусматривают в специальных домах-интернатах (специальных отделениях). ** Для зданий с промежуточной вместимостью. Число помещений и площади устанавливают по заданию на проектирование. |
Таблица А.2 - Приемно-карантинное отделение*
Помещения |
Площадь, м2, не менее |
Число помещений |
Холл (ожидальная) с тамбуром |
12 |
1 |
Кабинет врача, медицинской медсестры |
14 |
1 |
Санитарная комната |
6 |
1 |
Комната для санобработки и передевания |
12 |
1 |
Ванная с душем и подъемником |
6 |
1 |
Комната для одевания |
6 |
1 |
Палата-изолятор с санузлом и умывальником в шлюзе |
10 + 10 |
2 |
Палата карантинного отделения на 1 - 2 места с санузлом и умывальником в шлюзе |
10 + 10 |
2 |
Процедурная |
12 |
1 |
Комната сестры-хозяйки |
10 |
1 |
Комната для хранения предметов уборки с местом для приготовления дезинфекционных средств |
3 |
1 |
Санузел для персонала с умывальником в шлюзе |
3 |
1 |
Место для хранения каталок |
2 |
1 |
Буфет-пост |
4 |
1 |
* Использованы данные: СанПиН 2.1.2.2564, п. 10.3. |
Помещение |
Число помещений |
Площадь, м2 |
Оборудование |
1 Жилая ячейка типа ЖЯ-1: |
По заданию на проектирование |
|
|
жилая комната на 1 чел. |
|
14,6 |
Деревянная кровать, прикроватная тумбочка, стол, два стула, кресло, торшер |
то же, на 2 чел. |
|
16,0 |
Две деревянные кровати, 2 прикроватные тумбочки, стол, три стула, торшер |
прихожая |
|
Не менее 4 |
Вешалка для одежды, зеркало, электрохолодильник |
совмещенный санузел |
|
4,5 |
Унитаз, умывальник, душевой поддон или напольный душ, откидная скамейка, полотенцесушитель, зеркало с полочкой, поручни, кронштейн для одежды и полотенец, корзина для мусора. Обеспечить возможность установки ванны |
встроенный шкаф для одежды, белья, обуви и личных вещей с двумя отделениями |
|
0,6 |
Одно отделение оборудуется полкой для головных уборов и штангой для одежды, другое - полками для белья. Размер шкафа 60×100 см |
лоджия |
|
|
Раскладушка, навесной столик, крючки для натягивания веревки для сушки мелких личных вещей (на уровне перил) |
2 Жилая ячейка типа ЖЯ-2: |
По заданию на проектирование |
|
|
жилая комната на 2 чел. |
|
16,0 |
Две деревянные кровати с прикроватными тумбочками, стол, три стула, два кресла, торшер |
прихожая |
|
Не менее 4 |
Вешалка для одежды, зеркало, электрохолодильник |
совмещенный санузел |
|
4,5 |
Унитаз, умывальник, душевой поддон или напольный душ, откидная скамейка, полотенцесушитель, зеркало с полочкой, поручни, кронштейн для одежды и полотенец, корзина для мусора |
3 Жилая ячейка типа ЖЯ-3: |
По заданию на проектирование |
|
|
жилая комната на 2 чел. |
|
16,0 |
Две кровати с прикроватными тумбочками, стол, два стула, кресло, торшер |
то же, на 3 чел. |
|
21,0 |
Три кровати с прикроватными тумбочками, стол, три стула, кресло, торшер |
прихожая |
1 |
Не менее 4 |
Вешалка для одежды, зеркало, столик для телефона, холодильник |
совмещенный санузел |
1 |
4,5 |
Унитаз, умывальник, душ, оборудование, аналогичное оборудованию ЖЯ-2 |
встроенный шкаф для одежды, белья, обуви |
1 |
0,6 м2/чел. |
По заданию на проектирование |
лоджия |
|
1 м2/чел. |
То же |
Общие помещения на 3 - 4 жилые ячейки |
|||
4 Комната дежурной медсестры (процедурная) |
1 |
12 |
Кушетка, стол медсестры, шкаф для хранения медикаментов |
5 Комната сестры-хозяйки |
1 |
10 |
Стол, стул, шкаф для хранения белья |
6 Гостиная - комната отдыха |
1 |
8 - 12 |
Кресла с высокими сиденьями и подлокотниками, подставки для ног, стол, журнальный столик, телевизор, стол-подставка под телевизор |
7 Кухня-буфетная |
Одна на жилую группу |
Не менее 12 |
Электроплита, мойка, рабочий стол, навесной шкаф-полка, холодильник, электросамовар, ведро для отходов, обеденный стол, четыре стула |
8 Моечная с местами для: |
Одна на 2 - 3 жилые группы |
|
|
а) мытья и стерилизации суден, мытья и сушки клеенок |
|
8 |
Установка для мойки суден, слив больничный, мойка для клеенок, стол производственный, ванна керамическая, умывальник, зеркало с полочкой, вешалка для полотенец, шкаф для суден, тележка |
б) хранения предметов уборки |
|
3 |
|
в) сортировки, заполаскивания особо грязного белья, сушки |
|
5 |
|
и временного хранения грязного белья |
|
|
|
9 Кладовая чистого белья |
Одна на 2 - 3 жилые группы |
4 |
Стеллаж, полки или шкаф |
10 Комната для персонала с прихожей и санузлом |
На жилую группу |
8,0 |
Кресла, стол, диван, шкаф, вешалка, зеркало, унитаз, умывальник, душевой поддон, зеркало с полочкой, вешалка для полотенца |
11 Постирочная для мелких личных вещей с местами для сушки и глажения |
Одна на жилое отделение |
8,0 |
Небольшая стиральная машина с отжимом, большая мойка с двумя камерами, шкаф для сушки, гладильные приборы |
12 Помещение для сушки одежды и обуви, хранение уборочного инвентаря |
Одно на 2 - 3 жилые ячейки |
12,0 |
По заданию на проектирование |
13 Комната персонала |
На отделение |
8,0 |
То же |
Таблица А.4 - Состав и площади помещений в домах-интернатах общего типа
Помещение |
Площадь помещения жилых групп, м2 |
||
для свободно передвигающихся |
для передвигающихся с трудом |
для нуждающихся в посторонней помощи, передвигающихся на креслах-колясках |
|
1 Жилая ячейка типа ЖЯ-4: |
|
|
|
жилые комнаты на 2 чел. |
16,0 |
16,0 |
- |
то же, на 3 чел. |
20,0 |
20,0 |
24,0 |
прихожая |
|
Не менее 4 |
|
совмещенный санузел |
5,5 |
5,5 |
5,5 |
раздельный санузел (вариант) |
7,5 |
7,5 |
7,5 |
встроенный шкаф для хранения белья, одежды и личных вещей (на 1 чел.) |
0,6 |
0,6 |
0,6 |
Общие помещения на 3 - 4 жилые ячейки |
|||
2 Комната дежурной медсестры (процедурная) |
12 |
12 |
12 |
3 Комната персонала |
8 |
8 |
8 |
4 Комната сестры-хозяйки |
10 |
10 |
10 |
5 Гостиная |
8 - 12 |
8 - 12 |
8 - 12 |
6 Буфетная |
0,6 |
0,6 |
0,8 |
7 Кухня-раздаточная |
14 |
14 |
14 |
8 Ванная с раздевальной |
12 |
12 |
12 |
9 Душевые кабины с местами для раздевания |
3,0 |
6,0 |
6,0 |
10 Санитарная комната с местами для мойки суден и клеенок, временного хранения грязного белья, заполаскивания и сушки особо грязного белья, хранения уборочного инвентаря |
15 |
16 |
16 |
11 Помещение для бытовых нужд с местами для стирки и сушки мелких вещей, сушки одежды и обуви, хранения уборочного инвентаря |
12 |
12 |
12 |
12 Кладовая чистого белья |
2 |
4 |
2 |
13 Санитарный узел для персонала: |
|
|
|
санузел с умывальником |
3 |
3 |
3 |
душ |
2,5 |
2,5 |
2,5 |
14 Комната для глажения белья и одежды |
6 |
6 |
8 |
15 Кабина гигиенического душа с местом для раздевания |
7 |
7 |
7 |
16 Клизменная |
8 |
8 |
8 |
17 Место для каталок и кресел-колясок |
4 |
4 |
4 |
Итого: |
184,7 |
190,7 |
178,9 |
Таблица А.5 - Состав и площади помещений в психоневрологических домах-интернатах для лиц, свободно передвигающихся под наблюдением и передвигающихся на кресалах-колясках*
Помещение |
Площадь помещения, м2 |
||
для лиц, свободно передвигающихся |
для лиц, передвигающихся с трудом |
для лиц, нуждающихся в посторонней помощи, передвигающихся на креслах-колясках |
|
1 Жилая ячейка типа ЖЯ-5: |
|
|
|
жилые комнаты на 4 чел. |
34,0 |
34,0 |
34,0 |
прихожая |
|
Не менее 4 |
|
раздельный санузел (унитаз, биде или писсуар), душевой поддон (или ванна), умывальник |
6,0 |
6,0 |
- |
совмещенный санузел, унитаз, биде (или писсуар), слив, ванна, два умывальника, стеллаж для суден, ванна для дезобработки и мытья клеенок |
- |
- |
18 |
встроенный шкаф для хранения белья, одежды, личных вещей (м2/чел.) |
0,6 |
0,6 |
0,6 |
буфетная |
- |
4 |
4 |
кухня-раздаточная |
- |
8 |
8 |
2 Жилая ячейка типа ЖЯ-6: |
|
|
|
жилые комнаты на 4 чел. |
- |
34,0 |
34,0 |
то же, на 6 чел. |
- |
42,0 |
42,0 |
прихожая |
- |
6,0 |
6,0 |
совмещенный санузел, унитаз, биде (или писсуар), слив, ванна, два умывальника, стеллаж для суден, ванна для дезобработки и мытья клеенок |
- |
18,0 |
18,0 |
встроенный шкаф для хранения белья, одежды, личных вещей (м2/чел.) |
- |
0,6 |
0,6 |
буфетная |
- |
4,0 |
4,0 |
кухня-раздаточная |
- |
8,0 |
12,0 |
Общие помещения на 4 - 6 жилых групп |
|||
3 Кабинет врача-психиатра |
12,0 |
12,0 |
12,0 |
4 Комната дежурной медсестры (процедурная) |
12,0 |
12,0 |
12,0 |
5 Гостиная |
18 |
18 |
18 |
6 Процедурная аминозиновая с подготовительной |
18 |
18 |
18 |
7 Комната персонала |
10 |
10 |
10 |
8 Комната для кружковых занятий |
18 |
18 |
- |
9 Комнаты для занятий трудом ориентировочно на 8 - 10 чел. и для инструктора |
- |
38 + 12 |
- |
10 Комната сестры-хозяйки |
10 |
10 |
10 |
11 Помещения для глажения белья и одежды |
6 |
6 |
6 |
12 Санитарные узлы (мужской и женский) для персонала: уборная (1 кабина), душ (1 кабина) |
12 |
12 |
12 |
13 Клизменная |
8 |
8 |
8 |
14 Место для хранения каталок и кресел-колясок |
4 |
4 |
4 |
15 Помещения для бытовых нужд с местом для стирки и сушки мелких вещей, сушки одежды и обуви, хранения уборочного инвентаря |
12,0 |
12,0 |
6,0 |
16 Санитарная комната с местами для мойки суден и клеенок, заполаскивания особо грязного белья, хранения уборочного инвентаря |
- |
16,0 |
16,0 |
17 Кладовая чистого белья |
2,0 |
2,0 |
4,0 |
18 Ванная комната |
6,0 |
12,0 |
12,0 |
19 Комната санитарки (круглосуточный пост) |
10,0 |
10,0 |
10,0 |
20 Кабина гигиенического душа с местом для раздевания |
7,0 |
7,0 |
7,0 |
Итого: |
209,6 |
406,2 |
350,2 |
* Использованы данные СП 54.13330. |
Таблица А.6 - Состав и площади помещений культурно-массового обслуживания*
Помещение |
Дом-интернат общего типа, специальный дом-интернат (специальное отделение) |
Дом-интернат психоневрологический |
|||||
Площадь помещения, м2, при вместимости учреждения, место** |
|||||||
50 |
100 |
200 |
50 |
100 |
200 |
||
1 Для посещения культурно-массовых мероприятий |
|
|
|
|
|
|
|
зрительный зал |
40 |
60 |
70 |
30 |
40 |
60 |
|
эстрада при зале |
- |
30 |
30 |
- |
30 |
30 |
|
фойе |
15 |
30 |
38 |
15 |
30 |
30 |
|
комнаты с уборной (унитаз, умывальник) для артистов |
20 |
12 + 12 |
12 + 12 |
20 |
12 + 12 |
12 + 12 |
|
кладовая инвентаря |
4 |
8 |
8 |
4 |
8 |
8 |
|
кинопроекционная |
10 |
10 |
10 |
10 |
10 |
10 |
|
радиоузел |
- |
8 |
8 |
- |
8 |
8 |
|
библиотека-читальня с книгохранилищем |
18 + 24 |
30 + 18 |
30 + 18 |
24 + 18 |
36 + 18 |
30 + 18 |
|
комната для кружковых занятий |
18 |
24 |
24 |
18 |
24 |
24 |
|
комната для музыкальных занятий |
18 |
24 |
24 |
18 |
24 |
24 |
|
санузлы при фойе |
2 |
3 |
3 |
2 |
3 |
3 |
|
2 Для проведения религиозных обрядов |
40 |
60 |
120 |
40 |
60 |
120 |
|
Подсобные помещения: |
|
|
|
|
|
|
|
комната (келья) для священнослужителя |
7,5 |
7,5 |
7,5 |
7,5 |
7,5 |
7,5 |
|
санузел |
3 |
3 |
3 |
3 |
3 |
3 |
|
передняя |
2,1 |
2,1 |
2,1 |
2,1 |
2,1 |
2,1 |
|
кладовая |
3,3 |
3,3 |
3,3 |
3,3 |
3,3 |
3,3 |
|
Итого: |
224,9 |
344,9 |
422,9 |
214,9 |
330,9 |
404,9 |
|
* Использованы данные [14]. ** Для зданий с промежуточной вместимостью число помещений и площади устанавливают заданием на проектирование. |
|||||||
Таблица А.7 - Состав и площади помещений медицинского обслуживания* (дом-интернат общего типа; дом-интернат психоневрологический)
Помещение |
Площадь помещения, м2, при вместимости учреждения, место |
||
50 |
100 |
200 |
|
1 Кабинеты врачей и медсестер |
|
|
|
Кабинет заведующего медпунктом, главного врача |
16 |
16 |
18 |
Кабинет зам. главврача, врача-терапевта |
- |
12 |
12 |
Кабинет старшей медсестры и врачей-консультантов (лоринголога, офтальмолога) |
- |
12 + 8 |
12 + 8 |
- |
18 |
18 |
|
Стоматологический кабинет |
- |
- |
14 |
Кабинет медсестры или фельдшера |
12 |
- |
- |
Итого: |
28 |
66 |
82 |
2 Процедурная и перевязочная |
|
|
|
Процедурная с местом для гинекологического кресла |
18 |
18 |
18 |
Перевязочная |
- |
- |
12 + 6 |
Итого: |
18 |
18 |
36 |
3 Кабинеты физиотерапии |
|
|
|
Кабинет электро-светолечения с помещением для обработки прокладок |
12 + 8 |
12 + 8 |
12 + 8 |
Кабинет теплолечения с вспомогательными помещениями |
- |
- |
12 + 8 |
Сенсорная комната |
- |
12 |
18 |
Итого: |
20,0 |
32,0 |
58,0 |
4 Изолятор |
|
|
|
Палаты с санузлом |
14 |
2×14 |
2×14 |
Буфет-пост |
- |
4 |
4 |
Итого: |
14 |
32 |
32 |
5 Помещение ритуального назначения |
|
|
|
Траурный зал |
- |
36 |
48 |
Уборная для персонала |
- |
1,8 |
1,8 |
Итого: |
- |
37,8 |
49,8 |
6 Аптечные помещения |
|
|
|
Помещение для хранения и выдачи лекарственных средств |
4 |
6 |
10 |
Ассистентская |
8 |
8 |
10 |
Кладовая для хранения легковоспламеняющихся жидкостей |
- |
- |
2 |
Итого: |
12 |
14 |
22 |
7 Лаборатория |
|
|
|
Помещение с кабиной для приема проб на анализ |
- |
- |
4 + 6 |
Кабина для взятия на анализ проб крови(лаборантская) |
- |
10 |
10 |
Препараторская |
12 |
14 |
14 |
Автоклавная-стерилизационная |
- |
10 |
12 |
Итого: |
12 |
34 |
46 |
8 Помещение медицинского персонала |
|
|
|
Комната отдыха |
- |
8 |
10 |
Уборные |
1,8 |
1,8 |
1,8 |
Итого: |
1,8 |
9,8 |
11,8 |
9 Помещения ЛФК |
|
|
|
Зал ЛФК |
16 |
20 |
35 |
Раздевальная с санузлами |
- |
6 |
10 |
Кабинет массажа |
- |
- |
- |
Помещение для примерки и подгонки протезов |
- |
- |
- |
Итого: |
16 |
26 |
45 |
Всего: |
121,8 |
269,6 |
382,6 |
* Использованы данные СП 54.13330; СП 118.13330. Примечание - Помещения для проведения водных процедур, сауна, душ «шарко», ванны дополняются по заданию на проектирование для повышенных условий комфортности проживания класса «оптимального уровня». Для зданий с промежуточной вместимостью число помещений и площади устанавливают заданием на проектирование. |
Таблица А.8 - Состав и площади лечебно-трудовых мастерских
Помещение |
Расчетная площадь, м2/место |
Площадь помещения, м2 |
|
в учреждениях вместимостью до 100 мест |
в учреждениях вместимостью 101 место и более |
||
1 Лечебно-трудовые мастерские (1 - 3 видов из нижеприведенных): |
|
|
|
швейные |
4,5 |
45 |
60 |
ремонт аппаратуры |
4,5 |
45 |
60 |
домоводства |
4,5 |
45 |
60 |
живописи* |
6,0 |
60 |
60 - 70 |
2 Кладовые готовой продукции |
- |
12 - 18 |
18 - 20 |
3 Кладовые материалов и готовой продукции |
- |
28 |
30 |
4 Комната персонала (с умывальником в шлюзе) |
- |
8 |
10 |
5 Санузел с умывальником (для мужчин и женщин) |
- |
3×2 |
3×2 |
6 Кабинет инструктора |
- |
12 |
12 |
7 Комната медсестры |
- |
10 |
10 |
* При каждой из перечисленных мастерских предусматривают подсобные помещения, комнату мастера и другие помещения, перечисленные в данной таблице. |
Таблица А.9 - Состав и площади учебно-производственных помещений
Помещение |
Расчетная площадь, м2/место |
Площадь помещения, м2 |
|
в учреждениях вместимостью до 100 мест |
в учреждениях вместимостью более 100 мест |
||
1 Учебно-производственная мастерская (1 - 3 видов, как пример): |
|
|
|
швейная, электромонтажная, обувная |
4,5 |
45,0 |
60,0 |
мастерские ручных ремесел, механической сборки, ремонта аппаратуры и бытовой техники |
4,5 |
45,0 |
60,0 |
картонажно-переплетная, столярная, ткацкая, токарно-фрезерная, гончарная |
6,0 |
60,0 |
72,0 |
2 Кладовая материалов |
- |
8,0 |
16,0 |
3 Кладовая готовой продукции |
- |
8,0 |
16,0 |
4 Инструментальная |
- |
12 |
25 |
5 Помещение для персонала (умывальник в шлюзе) |
- |
8 |
10 |
6 Общий санузел |
- |
3×2 |
3×2 |
7 Комната мастера |
- |
12 |
12 |
8 Методический кабинет |
- |
20 |
25 |
Таблица А.10 - Площади столовой домов-интернатов*
Помещение |
Площадь помещения, м2 |
|
в учреждениях вместимостью до 100 мест |
в учреждениях вместимостью 101 место и более |
|
1 Для инвалидов с сохраненным интеллектом |
|
|
Обеденный зал при загрузке зала 60 % вместимости дома-интерната с холлом, в котором предусматривается умывальник |
2,4 м2/место |
|
Раздаточная |
16 |
20 |
2 Производственные помещения |
|
|
Цех заготовки овощей |
16 |
12 |
Цех заготовки мяса и птицы |
16 |
18 |
Цех заготовки рыбы |
18 |
24 |
Горячий цех |
54 |
70 |
Холодная заготовочная |
8 |
10 |
Кондитерский цех |
8 |
10 |
Моечные кухонной и столовой посуды |
6 |
12 |
Кладовая суточного запаса продуктов |
8 |
10 |
Экспедиция пищи в жилые группы |
6 |
8 |
Складские помещения |
12 |
14 |
Охлаждаемые камеры для хранения: |
|
|
мяса, рыбы |
4 |
6 |
молочных продуктов, фруктов и зелени, консервов и квашений |
6 |
8 |
отходов (с отдельным наружным выходом) |
4 |
6 |
Помещение для холодильной установки |
6 |
8 |
Кладовая для сухих продуктов |
4 |
6 |
Помещение для хранения и резки хлеба |
10 |
14 |
Кладовая для овощей |
10 |
12 |
Кладовая для хранения белья и инвентаря |
6 |
8 |
Загрузочная |
7 |
10 |
Тарная |
4 |
6 |
3 Административно-бытовые помещения |
32 |
40 |
Комната заведующего производством |
8 |
10 |
Комната медицинской сестры диетического питания |
14 |
14 |
Помещение приема пищи для персонала с подсобными помещениями |
16 + 6 |
18 + 8 |
Гардеробные, душевые и уборные для персонала |
10 |
16 |
Место для хранения предметов уборки помещений |
2 |
4 |
Помещения для хранения и мытья мармитных тележек и тары, применяемых для транспортирования пищи |
6 |
8 |
* Использованы данные СП 118.13330. |
Таблица А.11 - Состав административных и служебно-бытовых помещений домов-интернатов*
Помещение |
Площадь помещения, м2, при вместимости учреждения, место |
||
50 |
100 |
200 |
|
1 Помещения администрации |
|
|
|
кабинет директора |
12 |
12 |
18 |
приемная директора |
- |
10 |
10 |
кабинет заместителя директора |
- |
12 |
12 |
кабинет инженерно-технического персонала |
12 |
14 |
14 |
канцелярия, отдел кадров, бухгалтерия, касса |
12 |
18 |
24 |
архив медицинский |
4 |
6 |
6 |
комната общественных организаций |
- |
- |
12 |
гардеробные, уборные и душевые персонала |
12 |
16 |
18 |
Итого: |
52 |
88 |
114 |
2 Комнаты для ночлега гостей с передней и санузлами (унитаз, умывальник, душ) |
14 |
14 |
16 |
3 Парикмахерская с местом или помещением для педикюра |
- |
14 |
16 |
4 Комната и кладовая сестры-хозяйки |
8 + 7 |
10 + 10 |
10 + 12 |
5 Уборная при вестибюле для посетителей на один унитаз с умывальником в шлюзе |
3 |
3 |
6 |
Всего: |
84 |
139 |
174 |
* Использованы данные СП 118.13330. |
Таблица А.12 - Состав и площади хозяйственных помещений домов-интернатов
Помещение |
Площадь помещения, м2, при вместимости учреждения, место |
||
50 |
100 |
200 |
|
1 Центральные кладовые: |
|
|
|
кладовая чистого белья с местом для починки |
12 |
16 |
16 |
кладовая швейной мастерской |
12 |
12 |
12 |
кладовая грязного белья |
6 |
8 |
10 |
кладовая сезонной одежды и обуви |
18 |
24 |
28 |
кладовая личных вещей |
18 |
24 |
32 |
кладовая инвентаря и мебели |
18 |
24 |
26 |
склад хозяйственный |
18 |
24 |
36 |
кладовая садово-огородного инвентаря |
8 |
10 |
12 |
Итого: |
110 |
142 |
172 |
2 Помещение дезинфекционных камер |
16 |
19 |
19 |
кладовая грязного белья с местом для разборки |
7 |
9 |
12 |
помещение дежурного персонала |
8 |
8 |
8 |
общий санузел, раздельный для мужчин и женщин |
6 |
6 |
6 |
комната бытового обслуживания |
8 |
10 |
12 |
Итого: |
45 |
52 |
57 |
3 Мастерские по ремонту оборудования и инвентаря |
12 + 12 |
18 + 12 |
18 + 12 |
4 Помещение для пожарного поста |
4 |
4 |
6 |
Итого: |
28 |
34 |
36 |
Всего: |
183 |
228 |
265 |
1 - жилая группа для лиц свободно передвигающихся,
практически здоровых; 2 - жилая группа для лиц
передвигающихся с трудом; 3 - жилая группа для лиц передвигающихся на
креслах-колясках
Рисунок Б.1 - Схема взаимосвязей жилых групп и
помещений дома-интерната
общего типа со специальным отделением
1 - жилая группа для лиц, передвигающихся с трудом, способных
к частичному самообслуживанию;
2 - жилая группа для лиц, нуждающихся в посторонней помощи и постельном
режиме,
передвигающихся на креслах-колясках
Рисунок Б.2 - Схема взаимосвязей жилых групп и
помещения
психоневрологического дома-интерната
I - Помещение вахтера: 1 - стойка; 2 -
стол с телефоном и настольной сигнализацией; 3 - пожарная
сигнализация; 4 - топчан для отдыха дежурного; 5 - стул; 6
- шкаф;
II - Пост милиции: 1 - стол с телефоном и настольной сигнализацией; 2
- стул; 3 - топчан; 4 - тумбочка;
5 - решетчатая перегородка с дверью
Рисунок Б.3 - Помещение охраны и безопасности
1 - кровать;
2 - тумбочка; 3 - стол (тумбочка) для телевизора; 4 -
стул; 5 - кресло; 6 - стол;
7 - подвесной шкаф; 8 - топчан; 9 - диван
Рисунок Б.4 - Планировочные схемы комнат жилых ячеек
ЖЯ-1 и ЖЯ-3 для лиц
свободно передвигающихся
1 - кровать; 2 - тумбочка; 3 - стол; 4 - стул; 5 - шкаф для одежды; 6 - стол; 7 - кресло-коляска; 8 - диван
Рисунок
Б.5 - Планировочные схемы комнат жилых ячеек ЖЯ-4 для двух- и
трехместных комнат
1 - кровать общебольничная; 2 - столик
надкроватный; 3 - тумбочка прикроватная; 4 - кресло для
отдыха; 5 - кресло-судно передвижное; 6 - кресло-коляска; 7
- стул; 8 - стол; 9 - шкаф для одежды;
10 - вешалка для одежды.
Рисунок Б.6 - Планировочная схема жилой ячейки ЖЯ-5
а - четырехместная жилая комната; б -
шестиместная жилая комната; в - зона размещения кровати для
лиц, способных к частичному самообслуживанию и передвигающихся по дому и
прилегающему участку;
г - зона размещения кровати для немощных лиц, передвигающихся в пределах
жилой комнаты
1 - кровать; 2 - тумбочка; 3 - стол; 4 - стул; 5 - комбинированный шкаф
Рисунок Б.7 - Планировочная схема жилых комнат на 4
и 6 человек в жилых
ячейках ЖЯ-6 для психоневрологических больных
Рисунок Б.8 - Схемы типов жилых ячеек в домах-интернатах
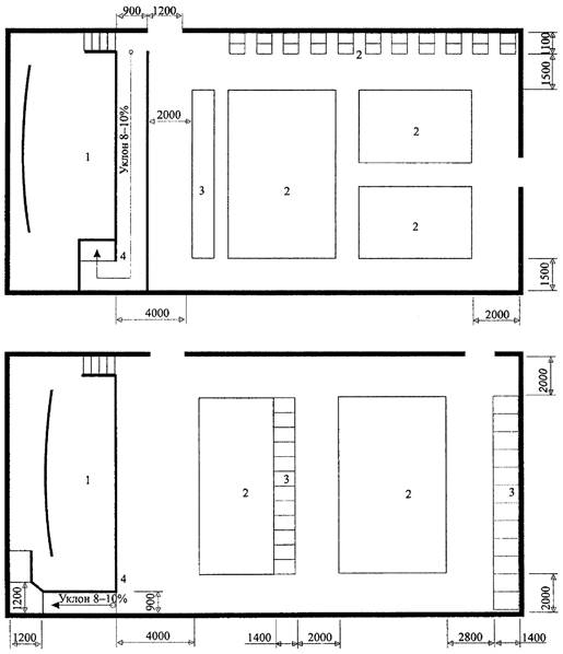
1 - шкаф для открытого хранения книг; 2 - стол
для занятий; 2а - стол для занятий инвалида-
колясочника; 3 - стул; 4 - стол для абонементного обслуживания; 5
- табурет; 6 - полки подвесные;
7 - инвалидная коляска
Рисунок Б.9 - Пример планировки библиотеки с
открытым доступом к книгам и
читальным залом
1 - сцена; 2 - места для ходячих зрителей; 3
- места размещения инвалидов на кресле-коляске;
4 - пандус
Рисунок Б.10 - Варианты размещения мест в зрительном зале
1 - стол обеденный; 1а - стол резервный; 2
- стул; 3 - кресло-коляска; 4 - комбинированная стенка;
5 - холодильник; 6 - мойка; 7 - плита; 8 - буфет
кухонный; 9 - сервировочная стойка; 10 - разделочный
стол; 11 - табурет
Рисунок Б.11 - Помещение для приема гостей на 11 и 21 посадочных мест
1 - стул; 2 - пюпитр; 2а - специальный
пюпитр для инвалида на кресле-коляске; 3 - подиум для
руководителя; 4 - пианино; 5 - табурет винтовой; 6 - шкаф
для музыкальных инструментов и нот;
7 - инвалидное кресло-коляска; 8 - запасной эвакуационный выход
Рисунок Б.12 - Помещения для музыкальных занятий
1 - помещение для религиозных обрядов; 2 - зона
священнослужителя; 3 - служебная ниша; 4 - сейф;
5 - комната (келья для священнослужителя); 6 - санузел
(рукомойник, унитаз, душевой поддон);
7 - кладовая; 8 - прихожая с вешалкой
Рисунок Б.13 - Пример планировки зала для
молитвенных собраний с подсобными
помещениями
Примечание - Рабочие помещения оборудуются в зависимости от вида производства; кладовые оборудуются стеллажами; комната мастера оборудуется столом, стульями, стеллажами.
А - мастерская; Б - комната
мастера; В - уборная для инвалида; Г - кладовая материалов; Д - кладовая
готовой продукции; Е - общая уборная; Ж - коридор
1 - стол рабочий; 2 - табурет с регулируемым
сиденьем; 3 - проволочно-швейный аппарат;
4 - клееварка; 5 - стол мастера; 6 - стул; 7 -
мойка; 8 - инвалидная коляска; 9 - второй эвакуационный
выход
Рисунок Б.14 - Планировочная схема картонажной мастерской
1 - стол монтажный; 2 - стенд испытательный; 3
- стол с вытяжкой; 4 - стол приемщика; 5 - мойка;
6 - стеллаж для материалов; 7 - табурет с регулируемым сиденьем; 8
- стеллаж приемщика; 9 - стол
медсестры; 10 - шкаф медицинский
Рисунок Б.15 - Мастерская по ремонту аппаратуры и бытовой техники
А - комната для раздевания; Б -
санузел; В - санузел для инвалидов на кресле-коляске; Г - душевая для
инвалидов на кресле-коляске; Д - спортивный зал; Е - комната тренера; Ж -
комната для хранения
спортинвентаря
1 - гимнастическая стенка; 2 - гимнастический
станок-поручень; 3 - место для тренера; 4 - пианино;
5 - скамья; 6 - вешалка
Рисунок Б.16 - Помещения для занятий гимнастикой и физкультурой
1 - стол обеденный 160×90; 2 - стул; 4 - инвалидное кресло-коляска
Рисунок Б.17 - Варианты планировки мест питания
[1] Федеральный закон от 30 марта 1999 г. № 52-ФЗ «О санитарно-эпидемиологическом благополучии населения»
[2] Федеральный закон от 29 декабря 2004 г. № 190-ФЗ «Градостроительный кодекс Российской Федерации»
[3] Федеральный закон от 24 ноября 2005 г. № 181-ФЗ «О социальной защите инвалидов в Российской Федерации»
[4] Федеральный закон от 22 июля 2008 г. № 123-ФЗ «Технический регламент о требованиях пожарной безопасности»
[5] Федеральный закон от 30 декабря 2009 г. № 384-ФЗ «Технический регламент о безопасности зданий и сооружений»
[6] ТР ТС 011/2011 Технический регламент Таможенного союза. Безопасность лифтов. Утвержден Решением Комиссии Таможенного союза от 18 октября 2011 г. № 824
[7] Федеральный закон от 23 ноября 2009 г. № 261-ФЗ «Об энергосбережении и о повышении энергетической эффективности и о внесении изменений в отдельные законодательные акты Российской Федерации»
[8] СП 31-108-2002 Мусоропроводы жилых и общественных зданий и сооружений
[9] СП 31-110-2003 Проектирование и монтаж электроустановок жилых и общественных зданий
[10] НПБ 110-03 Перечень зданий, сооружений, помещений и оборудования, подлежащих защите автоматическими установками пожаротушения и автоматической пожарной сигнализацией
[11] Правила устройства электроустановок (ПУЭ)
[12] СО 153-34.21.122-2003 Инструкция по устройству молниезащиты зданий, сооружений и промышленных коммуникаций
[13] РД 78.36.003-2002 Инженерно-техническая укрепленность. Технические средства охраны. Требования и нормы проектирования по защите объектов от преступных посягательств
[14] РД 78.36.001-99 Рекомендации по оборудованию церквей современными техническими средствами охранной сигнализации
[15] ТР 205-09 Технические требования по проектированию систем антитеррористической защищенности и комплексной безопасности высотных и уникальных зданий
Ключевые слова: дома-интернаты общего типа, жилая среда, инвалиды, маломобильные группы населения, жилая ячейка, жилое отделение. |