Информационная система
«Ёшкин Кот»

Скачать базу одним архивом
Скачать обновления
История создания базы
Карта сайта

Скачать СП 142.13330.2012 Здания центров ресоциализации. Правила проектирования

Дата актуализации: 10.08.2017

СП 142.13330.2012

Здания центров ресоциализации. Правила проектирования

Обозначение: СП 142.13330.2012
Обозначение англ: SP 142.13330.2012
Статус:действует
Название рус.:Здания центров ресоциализации. Правила проектирования
Название англ.:The buildings of social service centers. Rules of architectural design
Дата добавления в базу:01.10.2014
Дата актуализации:05.05.2017
Дата введения:01.07.2013
Область применения:Свод правил устанавливает правила проектирования зданий центров ресоциализации в системе органов социальной защиты. Требования распространяются только на здания центра ресоциализации, проектирование новых объектов, реконструкции и модернизации существующего фонда, а также при обустройстве помещений действующих Центров ресоциализации. Требования свода правил не распространяются на учреждения для лиц, вышедших из мест лишения свободы, за которыми установлен административный надзор.
Оглавление:1 Область применения
2 Нормативные ссылки
3 Термины и определения
4 Основные положения
5 Земельный участок
6 Архитектурно-планировочные решения
   6.1 Общие положения
   6.2 Входная группа помещений
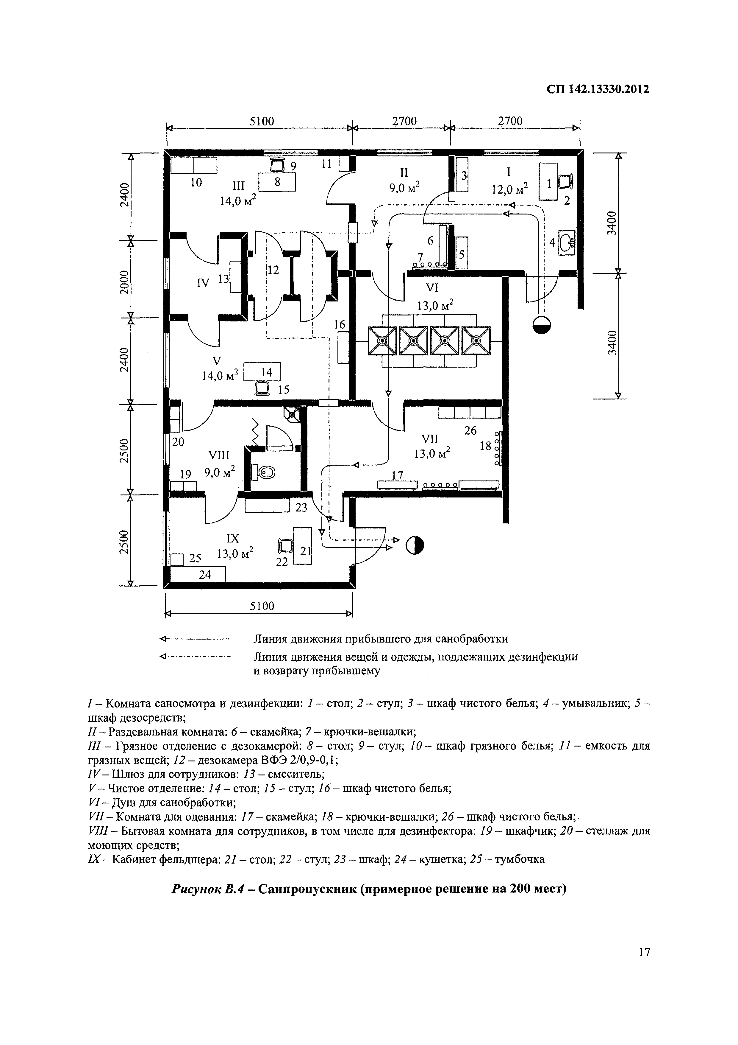
   6.3 Санпропускник
   6.4 Жилые помещения и ячейки
   6.5 Санитарно-гигиенические помещения
   6.6 Помещения общественного питания
   6.7 Административно-хозяйственные и бытовые помещения
   6.8 Медицинские помещения
   6.9 Помещения отдыха и психологической реабилитации
7. Инженерное оборудование
Приложение А (рекомендуемое). Минимальный состав помещений, площадей и оборудования центров ресоциализации с дневным и ночным отделениями
Приложение Б (справочное). Назначение и примерный штатный состав учреждений центра ресоциализации
Приложение В (рекомендуемое). Планировочные схемы
Библиография
Разработан: ОАО ЦНИИЭП жилища
ООО Институт общественных зданий
Утверждён:27.12.2012 Федеральное агентство по строительству и жилищно-коммунальному хозяйству (123/ГС)
Издан: Минстрой России (2016 г. )
Расположен в:Техническая документация Экология СТРОИТЕЛЬНЫЕ МАТЕРИАЛЫ И СТРОИТЕЛЬСТВО Строительство Здания и сооружения прочие Строительство Нормативные документы Документы Системы нормативных документов в строительстве Нормативные документы по градостроительству, зданиям и сооружениям к.35 Обеспечение доступной среды жизнедеятельности для инвалидов и других маломобильных групп населения
Список изменений:
Нормативные ссылки:
СП 142.13330.2012СП 142.13330.2012СП 142.13330.2012СП 142.13330.2012СП 142.13330.2012СП 142.13330.2012СП 142.13330.2012СП 142.13330.2012СП 142.13330.2012СП 142.13330.2012СП 142.13330.2012СП 142.13330.2012СП 142.13330.2012СП 142.13330.2012СП 142.13330.2012СП 142.13330.2012СП 142.13330.2012СП 142.13330.2012СП 142.13330.2012СП 142.13330.2012СП 142.13330.2012СП 142.13330.2012СП 142.13330.2012СП 142.13330.2012СП 142.13330.2012СП 142.13330.2012

Текстовое изменение № 1 от 25.03.2016

№ 1№ 1№ 1№ 1№ 1№ 1

© 2013 Ёшкин Кот :-) Карта сайта