Информационная система
«Ёшкин Кот»

Скачать базу одним архивом
Скачать обновления
История создания базы
Карта сайта

Скачать Серия 1.273.9-4 Выпуск 2. Облицовки на металлическом каркасе. Материалы для проектирования. Рабочие чертежи

Дата актуализации: 10.08.2017

Серия 1.273.9-4

Выпуск 2. Облицовки на металлическом каркасе. Материалы для проектирования. Рабочие чертежи

Обозначение: Серия 1.273.9-4
Обозначение англ: Series 1.273.9-4
Статус:не действует
Название рус.:Выпуск 2. Облицовки на металлическом каркасе. Материалы для проектирования. Рабочие чертежи
Дата добавления в базу:01.09.2013
Дата актуализации:05.05.2017
Дата введения:01.10.1983
Дата окончания срока действия:01.07.1986
Оглавление:1.273.9-4.2-00.00 Содержание
1.273.9-4.2-00.00ПЗ Пояснительная записка
1.273.9-4.2-00.00ВД Ведомость ссылочных документов
1.273.9-4.2-01.00 Фрагмент облицовки поэлементной сборки на металлическом каркасе ОМ-1м (ОМ-1). Узлы I - X, Iа, IIIа, Vа, VIIа
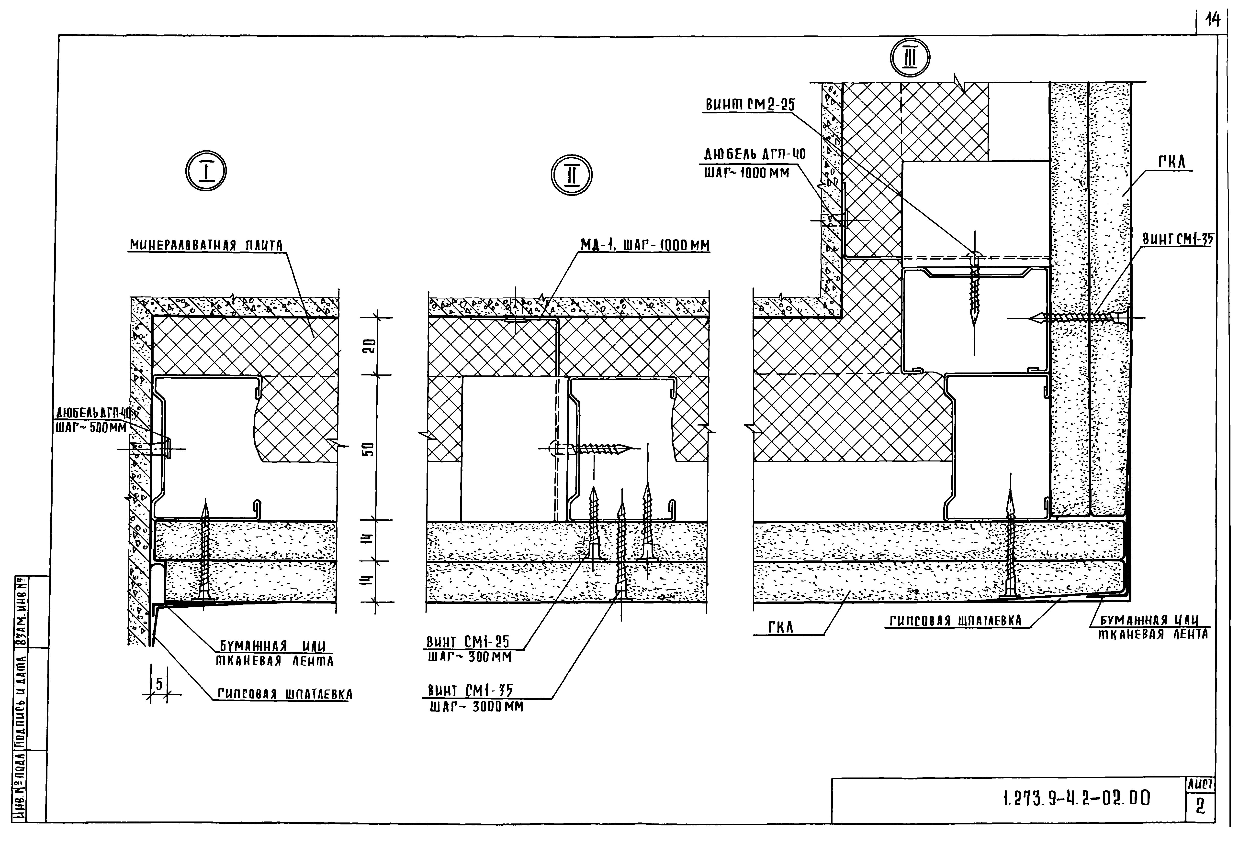
1.273.9-4.2-02.00 Фрагмент облицовки поэлементной сборки на металлическом каркасе ОМ-2м (ОМ-2). Узлы I - X, Iа, IIIа, Vа
1.273.9-4.2-03.00 Примеры установки анкера падающего, крючка, анкера проходного и дюбеля разжимного
1.273.9-4.2-00.01 Профиль стойка ПС-2
1.273.9-4.2-00.02 Профиль направляющий ПН-2
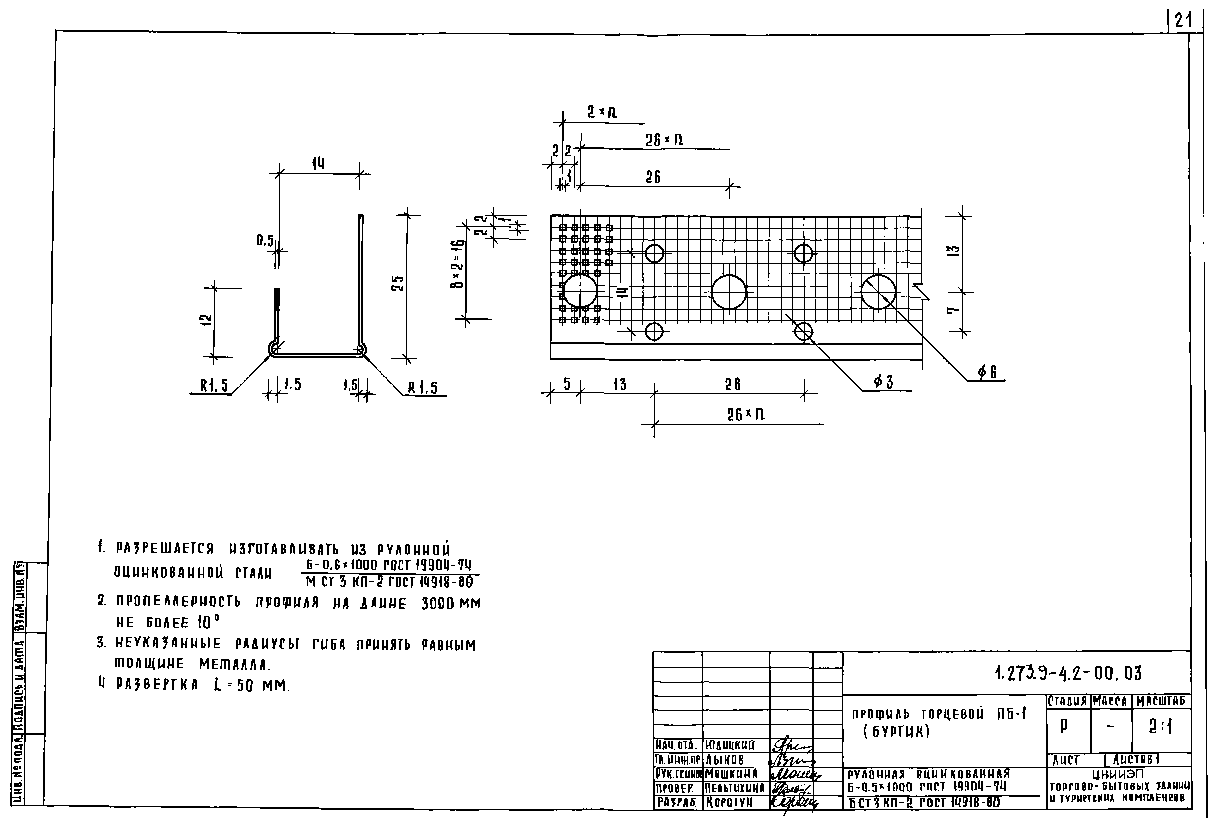
1.273.9-4.2-00.03 Профиль торцевой ПБ-1 (буртик)
1.273.9-4.2-00.04 Профиль угловой ПУ-2
1.273.9-4.2-00.05 Монтажная деталь МД-1 (обрезок ПС-2, L = 100 мм)
1.273.9-4.2-00.06 Винт самосверлящий СМ1
1.273.9-4.2-00.07 Винт самосверлящий СМ2
1.273.9-4.2-00.08 Дюбель-гвоздь пистолетный
1.273.9-4.2-00.09 Анкер падающий, дюбель разжимной
1.273.9-4.2-00.10 Крючок, анкер проходной
Разработан: ЦНИИЭП торгово-бытовых зданий и туристских комплексов
Утверждён:29.08.1983 Государственный комитет по гражданскому строительству и архитектуре при Госстрое СССР (253)
Расположен в:Техническая документация Строительство Справочные документы Типовые строительные конструкции, изделия и узлы Общероссийский строительный каталог Строительные конструкции, изделия и узлы зданий и сооружений для всех видов строительства Конструкции, изделия и узлы зданий Оснащение зданий. Встроенное оборудование
Чем заменён:
Серия 1.273.9-4Серия 1.273.9-4Серия 1.273.9-4Серия 1.273.9-4Серия 1.273.9-4Серия 1.273.9-4Серия 1.273.9-4Серия 1.273.9-4Серия 1.273.9-4Серия 1.273.9-4Серия 1.273.9-4Серия 1.273.9-4Серия 1.273.9-4Серия 1.273.9-4Серия 1.273.9-4Серия 1.273.9-4Серия 1.273.9-4Серия 1.273.9-4Серия 1.273.9-4Серия 1.273.9-4Серия 1.273.9-4Серия 1.273.9-4Серия 1.273.9-4Серия 1.273.9-4Серия 1.273.9-4Серия 1.273.9-4Серия 1.273.9-4Серия 1.273.9-4Серия 1.273.9-4Серия 1.273.9-4

© 2013 Ёшкин Кот :-) Карта сайта