Информационная система
«Ёшкин Кот»

Скачать базу одним архивом
Скачать обновления
История создания базы
Карта сайта

Скачать Серия 1.273.9-5 Выпуск 2. Облицовки из гипсокартонных листов на металлическом каркасе. Рабочие чертежи

Дата актуализации: 10.08.2017

Серия 1.273.9-5

Выпуск 2. Облицовки из гипсокартонных листов на металлическом каркасе. Рабочие чертежи

Обозначение: Серия 1.273.9-5
Обозначение англ: Series 1.273.9-5
Статус:не определен законодательством
Название рус.:Выпуск 2. Облицовки из гипсокартонных листов на металлическом каркасе. Рабочие чертежи
Дата добавления в базу:01.09.2013
Дата актуализации:05.05.2017
Дата введения:01.05.1986
Оглавление:1.273.9-5.2-00.00ПЗ Пояснительная записка
1.273.9-5.2-00.00ВД Ведомость ссылочных документов
1.273.9-5.2-01.00 Облицовка ОГКМ-1м/ОГКМ-1/ (фрагмент). Узлы I - X; Iа, IIIа, Vа. Пример
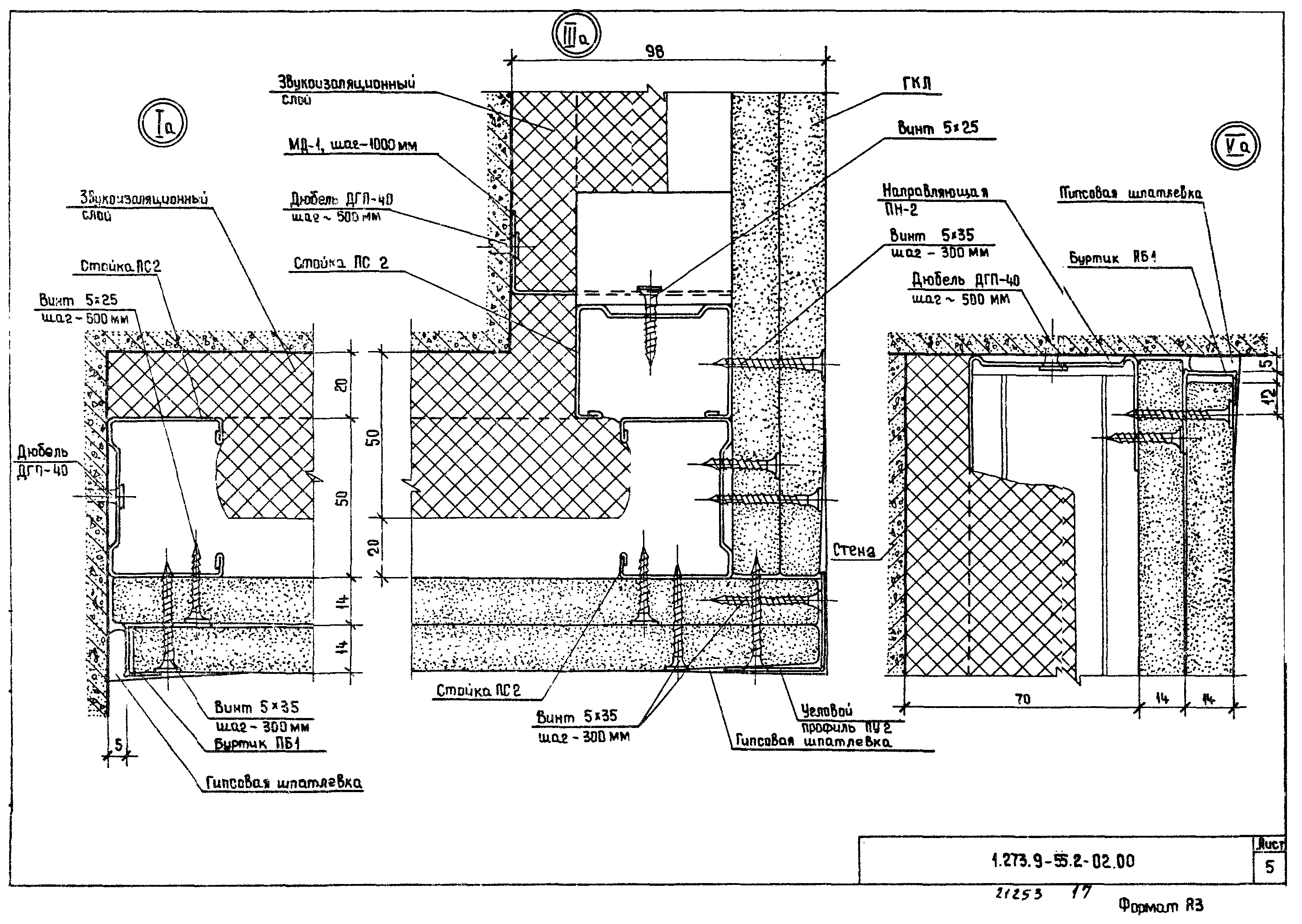
1.273.9-5.2-02.00 Облицовка ОГКМ-2м/ОГКМ-2/ (фрагмент). Узлы I - VII; Iа, IIIа, Vа Пример
1.273.9-5.2-03.00 Примеры установки анкера падающего, крючка, анкера проходного и дюбеля разжимного
1.273.9-5.2-00.01 Профиль стойка ПС2
1.273.9-5.2-00.02 Профиль направляющий ПН2
1.273.9-5.2-00.03 Профиль торцевой ПБ1/буртик/
1.273.9-5.2-00.04 Профиль угловой ПУ2
1.273.9-5.2-00.05 Монтажная деталь МД-1 (обрезок ПС2, L = 100 мм)
1.273.9-5.2-00.06 Крючок
1.273.9-5.2-00.07 Анкер проходной
1.273.9-5.2-00.08 Анкер падающий
1.273.9-5.2-00.09 Дюбель разжимной
1.273.9-5.2-00.10 Винт
1.273.9-5.2-00.11 Дюбель-гвоздь
Разработан: ЦНИИЭП торгово-бытовых зданий и туристских комплексов
Утверждён:28.03.1986 Государственный комитет по гражданскому строительству и архитектуре при Госстрое СССР (114)
Издан: ЦИТП Госстроя СССР (CITP, Gosstroy (USSR) 1988 г. )
Расположен в:Техническая документация Строительство Справочные документы Типовые строительные конструкции, изделия и узлы Общероссийский строительный каталог Строительные конструкции, изделия и узлы зданий и сооружений для всех видов строительства Конструкции, изделия и узлы зданий Оснащение зданий. Встроенное оборудование
Заменяет собой:
Серия 1.273.9-5Серия 1.273.9-5Серия 1.273.9-5Серия 1.273.9-5Серия 1.273.9-5Серия 1.273.9-5Серия 1.273.9-5Серия 1.273.9-5Серия 1.273.9-5Серия 1.273.9-5Серия 1.273.9-5Серия 1.273.9-5Серия 1.273.9-5Серия 1.273.9-5Серия 1.273.9-5Серия 1.273.9-5Серия 1.273.9-5Серия 1.273.9-5Серия 1.273.9-5Серия 1.273.9-5Серия 1.273.9-5Серия 1.273.9-5Серия 1.273.9-5Серия 1.273.9-5Серия 1.273.9-5Серия 1.273.9-5

© 2013 Ёшкин Кот :-) Карта сайта