Информационная система
«Ёшкин Кот»

Скачать базу одним архивом
Скачать обновления
История создания базы
Карта сайта

Скачать Серия 1.232-5 Выпуск 1. Панели толщиной 160 мм на деревянном каркасе с минераловатным утеплителем с обрамлением алюминиевыми профилями со спаренной и раздельной столяркой. Рабочие чертежи

Дата актуализации: 10.08.2017

Серия 1.232-5

Выпуск 1. Панели толщиной 160 мм на деревянном каркасе с минераловатным утеплителем с обрамлением алюминиевыми профилями со спаренной и раздельной столяркой. Рабочие чертежи

Обозначение: Серия 1.232-5
Обозначение англ: Series 1.232-5
Статус:не действует
Название рус.:Выпуск 1. Панели толщиной 160 мм на деревянном каркасе с минераловатным утеплителем с обрамлением алюминиевыми профилями со спаренной и раздельной столяркой. Рабочие чертежи
Дата добавления в базу:01.09.2013
Дата актуализации:05.05.2017
Дата введения:01.06.1987
Область применения:Рабочие чертежи наружных стеновых панелей на деревянном каркасе с обшивкой из асбестоцементных листов и минераловатным утеплителем со спаренной и раздельной столяркой разработаны на основании задания, утвержденного Государственным комитетом по гражданскому строительству и архитектуре при Госстрое СССР 21 марта 1977 года
Оглавление:Содержание
Пояснительная записка
Номенклатура
Панели
Раскладка алюминиевых профилей на панели
Пример расположения отверстий под шурупы в профиле
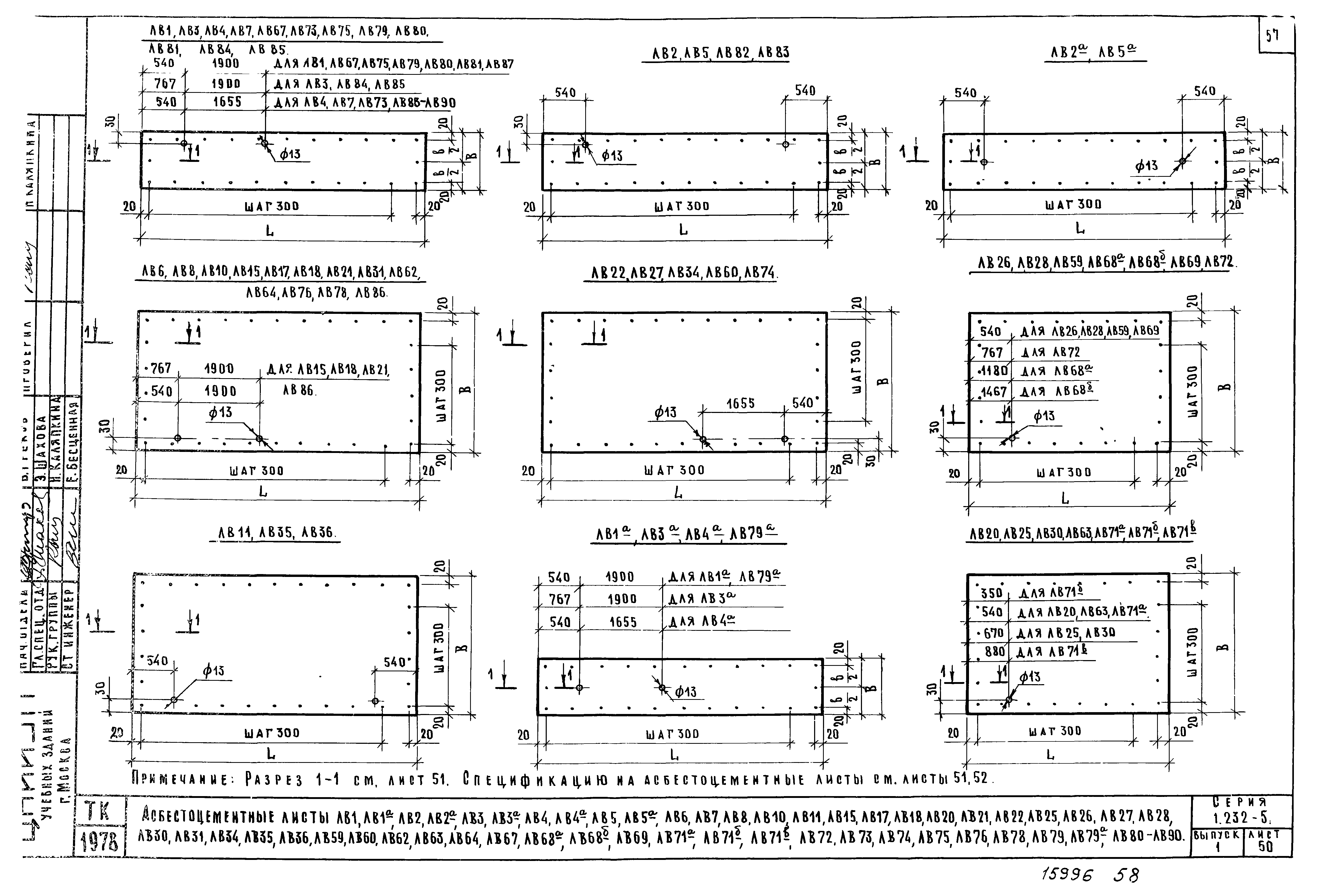
Асбестоцементные листы
Спецификация асбестоцементных листов
Деревянные каркасы КД1 - КД35
Спецификация деревянных элементов каркаса
Балки
Узлы 1 - 16
Петли П1 и П2. Закладная деталь М1
Узлы 17 - 28
Разработан: ЦНИИЭП учебных зданий
Утверждён:12.01.1979 Государственный комитет по гражданскому строительству и архитектуре при Госстрое СССР (5)
Расположен в:Техническая документация Строительство Справочные документы Типовые строительные конструкции, изделия и узлы Общероссийский строительный каталог Строительные конструкции, изделия и узлы зданий и сооружений для всех видов строительства Конструкции, изделия и узлы зданий Ограждающие конструкции Стены наружные Панели (бетонные и железобетонные)
Нормативные ссылки:
Серия 1.232-5Серия 1.232-5Серия 1.232-5Серия 1.232-5Серия 1.232-5Серия 1.232-5Серия 1.232-5Серия 1.232-5Серия 1.232-5Серия 1.232-5Серия 1.232-5Серия 1.232-5Серия 1.232-5Серия 1.232-5Серия 1.232-5Серия 1.232-5Серия 1.232-5Серия 1.232-5Серия 1.232-5Серия 1.232-5Серия 1.232-5Серия 1.232-5Серия 1.232-5Серия 1.232-5Серия 1.232-5Серия 1.232-5Серия 1.232-5Серия 1.232-5Серия 1.232-5Серия 1.232-5Серия 1.232-5Серия 1.232-5Серия 1.232-5Серия 1.232-5Серия 1.232-5Серия 1.232-5Серия 1.232-5Серия 1.232-5Серия 1.232-5Серия 1.232-5Серия 1.232-5Серия 1.232-5Серия 1.232-5Серия 1.232-5Серия 1.232-5Серия 1.232-5Серия 1.232-5Серия 1.232-5Серия 1.232-5Серия 1.232-5Серия 1.232-5Серия 1.232-5Серия 1.232-5Серия 1.232-5Серия 1.232-5Серия 1.232-5Серия 1.232-5Серия 1.232-5Серия 1.232-5Серия 1.232-5Серия 1.232-5Серия 1.232-5Серия 1.232-5Серия 1.232-5Серия 1.232-5Серия 1.232-5Серия 1.232-5Серия 1.232-5Серия 1.232-5Серия 1.232-5Серия 1.232-5Серия 1.232-5Серия 1.232-5Серия 1.232-5Серия 1.232-5Серия 1.232-5Серия 1.232-5Серия 1.232-5Серия 1.232-5Серия 1.232-5Серия 1.232-5Серия 1.232-5Серия 1.232-5Серия 1.232-5Серия 1.232-5Серия 1.232-5Серия 1.232-5Серия 1.232-5Серия 1.232-5Серия 1.232-5Серия 1.232-5Серия 1.232-5Серия 1.232-5Серия 1.232-5Серия 1.232-5Серия 1.232-5Серия 1.232-5Серия 1.232-5Серия 1.232-5Серия 1.232-5Серия 1.232-5Серия 1.232-5Серия 1.232-5Серия 1.232-5Серия 1.232-5Серия 1.232-5Серия 1.232-5Серия 1.232-5Серия 1.232-5Серия 1.232-5Серия 1.232-5Серия 1.232-5Серия 1.232-5Серия 1.232-5Серия 1.232-5

© 2013 Ёшкин Кот :-) Карта сайта