Скачать Серия 1.133.1-5 Выпуск 5. Стеновые легкобетонные блоки толщиной 40, 50 и 60 см для жилых зданий высотой 5 - 9 этажей (доборные: поясные, подоконные, перемычечные)Дата актуализации: 10.08.2017 Серия 1.133.1-5
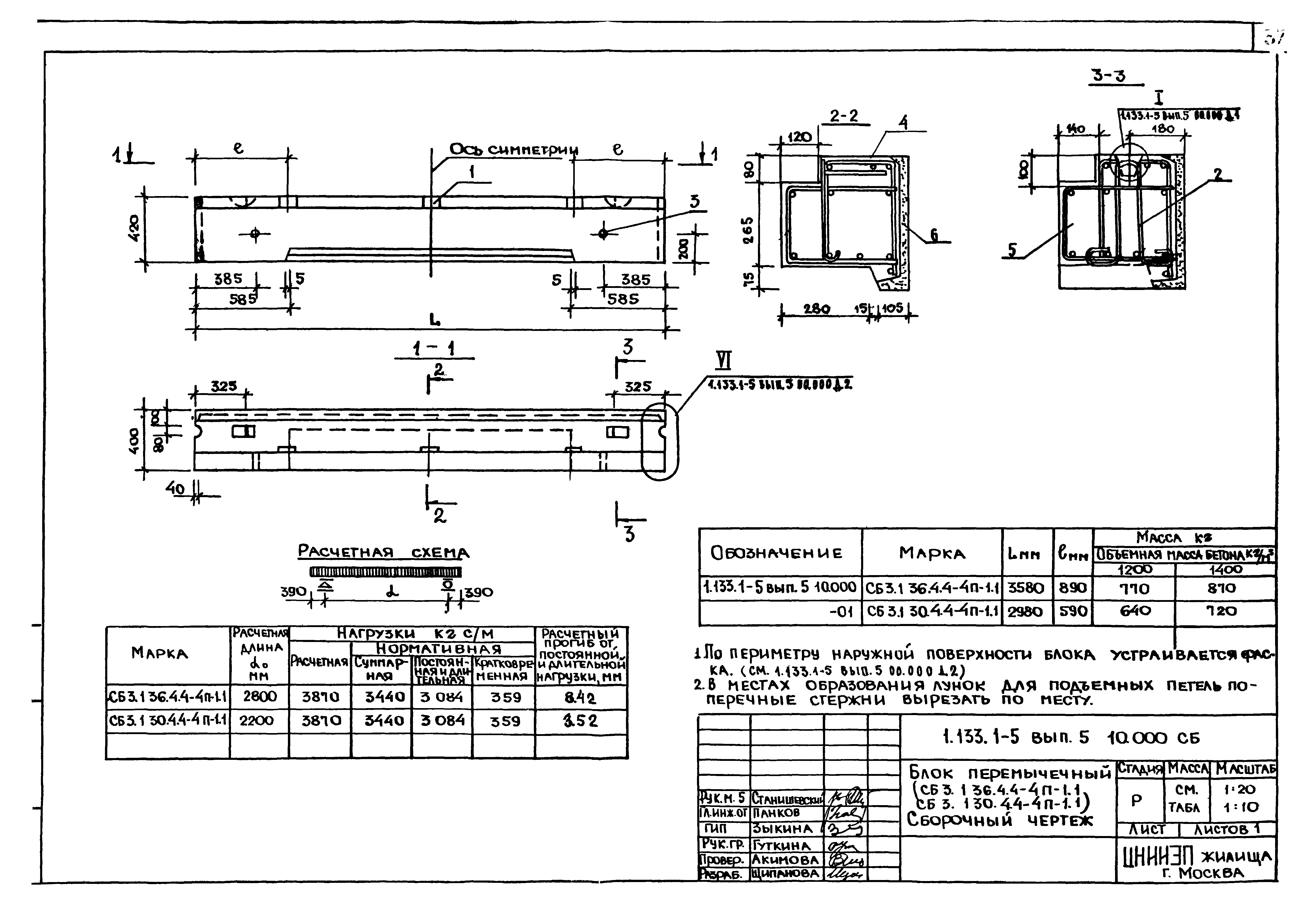
Выпуск 5. Стеновые легкобетонные блоки толщиной 40, 50 и 60 см для жилых зданий высотой 5 - 9 этажей (доборные: поясные, подоконные, перемычечные)Обозначение: | Серия 1.133.1-5 | Обозначение англ: | Series 1.133.1-5 | Статус: | заменен | Название рус.: | Выпуск 5. Стеновые легкобетонные блоки толщиной 40, 50 и 60 см для жилых зданий высотой 5 - 9 этажей (доборные: поясные, подоконные, перемычечные) | Дата добавления в базу: | 01.09.2013 | Дата актуализации: | 05.05.2017 | Дата введения: | 01.10.1989 | Область применения: | Настоящий выпуск содержит техническое описание, сборочные чертежи блоков наружных стен, арматурные изделия, узлы, детали и закладные изделия | Оглавление: | Содержание Техническое описание Номенклатура Выборка стали Блок подоконный Блок перемычечный Блок поясной угловой Узлы I - IV Узлы V - VIII Блок арматурный Сетка Изделие закладное Петля строповочная | Разработан: | ЦНИИЭП жилища
| Утверждён: | 04.06.1981 Государственный комитет по гражданскому строительству и архитектуре при Госстрое СССР (177)
| Расположен в: |
| Чем заменён: | | Нормативные ссылки: | |
                                                                                      
|