Скачать Серия 1.131-10 Выпуск 1. Панели групп ВЭ1; ВЭ2; ВЭ4 длиной 2,4 м до 6 м, толщиной 200 ммДата актуализации: 10.08.2017 Серия 1.131-10
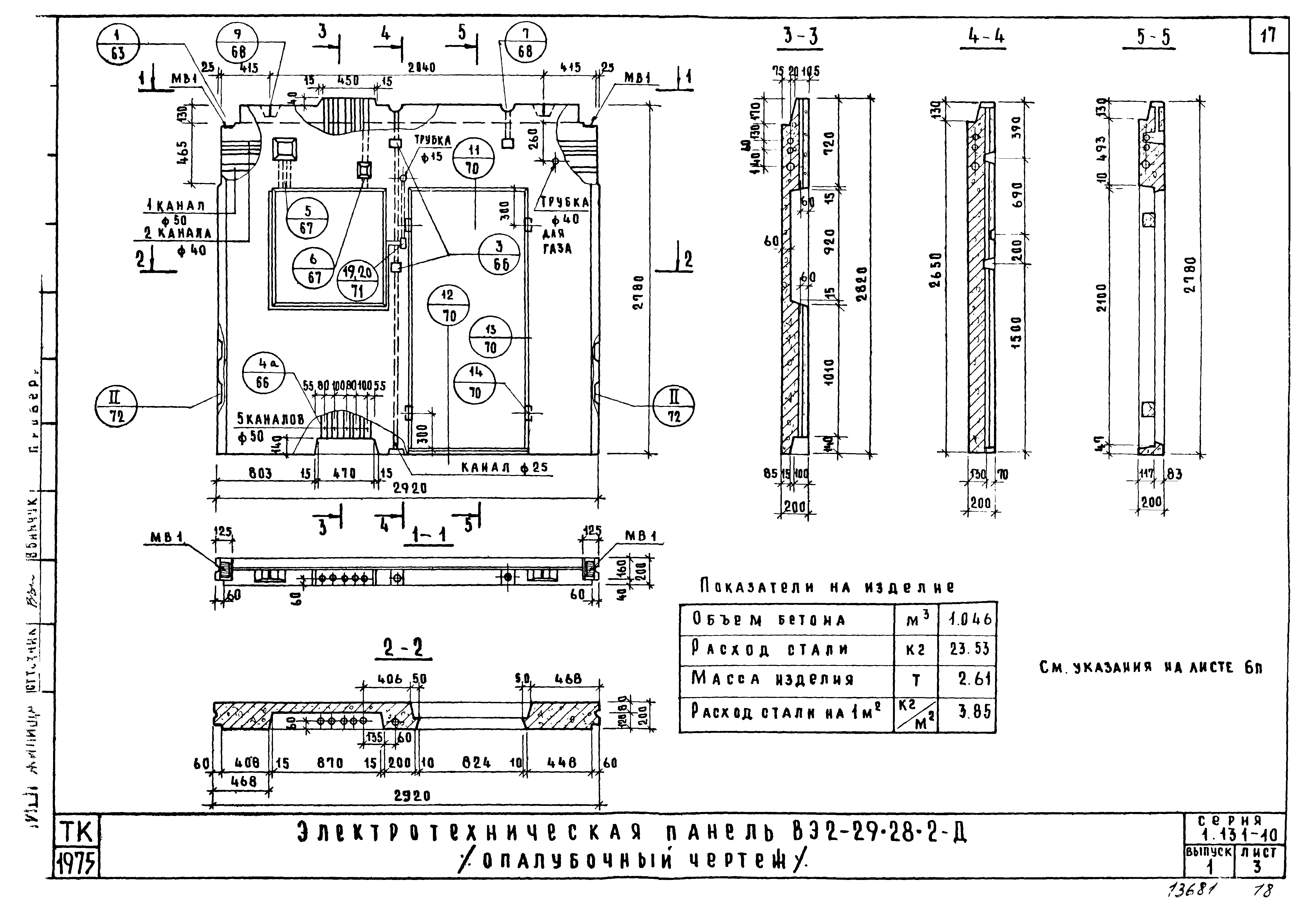
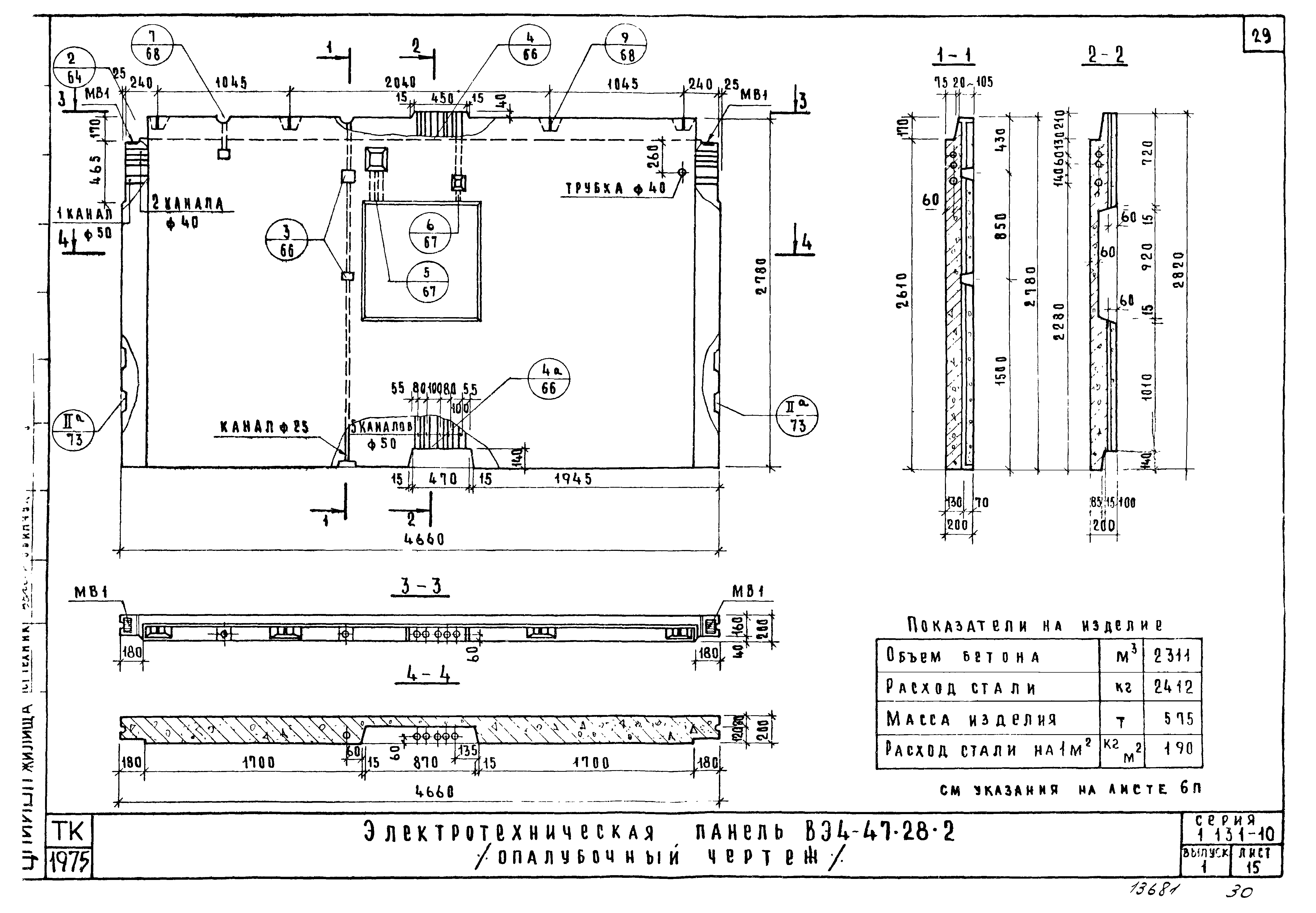
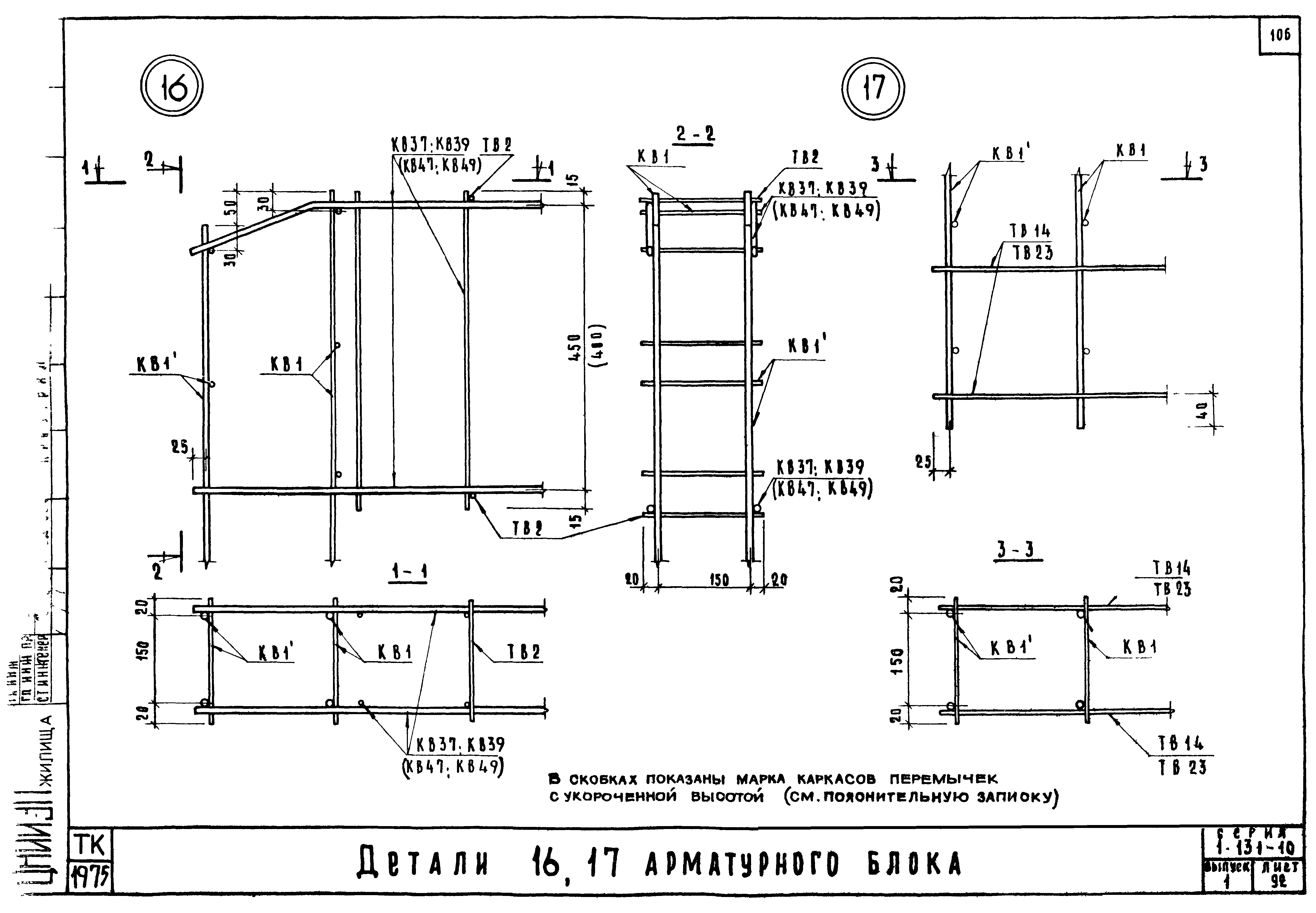
Выпуск 1. Панели групп ВЭ1; ВЭ2; ВЭ4 длиной 2,4 м до 6 м, толщиной 200 ммОбозначение: | Серия 1.131-10 | Обозначение англ: | Series 1.131-10 | Статус: | не действует | Название рус.: | Выпуск 1. Панели групп ВЭ1; ВЭ2; ВЭ4 длиной 2,4 м до 6 м, толщиной 200 мм | Дата добавления в базу: | 01.09.2013 | Дата актуализации: | 05.05.2017 | Дата введения: | 01.06.1987 | Область применения: | Рабочие чертежи электротехнических панелей из тяжелого бетона разработаны для внутренних стен лестничных клеток крупнопанельных 5 и 9 - этажных жилых домов с шагом поперечных стен 2,4 - 6,6 м (смешанный и большой шаг), предназначенных для строительства во II и III климатических зонах с обычными геологическими условиями | Оглавление: | Содержание Пояснительная записка Номенклатура Электротехническая панель с указанием размещения оборудования Электротехнические панели ВЭ2-26.28.2, ВЭ2-29.28.2 (опалубочные чертежи) Электротехнические панели ВЭ2-26.28.2-Д, ВЭ2-26.28.2-Дл (опалубочные чертежи) Электротехническая панель ВЭ2-29.28.2-Д (опалубочный чертеж) Электротехническая панель ВЭ2-29.28.2-Дл (опалубочный чертеж) Электротехническая панель ВЭ2-32.28.2 (опалубочный чертеж) Электротехническая панель ВЭ2-32.28.2-Д (опалубочный чертеж) Электротехническая панель ВЭ2-32.28.2-Дл (опалубочный чертеж) Электротехнические панели ВЭ4-26.28.2, ВЭ4-32.28.2-ш (опалубочные чертежи) Электротехнические панели ВЭ4-26.28.2-Д, ВЭ4-26.28.2-Дл (опалубочные чертежи) Электротехническая панель ВЭ4-32.28.2-Дш (опалубочный чертеж) Электротехническая панель ВЭ4-32.28.2-Длш (опалубочный чертеж) Электротехническая панель ВЭ4-32.28.2 (опалубочный чертеж) Электротехническая панель ВЭ4-32.28.2-Д (опалубочный чертеж) Электротехническая панель ВЭ4-32.28.2-Дл (опалубочный чертеж) Электротехническая панель ВЭ4-47.28.2 (опалубочный чертеж) Электротехническая панель ВЭ4-47.28.2-Д (опалубочный чертеж) Электротехническая панель ВЭ4-47.28.2-Дл (опалубочный чертеж) Электротехническая панель ВЭ4-47.28.2-2Д (опалубочный чертеж) Электротехническая панель ВЭ4-58.26.2 (опалубочный чертеж) Электротехническая панель ВЭ4-58.26.2-Д (опалубочный чертеж) Электротехническая панель ВЭ4-58.26.2-Дл (опалубочный чертеж) Электротехническая панель ВЭ4-58.26.2-2Д (опалубочный чертеж) Армирование электротехнических панелей ВЭ2-26.28.2, ВЭ2-29.28.2 (сборочный чертеж) Армирование электротехнических панелей ВЭ2-26.28.2-Д, ВЭ2-26.28.2-Дл (сборочный чертеж) Армирование электротехнических панелей ВЭ2-29.28.2-Д (сборочный чертеж) Армирование электротехнической панели ВЭ2-29.28.2-Дл (сборочный чертеж) Армирование электротехнической панели ВЭ2-32.28.2 (сборочный чертеж) Армирование электротехнических панелей ВЭ2-32.28.2-Д; ВЭ2-32.28.2-Дл (сборочный чертеж) Армирование электротехнических панелей ВЭ4-26.28.2; ВЭ4-32.28.2-ш (сборочный чертеж) Армирование электротехнических панелей ВЭ4-26.28.2-Д; ВЭ4-26.28.2-Дл (сборочный чертеж) Армирование электротехнических панелей ВЭ4-32.28.2-Дш; ВЭ4-32.28.2-Длш (сборочный чертеж) Армирование электротехнической панели ВЭ4-32.28.2 (сборочный чертеж) Армирование электротехнических панелей ВЭ4-32.28.2-Д; ВЭ4-32.28.2-Дл (сборочный чертеж) Армирование электротехнической панели ВЭ4-47.28.2 (сборочный чертеж) Армирование электротехнической панели ВЭ4-47.28.2-Д (сборочный чертеж) Армирование электротехнической панели ВЭ4-47.28.2-Дл (сборочный чертеж) Армирование электротехнической панели ВЭ4-47.28.2-2Д (сборочный чертеж) Армирование электротехнической панели ВЭ4-58.26.2 (сборочный чертеж) Армирование электротехнической панели ВЭ4-58.26.2-Д (сборочный чертеж) Армирование электротехнической панели ВЭ4-58.26.2-Дл (сборочный чертеж) Армирование электротехнической панели ВЭ4-58.26.2-2Д (сборочный чертеж) Арматурные блоки АБЭ2-26; АБЭ2-29 Арматурные блоки АБЭ2-26-Д; АБЭ2-26-Дл Арматурные блоки АБЭ2-29-Д; АБЭ2-29-Дл Арматурный блок АБЭ2-32 Арматурные блоки АБЭ2-32-Д; АБЭ2-32-Дл Арматурные блоки АБЭ4-26; АБЭ4-32-III Арматурные блоки АБЭ4-26-Д; АБЭ4-26-Дл Арматурные блоки АБЭ4-32-Дш; АБЭ4-32-Длш Арматурный блок АБЭ4-32 Арматурные блоки АБЭ4-32-Д, АБЭ4-32-Дл Арматурный блок АБЭ4-47 Арматурный блок АБЭ4-47-Д Арматурный блок АБЭ4-47-Дл Арматурный блок АБЭ4-47-2Д Арматурный блок АБЭ1-58 Арматурный блок АБЭ1-58-Д Арматурный блок АБЭ1-58-Дл Арматурный блок АБЭ1-58-2Д Ведомость расхода стали на электротехнические панели Ведомость расхода на 1 марку изделия электропанели трубок из полиэтилена Деталь 1 (опалубочная) Деталь 2 (опалубочная) Деталь 2а (опалубочная) Детали 3; 4 (опалубочные) Детали 5; 6 (опалубочные) Детали 7; 7а; 9 (опалубочные) Детали 8; 9а; 10 (опалубочные) Детали 11 - 16 (опалубочные) Детали 18 - 16 (опалубочные) Разбивка и детали шпонок в электротехнических панелях тип II Разбивка и детали шпонок в электротехнических панелях тип IIа Разбивка и детали шпонок в электротехнических панелях тип IIб Деталь 1 (армирование) Деталь 2 (армирование) Деталь 3 (армирование) Детали 4, 4а, 4б (армирования) Детали 5, 6, 7 (армирования) Деталь 8 (армирование) Детали 9, 10 (армирования) Детали 11, 12 (армирования) Деталь 1 арматурного блока Детали 2, 3 арматурного блока Детали 4, 5 арматурного блока Детали 6, 7 арматурного блока Детали 8, 9 арматурного блока Детали 10, 11 арматурного блока Детали 12, 13 арматурного блока Деталь 14 арматурного блока Деталь 15 арматурного блока Детали 16, 17 арматурного блока Деталь 18 арматурного блока Детали 19, 20, 21 арматурного блока Каркасы КВ1 - КВ7 Каркасы КВ8 - КВ10. Каркасы ПКВ1 - ПКВ7 Каркасы КВ11 - КВ18 Каркасы КВ21 - КВ29 Каркасы КВ31 - КВ39 Каркасы КВ41 - КВ49 Сетки СВ1 - СВ6 Сетки СВ7 - СВ12, сетка СВ21 Сетки СВ22 - СВ30 Отдельные стержни ТВ1 - ТВ27 Закладная деталь МВ1. Панели строповочные ПВ1 - ПВ4 Соединение электротехнических панелей с примыкающими стенами. Детали 1, 2, 3 Сопряжение электротехнической панели группы ЭВ1 с примыкающими панелями внутренних стен Сопряжение электротехнической панели группы ЭВ2 с примыкающими панелями внутренних стен Сопряжение электротехнической панели группы ЭВ4 с примыкающими панелями внутренних стен | Разработан: | ЦНИИЭП жилища
| Утверждён: | 05.11.1975 Государственный комитет по гражданскому строительству и архитектуре при Госстрое СССР (250)
| Расположен в: |
| Нормативные ссылки: | |
                                                                                                                           
|