Скачать Серия ИИ29-4/70 Разные стальные конструктивные элементы для зданий с перекрытиями типа 2 из плит, опирающихся на ригели прямоугольного сеченияДата актуализации: 10.08.2017 Серия ИИ29-4/70
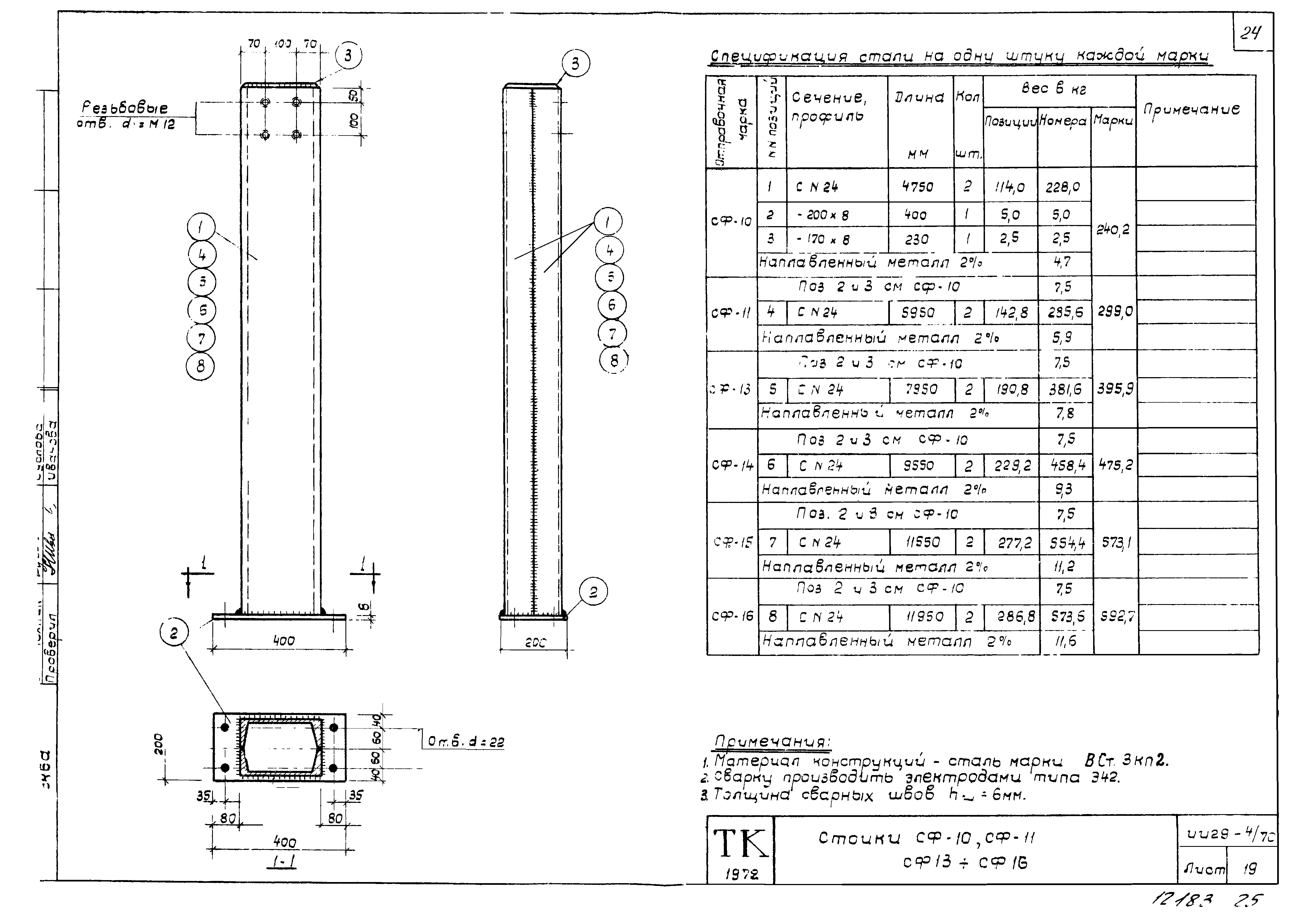
Разные стальные конструктивные элементы для зданий с перекрытиями типа 2 из плит, опирающихся на ригели прямоугольного сеченияОбозначение: | Серия ИИ29-4/70 | Обозначение англ: | Series ИИ29-4/70 | Статус: | не действует | Название рус.: | Разные стальные конструктивные элементы для зданий с перекрытиями типа 2 из плит, опирающихся на ригели прямоугольного сечения | Дата добавления в базу: | 01.09.2013 | Дата актуализации: | 05.05.2017 | Дата введения: | 01.07.1973 | Дата окончания срока действия: | 01.06.1990 | Оглавление: | I. Введение. II. Пояснительная записка III. Рабочие чертежи. 1. Вертикальные связи СП2-СП6, СП10-18, CК-1 2. Стойки фахверка СФ-1 - СФ-19. 3. Элементы крепления Т1-Т9, ТП-Т20. 4. Насадки фахверка НУ-1, НУ-2 НФ-1, НФ-2 . 5. Опорные консоли ТК-1-ТК-3, ТК-1с-ТК-3с, PК-1-PК-3, ФК-1-ФК-3, РК-1-РК-3с, ФК-1с-ФК-3с 6. Стальные соединительные элементы ММ1-ММ58 7. Закладные детали M1-M3, M1*-М3*. Соединительные элементы ММ59-ММ62 | Разработан: | ЦНИИпромзданий НИИЖБ ГСПИ-10
| Утверждён: | 28.11.1972 Госстрой СССР (Государственный комитет Совета Министров СССР по делам строительства) (USSR Gosstroy 203)
| Расположен в: |
|
                                        
|