Скачать Типовой проект 902-2-154 Альбом I. Общая пояснительная записка. Генплан, коммуникации, здания и вспомогательные сооруженияДата актуализации: 10.08.2017 Типовой проект 902-2-154
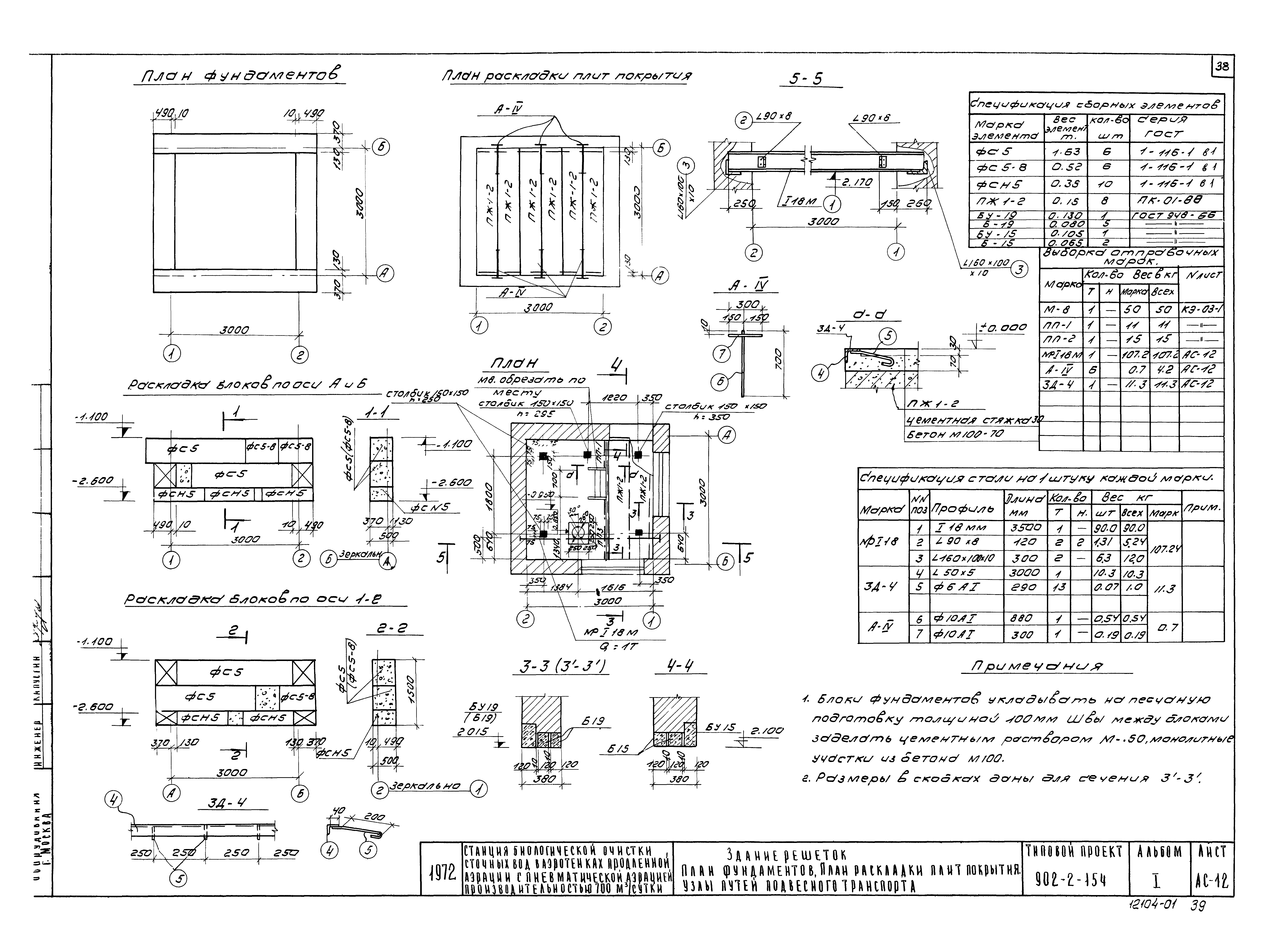
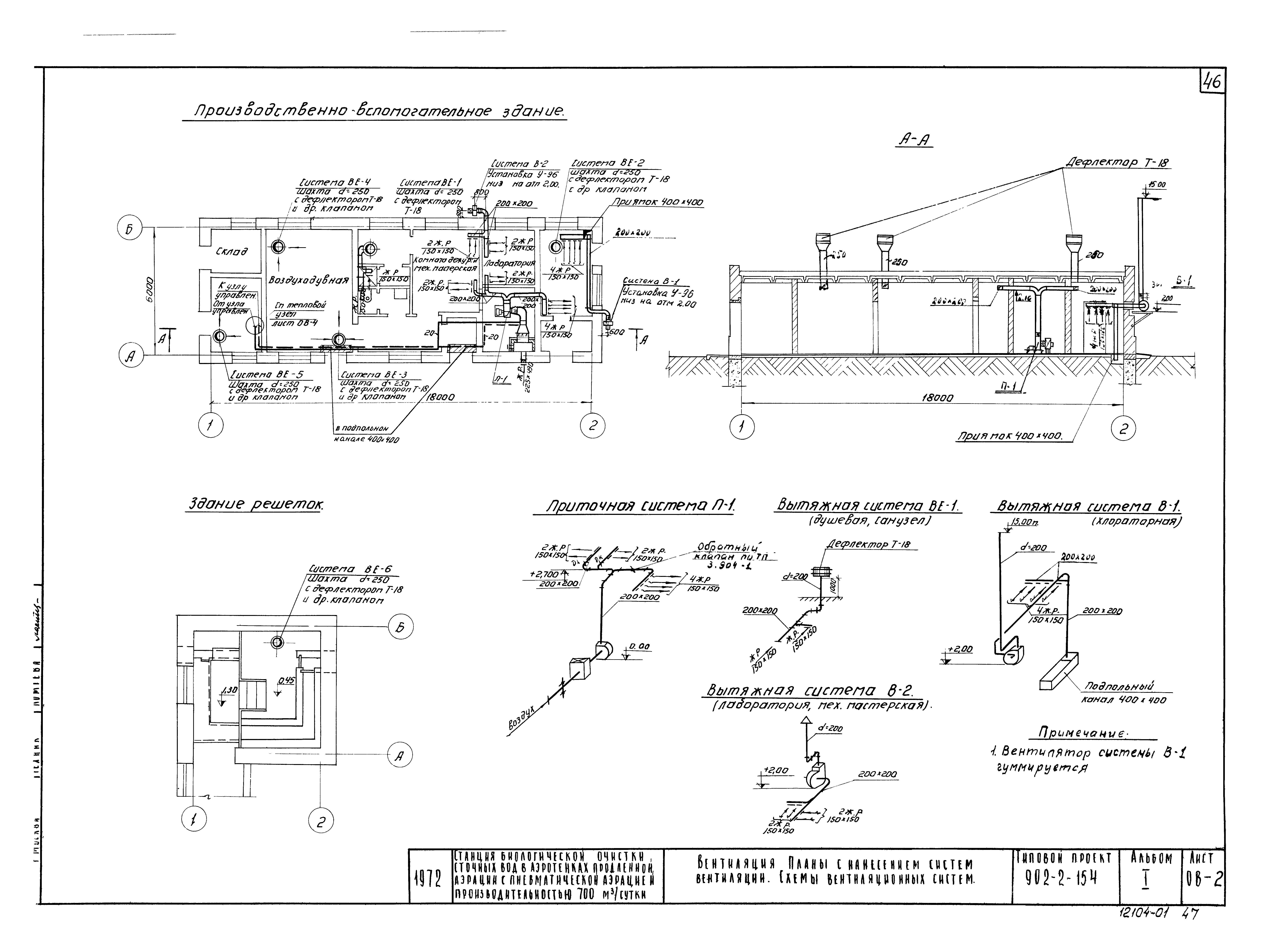
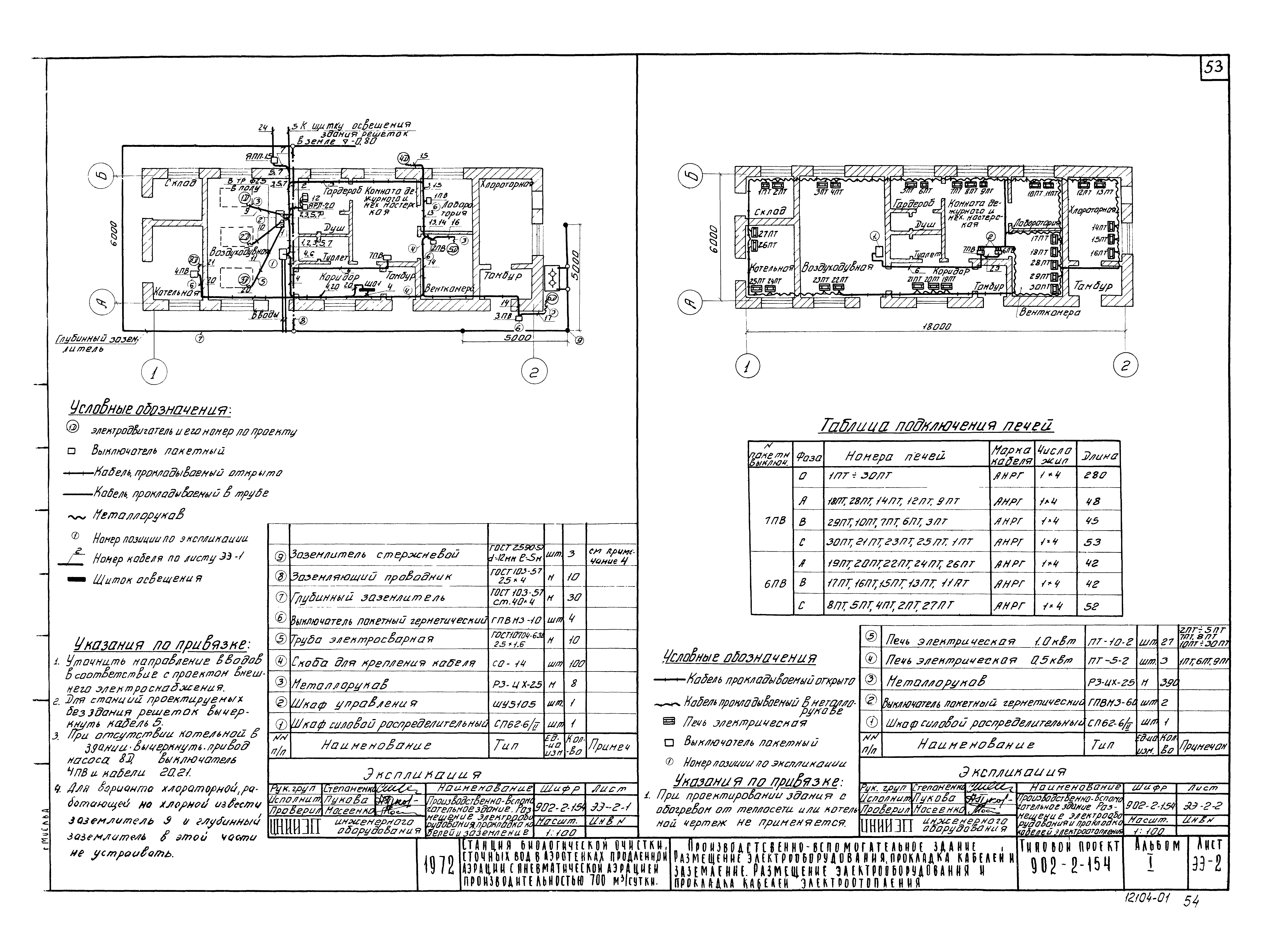
Альбом I. Общая пояснительная записка. Генплан, коммуникации, здания и вспомогательные сооруженияОбозначение: | Типовой проект 902-2-154 | Обозначение англ: | 902-2-154 | Статус: | заменен | Название рус.: | Альбом I. Общая пояснительная записка. Генплан, коммуникации, здания и вспомогательные сооружения | Дата добавления в базу: | 01.09.2013 | Дата актуализации: | 05.05.2017 | Дата введения: | 01.08.1982 | Оглавление: | ТП 902-2-154 Содержание альбома ТП 902-2-154 Общая пояснительная записка ТП 902-2-154 Технологические чертежи ТП 902-2-154 Перечень чертежей. Пояснительная записка ТП 902-2-154 Пояснительная записка ТП 902-2-154-КГ-1 Примерный генплан с коммуникациями при компоновке с блоком аэротенков и отстойников типа А6-560,А6-400 и А6-280 ТП 902-2-154-КГ-2 Примерный генплан с коммуникациями при компоновке с блоком аэротенков и отстойников типа А6-800 и А6-1100 ТП 902-2-154-КГ-3 Профиль движения воды. Профили трубопровода активного ила и хлоропровода ТП 902-2-154-КГ-4 Производственно-вспомогательное здание. План. Хлораторная на хлорной извести. Мастерская, лабораторная ТП 902-2-154-КГ-5 Производственно-вспомогательное здание. Хлораторная на жидком хлоре. Технологическая схема ТП 902-2-154-КГ-6 Производственно-вспомогательное здание. Хлораторная на жидком хлоре. План. Разрез 1-1 ТП 902-2-154-КГ-7 Производственно-вспомогательное здание. Хлораторная на жидком хлоре. Разрезы 2-2 и 3-3 ТП 902-2-154-КГ-8 Производственно-вспомогательное здание. Воздуходувная. Вариант компоновки с газодувками 1А (2ой габарит) ТП 902-2-154-КГ-9 Производственно-вспомогательное здание. Воздуходувная. Вариант компоновки с газодувками 1А (3ий габарит) ТП 902-2-154-КГ-10 Здание решеток. Водослив для измерения расхода воды ТП 902-2-154-КГ-11 Контактные резервуары. Иловый колодец ТП 902-2-154-КГ-12 Пример решения конструкции сборного колодца биологических прудов ТП 902-2-154-КГ-13 Узлы и детали иловых площадок ТП 902-2-154 Строительные чертежи ТП 902-2-154 Перечень чертежей. Пояснительная записка ТП 902-2-154 Пояснительная записка ТП 902-2-154 Заглавный лист ТП 902-2-154-АС-1 Примерный генплан ТП 902-2-154-АС-2 Производственно-вспомогательное здание. Фасады 1-2;2-1;А-Б;Б-А ТП 902-2-154-АС-3 Производственно-вспомогательное здание. План на отм. 0.0. Разрезы 1-1;2-2. Экспликация помещений ТП 902-2-154-АС-4 Здание решеток. План на отм. 0.0. Разрезы 1-1;2-2. Фасады 1-2;2-2;Б-А ТП 902-2-154-АС-5 Производственно-вспомогательное здание и здание решеток. План полов на отм. 0.0. План кровли. Ведомость внутренней отделки помещений. Экспликация полов. Спецификация дверных и оконных блоков ТП 902-2-154-АС-6 Производственно-вспомогательное здание. План фундаментов. Раскладка блоков. Спецификация сборных элементов ТП 902-2-154-АС-7 Производственно-вспомогательное здание. Монтажный план плит покрытия. План перемычек ТП 902-2-154-АС-8 Производственно-вспомогательное здание. План подземного хозяйства. Компоновка воздуходувной. Планы. Сечения ТП 902-2-154-АС-9 Производственно-вспомогательное здание. План подземного хозяйства. Компоновка хлораторной. Планы, сечения. Узлы путей подвесного транспорта ТП 902-2-154-АС-10 Производственно-вспомогательное здание. Приточная камера. План, разрезы. Закладные детали ТП 902-2-154-АС-11 Производственно-вспомогательное здание. Хлораторная на жидком хлоре. Вентиляционная труба ТП 902-2-154-АС-12 Здание решеток. План фундаментов. План раскладки плит покрытия. Узлы путей подвесного транспорта ТП 902-2-154-АС-13 План контактных резервуаров и колодцев К-2,К-3,К-4. Разрезы. Расход материалов ТП 902-2-154-АС-14 Лотки и опорные кольца. План раскладки лотков на площадке. Узлы ТП 902-2-154-АС-15 Приемная камера. Иловой колодец ТП 902-2-154-АС-16 Фундамент Ф1 под металлическую трубу. План, разрез (вариант компоновки блока аэротенков отстойников тип АБ-800) ТП 902-2-154-АС-17 Кольцо стеновое КС20-1А-1. Опалубочный чертеж. Детали и армирования ТП 902-2-154 Санитарно-технические чертежи ТП 902-2-154 Перечень чертежей. Пояснительная записка ТП 902-2-154-ОВ-1 Отопление. Планы с нанесением систем отопления ТП 902-2-154-ОВ-2 Вентиляция. Планы с нанесением систем вентиляции. Схемы вентиляционных систем ТП 902-2-154-ОВ-3 Схемы систем отопления ТП 902-2-154-ОВ-4 Вентиляция. Приточная камера П-1. План и разрез 1-1. Схема теплоснабжения калориферов ТП 902-2-154-ОВ-5 Характеристика отопительно-вентиляционного оборудования. Спецификация ТП 902-2-154-ВК-1 Производственно-вспомогательное здание. Водопровод. Канализация. Схемы. Спецификация ТП 902-2-154 Электротехнические чертежи ТП 902-2-154 Перечень чертежей и пояснительная записка. Питание электрооборудования. Схема принципиальная ТП 902-2-154-ЭЭ-1 Питание электрооборудования. Схема принципиальная ТП 902-2-154-ЭЭ-2 Производственно-вспомогательное здание. Размещение электрооборудования. Прокладка кабелей и заземление. Размещение электрооборудования и прокладка кабелей электроотопления ТП 902-2-154-ЭЭ-3 Здание решеток ТП 902-2-154-ЭЭ-4 Производственно-вспомогательное здание. Электрическое освещение ТП 902-2-154-ЭЭ-5 Спецификация изделий монтажно-заготовительного участка. Строительное здание ТП 902-2-154-ЭЭ-6 Производственно-вспомогательное здание. Электрическое освещение. Узлы установки светильников | Разработан: | ЦНИИЭП иженерного оборудования
| Утверждён: | 30.10.1972 Госгражданстрой (Gosgrazhdanstroy 212)
| Расположен в: |
| Чем заменён: | |
                                                         
|