Скачать Серия КЭ-01-55 Выпуск II. Рабочие чертежиДата актуализации: 10.08.2017 Серия КЭ-01-55
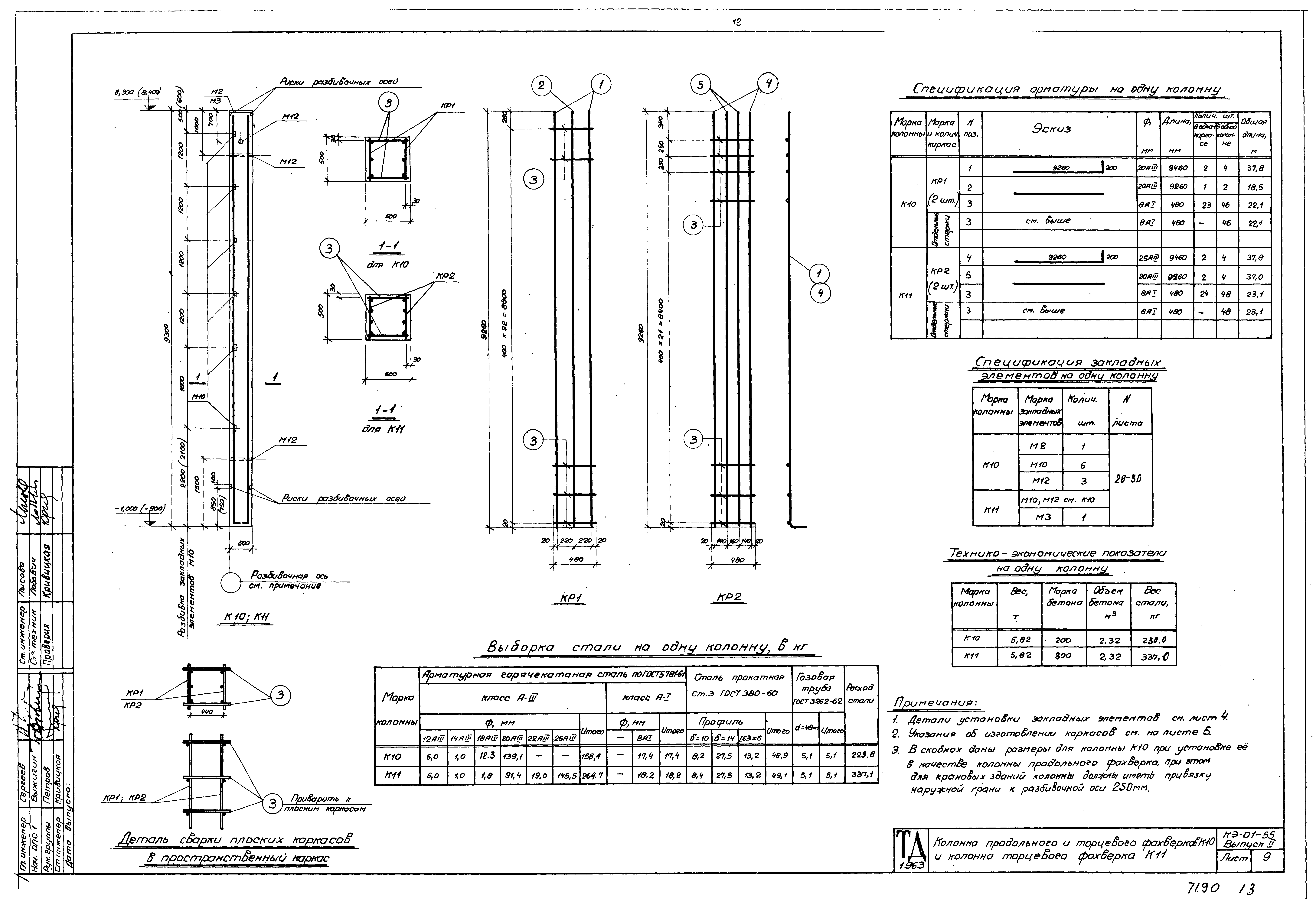
Выпуск II. Рабочие чертежиОбозначение: | Серия КЭ-01-55 | Обозначение англ: | Series КЭ-01-55 | Статус: | не действует | Название рус.: | Выпуск II. Рабочие чертежи | Дата добавления в базу: | 01.09.2013 | Дата актуализации: | 05.05.2017 | Дата введения: | 01.06.1964 | Дата окончания срока действия: | 01.04.1984 | Оглавление: | КЭ-01-55 Пояснительная записка КЭ-01-55 Лист 1. Ключи для подбора торцевых и продольных фахверков КЭ-01-55 Лист 2. Сортамент и технико-экономические показатели на колонны продольного и торцевого фахверков КЭ-01-55 Лист 3. Сборные чертежи колонн продольных и торцевых фахверков КЭ-01-55 Лист 4. Детали 1-12 установки закладных элементов в колоннах КЭ-01-55 Лист 5. Колонны торцевого фахверка К1 и К2 КЭ-01-55 Лист 6. Колонна торцевого фахверка К3 КЭ-01-55 Лист 7. Колонны торцевого фахверка К5 и К6 КЭ-01-55 Лист 8. Колонна продольного и торцевого фахверков К7 и колонны торцевого фахверка К8 и К9 КЭ-01-55 Лист 9. Колонна продольного и торцевого фахверков К10 и колонна торцевого фахверка К11 КЭ-01-55 Лист 10. Колонна продольного и торцевого фахверков К12 и колонна торцевого фахверка К13 КЭ-01-55 Лист 11. Колонны торцевого фахверка К14,К15 и К16 КЭ-01-55 Лист 12. Колонны торцевого фахверка К17,К18 и К19 КЭ-01-55 Лист 13. Колонны продольного фахверка КФ-20 и КФ-21 КЭ-01-55 Лист 14. Колонны продольного фахверка КФ-22 и КФ-23 КЭ-01-55 Лист 15. Колонны продольного фахверка КФ-24 и КФ-25 КЭ-01-55 Лист 16. Колонны продольного фахверка КФ-26 и КФ-27 КЭ-01-55 Лист 17. Колонна продольного фахверка КФ-28 КЭ-01-55 Лист 18. Колонны К31,К32 и К33 продольного и торцевого фахверков КЭ-01-55 Лист 19. Колонны К34,К34а,К35,К35а,К36 продольного и торцевого фахверков КЭ-01-55 Лист 20. Колонны К37,К37а,К38,К38а,К39 продольного и торцевого фахверков КЭ-01-55 Лист 21. Каркасы КП1-КП16;КР1-КР10 для колонн К31-К39 КЭ-01-55 Лист 22. Спецификация и выборка стали на каркасы КП1-КП14 для колонн К31-К39 КЭ-01-55 Лист 23. Спецификация и выборка стали на каркасы КП15,КП16,КР1-КР10 для колонн К31-К39 КЭ-01-55 Лист 24. Колонны КФМ-1,КФМ-2. Элементы колонн Т1-Т3. Спецификация КЭ-01-55 Лист 25. Элементы колонн Т9-Т17. Спецификация КЭ-01-55 Лист 26. Элементы колонн Т18-Т25. Спецификация КЭ-01-55 Лист 27. Закладные элементы М1-М6 КЭ-01-55 Лист 28. Закладные элементы М7-М17 КЭ-01-55 Лист 29. Спецификация стали на закладные элементы М1-М17 КЭ-01-55 Лист 30. Закладные элементы М18-М21. Спецификация | Разработан: | НИИЖБ Госстроя СССР ЦНИИпромзданий
| Утверждён: | 06.05.1964 Госстрой СССР (Государственный комитет Совета Министров СССР по делам строительства) (USSR Gosstroy 70)
| Расположен в: |
| Чем заменён: | |
                                 
|