| ||||||||||||||||||||||||||
Скачать Типовой проект 904-1-58.85 Альбом 4. Строительные решенияДата актуализации: 10.08.2017
|
| Обозначение: | Типовой проект 904-1-58.85 |
| Обозначение англ: | 904-1-58.85 |
| Статус: | не действует |
| Название рус.: | Альбом 4. Строительные решения |
| Дата добавления в базу: | 01.09.2013 |
| Дата актуализации: | 05.05.2017 |
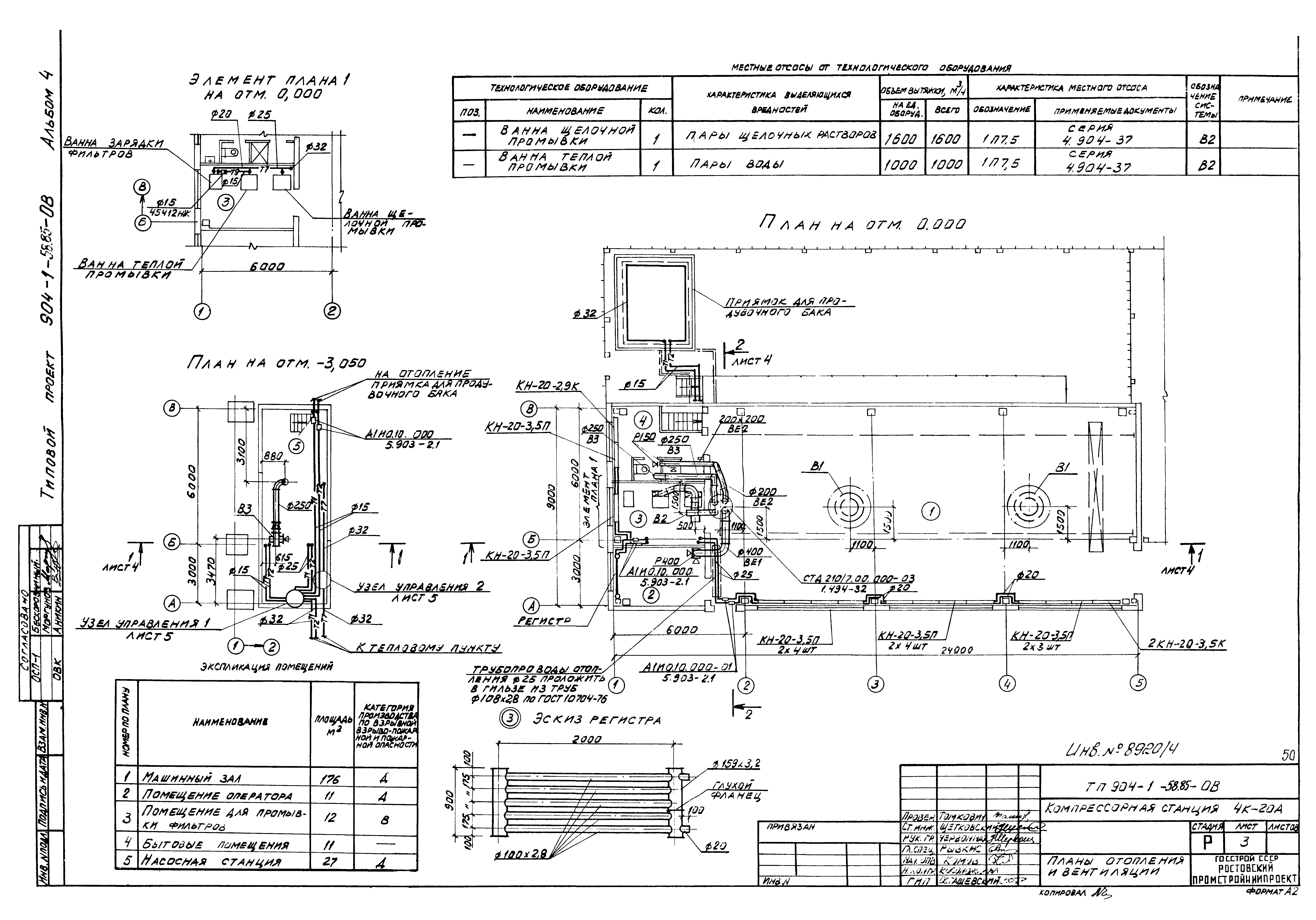
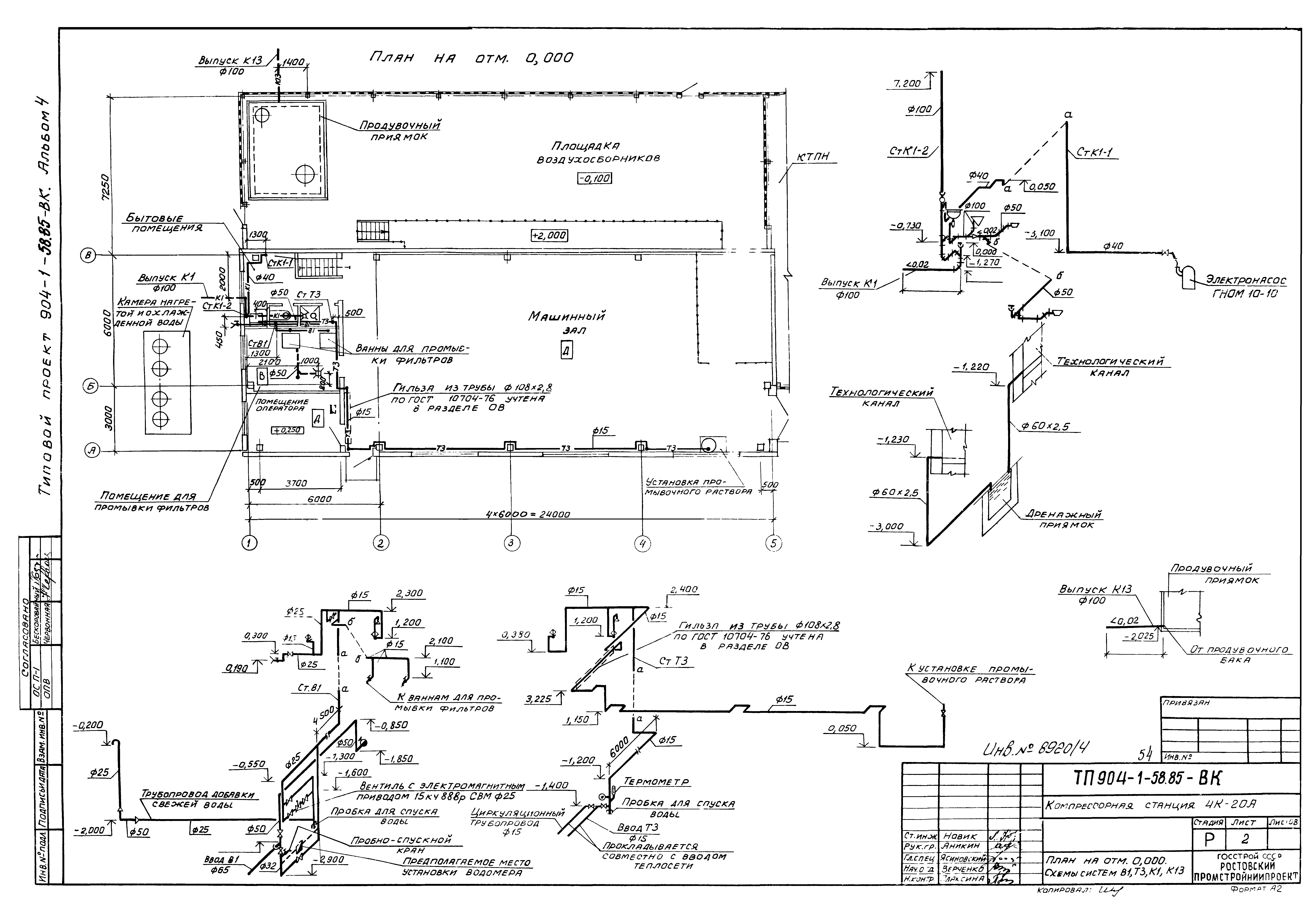
| Оглавление: | ТП 904-1-58.85 Содержание альбома ТП 904-1-58.85-ПЗ Пояснительная записка ТП 904-1-58.85-АР Архитектурные решения ТП 904-1-58.85-АР-1 Общие данные (начало) ТП 904-1-58.85-АР-2 Общие данные (окончание) ТП 904-1-58.85-АР-3 Планы на отм. 0.000 и -3.050 ТП 904-1-58.85-АР-4 Фрагмент 1. Спецификация элементов к плану на отм. 0.000 ТП 904-1-58.85-АР-5 Фасады. Разрезы 1-1÷3-3 ТП 904-1-58.85-АР-6 КТПН (начало) ТП 904-1-58.85-АР-7 КТПН (окончание) ТП 904-1-58.85-АР-8 План полов. План кровли ТП 904-1-58.85-АР-9 Подвесной потолок. Схема расположения плит перекрытия ТП 904-1-58.85-АР-10 Узлы 1-9 ТП 904-1-58.85-КЖ Конструкции железобетонные ТП 904-1-58.85-КЖ-1 Общие данные (начало) ТП 904-1-58.85-КЖ-2 Общие данные (продолжение) ТП 904-1-58.85-КЖ-3 Общие данные (окончание) ТП 904-1-58.85-КЖ-4 Схема расположения элементов фундаментов ТП 904-1-58.85-КЖ-5 Фундаменты ФМ1-ФМ3 ТП 904-1-58.85-КЖ-6 Фундаменты ФМ4-ФМ8 ТП 904-1-58.85-КЖ-7 Схема расположения подземных конструкций ТП 904-1-58.85-КЖ-8 Схема расположения плит перекрытия и элементов каналов КН!-КН3 (начало) ТП 904-1-58.85-КЖ-9 Схема расположения плит перекрытия и элементов каналов КН!-КН3 (продолжение) ТП 904-1-58.85-КЖ-10 Схема расположения плит перекрытия и элементов каналов КН!-КН3 (окончание) ТП 904-1-58.85-КЖ-11 Спецификация к участкам монолитным Ум1-Ум10 ТП 904-1-58.85-КЖ-12 Участки монолитные Ум1-Ум3 ТП 904-1-58.85-КЖ-13 Участки монолитные Ум4-Ум6 ТП 904-1-58.85-КЖ-14 Участки монолитные Ум7-Ум10 ТП 904-1-58.85-КЖ-15 Схема расположения элементов подвала ТП 904-1-58.85-КЖ-16 Схема расположения элементов колодцев К1,к2 ТП 904-1-58.85-КЖ-17 Резервуар РЕм1. Общий вид ТП 904-1-58.85-КЖ-18 Резервуар РЕм1. Схема армирования ТП 904-1-58.85-КЖ-19 Приямок ПРм1. Общий вид ТП 904-1-58.85-КЖ-20 Приямок ПРм1. Схема армирования. Плита ПМ1 ТП 904-1-58.85-КЖ-21 Фундаменты ФОМ1 ТП 904-1-58.85-КЖ-22 Фундаменты ФОМ2-ФОМ7 ТП 904-1-58.85-КЖ-23 Схемы расположения элементов каркаса и плит покрытия ТП 904-1-58.85-КЖ-24 Схемы расположения стеновых панелей ТП 904-1-58.85-КЖ-25 Фрагменты 1-12. Сечение 3-3 ТП 904-1-58.85-КМ Конструкции металлические ТП 904-1-58.85-КМ-1 Общие данные ТП 904-1-58.85-КМ-1 Техническая спецификация металла на объект (начало) ТП 904-1-58.85-КМ-1 Техническая спецификация металла на объект (окончание). Ведомость металлоконструкций по видам профилей ТП 904-1-58.85-КМ-1 Техническая спецификация металла на лестницы и ограждения ТП 904-1-58.85-КМ-1 Схемы расположения подвесных путей, балок и лестниц ТП 904-1-58.85-КМ-1 Схема расположения перекрытия каналов КН2,КН3 ТП 904-1-58.85-КМ-1 Площадка на отм. 2.000. Схема расположения кронштейнов ТП 904-1-58.85-КМ-8 Схемы расположения пожарной лестницы, лестницы на отм. 0.000 и кронштейна на отм. -1.300 и 2.850 ТП 904-1-58.85-ОВ Отопление и вентиляция ТП 904-1-58.85-ОВ-1 Общие данные (начало) ТП 904-1-58.85-ОВ-2 Общие данные (окончание) ТП 904-1-58.85-ОВ-3 Планы отопления и вентиляция ТП 904-1-58.85-ОВ-4 Разрезы 1-1;2-2. Система отопления 2,3. Система производственного пароснабжения ТП 904-1-58.85-ОВ-5 Узлы управления 1,2. Системы отопления 2,3. Система производственного пароснабжения ТП 904-1-58.85-ВК Водопровод и канализация ТП 904-1-58.85-ВК-1 Общие данные ТП 904-1-58.85-ВК-2 План на отм. 0.000. Схемы систем В1,Т3,К3,К1,К13 ТП 904-1-58.85-ВК-3 Насосная станция водопровода оборотной воды. План на отм.-3.050. Разрезы ТП 904-1-58.85-ВК-4 Насосная станция водопровода оборотной воды. Схема установок систем В4,В5 ТП 407-3-503.88 Пояснительная записка ТП 407-3-503.88 Объектная смета № 1 - строительство трансформаторных подстанций ТП 407-3-503.88 Локальная смета № 1-1 - общестроительные работы на исполнение 01 ТП 407-3-503.88 Локальная смета № 1-2 - общестроительные работы исполнение 02 ТП 407-3-503.88 Локальная смета № 1-3 - общестроительные работы исполнение 03 ТП 407-3-503.88 Локальная смета № 1-4 - общестроительные работы исполнение 04 ТП 407-3-503.88 Локальная смета № 1-5 - приобретение и монтаж трансформаторных на площадке ТП 407-3-503.88 Локальная смета № 1-6 - на заземление (на площадке) ТП 407-3-503.88 Калькуляция № 1 - стоимости блоков ТП 407-3-503.88 Калькуляция № 2 - трансформаторные расходы при перевозке 1 т трансформаторных подстанций из готовых железобетонных элементов ТП 407-3-503.88 Расчет № 1 - стоимости блоков Бт-1 и Бт-2 ТП 407-3-503.88 Расчет № 2 - стоимости блоков Бт-3 и Бт-4 ТП 407-3-503.88 Расчет № 3 - стоимости блоков Бт-5 ТП 407-3-503.88 Расчет № 4 - стоимости защитного кожуха ТП 407-3-503.88 Ведомость потребности в производственных ресурс. |
| Разработан: | Ростовский Промстройниипроект Госстроя СССР |
| Утверждён: | 27.09.1984 Минстройдормаш (Minstroydormash 16/84) |
| Расположен в: | |
| Заменяет собой: |

























































