Информационная система
«Ёшкин Кот»

Скачать базу одним архивом
Скачать обновления
История создания базы
Карта сайта

Скачать Типовой проект 903-1-270.89 Альбом 8. Часть 1. Строительные изделия

Дата актуализации: 10.08.2017

Типовой проект 903-1-270.89

Альбом 8. Часть 1. Строительные изделия

Обозначение: Типовой проект 903-1-270.89
Обозначение англ: 903-1-270.89
Статус:не определен законодательством
Название рус.:Альбом 8. Часть 1. Строительные изделия
Дата добавления в базу:01.09.2013
Дата актуализации:05.05.2017
Дата введения:12.07.1989
Оглавление:Ведомость чертежей
Технические условия
Балка фундаментная БФ1
Балка фундаментная БФ2
Балка фундаментная БФ3
Балка фундаментная БФ4
Колонна К1, К1-1
Колонна К1-2, К2-1
Колонна К1-3, К1-4
Колонна К1-5, К1-6
Колонна К1-7
Колонна К2, К2-2
Колонна К2-3
Колонна К2-4
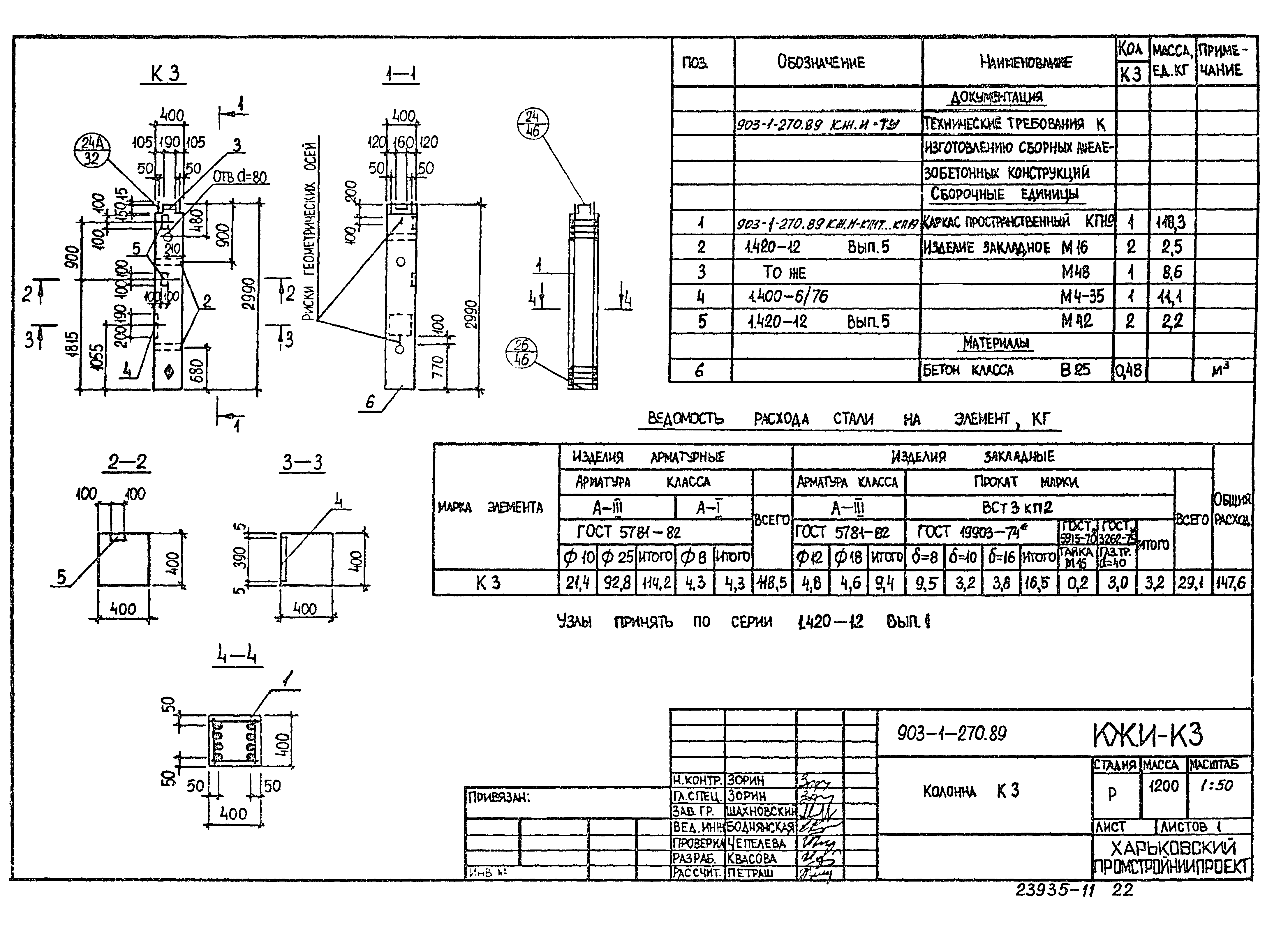
Колонна К3
Колонна К3-1, К3-2
Колонна К4
Колонна К4-1
Колонна К4-2
Колонна К4-3
Колонна К5
Колонна К5-1
Колонна К5-2
Колонна К5-3
Колонна К5-4
Колонна К5-5
Колонна К5-6
Колонна К5-7
Колонна К6
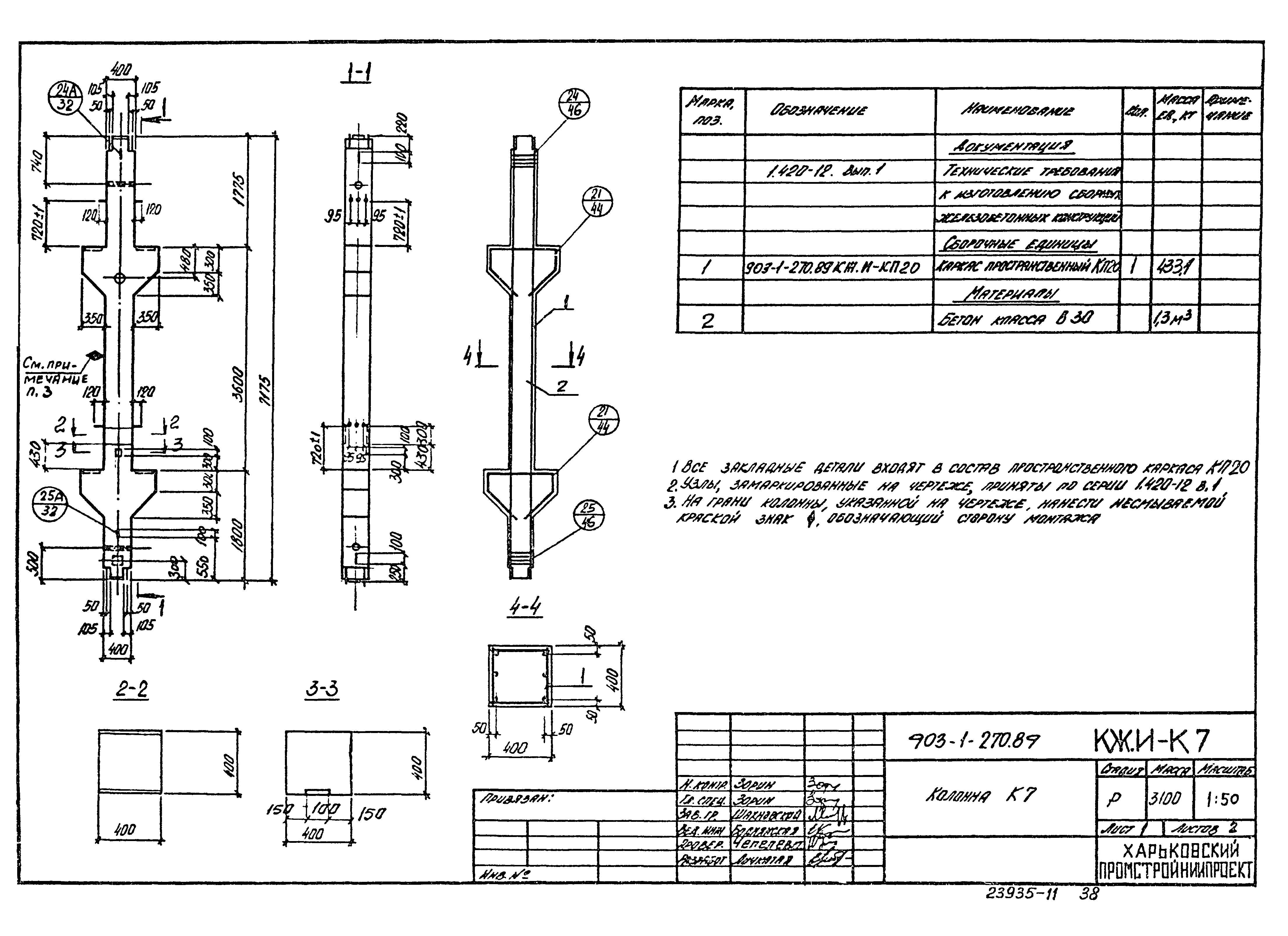
Колонна К7
Колонна К7-1
Колонна К7-2
Колонна К7-3
Колонна К7-4
Колонна К7-5
Колонна К7-6
Колонна К8
Колонна К8-1
Колонна К9…К9-2
Колонна К9-3, К9-4
Колонна К10-1…К10-3
Колонна К10-4, К10-5
Стойка Ст1
Стойка Ст2, Ст3
Стойка Ст4 (опалубка)
Стойка Ст4 (армирование)
Ригель Р1, Р3, Р3-1…Р3-3, Р6, Р7
Ригель Р2, Р2-1, Р2-2, Р4, Р4-1, Р5
Ригель Р8, Р8-1, Р8-2, Р9
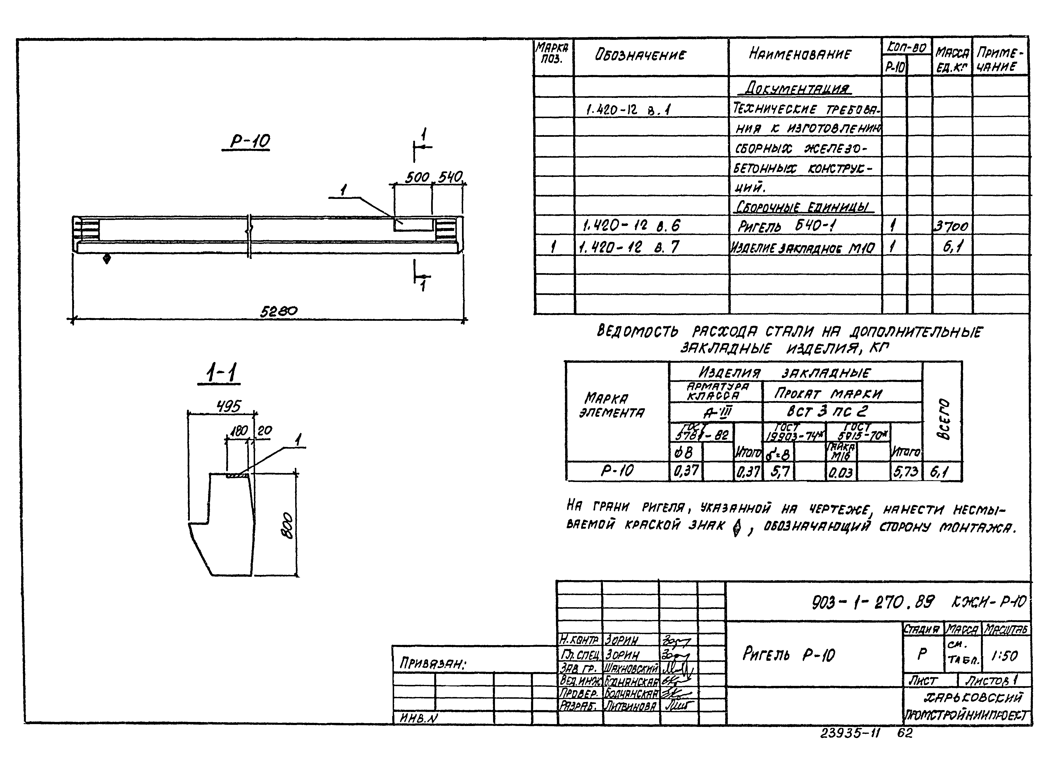
Ригель Р10
Траверса Т1
Балка Б1
Плита перекрытия П1, П2
Плита перекрытия П3, П4, П16
Плита перекрытия П5, П6
Плита перекрытия П7, П8
Плита перекрытия П9, П15, П17
Плита перекрытия П10, П11
Плита перекрытия П12, П13, П14
Плита перекрытия П18, П19
Плита перекрытия П20, П21
Плита перекрытия П22…П25
Плита покрытия П1-1
Плита покрытия П1-2, П2-1
Плита покрытия П1-3, П3-1, П4-1, П5-1
Плита покрытия П6-1, П7-1
Плита покрытия П6-2, П8-1, П9-1, П10-1
Плита покрытия П11-1
Плита покрытия П12-1, П11-2
Панель перегородки ПГ1…ПГ3
Панель перегородки ПГ4, ПГ5
Панель стеновая ПС2, ПС19
Панель стеновая ПС8…ПС10
Панель стеновая ПС11, ПС15
Панель стеновая ПС16
Панель стеновая ПС22
Панель стеновая ПС23
Панель стеновая ПС25, ПС28, ПС32
Панель стеновая ПС29
Панель стеновая ПС33, ПС34
Панель стеновая ПС37, ПС39, ПС40
Панель стеновая ПС38, ПС47
Панель стеновая ПС46, ПС49
Панель стеновая ПС50
Панель стеновая ПС53, ПС61, ПС67
Панель стеновая ПС54, ПС62, ПС68
Панель стеновая ПС55, ПС63, ПС69
Панель стеновая ПС56, ПС60, ПС87
Панель стеновая ПС57, ПС64, ПС70
Панель стеновая ПС58, ПС65, ПС71
Панель стеновая ПС59, ПС66, ПС72
Панель стеновая ПС73, ПС80
Панель стеновая ПС74, ПС81
Панель стеновая ПС75, ПС82
Панель стеновая ПС76, ПС83
Панель стеновая ПС77, ПС84
Панель стеновая ПС78, ПС85
Панель стеновая ПС79, ПС86
Панель стеновая ПС4-А, ПС12-А, ПС15-А, ПС16-А
Панель стеновая ПС18-А, ПС19-А
Панель стеновая ПС22-А, ПС23-А
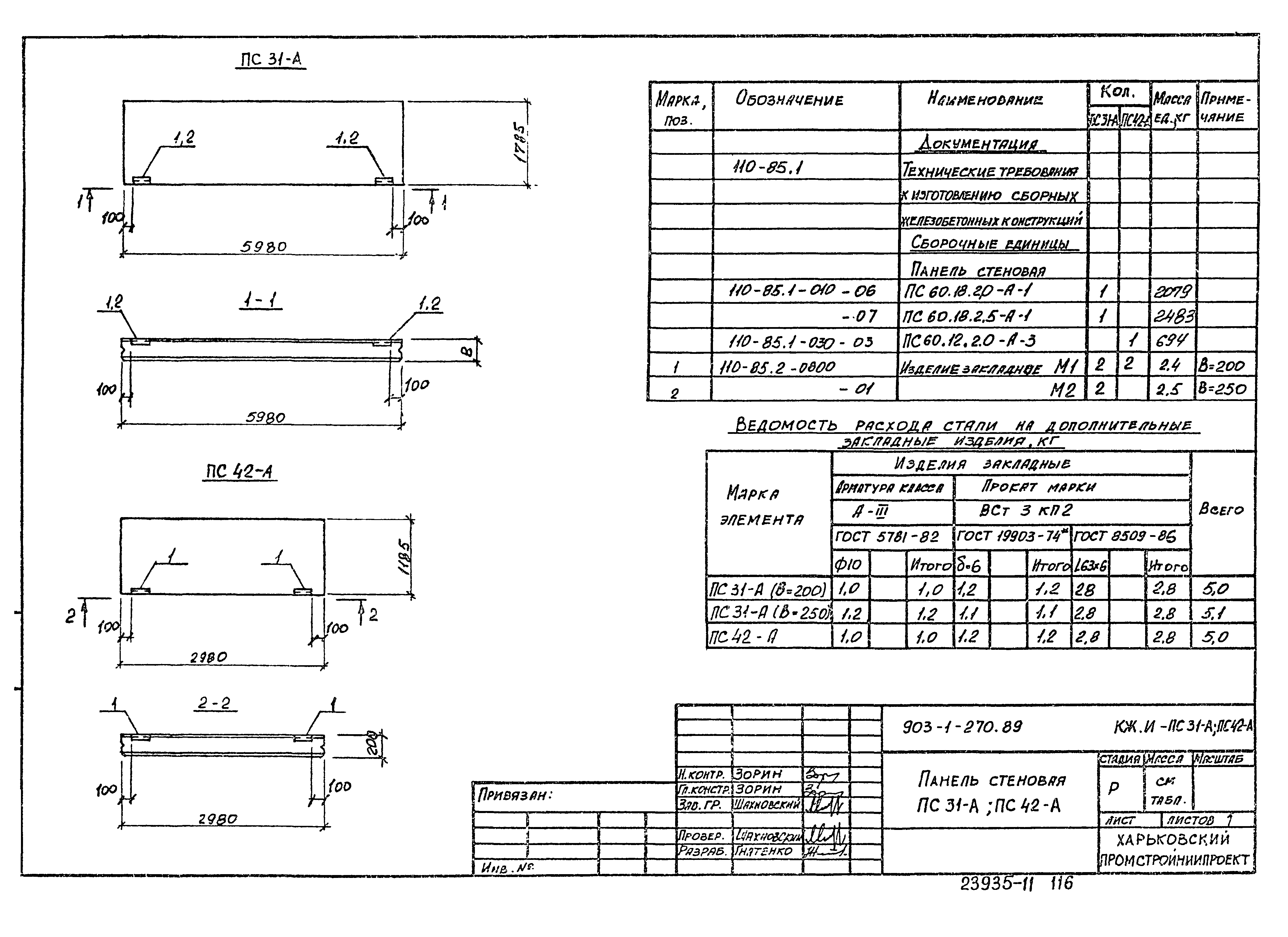
Панель стеновая ПС31-А, ПС42-А
Панель стеновая ПС33-1, ПС49-А
Панель стеновая ПС37-А, ПС61-А
Панель стеновая ПС38-А, ПС53-А
Панель стеновая ПС39-А, ПС40-А
Панель стеновая ПС41-А, ПС44-А
Панель стеновая ПС50-А, ПС52-А
Панель стеновая ПС51-А
Блок БЛ1…БЛ6
Блок БЛ7, БЛ8
Разработан: Харьковский Промстройниипроект
Харьковский Сантехпроект
Утверждён:12.07.1989 Сантехниипроект (10)
Расположен в:Техническая документация Строительство Справочные документы Типовые строительные конструкции, изделия и узлы Общероссийский строительный каталог Промышленные предприятия, здания и сооружения Здания и сооружения санитарно-технические Теплоснабжение Котельные установки Закрытые системы теплоснабжения Топливо - каменные и бурые угли
Заменяет собой:
Типовой проект 903-1-270.89Типовой проект 903-1-270.89Типовой проект 903-1-270.89Типовой проект 903-1-270.89Типовой проект 903-1-270.89Типовой проект 903-1-270.89Типовой проект 903-1-270.89Типовой проект 903-1-270.89Типовой проект 903-1-270.89Типовой проект 903-1-270.89Типовой проект 903-1-270.89Типовой проект 903-1-270.89Типовой проект 903-1-270.89Типовой проект 903-1-270.89Типовой проект 903-1-270.89Типовой проект 903-1-270.89Типовой проект 903-1-270.89Типовой проект 903-1-270.89Типовой проект 903-1-270.89Типовой проект 903-1-270.89Типовой проект 903-1-270.89Типовой проект 903-1-270.89Типовой проект 903-1-270.89Типовой проект 903-1-270.89Типовой проект 903-1-270.89Типовой проект 903-1-270.89Типовой проект 903-1-270.89Типовой проект 903-1-270.89Типовой проект 903-1-270.89Типовой проект 903-1-270.89Типовой проект 903-1-270.89Типовой проект 903-1-270.89Типовой проект 903-1-270.89Типовой проект 903-1-270.89Типовой проект 903-1-270.89Типовой проект 903-1-270.89Типовой проект 903-1-270.89Типовой проект 903-1-270.89Типовой проект 903-1-270.89Типовой проект 903-1-270.89Типовой проект 903-1-270.89Типовой проект 903-1-270.89Типовой проект 903-1-270.89Типовой проект 903-1-270.89Типовой проект 903-1-270.89Типовой проект 903-1-270.89Типовой проект 903-1-270.89Типовой проект 903-1-270.89Типовой проект 903-1-270.89Типовой проект 903-1-270.89Типовой проект 903-1-270.89Типовой проект 903-1-270.89Типовой проект 903-1-270.89Типовой проект 903-1-270.89Типовой проект 903-1-270.89Типовой проект 903-1-270.89Типовой проект 903-1-270.89Типовой проект 903-1-270.89Типовой проект 903-1-270.89Типовой проект 903-1-270.89Типовой проект 903-1-270.89Типовой проект 903-1-270.89Типовой проект 903-1-270.89Типовой проект 903-1-270.89Типовой проект 903-1-270.89Типовой проект 903-1-270.89Типовой проект 903-1-270.89Типовой проект 903-1-270.89Типовой проект 903-1-270.89Типовой проект 903-1-270.89Типовой проект 903-1-270.89Типовой проект 903-1-270.89Типовой проект 903-1-270.89Типовой проект 903-1-270.89Типовой проект 903-1-270.89Типовой проект 903-1-270.89Типовой проект 903-1-270.89Типовой проект 903-1-270.89Типовой проект 903-1-270.89Типовой проект 903-1-270.89Типовой проект 903-1-270.89Типовой проект 903-1-270.89Типовой проект 903-1-270.89Типовой проект 903-1-270.89Типовой проект 903-1-270.89Типовой проект 903-1-270.89Типовой проект 903-1-270.89Типовой проект 903-1-270.89Типовой проект 903-1-270.89Типовой проект 903-1-270.89Типовой проект 903-1-270.89Типовой проект 903-1-270.89Типовой проект 903-1-270.89Типовой проект 903-1-270.89Типовой проект 903-1-270.89Типовой проект 903-1-270.89Типовой проект 903-1-270.89Типовой проект 903-1-270.89Типовой проект 903-1-270.89Типовой проект 903-1-270.89Типовой проект 903-1-270.89Типовой проект 903-1-270.89Типовой проект 903-1-270.89Типовой проект 903-1-270.89Типовой проект 903-1-270.89Типовой проект 903-1-270.89Типовой проект 903-1-270.89Типовой проект 903-1-270.89Типовой проект 903-1-270.89Типовой проект 903-1-270.89Типовой проект 903-1-270.89Типовой проект 903-1-270.89Типовой проект 903-1-270.89Типовой проект 903-1-270.89Типовой проект 903-1-270.89Типовой проект 903-1-270.89Типовой проект 903-1-270.89Типовой проект 903-1-270.89Типовой проект 903-1-270.89Типовой проект 903-1-270.89Типовой проект 903-1-270.89Типовой проект 903-1-270.89Типовой проект 903-1-270.89Типовой проект 903-1-270.89Типовой проект 903-1-270.89Типовой проект 903-1-270.89

© 2013 Ёшкин Кот :-) Карта сайта