Информационная система
«Ёшкин Кот»

Скачать базу одним архивом
Скачать обновления
История создания базы
Карта сайта

Скачать Серия 1.463-9 Выпуск 2. Рабочие чертежи ферм с уклоном верхнего пояса

Дата актуализации: 10.08.2017

Серия 1.463-9

Выпуск 2. Рабочие чертежи ферм с уклоном верхнего пояса

Обозначение: Серия 1.463-9
Обозначение англ: Series 1.463-9
Статус:отменен
Название рус.:Выпуск 2. Рабочие чертежи ферм с уклоном верхнего пояса
Дата добавления в базу:01.10.2014
Дата актуализации:05.05.2017
Дата введения:01.10.2000
Оглавление:Пояснительная записка
Фермы ФСТ12-18-1П7, ФСТ12-18-1АIV. Опалубочный чертеж
Ферма ФСТ12-18-1П7. Арматурный чертеж
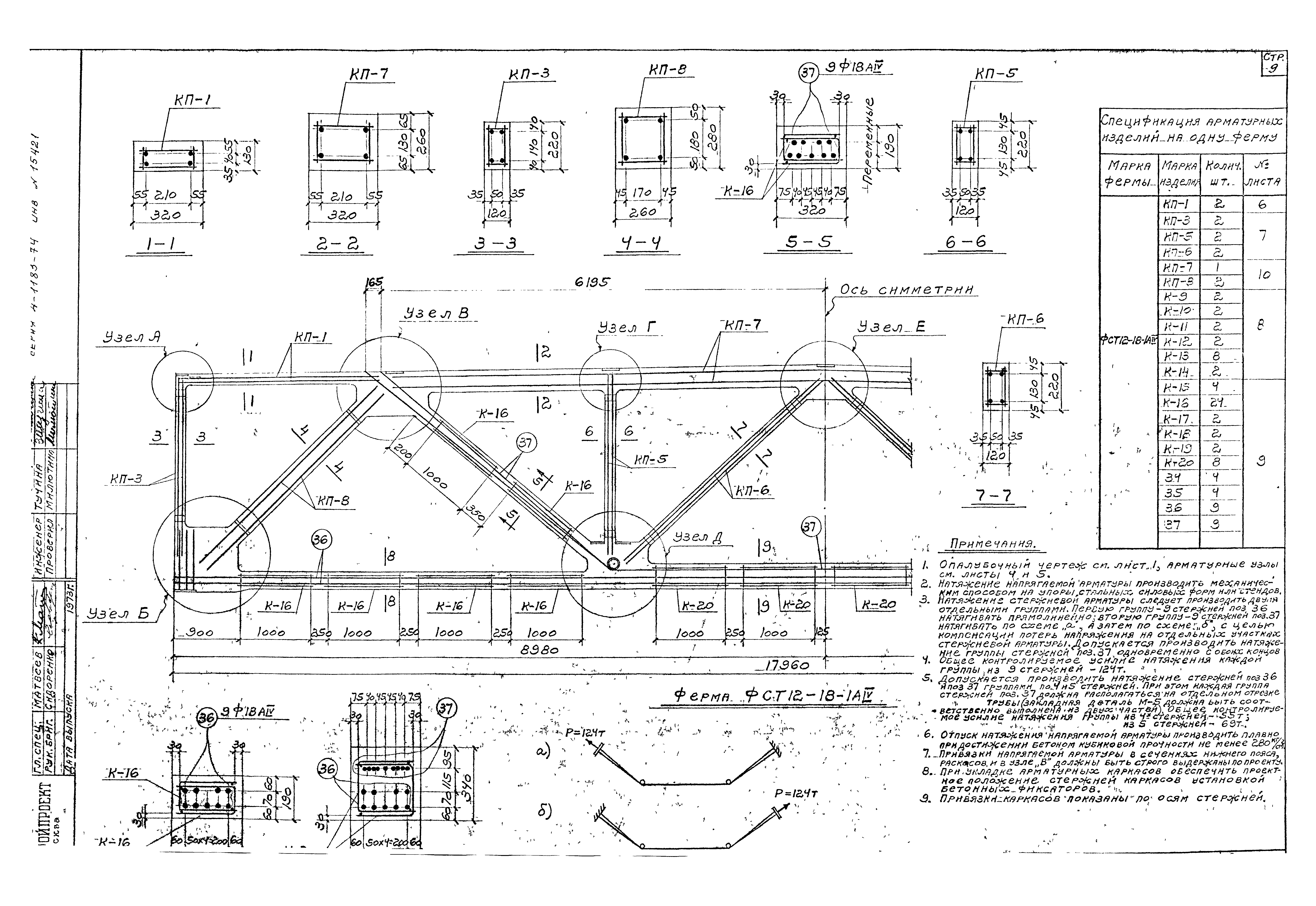
Ферма ФСТ12-18-1АIV. Арматурный чертеж
Фермы ФСТ12-18-1П7, ФСТ12-18-1АIV. Арматурные узлы А, Б, В
Фермы ФСТ12-18-1П7, ФСТ12-18-1АIV. Арматурные узлы Г, Д, Е
Фермы ФСТ12-18-1П7, ФСТ12-18-1АIV. Пространственные каркасы КП-1, КП-2
Фермы ФСТ12-18-1П7, ФСТ12-18-1АIV. Пространственные каркасы КП-3 - КП-6
Фермы ФСТ12-18-1П7, ФСТ12-18-1АIV. Каркасы К-9 - К-14
Фермы ФСТ12-18-1П7, ФСТ12-18-1АIV. Каркасы К-15 - К-20
Ферма ФСТ12-18-1АIV. Пространственные каркасы КП-7, КП-8
Фермы ФСТ12-18-1П7, ФСТ12-18-1АIV. Закладные детали М-1 - М-5 и накладная деталь МС-3
Разработан: НИИЖБ Госстроя СССР
ГПИ-1 Минлегпрома СССР
ГПИ Промстройпроект
Утверждён:05.09.1973 Минлегпром СССР (USSR Minlegprom )
Расположен в:Техническая документация Строительство Справочные документы Типовые строительные конструкции, изделия и узлы Общероссийский строительный каталог Строительные конструкции, изделия и узлы зданий и сооружений для всех видов строительства Конструкции, изделия и узлы зданий Несущие конструкции одноэтажных зданий Стропильные и подстропильные конструкции Фермы Железобетонные
Серия 1.463-9Серия 1.463-9Серия 1.463-9Серия 1.463-9Серия 1.463-9Серия 1.463-9Серия 1.463-9Серия 1.463-9Серия 1.463-9Серия 1.463-9Серия 1.463-9Серия 1.463-9Серия 1.463-9Серия 1.463-9Серия 1.463-9Серия 1.463-9Серия 1.463-9Серия 1.463-9Серия 1.463-9

© 2013 Ёшкин Кот :-) Карта сайта