Информационная система
«Ёшкин Кот»

Скачать базу одним архивом
Скачать обновления
История создания базы
Карта сайта

Скачать ТУ 5210-001-25432924-2008 Ограждения дорожные металлические барьерного типа

Дата актуализации: 10.08.2017

ТУ 5210-001-25432924-2008

Ограждения дорожные металлические барьерного типа

Обозначение: ТУ 5210-001-25432924-2008
Обозначение англ: TU 5210-001-25432924-2008
Статус:действует
Название рус.:Ограждения дорожные металлические барьерного типа
Дата добавления в базу:01.09.2013
Дата актуализации:05.05.2017
Область применения:Документ распространяется на ограждения дорожные металлические барьерного типа, предназначенные для применения на автомобильных дорогах общего пользования и мостах.
Оглавление:Вводная часть
1. Технические требования
   1.1 Основные параметры и характеристики (свойства)
   1.2 Требования и материалы
   1.3 Комплектность
   1.4 Маркировка
   1.5 Упаковка
2. Требования техники безопасности и охраны окружающей среды
3. Правила приёмки
4. Методы контроля
5. Транспортирование и хранение
6. Указания по монтажу
7. Гарантии изготовителя
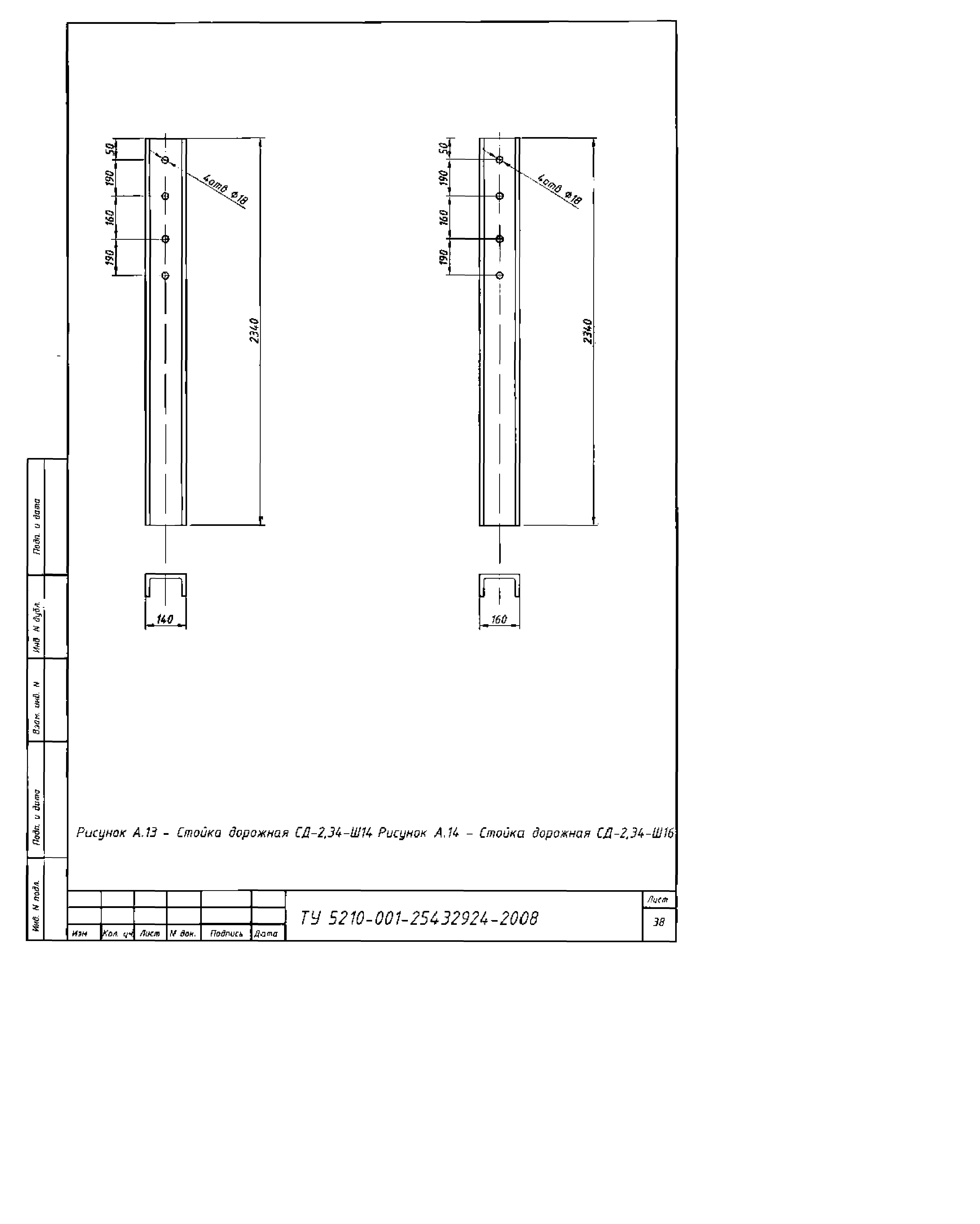
Приложение А (обязательное) Элементы ограждений дорожных металлических барьерного типа
Приложение Б (обязательное) Ограждения дорожные металлические барьерного типа 11 ДОО
Приложение В (обязательное) Ограждения дорожные металлические барьерного типа 11 ДОО-А
Приложение Г (обязательное) Ограждения дорожные металлические барьерного типа 11 ДОД-УБ
Приложение Д (обязательное) Ограждения дорожные металлические барьерного типа 11 ДОО-УТ
Приложение Е (обязательное) Ограждения дорожные металлические барьерного типа 11 МОО
Приложение Ж (обязательное) Ограждения мостовые металлические барьерного типа 11 МОО-УТ
Приложение И (обязательное) Ограждения мостовые металлические барьерного типа 11 МОД-УБ
Приложение К (обязательное) Ограждения дорожные металлические барьерного типа 11 ДДО-А
Приложение Л (обязательное) Перечень нормативно-технических документов, на которые дана ссылка по тексту настоящих технических условий
Лист регистрации изменений
Разработан: ООО СтройХолдинг
Утверждён:13.03.2008 ООО СтройХолдинг
Принят:07.10.2008 АНО Новосибсертификация
Расположен в:Техническая документация Экология ГРАЖДАНСКОЕ СТРОИТЕЛЬСТВО Строительство дорог Дорожное оборудование и установки Строительство Стандарты Отраслевые стандарты и технические условия Технические условия
Нормативные ссылки:
ТУ 5210-001-25432924-2008ТУ 5210-001-25432924-2008ТУ 5210-001-25432924-2008ТУ 5210-001-25432924-2008ТУ 5210-001-25432924-2008ТУ 5210-001-25432924-2008ТУ 5210-001-25432924-2008ТУ 5210-001-25432924-2008ТУ 5210-001-25432924-2008ТУ 5210-001-25432924-2008ТУ 5210-001-25432924-2008ТУ 5210-001-25432924-2008ТУ 5210-001-25432924-2008ТУ 5210-001-25432924-2008ТУ 5210-001-25432924-2008ТУ 5210-001-25432924-2008ТУ 5210-001-25432924-2008ТУ 5210-001-25432924-2008ТУ 5210-001-25432924-2008ТУ 5210-001-25432924-2008ТУ 5210-001-25432924-2008ТУ 5210-001-25432924-2008ТУ 5210-001-25432924-2008ТУ 5210-001-25432924-2008ТУ 5210-001-25432924-2008ТУ 5210-001-25432924-2008ТУ 5210-001-25432924-2008ТУ 5210-001-25432924-2008ТУ 5210-001-25432924-2008ТУ 5210-001-25432924-2008ТУ 5210-001-25432924-2008ТУ 5210-001-25432924-2008ТУ 5210-001-25432924-2008ТУ 5210-001-25432924-2008ТУ 5210-001-25432924-2008ТУ 5210-001-25432924-2008ТУ 5210-001-25432924-2008ТУ 5210-001-25432924-2008ТУ 5210-001-25432924-2008ТУ 5210-001-25432924-2008ТУ 5210-001-25432924-2008ТУ 5210-001-25432924-2008ТУ 5210-001-25432924-2008ТУ 5210-001-25432924-2008ТУ 5210-001-25432924-2008ТУ 5210-001-25432924-2008ТУ 5210-001-25432924-2008ТУ 5210-001-25432924-2008ТУ 5210-001-25432924-2008ТУ 5210-001-25432924-2008ТУ 5210-001-25432924-2008ТУ 5210-001-25432924-2008ТУ 5210-001-25432924-2008ТУ 5210-001-25432924-2008ТУ 5210-001-25432924-2008ТУ 5210-001-25432924-2008ТУ 5210-001-25432924-2008ТУ 5210-001-25432924-2008ТУ 5210-001-25432924-2008ТУ 5210-001-25432924-2008ТУ 5210-001-25432924-2008ТУ 5210-001-25432924-2008ТУ 5210-001-25432924-2008ТУ 5210-001-25432924-2008ТУ 5210-001-25432924-2008ТУ 5210-001-25432924-2008ТУ 5210-001-25432924-2008ТУ 5210-001-25432924-2008ТУ 5210-001-25432924-2008ТУ 5210-001-25432924-2008ТУ 5210-001-25432924-2008ТУ 5210-001-25432924-2008

© 2013 Ёшкин Кот :-) Карта сайта