| ||||||||||||||||||||||||||||
Скачать Серия 1.031.9-2.07 Выпуск 2. Перегородки. Рабочие чертежиДата актуализации: 10.08.2017
|
| Обозначение: | Серия 1.031.9-2.07 |
| Обозначение англ: | Series 1.031.9-2.07 |
| Статус: | не определен законодательством |
| Название рус.: | Выпуск 2. Перегородки. Рабочие чертежи |
| Дата добавления в базу: | 01.09.2013 |
| Дата актуализации: | 05.05.2017 |
| Дата введения: | 01.03.2007 |
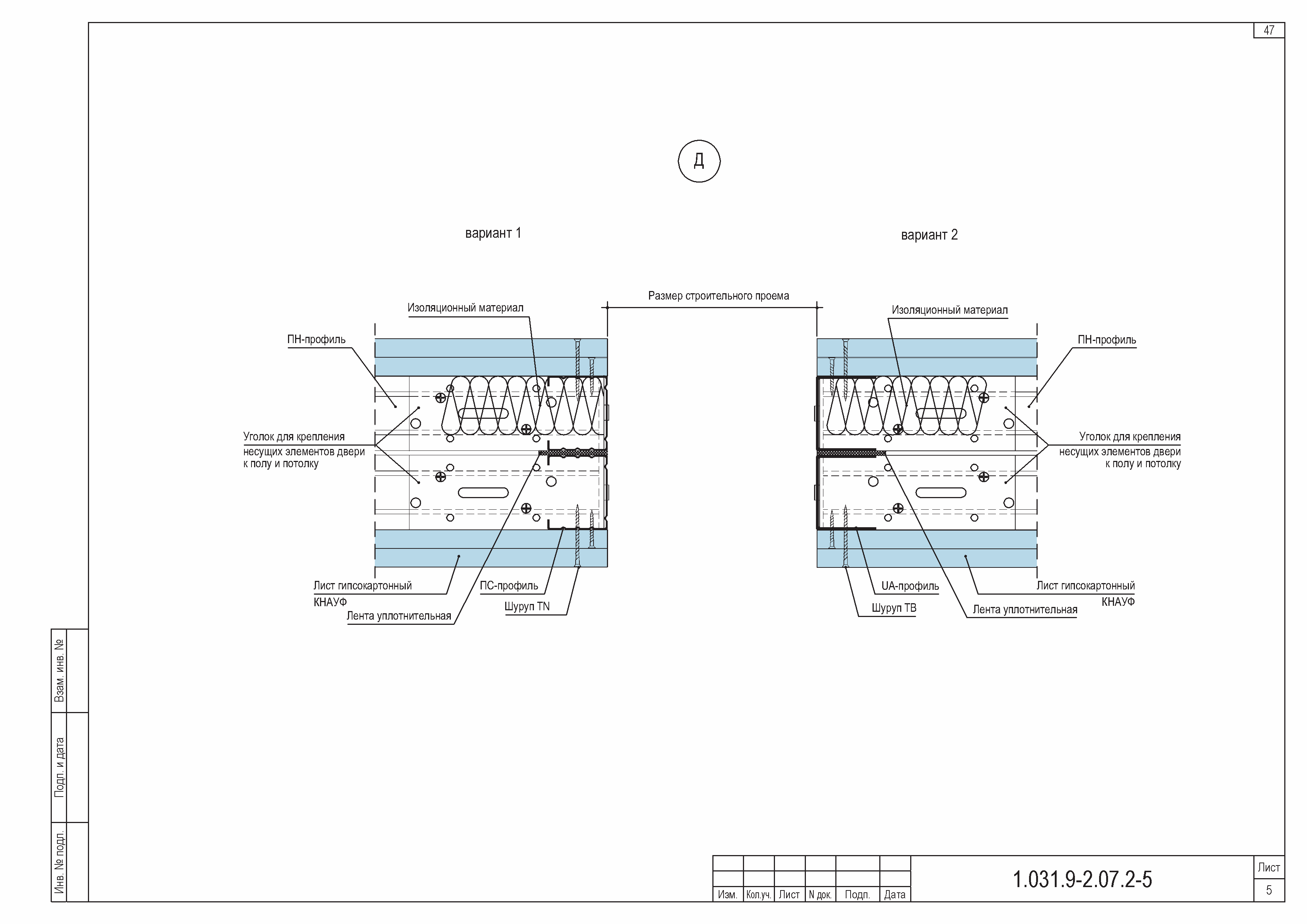
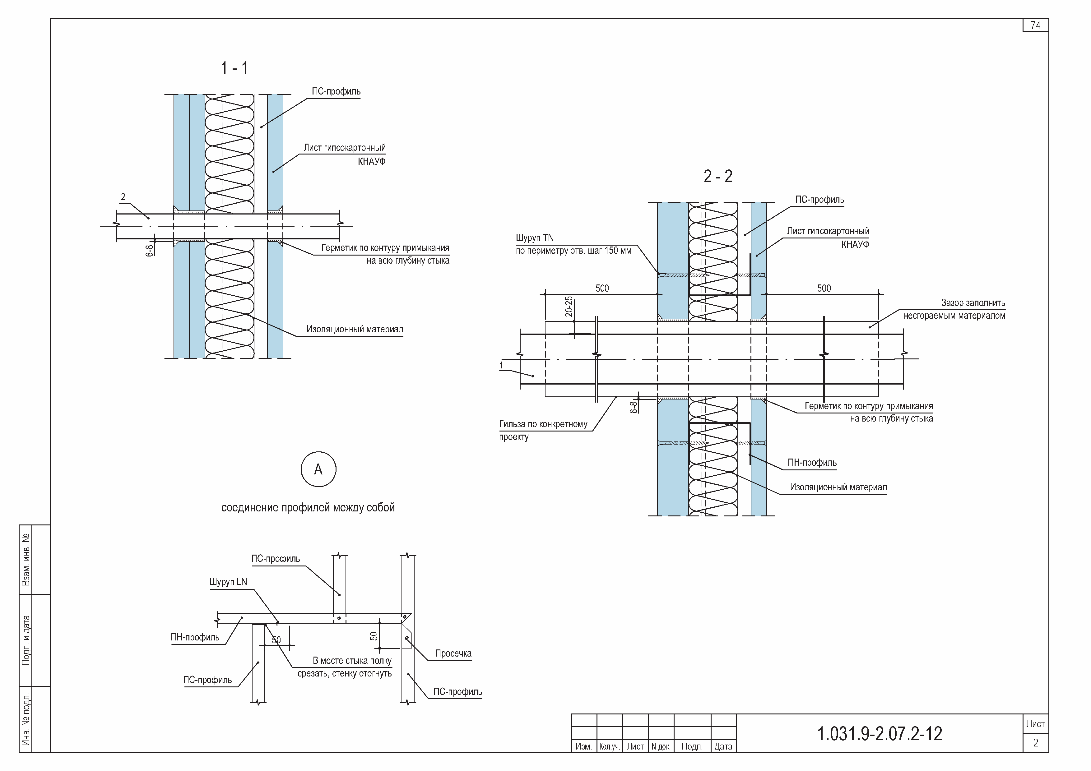
| Оглавление: | 1.031.9-2.07.2-ПЗ Пояснительная записка 1.031.9-2.07.2-1 Перегородка С111 1.031.9-2.07.2-2 Устройство проема в металлическом каркасе, удлинение стоечных профилей 1.031.9-2.07.2-3 Перегородка С112 1.031.9-2.07.2-4 Перегородка С113 1.031.9-2.07.2-5 Перегородка С115.1 1.031.9-2.07.2-6 Перегородка С115.2 1.031.9-2.07.2-7 Перегородка С116 1.031.9-2.07.2-8 Перегородка С118 1.031.9-2.07.2-9 Перегородка С121 1.031.9-2.07.2-10 Перегородка С122 1.031.9-2.07.2-11 Закругление гипсокартонных листов 1.031.9-2.07.2-12 Сопряжение перегородок с коммуникационными трассами 1.031.9-2.07.2-13 Установка коробок под электрооборудование 1.031.9-2.07.2-14 Встроенный пожарный шкаф 1.031.9-2.07.2-15 Системы для крепления навесного оборудования 1.031.9-2.07.2-П1 Приложение 1 1.031.9-2.07.2-П2 Приложение 2 |
| Разработан: | ООО Стройпроект-XXI |
| Утверждён: | 01.03.2007 ООО Стройпроект-XXI |
| Расположен в: | |
| Заменяет собой: |

























































































