Информационная система
«Ёшкин Кот»

Скачать базу одним архивом
Скачать обновления
История создания базы
Карта сайта

Скачать Серия 1.031.9-2.00 Выпуск 1. Перегородки. Рабочие чертежи

Дата актуализации: 10.08.2017

Серия 1.031.9-2.00

Выпуск 1. Перегородки. Рабочие чертежи

Обозначение: Серия 1.031.9-2.00
Обозначение англ: Series 1.031.9-2.00
Статус:заменен
Название рус.:Выпуск 1. Перегородки. Рабочие чертежи
Дата добавления в базу:01.09.2013
Дата актуализации:05.05.2017
Область применения:Сборные гипсокартонные перегородки системы KNAUF применяются как внутренние ограждающие конструкции помещений с сухим, нормальным и влажным режимом; с высотами помещений 2,7 - 9 м; с неагрессивной средой. Перегородки и узлы, разработанные в настоящей серии, предназначены для применения в жилых, общественных и производственных зданиях
Оглавление:1.031.9-2.00.1-ПЗ Пояснительная записка
1.031.9-2.00.1-1 Перегородка С111
1.031.9-2.00.1-2 Устройство проема в металлическом каркасе, удлинение стоечных профилей
1.031.9-2.00.1-3 Перегородка С112
1.031.9-2.00.1-4 Перегородка С113
1.031.9-2.00.1-5 Перегородка С115.1
1.031.9-2.00.1-6 Перегородка С115.2
1.031.9-2.00.1-7 Перегородка С116
1.031.9-2.00.1-8 Перегородка С118
1.031.9-2.00.1-9 Перегородка С121
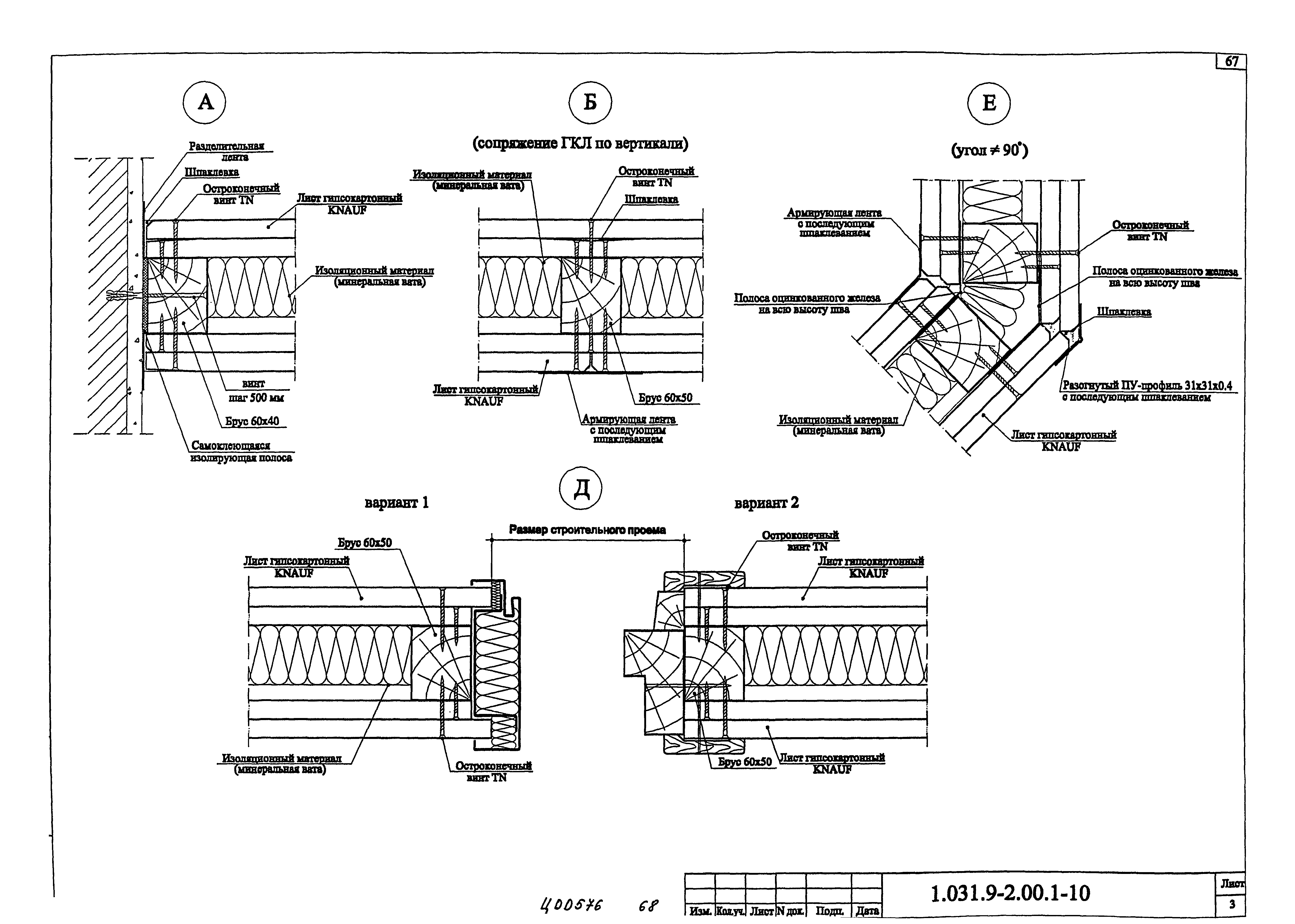
1.031.9-2.00.1-10 Перегородка С122
1.031.9-2.00.1-11 Закругление гипсокартонных листов
1.031.9-2.00.1-12 Сопряжение перегородок с коммуникационными трассами
1.031.9-2.00.1-13 Установка коробок под электрооборудование
1.031.9-2.00.1-14 Встроенный пожарный шкаф
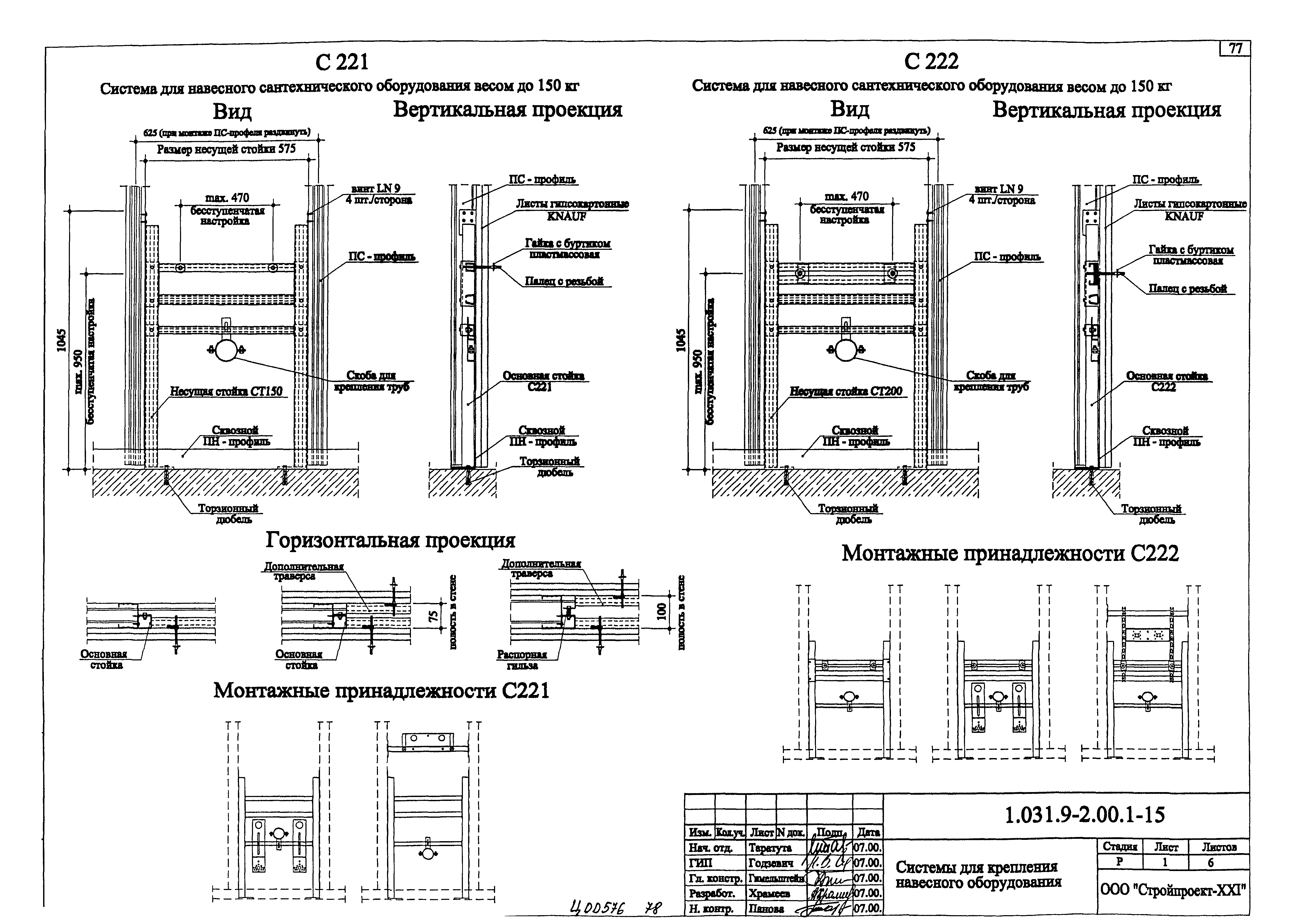
1.031.9-2.00.1-15 Система для крепления навесного оборудования
1.031.9-2.00.1-П1 Приложение 1
1.031.9-2.00.1-П2 Приложение 2
Разработан: ООО Стройпроект-XXI
Фирма KNAUF
Утверждён:25.09.2000 Госстрой России (Russian Federation Gosstroy 8-11/86)
Издан: ГУП ЦПП (CPP GUP 2000 г. )
Расположен в:Техническая документация Экология СТРОИТЕЛЬНЫЕ МАТЕРИАЛЫ И СТРОИТЕЛЬСТВО Строительные материалы Цемент. Гипс. Известь. Строительный раствор Строительные элементы Стены. Перегородки. Фасады Строительство Справочные документы Типовые строительные конструкции, изделия и узлы Общероссийский строительный каталог Строительные конструкции, изделия и узлы зданий и сооружений для всех видов строительства Конструкции, изделия и узлы зданий Ограждающие конструкции Перегородки
Чем заменён:
Нормативные ссылки:
Серия 1.031.9-2.00Серия 1.031.9-2.00Серия 1.031.9-2.00Серия 1.031.9-2.00Серия 1.031.9-2.00Серия 1.031.9-2.00Серия 1.031.9-2.00Серия 1.031.9-2.00Серия 1.031.9-2.00Серия 1.031.9-2.00Серия 1.031.9-2.00Серия 1.031.9-2.00Серия 1.031.9-2.00Серия 1.031.9-2.00Серия 1.031.9-2.00Серия 1.031.9-2.00Серия 1.031.9-2.00Серия 1.031.9-2.00Серия 1.031.9-2.00Серия 1.031.9-2.00Серия 1.031.9-2.00Серия 1.031.9-2.00Серия 1.031.9-2.00Серия 1.031.9-2.00Серия 1.031.9-2.00Серия 1.031.9-2.00Серия 1.031.9-2.00Серия 1.031.9-2.00Серия 1.031.9-2.00Серия 1.031.9-2.00Серия 1.031.9-2.00Серия 1.031.9-2.00Серия 1.031.9-2.00Серия 1.031.9-2.00Серия 1.031.9-2.00Серия 1.031.9-2.00Серия 1.031.9-2.00Серия 1.031.9-2.00Серия 1.031.9-2.00Серия 1.031.9-2.00Серия 1.031.9-2.00Серия 1.031.9-2.00Серия 1.031.9-2.00Серия 1.031.9-2.00Серия 1.031.9-2.00Серия 1.031.9-2.00Серия 1.031.9-2.00Серия 1.031.9-2.00Серия 1.031.9-2.00Серия 1.031.9-2.00Серия 1.031.9-2.00Серия 1.031.9-2.00Серия 1.031.9-2.00Серия 1.031.9-2.00Серия 1.031.9-2.00Серия 1.031.9-2.00Серия 1.031.9-2.00Серия 1.031.9-2.00Серия 1.031.9-2.00Серия 1.031.9-2.00Серия 1.031.9-2.00Серия 1.031.9-2.00Серия 1.031.9-2.00Серия 1.031.9-2.00Серия 1.031.9-2.00Серия 1.031.9-2.00Серия 1.031.9-2.00Серия 1.031.9-2.00Серия 1.031.9-2.00Серия 1.031.9-2.00Серия 1.031.9-2.00Серия 1.031.9-2.00Серия 1.031.9-2.00Серия 1.031.9-2.00Серия 1.031.9-2.00Серия 1.031.9-2.00Серия 1.031.9-2.00Серия 1.031.9-2.00Серия 1.031.9-2.00Серия 1.031.9-2.00Серия 1.031.9-2.00Серия 1.031.9-2.00Серия 1.031.9-2.00Серия 1.031.9-2.00Серия 1.031.9-2.00Серия 1.031.9-2.00Серия 1.031.9-2.00Серия 1.031.9-2.00Серия 1.031.9-2.00Серия 1.031.9-2.00Серия 1.031.9-2.00Серия 1.031.9-2.00

© 2013 Ёшкин Кот :-) Карта сайта