Информационная система
«Ёшкин Кот»

Скачать базу одним архивом
Скачать обновления
История создания базы
Карта сайта

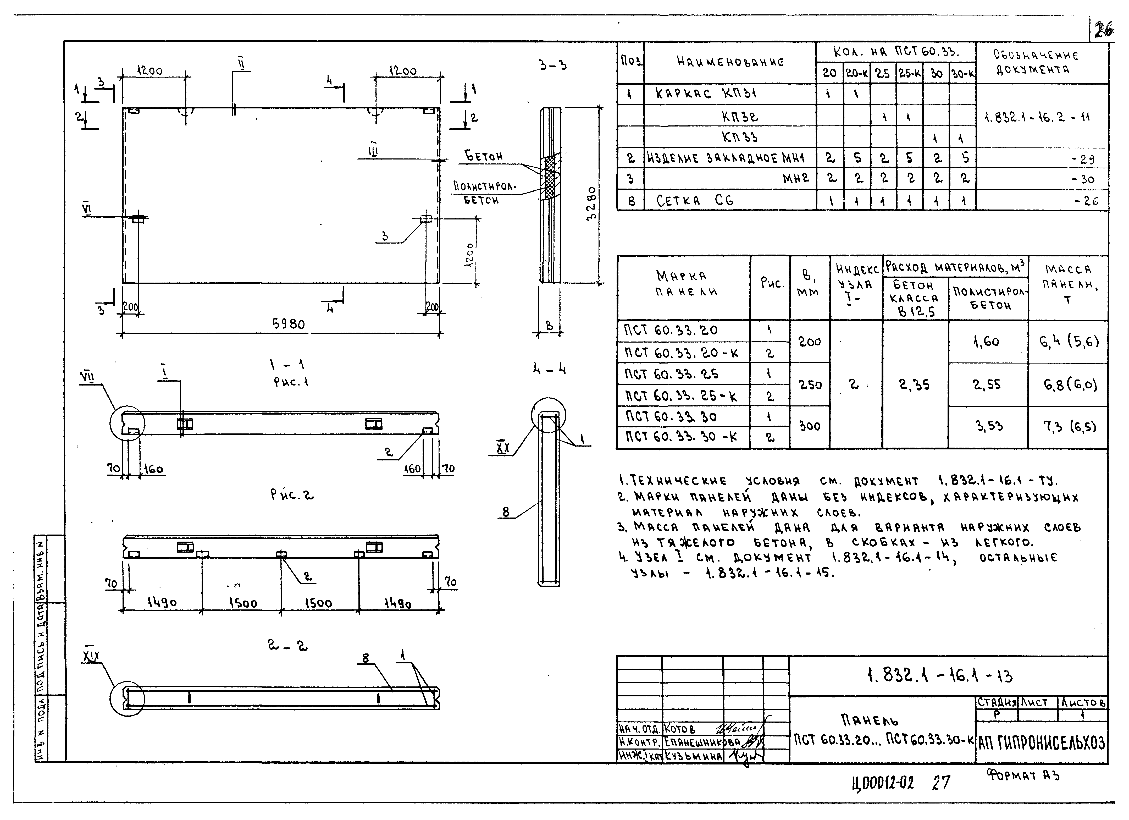
Скачать Серия 1.832.1-16 Выпуск 1. Опалубочные чертежи и армирование. Технические условия. Рабочие чертежи

Дата актуализации: 10.08.2017

Серия 1.832.1-16

Выпуск 1. Опалубочные чертежи и армирование. Технические условия. Рабочие чертежи

Обозначение: Серия 1.832.1-16
Обозначение англ: Series 1.832.1-16
Статус:не определен законодательством
Название рус.:Выпуск 1. Опалубочные чертежи и армирование. Технические условия. Рабочие чертежи
Дата добавления в базу:01.09.2013
Дата актуализации:05.05.2017
Дата введения:01.01.1993
Область применения:Настоящие технические условия распространяются на панели повышенной заводской готовности с теплоизолирующим слоем из полистиролбетона, монолитно связанного с несущими слоями
Разработан: НИИЖБ
ЦНИИЭПсельстрой
ГипроНИсельхоз (Институт Гипронисельхоз )
Утверждён:29.11.1991 Главпроект Госстроя СССР (5/4-73)
Расположен в:Техническая документация Строительство Справочные документы Типовые строительные конструкции, изделия и узлы Общероссийский строительный каталог Строительные конструкции, изделия и узлы зданий и сооружений для всех видов строительства Конструкции, изделия и узлы зданий Ограждающие конструкции Стены наружные Панели (бетонные и железобетонные)
Нормативные ссылки:
Серия 1.832.1-16Серия 1.832.1-16Серия 1.832.1-16Серия 1.832.1-16Серия 1.832.1-16Серия 1.832.1-16Серия 1.832.1-16Серия 1.832.1-16Серия 1.832.1-16Серия 1.832.1-16Серия 1.832.1-16Серия 1.832.1-16Серия 1.832.1-16Серия 1.832.1-16Серия 1.832.1-16Серия 1.832.1-16Серия 1.832.1-16Серия 1.832.1-16Серия 1.832.1-16Серия 1.832.1-16Серия 1.832.1-16Серия 1.832.1-16Серия 1.832.1-16Серия 1.832.1-16Серия 1.832.1-16Серия 1.832.1-16Серия 1.832.1-16Серия 1.832.1-16Серия 1.832.1-16Серия 1.832.1-16Серия 1.832.1-16Серия 1.832.1-16

© 2013 Ёшкин Кот :-) Карта сайта