Информационная система
«Ёшкин Кот»

Скачать базу одним архивом
Скачать обновления
История создания базы
Карта сайта

Скачать Серия 1.464-11/82 Выпуск 1. Стальные конструкции фонарей с применением в покрытии стального профилированного настила. Чертежи КМ

Дата актуализации: 10.08.2017

Серия 1.464-11/82

Выпуск 1. Стальные конструкции фонарей с применением в покрытии стального профилированного настила. Чертежи КМ

Обозначение: Серия 1.464-11/82
Обозначение англ: Series 1.464-11/82
Статус:заменен
Название рус.:Выпуск 1. Стальные конструкции фонарей с применением в покрытии стального профилированного настила. Чертежи КМ
Дата добавления в базу:01.09.2013
Дата актуализации:05.05.2017
Дата введения:01.12.1993
Оглавление:1.464-11/82.1КМ л.1.1-1.2 Пояснительная записка
1.464-11/82.1КМ л.2 Нагрузки
1.464-11/82.1КМ л.3 Схемы распоряжения конструкций фонаря шириной 12м. Шаг ферм 12м,6м
1.464-11/82.1КМ л.4 Схемы распоряжения конструкций фонаря шириной 12м. Шаг ферм 12м,6м. Разрезы 1-1;2-2;3-3;4-4
1.464-11/82.1КМ л.5 Разрезы 5-5;6-6;8-8;9-9. Виды 7-7;10-10. Таблица элементов
1.464-11/82.1КМ л.6 Фонарные панели ФП-1с;ФП-3с. Шаг ферм 12м. Узел 1
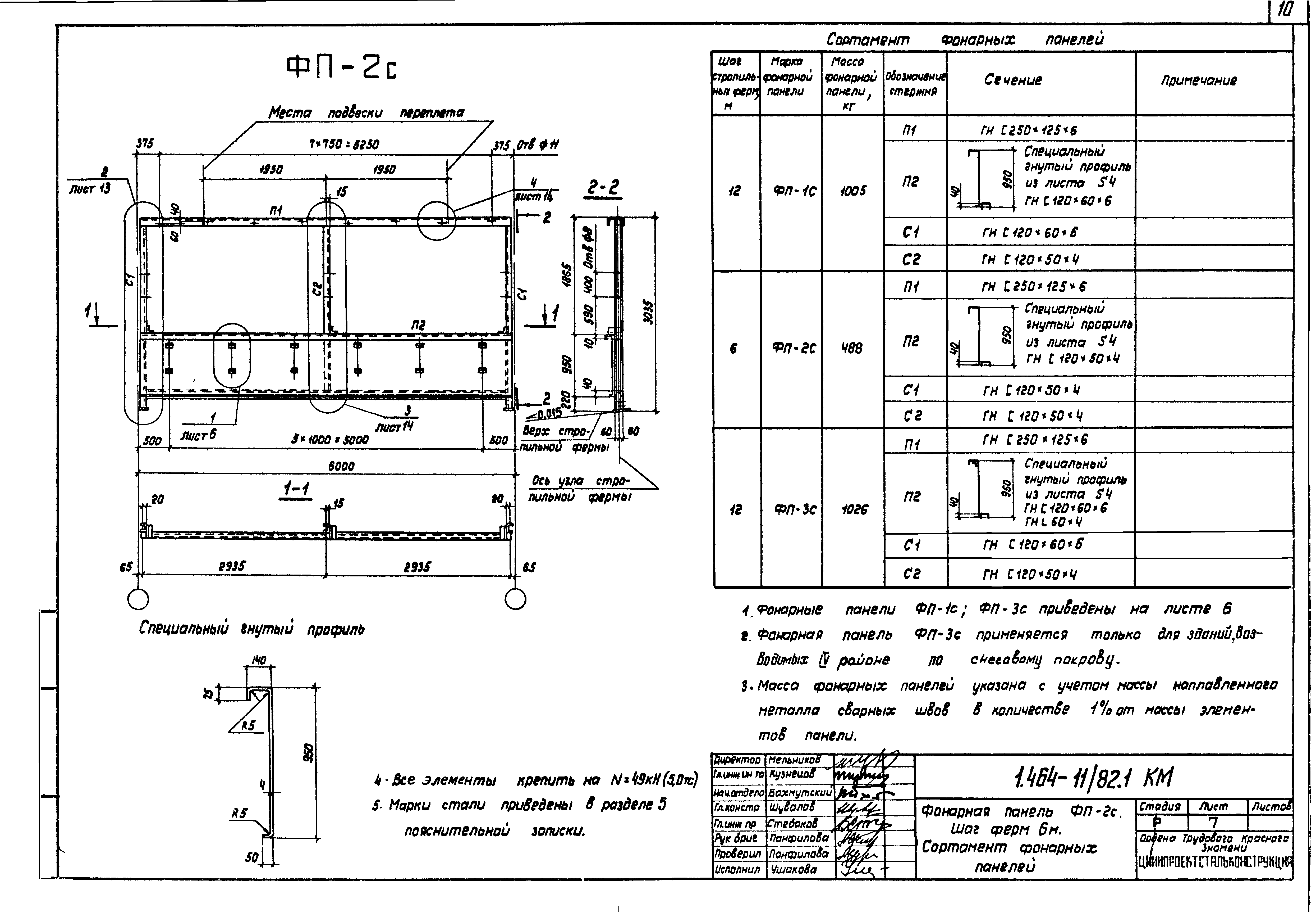
1.464-11/82.1КМ л.7 Фонарная панель ФП-2с. Шаг ферм 6м. Сортамент фонарных панелей
1.464-11/82.1КМ л.8 Фонарная ферма ФФ-1с для фонаря шириной 12м
1.464-11/82.1КМ л.9 Фонарная ферма ФФ-2с для фонаря шириной 6м. Сортамент фонарных ферм
1.464-11/82.1КМ л.10 Панель торца ПТ-1с для фонаря шириной 12м
1.464-11/82.1КМ л.11 Панель торца ПТ-2с для фонаря шириной 6м. Сортамент панелей торца
1.464-11/82.1КМ л.12 Вертикальные связи: схемы и сортамент
1.464-11/82.1КМ л.13 Узел 2 фонарной панели
1.464-11/82.1КМ л.14 Узлы 3 и 4 фонарной панели
1.464-11/82.1КМ л.15 Узлы 5-8 фонарной фермы 12м
1.464-11/82.1КМ л.16 Узлы 9-11 фонарной фермы 6м
1.464-11/82.1КМ л.17 Узлы 12,13 и 18 панелей торца
1.464-11/82.1КМ л.18 Узлы 14,15 панелей торца
1.464-11/82.1КМ л.19 Узлы 16,17,19 панелей торца
1.464-11/82.1КМ л.20 Узлы 20-23 вертикальной связи пролетом 12м
1.464-11/82.1КМ л.21 Узлы 24-27 вертикальной связи пролетом 6м
1.464-11/82.1КМ л.22 Узлы 28-32 крепления прогонов и горизонтальной связи. Шаг ферм 12м
1.464-11/82.1КМ л.23 Узлы 33-37 крепления прогонов и горизонтальной связи. Шаг ферм 6м
1.464-11/82.1КМ л.24 Монтажные узлы 38,39
1.464-11/82.1КМ л.25 Монтажные узлы 40-42
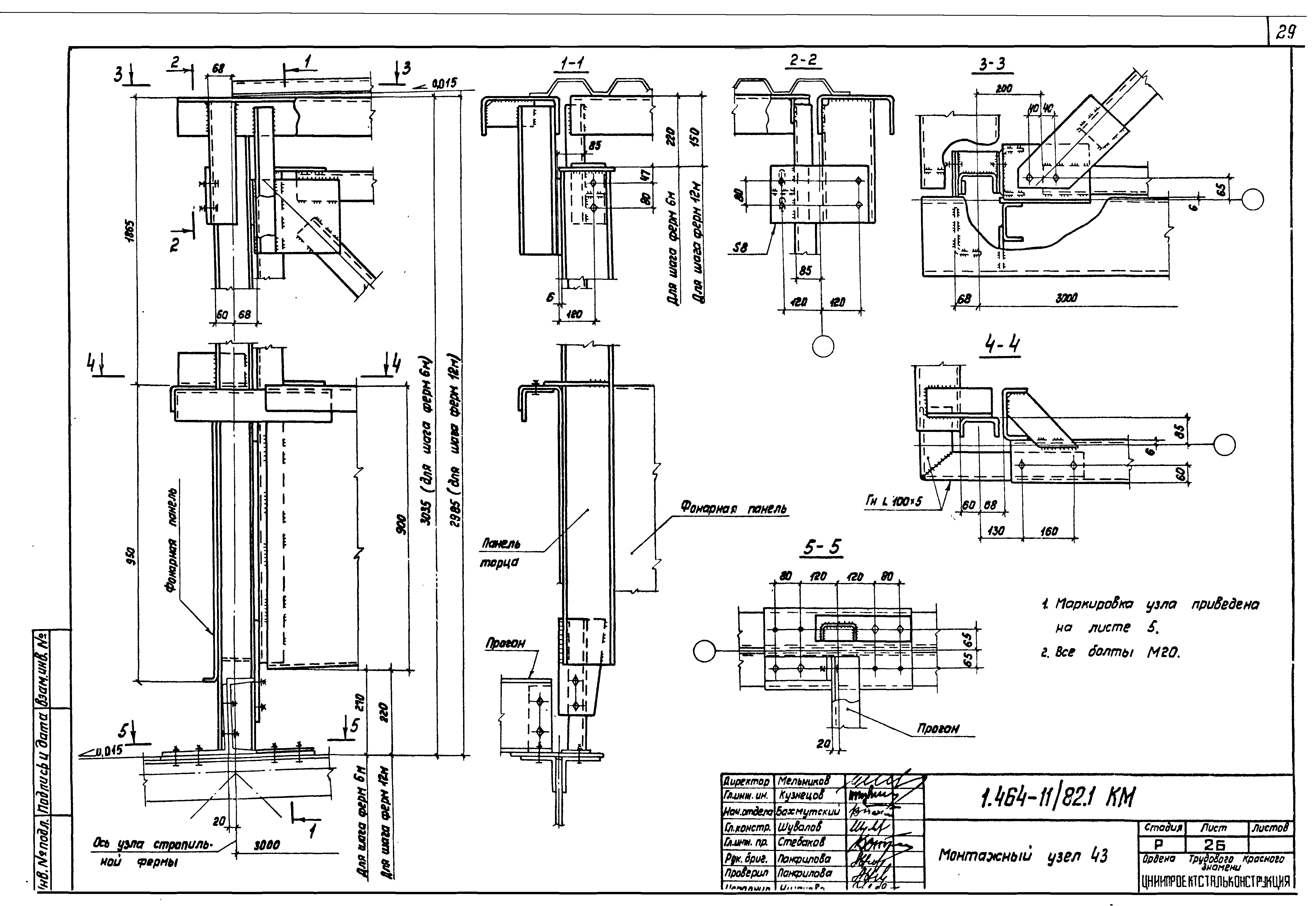
1.464-11/82.1КМ л.26 Монтажный узел 43
1.464-11/82.1КМ л.27 Спецификация стали
Разработан: ЦНИИпроектстальконструкция
Утверждён:08.09.1982 Госстрой СССР (Государственный комитет Совета Министров СССР по делам строительства) (USSR Gosstroy 211)
Расположен в:Техническая документация Строительство Справочные документы Типовые строительные конструкции, изделия и узлы Общероссийский строительный каталог Строительные конструкции, изделия и узлы зданий и сооружений для всех видов строительства Конструкции, изделия и узлы зданий Несущие конструкции одноэтажных зданий Фонари Светоаэрационные
Заменяет собой:
Чем заменён:
Серия 1.464-11/82Серия 1.464-11/82Серия 1.464-11/82Серия 1.464-11/82Серия 1.464-11/82Серия 1.464-11/82Серия 1.464-11/82Серия 1.464-11/82Серия 1.464-11/82Серия 1.464-11/82Серия 1.464-11/82Серия 1.464-11/82Серия 1.464-11/82Серия 1.464-11/82Серия 1.464-11/82Серия 1.464-11/82Серия 1.464-11/82Серия 1.464-11/82Серия 1.464-11/82Серия 1.464-11/82Серия 1.464-11/82Серия 1.464-11/82Серия 1.464-11/82Серия 1.464-11/82Серия 1.464-11/82Серия 1.464-11/82Серия 1.464-11/82Серия 1.464-11/82Серия 1.464-11/82Серия 1.464-11/82Серия 1.464-11/82

© 2013 Ёшкин Кот :-) Карта сайта