Информационная система
«Ёшкин Кот»

Скачать базу одним архивом
Скачать обновления
История создания базы
Карта сайта

Скачать Серия 1.464.2-25.93 Выпуск 1. Стальные конструкции фонарей с применением в покрытии стального профилированного настила высотой до 75 мм. Чертежи КМ

Дата актуализации: 10.08.2017

Серия 1.464.2-25.93

Выпуск 1. Стальные конструкции фонарей с применением в покрытии стального профилированного настила высотой до 75 мм. Чертежи КМ

Обозначение: Серия 1.464.2-25.93
Обозначение англ: Series 1.464.2-25.93
Статус:не определен законодательством
Название рус.:Выпуск 1. Стальные конструкции фонарей с применением в покрытии стального профилированного настила высотой до 75 мм. Чертежи КМ
Дата добавления в базу:01.09.2013
Дата актуализации:05.05.2017
Дата введения:01.11.1993
Оглавление:1.464.2-25.93.1-ТТ Технические требования
1.464.2-25.93.1-01КМ Нагрузки
1.464.2-25.93.1-02КМ Схемы расположения конструкций фонаря. Таблица элементов
1.464.2-25.93.1-03КМ Фонарная панель (ФП-). Сортамент
1.464.2-25.93.1-04КМ Фонарная ферма (ФФ-). Сортамент
1.464.2-25.93.1-05КМ Панель торцов фонаря (ТП-). Сортамент
1.464.2-25.93.1-06КМ Фонарная панель. Узел 1...4
1.464.2-25.93.1-07КМ Фонарная ферма. Узел 5...11
1.464.2-25.93.1-08КМ Панель торцов фонаря. Узел 12...19
1.464.2-25.93.1-09КМ Вертикальные связи. Схемы и сортамент
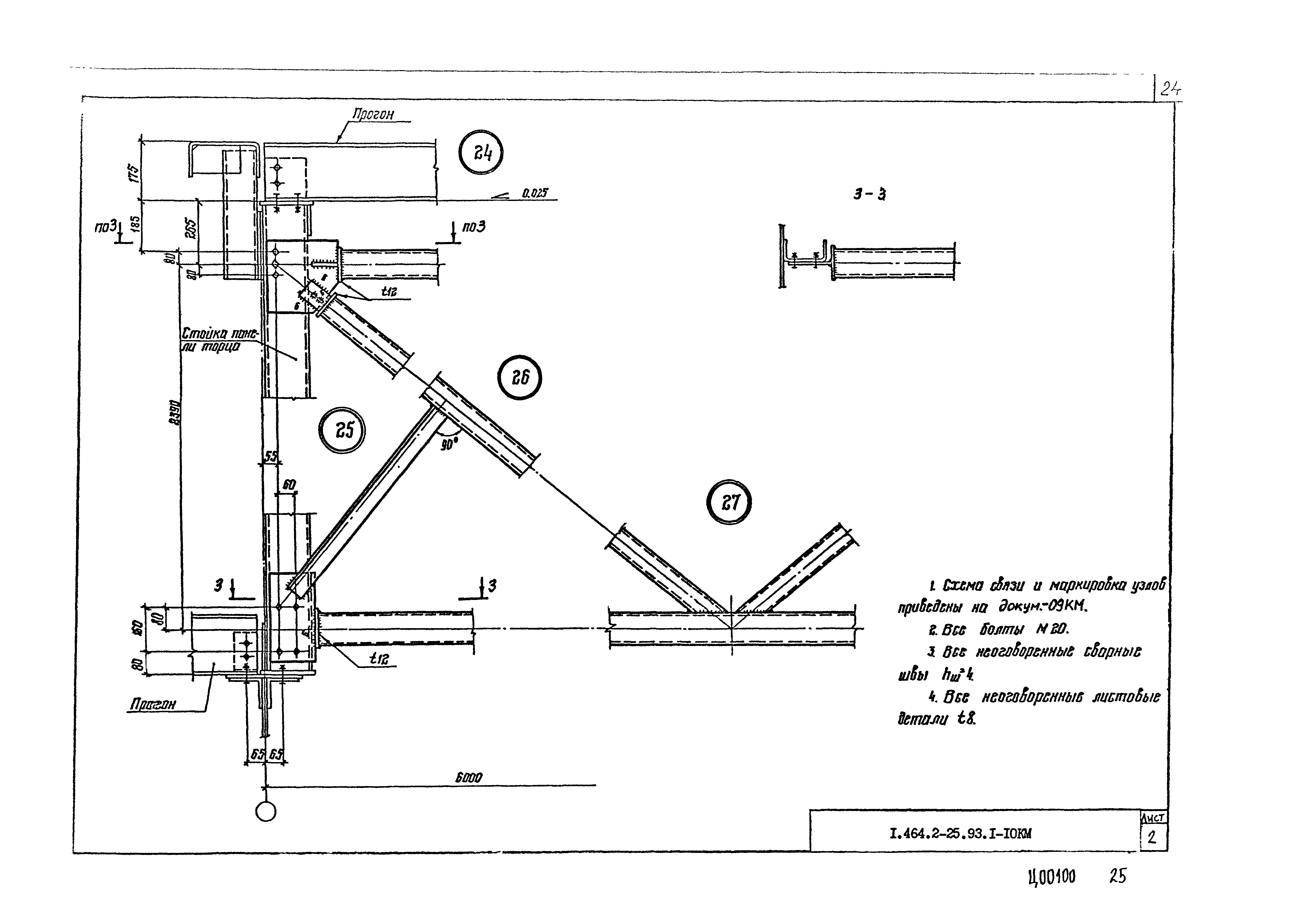
1.464.2-25.93.1-10КМ Узел 20...27
1.464.2-25.93.1-11КМ Крепление прогонов и горизонтальных связей. Узел 28...37
1.464.2-25.93.1-12КМ Монтажный узел 38...43
1.464.2-25.93.1-13КМ Спецификация стали
Разработан: ЦНИИПСК им. Мельникова
Утверждён:18.08.1993 Госстрой России (Russian Federation Gosstroy 9-3-3/179)
Расположен в:Техническая документация Строительство Справочные документы Типовые строительные конструкции, изделия и узлы Общероссийский строительный каталог Строительные конструкции, изделия и узлы зданий и сооружений для всех видов строительства Конструкции, изделия и узлы зданий Несущие конструкции одноэтажных зданий Фонари Светоаэрационные
Заменяет собой:
Серия 1.464.2-25.93Серия 1.464.2-25.93Серия 1.464.2-25.93Серия 1.464.2-25.93Серия 1.464.2-25.93Серия 1.464.2-25.93Серия 1.464.2-25.93Серия 1.464.2-25.93Серия 1.464.2-25.93Серия 1.464.2-25.93Серия 1.464.2-25.93Серия 1.464.2-25.93Серия 1.464.2-25.93Серия 1.464.2-25.93Серия 1.464.2-25.93Серия 1.464.2-25.93Серия 1.464.2-25.93Серия 1.464.2-25.93Серия 1.464.2-25.93Серия 1.464.2-25.93Серия 1.464.2-25.93Серия 1.464.2-25.93Серия 1.464.2-25.93Серия 1.464.2-25.93Серия 1.464.2-25.93Серия 1.464.2-25.93Серия 1.464.2-25.93Серия 1.464.2-25.93Серия 1.464.2-25.93Серия 1.464.2-25.93Серия 1.464.2-25.93

© 2013 Ёшкин Кот :-) Карта сайта