Скачать Методические указания по технологическому проектированию горнодобывающих предприятий металлургии с подземным способом разработкиДата актуализации: 10.08.2017
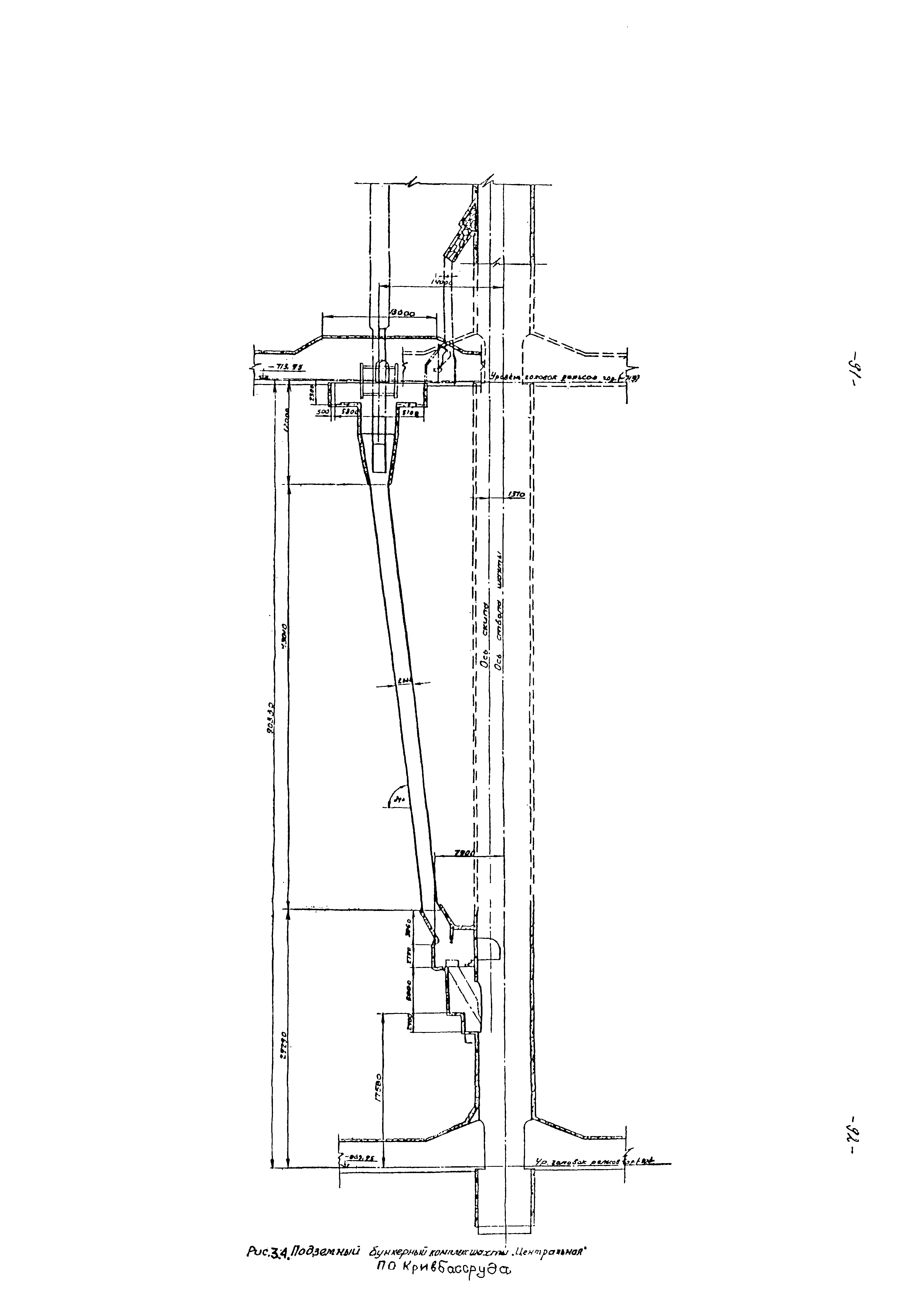
Методические указания по технологическому проектированию горнодобывающих предприятий металлургии с подземным способом разработкиСтатус: | действует | Название рус.: | Методические указания по технологическому проектированию горнодобывающих предприятий металлургии с подземным способом разработки | Дата добавления в базу: | 01.09.2013 | Дата актуализации: | 05.05.2017 | Дата введения: | 01.04.1993 | Область применения: | Методические указания являются приложением к нормам технологического проектирования (НТП) и предназначены для разработки проектной документации на строительство, реконструкцию и техническое перевооружение горнодобывающих предприятий, эксплуатирующих подземным способом рудные месторождения черных и цветных металлов. | Оглавление: | Введение 1 Геологическое обоснование проектных решений 1.1 Общие положения 1.2 Сбор и проверка качества исходных данных 1.3 Подготовка исходных данных для проектирования 1.4 Методика определения качественной характеристики полезного ископаемого 1.5 Методика подсчета запасов полезного ископаемого 1.6 Обоснование методики и объемов геологоразведочных работ 2 Осушение месторождений 2.1 Основные положения 2.2 Выбор способа осушения 2.3 Подземные дренажные выработки 2.4 Дренажные устройства 2.5 Способы сооружения дренажных устройств и их конструкции 2.6 Водоприемные фильтры 2.7 Мероприятия по интенсификации работ дренажных устройств 3 Горная часть 3.1 Горный отвод 3.2 Зоны вредного влияния горных работ и меры охраны от него зданий, сооружений и природных объектов 3.3 Методические рекомендации по определению мощности подземных рудников 3.4 Вскрытие и подготовка месторождений 3.5 Горнокапитальные работы 3.6 Системы разработки 3.7 Подготовительно-нарезные работы 3.8 Очистные работы 3.9 Закладочные работы 3.10 Календарный график развития добычи руды 3.11 Методические принципы формирования комплексов горношахтного оборудования 3.12 Внутришахтный транспорт 3.13 Проветривание рудников 3.14 Хозяйство взрывчатых материалов (ВМ) 4 Горномеханическая часть 4.1 Подъемные установки 4.2 Механооборудование клетевых околоствольных дворов 4.3 Механооборудование подземных бункерных комплексов (ПБК) и скиповых околоствольных дворов 4.4 Главные вентиляторные установки 4.5 Калориферные установки 4.6 Водоотливные установки 4.7 Компрессорные установки 5 Электроснабжение, электрооборудование и электрическое освещение 5.1 Общие положения 5.2 Электроснабжение 5.3 Электрооборудование 5.4 Электрифицированный подземный транспорт 5.5 Подготовка и выдача исходных данных для проектирования 6 Автоматизация, диспетчеризация, связь и сигнализация 6.1 Технико-экономическое обоснование 6.2 Проект (рабочий проект) 7 Ремонтное и складское хозяйство 8 Генеральный план 8.1 Характеристика действующего предприятия (для проекта реконструкции, расширения или технического перевооружения) 8.2 Генеральный план проектируемого предприятия 8.3 Инженерная подготовка территории 8.4 Планировочные решения по площадкам нового строительства 8.5 Вертикальная планировка и благоустройство на площадках нового строительства 8.6 Территории, потребные для размещения объектов предприятия 8.7 Технико-экономические показатели по площадкам строительства 9 Транспорт 10 Теплоснабжение 10.1 Общая часть 10.2 Технико-экономическое обоснование 10.3 Составление проекта 10.4 Рабочий проект 10.5 Перечень основных нормативных материалов 11 Промышленная санитария 11.1 Водоснабжение и канализация 11.2 Отопление и вентиляция 12 Охрана окружающей природной среды 12.1 Общие положения 12.2 Мероприятия по восстановлению территорий, нарушенных при строительстве и эксплуатации предприятия, внеплощадочное озеленение и санитарно-защитная зона 13 Комплексное освоение месторождений 13.1 Основные понятия и принципы концепции комплексного освоения недр 13.2 Критерии оценки эффективности проектных решений 13.3 Принципы системного подхода к проектированию рудников при комплексном освоении месторождений 13.4 Методические положения проектной оценки запасов месторождения как объекта комплексного освоения 13.5 Условия совместной оптимизации проектных задач по выбору схемы выемки, порядка отработки запасов и схемы вскрытия 13.6 Оптимизация взаимосвязи процессов извлечения и воспроизводства запасов 13.7 Особенности принятия проектных решений с учетом требований стабилизации качества и резервирования горных возможностей подземного рудника | Разработан: | Гипроцветмет Гипроруда Минчермета СССР Кривбасспроект Минчермета СССР УНИПРОМЕДЬ ИПКОН РАН
| Утверждён: | 27.01.1993 Комитет Российской Федерации по металлургии (1)
| Расположен в: |
| Нормативные ссылки: | |
                                                                                                                                                                                                                                                                            
|